Selected Works 2019 - 2023

Page 1


Yi Xing Chow

Selected works 2019 - 2023

Yi Xing Chow

My passion for architecture lies in the hands-on process of formgiving, in the collaborative steps towards shaping ideas. My years of experience in Japan has taught me how to "think with my hands" through sketches, diagrams, and skillfully crafted models.

Education:

Politecnico di Milano, Italy

2024 - now : PhD. AUID

2020 - 2023 : M.Sc. AUD (Hons.)

Yamaguchi University, Japan

2015 - 2018 : B. Architecture Eng. Yamaguchi University, Japan

2012 - 2015 : Dip. Mechanical Eng.

Work:

. ASA Honours Programme Tutor

2025 - now : Politecnico di Milano

Design studio Teaching Assistant

2023 - 2024 : Politecnico di Milano

. Junior architect

2018 - 2020 : Fujiwalabo

. Internships

2022 : Reigler Riewe Architekten

2017 : Tezuka Architects

2016 : Atelier Ryu email : yixing.chow@polimi.it insta. : @seanchowyx

Kyoto City Univ. of Arts

Kyoto Japan Settlers and Shophouses

George Town Malaysia

12

4 2

The Sibarian Archeo-pelago

Italy

Under the Bridge School + Clinic

Nembro Italy

Pavilion w. CODESIGNLAB

Milan Italy

Mori Lamp N.51 Art Exhibition

Milan Italy

3 22 4 5 6 34 44 48

Calabria
Timber

design-build | social landscapes | urban regeneration | university campus

“... we want our university campus to be like floating terraces of intersecting crossroads, where students, local residents, artists, and people from all walks of life can meet and interact, to foster collaboration and to spark new ideas in the heart of Kyoto city.”

Akamatsu, KCUA headmistress

Kyoto City University of Arts

Project : winning competition project, joint-venture

Offices : Inui Architects, Ring Architects, O + H, Yoshimura Architects, Fujiwalabo

Site : Kyoto, Japan

Duration: Oct 2017 - Oct 2023 (completed)

I represented Fujiwalabo as a part of the core project design team. My main responsibilities were: model making, digital modeling, archviz rendering, and intern/student helper management. My position in this project as the 3D and rendering specialist has been indispensable for providing in-house solutions to renderings and visual studies for the team throughout the design phase.

The steadfast development of this project depended on a CAD-to3D workflow to check for drafting accuracy and fit, as well as to develop renders for in-house studies and for communicating with clients and collaborators. I was in charge of the development and maintenance of the project 3D file, as well as making renderings using them.

Top: rendered exterior view of the main campus block Bottom: rendered interior view of the campus library

The highlighted parts indicate areas where my involvement was essential to the project development

Timeline of development details: physical study model-making

3D studies and archviz rendering

- building facades

- structural design

- surrounding urbanscape

- halls and theaters

- pedestrian bridges

- campus library and office

- interior/exterior elements

Top: elements and sub-assemblies of ceiling acoustic panel

Top: a tileable unit in joint configuration

Bottom: ceiling plan in the large ensemble hall

Design iterations

Top: flow-diagram of the iterative design process of the ceiling

historical studies | heritage preservation | urban design | placemaking

“...by understanding who we are, where we come from, where we are now, and what to keep for our children, will form our societal foundations for growing more love and appreciation towards our shared (architectural and cultural) heritage.”

Dr. Tan Chin Ling, architect conservator, Malaysia

Settlers and Shophouses

Thesis : Masters in Architecture and Urban Design, research by design

Supervisor : Pierre-Alain Croset

Site : George Town, Penang, Malaysia

Proposal : a series of small-scale pilot projects

George Town is a city in Penang, Malaysia with its historical urban fabric of vernacular shophouses threatened by dereliction and damage due to poor management.

Following a months-long, historical, urban, and architectural research, a development strategy is proposed responding to the critical urban depopulation and loss of heritage buildings in the city. This results in a series of pilot proposals for regenerating local architecture, communities and their heritages.

core zone

buffer zone

communal park

residential areas

project site N

This proposal aims to mirror the existing community park in the central-south neighborhood onto the declining northern neighborhood, whilst also introducing new functions integrated into the neighborhood regeneration plans. These proposed functions are elaborated on the next page.

1. ecological garden

2. co-operative housing

3. community center

4. residential park

5. social housing units

6. guesthouse + café

7. research outpost

8. art installation

9. community garden List

small residential park by the local community.

a. meeting spaces

b. open multi-function hall

c. communal kitchen

d. private office

e. reception

f. workshop

g. co-working space

h. homeless shelter

i. artist-in-residence studio

j. back lanes

community center social welfare center artist - in - residence

Love Lane
garden
Top: Upper and lower floor plans of the community center with the residential park site plan
Top left: facade view of the community center
Top right: the residential park behind the community center
Bottom: Section of the community center and residential park

archeological preservation | structural design | landscape design

“I want to speak about bodies changed into new forms. You, gods, since you are the ones who alter these, and all other things, inspire my attempt, and spin out a continuous thread of words, from the world's first origins to my own time.”

Ovid: The Metamorphoses Bk. I.1-20 The Primal Chaos

The Sibarian Archeo-pelago

Class: Thematic research studio

Prof. : Fabrizia Berlingierli, Matteo Motti

Site : Sibari, Calabria, Italy

Mark: 30/30 cum laude

Juxtaposed upon ancient migratory paths and historical settlements, this project proposes a long term strategy for preserving the integrity and identity of the Sibari archeological sites against imminent rising sea levels, whilst elevating the historical prominence and identity of the space within the timeless landscape of Calabria.

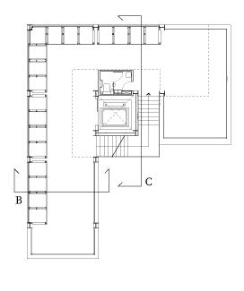
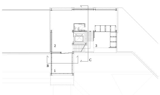
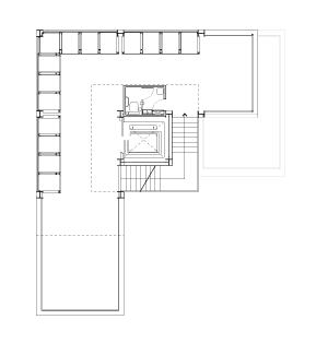
1. cafe and museum shop

2. lobby, information hub

3. excavation site workshop

4. storage room

N 0 5 10m

rf. lighthouse, tower spire

5f. deck, elevator system access

4f. main observation deck

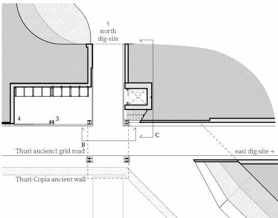
3f. Sybaris-era artifacts

2f. Thuri-era artifacts

1f. Copia-era artifacts

gf. Lobby, embankment level

bf. Archeological sites

Earth embankments are built around main archeological sites with immovable artifacts to protect them from the rising sea level. Terracing and tree-planting the slopes help stabilize the earthworks, providing shaded green spaces for the public.

Shelf and structural systems

1. modular artifact shelf units

2. main structural members

3. structural braces

4. metal mesh

5. prefabricated sub-assembly

6. precast concrete slab module

7. main structural span unit

Rendered interior view

Top: Interior view of the tower (open-air structure)

Northeastern approach in urban context

post-covid communal redevelopment | prefabricated structural design

“The more successfully a city mingles everyday diversity of uses and users in its everyday streets, the more successfully... its people thereby enliven and support well-located parks that can thus give back grace and delight to their neighborhoods instead of vacuity. ”

Under the bridge: School + Clinic

Class: Architectural design studio

Prof.

Site : Nembro, Bergamo, Italy

Mark: 30/30 cum laude

: Pierre Alain Croset, Elena Fontanella, Deborah Briccola

Northeastern approach in urban context

passing school park, looks the slope cannot hidden out fences yard The long, from courtyard is talk the the forest can beams windows especially grass. sliding while because stage actors. also with my weekends. schools very

Top right: outdoor classroom in the school garden Bottom right: view from inside the school cafeteria

This curving, linear building consists of a clinic and an elementary school. The clinic is partially submerged into the public park. Its multipurpose entrance hall opens to the pedestrian path under the bridge.

Meanwhile, the school starts from under the bridge opposite the clinic, and wraps around an enclosed inner garden bordered by the building and pedestrian path. Both the school and the clinic are joined by a library on the bridge arching across the pedestrian path.

Right: school and clinic floorplans Bottom: South elevation of the site

Elementary school

1. classroom

2. corridor

3. washroom

4. catering room

5. serving bar

6. canteen

7. school entrance foyer

8. school gym

Underground gym

9. changing room

10. shower room

11. utility room

12. public entrance to gym

Bridge library

13. ramp to school foyer

14. library

15. public lecture hall

16. staircase to clinic

Medical clinic

17. clinic entrance foyer

18. waiting area

19. clinic secretary

20. examination room

21. nurse room

22. specialist room

Outdoor

23. brick-paved street

24. pedestrian path

25. terraced steps, slope

26. public park

27. streetside parking

28. school garden

1. 250mm concrete planks | hollowcore

2. truss main chord | S355 IPE 550

3. vertical/diagonal truss | S355 HEA 220

4. cross-bracing rods | Ø 20mm steel cable

5. concrete base

6. 300mm concrete plank | hollowcore

2 %

Facade components

1. titanium zinc parapet flashing

2. two-ply polymer bitumen membrane

3. precast lightweight concrete cladding

4. rainwater drain channel/collector

5. S355 IPE 550 steel beam

6. S355 HEA 200 steel beam

7. thermal bridge insulation 80mm

8. steel L-bracket window frame mount

9. stainless steel raindrop stopper

10. motorized canvas sunshader

11. stainless steel window framing

12. double-glazed window

13. trench heating convector grate

14. trench heating convector

15. rigid insulation

Roof material straitigraphy

a. 50 - 150mm marble gravel

b. 10 - 20mm rubber granulate building protection mat

c. 5mm two-ply polymer bitumen membrane

d. tapered insulation 80mm

e. moisture barrier

f. 250mm concrete planks

g. stainless steel L braket

h. crossbracing anchor plate

i. 50mm ceiling panels

Floor material straitigraphy

j. 10 - 20mm polished concrete top

k. 100mm lightweight screed

l. 5mm separation layer

m. 80mm tapered insulation

n. 5mm separation layer

o. 300mm concrete planks

p. stainless steel L bracket

q. crossbracing anchor plate

r. 50mm precast lightweight concrete cladding

Top: rendered interior view of the underground school gym Rendered

design prototype | modular structure

“...with the aim to bridge a social design agenda with ecological construction and digital manufacturing approach, 20 students from 16 different countries have been working for 8 intense days in translating the "idea" of a performative sport space into a 1-to-1 scale open-air gym”

Cascone, Cascone + Laddaga/CODESIGNLAB

Wooden Pavilion w. CODESIGNLAB

Program: Advanced School of Architecture (ASA)

Class: Masterclass #1 : Restorative Open-air Gym

Prof. : Paolo Cascone, Maddalena Laddega, Pierre-Alain Croset

Site : Milan, Italy

1. perforated roof panels

2. wall panels

3. foldable workout bench

4. pole-dancing bar

5. modular add-ons

6. floor panels

7. timber structural frame Project summary

During the 2-week "Open-air Gym" workshop seminar led by Cascone and Laddaga of CODESIGNLAB, me and my colleagues from the ASA program designed and built a 1:1 scale prototype timber pavilion for as part of a grassroots movement to the inmates of Milan's Bollate prison with a modular, self-buildable, outdoor exercising space.

handmade scuplture | architecture skill transfer | spatial studies

“...such is the impermanence of our cold, uncaring universe, nonchalantly reminding us of its indifference with all the ironies and follies in our own lives, that all that is lost will be found, and all that is found will be lost. ”

Yi Xing (Sean) Chow, notes on the making of Mori Lamp

Mori Lamp

Artwork: bespoke ornamental lamp

Material: paper, gesso, clay

Dimensions: 30cm × 30cm × 40cm

Exhibition: Double & Duality, @N.51 Concept Gallery, Milan

Dates: 24.10.2023 - 22.12.2023

The Mori Lamp is a metaphorical sculpture that explores how we interact between our inner selves our social environment in our daily lives. The design is modelled after the Japanese social concept of "honne and tatemae", where one's inner self remains hidden behind one's public facade.

fin. Yi Xing Chow

Selected works: ver. 02.2024

Turn static files into dynamic content formats.

Create a flipbook
Issuu converts static files into: digital portfolios, online yearbooks, online catalogs, digital photo albums and more. Sign up and create your flipbook.
Selected Works 2019 - 2023 by Yi Xing Chow - Issuu