Memories Congregation_ Design Journal

Page 1

MEMORIES

1
YILUN ZHU MASTER STUDIO E09 MELBOURNE SCHOOL OF DESIGN 2024 ARCHITECTURE 1366233
CONGREGATION

“One can say that the city itself is the collective memory of its people, and like memory it is associated with objects and places. The city is the locus of the collective memory.”1

3
(Aldo Rossi, Peter Eisenman (1982). “Architettura Della Città”, p.130, MIT Press)
4

week 1

week 2

week 3

week 3

week 4

week 5

mid-semester presentation

week 7

week 8

week 9

week 10

week 11

week 12

the final outcome

studio reflection

5 contents
# # # # # # # # # # # # # # #
6

Let‘s talk about tea...

7
week 1
“Cracking the experience”
8 TASK BRIEF FROM STUDIO OUTLINE

How Yorkshire Tea grew from a local brand to be the nation’s cup of tea

(https://www.yorkshirepost.co.uk/business/howyorkshire-tea-grew-from-a-local-brand-to-be-thenations-cup-of-tea-1770029)

(https://en.wikipedia.org/wiki/ Biluochun)

Lemon myrtle

(https://en.wikipedia.org/wiki/ Backhousia_citriodora)

Different Culture has differnent Tea

Tea holds a significant place across various cultures due to its deep heritage and historical roots. It’s more than a beverage; tea symbolizes a rich tapestry of tradition, community, and ritual. From formal ceremonies in Japan to the daily tea time in Britain, it embodies a cultural heritage that transcends generations, fostering connections and signifying hospitality. This tradition showcases the global impact of tea, illustrating its importance not just in culinary terms but as a cultural artifact that binds communities and preserves ancient customs.

(https://en.wikipedia.org/wiki/Tea_culture)

9
Biluochun

Sipfill

Live Your Senses With Every Leaf

BASIC BRAND IDENTITY EXPLORATION

SipFill offers a refreshing journey through the world of tea, blending tradition with a modern twist. Each sip invites you to "Live Your Senses with Every Leaf," a slogan that captures the essence of our vision: to enrich everyday moments with the simple pleasure of quality tea. SipFill is more than just tea; it's an exploration of flavors, cultures, and the art of tea making, carefully curated to awaken your senses and bring a sense of fulfillment and joy

·VISUAL

SYSTEM REFERENCES

-THE STRING AND WASHER ENVELOPES·

11

Second bite on task 0A

With the feedback on the fisrt crack on task is suggested “a bit in general“, go for another round. Try something more interesting

A drinking culture for the many, not the few: the importance of beer and pubs

(https://www.culturematters.org.uk/index.php/ culture/dining/item/2877-a-drinking-culture-forthe-many-not-the-few-the-importance-of-beer-andpubs)

Choosing to focus on craft beer, especially in the context of a craft pub, aligns with a broader cultural appreciation for artisan, locally produced goods that embody unique flavors, craftsmanship, and a sense of community. Craft beer is not just about the beverage itself but about reviving and embracing the rich tapestry of brewing heritage. It offers a direct connection to local traditions, brewers’ creativity, and the communal spirit of sharing quality, distinctive beers that reflect the locale’s character and the brewers’ expertise. This emphasis on craft beer serves as a counterpoint to mass-produced beers, highlighting a commitment to quality, diversity, and sustainability. It resonates with consumers’ growing desire for products with a story, authenticity, and a clear provenance, making the craft pub not only a place for enjoyment but also a cultural hub that fosters community ties through the shared experience of distinctive, locally crafted beers.

(CLARKE, BEN. “‘The Poor Man’s Club’: The Middle Classes, the Public House, and the Idea of Community in the Nineteen-Thirties.” Mosaic: An Interdisciplinary Critical Journal 45, no. 2 (2012): 39–54. http://www.jstor.org/stable/44030680.

15

Tea Fusion Beer

Our Tea Fusion Beer uniquely marries the rich heritage of tea with the robust world of craft beer. This innovative beverage integrates the floral and herbal notes of various teas, such as black, green, and oolong, with traditional beer flavors, offering a complex yet harmonious taste profile. Inspired by a blend of expert insights and brewing techniques

Brewing With Tea - Grainfather Community (https://grainfather.com/brewing-with-tea/)

Move Over Coffee Beer. Tea Beers are Steeping Hot Right Now (https://www.craftbeer.com/craft-beer-muses/teabeers-steeping-hot)

Victoria Bitter launches beer flavoured tea for The Ashes | Metro News (https://metro.co.uk/2019/07/29/can-now-get-teatastes-like-beer-can-pint-anytime-10482178/)

Homebrewing With Tea Is the New Dry-Hopping | VinePair (https://vinepair.com/articles/homebrewing-with-tea/)

17

reflection on task 0A

Task 0A’s journey from concept to product leveraged tea’s role as a cultural bridge, blending diverse traditions into our unique Tea Beer. Initially, feedback indicated our vision was too broad, prompting a refined focus on how tea and beer could symbolically unite various cultures and communities. This feedback became a stepping stone, enhancing our product’s identity as not just a beverage, but a celebration of mixed heritage and innovation. Our Tea Beer embodies this vision, offering a taste experience that transcends boundaries and invites exploration.

19
20

Let‘s talk about Site...

21 week
2

In North Melbourne, amidst the residential blocks, institutions, and cafes, a peculiar stillness pervades the atmosphere, as if the area is caught in a limbo between vibrancy and quietude. Unlike its northern neighbors like Carlton and Fitzroy, where the pulse of community life and enjoyment is palpable, North Melbourne presents a different scene. Here, the elements of a lively suburb coexist, yet they don’t quite weave together to form a cohesive tapestry of daily joy and communal spirit. It feels as though the essence of life’s smaller moments and shared experiences hasn’t fully permeated the streets, leaving a longing for a richer, more connected community life.

23 Site Visit

STIMULUS BRIEF

-Project: Hybrid development focused on craft at Melbourne Meat Market Stables.

-Components: Crafting facility and accommodations for craftspeople.

-Site: Melbourne Meat Market Stables

-Expansion: Additional 400-600 m² GFA.

RETURN BRIEF

Project Name: The Brewing & Steeps Fusion Pub (BSFP)

Location: Melbourne Meat Market Stables

Date: 03/2024

We have summarised our understanding of your preliminary design brief in accordance with our recent discussions to allow us to evaluate the approximate size and complexity of the project. FUNCTIONAL

(M²)

Advanced brewing systems, modular fermentation tanks, dedicated experimentation area

Professional-grade kitchen, versatile cooking stations, energyefficient appliances

Cozy, inviting space with flexible seating, interactive tasting

of branded merchandise

External Area) Comfortable, private bedrooms with shared living spaces, modern amenities

fresh ingredients, educational tool forsustainable living

areas for various modes of transportation

outdoor area for community engagement

Pathways for easy navigation, green spaces for environmental sustainability

Note: The areas mentioned above are preliminary estimates. They are subject to alteration as the design brief and the overall project design continue to develop.

AREA AREA
CRAFT COMPONENT BREWING AND PRODUCTION AREA 150
KITCHEN AND PREPARATION AREA 80
PUB AND TASTING AREA 120
RETAIL AND PRODUCT DISPLAY 30 Innovative display solutions,
STORAGE AND UTILITIES 40 High-efficiency water and electricity systems RESTROOMS AND HYGIENE FACILITIES 20 Fully accessible restrooms STAFF AND RECUPERATION AREA 30 ADMINISTRATIVE OFFICE 17 Compact, efficient office space TOTAL NET AREA 487 ACCOMMODATION COMPONENT LIVING QUARTERS 200 (within
SHARED OUTDOOR SPACE OUTDOOR SEATING AREA 400 Landscaped
COMMUNITY GARDEN AND INGREDIENTS AREA 300 Supplies
PARKING AND TRANSPORTATION 400 Designated
EVENT AND WORKSHOP SPACE 200
ACCESS WAYS AND GREEN SPACES 86
TOTAL NET AREA 1386
KEY FEATURES
sessions
selection
with comfortable seating
Adaptable
25

User

26
Alex "The Brewmaster" Ament
Role Head Brewer in craft beer ID Time /week Cultural European 40h Jamie
User Role The best with rich tea knowledge ID Time /week Cultural Aussie 30h
"The Bartender" Jones

USER GROUP

Staff

&Visitor

27
Janet "The Visitor" Jones
visit after school or work ID Cultural Asian Time /week 6h
User Role Regualr
Bruce "The Trainee" Button
ID Cultural Aussie Time /week 12h
User Role Keen to join every worksop

ACCESS WAYS AND GREEN SPACES

EVENT AND WORKSHOP SPACE

PARKING AND TRANSPORTATION

COMMUNITY GARDEN AND INGREDIENTS AREA

OUTDOOR SEATING AREA

LIVING QUARTERS

ADMINISTRATIVE OFFICE

STAFF AND RECUPERATION AREA

RESTROOMS AND HYGIENE

STORAGE AND UTILITIES

RETAIL AND PRODUCT DISPLAY

PUB AND TASTING AREA

KITCHEN AND PREPARATION AREA

BREWING AND PRODUCTION AREA

28 TOTAL AREA 1873m² 487m² 200m² 1386m² CRAFT COMPONENT ACCOMMODATION SHARED OUTDOOR SPACE
https://beertengoku. com/2015/04/08/beer-housecraft-man-kyoto/ https://concreteplayground.com/ brisbane/event/felons-breweryopen-day

https://www.viator.com/tours/

https://www.houzz.com/photos/

tio-phvw-vp~11545731

https://shop.beerandbrewing. com/collections/events/products/ brewery-workshop-new-brewery-accelerator

https://thecitylane.com/blasta-collective-burswood/

29 400m² 200m² 400m² 300m² 200m² 86m² 150m² 120m² 80m² 40 30 30 20 17 PROGRAMME
RETURN
outdoor-entertainment-rustic-pa-
BRIEF
WORKSHOP OUTDOOR SITTING DINNING BREWERY TAP BAR
Melbourne/DISCOVER-MELBOURNES-CRAFT-BEER/d38430791P555

reflection on task 0B

The initial step was a thorough analysis of the user group, distinguishing between staff and visitors to guide the conceptualization of the space. This differentiation led to the innovative design of craft areas, living spaces, and outdoor environments, thoughtfully organized into public and private zones. This structure aimed to cater specifically to the needs and experiences of each subgroup, fostering a sense of community and personal space within a cohesive environment.

31
32 #

week 3-5

33
#
Let‘s talk about Massing...

Victoria Market

34
UniMelb

MAIN DEALING: PUB &HERITAGE

35
36

Site Situation

The Stables at North Melbourne Meat Market serve as a vibrant, multi-use space that embodies the historical essence and architectural heritage of the area. Designed to host a diverse range of cultural, artistic, and community events, this venue offers a unique blend of rustic charm and contemporary functionality. Its adaptable spaces cater to various needs, fostering creativity and connection among its users. The Stables aims to be a hub for engaging experiences, bridging the past and present of North Melbourne’s dynamic community life.

37

Diagonally divide the site and utilize the greenery cross to link site back to neighbourhood

38

Placing return brief onto site and testing for different function areas

39
40

Massing Tests

Follow the basic idea of dividing the site into diagonals, several test was produced

41

HUB

Basic massing by placing all function areas on site

42 N

LIVING

43 N N CRAFT

Idea of creating courtyard while keeping the square shapes

44 N
45 N N

Idea of making the volumes boundaries follow the triangle shapes

46 N
47 N N

Idea of using linear shapes to divide the site

48 N
49 N N

Brewery / David Chipperfield Architects

Heritage Structure ...Conservation

New Structure ...Indepandent Modular

50
Bötzow Blue Bottle Zhang Yuan Cafe / Neri&Hu Design and Research Office

Brewing Equipments ...Against Heritage

Design Strategy

Drinking Experience ...Personalized

51
Wispe Brewery Amsterdam / Buro Nord Gamsei / Buero Wagner
52

Let‘s talk about Concept

53 Mid-sem
...
54

North Melbourne

55
56

Brewery History

I wanna starting my presentation by introducing our very unique campaign for the north Melbourne brewing festival. Why it comes to my mind? You can say that even if it is called north Melbourne. It is not such a charming place like Carlton or Fitzroy. People’s attention is fading to this area full of history, even like their footy team is now not at good position. I am trying to bring people back to this area. The solution? Pub can be a good idea. Pub is be called as Pub since it is a “Public House” for people gathering. And with the rich local brewing history in the north part of the Melbourne City, like Carlton &United Breweries. A brewing festival can be considered as a right move to foster community with a good public foundation.

57
58

Link Beer with Tea

Now I want to introduce you the special fusion craft beer brand for our Brewing Festival, “Brewing &Steeps”, with the name of two critical stage of making beer and tea. The product is trying to bring a refresh and memorable experience to customers, “OH THAT’S SPECIAL”. You may wondering why tea? It is a fun fact that from the research, despite some famous hotels/ pubs/coffee shops lays in North Melbourne. Some of the best tea shops, which are trying to bring different tea leaves from all over the world also set in the area. With the fact that north Melbourne is also a important community with multi-culture backgrounds and Tea is also one of the key product plays the role of brediging different cultures in thousands of years. It is the call to bring each culture story behind those different leaves into the process of brewing beer. To Mix, to celebrate in North Melbourne.

59
60

A Kind of Forgotten Collective Memory

When we really investigate the site. It is obvious that the stables we are dealing with is part of the Meat Market as a heritage. The former Metropolitan Meat Market, was inaugurated in 1880, marking a pivotal moment in Melbourne’s urban and economic development. Designed by the architect George Johnson in response to the burgeoning meat trade, this Victorian-era structure not only served as a bustling hub for the city’s meat trade but also stands as a testament to architectural innovation and cultural heritage of the time. Transitioning from its commercial operations, which ceased in 1973, to a craft center in 1979, and evolving into a performing arts space by 1998. We can say that in nowadays. Although the site is a good condition for public activities. It is kind of fading in people’s memory. And as the initial starting point of recalling history/glory. Now need to make the move.

61

MASSING

SKETCH

Using the existing stables structuresto create the new build parts

Shaping volumes depending on functions

PUBLIC PRIVATE

GREENERY CROSS

PROCESS

Brewery Towers as the superstar on site

Ceased in 1973

Toa craft center in 1979

BRING BACK THE MEMORIES, CELEBRATE THEM WITH OUR OWN BEER COLLECTING THE METROPOLITAN MEAT MARKET Inauguratedin1880
Performingartsspaceby1998
Timber modular set into the grid and forming
Put in other function areas to generate the whole project
64
65
SITE PLAN 1:250 @A1

WRECKYN ST

WRECKYN ST

COURTNEY ST

REATAIL DINNING

OFFICE

OURDOOR SITTING

BAR KITCHEN BREWERYINDOOR

RESTROOMS

STROAGE

TOWERSBREWERY

66
COURTNEY ST

TOWERSBREWERY

DOWLING PL

WORKSHOP LIVING SPACE LOADING

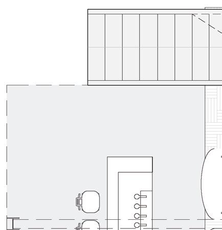
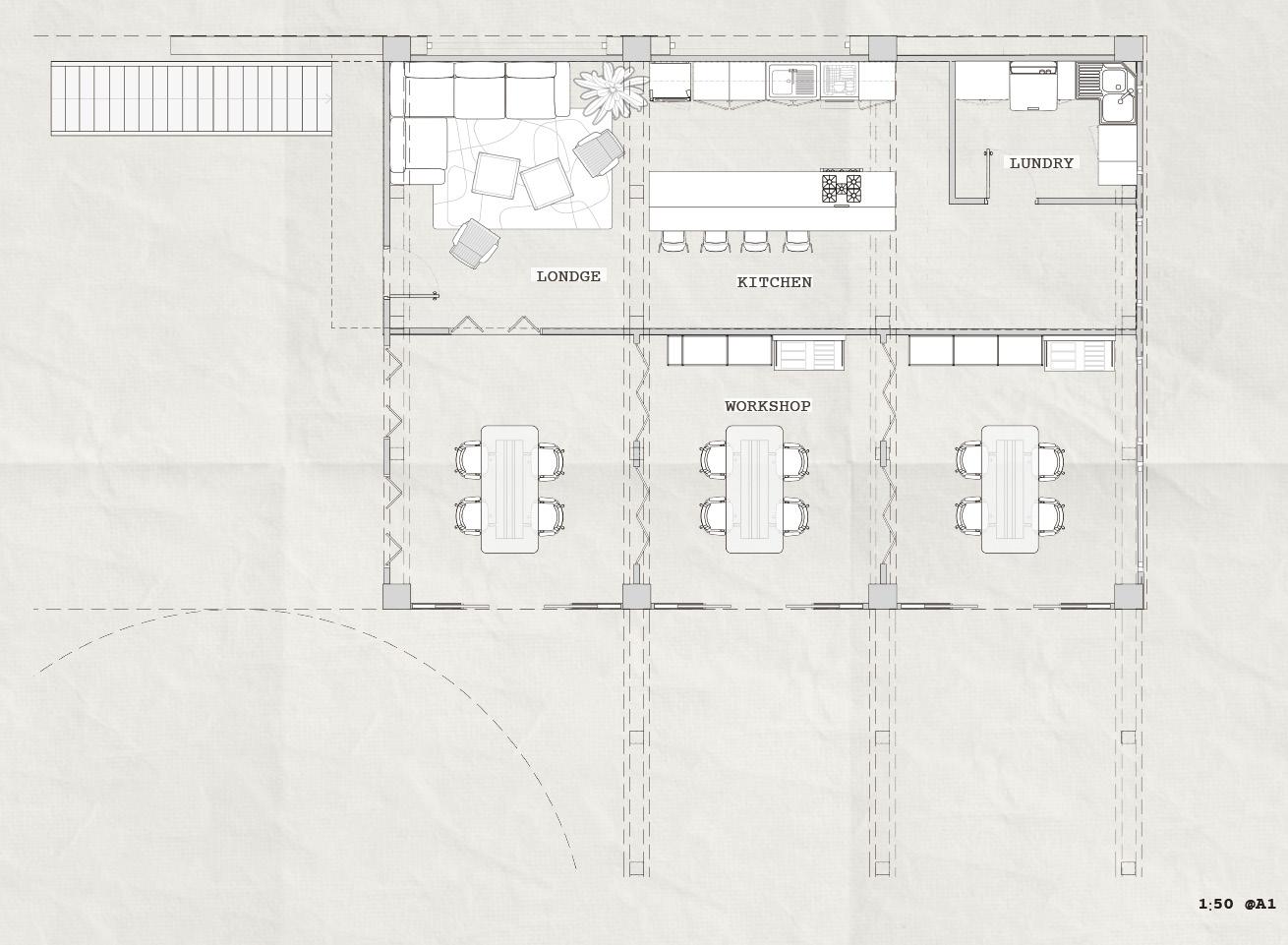
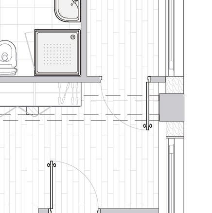
67 PLAN 1:100 @A1
68

WORKSHOP

69 SECTION 1:100 @A1
STUDIO LIVING SPACE

TASK01.

Kamikatz Public House / Hiroshi Nakamura & NAP

Kamikatsu, located in the Tokushima prefecture, is dedicated to achieving a zero waste goal and becoming a sustainable recycling community. The town has successfully reached a recycling rate of 80% through the meticulous sorting of waste into 34 distinct categories. Items that have been used are organized and presented in the recycling center as if they were in a retail store. As society faces challenges with the current model of mass production and consumption, there is a growing global anticipation for the success of such initiatives.

Strategies for Whole-life Carbon Reduction

The designers of Kamikatz Public House have employed several strategies to reduce whole-life carbon emissions.

By prioritizing the use of recycled and locally sourced materials, they significantly reduced the embodied carbon associated with transportation and manufacturing of new materials.

The project’s design also incorporates passive solar design principles and natural ventilation, which minimize operational carbon by reducing the need for mechanical heating and cooling.

These strategies collectively contribute to a lower end-of-life carbon footprint by facilitating easier disassembly and recycling of materials.

70

Whole-life Carbon

Diagrames developed based on https://www.archdaily. com/892767/kamikatz-public-house-hiroshi-nakamura-and-nap?ad_medium=gallery

71

Diagrames developed based on https://www.archdaily. com/892767/kamikatz-public-house-hiroshi-nakamura-and-nap?ad_medium=gallery

72

Materials/Components and Their Carbon Implications

The selection of materials and components in the Kamikatz Public House plays a pivotal role in its environmental impact. The use of reclaimed materials, such as windows, tiles, and wood, not only gives the building its unique aesthetic but also significantly reduces its embodied carbon. These materials bypass the energy-intensive processes of extraction, production, and transportation associated with new materials. The innovative use of recycled bottles for insulation is another example of how unconventional materials can lower carbon emissions while providing functional benefits.

73 Sustainable Reuse Map
+COLLECT +PERSERVE +MEMORY

Stomping Ground Brewery / studio Y + PlaceFormSpace

Construction System’s Effect on Whole-life Carbon

The architectural essence of the Stomping Ground Brewery, nestled in Moorabbin, is embodied through its innovative use of a full-height timber grid structure, conceptualized by Studio Y + PlaceFormSpace. This modular, exposed grid ingeniously bridges the exterior and interior, weaving functionality with aesthetic appeal. It carries an array of services including lighting, AV systems, and the mechanical requirements of the brewery, alongside beer distribution pythons, with the inclusion of planters adding to its utility. The external aspect of this grid supports various roofing and wall configurations, such as retractable and translucent options, harmonizing with the landscape to allow the space to naturally evolve and develop a unique character over time. Notably, the design’s forward-thinking approach to sustainability is evident in the bolted connections and the potential for the timber beams to be repurposed, reflecting a commitment to reducing the environmental impact and enhancing the brewery’s adaptability for future uses. (https://www.archdaily.com/975775/stomping-ground-brewery-studio-y-plus-placeformspace?ad_source=search&ad_medium=projects_tab)

74

Proposed Changes for Further Carbon Mitigation

-Strategies: To further reduce operational carbon, incorporating renewable energy sources, such as solar panels or a biomass heating system, could offset the building’s energy consumption with clean energy.

-Materials/Components: Exploring the use of more advanced biobased materials for insulation and structural components could further reduce the building’s embodied carbon. Materials such as hempcrete or mycelium-based composites offer low-carbon alternatives with excellent performance characteristics.

-Construction System: Adopting a more extensive prefabrication approach could minimize construction waste and site disturbance, further reducing the project’s carbon footprint.

Based on the understanding that transforming production and sales processes is crucial for reaching zero waste, a business in the private sector, motivated by the town’s zero waste ideals, initiated this project. It revolves around the concept of merging a shop offering household items, food, and beer sold by weight, with a brewery and a pub. The term “pub” originates from “public house,” prompting us to embody the community’s collective wisdom and approaches to waste management within the architectural design.

75

TASK02.

Embodied Carbon ⬇

Adaptive Use Of The Existing Structure

Pre-fabrication & modular construction

The original steel structure was produced in England and shipped to Melbourne to construct

Decision to embrace pre-fabrication and modular construction is deeply rooted in their environmental benefits, aligning perfectly with our commitment to sustainability. These methods not only offer a streamlined, efficient approach to building, ensuring high-quality, architecturally designed outcomes but also significantly reduce waste production and minimize site disturbance, including noise and air pollution. Furthermore, by adopting these innovative construction practices, we are able to enhance the sustainability of our projects through controlled construction environments and the optimal use of resources, contributing to a greener, more sustainable future. For more in-depth insights into the environmental advantages of pre-fabrication and modular construction. (https://www.architectureanddesign.com.au/features/features-articles/ the-environmental-benefits-of-pre-fabrication)

Choice of timber for construction is inspired by its potential to significantly reduce carbon emissions, as highlighted by Waugh Thistleton Architects. Embracing timber, particularly in structural applications, combats the overuse of high-carbon materials like steel and concrete, offering a sustainable alternative that can cut embodied carbon by up to 75%. This approach not only aligns with global carbon reduction targets but also encourages a shift towards renewable, low-carbon building materials, underlining our commitment to environmentally responsible design practices. (https://www.ribaj.com/products/timber-typologies-waugh-thistleton-architects-structural-timber-carbon-reduction) Steel structure on site

Post and beam svstems rely upon the load-bearing capabilities of a skeletal framework composed of engineered timber slabs beams.and posts.Credit:Wugh Thistleton

Volumetric accuracy and using prefabricated Waugh Thistleton

76

Volumetric timber construction improves and quality that can be achieved prefabricated timber components Credit: Thistleton

77
Sou Fujimoto Construction, via @sou_ fujimoto/Instagram

Adaptive Use Of The Existing Structure

Brooklyn Navy Yard Center. https://www.beyerblinderbelle.com/projects/56_bldg_92_brooklyn_navy_yard

CaixaForum by Herzog & de Meuron, Madrid, Spai. https://architizer.com/blog/inspiration/collections/fill-in/

Adaptive reuse

Adaptive reuse while meeting transforming them compromising promotes sustainability com/services/adaptive-reuse/)

78
Embodied Carbon

reuse masonry reuse is driven by the recognition of its importance in conserving architectural heritage modern structural requirements. Aimming to revitalize historic masonry buildings, them into functional spaces that meet contemporary performance standards without their historical integrity. This approach not only preserves valuable heritage but also sustainability by extending the life of existing structures. (https://www.masonrysolutions. com/services/adaptive-reuse/)

79

Thermal Comfort Operational Carbon ⬇

A deliberate layout, guiding from raw material storage to the brewery and pub, symbolizing a continuous production and consumption cycle. The use of reclaimed windows from abandoned homes as a facade creates a lantern of hope for the town, combating population decline. This architectural choice also improves ventilation and insulation, supported by a ceiling fan and a carbon-neutral heater utilizing local forest branches, highlighting a commitment to sustainable and efficient design. (https://www.archdaily.com/892767/kamikatz-public-house-hiroshi-nakamura-and-nap?ad_medium=gallery)

Summer

90% acceptability limits = Operative temperature (prevailing mean outdoor temperature: 25°C)

Winter

90% acceptability limits = Operative temperature(prevailing mean outdoor temperature: 14°C)

80
28.1℃ 23.1℃ 24.6℃ 19.6℃

Thermal Zoning

Reatil, Office, Craft & Living spaces

Summer set points:

23.5 - 26°C

Winter set points:

20 - 24°C

Relative humidity: 40 - 60%

Relative air speed: 0.1m/s

Outdoor &Semi-interiors

Natural Ventilation

Workshop and Dinning Spaces

Summer set points:

23.5 - 28°C

Winter set points:

19.5 - 24°C

Relative humidity: 40 - 60%

Relative air speed: 0.1m/s

Summer

Winter

Adapted from Tartarini, F., Schiavon, S., Cheung, T., Hoyt, T., 2020. CBE Thermal Comfort Tool : online tool for thermal comfort calculations and visualizations. SoftwareX 12, 100563. https://doi.org/10.1016/ j.softx.2020.100563

81

Visual Comfort

Operational Carbon ⬇

Most Spaces will benefit from natural daylight optimization during the day, while energy-efficient tunable white LED ceiling lights will provide additional indoor lighting to meet the recommended illuminance levels as per AS/NZS 1680.2.2006. Lighting will be available above workstations to meet individual requirements. The corridors will mainly rely on natural light, while the breakout spaces will predominantly feature directional lighting. The office areas, on the other hand, will have vertical parallel lighting.

llustrations by Elisa Géhin. lmage Courtesy of Saint-Gobain https://www. archdaily.com/911210/let-there-be-light-key-indicators-to-describe-anddesign-visual-comfort/5c6720ba284dd1af740000ca-let-there-be-lightkey-indicators-to-describe-and-design-visual-comfort-image

Illuminance Zoning

Reatil, Office, Craft & Living spaces 320 lx

Workshop and Dinning Spaces 160 lx

82
Semi-interiors 80 lx Corridors 40 lx

Renewable Energy Operational Carbon ⬇

The current lack of on-site renewable energy generation in the building presents an opportunity for significant environmental improvements. The expansive, unobstructed rooftop is ideal for the installation of photovoltaic (PV) panels, which would allow for substantial electricity generation. Additionally, integrating geothermal energy into the HVAC system offers a promising avenue to further diminish carbon emissions, aligning with sustainability goals and reducing the building’s carbon footprint.

Acoustic Comfort

Indoor Environment

Given the construction of a pub with craft functions, attention to acoustic comfort is paramount. The use of perforated cardboard plasterboards offers an economical and efficient way to improve interior acoustic comfort. These materials, through various perforation patterns, can absorb sound and reduce noise levels, particularly vital in environments like pubs where conversation and ambiance matter. Implementing such solutions can significantly enhance the acoustic quality of the space, contributing to a more enjoyable and comfortable atmosphere for patrons.(https:// www.archdaily.com/906544/ how-to-improve-acoustic-comfort-with-perforated-cardboard-plasterboards)

83
Victoria Market under renovation. Shot by Yilun Zhu

Reflection on Mid-sem

Delving into the back house for the brewing and bottling spaces opened a new chapter, emphasizing precision in every inch and the integration of green spaces. The latter half of the semester is dedicated to meticulous design, ensuring every square meter sings. Eyeing North Melbourne’s corner houses for inspiration, their unique blend of community and individuality offers invaluable lessons. This exploration isn’t just about beer; it’s a deep dive into culture, community, and sustainability.

85
86
87
and refine...
After Mid-sem Refine

After the mid-semester review, I decided to retain the light timber structure for its sustainability benefits and began designing a new structure that incorporates and expresses material memory, building upon the existing framework.

89
90

The North Melbourne Brewing Festival campaign aims to revitalize interest in a historically rich but currently overlooked area. Leveraging the local legacy of Carlton & United Breweries, the festival introduces “Brewing & Steeps,” a unique craft beer blending the art of beer and tea-making. This fusion symbolizes the multicultural community of North Melbourne and integrates the stories behind diverse tea cultures. The festival endeavors to stir collective memory and celebrate the city’s heritage, following Aldo Rossi’s notion that the city is a repository of collective memory through its objects and places.

91
TEST
Manifesto
94 Key space test_1
95
96 Key
space test_2
97
98 Key
space test_3
99

1 Roof structure (on site):

Sealing, plastic sheeting

Gradient insulation, EPS, min. 120 mm

2 Module:

Vapour barrier

Cross-laminated timber, three layers, 80 mm

Mineral wool, 50 mm

Wood wool acoustic panel, 25 mm

Beam, laminated veneer timber, beech, 360/220 mm

3 Channel, film sheet

4 Facade cladding (on site):

Aluminium sheet, painted, 1 mm

Windproof membrane

Mineral wool, 120 mm

5 Laminated veneer timber, beech, 360/120 mm

6 Wood-aluminium window with fall protection integrated into the frame

7 Floor covering, classroom: Linoleum, 2.5 mm (on site)

8 Module:

Chipboard, glued, 2~ 16 mm

Impact-sound insulation panel, 25 mm

Cross-laminated timber, three layers, 80 mm

9 Mineral wool, 60 mm

10 Module, ceiling of classroom:

Beam, laminated veneer timber, beech, 360/220 mm

Wood wool acoustic panel, 25 mm

Mineral wool, 60 mm

Cross-laminated timber, three layers, 60 mm

Floor covering of corridor: Linoleum, 2.5 mm (on site)

Module:

Chipboard, glued, 2≈ 16 mm

Vapour barrier, impact-sound insulation panel, 25 mm,

cross-laminated timber, three layers, 80 mm

Mineral wool, 80 mm

Base plate, reinforced concrete, 300 mm

100 Detial Test
1 2 3 4 5 6 12 11 13 11 12 13 7 10 8 9
101 Jim’s mark-up
102

Let‘s celebrate...

103 Final Outcome

MEMORY

CONGREGATION

key CONCEPT

key OBJECTIVES

The North Melbourne Brewing Festival, themed "MEMORY CONGREGATION," seeks to reinvigorate the region's historical allure. By highlighting the enduring legacy of Carlton & United Breweries, the festival introduces "Brewing & Steeps," a distinctive craft beer that fuses the processes of beer and tea production, reflecting North Melbourne’s cultural tapestry and celebrating the myriad stories of the global tea tradition. Set against the backdrop of the architecturally significant former Metropolitan Meat Market, now a cultural venue, the festival is poised to rekindle the area's vibrant past. The festival’s mission echoes Aldo Rossi's perspective, commemorating the city as a dynamic embodiment of collective memory, anchoring its present in the celebrated narratives of its objects and locales.

key MOVEMENTS

- Eye-catching structure welcoming everyone

- Utilize eco-friendly materials and energyefficient designs, minimizing our carbon footprint while maximizing enjoyment

- Adaptive using exisiting building &trying to built a light structure which can be easily replaced

- Conceptual Innovation - Sustainability

- Heritage Preservation - Community Engagement - Material Memory

- Establish areas within the festival for community-led workshops that invite participation and foster a sense of belonging

- Materials for brewery from all over the world, materials for building reclaimed from Melbourne, all carrying their own memory to form a collective memory

105
110 Pub First Floor 1:100 New Oak Representation Deconstruct Recyclable Replaceable
Weave Representation Deconstruct
Metal
111 Bar &Brewery 1:50
Representation Deconstruct Recyclable Replaceable
Salvaged Wood
Representation
Iron Representation Recyclable eave Deconstruct Recyclable Replaceable
Lea Ceramiche - L2
Brushed
112 Plan 1:100
Representation Deconstruct Country Oak Representation Deconstruct Recyclable Replaceable Light Wood Flooring Representation Deconstruct Recyclable Replaceable
Metal Deconstruct Recyclable Replaceable ceab
Clay Brick
Rusty Corrugated
113 Brick Deconstruct Recyclable
Representation Deconstruct Recyclable Replaceable
Corten Steel

Water Capture

Enough For Drinking,Cleaning,Cooking,& Bathing. Also save for Brewery

West facing roofs to install solar panels, on- site energy generated, also reduce operational carbon

114
Clean Energy Air Purification

Utilizing a light timber structure in our project due to its low whole-life carbon footprint and the ease of disassembly for future reuse or recycling

With our own plant garden on-site, which significantly enhances air purification and contributes to a healthier environment

Wisely use recycled material can help reduce upfront carbon. This timber structure brings more thinking on reduce operational carbon

Whole Life Carbon

All new materials, With 20 solar panels

All recycled materials, With 20 solar panels

All recycled materials, With 35 solar panels

Ideally

636 Tones

CO2- equivalent emissions over a 50 year lifespan

115
116 Key 1 Corrugated roof sheets 2 Pre-formed aluminum gutter 3 Corten framed double-glazed window 4 200mm mineral wool insulation 5 60mm CLT panels 6 7 8 9 10 S ⑩
117
Corten cladding panels fixed to carrier system Spruce board lining on battens 140x360mm Salvaged wood glulam post 20mm rough oak flooring on battened floating floor teel screw piles and steel floor structure
118
119

Reflection on MMSC

Reflecting on this project, I faced several challenges, particularly balancing the workload and aligning my design ideas with the rubrics. One of the main decisions I made was to retain my initial concept of cutting the site into two halves. This idea resonated with me from the beginning, and I was determined to push it forward while incorporating as much feedback as possible.

Working with materials and drawing details turned out to be incredibly enjoyable. The process of selecting and utilizing the right materials not only enhanced my design but also deepened my understanding of their practical applications. However, managing my time effectively was critical given the substantial workload. This project taught me the importance of planning and organization, especially when dealing with large-scale tasks.

If I had the opportunity to redo this project, I would focus more on early-stage time management to alleviate the pressure closer to deadlines. Overall, I am pleased with the outcome, as it reflects a balance between my initial vision and the valuable insights gained along the way.

A special thanks to Eve and Tim for their support and making this semester enjoyable, not to mention the delightful snacks that kept me going!

121

Abernethy, Laura. “You Can Now Get Tea That Tastes like Beer so You Can Have a Pint Anytime.” Metro, July 29, 2019. https://metro.co.uk/2019/07/29/can-now-get-tea-tastes-like-beer-can-pint-anytime-10482178/.

abs.gov.au. “2021 North Melbourne, Census All Persons QuickStats | Australian Bureau of Statistics,” n.d. https://abs.gov.au/census/find-census-data/quickstats/2021/SAL21966.

ArchDaily Team. “Avling Kitchen & Brewery / LAMAS.” ArchDaily, October 15, 2019. https://www.archdaily.com/926496/avling-kitchen-and-brewery-lamas?ad_source=search&ad_ medium=projects_tab.

———. “BASAO Tea Lounge / NORM Architects.” ArchDaily, March 24, 2022. https://www.archdaily.com/979020/basao-tea-lounge-norm-architects#.

———. “Blue Bottle Zhang Yuan Cafe / Neri&Hu Design and Research Office.” ArchDaily, December 5, 2022. https://www.archdaily.com/993088/blue-bottle-zhang-yuan-cafe-neri-and-hu-design-and-re search-office.

———. “Casa Roy / Taillandier Architectes Associés.” ArchDaily, April 12, 2024. https://www.archdaily.com/1015574/casa-roy-taillandier-architectes-associes?ad_campaign=nor mal-tag.

———. “Dovecote Studio / Haworth Tompkins.” ArchDaily, November 17, 2010. https://www.archdaily.com/89980/dovecote-studio-haworth-tompkins.

———. “Erlebnis-Hus Event Venue / Holzer Kobler Architekturen.” ArchDaily, January 5, 2024. https://www.archdaily.com/1011819/erlebnis-hus-visitors-meeting-point-holzer-kobler?ad_ source=search&ad_medium=projects_tab.

———. “Gamsei / Buero Wagner.” ArchDaily, February 14, 2014. https://www.archdaily.com/476185/gamsei-buero-wagner-f-wagner-a-kreft?ad_source= search&ad_medium=projects_tab.

———. “Jean Lamour Gymnasium / Studiolada.” ArchDaily, January 14, 2024. https://www.archdaily.com/1012147/jean-lamour-gymnasium-studiolada?ad_source=search&ad_ medium=projects_tab.

———. “Kamikatz Public House / Hiroshi Nakamura & NAP.” ArchDaily, April 19, 2018. https://www.archdaily.com/892767/kamikatz-public-house-hiroshi-nakamura-and-nap?ad_ source=search&ad_medium=projects_tab.

———. “Long House with an Engawa Senior Daycare Center / Yamazaki Kentaro Design Workshop.” ArchDaily, July 31, 2023. https://www.archdaily.com/1004693/long-house-with-an-engawa-senior-daycare-center-yamaza ki-kentaro-design-workshop?ad_source=search&ad_medium=projects_tab.

———. “Modus Operandi Merewether Brewery / Prevalent.” ArchDaily, December 14, 2023. https://www.archdaily.com/992018/modus-operandi-merewether-brewery-prevalent?ad_source= search&ad_medium=projects_tab.

———. “Orchid Pavilion / CCA Centro de Colaboración Arquitectónica.” ArchDaily, February 12, 2024. https://www.archdaily.com/1013268/orchid-pavilion-cca-centro-de-colaboracion-arquitectoni ca?ad_source=search&ad_medium=projects_tab.

———. “Pott House / Kiron Cheerla Architecture Design.” ArchDaily, March 18, 2024. h ttps://www.archdaily.com/1014631/pott-house-kiron-cheerla-architecture-design?ad_source= search&ad_medium=projects_tab.

———. “Prahran Hotel / Techne Architecture + Interior Design.” ArchDaily, June 12, 2013. https://www.archdaily.com/385053/prahran-hotel-techne-architects.

———. “Revitalization Kriechere 70 / Innauer-Matt Architekten.” ArchDaily, April 1, 2024. https://www.archdaily.com/1015088/revitalization-kriechere-70-innauer-matt-architekten.

———. “Shanghai Minhang Squirrel & Mountain Nurturing Community Building Renovation and Renewal / Partyfriendship.” ArchDaily, January 11, 2024. https://www.archdaily.com/1012018/shanghai-minhang-squirrel-and-mountain-nurturing-com munity-building-renovation-and-renewal-partyfriendship?ad_source=search&ad_medium=proj ects_tab.

122
Bibliography

———. “Shelter Brewery / Paul Burnham Architect.” ArchDaily, February 16, 2021. https://www.archdaily.com/956860/shelter-brewery-paul-burnham-architect.

———. “Stomping Ground Brewery / Studio Y + PlaceFormSpace.” ArchDaily, January 25, 2022. https://www.archdaily.com/975775/stomping-ground-brewery-studio-y-plus-placeformspace?ad_ source=search&ad_medium=projects_tab.

———. “Wentz Furniture Studio / Marina Miot Arquitetura.” ArchDaily, March 26, 2024. https://www.archdaily.com/1014973/wentz-furniture-studio-marina-miot-arquitetura?ad_ source=search&ad_medium=projects_tab.

———. “Wispe Brewery Amsterdam / Buro Nord.” ArchDaily, November 16, 2020. https://www.archdaily.com/951032/wispe-brewery-amsterdam-buro-nord?ad_source=search&ad_ medium=projects_tab.

———. “Youza Eco-Lodge / Rodaa Studio.” ArchDaily, March 24, 2024. https://www.archdaily.com/1014873/youza-eco-lodge-rodaa-studio.

Archinect Team. “Sou Fujimoto Shares New Photos of Expo 2025 Osaka, Kansai Master Plan under Construction.” Archinect. Accessed April 11, 2024. https://archinect.com/news/article/150422408/sou-fujimoto-shares-new-photos-of-expo-2025- osaka-kansai-master-plan-under-construction.

Architecture & Design. “The Environmental Benefits of Pre-Fabrication & Modular Construction,” n.d. https://www.architectureanddesign.com.au/features/features-articles/the-environmental-bene fits-of-pre-fabrication.

Architizer Team. “Blending Old and New: 7 Delicate Alterations to Brick Façades - Architizer Journal.” Journal, November 12, 2018. https://architizer.com/blog/inspiration/collections/fill-in/. archive.kaldorartprojects.org.au. “Kaldor Public Art Project : Item : Floor Plans and Proposed Work Plans, Meat Market Melbourne [P14-F01-S04-0001].” Accessed April 11, 2024. https://archive.kaldorartprojects.org.au/index.php/Detail/objects/1150.

archive.kaldorartprojects.org.au. “Kaldor Public Art Project : Organisation : Metropolitan Meat Market [Metropolitan Meat Market].” Accessed April 11, 2024. https://archive.kaldorartprojects.org.au/index.php/Detail/entities/92.

Baddeley Brothers. “String and Washer Envelopes - Baddeley Brothers,” March 2, 2021. https://baddeleybrothers.com/envelopes/string-and-washer-envelopes/#:~:text=All%20the%20 holding%20power%20comes.

Behälterbau, Speidel Tank-und. “Example Brewery - Speidels Braumeister.” www.speidels-braumeister.de, n.d. https://www.speidels-braumeister.de/en/beer-brewing/example-brewery.html.

Beon Energy Solutions. “Beon Energy Solutions.” Accessed June 2, 2024. https://beon-es.com.au/latest-news/case-studies/hospitality-stomping-ground/.

Bespoke Brewing Solutions. “How to Design Your Brewery Layout,” October 27, 2020. https://www.bespokebrewingsolutions.com/blog/your-brewery-layout-why-its-essential-to-get-itjust-right.

Beyer Blinder Belle. “BLDG 92: Brooklyn Navy Yard - Projects.” Accessed April 11, 2024. https://www.beyerblinderbelle.com/projects/56_bldg_92_brooklyn_navy_yard.

Broadsheet. “Kuura Tea Studio.” Accessed April 11, 2024. https://www.broadsheet.com.au/melbourne/north-melbourne/shops/kuura-tea-studio.

Castro, Fernanda . “Coal Drops Yard / Heatherwick Studio.” ArchDaily, October 26, 2018. https://www.archdaily.com/904676/coal-drops-yard-heatherwick-studio.

Chile, Etex. “How to Improve Acoustic Comfort with Perforated Cardboard Plasterboards.” ArchDaily, November 25, 2018. https://www.archdaily.com/906544/how-to-improve-acoustic-comfort-with-perforated-card board-plasterboards.

CLARKE, BEN. “‘The Poor Man’s Club’: The Middle Classes, the Public House, and the Idea of Community in the Nineteen-Thirties.” Mosaic: An Interdisciplinary Critical Journal 45, no. 2 (2012): 39–54. https://www.jstor.org/stable/44030680.

123

Co, Stomping Ground Brewing. “Sustainability.” Stomping Ground Brewing Co., n.d. https://www.stompingground.beer/pages/sustainability.

Cousins, Stephen. “Demystifying Beginner’s Guide Aims to Boost Appropriate Use of Timber.” www.ribaj.com, June 19, 2023.

https://www.ribaj.com/products/timber-typologies-waugh-thistleton-architects-structural-tim ber-carbon-reduction.

davidchipperfield.com. “Bötzow Brewery.” Accessed April 11, 2024. https://davidchipperfield.com/projects/boetzow-brewery.

davidchipperfield.com. “Jacoby Studios,” n.d. https://davidchipperfield.com/projects/jacoby-studios.

davidchipperfield.com. “Neues Museum,” n.d. https://davidchipperfield.com/projects/neues-museum.

Dezeen Team. “Construction Begins on Expo 2025 Osaka Masterplan by Sou Fujimoto.” Dezeen, October 3, 2023.

https://www.dezeen.com/2023/10/03/construction-expo-2025-osaka-masterplan-sou-fujimoto/.

———. “New Acropolis Museum by Bernard Tschumi Architects.” Dezeen, April 10, 2009. https://www.dezeen.com/2009/04/10/new-acropolis-museum-by-bernard-tschumi-architects/.

Divisare Team. “BLAF Architecten, Stijn Bollaert · House WsT in Ternat.” Divisare. Accessed June 2, 2024. https://divisare.com/projects/471352-blaf-architecten-stijn-bollaert-house-wst-in-ternat.

———. “Burd Haward Architects, Jack Hobhouse · Mottisfont Visitor Centre.” Divisare, n.d. https://divisare.com/projects/327444-burd-haward-architects-jack-hobhouse-mottisfont-visi tor-centre.

———. “GAFPA G1812.” Divisare. Accessed June 2, 2024. https://divisare.com/projects/446744-gafpa-g1812.

Fieldhouse, Rachel . “Feature Plant Friday on a Sunday - NAIDOC Edition: Lemon Myrtle.” PlantingSeeds, July 8, 2018. https://www.ps.org.au/content/articles/2018/7/8/feature-plant-friday-on-a-sunday-naidoc-edi tion-lemon-myrtle.

Flett, Keith. “A Drinking Culture for the Many, Not the Few: The Importance of Beer and Pubs.” www.culturematters.org.uk, n.d. https://www.culturematters.org.uk/index.php/culture/dining/item/2877-a-drinking-culture-for- the-many-not-the-few-the-importance-of-beer-and-pubs.

Franco, José Tomás. “How to Design for Visual Comfort Using Natural Light.” ArchDaily, March 20, 2019. https://www.archdaily.com/911210/let-there-be-light-key-indicators-to-describe-and-design-visu al-comfort.

Gasparetto, Nadia. “Metropolitan Meat Market: Conservation Plan,” 1999.

Gould, Meredith. “Meat Market Craft Centre, Courtney St., Nth. Melbourne: Partial Building Survey,” 1984. Grainfather Community. “BREWING with TEA,” n.d. https://grainfather.com/brewing-with-tea/. Hotham History Project. “North Melbourne’s Oldest House.” Accessed June 2, 2024. https://www.hothamhistory.org.au/north-melbournes-oldest-house/.

Hotham History Project. “The Early History of North Melbourne,” n.d. https://www.hothamhistory.org.au/the-early-history-of-north-melbourne/.

Kiel, Aaron. “#SecretsOfSuzhou: Tea Culture and Biluochun Tea | World Tea News.” www.worldteanews.com, May 5, 2021.

https://www.worldteanews.com/origins/secretsofsuzhou-suzhous-tea-culture-and-biluochun-tea.

Kuchar, Kristen. “Move over Coffee Beer. Tea Beers Are Steeping Hot Right Now.” CraftBeer.com, May 9, 2018. https://www.craftbeer.com/craft-beer-muses/tea-beers-steeping-hot.

KUURACORP. “Kuura - Pu-Erh Tea Specialists.” Accessed April 11, 2024. https://kuura.co/.

Langford, Robyn. “The Metropolitan Meat Market : North Melbourne. | EBSCOhost.” openurl.ebsco.com, 1967.

https://openurl.ebsco.com/c/xppotz/EPDB%3Acat00006a%3A13%3A1045741/detailv2?sid=eb sco%3Aplink&id=ebsco%3Acat00006a%3Amelb.b2488584&x-cgp-token=xppotz.

124

Masonry Solutions | Integrity Restored. “Adaptive Reuse.” Accessed April 11, 2024. https://www.masonrysolutions.com/services/adaptive-reuse/.

Masonry Solutions | Integrity Restored. “Brooklyn Navy Yard Center,” n.d. https://www.masonrysolutions.com/case-study/brooklyn-navy-yard-center/. melbournemumsgroup.com.au. “Spring Fling Street Festival - North Melbourne.” Accessed June 2, 2024. https://melbournemumsgroup.com.au/spring-fling-street-festival--north-melbourne/. Naglich, Mandy. “Homebrewing with Tea Is the New Dry-Hopping.” VinePair, June 23, 2021. https://vinepair.com/articles/homebrewing-with-tea/.

Neri &Hu. “Neri&Hu – the Vertical Lane House | the Waterhouse at South Bund.” www.neriandhu.com, n.d. http://www.neriandhu.com/en/works/the-vertical-lane-house-the-waterhouse-at-south-bund. Shawfactor. “North Melbourne,” June 24, 2011. https://shawfactor.com/gazetteer/victoria/north-melbourne/.

Smith, Melissa. “20 Best Air-Purifying Plants (and How to Keep Them Alive).” EcoWatch, December 21, 2020. https://www.ecowatch.com/20-plants-that-improve-air-quality-in-your-home-1938383954.html.

The Junk Map. “40 Salvage Yards and Recycled Building Materials Suppliers in Victoria,” n.d. https://www.thejunkmap.com.au/recycled-building-materials-melbourne-and-victoria/.

The Newsroom. “How Yorkshire Tea Grew from a Local Brand to Be the Nation’s Cup of Tea.” The Yorkshire Post, September 11, 2017. https://www.yorkshirepost.co.uk/business/how-yorkshire-tea-grew-from-a-local-brand-to-be-thenations-cup-of-tea-1770029.

TRAVELER’S COMPANY USA. “KRAFT ENVELOPE Story.” Accessed April 11, 2024. https://travelerscompanyusa.com/kraft-envelope-story/.

Utiledesign. “Utile’s PROVA Beer Garden Concept Comes to Life in Brockton! – Utile Architecture & Planning.” Accessed June 2, 2024. https://www.utiledesign.com/news/utiles-prova-beer-garden-concept-comes-to-life-in-brockton/.

VicScreen. “Meat Market.” Accessed April 12, 2024. https://vicscreen.vic.gov.au/choose-victoria/locations/meat-market.

Wikipedia Contributors. “Backhousia Citriodora.” Wikipedia, August 15, 2020. https://en.wikipedia.org/wiki/Backhousia_citriodora.

———. “Biluochun.” Wikipedia, December 22, 2023. https://en.wikipedia.org/wiki/Biluochun.

———. “Tea Culture.” Wikipedia. Wikimedia Foundation, December 3, 2019. https://en.wikipedia.org/wiki/Tea_culture.

———. “Yorkshire Tea.” Wikipedia, January 16, 2022. https://en.wikipedia.org/wiki/Yorkshire_Tea.

www.melbourne.vic.gov.au. “Meat Market - City of Melbourne,” n.d. https://www.melbourne.vic.gov.au/community/hubs-bookable-spaces/meat-market/Pages/ meat-market.aspx.

www.woodsolutions.com.au. “Stomping Ground Brewery Moorabbin | WoodSolutions.” Accessed June 2, 2024. https://www.woodsolutions.com.au/case-studies/stomping-ground-brewery-moorabbin.

Yakubu, Paul. “How Can Modular Housing Production Incorporate Material Locality and Regional Craft?” ArchDaily, April 9, 2024.

https://www.archdaily.com/1015382/how-can-modular-housing-production-incorporate-materi al-locality-and-regional-craft?utm_medium=email&utm_source=AD%20EN&kth=4.

Yale Architecture. “Cea Unep Elm,” n.d.

https://www.architecture.yale.edu/news/cea-unep-elm.

125

MEMORIES

Turn static files into dynamic content formats.

Create a flipbook
Issuu converts static files into: digital portfolios, online yearbooks, online catalogs, digital photo albums and more. Sign up and create your flipbook.
Memories Congregation_ Design Journal by Yilun Zhu - Issuu