Melissa (Yihui Yin) interior design Portfolio

Page 1

M+ Melissa Yin Design+ Y

Oblique - MoB-ballet library project

Hide Up! - Apparatus & Transformative outdoor dining design

“Vital” - United Nation o ce design project

“All that is solid melts into air”

- Curitorial design

Villaggio del pastore - Hostel in ancient church (Group project)

The Tweak - Urban dwelling design

Other arts

- Sketch / Ceramic / Jewelry

01 02 03 04 05 06 07
M+ Melissa Yin Design+ Y

Frame ----> Window

Shade ----> Shelter interior

Wood deck ----> Floor

Analysis diagram

High line

tall-back seating lifted from the ground

This section of high line creates interiority at the exterior space by imitating elements from interior. The deck resembles flooring, tree shade likes shelter, and the steel frame mimics a window, so that the frame crops out and presents the city view to the visitors.

Location: in NYC, Chelsea

Date: 2009 till present

Size: 1.45-mile-long, 1.448 square mile

Owner: the High Line is a public park owned by the City of New York

Designer: collaboration between James Corner Field Operations (Project Lead), Diller Scofidio + Renfro, and Piet Oudolf

Users: open to all visitors

( (

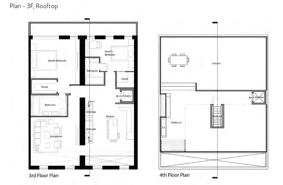
the Tweak

-- An urban dwelling design with ADA design that satis es the need of a family with a blind grandpa.

Client pro le
Exploded axon

Turn static files into dynamic content formats.

Create a flipbook
Issuu converts static files into: digital portfolios, online yearbooks, online catalogs, digital photo albums and more. Sign up and create your flipbook.