portfólio - yasmim kiers endo

Page 1


yasmim kiers endo

Castro / Curitiba / PR

42 9 9111 0710

yasmimkiersendo@gmail.com

formação acadêmica

2023 / 2027

graduação em Arquitetura e Urbanismo (6º período - 2025/2)

Pontifícia Universidade Católica do Paraná (PUCPR)

complementares

2025

Archicad {CURA}

V-ray {CURA}

Photoshop {CURA}

Curso Método CURA

- Indesign

- Sketchup

- V-ray

- Enscape

- Photoshop

Eletiva de Planos Verdes: Jardins Verticais, Terraços Jardins e Plantscaping - PUCPR

2024

Expert Cursos – Autocad

Expert Cursos – Sketchup

Expert Cursos – Revit

Eletiva de Arquitetura de Interiores para Cenografia - PUCPR

2022

Curso de Linguagem Arquitetônica – ABRA EAD

sobre mim: minha paixão e interesse pela arquitetura surgiram na infância, e poder me profissionalizar nessa área tem sido uma experiência de muito aprendizado e crescimento. Vejo no estágio uma oportunidade de aprender ainda mais, contribuir com meu empenho e crescer junto com a equipe.

softwares

Archicad

Autocad

Canva

D5 Render

Enscape

Pacote office

Photoshop

Revit

Sketchup

V-ray

idiomas

Português – nativo

Inglês – fluente

Holandês - básico

02

03 04

centro cultural casa no butantã esc j

restauro e anexo padaria irmãos bürgel

parada niemeyer

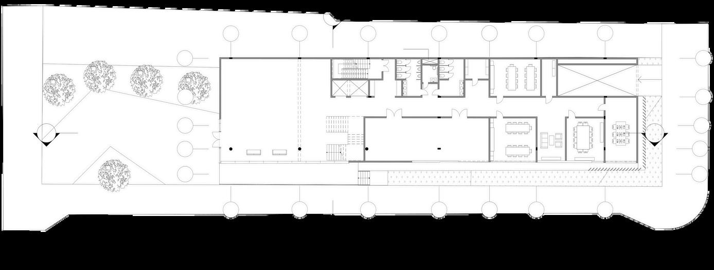
centro cultural

2024/2

projeto desenvolvido em dupla alunas: Laura Tokutake, Yasmim Kiers

Floriano Peixoto 1730m²

R. XV de Novembro - R. Mal.

descrição do projeto:

Este Centro Cultural refere-se à criação de um espaço que promove a interação e a conexão entre pessoas, experiências, vivências e culturas.

O projeto foi desenvolvido em dupla, e ambas realizaram todas as etapas.

softwares utilizados:

Archicad - plantas, cortes, elevações

Sketchup - volumetria e perspectivas interiores

Enscape - renderização

Autocad - aprofundamento técnico

Canva - diagramação

QUADRODEÁREAS

casa no butantã

2025/1

450m² projeto desenvolvido em curso

R. Hilário Magro Júnior, 588, Butantã, São Paulo - SP

Softwares utilizados:

Archicad - plantas, cortes, elevações, volumetria e perspectivas interiores

Enscape - renders

descrição do projeto:

a Casa no Butantã é um projeto do arquiteto Eduardo de Almeida, que foi utilizado como ferramenta de aprendizado no curso Archicad {CURA}.

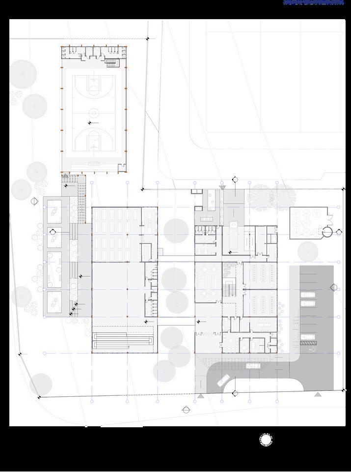
escola estadual joão paulo II

2025/1

R. João Barbosa de Almeida, 545Xaxim, Curitiba - PR

4725m²

descrição do projeto:

O proposta consistia na criação de uma escola estadual para alunos de ensino fundamental II e ensino médio.

o terreno escolhido apresentava certos desafios como um recuo obrigatório de 30m do rio

Ribeirão dos Padilhas e também uma linha de vegetação ao meio do terreno

softwares utilizados:

Archicad - plantas, cortes, elevações, volumetria

Enscape - renderização

Autocad - aprofundamento técnico

Canva - diagramação

aprofundamento técnico

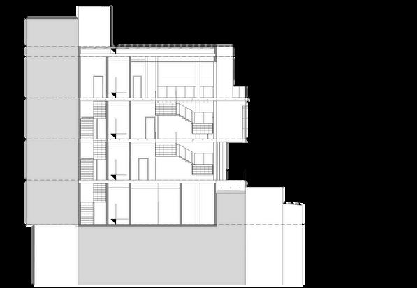
restauro padaria irmãos bürgel

2025/1

Avenida do Batel, 1433 - Curitiba

Projeto realizado para disciplina de restauro arquitetônico.

Restauração da antiga padaria dos irmãos Bürgel, localizada no bairro Batel em Curitiba, e construção de um anexo voltado a coworking. em dupla, composta por Bruna Gequelin e Yasmim Kiers, ambas realizaram todas as etapas.

softwares utilizados:

Archicad - plantas, cortes, elevações e volumetria

D5 - renderização

parada Niemeyer

softwares utilizados:

Sketchup - volumetria

Autocad - Cortes e detalhamento

Enscape - renderizacão

esse projeto foi desenvolvido para aula de sistemas estruturais em madeira, na qual deveríamos criar uma proposta de novos pontos de ônibus em Curitiba. A proposta foi desenvolvida em equipe, composta pelas alunas Anne Reis, Bruna

Gequelin, Laura Tokutake, Maria

Aidar e Yasmim Kiers.

obrigada!

Turn static files into dynamic content formats.

Create a flipbook
Issuu converts static files into: digital portfolios, online yearbooks, online catalogs, digital photo albums and more. Sign up and create your flipbook.
portfólio - yasmim kiers endo by Yasmim Kiers Endo - Issuu