

Yash Mistry
Selected works from 2O21-2O25

![]()


Selected works from 2O21-2O25

Hello,
I am Yash Mistry, undergraduate architecture student at College of Architecture, S.V.I.T., Vasad.
Welcome to my portfolio, a collection of ideas, explorations, and built visions that reect my architectural journey. Through each project, from conceptualization to realization, I aim to create environments that not only meet the needs of today but also anticipate the challenges of tomorrow. In this Portfolio I have selected some projects that reect my experience during these years in the eld of architecture and I would be glad to show them to you.
25 February, 2003
Vadodara, Gujarat
+91 7779031082
yashmistry.2529@gmail.com @yash.mistry.25 www.linkedin.com/in/yashmistry25
LANGUAGE
Gujarati - Native Hindi English
2006-2021
Baroda High School O.N.G.C.
Vadodara, Gujarat
2021-persent College of Architecture, S.V.I.T.
Vasad, Gujarat
SOFTWARE EXPERTISE
2D Drafting
Vectorworks
AutoCAD
3D Modeling
SketchUp Rhino 7
Visualization Presentation & others
Twinmotion
Enscape
Vray
Wood Working MANUAL SKILLS
Hand Drafting
Model Making
CorelDRAW
Global Mapper Filmora
NASA
65TH ANDC Trophy 2022-23
65TH MSL Trophy 2022-23
66TH GSEN Trophy 2023-24 (Short-listed in Top 12)
COMPETITIONS
Transparence 17.0 (2022)
The Drawing Board (2023)
ACADEMIC EXCELLENCE
Achieved 1st position in 3rd year (2023-24)
Architectural Intern
Studio PK, Vadodara, Gujarat
Vice General Secretary
Student Central Committee(S.C.C.), S.V.I.T.
Graphic Designer & Decoration Head
College of Architecture, S.V.I.T.
Freelance
Drafting, Modeling, Visualization, Graphic Designing
Mud workshop at Hunnarshala Foundation Bhuj, Gujarat
Pottery workshop by Poonam Prajapati
College of Architecture, S.V.I.T.
Urban infrastructure seminar by Jaxay Shah, INDGenius G.I.F.T. city, Ganghinagar, Gujarat
Sustainable Urban Transportation seminar by Dr. Shalini Shah Vadodara, Gujarat
Painting & Sketching
Illustration/Graphics
Documentation/Video Editing
Gaming Music
Anime Cooking Vollyball Travel

1
Institutional Studio
Design Institute sem V



2 For Design Institute sem VI
Working Drawing
Housing Studio
3 Affordable housing sem VII
4 Design Institute sem III
Material Studio






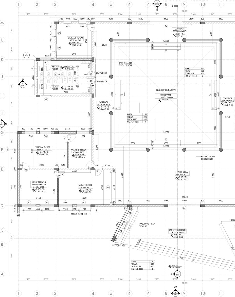
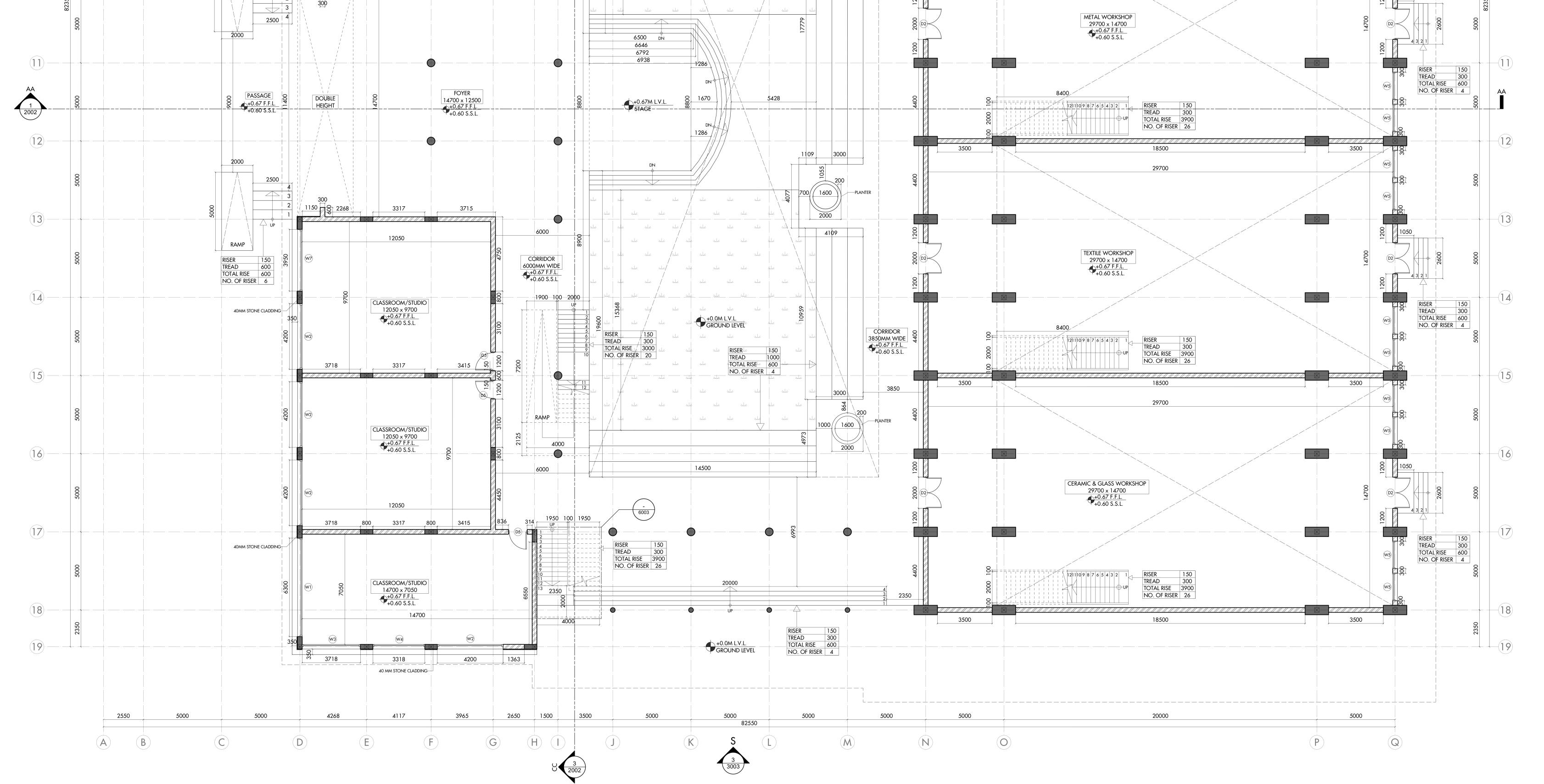
Institutional Design Studio | Sem V
Location: IISc, Bangalore
Typology: Institutional Building
Site Area: 4.3 Acres
Built-up Area: 7300 sq m
The proposed Design Institute at IISc Bangalore aims to integrate innovative educational spaces with the campus's natural environment. Spanning 4 acres, the institution features an architectural design that harmonizes with existing trees and enhances connections to nature.
Key facilities include administrative ofces, studios, workshops, a library, an auditorium, and recreational areas. Emphasis is placed on visual connectivity and micro-climatic considerations, creating a dynamic learning environment that fosters creativity and sustainability in education.


Waiting Area


























Accentuate views Area coverage provides privacy

Opening to allow visual connectivity


Shading features

Building should not exceed the height of surrounding Interactive space





Cross & Stack Ventilation Outdoor area oriented to get optimum sun


The form was developed to maintain visual connectivity throughout the space as well as to maintain wind ow. Shaded outdoor spaces were created for human exposure
1. Main Entry Gate
2. Parking
3. Main Entrance
4. Foyer
5. Admin Ofce
6. Principal Ofce
7. Exhibition hall
8. Staffroom
9. Toilet
10. Studio/Classroom
11. Auditorium
12. Service Room
13. Wood Workshop
14. Metal Workshop
15. Textile Workshop
16. Ceramic/Glass Workshop
17. Cafeteria
18. Secondary Gate
Ground Floor Plan



















1. Studio/Classroom
2. Auditorium
3. Library
4. Toilet
5. Service Room
6. Wood Workshop
7. Metal Workshop
8. Textile Workshop
9. Ceramic/Glass Workshop




































AUDITORIUM
ADMINISTRATION












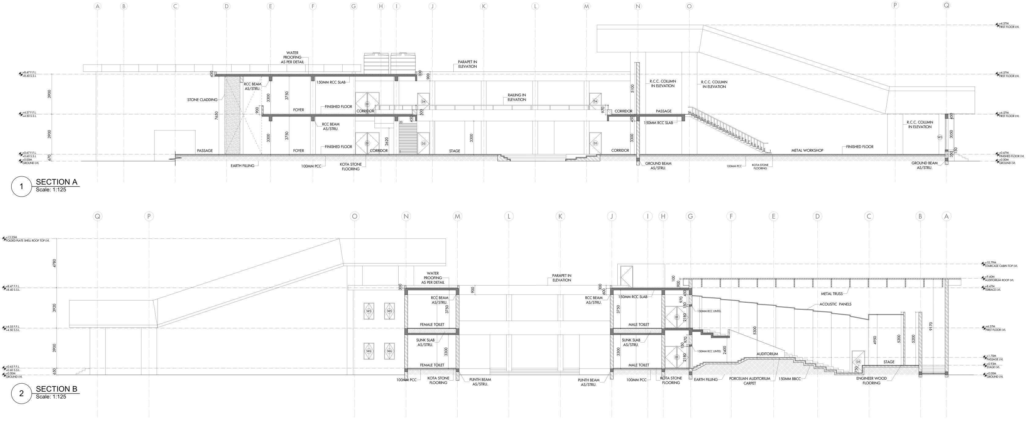
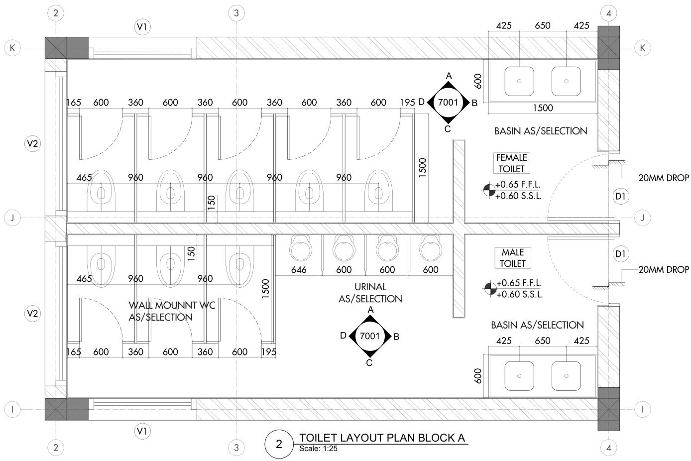
For Design Institute at IISc, Bangalore
The working drawing set for the Design Institute at IISc Bangalore includes detailed architectural plans, sections, elevations, and construction details necessary for on-site execution.
It covers layout plans with accurate dimensions, material specications, structural systems, wall sections, door-window schedules, and joinery details. Special attention is given to site-sensitive elements like tree preservation, natural ventilation, and integration of open and built spaces.
































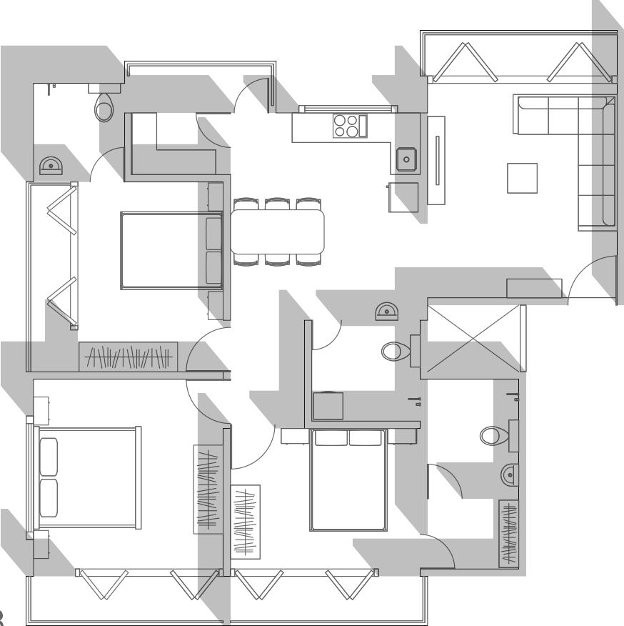
Housing Design Studio | Sem VII
Location: Keshav Nagar, Ahmedabad
Typology: Affordable Housing
Site Area: 22.5 Acres
Ground Coverage: 11205 sq m
The Riverfront Housing project in Ahmedabad is designed to be a high-density, mixed-use development that offers a blend of LIG and MIG housing, along with commercial spaces.
Located in the prime riverfront area, this project aims to create a dynamic living environment that leverages the scenic beauty of the riverfront while addressing the housing needs of various income groups.
The design focuses on creating walkable neighborhoods with a mix of housing typologies, shared green spaces, and community amenities. Emphasis was placed on integrating the natural features of the site, particularly its proximity to the riverfront.











































Area : 37 sq m

2 BHK UNITS
Area : 83 sq m





3 BHK UNITS
Area : 110 sq m




Cluster Area : 433 sq m
No. of units on oor : 4
No. of Floors: G + 27
Total Built-up area : 12124 sq m
Height of Building : 88 m



Cluster Area : 295 sq m
No. of units on oor : 2
No. of Floors: G + 13
Total Built-up area : 3835 sq m
Height of Building : 42 m
Cluster Area : 457 sq m
No. of units on oor : 8
No. of Floors: G + 18
Total Built-up area : 7770 sq m
Height of Building : 60 m






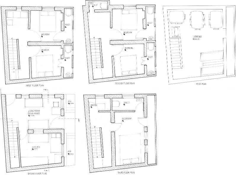
Material Studio | Sem III
Location: Gangtok, Sikkim
Typology: Community Centre
Site Area: 1200 sq m
Built-up Area: 288 sq m
This project is a Spiritual Learning Center located in the peaceful mountains of Sikkim, designed for both tourists and locals to relax, learn, and connect with themselves. The building is made using timber, which blends well with the natural surroundings and gives it a warm, earthy feel.
It has buttery roofs that help bring in natural sunlight, making the inside spaces bright and calm. The center includes areas for meditation, learning, and group activities, creating a peaceful atmosphere. The whole design focuses on keeping a close connection with nature and providing a quiet, spiritual space in the lap of the Himalayas.





Two roof surfaces that slope upwards from the exterior walls towards each other, creating a V-shape resembling the wings of a buttery. This design allows for increased natural light penetration and rainwater collection, making it both aesthetically pleasing and environmentally efcient.








































LONGITUDINAL SECTION



66TH GSEN Trophy 2023-24 (Short-listed in Top 12)








Street Elevation
Measure Drawing







Street Plan









Physical models from through the semesters, including works from Institutional Studio, Housing Studio, Material Studio, Parametric model, Electives model & Furniture Design.











































































