Yao Xiao Architecture Portfolio 2025

Page 1


YAO XIAO ARCHITECTURE PORTFOLIO

ONE HUNDRED COLUMNS

A Passive House in Houston’s Hot and Humid Climate

2024 Fall| Advisor: Jesus Vassallo | Partner: Guangyu Xu | Academic | ARCH 601

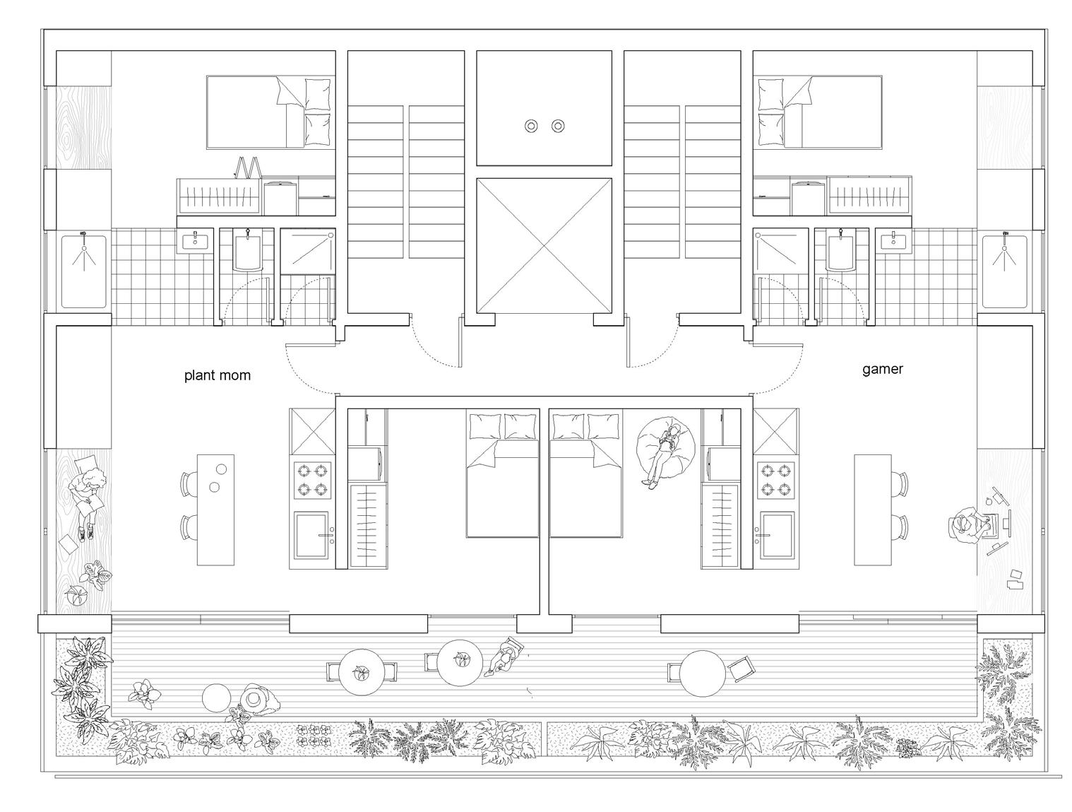
Inspired by the House of Chau Doc by NISHIZAWAARCHTECTS, the project approaches a common residential site in Houston with a vernacular approach, shedding the inhabitants with a series of sloped roof pieces. The roof pieces are supported by a 4x4 timber columns that form a tight grid, exposing the wood in the interior. Drawing from the prevalent timber construction methods in the United States, the design adopts a post-and-beam system as a reinterpretation of the conventional tilit-up approach.

House Exterior Imagination

The house is elevated three feet above ground on a foundation of ground screws, addressing Houston’s susceptibility to flooding. A series of rooms are centered around a central courtyard that acts as a climate mediator. Blending between the indoor and outdoor, the central courtyard opens up to allow for ventilation during the summertime and insulates itself to provide a sunroom when the weather gets cold. By integrating these adaptive features, the house not only responds to climatic conditions but also offers an alternative living experience rooted in local construction traditions.

Floor Plan
Program Diagram
Interior Hallway Imagination
Living Room Imagination
Detail Section
Roof Framing
Floor Framing
1/2” Scale Structural Model
House Section
House Elevation
House Elevation
Central Courtyard Imanigation
Backyard Porch Imagination

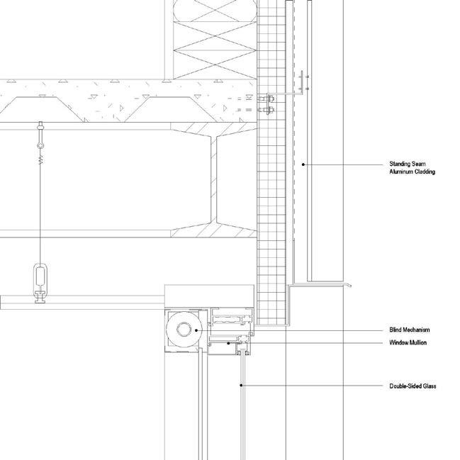
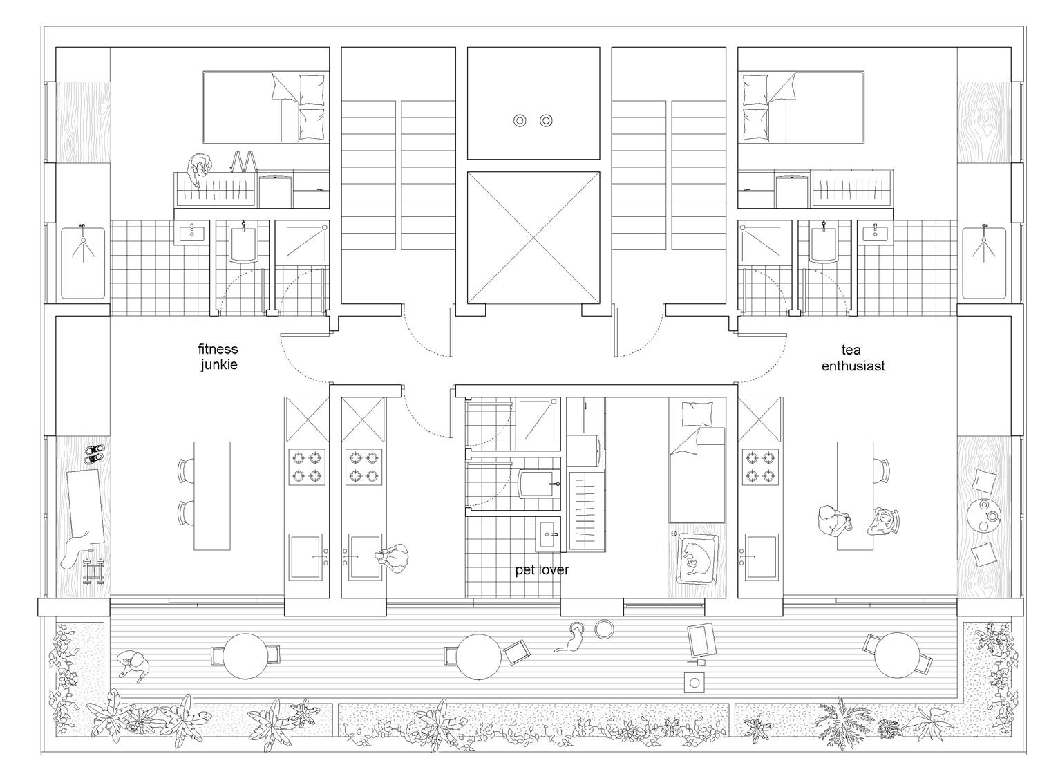
VERTICAL ROJI

A Fusion of Community and Personalized Living

2024 Spring| Advisor: Georgina Baronian | Partner: Anna Davenport | Academic | ARCH 504

Physical Model Photo

Concept Diagrams

The project considers a new domestic typology in Japan by hybridizing the advantages of customizable single-family homes and standardized apartments. By embracing the concept of “extended living,“ we aim to create a space that not only fulfills the basic needs of its occupants but also provides ample room for personalization and community interactions.

In Japanese urban culture, the notion of “roji“ - alleyways inhabited by neighborhood members - serves as vital communal spaces where everyday social interactions unfold. Drawing inspiration from this organic social component, our project aims to translate the quality of interaction found in roji into a vertical living environment.

Street View Imagination
Building Section
Balcony Perspective
Balcony Perspective
Living Room Imagination
Bath Hallway Imagination
Typical Plan Configuration #1
Typical Plan Configuration #2
Building Detail Section
Window Head, Jam , Sill
Plumbing Configuration
Electrical Configuration

The core idea of this project begins with minimzing square footage for essential needs while allocating a band of space that allows for the expression of individual idiosyncrasies. This approach not only optimizes space utilization but also encourages a sense of ownership and belonging among the residents

Bedroom Imagination
Building Section

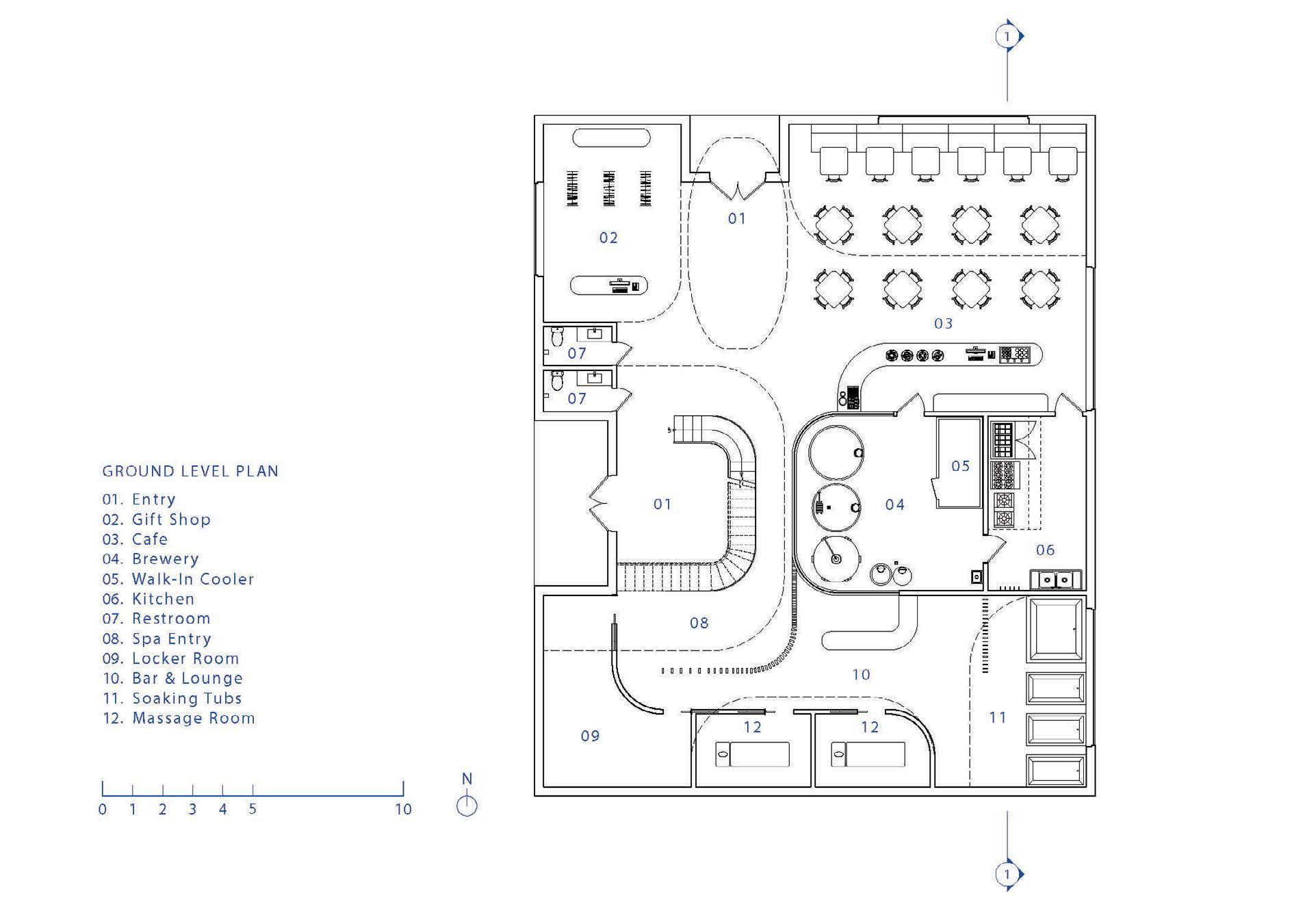
OUT OF THE GROUND

Buildner Iceland Beer Spa Interntational Design Competition

2024 |Design Competition | Partner: Nate Ehrlich, Alex Pina| Buildner Student Award

The “ground“ is a varied and intricate condition on which the Iceland Beer Spa for the Sel Hotel is situated on. Pragmatically, the “ground“ condition of the site stems from the understanding of Icelandic Turf Houses that utilize stone foundations as a method to isolate the moisture from exterior to interior. Metaphorically, the “ground“ condition of the craters in the area becomes an important characteristic where the beer spa acts as an extension of the topography, rising up while reflecting the area’s natural landscapes. Architecturally, these two conditions co-exist while creating a clear datum that separates the two: an extension of the foundation that serves as a solid foundation while the undulating roof echos the landscape and highlights moments of collective activities with skylights. Eager to engage with the street on the first level, inverse geometries of the roof are carved into the facade of the beer spa, which creates moments of entry as well as provides breathtaking views of the surrounding Skútustaðagígar craters. “Out of the Ground“ as an architectural intervention establishes a series of therapeutic spaces that directly draw connections to the existing condition of the site and the Myvatn Lake area.

Vertical Circulation Imagination
Ground Floor Plan Section

TERRACE

The dining area is illuminated by daylight washing through the skylight and windows. Positioned toward the street, it provides both table and booth seating for hotel guest and those looking for a sojourn from their travels.

CAFE

The beer spa module is a therapeutic and private space tucked away from the street and parking. The beer bath soaking tubs provide options to bathe individually or in small groups.

BATH

The articulation of the geometry of the roof is a result of the skylights below. The curves mimic and reflect the surrounding landscape of the adjacent craters while acting as frames for outward views.

Interior Perspectives

FOOD CULTURE INCUBATOR

Architecture as a Frame of Communal Activities

2023 Fall | Advisor: Andrew Colopy | Individual Work | Academic | ARCH 503

While Ira Berne’s development of Westbury Square was successful in bringing the communities together by providing a series of courtyards for small businesses to grow, the opening of the Galleria in 1970 led to a decline in popularity. This shift left the community with a void in its central area and a loss of identity, leaving questions of what the center of the neighborhood wants to be. The Food Culture Incubator aims to revitalize the site, acting as a civic center and addressing a lack of food variety and availability in the area.

Garden Space Imagination
Site Plan - Discovery of Food Desert
Site Diagrams

Addressing the corner of the site, two long concrete bars of communal and production activities enclose an outdoor area for gardening and food market. The metal volume for educational programming rests atop the two concrete volumes as a gateway to enter this public outdoor space. The conditioned volumes of the project serve as a muted backdrop, framing various outdoor elements of the site, and providing the community with a food production space that simultaneously serves as a public park facility.

Cafe Imagination
Exterior Imagination
Facade Design Diagrams
Ground Floor Plan
Second Floor Plan
Building Section

Concrete is selected as the structure for the ground level as an extension of the foundation. While the education bar atop needs to span, a steel truss structure is utilized. This duality of light and heavy is also reflected on the facade as the second floor is cladded with galvanized steel panel, and the ground floor is cladded with pre-cast concrete panels. Treating the roof of the ground floor and the bottom of the second floor as the “fifth-facade”, they are designed to reflect the ground condition.

Structural Axon
Building Site Model
Wall Detail Section
Material Sample Model

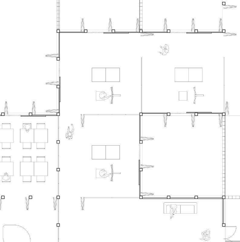
COMMUNITY WELLNESS TOWER

Vertical Urban Community Space

2023 Spring | Advisor: John Comazzi | Individual Work | Academic | ARCH 4020

The outbreak of COVID-19 caused an abrupt increase in mental health cases. As mental health becomes a more normalized phenomenon, it is important to consider how to destigmatize the situation and integrate mental health related programs into community spaces. This project is sited in Kips Bay for its reputation of having one of the largest healthcare centers in the country. Building upon the premise that public spaces and parks have a positive impact on individuals’ holistic health. The Community Wellness Tower rethinks mental health wellness to be a holistic process that includes physical, mental, and communal aspects.

Arial View Imagination

There are five main programs of this vertical community center: Fitness, Food, Art, Therapy, and Workspaces for non-profit organizations. These programs corresponds to important aspects of one’s mental health such as exercising, eating healthy, meditating, and having a sense of community. Moving from bottom to top in elevation, the programs are organized in a way that goes from loud to quiet, from physical to mental, from body to mind, and from collective to individual. Variations of voids were then added in between the volumes for a public access of elevated outdoor spaces. These spaces will demonstrate properties from known successful public spaces such as the Paley Park, the Edge, and the Spanish Steps.

Research Diagram
Mental Health Process Diagram
Formal Iteration Diagram
Program Gradiant Diagram
Elevational Studies
Four Diagrams
Art Studio Imagination
Fitness Area Imagination
Therapy - The Isolated Stacks
Food - The Steps
Art - The Connected Stacks
Fitness - The Loop

VOICE OF CHARLOTTESVILLE

Art as a Medium for Expression and Community Bonding

2022 Fall | Advisor: Chris Kroner, Marta Jarabo | Individual Work | Academic | ARCH 4010

This project aims to create an art space that is extroverted which is unlike a traditional closed off art gallery for people to join and engage. As I was exploring Charlottesville, the lack of spaces for people to have interactions with each other came to my notice. While the downtown mall is the most crowded space of gathering, it is filled with retail instead of public space and the space does not encourage people to meet each other, so I chose the site just one street block north of the mall where confederate general Stonewall Jackson’s statue was recently just taken down as a public gathering space for healing and community bonding.

Mapping of Commercial Areas Shows the Major Gathering Spaces
Area of Interest: City Hall, Courthouse
Area of Interest: Dowtown Mall
Trasformation Process Expoded Axon
Initial Concept Model
Initial Concept Model

The exploration of pixelation art pushed for the generation of floor plan as well as the roof structures. Detailed analyzation through linework was created immediately after the initial concept model made with leaves. The directionality of main stems were turned into folding lines that generated the three dimentional iteraction on the right.

Proposed Site Circulation Map
Formal Iteration Diagram
Formal Transformation Model

Axonometric - Program Variations

Program Organization Diagrams

Site Sectional Perspectives

Building Exploded Axon
Closed for Studio Space
Open for Exhibition
Open for Communcal Engagement
YAO XIAO ARCHITECTURE PORTFOLIO

Turn static files into dynamic content formats.

Create a flipbook
Issuu converts static files into: digital portfolios, online yearbooks, online catalogs, digital photo albums and more. Sign up and create your flipbook.
Yao Xiao Architecture Portfolio 2025 by Yao Xiao - Issuu