


MUHAMMAD YAFI BRILIANTO S.ARS
Jakarta Timur, Jakarta 13310 088219987302 // yafimuh28@gmail.com
PENGALAMAN KERJA
Arsitek Junior - PT Putera Kurnia Tangguh (Rancang dan Bangun) (2023-2024)
• Bekerja sebagai arsitek junior dalam seluruh proyek PKT
• Membuat estimasi anggaran RAB
• Merancang desain skematik dan gambar kerja
PENDIDIKAN
Institut Teknologi Sumatera - Arsitektur GPA 3.47/4.00 (2019-2023)
• Menyelesaikan Studio Perancangan sebanyak 4 kali dengan predikat nilai baik sekali
• Mengikuti pengabdian Arsitektur Komunitas dalam Pemetaan Partisipatif Masyarakat Kampung Cungkeng dan Sinar Laut Bandar Lampung
• Mendesain konsep kampung wisata Desa Aji Mesir Kabupaten Tulang Bawang Lampung

Berangkat dari ketertarikan saya dengan sketsa, saya memilih untuk menempuh pendidikan arsitektur. Banyak pengalaman selama berkuliah yang mengajarkan saya tentang sebuah proses, layaknya mendesain sebuah karya, arsitektur bukan hanya tentang sesuatu yang dihasilkan, melainkan perjalanan yang dilalui dan tantangan yang harus selalu dihadapi. Inilah yang menjadi modal saya untuk melanjutkan berkarir di dunia arsitektur, untuk selalu belajar, berbenah, dan berusaha agar menjadi lebih baik lagi di masa yang akan datang.
PENGALAMAN ORGANISASI
KEAHLIAN
• ArchiCAD
• SketchUp
• AutoCAD
• Adobe Photoshop, Illustrator, Indesign
• Coreldraw
• Microsoft Office
Ketua Divisi Edukasi - Himpunan Mahasiswa Arsitektur Institut Teknologi Sumatera (2021-2022)
• Bertanggung jawab terhadap 9 program kerja yang dilaksanakan dalam satu tahun kepengurusan yang terdiri dari Seminar, Workshop, Tutorial, dan Pameran Arsitektur
• Memimpin 8 staff divisi dalam menyelesaikan program kerja yang dirancang
• Menghasilkan konten keilmuan dan keahlian terkait arsitektur di media sosial himpunan
Volunteer - Jakarta Architecture Festival (JAF) (2023)
• Memandu puluhan pengunjung Rame-rame Jakarta sebagai salah satu rangkaian acara JAF
• Mengenalkan objek-objek arsitektural kuno yang menandai perjalanan Kota Jakarta
• Membuat susunan acara tur keliling kota sebagai rangkaian kegiatan
Staff Divisi Kreatif - 6th International Conference on Science, Infrastructure Technology and Regional Development (ICoSITeR) (2021)
• Mendesain dan merancang tata ruang panggung konferensi
• Berpartisipasi dalam diskusi dan pemecahan masalah terkait ide desain dan ekskusi terbaik pelaksanaan proyek kreatif








t house
Profesional Tangerang, 2023
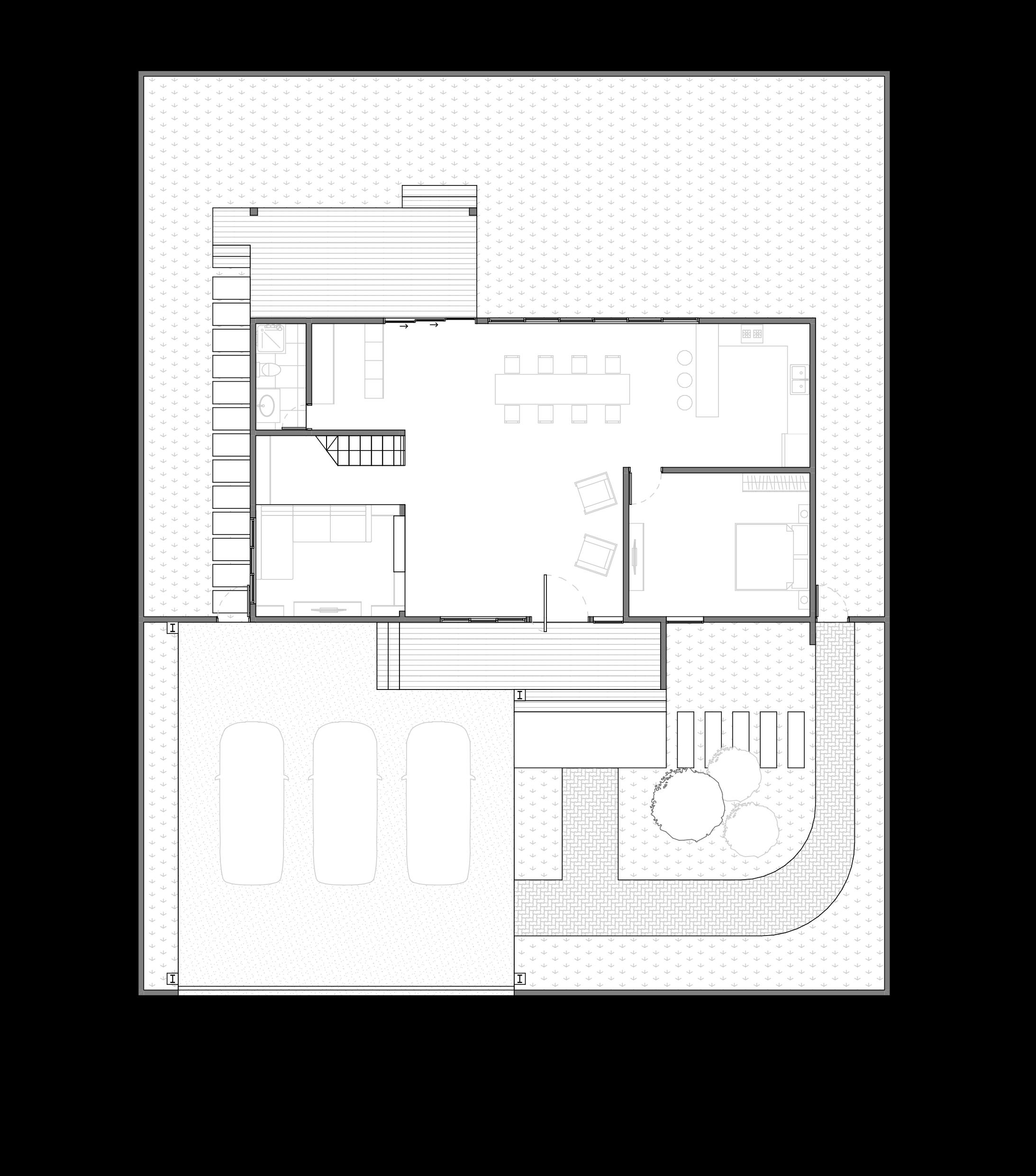
Sebuah hunian pribadi yang dirancang menyesuaikan kepribadian dan profesi pemilik rumah sebagai pekerja seni. Rumah ini dibangun pada lahan seluas 200 meter persegi di sebuah perkampungan pada Kota Tangerang. Sebagai pekerja seni, pemilik rumah menginginkan sebuah tempat tinggal yang dapat menyatu dengan lingkungan sekitarnya, dengan memanfaatkan lokalitas dan keterbukaan terhadap warga sekitar. Oleh karena itu, penempatan taman sebagai poin utama ditempatkan untuk terkoneksi langsung dengan kamar tidur utama dan ruang keluarga. Keberadaan taman dibutuhkan sebagai relaksasi pemilik dan keluarga di tengah kesibukannya sehari-hari.


Konsep awal desain rumah dimulai dari pemilik yang menginginkan garis lurus untuk menyatukan ruang-ruang di dalam rumah. Garis ini kemudian membagi dua sisi bagian ruang untuk bisa mengakomodasi kebutuhan ruang dan sirkulasi penghuni di dalamnya. Garis ini ditarik lurus dari pintu masuk utama rumah hingga ke sisi belakang.
Keberadaan taman di salah satu sisi berperan sebagai pengikat dan penghubung ruang-ruang di sekitarnya. Pemanfaatan lahan juga dipisah pada area depan dan belakang untuk membagi fungsi dan zona pada layout ruangnya.


A akses masuk
B parkir kendaran
C teras utama
D dapur
E ruang makan
F ruang cuci jemur
G taman samping
H ruang keluarga
I kamar tidur anak 1
J kamar mandi
K kamar tidur utama
L kamar mandi utama
M kamar tidur anak 2








g house
Profesional Pontianak, 2023
Sebuah proyek rumah tinggal 2 lantai yang terbengkalai selama 3 tahun, hingga kemudian pemilik ingin melanjutkan dan mengubah konsep desain serta layout ruang dari sebelumnya. Pemilik menginginkan untuk mempertahankan struktur utama yang sudah terbangun dengan beberapa penyesuaian kepada desain untuk mengakomodasi kebutuhan pemilik saat ini. Perancangan dimulai dari meninjau kondisi eksisting sehingga dapat menerapkan desain dan layout secara maksimal.


A parkir kendaran
B akses masuk
C teras depan
D taman samping
E ruang keluarga
F ruang tamu
G kamar tidur 1
H kamar mandi
I ruang cuci
J ruang makan
K dapur
L teras belakang

M kamar tidur 2
N tangga
O kamar tidur 3
P kamar mandi
Q balkon belakang
R kamar tidur utama
S ruang ganti pakaian
T kamar mandi utama
U void
V balkon depan

Rumah tinggal 2 lantai ini memiliki void di bagian tengah rumah yang berguna sebagai titik temu dan penghubung untuk ruang-ruang di sekitarnya. Void yang cukup besar juga ditujukan untuk memaksimalkan sirkulasi udara apabila pendingin ruangan tidak digunakan. Dengan mengusung konsep open space, rumah ini memiliki ruangan-ruangan yang tidak dipisahkan dengan dinding, diantaranya ruang tamu, ruang keluarga, ruang makan, serta dapur sehingga sirkulasi penghuni rumah menjadi lebih efektif dan efisien.


Down Ceiling Gypsumboard 8mm + PVC
Downlight LED
Lampu Gantung LED (Hardware + Acrylic)






rental office
Akademik
Studio Perancangan 5
Rental Office berlokasi di Jalan Z.A. Pagar Alam, Kota Bandar Lampung. Kawasan Rental Office ini memiliki luas lahan sebesar 9 hektare yang terdiri dari 2 massa bangunan yaitu Gedung Utama sebagai kantor sewa dan Gedung Serbaguna. Pada Gedung Utama memiliki beberapa fasilitas yaitu Kafetaria, Bank, ATM Center, dan Musholla untuk menunjang aktivitas perkantoran. Terdapat 4 tipe modul kantor yang disewakan berdasarkan luas ruangnya yaitu Modul Kantor Sewa Tipe A, Tipe B, Tipe C, dan Tipe D. Sedangkan pada Gedung Serbaguna, terdapat ruang pertemuan berkapasitas 300 orang yang ditunjang dengan fasilitas Musholla, Lavatory, serta Ruang Persiapan di dalamnya.

Luas Area : 9.000 m persegi
Peruntukan : Perdagangan dan Jasa
GSB : 15 m dari tepi jalan
KDB : 80%
KLB : 32
KDH : min. 30%
KTB : 55%
Sumber Regulasi :
• Pasal 72 Peraturan Daerah Kota Bandar Lampung Nomor 04 Tahun 2021 Tentang RTRW Kota Bandar Lampung Tahun 2021-2041
• Perda Kota Bandar Lampung Nomor 07 Tahun 2014 Tentang Bangunan Gedung
• Pergub DKI No. 135 Tahun 2019


Mengikuti Bentuk Tapak dan Diberikan Ketinggian Sesuai Kebutuhan Ruang

Lingkungan


Permukiman Warga






A akses masuk tapak
B akses parkir basement
C drop off bank
D parkir mobil
E drop off gedung kantor
F gedung kantor
G ruang terbuka
H drop off gedung serbaguna
I gedung serbaguna
J parkir motor
K akses keluar basement
L akses keluar tapak






bus terminal
Akademik
Tugas Akhir
“The essence of iInclusive design lies in its ability to creates beauty and mediate extreme without destroying differences in places, experience, and things.”
- Bill Stumpf
Prinsip arsitektur inklusif harus diaplikasikan pada desain bangunan, terutama fasilitas publik. Terminal merupakan sarana transportasi umum yang memiliki intensitas dan pergerakan sangat tinggi serta digunakan oleh seluruh elemen masyarakat. Untuk itu terminal menjunjug inklusivitas agar dapat digunakan semua orang tanpa terkecuali. Terminal ini dibangun sebagai peningkatan sarana dan prasarana transportasi umum di Kota Bandar Lampung, Provinsi Lampung.


Sumber Regulasi :
Luas Area : 55.000 m persegi
Peruntukan : Terminal Penumpang
GSB : 15 m dari tepi jalan
KDB : 80%
KLB : 32
KDH : min. 30%
KTB : 55%
• Pasal 72 Peraturan Daerah Kota Bandar Lampung Nomor 04 Tahun 2021 Tentang RTRW Kota Bandar Lampung Tahun 2021-2041
• Perda Kota Bandar Lampung Nomor 07 Tahun 2014 Tentang Bangunan Gedung
• Pergub DKI No. 135 Tahun 2019
Lokasi lahan terletak pada sisi Jalan Soekarno Hatta yang merupakan jalan non tol Lintas Sumatera. Terletak di Kota Bandar Lampung, terminal ini akan menjadi pusat sarana dan prasarana untuk menunjang transportasi umum di Provinsi Lampung dan Pulau Sumatera.

A pintu masuk bis AKAP dan AKDP
B pintu masuk kendaraan pribadi, angdes, angkot, dan BRT
C akses masuk pesepeda
D kolam retensi
E jalur pedestrian
F shelter angdes, angkot, dan BRT
G parkir angdes dan angkot
H ruang terbuka hijau
I parkir motor pengunjung
J parkir mobil pengunjung
K drop off
L parkir pengelola dan penyewa retail
M seating stairs dan amphiteather
N peron kedatangan bis AKAP dan AKDP
O peron keberangkatan bis AKAP dan AKDP
P bengkel, area cuci bis, dan ruang awak/kru
Q parkir bis/area pengendapan
R pos retribusi dan checkpoint terminal

Massa Bangunan dibagi Menjadi 3, yaitu Area Kedatangan, Pintu Utama, dan Area Keberangkatan


Massa Bangunan disesuaikan dengan Garis Kontur

Peletakan Open Space di tengah Ketiga Massa Bangunan
Pemberian Void untuk Mempertegas Akses Utama

WELCOMING AND OPEN SPACES


GREEN AND HEALTHY SPACES

LEGIBLE APPROACH AND ENTRY

LINKED SPACES FOR SOCIAL INTERACTION













