Portfolio 2023

Page 1

PORTFOLIO

Xuhan Zhao

Providence, RI | (401) 241-4091

xzhao04@risd.edu | xuhanzhao101@gmail.com

CONTENTS 01_ RESUME 02_KINETIC CULTURE CENTER FOR THE BOAVISTA URBAN AREA 03_ META-SURFING HOUSE 04_ MACHINE LEARNING AND TEXT ANALYSIS OF CHANG'AN

EDUCATION

BACHELOR OF ARCHITECTURE, RHODE ISLAND SCHOOL OF DESIGN (RISD)

Sep 2019 - May 2024 | Providence, RI

• Major: Architecture (GPA: 3.789 / 4.0)

• Interdisciplinary concentrations: Nature, Culture, Sustainability Study; Computation, Technology and Culture (in progress)

HONOR/AWARD

HONOR STUDENT

2019 Fall, 2020 Fall, 2022 Fall | RISD

• Top tier academic performance

HONORABLE MENTION | ARCHITECTURE COMPETITION, VIRTUAL HOME EDITION #1

Jul 2022 | U.S.

• Collaborative project: Meta-surfing House

EXPERIMENTAL AND FOUNDATION STUDY TRIENNIAL, WOODS-GERRY GALLERY

Jan - Feb, 2020 | Providence, RI

• Artworks of drawing, design, and stop-motion animation on display

SKILLS

• SOFTWARE: Microsoft Office, PS, AI, ID, AutoCAD, Rhino, Sketch up, V-Ray, Enscape

• CRAFT SKILLS: Physical Model Making, Laser Cut

• LANGUAGE: English fluent (TOEFL 105/120); Mandarin native

SELECTED EXPERIENCE

TEACHING ASSISTANT | RISD ARCHITECTURE, ENVIRONMENTAL DESIGN I

Sep - Dec, 2022 | Providence, RI

• Supported the instruction of architectural technology courses

• Organized outside of class help sessions, workshops and office hours to support students

• Assisted with homework and project grading

• Other teaching related tasks such as material preparation

DESIGN AND RESEARCH PROGRAM “THE AZORES - DESIGN WITH AND FOR NATURE”

Jun - Jul, 2022 | Ponta Delgada, Azores, Portugal

• Site visits to learn about the island ecologies and approach to sustainable wood forestry management

• Participated in workshops with University of Azores plant scientists about innovative use of invasive plant materials and biofibers

• Proposed a biofiber butterfly pavilion design for BIO KAIROS farm

ACHITECT ASSISTANT INTERN | EAST CHINA ARCHITECTURAL DESIGN & RESEARCH INST.

Jun - Aug, 2021 | Shanghai, China

• Participated in projects including Pacific Insurance Technology Ecological Park, Huzhou Taihu Sail Hotel, Putuo Mountain Lianhuayang Pier

• Coordinated with architects to complete preliminary data collection, relevant case analysis, drawing plan, elevation, section and other related design drawings, physical 3D modeling, design text arrangement, etc.

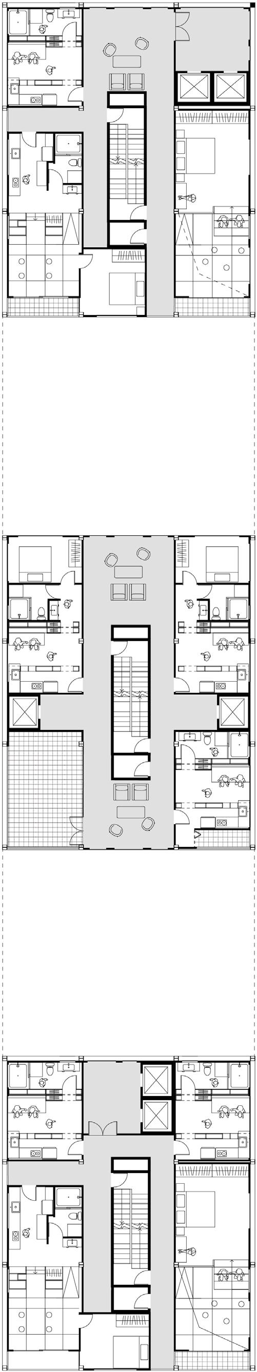
KINETIC CULTURE CENTER FOR THE BOAVISTA URBAN AREA

Saint-Gobain Architecture Student Contest Edition 2023 Lisbon

Instructuctor: Jonathan Knowles

By utilising different kinds of kinetic mechanisms, like sliding and rotating walls, foldable furniture, this project maximises the efficiency of space utilisation while also realising the diverse functional use of shared spaces. Kinetic louver system is used in the facade design to meet the needs of shading.

The whole life cycle of this project is also concidered as a kinetic system. The main body of the building will be composed of prefabricated CLT panels from local cryptomeria wood, taking into account the convenience of on site assembly and the recycling of materials in the future.

02
2024 2025 2055 2100

Kinetic

Lisbon Fine Ar School The Nationa Museum o Contemporary Art School o nnovation and Creat on Techno ogies (ETIC IADECreative Universi y LIVINGROOM KITCHEN WASHROOM BEDROOM TYPICAL ONE BEDROOM UNIT FLOOR AREA: 50 M² 1100M² LIVINGROOMKITCHEN WASHROOM BEDROOM KINETIC ONE BEDROOM UNIT FLOOR AREA: 25 M LIFTED PLATFORM FOR GROUND FLOOR CIRCULATION AND CONNECTION OF HREE BUILDINGS UP TO HALF OF THE BUILDING GROSS CONSTRUCTION AREA CAN BE SAVED 550M² OCCUPIABLE COMMERTIAL ROOF TOP CONNECT TO THE LIBRARY WITH BRIDGE REDUCE BUILDING VOLUME AVOID OVERSHADOW OF ADJACENT LIBRARY MORE SPACES FOR EXTERIOR SHARED TERRACE
Sliding Wall Rotational Wall Multifunctional Exhibition Space Foldable Furniture Moveable Louver Facade
THE SITE
Components in APARTMENT
APARTMENT SUNLIGHT ANALYSIS AT 12 PM Equinox Summer Solstice Winter Solstice
WITH KINETIC COMPONENTS
Components in PUBLIC SPACE
TRADITIONAL
APARTMENT
Kinetic
LOCAL MATERIAL & ON SITE ASSEMBLY BUILDING PERFORMANCE & CLEAN ENERGY DECONSTRUCTION & MATERIAL RECYCLE 2025 2055 2100
0 5 10 15M
-1 FLOOR PARKING -2 FLOOR PARKING STREET VIEW FROM SOUTH ENTRANCE
ENTRANCE VIEW
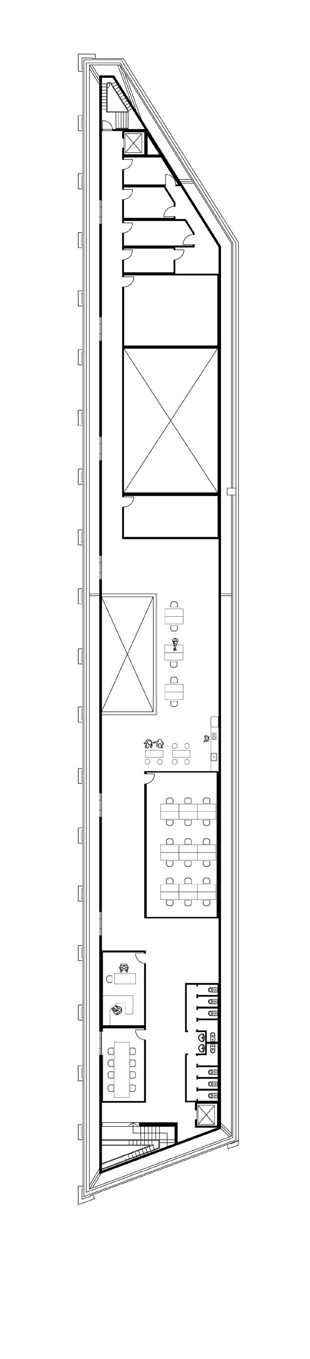
WEST 1st Floor Library a. Reception area b. Exhibition area c. Cafeteria d. Shop e. Public bathrooms f. Auditory g. Network servers and backstage h. Filming equipment storage Ground floor Commertial Area 1. Bookshop 2. Flower store 3. Art supply store 4. Ceramic workshop
0 5 10 15M 1 2 3 4 e b b f g h c a d 5
5. Sport center

2nd Floor Library

a. Deposite and archive room

b. Film and video description room

c. Video digitalization room

d. Cyclorama studio

e. Secretary and administration support room

f. Collective visioning room

g. Working room h. Coordinator room i. Meeting room j. Workers bathroom

Co-living units & Exterior platform

SECOND FLOOR COLLECTIVE VISIONING ROOM FIRST FLOOR AUDITORY AND EXHIBITION SPACE
0 5 10 15M e b f g h i j c a d

MULTIFUNCTIONAL VISION ROOM AND GALLERY SPACE IN THE LIBRARY

SEPARATED VISION ROOMS

VISION ROOM AND GALLERY SPACE

3rd Floor Library

a. Individual visioning room

b. Technical support to individual visionning room

c. Video edition room

d. Sound studioo

e. Reading space

f. Workers eating area

CONNECTED VISION ROOM WITH SHARED STAGE

g. Executive project production room

h. Coordinator room

i. Meeting room

j. Workers bathroom

Co-living units & Exterior platform

0 5 10 15M
e b f g h i j c a a a d
3rd Floor
One Bedroom Unit
UNIT TYPES
One Bedroom Co-Living Unit (3 operation methods) Position 3: Entertainment Position 2: Working & Studying Position 1: Sleeping & Eating Two Bedroom Unit with Shared Kitchen 4th Floor

Double

height two bedroom loft
Residential Building Long Section East Facade Elevation

EUI=492,179 kwh per year / 58161 sf =1679708.4912 kbtu per year/58161 sf = 28.88

Heating Energy

Net living space=5403 m2 5403m2 * 15 kWh/ m2/ year=81045 kWh/ year < 65,267 kWh of heating demand

Heating and Ventilation Diagram

RESIDENTIAL BUILDING CONSTRUCTION DETAIL

META-SURFING HOUSE

Collaborative project with Jiayi Cai and Bochuan Zheng

July 2022

Architecture Competition, Virtual Home Edition #1 Honorable Mention

The fast-paced and high-intensity working life in the future puts a lot of pressure on people in the physical world, while the metaverse gives people the opportunity to create their own unique, wonderful and interesting working and living station. VR technology allows virtual avatars to travel in time and space, and combined with optoelectronics and architectural space to construct a deep, immersive wonderland.

02

There are two main functions of the house: entertainment mode and working mode, which can be simply switched in the virtual world according to the user's need. In the working mode, the futuristic working space populated with dynamic digital surfaces creates an efficient and comfortable working environment for virtual avatars.

In the entertainment mode, living space innovatively replicates the beauty of nature. The whole room is covered by grass and flowers, which is inspired by the basic human need for warmth and coziness.

The multi-functional conference hall integrates the functions of display, meeting, social interaction and sports. The semi-circular transparent swimming pool is connected to the multi-functional conference hall, whose large glass wall can also be used as an LED projection screen.

Transparent glass waterways reflect light and color from the LED walls below, evoking an ethereal atmosphere that connects the digital and physical environments, making different spaces visible to each other and visually connecting the participants of different activities.

As a versatile and flexible platform in metaverse, this project actively engages virtual avatars, providing a multifunctional space for working, entertainment, leisure and excitement.

Site Plan

The site of the virtual house is located on an isolated island in the middle of the ocean, where the virtual avatar can be completely undisturbed by the outside world and emerge in the world of nature.

The virtual world is free from physical space constraints and is a place full of possibilities. In the past, the communication between people and community mainly relied on the real architectural space, but now it has been moved to the digital space. The design adopts an aesthetic that captures the integration of virtual experience into real-world social activities. Working here does not require long commutes, instead teleportation points allow people to easily get anywhere they want to go.

Concept Diagram Axonometric Bird View
The virtual word is infinite. People travel through teleporation points to each destination in the virtual world. People create their own 'world' (room) on their land.

Circulation Diagram

Working Circulation

Entertainment Circulation

There are two circulations in the building for users to choose freely.

In terms of the entertainment circulation, outdoor waterways meander around the entire house. Users can reach the very top of the waterway through stairs or the teletransportation elevator, then travel from the semicircular pool, which is a recreational space for swimming, surfing and boating and end to the waterfall. The waterfall merges into the sea, and after a single leapr, people jump in the sea of virtual world.

For the working circulation, users arrive at the teleportation point and entered the working space on the first floor. If they would like to enjoy the entertainment mode of this building, they can take the elevator towards to the second floor or the third floor, diving into the waterfall.

8 1 2 3 4 8 4 5 6 7
1. VR Sports Room 2. Living Room 3. Garden
4. Swimming Pool 8. Teleportation Elevator 1st Floor Plan (Entertainment) 4. Swimming Pool 5. Multifunction Meeting Room 6. Working Space 7. Cafe 8. Teleportation Elevator 1st Floor Plan (Working)
Entertainment & Working Space (Perspective a) Garden (Perspective c)
9 9
9. Waterway 2nd Floor Plan 9. Waterway 3rd Floor Plan Exterior and Interior View of Display Space (Perspective b)

MACHINE LEARNING AND TEXT ANALYSIS OF CHANG'AN

March 2022

With the rapid development of AI technology, data analysis and visualization are widely used in the fields of architecture and urban design. Starting from the analysis of historical texts of the Tang Dynasty, this project interprets the urban space of Tang Chang'an, integrating the time space of history, text, and readers to build a narrative digital model.

Taking the legendary novels of Tang Dynasty and modern news as examples of text space analysis, this project combines machine learning and space analysis. The semantic extraction and narrative reproduction of the multi-dimensional information contained in the text are carried out. Literary narrative and its local historical context expand the potential of spatial narrative and become the basis of spatial design.

03

Turn static files into dynamic content formats.

Create a flipbook
Issuu converts static files into: digital portfolios, online yearbooks, online catalogs, digital photo albums and more. Sign up and create your flipbook.