Lu, Xuanyi, Portfolio 2025

Page 1


Portfolio: Constructed Flows

Selected Works 2022-2025

Lu, Topographic Fields Drawing, Rhino, Adobe Illustrator, 2023
Lu, Kukje Gallery,Stereotomic vs Tectonic, Rhino, Adobe Illustrator, Feb 2024

Individual project

Instructor: Yutaka Sho

Site: Kigali, Rwanda

Date: 03/01/2024-04/24/2024

Inspired by the interplay of mesh and structure in the Kukje Gallery and the draped silhouettes of Rick Owens’ garments, this prosthetics workshop explores how architecture, like clothing, shapes and envelops the body—its tectonic layering and materiality forming spaces that echo both the physical and transformative nature of the program.

The idea of how drapes form spaces transforms the sloped site by carving into the ground, creating a sequence that guides patients downward for cleansing and rehabilitation, then upward after receiving a new limb—symbolizing a transformative journey.

The interplay between solid earth-cut spaces and lightweight mesh enclosures reinforces the connection between body, material, and movement, making architecture an active part of the recovery process.

Lu, Physical Study Model, Mar 2024

Program Key:

1. Doctor’s Offices

2. Lobby

3. Milk Bar

4. Semi-Open Cantine

5. Kitchen

6. Classrooms

7. Storage

The sloped site in Kigali is not merely a constraint but an active design element—the circulation strategy is central to the patient experience, setting up a journey of renewal.

The spatial narrative turns movement itself into a healing ritual, reinforcing the transformative nature of the clinic.

Lu, Street Level Plan Drawing, Rhino, Adobe Illustrator, Apr 2024

Program Key:

8. Gym / Physical Therapy

9. Doctor’s Office

10. Clinic

11. Meeting Room

Lu, Upper Level Drawing, Apr 2024

Program Key:

12. Shower Room

13. Prosthetic Workshop

14. Lockers

Lu, Basement Level Drawing, Apr 2024

The use of locally sourced materials (Rammed earth block & Fiber and Reeds) grounds the building in its cultural and ecological context.

The interplay between earthcut spaces and floating, porous enclosures enhances sensory perception.

Lu, Section Perspectives, Rhino, Illustrator, Apr 2024

PROJECT 2

Group project

Instructor: Daniele Profeta

Site: Sardegna, Italy

Date: 01/30/2025-04/24/2025

Guided by site impressions—trees piercing through collapsed roof, the windows, the cylinder round wall edge, and the weathered concrete blocks—this project transforms a former cow storage warehouse into a fine dining restaurant and cheese workshop. The design adopts a strategy of wrapping and attaching—carefully patching new interventions to the existing structure to preserve its memories.

A lightweight wooden second floor is added above the original volume, extending views over the Sardinian landscape and inviting guests deeper into the site. Steel columns reinforce the aging walls, while insulation and wood paneling are applied like inner garments—protecting without concealing.

Together, these layers form an architectural patchwork.

Program Key:

1. Garden

2. Greenhouse

3. Dining Area

4. Kitchen

5. Garden as Back Circulation

6. Staff Locker Room

7. Restroom

8. Lift

9. Entrance Interior Garden

10. Display Room

11. Workshop and Lab

12. MEP

13. Pasteurization Room

14. Outdoor Workshop

15. Outdoor Seating

16. Cooking Classroom

The program includes a greenhouse, a kitchen and dining area, a cheese research lab, an open to sky workshop, a second floor cooking classroom, and a garden, with a hybrid closed- and open-roof structure. The roof was replaced with standing seam aluminum panels, and the indoor and slit gardens are integrated into the architecture. The garden weaves through the site as a connective tissue, linking the main kitchen, the cheese research lab for staff needs. This planted corridor doubles as circulation and gathering space.

Apr 2025

Render, Plan, Section, Rhino, Illustrator, Ps, Vray, D5,
Lu, Cheng, Guan,
Greenhouse Plan & Render, Rhino, Illustrator, Ps, Vray, D5, Apr 2025
Lu, Cheng, Guan,

Existing Plan

& Demolished

Existing windows were enlarged to bring in more light and to frame views toward the surrounding Sardinian landscape, while some windows were enlarged to become thresholds, reinforcing the dialogue between inside and out. Where the walls are demolished, there are new wood and concrete material added to support.

Existing
Existing & New added (Wrapping & Attaching)
Existing Elevation
Existing & New Added
Intervention Diagram, Rhino, Illustrator, Apr 2025
Lu, Cheng, Guan,

Cheng, Guan,

Kitchen: Plan & Section A & Render Rhino, Illustrator, Vray, D5, Ps, Apr 2025

Lu,

Lu, Cheng, Guan,

Entrance: Plan & Section B & Render Rhino, Illustrator, Vray, D5, Ps, Apr 2025

Cheese Workshop: Plan & Section C Rhino, Illustrator, Apr 2025

Lu, Cheng, Guan,

PROJECT

3

Individual project

Instructor: Yutaka Sho

Site: Tokyo, Japan

Date: 01/30/2024-02/20/2024

A LIVING FOLDED FASHION SCHOOL

Rooted in the tectonic studies of the Kukje Gallery and the silhouettes garments of Rick Owens, this fashion school in Tokyo’s Shimokitazawa district transforms fabric logic into spatial experience, where seams become structural joints and pleats define space, circulation, and interaction. The three interwoven floors emerge from this pleated framework.

More than a school, this project is an extension of the creative process itself—a living, adaptable framework that transforms with those who inhabit it.

The downward-folded nature of fabric informs the entire building system, generating slanted planes that shape programmatic spaces, movement, and display areas. Slanted floors transform into stair-like platforms, shaping an open and dynamic environment, while partition walls serve as exhibition surfaces—blurring the line between structure and display.

Left Section
Third Floor
Second Floor
Ground Floor
Front Section
Lu, Plans & Sections, Rhino, Illustrator, Apr 2024
Program Key:
1. Lobby & Runaway Space
2. Coat room & changing Room
3. Dressing Room
Meeting Room
Public Restroom
Studio Space
Private Restroom

PROJECT 4 PEDESTRIAN HOUSE

Individual project

Instructor: Andy Kim

Site: Syracuse, United States

Date: 10/20/2024-12/06/2024

This housing project in Syracuse is shaped by the concept of a pedestrian road, designed to enhance the urban fabric by providing a safer and more accessible route from the side street to the parking lot.

As the central organizing element, this path fosters walkability and community engagement while structuring the development of the building itself.

Positioned between two buildings, the project occupies the middle lot, facing challenges in securing natural sunlight for over 70 residential units.

Lu, Ground Floor Plan, Rhino, Illustrator, Apr 2024

Third Floor

Second Floor

Two walkway gaps that are generated by looking at the sunlight angles of site, and then, the triangle balconies and shared balconies are formed for each units.

The building employs a steppedback design on each floor, maximizing sunlight exposure and creating cascading terraces that enhance outdoor accessibility.

Lu, Plans, Rhino, Illustrator, Apr 2024

Apr 2024

Xuanyi
Harrison St & Almond
Pedestrian
12/6/2024
Concept &
Pedestrian Pedestrian Car Road
Lu, Drawings, Rhino, Illustrator,

PROJECT 5

Individual project

Instructor: Iman Fayyad

Site: Syracuse, United States

Date: 3/15/2023-4/25/2023

I am interested in designing a hostel that can make people feel welcoming. People are comfortable to be everywhere in the building not only for outgoing people to socialize but also for introverted people. The facade of the building looks dynamic with mild folded angle, which attract people as well. The aggregations of the base unit (parallelogram)creates some interesting moment. For example, People enter from a misalignment of the two base unit. Also the courtyards are created by the aggregations of it. The hostel packed tightly in perspective, and the aggregations of parallelogram allow the plan and section having dynamic effect.

DANCING YOUTH HOSTEL

All the common areas are located on the first floor, small lounges for people to socialize are scattered through out the first floor so that people can have other semi-personal space outside of their rooms. It is a deep plan which is hard to get light in the middle, therefore, the gaps generate by the base unit allow light to come in. These gaps also become air ventilation systems. To solve the light problem on the second level, I lift up 6 single persons rooms to another level which also create the sense of neighborhood.

Lu, Figure Ground Patterns Drawings, Feb 2023

First Floor Program Key: 1. Bar

Library 3. Kitchen/Cafe 4. Conference Room 5. Entry/Lobby

6-8. Small Lounges

Lu, Youth Hostle, Longitudinal Section, 2023

Lu, Youth Hostel, Transverse Section, 2023

Lu, Youth Hostel, Second Floor Plan, 2023

Lu, Youth Hostel, Ground Floor Plan, 2023

Lu, Youth Hostel Physical Model, 2023

PROJECT 6 PIXELATION INTO THE LANDSCAPE

Individual project

Instructor: Joel Kerner

Site: Peebles Island State Park, United States

Date: 9/1/2023-12/1/2023

The activity center provides year-round public programs which supplement the state park and surrounding areas.

Through the study of the systems, formations, and processes of the glacier and the study of Bharan Bhavan, the concept of the center is derived from the idea of glacier calving and the idea of glacier consistently moving.

Coutyards are like pieces of ices breaking off, and the pixelated language is derived from the consistently adding and subtracting of the glacier while it is moving.

Lu, Peebles Island State Park Activity Center, Site Plan, Dec 2023

As the glacier continues to move, the terminal ice breaks into the water. It is known as Ice Calving which is a repetitive behavior that occurs approximately every 20 minutes. Bharan Bhavan is a multi-arts center built into a hillside and comprised by many sunken courtyards which slopes down toward a lake. I combine the ideas of ice calving and sunken courtyards, think of the lost ice as sunken coutyards.

The Hybrid System-Ground Construct models represent subtractive (ices breaking off) and additive (ices that was under the water float up) ideas of glaciers.

The models shows one of the main characteristic of the glacier which is the forming and changing of the terrain as the glacier moves.

Lu, Hybrid System-Ground Construct Models, Oct 2023

Lu, Composite Drawing, Main Concept of Peebles Island State Park Activity Center, Oct 2023
Lu, Peebles Island State Park Activity Center, Vignettes, Nov 2023

Program Key:

Lu, Ground Floor Plan, Rhino, Illustrator, Dec 2023
1. Office
2. MEP room 3. Coat roon 4. Bike storage 5. Restroom for public 6. General storage
7. Multipurpose hall
8. Boat hall roof
9. Cafe roof
Scale: 1/8” = 1’-0”

Scale: 1/8” = 1’-0”

Program Key:

Lu, Lower Floor Plan, Rhino, Illustrator, Dec 2023
1. Multipurpose Hall
2. Boat Hall
3. Cafe
4. Hot Tubs & Sauna
5. Changing & Locker Room

Scale: 1/8” = 1’-0”

Lu, Short Section, Rhino, Illustrator Dec 2023

MAIN CONCEPT

SINK IN GROUND COURTYARDS INSPIRATION

Main circulation from entry to the water Horizontal circulations

Vertical circulations

Supplementary docks

- Maintaining the growing (adding) and losing process of the glacier)

- Maintaining the pixelated language

Vertical ramps (paths to the roofs)

- Looking at the composite drawing in a sectional way

- Creating more aggregated experience

Three entries on different level due to the sloping down landscape

Courtyards

Terrace (Open to Sky)

Courtyards

Outdoor Docks

Courtyards from private to public as people move near to the water

Scale: 1/8” = 1’-0”

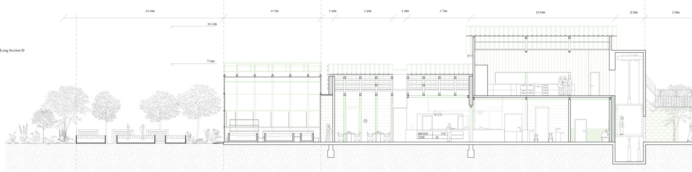
Lu, Long Section, Rhino, Illustrator Dec 2023

Lu, Peebles Island State Park Activity Center, Physical Model, Nov 2023

30 PHYSICAL MODELS

35 SELECTED ARTWORKS

Lu, Pavillion Physical Model, 2022
Lu, Study Model for Drop Pissing, 2022
Lu, Study Model for Spray Painting 151, 2022
Lu, Different Orientations of One 3D Cube, 2022
Lu, Clay Models, 2022
Lu, Drawings, 2020-2021

Lu, Drawing, Watercolor, 2020

Lu, Drawings, 2021-2022

Lu, Drawing, Watercolor, 2022

Selected Works 2022-2025

Xuanyi (Judy) Lu

Turn static files into dynamic content formats.

Create a flipbook
Issuu converts static files into: digital portfolios, online yearbooks, online catalogs, digital photo albums and more. Sign up and create your flipbook.