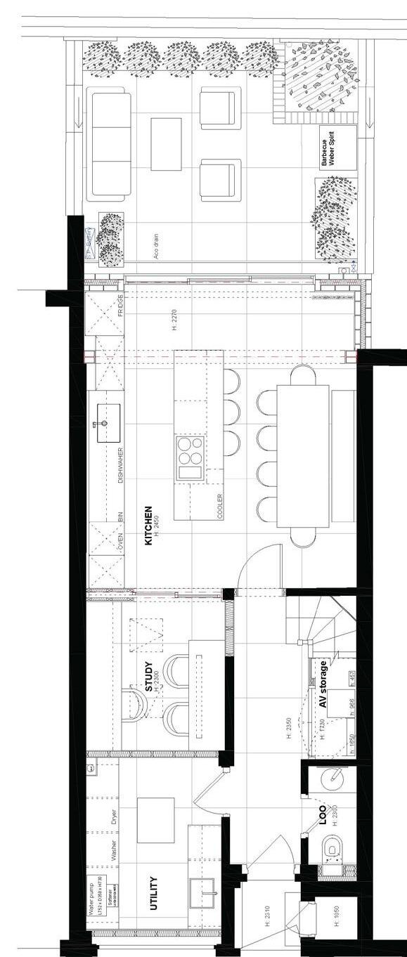
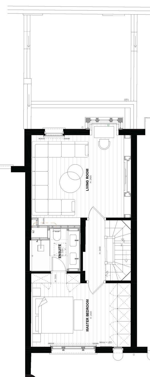
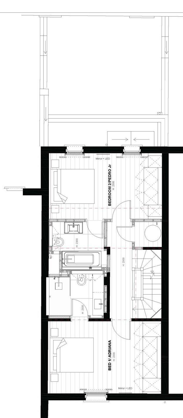
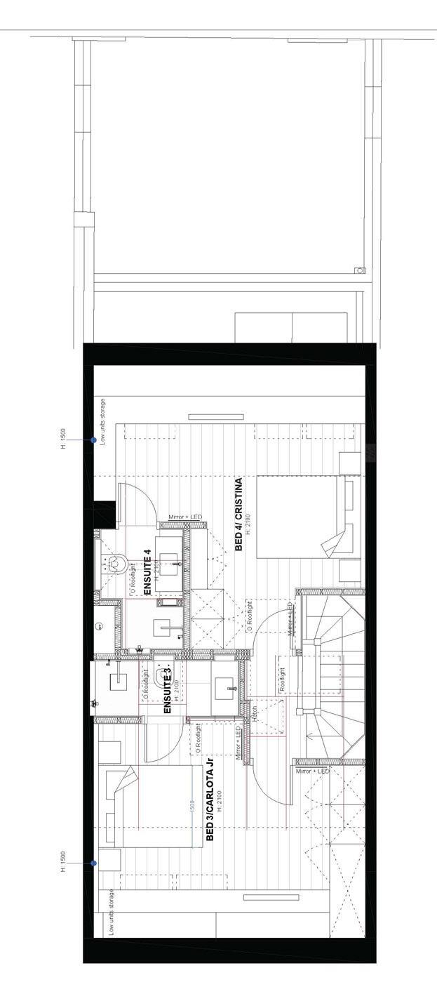
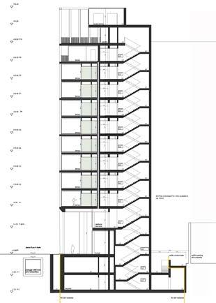
The project is a full refurbishment, including the addition of an extra floor within the existing volume, five en-suite bedrooms, and a rear ground floor extension. A renewable energy system and a smart home system have been installed.
Size 300 sqm
Worked on Riba stages 4-6

26 Charles II Place
date: 2024-now
architect and site manager https://huser.co.uk/projects/charles-ii-place-sw3-ii/















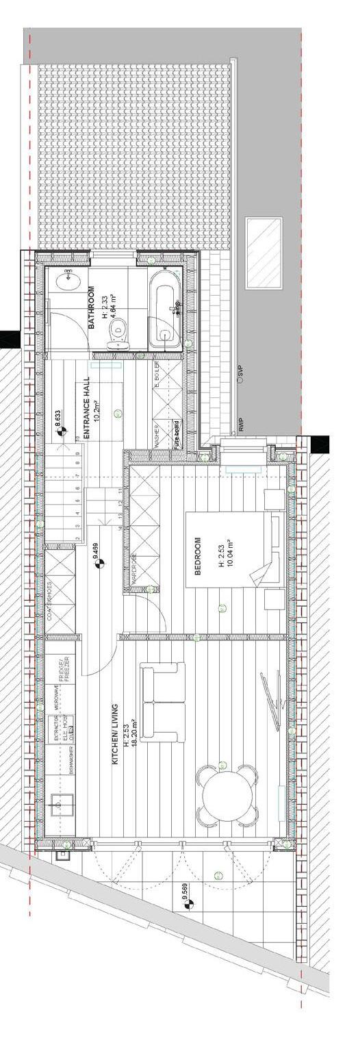
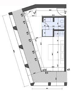
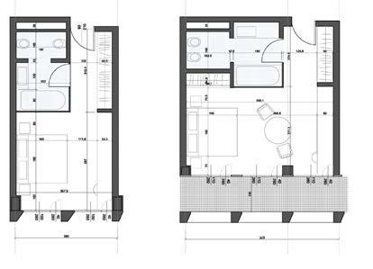
The scope of works involved the complete refurbishment of two existing flats, including internal reconfiguration, upgrade of building services, and finishes throughout. Additionally, the project included the construction of a new top-floor flat, designed to maximise the use of the existing building envelope while complying with local planning and building regulations.
608 Fulham Road
London UK
























The project includes demolition of existing building and construction of 2 stories family residence, on river Mole bank. We have been asked the proposal to be of New England style in painted timber cladding.
Size: 500 sqm of building area









































