Sistema constructivo PDL- Grupo 1- VA5D

Page 1

VIVIENDA MULTIFAMILIAR

PDL

Alarcon Ramirez, Ana Paula Patiño Cordova, Xiomara Aranda Noel, Jerson Hermoza Ochoa, José

100% 100% 100% 100%

Arq. Eva Amelia Valcarcel Ruiz

Arq. Jorge Martin Vargas García

SISTEMA CONSTRUCTIVO
V A 5 D ALBAÑILERIA 2022-2
01
INTEGRANTES: PROFESORES:

PROPÓSITO

El propósito de este trabajo fue el implementar el sistema PDL en el proyecto encargado, el cual consistia en crear una edificación, que el primer piso sea un local comercial y el resto de pisos viviendas para distintos usuarios, haciendo que cada departamento vaya de acuerdo a los hobbits, costumbres o necesidades en la que se encuentre cada familia, recalcando que uno de los usuarios debe de presentar una discapacidad.

El trabajo presente muestra un analisis del sistema escogido, encontrando el proceso constructivo, como este se adecua a las Normas, el calculo de metrados; utilizando el CVU; soluciones ambientales y las soluciones aplicadas para cubrir las necesidades de los usuarios, así como los planos, cortes, elevaciones y detalles constructivos de nuestro proyecto

V A 5 D ALBAÑILERIA 02

Entorno y usuario

Localización. Orientación. Variables climáticas. Tipología del Usuario. Respuesta a las variables climáticas.

Base teórica, costos y analisis de densidad de muros

Base teórica de PDL Metrados

ÍNDICE 01 02

Análisis de densidad de muros Diseño arquitectura: plantas, cortes, elevación principal y 3D

Detalle constructivo Detalles

Criterios de seguridad en obra. Proceso constructivo de un muro de PDL Ensamblaje de un tabique de drywall a un muro de PDL

Proceso Constructivo

Aprendizajes

V A 5 D ALBAÑILERIA
03
Constructivos
04 05
Experiencia en el curso
03

01 ENTORNO Y USUARIO

V A 5 D ALBAÑILERIA
04

LOCALIZACIÓN

N Ubicación entre la Avenida Los Ingenieros y la calle La Libertad.

Durante el ciclo 2022 2 se desarrolló el trabajo encargado en la catedra del curso de Albañilería. En él tuvimos que diseñar un edificio multifamiliar que en el primer nivel cuente con una parte de comercio. Para esto, situamos nuestro proyecto en un terreno vacío actualmente, el cual se encuentra ubicado en una esquina y el terreno presente 1 m de pendiente. En esta etapa, de forma grupal nos encargamos de buscar el lugar ideal en Lima donde podamos emplazar nuestro trabajo. En el proceso de analizar las diversas opciones, llegamos a la conclusión de que el terreno adjuntado en la parte de arriba era el ideal, ya que contaba con las caracteristicas necesarias para la realización del proyecto requerido.

FUENTE: GOOGLE EARTH
PAÍS PERÚ DEPARTAMENTO LIMA DISTRITO LA MOLINA
V A 5 D ALBAÑILERIA 01
FUENTE: GOOGLE EARTH
LP LP V V P 1 0103 6 4617 FUENTE ELABORACIÓN PROPIA
FUENTE ELABORACIÓN PROPIA
CORTE
05

01

LOCALIZACIÓN

Para el desarrollo del proyecto, analizamos la zonificación del terreno con el fin de respetar los parámetros urbanístico del distrito de la molina. Posterior a esto, podemos concluir que nuestro terreno se encuentra ubicado en una zona de residencia de densidad media, rodeado de zonas de comercio vecinal y zonal.

Nuestro proyecto se encuentra ubicado en el distrito de L a Molina entre Calle La Libertad y la Avenida Los Ingenieros, siendo esta la que recibe un mayor flujo peatonal durante todo el día, en el cual propondremos un espacio comercial, el cual facilitará el ingreso de personas a el.

tivo
V A 5 D ALBAÑILERIA
FUENTE MUNICIAPLIDAD DE LA MOLINA
06
FUENTE MUNICIAPLIDAD DE LA MOLINA

LOCALIZACIÓN

TOPOGRAFÍA

El terreno elcgido para desarrollar nuestro proyecto encargado responde a una topografía con una pendiente de 1 metro, como podemos observar en las siguientes imagenes.

CURVAS DE NIVEL

DIMENSIONES DEL TERRENO

Las medidas del terreno son: frente: 15.00 m, lado izquierdo: 25.00 m, lado derecho: 25.00 m, fondo: 15.00 m, el frente del terreno mira hacia la AV, Los Ingenieros otros linderos colinda con propiedadde terceros.

V A 5 D ALBAÑILERIA
01
25 25 15 15 FUENTE: ELABORACIÓN PROPIA
CORTE
07
FUENTE ELABORACIÓN PROPIA

LOCALIZACIÓN

VÍAS DE ACCESO Y ALREDEDORES

V A 5 D ALBAÑILERIA 01
La
08 FUENTE GOOGLE MAPS
Libertad Av. Los Ingenieros Av. La Fontana VÍAS SECUNDARIAS VÍAS PRINCIPALES FUENTE: SNNAZZY MAPS

LOCALIZACIÓN

RESIDENCIAL DE DENSIDAD MEDIA

En su mayoría, las viviendas colindantes tienen de ods a tres prisos, hay algunas excepciones en donde se ven mas pisos perono exceden de los 5 pisos.

V A 5 D ALBAÑILERIA 01
FUENTE ELABORACIÓN PROPIA
09 TEMPLO DE LIMA
FUENTE GOOGLE EARTH
RESIDENCIAL DE DENSIDAD MEDIA

ORIENTACIÓN

SOLSTICIO DEL 21 DE DICIEMBRE 9:00 AM

EQUINOCCIO DEL 20 DE MARZO EQUINOCCIO DEL 20 DE MARZO SOLSTICIO DEL 21 DE DICIEMBRE 16:00 PM 9:00 AM 16:00 PM

V A 5 D ALBAÑILERIA
01
FUENTE: ELABORACIÓN PROPIA
10
FUENTE: SUN PATH

VARIABLES CLIMATICAS 01

En 2022, el día más corto es el 21 de junio, con 11 horas y25 minutos de luz natural; el día más largo es el 21 de diciembre, con 12 horas y 50 minutos de luz natural.

La Molina muestra los días por mes, durante los cuales el viento alcanza una cierta velocidad. Crea vientos fuertes y regulares de Diciembre a Abril y vientos tranquilos de Junio a Octubre.

La temperatura máxima (línea roja) y la temperatura mínima (línea azul) promedio diaria con las bandas de los percentiles 25º a 75º, y 10º a 90º. Las líneas delgadas punteadas son las temperaturas promedio percibidas correspondientes.

El día solar durante el año 2022. De abajo hacia arriba, las líneas negras son la medianoche solar anterior, la salida del sol, el mediodía solar, la puesta del sol y la siguiente medianoche solar.

ROSA DE VIENTOS

El viento está soplando desde el Suroeste (SO) para el Noreste (NE)

Basamos el nivel de comodidad de la humedad en el punto de rocío, ya que éste determina si el sudor se evaporará de la piel enfriando así el cuerpo. Cuando los puntos de rocío son más bajos se siente más seco y cuando son altos se siente más húmedo.

V A 5 D ALBAÑILERIA
11

VARIABLES CLIMÁTICAS

En la Molina, los veranos son caliente, àridos y los inviernos son largos , frescos, secos y mayormente despejados. Durante el transcurso del año, la temperatura generalmente varìa de 15 ºC a 27ºC y rara vez baja a menos de 13ºC o sube a màs de 29ºC.

La dirección del viento promedio por hora predominante en la Molina es del sur durante todo el año

La duración del día varia considerablemente, ya que solo varia 50 min de las 12 horas en todo el año

La posición del terreno se ubica en el cruce de la av. los Ingenieros cruce con el jr. la Libertad; si hablamos de vientos, la dirección de vientos viene del sur a norte y no llega afectarnos directamente porque tenemos un terreno vecino

Fuente: https://es.weatherspark.com/y/21290/Clima promedio en La Molina Per%C3%BA durante todo el a%C3%B1o

V A 5 D ALBAÑILERIA
01 12

TÍPOLOGÍA DEL USUARIO 01

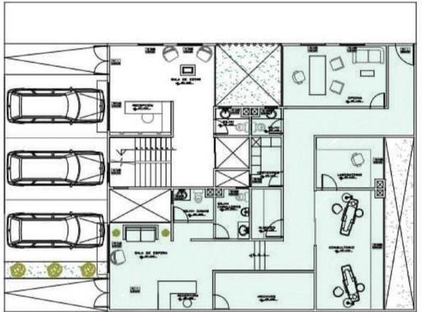
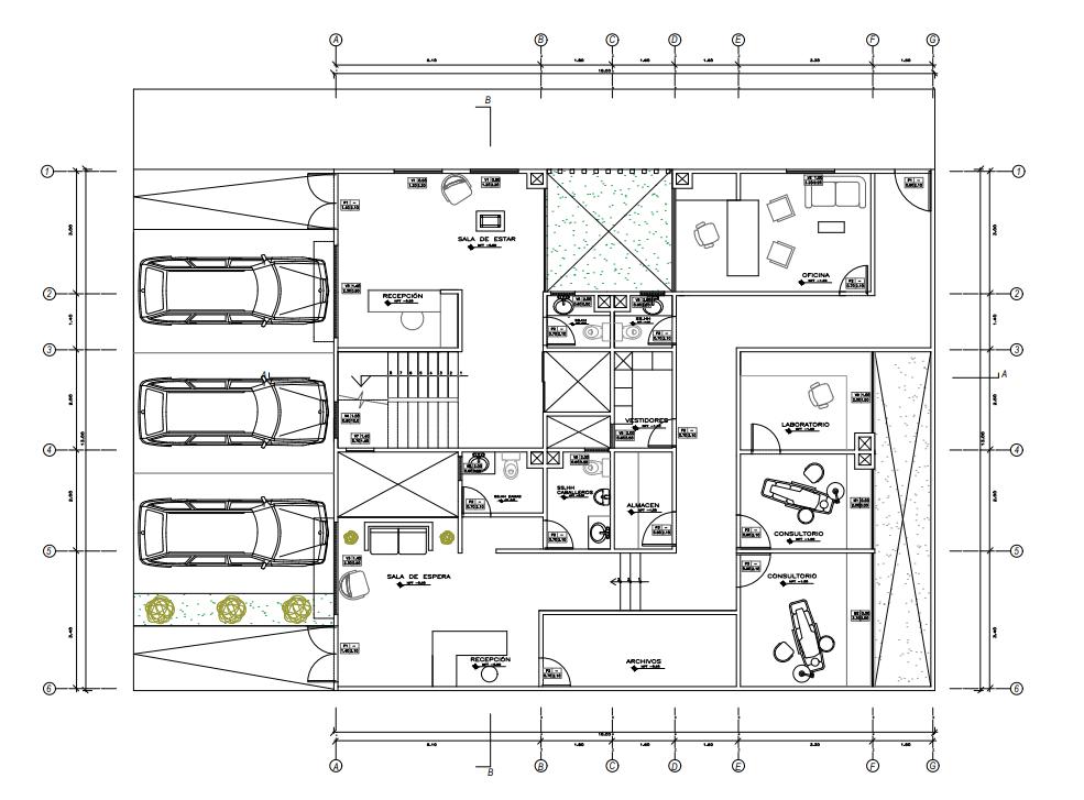
PRIMER NIVEL COMERCIO

En el primero piso hemos considerado dos zonas, una comercial y una privada. En la zona comercial hemos incluido un consultorio odontologico, al cual tiene los siguientes espacios: Recepción Sala de espera Baños Archivos Consultorio Laboratorio Vestidores Almacen Oficina

PERFIL DEL CLIENTE

Además hemos considerado el perfil del cliente o posibles clientes

EL QUE PASA

Personas de aproximadamente 30 a 40 años. Sueldo promedio de Clase media: 1500 mensuales. Persona formalista.

EL QUE VIVE

Personas de aproximadamente 30 a 50 años. Sueldo promedio de Clase media: 2800 mensuales. Persona progresista.

EL QUE TRABAJA

Personas de aproximadamente 30 a 60 años. Sueldo promedio de Clase media: 2800 mensuales. Persona progresista.

V A 5 D ALBAÑILERIA
13

TIPOLOGÍA DEL USUARIO 01

PRIMER NIVEL PRIVADO

En zona privada de nuestro primer piso hemos considerado un lugar en donde las propietarios de las viviendas se sientan comodas al acceder, es por eso que contiene los siguientes espacios Recepción Sala de espera Baño Accesos verticales (escalera y ascensor)

SEGUNDO NIVEL PRIVADO

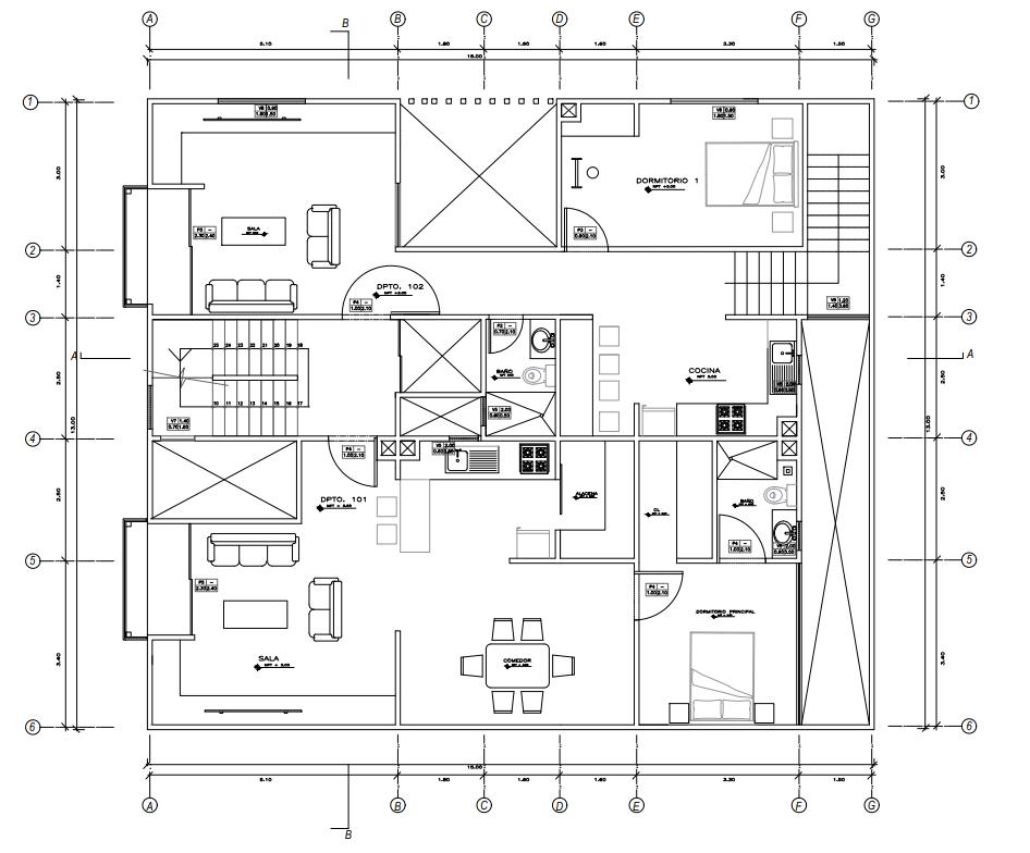
En el segundo nivel empezamos a encontrar los departamentos. El departamento 101 esta diseñado para la pareja de esposos Clara y Martin, Clara es chef y profesora en la UPC, y Martin es dentista y establecera su consultorio en la parte del comercio.

Hemos considerado los siguientes espacios: Sala Balcón Kitchenaid Habitación matrimonial con baño y walking closet Alacena Baño de visitas

V A 5 D ALBAÑILERIA
14

TÍPOLOGÍA DEL USUARIO 01

SEGUNDO NIVEL PRIVADO

En el segundo nivel empezamos a encontrar los departamentos. El departamento 102 es un duplex y se ha diseñado para dos roommates, Mafer y Leonel, ambos comparten el gusto por el arte.

Hemos considerado los siguientes espacios:

Sala Balcon Kitchenaid 2 habitaciones con un lugar en donde puedan pintar. Baño de visitas Baño privado.

TERCER NIVEL PRIVADO

En el tercer nivel se encuentra la familia Colucci, la cual cuenta consta de los papás y 2 niños. Ambos papás son arquitectos, la mamá constantemente esta en el estudio y los niños en el colegrio, pero el papá ultimamente no sale porque por un accidente debe estar en silla de rueds y en terapia Hemos considerdo

Sala Kitchenaid 2 habitaciones con un lugar en cdonde puedan pintanr Almacen Baño de visitas

V A 5 D ALBAÑILERIA
15

TIPOLOGÍA DEL USUARIO 01

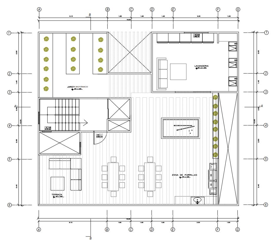
CUARTO NIVEL AZOTEA PÚBLICA

En el ultimo nivel de la vivienda multifamiliar como parte pública hemos decidido aprovechar la parte donde cae mas el sol y colocamos un jardin botanico, asi como también una zona de parrilas con terraza y una lavandería comun, para que de est forma las personas no hagan lo que usualmente hacemos que es encerrarnos en nuestras casas todo el tiempo, y puedan compartir un poco más entre todos. En el siguiente plano adjuntado, podemos ver como hemos resuelto el nivel de la azotea.

V A 5 D ALBAÑILERIA
16

RESPUESTA A LAS VARIABLES CLIMÁTICAS

V A 5 D ALBAÑILERIA
01 18

RESPUESTA A LAS VARIABLES CLIMÁTICAS 01

TERRAZAS CON PARASOLES

En el proyecto encargado, hemos empleado unas terrazas en zonas que reciben la mayor cantidad de sol durante todo el día. Además, cuentan con parasoles como protección de los rayos ultravioletas .

VIDRIO CON CONTROL SOLAR Y AISLAMIENTO TERMICO REFORSADO

Es una gama de vidrios de control solar que permiten reducir la entrada de calor en los recintos, reduciendo asimismo el gasto en aire acondicionado en verano. Además funcionan como aislamiento térmico frente al frío, por lo que permiten ahorrar en calefacción en invierno.

VENTILACIÓN

En el proyecto hemos incluido 2 tipos de ventilación, en la parte posterior encontramos un ducto simple, el cual cuenta con un jardín en el primer nivel; el segundo se encuentra en la parte lateral del proyecto, esta también cuenta con un jardín en el primer nivel, además de tener un cerramiento vertical cubierto con enredaderas. Este tipo de cerramiento tiene el propósito de crear una mayor intimidad desde el exterior y una ventilación constante en los espacios interiores.

JARDIN BOTÁNICO

En la esquina predominante del último nivel ( parte pública), ubicamos un jardín botánico para aprovechar los rayos solares. Decidimos esa zona con la finalidad de que los cultivos crezcan de la mejor manera posible.

V A 5 D ALBAÑILERIA
17
PROPIA
FUENTE: ELABORACIÓN

02 BASE TEÓRICA, COSTOS Y ANALISIS DE DENSIDAD DE MUROS

V A 5 D ALBAÑILERIA
19

02 BASE TEORICA DE PDL

ESPESOR

10 cm

El espesor de un muro de PDL va desde 10 cm a 15 cm dependiendo de la altura de la edificación, mas de 5 pisos van muros de 15 cm. Por esta razón en nuestro proyecto tenemos muros de 10 cm.

REFUERZO

Malla electrosoldada

CARACTERISTICAS

TRASLAPE DE ACEROS

Muros en base de concreto armado y acero, que no necesitan columnas. Resisten fuerzas horizontales de los sismos, debido a su sismoresistencia por la rigidez y resistencia, debido a la alta densidad de los muros.

El sistema constructivo PDL se encarga de distribuir las cargas desde las losas hacia los muros que proximamente lo dirigen hacia las plateas de cimentación, terminando finalmente en el suelo, como podemos obserbar en uno de nuestros detalles constructivos elaborados por nuetsro grupo.

Al momento de soportar cargas va a depender de dos cosas, para los sismos tenemos que analizar el lugar en donde se encuentra y tipo de terreno donde se situara, y la segunda es la carga del viento que depende de la altura que presenta y su ubicación geografica.

V A 5 D ALBAÑILERIA
FUENTE ELABORACIÓN PROPIA FUENTE: ELABORACIÓN PROPIA
Escala
20
1/25

ALBAÑILERIA

BASE TEÓRICA DE PDL 02

IMPORTANCIA

Este sistema guarda total relevancia en el Perú, ya que está empezando a ser más utilizado debido a la facilidad que le proporcionó la industrialización, mediante el uso de encofrados metálicos estructurales, además del uso de concreto premezclado, provocando que se vuelva más ágil y económico el proceso constructivo de su utilización. Su importancia estructural va en el uso de muros de concreto, lo cual nos asegura que no se produzcan cambios bruscos de las propiedades resistentes y principalmente de las rigideces

VENTAJAS DESVENTAJAS

Se permite el ahorro en tranposte. Los encofrados metalicos son mucho mas economicos

El costo de producción se puede reducir hasta un 50%

Los muros delgados permiten ganar mas espacios

No puede sobrepasar los 7 pisos

No se pueden colocar estcionamientos subteraneos

El tiempo de construcción es más rapido a comparación de otros sistemas constructivos.

Mayor rigidez frente a sismos

Mano de obra calificada

Presenta problemas acusticos como termicos

02
V A 5 D
21

02 BASE TEORICA DE PDL

Utilizaremos la norma E.030, con el propósito de diseñar nuestra edificación, tomando en cuenta 4 puntos

El mantener una simetría puede favorecer a la resistencia que presente

La cantidad de muros que halla en el eje Y y en el eje X sea casi la misma, debido a que estos tienen el propósito de soporte en caso de sismos

Los vanos deben de construirse manteniendo un orden, siendo llevado hasta las vigas, careciendo de dinteles

Los muros de los pisos superiores deben de estar ubicados sobre los muros inferiores

V A 5 D ALBAÑILERIA
22

BASE TEÓRICA DE PDL 02

Ya que estamos considerando el uso de rampas y ascensor para discapacitados, optamos por seguir la norma A.120

La norma nos da el dato de cuanto es la diferencia de nivel, mostrando la pendiente que debe de tomar:

Diferencias de nivel de 0.76 hasta 1.20 m 8% de pendiente Diferencias de nivel de 1.21 hasta 1.80 m 6% de pendiente

Para el ascensor, es recomendable utilizar 1 m de ancho y 1.20 de profundidad

Los elementos que debe de alcanzar una persona en silla de ruedas deben de estar en un intervalo de 0.40 a 1.20 m de altura, hablando de lo frontal, si vamos a lo lateral, estas alturas van desde lo 0.25 a 1.35 m

Los accesos deberán de tomar las siguientes características:

El ancho de los vanos será de 0.90 a 1.20 m

Aquellos pasadizos con magnitudes largas, deben de contar con espacios de 1.50 x 1.50, permitiendo el giro

El ancho mínimo de una rampa es de 1 m, si la rampa tiene un largo de 3 m, se debe de incluir un parapeto

02 V A 5 D ALBAÑILERIA
23

02 BASE TEORICA DE PDL

Utilizaremos la norma E.010, debido a que esta nos brinda información respecto al retiro y la altura que debemos utilizar

Según el artículo 8. Retiros normativos

Los retiros normativos tienen el propósito de permitir privacidad y seguridad de los habitantes del edificio, definiendo un límite entre propiedad y edificación, estos se clasifican en 3: Frontales, el cual guarda distancia mínima libre entre el lindero colindante con una vía pública y el límite de la edificación. Laterales, distancia mínima libre entre uno o ambos linderos laterales colindantes con otros predios y el límite de la edificación. Posteriores, teniendo distancia mínima libre entre el lindero posterior con el límite de la edificación.

Según el artículo 10. Altura de edificación

Hay que tomar en cuenta 2 aspectos para que haya homogenización entre las edificaciones

a) Cuando tengamos casos de zonificación residencial con usos compatibles, la altura de cada piso tendrá un máximo de 3.00 m

b) En los casos de comercio, comunicación y transporte, hospedaje, oficinas, salud y sean compatibles con vivienda, cuando la altura de la edificación esté indicada en pisos, cada piso se considera de un máximo de 4.00 m.

r a

V A 5 D ALBAÑILERIA
22
L L F P
3
m d e a l t u r a 4 m d e a l t u

BASE TEÓRICA DE PDL 02

Culminando con la norma E.050, identificando cuales son los puntos que hay que tener en cuenta para el suelo y cimentaciones

Guiándonos del artículo 17, PRESIÓN ADMISIBLE. Esta se efectuará si se presentan los siguientes factores

Profundidad de cimentación

Dimensión de los elementos de cimentación Características físico Ubicación del nivel frenético Probable modificación de las características físico mecánicas Asentamiento tolerable de la estructura

El artículo 19, PROFUNDIDAD DE CIMENTACIONES. La profundidad de cimentación de zapatas y cimientos corridos, es la distancia desde el nivel de la superficie del terreno a la base de la cimentación

La profundidad de cimentación quedará definida por el PR y estará condicionada a cambios de volumen por humedecimiento secado, hielo deshielo o condiciones particulares de uso de la estructura, no debiendo ser menor de 0,80 m en el caso de zapatas y cimientos corridos.

Las plateas de cimentación deben ser losas rígidas de concreto armado, con acero en dos direcciones y deberán llevar una viga perimetral de concreto armado cimentado a una profundidad mínima de 0,40 m, medida desde la superficie del terreno o desde el piso terminado, la que sea menor. El espesor de la losa y el peralte de la viga perimetral serán determinados por el Profesional Responsable de las estructuras, para garantizar la rigidez de la cimentación.

02 V A 5 D ALBAÑILERIA
23

METRADOS

Llegamos a la conclusión de que se usarán distintas categorías, en la zona comercial y la vivienda, debido a que la comercial contará con categorías regulares ya que el paso por allí será rápido, en cambio la vivienda presenta mejores características porque los usuarios estarán gran parte del tiempo allí.

El intervalo de las categorías va desde la D a la B, solo en las IISS e IIEE se encuentra en el A en la parte de la vivienda.

Estamos utilizando el CVU de noviembre del 2022

02 V A 5 D ALBAÑILERIA 26

METRADOS 02

Todos los pisos cuentan con la misma forma, del primero hasta el tercero, contando con un área de 190. 93 m2, salvo el último piso ya que es usado como azotea, teniendo que contar con área sin techar, contando con 58.78 m2, dando un total de 631.57 m2 de techado

V A 5 D ALBAÑILERIA 27

METRADOS 02

V A 5 D ALBAÑILERIA 28

METRADOS 02

3m 2.71m

Luego en primer plano de detalle del dormitorio, dibujar: El mobiliario, ubicación de puertas y ventanas

PORCELANATO Y CONTRA ZOCALO

En un segundo plano dibujar la colocación del cerámico/porcelanato seleccionado

En un segundo plano se deberá dibujar la distribución del acabado de piso elegido

V A 5 D ALBAÑILERIA 29

METRADOS 02

CALCULO DE ACABADOS Y SU COSTO

1 bolsa de fragua de 1kg para las juntas S/4.20. Se necesitan 4 bolsas S/ 4.20 = S/16.80.

1 bolsa de crucetas de 1mm 100und S/3.70. Se necesitará 1 bolsa x S/3.40 = S/3.70

1. 1 caja de porcelanato de 60x60 cm s/85.60. Se necesitan 8 cajas 8 cajas x S/85.60 =S/ 684.80.

bolsa de pegamento para porcelanato s/28.40. Se necesitan 3 bolsas x S/28.40 = S/85.20.

V A 5 D ALBAÑILERIA 30

ANÁLISIS DE DENSIDAD DE MUROS 02

Debido a que nos encontramos en Zona 4

El valor que tomará "Z", será de 0.45

Como el valor de "N" es el número de pisos del edificio, sabemos que su valor es de 4, ya que es un piso comercial 2 de vivienda y uno que va para la terraza

V A 5 D ALBAÑILERIA 31

ANÁLISIS DE DENSIDAD DE MUROS 02

Debido a que el trabajo principalmente consiste en una vivienda, estamos considerando que es de categoría C siendo parte de aquellas edificaciones que sirven como vivienda, agregando que la parte comercial estuvo abierta a distintas opciones, pero nunca algo como para decir que se encuentre en una categoría superior

Es por ese motivo que el factor U, tiene un valor de 1.0

Estamos trabajando en un suelo intermedio,

El factor de suelo tiene un valor de 1.05,

V A 5 D
32
ALBAÑILERIA

ANÁLISIS DE DENSIDAD DE MUROS

CALCULO DEL ÁREA TECHADA,

Las plantas mantienen la misma forma hasta el último piso por lo que el área libre será igual para todos los pisos, a excepción del cuarto, ya que este al ser una terraza, cuenta con menor área techada

CALCULO DEL ÁREA DE MUROS PRIMER PISO

V A 5 D ALBAÑILERIA NIVEL ANCHO LARGO AREA M2 1 13 15 195 2 13 15 195 3 13 15 195 4 13 15 195 TOTAL 780
02
33

ANÁLISIS DE DENSIDAD DE MUROS 02

SEGUNDO PISO

TERCER PISO

V A 5 D
ALBAÑILERIA
34

ANÁLISIS DE DENSIDAD DE MUROS 02

CUARTO PISO El total del área de los muros por cada piso es 49.54 m2

Tras conocer este dato, el área techada y los valores de ZUSN, podemos sacar el siguiente calculo

Podemos apreciar que el valor derecho es menor igual que el izquierdo, cumpliendo con la norma E.070,

V A 5 D ALBAÑILERIA
35

DISEÑO

V A 5 D ALBAÑILERIA 36

DISEÑO ARQUITECTURA: PLANTAS 02

PLANTA PRIMER NIVEL

V A 5 D ALBAÑILERIA 37
ESCALA 1/100
02 V A 5 D ALBAÑILERIA 38 PLANTA
ESCALA 1/100
SEGUNDO NIVEL
02 V A 5 D ALBAÑILERIA 39
ESCALA 1/100
PLANTA TERCER NIVEL
02 V A 5 D ALBAÑILERIA 40 PLANTA
ESCALA 1/100
CUARTO NIVEL
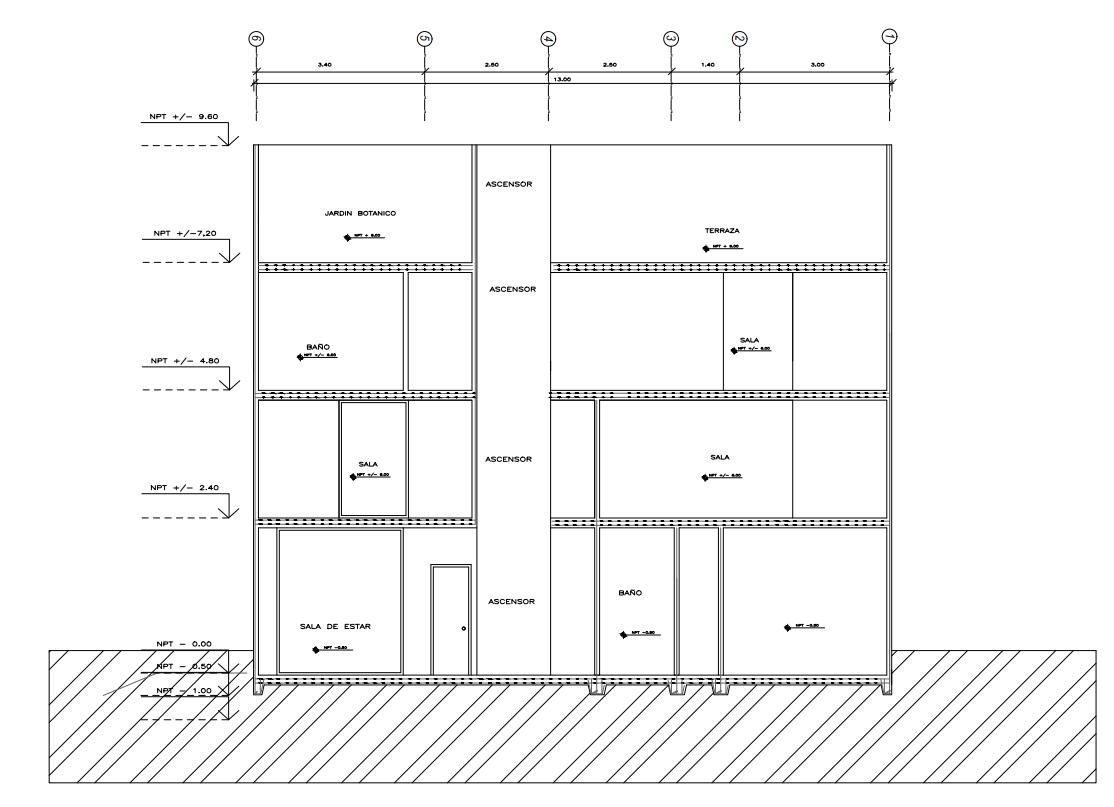
02 V A 5 D ALBAÑILERIA 41 CORTE A A
02 V A 5 D ALBAÑILERIA 42 CORTE B B

DISEÑO ARQUITECTURA: ELEVACIÓN 02

V A 5 D ALBAÑILERIA 43
ELEVACIÓN PRINCIPAL

DISEÑO ARQUITECTURA: 3D 02

V A 5 D
ALBAÑILERIA

03 DETALLES CONSTUCTIVOS

V A 5 D ALBAÑILERIA
45

DETALLES CONSTRUCTIVOS 03

CORTE A A

DETALLE DE CIMENTACIÓN NORMAL

ESCALA 1/25

Traslape del acero

Amarre

Como podemos obserbar en el corte A A de nuestro proyecto, hay dos tipo de cimentación, la que estamos viendo en el grafico del costado es la cimentación normal. Esta se encuentra en los muros del centro y se caracteriza por su forma de trapecio.

V A 5 D ALBAÑILERIA 46
del cimiento con el muro

DETALLES CONSTRUCTIVOS 03

CORTE B B

DETALLE DE CIMENTACIÓN EN ESQUINAS

ESCALA 1/25

Traslape del acero

Como podemos obserbar en el corte B B de nuestro proyecto, hay dos tipo de cimentación, la que estamos viendo en el gráfico del costado es la cimentacióN en las esquinasl. Esta se encuentra en los muros del inicio o final, al igual que la anterior naces de una forma de trapecio pero en la quina inferior de dicha forma se corta.

V A 5 D ALBAÑILERIA 47

DETALLES CONSTRUCTIVOS 03

CORTE A A

DETALLE DE CIMENTACIÓN NORMAL

ESCALA 1/25

Como podemos obserbar en el corte A A de nuestro proyecto, hay dos tipo de cimentación, la que estamos viendo en el grafico del costado es la cimentación normal. Esta se encuentra en los muros del centro y se caracteriza por su forma de trapecio.

Piso de cerámica 30x30

CONCRETO ARMAO 1 10 C AG

Pegamento e:6mm 20cm Refuerzo de acero

CONCRETO ARMAO 1:10 C AG

V A 5 D ALBAÑILERIA 48

DETALLES CONSTRUCTIVOS 03

CORTE B B DETALLE DE ENCUENTRO CON LOSA DE UN BAÑO ESCALA 1/25

En el siguiente detalle notamos que para que pueda entrar un tubo de PVC es necesario tener una losa macisa.

V A 5 D ALBAÑILERIA 49

DETALLES CONSTRUCTIVOS 03

CORTE A A

DETALLE DE CELOSIA ESCALA 1/25

V A 5 D ALBAÑILERIA 50

04 PROCESO CONSTRUCTIVO

V A 5 D ALBAÑILERIA
51

CRITERIO DE SEGURIDAD 04

PROTECCIÓN PARA PIES

Botas de cuero con suela de jebe y punta de acero, con suelas antideslizantes.

PROTECCIÓN DE OIDOS

Tapones u orejeras para proteger los oídos de los ruidos muy fuertes. estos pueden ser desechables o reutilizables.

ROPA DE PROTECCION DE ALTA VISIBILIDAD (CHALECO MAMELUCO)

Diseñada para resaltar la presencia del usuario, con el fin de que sea detectado en condiciones de riesgo.

PROTECCION PARA MANOS

Protegen las manos de astillas, cortes y otros al manipular materiales como cemento, cal, madera, fierro, etc.

PROTECCIÓN RESPIRATORIA

Los respiradores para partículas y los que están elaborados para gases y vapores tienen como finalidad proteger las vías respiratorias de los obreros, cubriendo su boca y nariz.

PROTECCIÓN DE LA CABEZA

Los cascos de seguridad protegen de los impactos y la penetración de objetos en la cabeza. Además, pueden prevenir choques eléctricos y quemaduras.

PROTECCION ANTICAIDA

La protección anticaída consta de un arnés, un anillo dorsal, componente de conexión destinado a parar la caída, y un punto de anclaje.

PROTECCIÓN VISUAL

Las gafas y monogafas de protección resguardan los ojos, tienen que ajustarse económicamente al contorno de los ojos.

V A 5 D
ALBAÑILERIA
52

PROCESO CONSTRUCTIVO 04

Limpieza del terreno 1. 2.Nivelación del terreno

PALA AZADÓN CARETILLA

LÁPIZ WINCHA

Primero se debe de limpiar el terreno, para tener que este esté lo más plano posible

Si solo se cuenta con maleza, se utiliza el azadón para removerla; por otro lado, si la materia es más grande o pesada, se recurre a una maquinaria

Limpiarlo hasta dejarlo sin desechos orgánicos o desmontes

Se coloca un extremo de la manguera en una jarra con agua, aspirando hasta tener la cantidad deseada

Ubicar la medida inicial a 1.5m del nivel del suelo, marcando con un lápiz Repetir el proceso usando la medida del lado de la manguera

02
AGUA MANGUERA TRANSPARENTE
V A 5 D ALBAÑILERIA
53

PROCESO CONSTRUCTIVO 04

3.Trazo y replanteo

ESTACAS WINCHA CLAVOS CORDEL TIZA ESCUADRA

4.Plantea de cimentación

Ubicar las estacas de acuerdo a las medidas del cimiento

Los muros deben estar perpendiculares, apoyándonos con la escuadra

Se traza el perímetro y un poco más de la posición de la platea

Las placas se vacían junto con el techo

AGUA ACERO ALAMBRE COMBA DE GOMA

Sacar una parte del terreno y apisonarlo para que quede bien

La platea queda superficial el ras del suelo

El espesor queda entre 20 a 25 cm

Debe ser construido con malla electrosoldada arriba y abajo, separadas entre 10 a 15 cm

V A 5 D ALBAÑILERIA
54

PROCESO CONSTRUCTIVO 04

5. Excavación manual

6.Solado

PICO MEZCLADORA

CARRETILLA

AZADON

COMBA DE GOMA

La excavación debe de ser de unos 60 a 80 cm de profundidad

Se compacta el terreno hasta que llegue a la altura donde se encontrará la losa

AGUA CEMENTO PALA

Mezclar el concreto en la mezcladora, mínimo 70 segundos

Mojar el área antes de vaciar el solado

55

PROCESO CONSTRUCTIVO 04

7. Vaciado de cimentación

8. Colocación de ejes ARENA GRUESA PALA AGUA GRAVA

CLAVOS CORDEL BALIZA

Humedecer el área, vaciando la mescla de concreto armada

Curar el cemento de la cimentación por 5 a 7 días

El cordel es tensado, definiendo los ejes del proyecto

Con los clavos se sostiene el cordel

Se colocan los dados, con el uso de la plomada sabemos cual será su ubicación

V A 5 D ALBAÑILERIA
56

PROCESO CONSTRUCTIVO 02

9. Colocación de aceros

10. Colocación de malla electrosoldada

FIERROS

CORRUGADOS

Se deja un traslape de 30 a 40 cm con fierro corrugado

Los muros llevan armadura en el primer y segundo piso, mientras que en los pisos superiores se usa una malla electrosoldada

MALLA ELECTROSOLDADA TORTOL ALAMBRE n°9 O 16

Tiene que estar amarrada a los dowels

Se hace un traslape vertical, los refuerzos son distribuidos de 40 a 50 cm, esta se encuentra anclada a la malla por un amarre de alambra

57

PROCESO CONSTRUCTIVO 04

11. Encofrado 12.Vaciado

ARENA GRUESA AGUA GRAVA CEMENTO DADOS DE CONCRETO TENSORES

Se debe de barnizar los paneles del encofrado con liquido desmoldante, de este modo el retiro será más sencillo

En la malla electrosoldada se colocarán dados de concreto, proporcionando una mayor estabilidad cuando se vacie el concreto

Se colocarán tensores diagonales para aumentar la estabilidad

Se mezcla la arena guresa, agua, piedra, cemento y aditivo en la mezcladora

Antes de su vaciado de debe de añadir un plastificante, esto aumentará su fluidez

Con una bomba de pluma, se rellena el encofrado y eliminamos el aire atrapado con el vibrador de concreto

V A 5 D ALBAÑILERIA
58

PROCESO CONSTRUCTIVO 02

ENCUENTRO DE LOSA MURO

La obra cuenta con longitudes libres de espigas, las cuales varían entre 30 y 85 cm, mediados desde la cara superior de la losa. Todas las espigas son cortadas a una misma altura. La longitud de anclaje de las espigas depende de su ubicación en la cimentación. Los anclajes rectos cuentan con una longitud entre 15 y 50 cm. Por otro lado, las espigas ancladas a 90°, las plateas tienen un tramo recto entre 10 y 15 cm y un gancho de 90°.

59

PROCESO CONSTRUCTIVO 04

RECUBRIMIENTO

El recubrimiento entre la cara superior y la malla suele ser de 5 cm, agregando que el recubrimiento suele dejar entre la última capa de relleno y la malla inferior varía entre los 3 a 7 cm.

El espaciamiento que se deja entre la malla superior y la inferior varía entre los 10 y 15 cm. Asegurando un espaciamiento adecuado entre mallas, donde se colocan arcos de acero de separación, conocidos como “burritos”

V A 5 D ALBAÑILERIA
60
02 61
CONSTRUCTIVO VIDEO
(2021, July 4). Muro de Ductilidad Limitada (Proceso constructivo [Video]. YouTube. https://www.youtube.com/watch?v=WRKtzAApNCI
PROCESO CONSTRUCTIVO
PROCESO
JOSHUA PALOMINO.

PROCESO CONSTRUCTIVO 04

Se empieza con la habilitación de los perfiles

Se cortan los perfiles con una tijera de ojalata a una longitud de 2.50m

V A 5 D ALBAÑILERIA
62

PROCESO COSTRUCTIVO DRYWALL 02

Para armar la estructura de tabiques se fijan los rieles usando las herramientas: Wincha, Pistola Neomatica y clavos de 3/4

Se nivela y se fijan los parantes cada 22cm al eje y respetando los vanos usando un atornillador de bateria, el nivel de burbuja, lapiz y tornillos

63

PROCESO CONSTRUCTIVO 04

Se cortan y fijan los contramarcos de madera de rieles y parantes usando: Wincha, lapiz, escuadra de tope, atornillador a batería, serrucho Se nivela y se fijan los parantes cada 22cm al eje y respetando los vanos usando un atornillador de batería, el nivel de burbuja, lápiz y tornillos Para los acabados se fijan esquineros con cita masilla y lija usando Atornillador a batería, plancha, cinta de pape, lana aislante de fibra de vidrio tornillo de una pulgada y esquineros

V A 5 D ALBAÑILERIA
64
PROCESO COSTRUCTIVO DRYWALL 02 65 PROCESO CONSTRUCTIVO VIDEO Sanchez, J. (2021, November 16). G2 TB4 PROCESO CONSTRUCTIVO DE DRYWALL [Video]. YouTube. https://www.youtube.com/watch?v=5II1jYAYAkg&feature=youtu.be

05

APRENDIZAJES

V A 5 D ALBAÑILERIA 66

ALBAÑILERIA

APRENDIZAJE 05

Mi experiencia en el curso de albañilería aportó en gran parte de mi formación como futura arquitecta. El curso me ayudó poder tener una mayor participación en los talleres de construcción y a realizar procesos constructivos, sobre todo del proyecto encargado, de la manera correcta. Agradezco a los profesores alentar mis ganas de seguir aprendiendo sobre mi carrera y a pode ampliar mis conocimientos durante todo el ciclo.

ANA PAULA ALARCON RAMIREZ

La catedra del curso de albañileria me ha enseñado muchas cosas que apezar de tener el conocimiento básico antes no se ha comparado en nada a lo que vivimos en campo, aprendiendo con los materiales, a hacer mezclas y lo que considera que mas me ha ayudado a entender ha sido el proyecto encargado ya que hemos llegado a profundizar en todo para mejorar como arquitectos en un futuro.

JERSON ARANDA

La asignatura me enseño como existen diferentes tipos de procesos constructivos, este ciclo aprendí sobre los procesos constructivos, las normas que se deben de considerar, se puede lograr a distinguir un sistema de otro, por otro lado también se logro calcular los mitrados . la densidad de muros, los cuales nos servirán en en el futuro.

JOSE FELIX HERMOZA OCHOA

El curso de albañilería fue una gran experiencia, ya teniendo los saberes previos de obras, sé que no me puedo relajar desde un comienzo, traté de ser lo más activo en las prácticas de taller, que siento que en eso me desenvuelvo, mas no en conceptos teóricos, comprendiendo que es una de mis debilidades y por la que pase mal la primera etapa del curso. Teniendo un cambio drástico en la tercera unidad, pues empezamos a ver metrados y noté que ya hay más relación con la matemática, siendo de mis fortalezas, aparte de que me gusta todo lo relacionado a números

67
V A 5 D

BIBLIOGRAFÍA:

· La Molina Climate, Weather By Month, Average Temperature (Peru) Weather Spark. (n.d.). https://weatherspark.com/y/21290/Average Weather in La Molina Peru Year Round

· MUROS DE DUCTILIDAD LIMITADA INGENIERÍA SISMORRESISTENTE 2016. (n.d.). https://1library.co/article/muros de ductilidad limitada ingenier%C3%ADa sismorresistente.ye3jl1eq

· Previsión meteorológica mejorada para 14 días. (2022, November 3). Meteoblue. https://www.meteoblue.com/es/tiempo/historyclimate/climatemodelled/la molina per%C3%BA 3937002

·Seguro, J. (2019, February 18). Sigue estos tips de construcción en la configuración de la vivienda. Construyendo Seguro. https://www.construyendoseguro.com/sigue estos tips de construccion cuando hagas la configuracion de la vivienda/

· Sistema constructivo: Placas de ductilidad limitada. (2020, December 7). [Video]. YouTube. https://www.youtube.com/watch?v=q3tdazl7x7s

(2022, November 3). Previsión meteorológica mejorada para 14 días. Meteoblue. https://www.meteoblue.com/es/tiempo/historyclimate/climatemodelled/la molina per%C3%BA 3937002

·DÍAZ FIGUEROA, Miguel Augusto (JULIO 2021) REVISIÓN DE CRITERIOS DE DISEÑO DE EDIFICACIONES CON MUROS DE DUCTILIDAD LIMITADA, ESTABLECIDOS EN LAS NORMAS DE ESTRUCTURAS PERUANAS Y PLANTEAMIENTO DE PROPUESTA DE ACTUALIZACIÓN https://cdn.www.gob.pe/uploads/document/file/2089254/Informe%20de%20la%20revisi%C3%B3n%20de%20criterios%20de%20dise%C3%B1o%20de%20edific aciones%20con%20muros%20de%20ductilidad%20limitada.pdf?v=1629242400

·Granados Sáenz, Rodolfo Valentino; López Wong, Jorge Junior (ENERO 2012) DISEÑO DE UN EDIFICIO DE MUROS DE DUCTILIDAD LIMITADA EN 5 NIVELES https://tesis.pucp.edu.pe/repositorio/bitstream/handle/20.500.12404/1188/GRANADOS_Y_LOPEZ_EDIFICIO_DUCTILIDAD_LIMITADA.pdf? sequence=1&isAllowed=y

V A 5 D ALBAÑILERIA
68

Turn static files into dynamic content formats.

Create a flipbook
Issuu converts static files into: digital portfolios, online yearbooks, online catalogs, digital photo albums and more. Sign up and create your flipbook.