Xinyi Li_2024 Architecture Portfolio

Page 1


XINYI LI

Selected Works 2019-2023

Master of Architecture '24 UCLA School of Art and Architecture

608-421-2991

lixinyi0609@g.ucla.edu

xinyili.net

EXPERTISE

Architectural Design

Interior Design

3D Visualization

Animation

SOFTWARE KNOWLEDGE

•Revit, Rhino, Sketch Up

•Unreal Engine 5, Blender

•Enscape, Lumion, V-Ray

•After Effects, PS, AI, PR

•Midjourney

•Comfy UI, SD, Midjourney

•Stable Diffusion

LANGUAGES

Mandarin (Native)

English (Fluent)

French (A1)

Korean (TOPIK 1)

DESIGNWEBSITE

Architectural Designer XINYI LI

EDUCATION

•University of California, Los Angeles

Master of Architecture | 09. 2021 - 06. 2024

-Graduated With Distinction • Best Final Project Award

-Full-Ride Admission Fellowship • LEED GA

-Two-Year M.Arch & One-Year MSAUD Entertainment

-Cumulative GPA: 3.88/4.0

•University of Wisconsin - Madison

B.S. Interior Architecture & Media | 09. 2016 - 12. 2020

-Cumulative GPA: 3.92/4.0

• Dean’s High Honors, 2017-2020

-Nancy B. Forbes Opportunity Award, 2020

WORK EXPERIENCE

Technical Assistant | 08 2024 - Now

Worked as a Technical Assistant for MSAUD Summer Studios and Tech Seminars, collaborating with faculty members Yara Feghali, Laure Michelon, Tucker Van LeuwenHall, Matt Conway, and Liam Denhamer.

Teaching Assistant | 01 2024 - 03 2024

Assist Prof.Marty Paull in teaching ARCH&UD 432 Structure II Hold office hours, review sessions, and consulting sessions for construction projects and grade assignments

•Skidmore, Owings & Merrill, Chicago, Illinois 2023 Summer Architectural Intern | 06. 2023 -08. 2023

– Oceanarium in the Middle East, Design Development 90%.

Involved in Revit modeling of the facades and developing related CD drawings. – Mixed-use development in America, Master Plan. Contributed to employing strategic planning and collaborative efforts to reimagine and revitalize a prominent cityscape.

•Camelot Interiors - Middleton, Wisconsin

Interior Design Intern | 09. 2019 - 01. 2020

Worked directly with the founder as a lead designer and produced blueprints in Revit and AutoCAD. Attended site visits and client meetings and helped select furniture, finishes, materials, colors and space plans.

•Space Inventory, UCLA Facility Management, UCLA Student Intern | 08. 2022 - 12. 2023

Assisted with UCLA Space inventory services space database and AutoCAD Library. Checked data and updated Space Inventory Website.

•Software Training for Students, DoIT, UW-Madison

Software Trainer | 02. 2019 - 01. 2021

Offered technology training and project support to students and faculty through workshops and individual consultations. Strengthened written and oral communication skills by developing training manuals and delivering presentations.

CONTENTS

3 SHEDS, 2 COURTYARDS

ARCHITECTURAL RENOVATION

CONCRETE FACTORY

Comprehensive Studio, Winter - Spring 2023

Instructor: Narineh Mirzaeian

Site: 1620 19th St, Santa Monica, CA

Building Area: 38,000 sqft

Team: Xinyi Li & Pingting Li

50% Concept + 100% Rendering + 50% Physical Model + 30% Drawings

Softwares: Rhino, Unreal Engine 5, PS & AI

"In the current paradigm shift, we must take a different stance in engaging existing buildings, one that directly confronts the physical and material realities potentials at hand. This studio will challenge to develop a position in engaging an existing building and to imagine a highly specific and detailed project for its next cycle towards an alternative future. This project is to transform an existing concrete factory and create a public facility that will house spaces for research, testing, prototyping, and presenting sustainable building materials. The new program for the site is to be imagined through a rigorous transformation of the existing specifically research the history, properties, sourcing, current utility applications, and potential future trajectory as the main programmatic instigator."

Our building unifies 3 Theds, with the middle one serving as a nod to the original shed and 2 courtyards nestled in between, creating negative shed spaces. The 3 sheds and 2 courtyards provide a horizontal groundscape connecting a multitude of spatial conditions that are necessary for our research focus, which is recycled concrete. It encompasses heavy-duty work spaces such as the process of mixing, collection, sorting, and testing of existing concrete fragments. Also, the “3 Sheds and 2 Courtyards” is able to accommodate staff and visitors, to engage with those moments while maintaining strategic privacy for back-of-house functions. As mentioned, the middle shed of the three sheds coincides with where the initial shed was and our interest is to develop the project by using the original shed’s typology and absorbing it into the new project proposal so that we can refer to the memory of it.

The proposed site is located at the corner of Colorado Avenue and 19th Street in Santa Monica. The site is currently and surprisingly occupied by an active concrete mixing plant, as well as a shed building and is bordered by a stone/marble yard, the metro line and the exposition corridor bike lane. It is a peculiar area of Santa Monica where industrial, institutional, commercial, and residential buildings converge. The site is approximately 32,000 sqft.

The new program for the site is to be imagined through a rigorous transformation of the existing buildings structures on the site. There is also a focus on heightened performance criteria, technical resolution, building assembly strategies, speculative material effects, and novel forms of representation.

Northeast Elevation
Southwest Elevation
Northeast Corner View
Massing Model Three sheds
Courtyards in between sheds
Sinking basement by activating ground
Circulation between three sheds
1/16" Physical Model
Preserved Original Silos

The architectural integrity of this project hinges significantly on the strategic use of trusses, I-beams, and C-beams, particularly critical in the construction of overhangs. The trusses are engineered to evenly distribute loads, preventing stress concentrations that could compromise stability. I-beams are incorporated as the backbone of vertical support, crucial for the upward structure. C-beams play a dual role; they are essential in preserving the structural shape and add an element of visual interest to the building's design, offering a balance between form and function.

These elements synergize to fortify the structure's stability while optimizing the available space, ensuring the overhang is not only functional but also aesthetically engaging. The building's facade complements this with a contemporary dry cladding system, where tiles are neatly secured using clips on steel channels that interlock with the I-beams. This method not only enhances the building's visual appeal with a clean, refined finish but also promises longevity and resilience against environmental factors. Together, these design choices encapsulate a blend of innovation, efficiency, and architectural beauty.

Enlarged Detail Section A'-A Perspective
West Ariel Day View

1/16" Physical Model Public Entrance

Enlarged Detail
Enlarged Detail Section B-B' Perspective

02

KID'S COLONY

HISTORIC PRESERVATION

BEIJING SIHEYUAN

Design Studio, Fall 2021

Instructor: Wei Dong

Site: South Luogu Lane, Beijing Building Area: 14,000 sqft

Individual Work

Softwares: Revit, Enscape, PS & AI

"Historic preservation breaks down into two categories. The first are projects that involve complete reconstruction and restoration with the goal of simulating the original historical structure. The second type applies to projects of adaptive reuse or repurposing for which preservation guidelines require a clear distinction to be made between the new and the original so as not to disturb or alter the identity of the original. For the second, subtle alterations or updates are regarded to contaminate the authenticity of the original.

Both types of preservation freeze the past rather than permit it to continue as a living tradition. To the extent that it converts architecture into unchanging artifacts, preservation turns buildings into works of art, stored in cities and landscapes as if they are in museums."

My hypothesis is that Beijing Siheyuan can be converted into a kid's colony that reawakens the historic site as a living tradition in the present but one that extends and transforms many of the cultural and artistic practices of the Siheyuan.

Rooms Courtyards HuTong Street

Siheyuan, literally meaning quadrangle in Chinese, refers to a courtyard enclosed on all four sides. This type of residence has a history of over 2,000 years and was commonly found throughout China, especially in Beijing. In a typical courtyard compound, there could be one to five courtyards surrounded by singlestory rooms facing different directions.

In this project, I am studying the Siheyuan with four courtyards and specifically its traffic circulation . The goal is to take the essence of this element and transform it into an architecture that not only reawakens the historic site as a living tradition in the present but also thrives in the future

There are four main types of traffic circulation in Beijing Siheyuan, which are detach, delay, detour, and assemble. First, there are two parts of the axis detached from the central symmetry axis of the Siheyuan, which causes a not completely symmetrical space. Second, the circulation of Siheyuan is delayed by different programs on the path.

Third, Siheyuan doesn't go for the overall efficiency of the traffic flow. Instead, it focuses on experiences and requires users to make detours. Lastly, Siheyuan creates certain spots throughout the space to assemble traffic in order to emphasize the importance of family reunion in Chinese traditional ideology.

Site Location

South Luogu Lane (Nan LuoGu Xiang), is located in the Dongcheng District of Beijing. It's a historic alley known for its traditional hutong architecture, now a popular tourist spot with a mix of shops and cafes. As Hutong has become more popular so it is highly commercialized. In Nanluoguxiang, children represent 17% of the local population.

However, they can only have access to only 6% of the land for outdoor activities, which translates to about 15 square feet per child. This figure falls significantly below the average outdoor space allocated for children in OECD countries. Addressing this disparity, my overall design aims to enhance the availability of activity areas for children and their families, enriching their indoor and outdoor experiences.

First Floor

a. Main Bedroom
b. Kitchen
c. Restroom
d. Living Room
e. Second Bedroom
g. 1st Courtyard

Second Floor

a. Children Activity
b. Walk-in Closet
c. Main Bedroom
d. Living Room
e. Kitchen
f. Restroom
g. Second Bedroom
h. 2nd Courtyard
Roof
a. Playground (3rd Courtyard)
Entrance

03

GRAVEL FILTRATION SYSTEM

LANDSCAPE + ARCHITECTURE

Core Design Studio, Fall 2022

Instructor: Garrett Ricciardi

Location: 19th Fairway, LA Country Club, Los Angeles, CA

Team: Xinyi Li, Jocelyn Urbina, Thomas Koyama

35% Concept + 80% Representation + 20% Physical Model

Softwares: Rhino, UE5, PS & AI

"Our project reconsiders the LADWP power substation so as to perform two seemingly incongruous roles. As with any such facility, the building must serve to separate large assemblies of sensitive, dangerous equipment from public access. At the same time, our buildings should also provide selected public admittance, including a defined user experience toward greater public awareness of Los Angeles’ relationship to water. Owens Lake now ranks among the most successful examples of best practices regarding remediation of water-denuded landscapes, presenting a set of entirely synthetic terrains and techniques for their management. Our demonstration gardens, then, work toward bringing LADWP’s remote operations at Owens Lake closer to the city and citizenry it serves. Thus, the design problem is threefold, one that involves building design, landscape design, and urban design."

Carrying the mission, our gravel filtration system is to use gravel to demonstrate contaminated landscape of neighboring golf course, such as polluted runoff from pesticides, fertilizers, and colorings. We take gravel basins as filters to capture these particles in retention basins.

01 Use the topography to create several zones for the gravel retention basins.

02 Divide the site with the golf course to the east and our intervention to the west.

03 Landscape channels direct runoff from the adjacent golf course.

Leveraging gravel's natural filtration ability, our design features gravel basins to cleanse runoff from the adjacent golf course, while sculpted gravel slopes form channels and retention areas that delineate the boundary between the golf course to the east and our environmental enhancement to the west.

i ii Parking Parking Parking Medium Long Circulation Long Circulation iii Short Circ. Medium Circ.
Finest Gravel Filter Section 1/32" = 1'-0"
Medium Fine Gravel Filter Section 1/32" = 1'-0"
Large Gravel Filter Section 1/32" = 1'-0"
Largest Gravel Filter, Section 1/32" = 1'-0"
Inside Basin
Building Bar Extending to Golf Course
Inside Culvert Channel
Building View from South
Path on the Golf Course
Building View from South

Our design integrates channels into the golf course landscape to direct runoff into retention basins, utilizing a gradient of gravel sizes for effective water filtration. This system is essential during heavy rains, with elevated paths providing the only walkable routes. We've contrasted the vast openness of the gravel fields with the enclosed feeling of the culverts for diverse landscape experiences.

The building's design emphasizes circulation, with intersecting bars creating varied routes and experiences. These bars allow visitors to explore from the parking lot to the basins and back, offering choices in travel time. Their intersection creates dynamic spaces, and they smartly encircle equipment areas for safety and visual engagement.

Building Physical Model Top View
Site Model Top View
Lower Floor Plan
West Buidling Section

04

MEMORIAL LIBRARY

INTERIOR RENOVATION

Interior Design Studio V, Fall 2020

Instructor: Brooke Godfrey

Site: 728 State St, Madison, WI

Building Area: 25,000 sqft

Individual Work

Softwares: Revit, Enscape, PS & AI

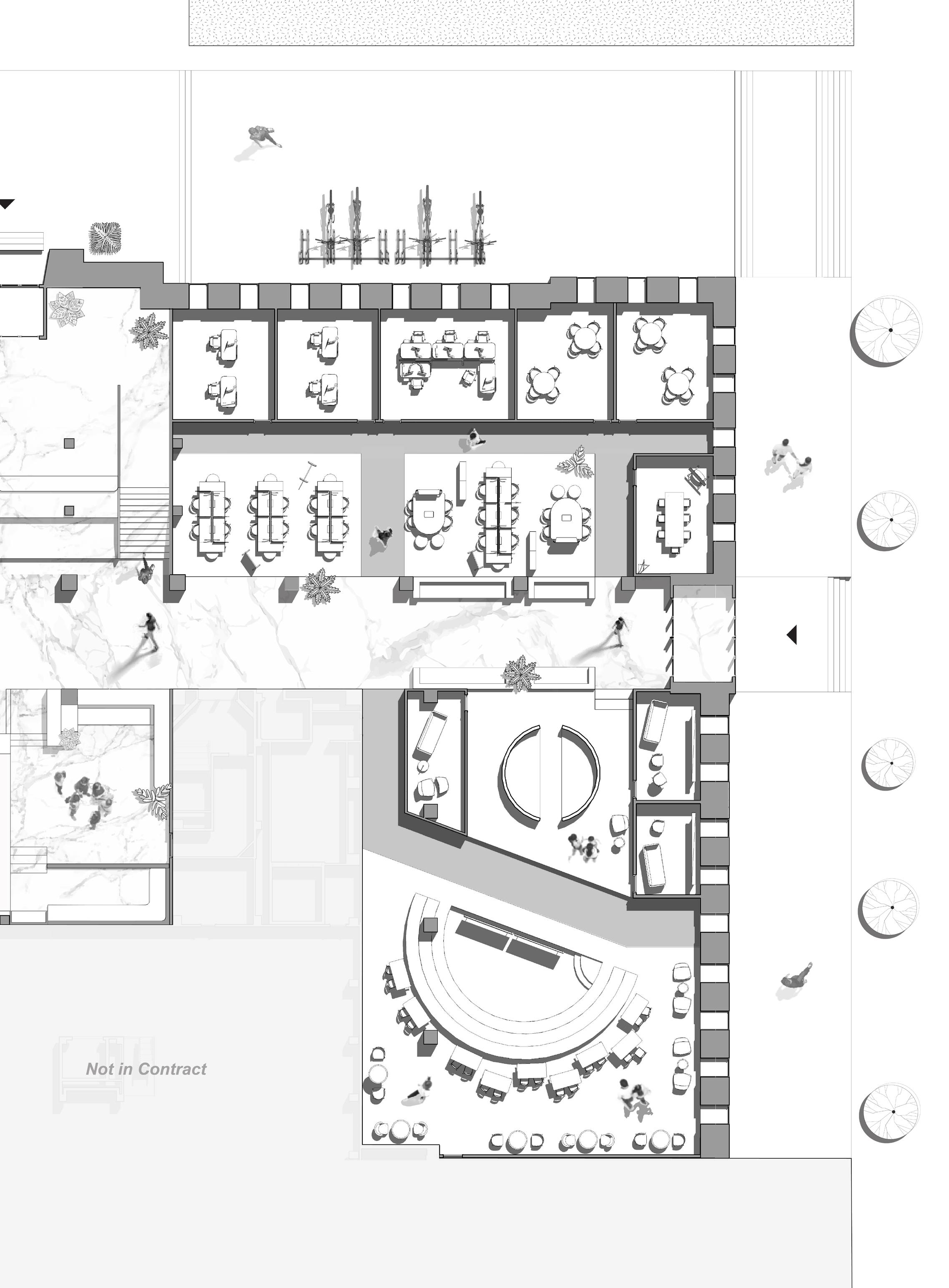
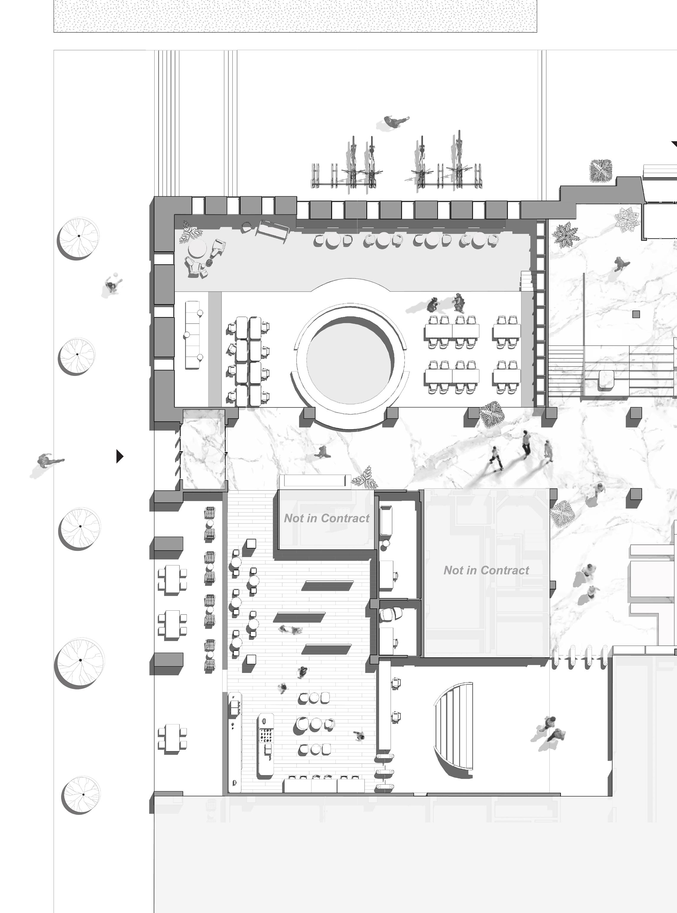
Memorial Library is located at the corner of Lake Street and State Street; it faces the University Bookstore and is surrounded by several important landmarks, such as Wisconsin State Historical Society, Red Gym, Chazen Museum of Art and Memorial Union. The mission of this project is to redesign the west corridor on the ground floor of the Memoral Library and spaces adjacent to it.

My goal of this renovation is to transform the library from a simple destination on campus into part of the urban surrounding by creating an urban corridor with a three way intersection. It is aimed to become a major campus pathway that could gather people together by offering different programs and generating serendipitous encounters. Also, considering the future of the 21st century library, I redefine the space by consolidating the existing and new programs and reshuffling them into five new categories so that the design could achieve flexibility and incorporate new technology. In order to keep the memory of the Memorial library and its history that uniquely belong to UW people, I preserved the marble element and reused it in the urban corridor design.

Memorial Library, the biggest library at UW-Madison, was first constructed in 1953 and underwent two major renovations and expansions in 1974 and 1990. Due to its central location in the city, Memorial Library is always a "hot spot" almost impossible to miss. Now the library is over 350,000 square feet, able to host 2,370 people and serves over one million guests per year. The university has planned to renovate the west corridor on the ground floor in order to better meet the needs of 21st century library. This is a picture of the hallway in the west corridor, looking towards the north. The space features with pink brownish marble columns and green marble floors with some customized design wood furniture.

Nestled among educational, commercial, and residential spaces, the site is a focal point of campus activity, often contending with traffic flow challenges. Research reveals a peak in Memorial Library's usage between noon and 6 pm, with a significant drop in the evenings. The renovation aims to revitalize this underused time by introducing diverse programs and attractions, enticing the campus community to utilize the library's offerings into the later hours.

Lake Mendota

The current single entrance to the Memorial Library at UW-Madison on the south side contributes to increased traffic congestion on State Street and often results in queues forming outside the library, creating inconvenience. Introducing an urban corridor can alleviate these issues by redistributing foot traffic across three access points, thus enhancing convenience for library patrons. Additionally, this corridor would serve as a new artery within the campus's network of pathways, fostering unexpected social interactions through a variety of programs.

The reimagined space is strategically segmented into five functional areas: the Urban Corridor, Study, Meeting, Service, and Entertainment zones. This thoughtful arrangement not only streamlines space utilization but also crafts distinct ambiances and experiences within each zone, reflecting the diverse needs and rhythms of campus life.

Original Traffic
Program Reshuffling
Open Study
Cafe

The Intensions of having the Urban Corridor and an open floor plan without load-bearing walls dividing the interiors are to achieve flexibility of the space and also encourage serendipitous conversations and connections between students, faculties, and other users. Thus, the renovation of Memorial Library not only supports different needs but also draws on coll ective wisdom.

West Corridor Section
North Corridor
East Corridor

TRIO-OASIS

URBAN PLANNING

MIXED-USE URBAN DESIGN

ULI Hines Competition, Winter 2024

Instructors: David Gerard Gouverneur Malakoff

Site: King County, Seattle

Teammates: Jingyi Cai, Shuting Li, Hongyi Li, & Yixuan Zhou (UPenn)

Responsibilities: Design Narrative, Building Facade Design, Rendering & Implementation Framwork

Softwares: Rhino, UE5, PS & AI

The "Trio Oases" urban planning concept envisions a transformative future for Seattle's Civic Campus, grounded in three foundational pillars: Connectivity, Equity, and Sustainability. This visionary framework seeks to intertwine historical heritage with contemporary and future advancements, creating a dynamic urban tapestry. The Connectivity Oasis emphasizes forging a cohesive narrative across time and space, enhancing community bonds through pedestrian-friendly streets, and integrating transportation hubs for broader regional access. The Equity Oasis is dedicated to crafting inclusive spaces where diversity is celebrated, ensuring universal accessibility, and addressing the needs of the most vulnerable through supportive environments like transitional housing. Meanwhile, the Sustainability Oasis champions ecological integrity alongside economic growth, featuring energy-efficient designs, rainwater harvesting, and green spaces that invite nature back into the urban landscape. Together, these oases not only aim to revitalize the physical environment but also to foster a sense of belonging, resilience, and shared prosperity among the community members, setting a new standard for urban living.

* The 2024 ULI Hines Competition focuses on reimagining a site in Seattle, King County, with an emphasis on sustainability, inclusivity, and resilience. Teams are tasked with creating innovative urban designs that integrate with Seattle's unique landscape, addressing key issues like green spaces, housing, and community connectivity. The Award will be announced in April, 2024.

Multi-Layered History, One Shared Future

Unbalanced Housing Supply

Connectivity: Expanding Mobility Network

Rigional Analysis - Site Context & Existing Problems

Connectivity: Expanding Mobility Network

Trio Oases

Nurturing Harmony in Urban Living

"Trio Oases" embodies the dream of a community where balance, equity, and nature converge to create not just living spaces, but a nurturing ground for both the souls and the environment. This reparative project is grounded in three core concepts. Connectivity Oasis is a fusion culture TOD hub based on Courthouse and the future Sounder station. Equity Oasis is two high-rise residential complexes connected by a community courtyard that includes affordable housing and educational resources. Sustainability Oasis is a series of green corridors connecting the waterfront space, Pioneer Square, with historic sites, neighborhoods, and across highway barriers.

The implementation of "Trio Oases" is a dialogue—a conversation that evolves with the voices of its inhabitants. It's a commitment to a living urban ecosystem that adapts, grows, and heals, offering a shared narrative that echoes the diversity and resilience of its people. "Trio Oases" isn't just a project; it's a promise of a future where every facet of urban life flourishes in harmony.

Geo-Projections Framework

CONNECTIVITY OASIS

Bridging the past, present, and future together to create a cohesive urban narrative .

Trio Oases is a dynamic urban space that blends history with modernity, encouraging community engagement. Its design offers a visually stimulating experience and improved pedestrian access, while a new subway station extends regional connectivity. This hub symbolizes the fusion of time, space, and community.

EQUITY OASIS

Fostering an inclusive environment where quality spaces are affordable and accessible for the all.

Trio Oases champions inclusivity by blending tranquil natural spaces, like the Oasis Path, with diverse cultural elements and universally accessible amenities. It transforms the Adult Detention building into a communal art pillar, reflecting diverse community voices. The design prioritizes social equity, offering economically accessible living, transitional housing, and essential services such as a homeless resource center and employment center. This holistic approach fosters a welcoming place for all, promoting interaction and understanding across different groups, and laying the groundwork for a cohesive, inclusive urban future.

SUSTAINABILITY OASIS

Harmonizing ecological integrity with economic and industry vitality in urban development.

Trio Oases blends sustainability with urban life, using oasis-inspired designs for energy efficiency, rainwater use, and green spaces. It combines ecological solutions with vibrant community hubs like galleries and cafes, fostering both environmental and social well-being. This project sets a new standard for sustainable, inclusive urban development.

Equity: Sponsoring Housing Supports

Sustainability: Weaving Green Amature

Site Plan

1. Spatially, we connect the Pioneer Square to the other side of the viaduct through a smooth landscape axis.

2. Historically, there are three important nodes on the landscape axis, which respectively represent Seattle's melting and integration in the early 20th century, the evolution of public services in the mid-20th century, and now and a future community that will be gradually established in the future. It starts from the Pioneer Square which represents the heart of the city's early development at the end of the 19th century.

3. Socially, we hope to create green public spaces with different uses for local multi-ethnic and multi-cultural groups so that they can have more connections.

Trio Oases Crafting a Coherent Future for Seattle Civic Campus with Connectivity + Equity + Sustainability

Equity Oasis
1/16" Chunk Physical Model

06

HOUSE TO HOUSING

RESIDENTIAL APARTMENTS

Building Design Studio, Spring 2022

Instructor: Yara Feghali

Location: Los Angeles, CA

Individual Work

Softwares: Rhino, C4D, PS & AI

This housing project is to create a stair-stepped village in a busy urban context of Los Angeles. The main design focus is to set a simple rule to build an environment that can maximize both residents' individual and communal experiences. The site is located near the Westwood area and the target residents could be anyone who is single or has families with or without children. The flag lot helps make the village private and make it a retreat from stress and pressure and an oasis or a paradise that is rarely found in today’s urban neighborhoods. Also, the flag lot can shield the village from noise or gas fumes from traffic and the roads.

In order to create a real village, there are many diversities in unit design. Different units are designed for people and their various needs. In addition, 20 doors are all accessible from the ground floor. Each household has access to the resources of the whole village and the public programs connect people together even though they are living in separate houses. You can have a party together in the courtyard and then grab a cup of coffee. Or watch a movie in the theater and then give an improvisation performance. Go to the gym together or play around the swimming pool! Send your kids to childcare when you need to go to work. All in all, I intend to help people here really create a community and live better together.

Program Diagram
IV.Redefine Roof
III.Position

Second & Third Floor Plan

SOUTH ELEVATION

1/16” = 1’-0”

Scale:
Scale: 1/16”=1’0”

South Elevation

07

NEXT HUB

COMMERCIAL EDUCATION INTERIOR DESIGN

Interior Design Studio III, Fall 2019 Instructor: Mark Nelson, Jenny Meyers Site: 1000 F St, Washington, D.C. Building Area: 13,000 sqft

Individual Work Softwares: Revit, Enscape, PS & AI

NEXT HUB is a cutting-edge higher education learning institution located in 1000 F Street, Washington, D.C. 20004. It is in the center of DC's East End/Penn Quarter Neighborhood near a major metro station. The space is suited at the top of two levels of a boutique building.

NEXT HUB has a vision to increase its reach into a large urban population of all ages to gather, connect, explore, and engage in active and diverse educational experiences. It believes that adults in this city need convenient ways to grow, improve, and stay relevant in the market. Thus, it would be a place for students and current workers who are enrolled in online coursework to gather and engage with others doing the same. Also, it would help adult learners who might not be able to afford or juggle childcare to further their education. Also, the design concept of NEXT HUB is to allow each person to create their own learning journey which is achieved by three spatial elements: Layers of Visions, Filter of Transparency, and Period of Pause.

* Honorable Mentioned for Next Student Design Competition at UW-Madison

Site Analysis 10th & 11st Floor

Evidence Based Research

Lobby

OTHER WORK

I. Wood Joint

Computer 220, Fall 2021

Insturctor: Julia Koerner

Camille Castillo, Ryotaro Okada, Xinyi Li, Zanira Sandhu

CNC Model + Paper Model

Softwares: Rhino, CNC & Laser Cut

This joint is a mutant derivative of Zaha Hadid's Heydar Aliyev Centre in Baku, Azerbaijan. After close reading of the building's sections and plans we asvertained that the building's geometries are composed by a system of undulating offset curves moving interiorly. These continuously offset curves inform the structure's resultant voided spatial interiors. We decided our joint would be a contra to this system. These "test joints" markedly mimicked the Heydar Aliye Centre's undulating curved edges, however, then existed as their own solid geometries and not voided spatial consequences of offset curves. We developed our final joinery as a foil to the Heydar Aliyev Centre's spatial conditions from these observations. The final joinery was achieved through a process of curved extrusions, intersections, and various Booleans-carving out the disrupted volumes caused by the solid pushing into each other. Without offsetting the curves from the solid extrusions, the volumes begin to disrupt one another's geometry at their intersections. Insofar, the geometries emerging from the solid's volumteric disruptions inform the joint's interlocking moments.

CNC

Axonometric Folding Instructions

Axonometric Folding Instructions

Scale: 2” - 1’-0”

Axonometric Folding Instructions

We faced with the same challenge of the double sided curves with paper model. Being precise and accurate with our isocurve calculations was crucial to achieving the perfect form. Through the use of aligning dowels and keeping the top and bottom surface aligned. we were able to "wrap" the paper arond and though it was tricky, we were able to achieve our goal of keeping the hugging effect of the forms, both in paper and wood model.

Stop Motion

OTHER WORK

II. FILM MONTAGE - "AC Hotel"

Short Documentary, 2020 Spring

Cinematographers: Boya Liang & Xinyi Li

Editor: Xinyi Li

Softwares: Canon 6D Mark II, Adobe Premiere

The visual tour of the AC Hotel in downtown Madison was part of my research for a hospitqlity project. After a brief tour, I compiled the footage into a montage to highlight the hotel's design features. This montage technique is carefully orchestrated to forge a narrative linkage between discrete objects and areas within the hotel, effectively varying the visual rhythm and pace to craft an engaging and cohesive portrayal of the hotel's ambiance. This editing approach connects unrelated objects and varies the tempo, creating a unique visual experience of the space. The video not only showcases the hotel's architecture but also demonstrates the transformative power of editing in presenting architectural spaces in a novel and engaging way.

09

"Oceanarium"

I. Large-Scale Aquarium

Internship Work at Skidmore,Owings & Merrill, Chicago

Time: 06.2023 - 08.2023

Location: Middle East

Team: Team of 5 with 2 leaders

Role: Facade Design Details, Revit Modelling.

I involved in the Revit modeling of the façades, contributing to the development of construction documents as we approached the critical Design Development 90% submission deadline. Collaborating in a dynamic team of five, under the guidance of two experienced leaders, I improved my technical skills in architectural modeling and enhanced my ability to work effectively in a high-stakes, fast-paced environment. This experience also ingrained in me the importance of precision and teamwork in bringing complex architectural designs to fruition.

Ariel Perspective Rendering from Internet

"Metropolitan Heights"

II. Mixed-Use Development

Internship Work at Skidmore,Owings & Merrill, Chicago

Time: 06.2023 - 08.2023

Location: United States

Team: Team of 6 with 2 leaders

Role: Master Plan, Revit Modelling, Massing Rendering

My responsibilities involved site analysis and planning strategies, working within a team of six, including two project leaders, to deliver a multifaceted design solution. The project encompassed a diverse mix of office spaces, residences, retail shops, parking, and condominiums. Also, I was actively involved in presentations, offering critical insights that helped shape the project's direction. This role allowed me to significantly develop my skills in synthesizing client needs with innovative urban design, contributing to the reinvigoration and transformation of a key urban district.

Turn static files into dynamic content formats.

Create a flipbook
Issuu converts static files into: digital portfolios, online yearbooks, online catalogs, digital photo albums and more. Sign up and create your flipbook.