2025 MFA Thesis

Page 1


LABORATORY OF FUN

2024-2025

XINXIAO HUI

Framing Objects as Interior Subjects: An Objectively Fun Palace for Resetting the Relationship between Humans and Things by

A thesis submitted in partial fulfillment of the requirements for the degree of Master of Fine Arts in Interior Design, School of Design

Pratt Institute October 2025

Framing Objects as Interior Subjects: An Objectively Fun Palace for Resetting the Relationship between Humans and Things by

Received and approved:

Chairperson: David Foley

Advisor: Edwin Zawadzki

ACKNOWLEDGEMENTS

I would like to acknowledge and give my warmest gratitude to my thesis advisor Edwin, whose invaluable guidance and advice carried me through all the stages of this thesis. My sincere thanks also go to all the professors I encountered throughout this program. Each of you has contributed to my study.

I am also sincerely thankful to the friends I’ve met throughout this program. Your companionship, encouragement, and shared moments of joy have meant a lot to me.

A heartful special thanks goes to my parents and partner for their continuous love, support and understanding, they are what sustained me this far. The initial idea for this thesis was inspired by my personal growth, and it was my family and life experiences that sparked and shaped that inspiration.

These past six years at Pratt Institute have been an incredible journey filled with growth, learning and unforgettable experiences—none of which would have been possible without the presence and support of everyone mentioned above.

CHAPTER 01

a. Thesis Statement

b. Abstract

c. Research Statement

CHAPTER 02: RESEARCH SOURCE BIBLIOGRAPHY

CHAPTER 03: PRECEDENT ANALYSIS

Precedent Analysis Part I Same Bed Different Dreams

Precedent Analysis Part II Monogram

Precedent Analysis Part III Little Bear, etc.

Precedent Analysis Part IV Home within Home

Precedent Analysis Part V House

CHAPTER 04: CASE STUDIES

Introduction

Case Study Part I Recycled System: Kamikatsu Zero Waste Center

CHAPTER 05: PROGRAMING AND USER GROUPS

Introduction

Objects and Workshops Categories

Conclusion

CHAPTER 06: SITE DESCRIPTION AND DOCUMENTATION

Introduction Site Analysis

CHAPTER 07: FINAL THESIS DESIGN SCHEME

Axonometric Guide

Plans

Plan and Program Diagram

Object Elevator: Vertical Circulation

Object Hospital: Workshop

Object

Object

Object

a. THESIS STATEMENT

Framing objects as subjects rather than passive elements within the interior allows access to latent narratives embedded within the animate and inanimate users alike, and encourages reflection, cultural evolution and sustainable practices in the face of the moral injury of overconsumption and waste.

Figure 1.1 | Mindmap, Diagram by Author

b. ABSTRACT

Objects are not static; their meanings evolve through human interaction, transforming from mere possessions into carriers of memory, identity, and cultural significance. Interior design can function as a “laboratory of fun”—a space that invites playful and creative interactions with objects. Through spatial design, movement, and display, interiors can reshape how people perceive and interact with objects, encouraging reinterpretation, emotional connection, and sensory exploration. By framing objects as active participants rather than passive elements, interior design fosters revaluation of objects and their relationships with people.

Interior design can manipulate and extend the life cycles of objects, not only demonstrating but actively shaping their transformations to enhance both individual well-being and global sustainability. Artist Song Dong’s installation Waste Not1 exemplifies this concept

1 Song Dong, Waste Not, June 24–September 7, 2009, Museum of Modern Art, accessed September 10, 2024, https://www.moma.org/calendar/exhibitions/960.

by showcasing his mother Zhao’s collection of saved belongings—items often dismissed as “trash.” The installation demonstrates how such waste items can serve as carriers of memory, connecting individuals to their past and reinforcing cultural identities. Similarly, Sara Anmed’s “Using Things”2 explores objects’ ability to transform their roles. Transitioning beyond their original purposes while retaining significance through reinterpretation or new functions. Whether as memorials or practical tools, objects are continually reshaped by the meanings and interactions people attribute to them.

Building on these ideas of nostalgia and material meaning, the design repurposed forgotten objects to encourage reflection and cultural preservation while addressing overconsumption and loss.

The program proposed to test this is a sustainable model for reclaiming and reinter-

2 Sara Ahmed, “Using Things.” in What’s the Use?: On the Uses of Use, Durham: Duke University Press Books, 2019

preting these objects through a process of Collect, Restore, and Revive: items are gathered, stored, and displayed to share their stories; restored to regain functionality or aesthetic appeal; and eventually passed to new owners, extending their life cycles and purposes. This method creates an environment that connects people to the history of these objects, while renewing their significance for the future. To further explore how space can emphasize objects and shape interactions, the project includes interactive prototypes for human and object, experimenting with ways to engage users in both spatial and material experiences.

The proposed site is in Williamsburg, Brooklyn, a neighborhood that has shifted from an industrial, working-class area to a hub of luxury living and high-end retail. This transformation has led to significant waste, which the project seeks to address by reclaiming and repurposing discarded objects. Inspired by the sectional events of Sir John Soane’s Museum3 ,

3 John Soane, Sir John Soane’s Museum, London, UK,

the building features a long, narrow layout and a front-facing glass facade, inviting visitors to explore its layered interior. The spatial arrangement guides them through the transformation of objects, illustrating their life cycles and potential for reinvention. While Williamsburg serves as an example, the program is adaptable to any location in need of a sustainable recycling system.

1792–1824, operated as a public institution and historic house museum under an Act of Parliament since 1833, accessed October 27, 2024, https://www.soane.org.

c. RESEARCH STATEMENT

The nineteenth-century conceptions of space, after having evolved for several hundred years during the age of mechanization, became defined much less by the plan and sectional volume and more by the objects within…Space has become neutral, a backdrop for the smaller designed objects that began to dominate our lives

—Frank

Jacobus, “Toward the Immaterial Interior,” 2018

The Issue

Building on the concept of the life cycle of “useless” objects—such as items from events like death cleaning, relocation, broken or outdated belongings, and childhood keepsakes— this research examines how interior design can reframe their value and extend their life cycle. Though no longer functional, these objects often hold emotional significance, making them difficult to discard. In essence, the project addresses the dilemma of how people can manage the excess of easily obtainable items that are hard to let go of in an era of overconsumption.

The Meaning of Objects

Objects’ Value and the Need for Revaluation

In “Inhabited Space: Critical Theories and the Domestic1” Interior Alexa Winton draws on the work of Walter Benjamin, stating, “For Benjamin, the collector ‘is the true resident of the interior,’ and the interior itself is the ‘étui of the private individual’”. The collective objects within a living space serve as expressions of personal identity. Objects carry multiple meanings; in addition to their practical function, they are often imbued with psychological significance.

This idea is further explored by Mark Kingwell writes in “Tables, Chairs, and Other Machines for Thinking2” that “Tables and chairs don’t just make us think about function

1 Alexa Griffith Winton. “Inhabited Space: Critical Theories and the Domestic Interior.” in The Handbook of Interior Architecture and Design, 2013, 40–49.

2 Mark Kingwell, “Tables, Chairs, and Other Machines for Thinking,” in Intimus, 173–79 (London: Routledge, 2002).

and form and politics. They don’t just provide us with a handy platform for our own thoughts. They also make us think about thinking.” Kingwell extends the notion that furniture or objects do more than fulfill a practical purpose; they inspire new aesthetics, functions, considerations, and even entertainment. Both Winton and Kingwell highlight the significance of objects not just in terms of utility, but in their ability to provoke deeper contemplation. Objects play important roles in shaping our environments and minds.

Figure 1.2 | Waste Not, Song Dong https://www.moma. org/calendar/exhibitions/960.

Chinese artist Song Dong’s installation

Waste Not3 (Figure 1.2) is a manifestation of Mark Kingwell’s idea. The work showcases items saved by his mother, Zhao, who, influenced by the Cultural Revolution, followed the “waste not” principle, keeping even small everyday items like soap bars, fabric scraps and loose buttons until her passing in 2002. This

3 Song Dong. Waste Not. Museum of Modern Art. June 24–September 7, 2009. Accessed September 10, 2024. https://www.moma.org/calendar/exhibitions/960.

exhibition illustrates how objects connect people to their past, evoking memories for both the owner and viewers with shared cultural backgrounds. These objects offer comfort and reinforce cultural identity.

While these items may appear trivial or obsolete, the installation reveals how such objects become vessels of memory, identity, and emotional resonance. Waste Not not only honors Song’s mother but also commemorates a vanishing era in Chinese history. Its power lies in demonstrating that the meaning of an object extends beyond its utility; it is formed through the relationships, stories, and historical contexts it carries.

Kingwell’s notion that furniture and objects can evoke philosophical introspection resonates with Song Dong’s work, where the act of preserving and recontextualizing “trash” challenges our understanding of “useless objects”. Together, their ideas highlight the psychological and cultural depth embedded in the material world, and how, when humans assign meaning, the overlooked can be elevated into something profoundly meaningful.

Objects Serving as Expressions of the Past, Whether Individual or Collective

Winton also references historian Daniel Roche’s History of Everyday Things4 in his article, suggesting that furniture reflects the social changes of different periods, serving as a

record of culture and history. Similarly, the article “Everyday Life, Objects, and Nostalgia5” explores how objects can serve as sites of recollection: “Modes of recollection vary amongst different cultures, communities, groups, families, and age groups. At the same time, the original use of the object changes: the object becomes the site of recollection, an expression of the past or an individual or collective past”. The authors emphasize that objects express the past on both individual and collective levels. Although they may no longer serve a practical function, objects retain cultural significance and sentimental value, symbolizing personal and shared histories while fostering connections between individuals, communities, and their pasts.

Figure 1.3 | The Yellow House, Illustration by Richard McGuire, https://www.newyorker.com/magazine/2015/08/24/the-yellow-house

4 Alexa Griffith Winton. “Inhabited Space: Critical Theories and the Domestic Interior.” The Handbook of Interior Architecture and Design, 2013, 45.

5 Pirjo Korkiakangas and Jason O’Neill, “Everyday Life, Objects, and Nostalgia,” Studies in Folk Culture 3 (2004): 113–29.

This idea is illustrated in Sarah M. Broom’s The Yellow House6 (Figure 1.3) where the author weaves her family’s memories about their old destroyed home into descriptions of everyday objects, such as the table, porta potty, and liver cheese. These descriptions evoke a deep attachment to their lost home, emphasizing enduring ties to memory and community. These objects serve as long-lasting symbols of the home and community lost in Hurricane Katrina. The Yellow House, though physically destroyed, lives on through these objects, reflecting the powerful role items play in preserving history and cultural identity.

The Transformation of Objects Objects’ Ability to Transform Their Roles

The meanings of objects are not static. They have the ability to transform their roles, whether transforming from functional items to artworks, as seen in Song Dong’s installation, or even adopting new unconventional functions beyond their original purposes. In “Furnishing the Primitive Hut: Allan Wexler’s Experiments Beyond Buildings7” Betsky discusses how Allan Wexler “misread” architecture and furniture to create artworks that redefine the meaning of conventional building elements and furniture. Wexler’s approach challenges traditional concepts of architecture and objects by using unconventional materials and methods. His bold experiments highlight how the roles of objects

6 Sarah M Broom. “The Yellow House: A Memoir.” inNew York: Grove Press, 2019.

7 Aaron Betsky. “Furnishing the Primitive Hut: Allan Wexler’s Experiments Beyond Buildings.” in Toward a New Interior, 199-211. 1999.

are shaped by the ways people interact with them.

Wexler’s Twelve Unfolding Chairs8 (Figure 1.4) further explores this transformative potential by abstracting architectural elements and furniture. These works emphasize the objects themselves — architecture elements or chairs — rather than their utilitarian purpose or habitation. Wexler invites viewers to reconsider the relationship between form, function, and meaning, demonstrating how chairs can transcend their traditional roles to be more abstract by his “misread” interpretation and intervention.

Figure 1.4 | Twelve Unfolding Chairs (1998), Allan Wexler, http://www.allanwexlerstudio.com/projects/ chairs

This idea of object role transformation is further demonstrated in Sara Ahmed’s “Using Things9” wherein Ahmed examines how objects transform over time. Ahmed cites Igor

8 Allan Wexler. Twelve Unfolding Chairs, 1998, www.allanwexlerstudio.com/projects/chairs. Accessed 18 May 2025.

9 Sara Ahmed, “Using Things,” in What’s the Use?: On the Uses of Use (Durham: Duke University Press, 2019).

Kopytoff’s theory: “To offer a biography of things is to follow them as they move through different hands, contexts, and uses”. The history of objects, or their “biography,” is shaped by their changing uses and owners, revealing the evolving relationship between humans and the material world. Objects are reshaped by the meanings and interactions people assign to them. For example, Ahmed describes an unused mailbox repurposed as a bird’s nest (Figure 1.5), shifting its function and meaning. Though its physical form remains unchanged, its role has changed.

Figure 1.5 | Postbox to birdnest, Sara Ahmed, https:// sydneyreviewofbooks.com/reviews/sara-ahmed-whatsthe-use

“Use can be treated as a record of a life: use as a recorder… We learn about something by considering how it is being used, has been used, or can be used.”10 Objects transition from their original roles while retaining significance through reinterpretation or new uses. Whether serving as memorials or shelters, objects are shaped by the relationships and meanings people attach to them.

The Life Cycle of Objects

Returning to Kopyoff’s theory, which takes a biographical approach to objects. Kopyoff describes objects having life stories, similar to people. It tracks their journey from creation to use and disposal, showing how their value and meaning change over time11. Objects can hold personal, cultural, and symbolic significance, and their value can grow based on context and relationships. For example, a New York Times article “What Survivors of the L.A. Fires Took with Them.”12 discussed how survivors of the Los Angeles fires treasured salvaged belongings, highlighting how objects affected by trauma gain profound emotional meaning beyond their material worth.

In “Paris, Capital of the Nineteenth

10 Sara Ahmed, “Using Things.” in What’s the Use?: On the Uses of Use, Durham: Duke University Press Books, 2019

11 Arjun Appadurai. The Social Life of Things : Commodities in Cultural Perspective. 1st pbk. ed. Cambridge University Press, 1988.

12 Corina Knoll, et al. “What Survivors of the L.A. Fires Took with Them.” in The New York Times, 26 Feb. 2025, www.nytimes.com/interactive/2025/02/21/us/ la-fires-survivors-palisades-eaton.html?unlocked_article_code=1.zE4.V2uM.dwBws0WpMovo&smid=nytcore-ios-share&referringSource=articleShare.

Century13” Walter Benjamin writes, “The collector delights in evoking a world that is not just distant and long gone but also better—a world in which, to be sure, human beings are no better provided with what they need than in the real world, but in which things are freed from the drudgery of being useful.” People take pleasure in creating an interior environment where objects are cherished for their beauty, history, or personal significance, rather than only considering their practical value.

Laboratory of Fun

Architecture and the Collection: The Mind Palace of the Owner

A prime example to demonstrate Walter Benjamin’s idea that collective objects within a living space serve as expressions of personal identity will be the Sir John Soane’s Museum14 John Soane effectively uses the vertical surfaces to display his collection (Figure 1.6), with the collection wall not only showcasing his possessions but also reflecting his design approach and his conceptual integration of space, collection, and thought.

Compared to his tremendous collection, Soane’s house is tiny and crowded. Therefore, Soane incorporated numerous mirrors (Figure 1.7) to reflect light, creating the illusion of a larger space and framing specific views of his

13 Walter Benjamin. Paris, Capital of the Nineteenth Century, in The Arcades Project, Section C: “Louis Philippe, or The Interior.” Cambridge, MA: Harvard University Press, 1939.

14 John Soane, Sir John Soane’s Museum, London, UK, 1792–1824, operated as a public institution and historic house museum under an Act of Parliament since 1833, accessed October 27, 2024, https://www.soane.org.

collection. In article “The Specular Spectacle of the House of the Collector15,” the author discusses how Soane’s mirrors, beyond their practical function, create a visual and symbolic link between memory and the act of collecting. “The self-reflection provided by the romantic mirror was a movement that rendered visible the connection between memory and souvenir, between recollection and re-collection.”

Soane’s house is more than just a collection of objects; it is a reflection of himself.

Figure 1.6 | Soane’s Museum Section, https://shop. soane.org/products/pod435551

Figure | 1.7 Soane’s Museum Mirror, https://collections. soane.org/object-xf358

His intelligence, thoughts, memories,

15 Helene Furján, “The Specular Spectacle of the House of the Collector.” in Assemblage 34 (1997): 56-91.

and identity are intertwined within the architecture and the objects he collected. The museum serves as a tangible link to the past, allowing viewers to perceive his mind through the combination of both objects and space.

Figure | 1.8 Making: Box of Curiosity, Model by Author

These ideas were further investigated in the model Box of Curiosity (Figure 1.8), inspired by the Soane Museum, which explores the concept of layered spaces and sequences. The front facade of the Soane Museum appears as a typical residence, yet behind this ordinary exterior lies a world of layered spaces and collections waiting to be uncovered. A deeper analysis of the Sir John Soane Museum can be found in Chapter 04.

Space as a Backdrop for Objects

“Space had become neutral, a backdrop for the smaller designed objects that began to dominate our lives” (p12)

– Frank Jacobus, “Toward the Immaterial Interior”, 2018

The anthology “Toward the Immaterial Interior16” by Frank Jacobus discusses how,

during the Industrial Revolution, interior design shifted focus from larger architecture to smaller objects. Jacobus notes, “The nineteenth-century conceptions of space, after having evolved for several hundred years during the age of mechanization, became defined much less by the plan and sectional volume and more by the objects within…Space has become neutral, a backdrop for the smaller designed objects that began to dominate our lives” Mechanization made objects more accessible, shifting the definition of interior space. Rather than being defined by macro spatial elements like plans and sections, space is now dominated by the smaller, mass-produced objects it contains. In this context, space becomes a background that highlights the interaction between objects and humans, celebrating the value of these objects and encouraging their engagement with people.

Figure | 1.9 Fun Palace for Joan Littlewood Project, Stratford East, London, England (Perspective), 1959–1961. Cedric Price, https://www.moma.org/collection/ works/842

Cedric Price’s Fun Palace17 (Figure 1.9) was often described as a “Laboratory of

16 Frank Jacobus, Toward the Immaterial Interior. Taylor and Francis, 2018.

17 Cedric Price, Fun Palace for Joan Littlewood Project, Stratford East, London, England (Perspective), 1959–1961. https://www.moma.org/collection/works/842. Accessed 18 May 2025.

Fun,” designed to promote community engagement and cultural participation. Inspired by this concept, this project reimagines that spirit by creating a space that encourages dynamic interactions between people and discarded objects. While echoing Price’s approach, the focus here shifts toward redefining the relationship between individuals and abandoned belongings. In this context, the thesis becomes its own “Laboratory of Fun”—a space that fosters playful and meaningful engagement with the inanimate objects of everyday life.

To translate this conceptual framework into a design proposal, the research continues through a series of studies, including precedents, case studies, program development, site analysis, and the final design scheme. These investigations inform spatial strategies that honor both the emotional lives of objects and the ways humans interact with them. Each chapter builds upon the ideas introduced here: Chapter 3 explores relevant precedents and theoretical references related to the emotional value of objects; Chapter 4 analyzes case studies that help develop the program concept, The Life Cycle of Objects; Chapter 5 outlines the design program based on insights from the case studies; Chapter 6 examines site conditions; and Chapter 7 presents the final design proposal. Together, these chapters demonstrate a hypothesis for how the concept of a “Laboratory of Fun” can be realized through design. This research specifically illustrates how such a space can collect, restore, and revive objects—encouraging people to revalue everyday items and celebrate their emotional and cultural significance.

RESEARCH SOURCE BIBLIOGRAPHY

Readings: Objects

The Meaning of Objects

Kingwell, Mark. “Tables, Chairs, and Other Machines for Thinking.” In Intimus, 173–79. London: Routledge, 2002.

Korkiakangas, Pirjo, and Jason O’Neill. “Everyday Life, Objects, and Nostalgia.” Studies in Folk Culture 3: 113–29. Published 2004.

Winton, Alexa Griffith. “Inhabited Space: Critical Theories and the Domestic Interior.” The Handbook of Interior Architecture and Design, 2013, 40–49.

The Transformation of Objects

Ahmed, Sara. “Using Things.” What’s the Use?: On the Uses of Use. Durham: Duke University Press Books, 2019.

Betsky, Aaron. “Furnishing the Primitive Hut: Allan Wexler’s Experiments Beyond Buildings.” In Toward a New Interior, 199-211. 1999.

Broom, Sarah M. “The Yellow House: A Memoir.” New York: Grove Press, 2019.

Architecture, Interior and Objects

Appadurai, Arjun. The Social Life of Things : Commodities in Cultural Perspective. 1st pbk. ed. Cambridge University Press, 1988.

Furján, Helene. “The Specular Spectacle of the House of the Collector.” Assemblage 34 (1997): 56-91.

Jacobus, F. Toward the Immaterial Interior. Taylor and Francis, 2018.

The Life cycle of Objects

Benjamin, Walter. Paris, Capital of the Nineteenth Century. In The Arcades Project, Section C: “Louis Philippe, or The Interior.” Cambridge, MA: Harvard University Press, 1939.

Nostalgia

Abeyta, Andrew A., and Jacob Juhl. “Nostalgia Restores Meaning in Life for Lonely People.” Emotion 23, no. 6 (September 2023): 1791–95. doi:10.1037/emo0001190.

Hester, Randolph. “A Womb With a View: How Spatial Nostalgia Affects the Designer.” Landscape Architecture 69, no. 5 (September 1, 1979): 475–528.

Pearsall, J. (Ed.). The new Oxford dictionary of English. Oxford University Press, 1998

Place

Wise, J. Macgregor. “Home: Territory and Identity.” In Animations (of Deleuze and Guattari), edited by Jennifer Daryl Slack and Lawrence Grossberg, 107–27. New York, NY: Peter Lang Publishing Inc., 2003.

Tuan, Yi-Fu. Space and Place: The Perspective of Experience (excerpts). Minneapolis: University of Minnesota Press, 1977.

Tuan, Yi-fu. Topophilia: A Study of Environmental Perception, Attitudes, and Values. Morningside ed. Columbia University Press, 1990.

Zumthor, Peter. “From a Passion for Things to the Things Themselves.” In Thinking Architecture. Basel: Birkhäuser, 2006. 39-51.

Others

Bennett, Tony. “The Political Rationality of the Museum.” In The Birth of the Museum: History, Theory, Politics, 89-105. London: Routledge, 1995.

Dean, Tacita & Millar, Jeremy. “Place—the First of All Things.” Art Works: Place (London: Thames and Hudson, 2005), 10-26.

Feinberg, Susan G. “The Genesis of Sir John Soane’s Museum Idea: 1801-1810.” Journal of the Society of Architectural Historians 43, no. 3 (October 1, 1984): 225–37. doi:10.2307/990003.

Sands, Frances. Architectural Drawings: Hidden Masterpieces from Sir John Soane’s Museum. Batsford, 2021.

Williams, Seán M. “Modern Central European Hotels and Spas in Cultural Criticism: Grand Hotel Nostalgia [Special Section].” Forum for Modern Language Studies 55, no. 4 (October 2019): 415–93.

Kurutz, Steven. “Williamsburg. What Happened?” The New York Times, 29 Jan. 2024, www.nytimes.com/interactive/2024/01/29/style/williamsburg-brooklyn-history-timeline.html.

Precedents & Case Studies

Suh, Do Ho. Home within Home within Home within Home within Home. 2013. National Museum of Modern and Contemporary Art, Seoul, Korea, 2013–2014. Cornell, Joseph. Space Object Box: “Little Bear, etc.” motif. Mid-1950s–early 1960s. Box construction, 11 x 17 1/2 x 5 1/4 inches (27.9 x 44.5 x 13.3 cm). Solomon R. Guggenheim Museum, New York. Art © The Joseph and Robert Cornell Memorial Foundation/Licensed by VAGA at Artists Rights Society (ARS), New York.

Dong, Song. Same Bed Different Dreams No. 3. 2018. Steel, wooden windows/doors/beds, mirror, coated glass, lights, daily necessities, porcelain. 254.5 cm × 224.5 cm × 361 cm (8’ 4-3/16” × 883/8” × 11’ 10-1/8”). © Song Dong.

Dong, Song. Waste Not. June 24–September 7, 2009. Museum of Modern Art. Accessed September 10, 2024. https://www.moma.org/calendar/exhibitions/960.

Eames, Charles, and Ray Eames. Solar Do-Nothing Machine. 1957. Commissioned by the Aluminum Company of America (Alcoa). Manufactured at the Eames Office, Los Angeles, California. Goldberg, Rube. Rube Goldberg Machine. 1914. The New York Evening Mail.

Knoll, Corina, et al. “What Survivors of the L.A. Fires Took with Them.” The New York Times, Accessed 26 Feb, 2025. www.nytimes.com/interactive/2025/02/21/us/la-fires-survivors-palisades-eaton.html?unlocked_article_code=1.zE4.V2uM.dwBws0WpMovo&smid=nytcore-ios-share&referringSource=articleShare.

Nakamura, Hiroshi, and NAP. Kamikatsu Zero Waste Center. ArchDaily, photographed by Koji Fujii, project completed 2020. Kamikatsu, Tokushima Prefecture, Japan. Accessed October 17, 2024. https://www.archdaily.com/1006535/kamikatsu-zero-waste-center-hiroshi-nakamura-and-nap. Price, Cedric. Fun Palace for Joan Littlewood Project, Stratford East, London, England (Perspective). 1959–1961.

Rauschenberg, Robert. Monogram, 1955–59. Oil, paper, fabric, printed reproductions, metal, wood, rubber shoe-heel, and tennis ball on two conjoined canvases with oil on taxidermied Angora goat with brass plaque and rubber tire on wood platform mounted on four casters. Moderna Museet, Stockholm. Purchase 1965 with contribution from The Friends of Moderna Museet. Schemata Architects and Jo Nagasaka. TODAY’S SPECIAL Ebisu Store. ArchDaily, designed by Jo Nagasaka and Schemata Architects, photographed by Takumi Ota, Shibuya City, Japan, 2022. Accessed October 27, 2024. https://www.archdaily.com/1004031/todays-special-ebisu-store-schemata-architects-plus-jo-nagasaka?ad_medium=gallery.

Soane, John. Sir John Soane’s Museum. London, UK, 1792–1824. Operated as a public institution and historic house museum under an Act of Parliament since 1833. Accessed October 27, 2024, https://www.soane.org.

Wexler, Allan. Twelve Unfolding Chairs, 1998, Accessed 18 May 2025. www.allanwexlerstudio.

com/projects/chairs.

Tropical Space. Terra Cotta Studio. ArchDaily, designed by Tropical Space, 98 m², owned by artist Le Duc Ha, 2023, photographed by Hiroyuki Oki. Accessed October 27, 2024. https://www.archdaily.com/791430/terra-cotta-studio-tropical-space.

Whiteread, Rachel. House. Grove Road, East London, 25 October 1993 – 11 January 1994.

SOURCE BIBLIOGRAPHY

PRECEDENT ANALYSIS

Tables and chairs don’t just make us think about function and form and politics. They don’t just provide us with the handy platform for our own thoughts. They also make us think about thinking.

– Mark Kingwell, “Tables, Chairs, and Other Machines for Thinking,” 2002

Introduction

This thesis project draws on three main precedent studies: Same Bed Different Dream by Song Dong, Monogram by Robert Rauschenberg, and Little Bear, etc. by Joseph Cornell. Additionally, two other projects have informed the research process: Home within Home within Home within Home within Home by Do Ho Suh and House by Rachel Whiteread. Like Waste Not, the three main precedent studies transform everyday objects or discarded materials into new forms and art, demonstrating that beyond their practical use, seemingly “useless” objects can take on new roles, embodying cultural memory and emotional significance. The two additional studies emphasize a shift in focus from architecture itself to interior objects and the traces of human presence, inverting the traditional role of architecture as the primary subject.

These precedents also serve as inspiration for the thesis program, which will explore the life cycle of objects while reframing them as the primary subjects of interior space.

PRECEDENT ANALYSIS: Part I

Figure | 3.1 Same Bed Different Dreams, 2018, Song Dong, https://www.pacegallery.com/artists/song-dong/

Same Bed Different Dreams

1

Song Dong, 2019

1 Song Dong. Same Bed Different Dreams No. 3. 2018. Steel, wooden windows/doors/beds, mirror, coated glass, lights, daily necessities, porcelain. 254.5 cm × 224.5 cm × 361 cm (8’ 4-3/16” × 88-3/8” × 11’ 10-1/8”). © Song Dong. https://www.pacegallery.com/artists/song-dong/

Figure | 3.2 Collaged Diagram: Voyeur And Viewer, Diagram by Author

Same

Bed Different Dream (Figure 3.1) features Song Dong’s double bed, surrounded by material reclaimed from old Beijing, such as discarded furniture and window panels. By recontextualizing these materials, the artist reflects on urban transformation and its impact on both personal and collective histories. The installation invites viewers to reflect on their own experiences while becoming voyeurs,

peeking into the artist’s intimate space and encountering nostalgic everyday objects, sparking thoughts of past lives and shared memories.

Making

The model (Figure 3.6) incorporates a collaged materials panel to showcase diversity, along with reflective materials (Figure 3.3-3.5) that create reflections of the surrounding envi-

ronment. A movable frame (Figure 3.6) invites viewers to open it and look through the model, offering a flexible angle for reflection.

Figure 3.6 | Making: Collaged Panels Opened at Varying Angles, Model by Author
Figure | 3.7 Making: Collaged Panel Closed, Model by Author
Figure | 3.3 Making: Reflection of Material, by Author
Figure | 3.4 Making: Reflection of Viewer and Material, by Author
Figure | 3.5 Making: Reflection of Viewer and Material, by Author

PRECEDENT ANALYSIS: Part II

Figure | 3.8 Monogram, 1955–59, Robert Rauschenberg, https://www.moma.org/audio/playlist/40/648

Monogram2

Robert Rauschenberg, 1955-59

| 3.9 Collaged Diagram: Breaking the Picture Plane, Diagram by Author

2 Robert Rauschenberg, Monogram, 1955–59. Oil, paper, fabric, printed reproductions, metal, wood, rubber shoe-heel, and tennis ball on two conjoined canvases with oil on taxidermied Angora goat with brass plaque and rubber tire on wood platform mounted on four casters. Moderna Museet, Stockholm. Purchase 1965 with contribution from The Friends of Moderna Museet. https://www.moma.org/audio/playlist/40/648

Robert Rauschenberg’s Monogram (Figure 3.8) challenges the traditional picture plane, blurring the boundaries between viewer and artwork. The emphasis is on personal engagement rather than the artist’s predetermined meaning. Rauschenberg’s use of found objects and assemblage techniques profoundly influenced Song Dong’s practice. While not overtly nos-

Figure

talgic, Monogram demonstrates how objects can acquire varied meanings through individual interpretation.

Making

Monogram explores how objects evoke thought by breaking conventional boundaries, challenging the picture plane, and bridging the gap between art and real life. The model

(Figure 3.10-3.14) created for this precedent incorporates paper mechanisms that transition the form between 2D and 3D. Using found objects, Monogram examines how meaning shifts between individuals, even without strong sentimental ties.

Figure | 3.13 Making: Model Partially Opened into 3D Form, Model by Author
Figure | 3.14 Making: 3D Form, Model by Author
Figure | 3.10 Making: 2D Form, Model by Author
Figure | 3.11 Making: 3D Form Lefy Side View, Model by Author
Figure | 3.12 Making: 3D Form Right Side View, Model by Author

PRECEDENT ANALYSIS: Part III

Figure | 3.15 Joseph Cornell, Space Object Box: “Little Bear, etc.” motif, mid-1950s–early 1960s.

Little Bear, etc.3

Joseph Cornell, 1950s-1960s

| 3.16 Collaged Diagram: Box of Imagination, Diagram by Author

3 Joseph Cornell, Space Object Box: “Little Bear, etc.” motif, mid-1950s–early 1960s. Box construction, 11 x 17 1/2 x 5 1/4 inches (27.9 x 44.5 x 13.3 cm), Solomon R. Guggenheim Museum, New York. Art © The Joseph and Robert Cornell Memorial Foundation/Licensed by VAGA at Artists Rights Society (ARS), New York

Joseph Cornell’s box series, including Little Bear, etc. (Figure 3.16), features printed images and found objects arranged into thematic collections, such as celestial maps of Ursa Minor. Though he spent most of his life in Queens and never traveled to Europe, Cornell’s boxes often evoke European culture. Through his imaginative assemblages, he brings distant places to life, tapping into shared cultural

Figure

memories that inspire reflection on the past and evoke nostalgia for the unattainable.

Making

The model (Figure 3.17-3.21) exemplifies the imagination behind Joseph Cornell’s boxes. These boxes capture and retain his creative vision, allowing him to envision spaces he has never visited. They serve as vessels of

imagination, containing objects from the past while also conveying a sense of the future and the unknown. The objects represent both personal and collective significance, resonating with nostalgic feelings.

Figure | 3.20 Making: Front View of Model, Model by Author
Figure | 3.21 Making: Axon View of Model, Model by Author
Figure | 3.17 Making: Model with Backlighting, by Author
Figure | 3.18 Making: Side View of Model, Model by Author
Figure | 3.19 Making: Axon View of Model, Model by Author

PRECEDENT ANALYSIS: Part IV

Figure | 3.22 Home within Home within Home within Home within Home, 2013, DO HO SUH, https://www.wallpaper.com/art/sheer-will-artist-do-ho-suhs-ghostlyfabric-sculptures-explore-the-meaning-of-home

Home within Home within Home within Home within Home4

DO HO SUH, 2013

4 DO HO SUH, “Home within Home within Home within Home within Home,” 2013, National Museum of Modern and Contemporary Art, Seoul, Korea, 2013–2014 https://www.wallpaper.com/art/sheer-will-artist-do-hosuhs-ghostly-fabric-sculptures-explore-the-meaning-ofhome

Do Ho Suh’s Home within Home (Figure 3.22) features fabric replicas of his childhood home in Seoul placed within his first U.S. apartment. By focusing on the interior objects and the traces of his past life, the work inverts the traditional role of architecture as the primary subject, highlighting the emotional significance of these spaces and objects. This shift reflects the merging of past and present, where

the meaning of home is tied not just to the architecture itself, but to the memories and personal histories embedded in the objects within it.

Making

Two models (Figure 3.23-3.27) were created: one constructed with sheer fabric and a wire frame (right), and the other made of chip-

board (left). These models highlight the contrast between solid and ethereal forms, reflecting how, in a globalized world, the concept of home has evolved into a lightweight, portable, and ephemeral notion.

Figure | 3.26 Making: Front View of Both Models, Model by Author
Figure | 3.27 Making : Axon VIew of Both Models, Model by Author
Figure | 3.23 Making: Right Side View of Both Models, by Author
Figure | 3.24 Making: Back Side View of Both Models, by Author
Figure | 3.25 Making: Left Side View of Both Model, by Author

PRECEDENT ANALYSIS: Part V

Figure | 3.28 House, Rachel Whiteread, https://www. widewalls.ch/magazine/rachel-whiteread-house

House5

Rachel Whiteread, 25 October 1993 - 11 January 1994

| 3.29 Collaged Diagram: Home and House, Diagram by Author

5 Rachel Whiteread, House. Grove Road, East London, 25 October 1993 – 11 January 1994. https://www.widewalls.ch/magazine/rachel-whiteread-house

House by Rachel Whiteread, represents the inverse of a house’s interior. Made from poured concrete, the cast was created from the inner spaces of a house that was demolished due to a gentrification project in East London. Whiteread’s work captures over a century of domestic life, reflecting themes of memory, absence, and the passage of time. It stands as a monument to the home’s absence, evoking per-

Figure

sonal memories while commenting on urban redevelopment.

Making

The Making(Figure 3.30-3.34) explores the inversion of positive and negative space to represent the shift between presence and absence. Similar to Rachel Whiteread’s reversal of invisible habitation and solid architecture, it

embodies the contrast between the eternal and the ephemeral. It also aligns with Do Ho Suh’s approach, inverting the traditional role of architecture as the primary subject, instead highlighting the human experiences and emotional significance of interior spaces.

Figure | 3.33 Making: Front View of Model, Model by Author
Figure | 3.34 Making: Axon View of Model, Model by Author
Figure | 3.30 Making: Left Side View of Model, Model by Author
Figure | 3.31 Making: Back View of Model, Model by Author
Figure | 3.32 Making: Right Side View of Model, Model by Author

PRECEDENT ANALYSIS: Summary

Visualization

The visualization (Figure 3.35) of Making B explores the perception of past, present, and future through objects and spaces. The central framing box represents the present, constructed from objects of the past. The negative space at the bottom signifies traces of memory and lived experiences—those invisible moments that shape identities and the present. The

top represents the imagination of what can be envisioned based on past and present influences.

Figure | 3.35 Visualization: Future, Present, Past (Top to Bottom), Image by Author

CASE STUDIES

To offer a biography of things is to follow them ‘as they move through different hands, contexts and uses.

Use can be treated as a record of a life: use as a recorder… We learn about something by considering how it is being used, has been used, or can be used.

– Sara Ahmed, “Using Things.” 2019

Figure | 4.1 Object Life Cycle Diagram, Diagram by Author

Introduction

The Life Cycle Diagram (Figure 4.1) indicates that this thesis will explore the life cycle of ‘useless’ objects, focusing on items from events such as death cleaning, possessions left behind during moves, broken or outdated items, and childhood belongings. While no longer functional, these objects still hold emotional value, and their owners are often reluctant to discard them, seeking ways to repurpose them. The project will propose a recycling system based on three steps: collect, restore, and revive, which will be further explained in the next Program and User Group section.

Four case studies support this research and inform the design and spatial requirements for each program. The Kamikatsu Zero Waste Center provides the foundation for the entire recycling system; Sir John Soane’s Museum integrates the collection with the architecture of the home, reflecting personal satisfaction and vision; Terra Cotta Studio creates a central working area surrounded by circulation paths for visitors to view the artworks; and TODAY’S

SPECIAL Ebisu Store, a Japanese general store, demonstrates how diverse merchandise is stored and how the space is arranged to encourage exploration while shopping.

CASE STUDIES: Part I

Recycled System: Kamikatsu Zero Waste Center1

Hiroshi Nakamura & NAP, 2020

This project recycles waste from the town of Kamikatsu, extending the life cycle of materials. The architecture repurposed items like old furniture and glass bottles as building materials, with walls made from recycled window frames, cabinets, and shelves. This approach aligns with the Japanese concept of wabi-sabi, which embraces imperfection and finds beauty in the reuse of materials. Similarly, my thesis explores how interior design can repurpose “useless” objects, embracing their imperfections and emotional value to give them new purpose.

The floor plan (Figure 4.3) is U-shaped, featuring spaces for recycling, restoration, and

1 Hiroshi Nakamura & NAP, “Kamikatsu Zero Waste Center,” ArchDaily, photographed by Koji Fujii, project completed 2020, Kamikatsu, Tokushima Prefecture, Japan, accessed October 17, 2024, https://www.archdaily. com/1006535/kamikatsu-zero-waste-center-hiroshi-nakamura-and-nap.

research, including a lab and workshop at the back. For visitors, there are sorting, community, and reuse areas that teach proper recycling and sell items made from recycled materials. The red inner path is for waste, and the blue outer path is for visitors, keeping them separated while allowing them to observe the recycling process.

https://www.archdaily.com/1006535/kamikat-

Figure | 4.2 Hiroshi Nakamura & NAP, Kamikatsu Zero Waste Center,
su-zero-waste-center-hiroshi-nakamura-and-nap.
Figure 4.3 | Kamikatsu Zero Waste Center Program Diagram: A Program Showing Visitors the Life Cycle of Objects, Diagram by Author

CASE STUDIES: Part II

Collect: Sir John Soane’s Museum2

John Soane, 1792-1824

The Sir John Soane’s Museum highlights the collecting program (Figure 4.5). It functions not only as a museum but also as the residence of John Soane, showcasing his personal collection. Unlike a typical museum, Soane’s Museum reflects the owner’s satisfaction with his collection and vision for the space, integrating the architecture of his home as an essential part of the collection.

The self-reflection provided by the romantic mirror was a movement that rendered visible the connection between memory and souvenir, between recollection and re-collection.3

The collection wall at the Soane Museum is particularly striking, with vertical surfaces displaying items in a manner similar to a filing system. Mirrors are strategically placed throughout the space, reflecting light, expanding the sense of space, and framing views. In “The Specular Spectacle of the House of the Collector,” Furján discusses how Soane’s mirrors symbolize the connection between memory and collecting. They reflect his identity, merging his thoughts and memories to make the past tangible.

2 John Soane, Sir John Soane’s Museum, London, UK, 1792–1824, operated as a public institution and historic house museum under an Act of Parliament since 1833, accessed October 27, 2024, https://www.soane.org.

3 3 Helene Furján, “The Specular Spectacle of the House of the Collector.” in Assemblage 34 (1997): 72.

Figure 4.5 | Sir John Soane’s Museum Program Diagram: A Mixture of Sir John Soane’s Living Space and Exhibition Space, Diagram by Author

Figure | 4.4 John Soane, Sir John Soane’s Museum, https://www.soane.org.

CASE STUDIES: Part II

Box of Curiosity

The Box of Curiosity (Figure 4.6) is a tunnel book design inspired by Sir John Soane’s Museum and its layered spatial experience. The space itself functions like a cabinet of curiosities, where architecture becomes a reflection of Soane’s mind. Each object and spatial arrangement embodies his thoughts and ideas, carefully curated and displayed within the building. As viewers move through the museum—or unfold the tunnel book—they metaphorically navigate the depth of Soane’s

imagination, discovering layered meanings and hidden connections through what first appears to be a flat surface.

Figure | 4.6 Box of Curiosity:Fully Unfolded, Model by Author
Figure 4.7 | Box of Curiosity: Unfolding Process, Model by Author

CASE STUDIES: Part III

Restore: Terra Cotta Studio4

Tropical Space, 2023

This case study focuses on the repair program. Terra Cotta Studio is a cube-shaped workshop (Figure 4.9), measuring 7m x 7m x 7m, with a bamboo scaffold for drying terra cotta. A vegetable garden is located between the bamboo shelves and the brick workshop. The space is divided into artist work areas and visitor areas as showing in the program diagram (Figure 4.8). Although visitors cannot enter the workshop, the apertures in the brick wall connect the artist’s workspace to the overall scene, blurring the boundaries between work and visitor areas. As a result, the workshop functions as a semi-private space, incorporating the working process into the exhibition.

4 Tropical Space, Terra Cotta Studio, Factory, Workshop, Cultural Architecture, Quang Nam, Vietnam, 98 m², Owned by Artist Le Duc Ha, 2023, photographed by Hiroyuki Oki, accessed October 27, 2024, https://www. archdaily.com/791430/terra-cotta-studio-tropical-space.

4.8 | Terra Cotta Studio Program Diagram: Visitor Path Surrounding the Workshop Area, Diagram by Author

Figure | 4.9 Tropical Space, Terra Cotta Studio, https://www.archdaily.com/791430/terra-cotta-studio-tropical-space.

Figure

CASE STUDIES: Part IV

Revive: TODAY’S SPECIAL Ebisu Store5

Schemata Architects and Jo Nagasaka, 2024

For the program of revival, the project will involve selling, exchanging, or donating the objects once they have been collected and repaired. A retail space, such as a general store, serves as a relevant reference (Figure 4.10) for this program. The majority of the space will be dedicated to circulation and shopping areas, with a private stock area located in the corner near the cash register. The spatial program can be divided into the ‘back of the house’ and the ‘front of the house.’

5 Schemata Architects and Jo Nagasaka, “TODAY’S SPECIAL Ebisu Store,” ArchDaily, designed by Jo Nagasaka and Schemata Architects, photographed by Takumi Ota, Shibuya City, Japan, 2022, accessed October 27, 2024, https://www.archdaily.com/1004031/todays-special-ebisu-store-schemata-architects-plus-jo-nagasaka?ad_medium=gallery.

4.10 | TODAY’S SPECIAL Ebisu Store Program Diagram: Study of Front and Back of House Division, Diagram by Author

Figure | 4.11 Schemata Architects and Jo Nagasaka, TODAY’S SPECIAL Ebisu Store, https://www.archdaily. com/1004031/todays-special-ebisu-store-schemata-architects-plus-jo-nagasaka?ad_medium=gallery

Figure

PROGRAMING AND USER GROUPS

Introduction

Inspired by the Kamikatsu Zero Waste Center and the transformation of objects’ roles, the program outlines the life cycle of objects with three key spaces:

Exhibition Space – Displays objects and shares their stories.

Workshop – A space for craftsmen to repair and repurpose discarded items.

Retail Space – Where objects find new owners, beginning their second life.

The Program List provides a detailed breakdown of space requirements, while Program Diagram (Figure 5.1) illustrates adjacencies and square footage. The project requires approximately 11,600 square feet, with some areas overlapping as shared spaces.

Figure | 5.1 Program Diagram, Diagram by Author

Objects and Workshops Categories

The workshop is designed around the concept of repair, serving two key functions. First, it provides a space for restoring cherished but damaged objects, drawing inspiration from establishments like the Dolls and Bears Hospital (Figure 5.2) and Japanese laundry services (Figure 5.3), which specialize in carefully repairing sentimental items. This approach helps preserve the emotional value of belongings rather than discarding them. Additionally, objects are categorized based on their repair needs—such as gluing, reassembly, or material-specific restoration—to determine the appropriate services offered. This classification ensures an effective repair process, allowing objects to be restored and given a second life.

New Furniture, Material, and Finishes

The furniture, materials, and finishes for this project will be produced in the workshop, primarily using recycled items to create customized pieces. These newly crafted elements can either be integrated into the project or sold. The items are categorized into three groups:

1. Items that only require repair

2. Items that need assembly or disassembly.

3. Items that will be broken down into raw materials for new creations.

Figure | 5.2 Dolls and Bears Hospital, https://secaucusdollhospital.com/
Figure | 5.3 Japanese Special Laundry Services, net929. com

Visualization

An imagination of the space to visualize the conceptual programming involves elements such as a reception desk, a filing wall with a lift to organize and store the objects, a sorting and working table, an exhibition space, and a shop space. The goal of this spatial sequence is to invite anyone interested in purchasing items to go deeper into the space and explore the life cycle of objects. This will be explored further with more detailed design in Chapter 7.

Figure | 5.4 Visualization, by Author

SITE DESCRIPTION AND DOCUMENTATION

Introduction

The approach of the Sir John Soane Museum influenced my site selection, prompting the choice of a long, narrow building that spatially embodies the concept of a collection wall and layered interiors. The proposed site (Figure 6.2-6.3), located at 76 N 6th St in Williamsburg, Brooklyn, reflects the neighborhood’s transformation from an industrial district to a hub of luxury living—a shift that has contributed to considerable material waste. This project aims, in part, to address that issue.

While Williamsburg serves as a representative context, the proposed program is designed to be adaptable and implementable in any location requiring a localized recycling and reuse system.

Figure | 6.1 Site Exploded Axon, Diagram by Author
Figure | 6.2 Site Bird Eye View, Diagram by Author
Figure | 6.3 Site Street Front View, Diagram by Author
Figure | 6.4 Site Solar Diagram, Diagram by Author
Figure | 6.5 Site Street View Diagram, Diagram by Author
Figure | 6.6 Surrounding Construction Site Diagram, Diagram by Author
Figure | 6.7 Surrounding Program Diagram, Diagram by Author

FINAL THESIS DESIGN SCHEME

Space had become neutral, a backdrop for the smaller designed objects that began to dominate our lives.

– Frank Jacobus, “Toward the Immaterial Interior”, 2018

Figure 7.1 | Laboratory of Fun Section Sketch illustrates the vertical distribution of the main programs. by Author

7.2 | Laboratory of Fun Plan Sketch illustrates program distribution and design ideas of each floor, by Author

Figure

FINAL THESIS DESIGN SCHEME

01 OBJECT ELEVATOR

03 OBJECT HOSTEL

05 OBJECT THEATER

02 OBJECT HOSPITAL

04 OBJECT SUITE

Figure | 7.3 Laboratory of Fun Axon Diagram, Diagram by Author

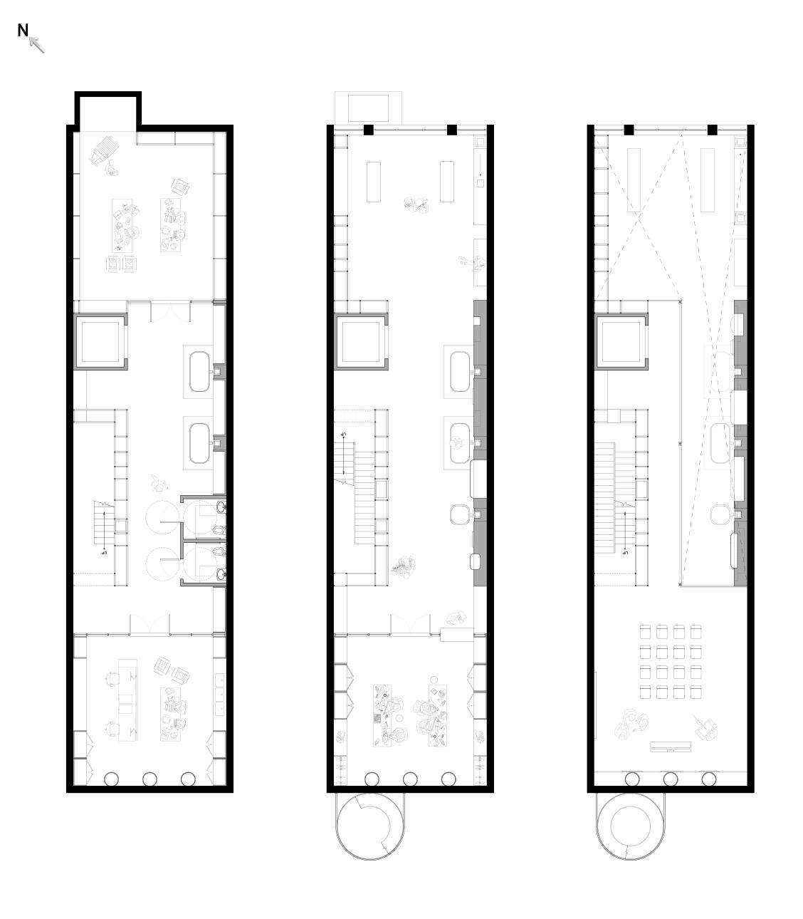
OVERVIEW OF FLOOR PLANS

Figure | 7.4 Laboratory of Fun Black&White Plan, Drawing by Author
Cellar Floor
1st Floor
Mezzanine Floor
2nd Floor
3rd Floor
4th Floor

OVERVIEW OF RENDERED FLOOR PLANS

Figure | 7.5 Laboratory of Fun Rendered Plan, Drawing by Author
Cellar Floor
1st Floor
Mezzanine Floor
2nd Floor
3rd Floor
4th Floor

PROGRAM DIAGRAM

Plan and Program Diagram

The plans (Figure 7.6) illustrate the program layout, with the workshop positioned at the back, the central zone dedicated to exhibition space and vertical circulation, and the front facade incorporating both a shop and exhibition area. The discussion will focus on the design and concept of these four key program elements.

Figure | 7.6 Plan Program Diagram, Diagram by Author

OBJECT ELEVATOR

Object Elevator: Vertical Circulation

The stair design (Figure 7.9) integrates both human and object circulation, emphasizing the movement, storage, and transfer of objects alongside people. It also reflects the project’s commitment to reclaimed materials. To explore this concept, an interactive model (Figure 7.77.8) was created using cookie packaging boxes and cutouts from product information inserts, illustrating the dynamic relationship between objects and users.

Figure | 7.7 Vertical Circulation: Cookie Boxes’ Renovation, Model by Author
Figure | 7.8 Cookie Boxes’ Renovation Model User Guide, Diagram by Author
Figure | 7.9 Object Elevator Diagram, Diagram by Author

These two diagrams illustrate the movement of objects within the vertical circulation. The system, resembling a series of dumbwaiters in varying sizes(Figure 7.10), is designed to transfer objects both vertically and horizontally throughout the space (Figure 7.11). This approach ensures efficient movement and interaction with objects across different levels.

Figure 7.10 | Object Elevator Diagram (Vertical Movement of Objects). by Author
Figure 7.10 | Object Elevator Diagram (Vertical and Horizontal Movement of Objects), by Author

OBJECT HOSPITAL

Object Hospital: Workshop

Based on item classifications, the Object Hospital is structured into three specialized departments: the Object Spa, which focuses on cleaning and minor repairs such as sewing; the Object Operating Room, dedicated to the assembly of new objects; and the Object Hospice Care, where objects are deconstructed into raw materials for subsequent repurposing.

Figure | 7.12 Object Hospital Section Diagram, Diagram by Author
Dryer Washer
Crusher
Figure | 7.13 Object Hospital Axon Diagram, Diagram by Author

OBJECT HOSPITAL

Workshop Transportation

Within the workshop, a pneumatic tube system serves as the primary method for transporting objects. Items are initially received at the first-floor reception area and then distributed to various departments of the Object Hospital located on upper levels via this system. Pneumatic tubes remain in use today in diverse contexts. For instance, C1 Espresso in New Zealand employs such a system to deliver food and beverages. This example prompted a reconsideration of pneumatic tubes beyond their conventional use for mail, revealing their potential as a flexible and efficient means of intra-building transport. Consequently, the system was integrated into the object transportation strategy of this project.

Pneumatic tube
Ferris Wheel
Figure | 7.14 Object Hospital Transportation Section Diagram, Diagram by Author
Figure | 7.15 Object Hospital Transportation Axon Diagram, Diagram by Author

OBJECT HOSPITAL

Workshop Transportation

An object slide located at the rear of the building facilitates waste disposal. Although the project prioritizes recycling and reuse, a minimal amount of residual waste is inevitable. This remaining waste is collected and sent to organizations such as The Good Plastic Company, which transforms 100% recycled plastic into Polygood panels utilized in design and architectural applications. This process contributes to a circular economy by extending material lifecycles and minimizing environmental impact.

Figure | 7.16 Object Slide Section Diagram, Diagram by Author
Figure | 7.17 Object Slide Axon Diagram, Diagram by Author

OBJECT HOSPITAL

New Objects

The following are newly created objects produced within the Object Hospital’s Operating Department.

Figure | 7.18 New Object (Group), Model by Author
Figure | 7.19 New Objects (Individual), Model by Author
New Desk
New Lamp (Off)
New Lamp (Off)
New Lamp (On)
New Lamp (On)
New Side Table

OBJECT HOSTEL

Object Hostel: Exhibition

The design of the Object Hostel is guided by two primary strategies: the shelf and the vignettes (Images see next page). The shelf functions as a display system for objects and is integrated with sensory design elements, which will be elaborated upon in subsequent slides. The vignettes present small, curated scenes that offer contextual and narrative depth, enabling visitors to engage with the objects in a more immersive and meaningful manner.

Figure | 7.20 Object Hostel Section Diagram, Diagram by Author
Figure | 7.21 Object Hostel Axon Diagram, Diagram by Author

OBJECT HOSTEL

Figure | 7.23 Pierre Chareau, DS+R, https://dsrny.com/ project/pierre-chareau

The Shelves

The shelves are constructed using reclaimed materials, in line with the philosophy of the Kamikatsu Zero Waste Center. Recycled furniture and materials are repurposed to build the display units.

Vignettes

The vignette displays are inspired by DS+R’s exhibition design at the Jewish Museum1. As visitors pass by, silhouettes of past users appear on the screen, visually connecting them to the history and origins of the objects. This immersive experience links people to the stories behind the items.

1 DS+R, Pierre Chareau: Modern Architecture and ensign, 2016-2017, The Jewish Museum, New York https://dsrny.com/project/pierre-chareau

Figure | 7.22 Vignettes Section Diagram, Diagram by Author
Figure | 7.24 Shelves&Vignettes Axon Diagram, Diagram by Author

The Shelves - Sensory Context

In addition to using sustainable materials, the shelf design incorporates sensory elements, starting with scent (Figure 7.25). An aroma diffuser embedded within the shelf releases familiar fragrances, triggering personal memories and fostering connections between buyers and owners. The second sensory element is sound (Figure 7.26). Like scent, acous-

tics can evoke memories and deepen emotional engagement. The shelves integrate subtle acoustic features, such as embedded speakers or resonant materials, to enhance the connection between objects and their stories.

Figure | 7.25 Sensory Exhibition Diagram: Scent, Diagram by Author
Figure | 7.26 Sensory Exhibition Diagram: Acoustic, Diagram by Author

OBJECT SUITE

Object Suite: Exhibition

Another type of object exhibition space within the project is the Object Private Suite, designated for objects featured in special exhibitions.

Similar to traditional museums, the facility will host rotating special exhibitions. These exhibitions will occupy a double-height space spanning the first and mezzanine floors, with lifts enabling visitors to engage more closely with the displayed objects. The exhibition extends to the cellar level, where adjacent

storage areas allow for the direct transfer of objects between storage and display.

Figure | 7.27 Object Suite Section Diagram, Diagram by Author
Figure | 7.28 Object Suite Axon Diagram, Diagram by Author

The vibrant and colorful surface panels used in this space will be sourced from The Good Plastic Company, aligning with the project’s sustainable material strategy. Notably, the design of the lift system—intended to transport both people and objects—employs an inverted approach to foster novel interactions and experiential engagement between visitors and the exhibited items (Figure 7.29).

Figure 7.29 | Object Suite Diagram showing people lifting up closer to the top shelves, Diagram by Author
Figure 7.30 | Object Suite Model demonstrating the lift mechanism moving in different directions. Model by author

OBJECT THEATER

Object Theater: Shop & Exhibition

The retail space features two key elements: The Stage and Furniture Hoisting. This design is inspired by the Rube Goldberg machine2, which repurposes objects in unexpected ways to create a chain reaction. It embodies the concept of giving new purpose to discarded or overlooked items, while the interactive nature of the machine fosters a unique relationship between humans, objects, and the space they inhabit. Additionally, the Solar Do-Nothing Machine3 by Charles and Ray Eames serves as another influence. Its exploration of materiality, technology, and playfulness inspired the approach, particularly its use of solar energy to generate movement and interaction within space.

2 Rube Goldberg. Rube Goldberg Machine. 1914. The New York Evening Mail. https://www.smithsonianmag. com/history/story-behind-rube-goldbergs-complicated-contraptions-180968928/

3 Charles Eames, and Ray Eames. Solar Do-Nothing Machine. 1957. Commissioned by the Aluminum Company of America (Alcoa). Manufactured at the Eames Office, Los Angeles, California. https://www.eamesoffice.com/the-work/solar-do-nothing-machine/

Figure | 7.32 Rube Goldberg Machine, Rube Goldberg, https://www.smithsonianmag.com/history/ story-behind-rube-goldbergs-complicated-contraptions-180968928/

Figure | 7.33 Solar Do-Nothing Machine, Charles Eames, and Ray Eames, https://www.eamesoffice.com/the-work/solar-do-nothing-machine/

Figure | 7.31 Object Theater Section & Axon Diagram, Diagram by Author
Figure | 7.34 Object Theater Axon Diagram, Diagram by Author

OBJECT THEATER

The Stage

The Stage and Furniture Hoisting accommodate objects of various sizes. The Stage is specifically designed for objects smaller than 2’x2’x2’ (Figure 7.36).

The design is based on key factors, with the system functioning similarly to a game or claw machine. The control panel operates the carousel stages and conveyor belt system, allowing for easy manipulation of objects. An information screen displays details about the selected object, providing context and background to the user.

Figure | 7.36 Object Size Diagram 2’x2’x2’, Diagram by Author
Figure | 7.35 The Stage Section Diagram, Diagram by Author
Figure | 7.37 Object Theater Axon Diagram: The Stage, Diagram by Author

A diagram illustrates how the system works (Figure 7.38). The information screen will show the condition, price, and a brief description of the objects, allowing users to “choose their object” in a manner similar to selecting a character in a game. This creates an interactive and engaging experience.

Figure | 7.38 The Stage Diagram, Diagram by Author
Figure | 7.39 The Stage Model, Model by Author

OBJECT THEATER

Shop Counter

The shop counter space on the first floor (Figure 7.41) includes a series of conveyor belt systems that transport items to the ground floor, where they are delivered to the shop counter for payment and pickup.

Figure | 7.40 Object Theater + Shop Counter Section, Section by Author
Figure | 7.41 Shop Counter Section, Section by Author

OBJECT THEATER

Furniture Hoisting

The Furniture Hoisting system is designed for objects larger than 2’x2’x2’ but smaller than 8’x5’x8’(Figure 7.43), allowing them to pass through the windows on the upper three floors.

Larger objects are lifted and brought into the building through the window using a pulley system. This method not only facilitates the movement of furniture but also creates a unique street view, turning the process into a performance that highlights the objects themselves.

Figure | 7.43 Object Size Diagram 8’x5’x8’, Diagram by Author
Figure | 7.42 Furniture Hoisting Section Diagram, Diagram by Author
Figure | 7.44 Furniture Hoisting Axon Diagram, Diagram by Author
Figure 7.45 | Section: Story Within, a section illustrating an ordinary

ordinary day inside the Laboratory of Fun, Section by Author

scale: 1/4"=1'-0"

7.45 | Section: Story Within, a section illustrating an ordinary

Figure

ordinary day inside the Laboratory of Fun, Section by Author

Figure 7.47 | Interior Perspective: First Floor showing the view from the front gate toward the interior, including the first and mezzanine floors: shop counter and object suite on the left, object elevator on the right, and object hospital at the far end. Perspective drawing by the author.

Figure 7.48 | Interior Perspective: Mezzanine Floor showing the view from mezzanine floor to the front gate, including the Mezzanine floor and 1st floor: Object Elevator on the left, Object Suite ob the right , Front gate at the front. Perspective Drawing by Author

Figure 7.49 | Interior Perspective: Second Floor showing the view from the interior Object Theater control panel area toward the exterior Object Theater carousel. Perspective drawing by the author.

Figure 7.50 | Interior Perspective: Third Floor showing the view from the Object Hostel vignette toward the Object Hospital operating room. Perspective drawing by the author.

Figure 7.51 | Interior Perspective: Third Floor Object Hospital operating room. Perspective drawing by the author.

CONCLUSION

This thesis explores the relationship between objects and interior design, with a focus on how design can enhance the narratives embedded in everyday items and celebrate their emotional and cultural value. It began with a personal yet also universal question: how do we part with objects that are no longer useful but still carry deep emotional significance? Through research and design, the project evolved to address a broader concern—how, in an era of mass production and overconsumption, design can help us appreciate individual objects, reduce waste, and extend the lives of things we often overlook.

Looking forward, future iterations of this project could benefit more from engaging with truly discarded items—objects typically considered “trash”—to explore how design might uncover or restore their value. Further development of Object Hospital could help deepen this investigation. I also hope to develop more immersive illustrations, such as interior perspective views filled with objects and visitors, to better convey the atmosphere of the

space. These could be paired with empty versions of the same views, creating a contrast that highlights the importance of objects and occupants in shaping the meaning of interior environments.

In closing, this thesis touches on issues that are deeply personal yet widely shared. In a fast-paced, disposable culture, many of us struggle with how to let go of things that represent memory, identity, and connection. I hope this project offers new ways of thinking about these everyday challenges and inspires further exploration into the emotional and ecological value of objects. One day, I hope to see a real “Laboratory of Fun”, a place where forgotten or discarded things can be preserved and transformed into meaningful items once again.

Turn static files into dynamic content formats.

Create a flipbook
Issuu converts static files into: digital portfolios, online yearbooks, online catalogs, digital photo albums and more. Sign up and create your flipbook.