Diploma_Internship Portfolio

Page 1

Portfolio AI 0024 INDUSTRTY EXPERIENCE MAY 2022 - OCT 2022 BY LAI XIN QI
1002058162
|
01 COMPANY INTRODUCTION 02 LOGBOOK COMPILATION 03 SRI HARTAMAS TOWNHOUSE EAGLE CAMP RORL PV AMPANG SIERRAMAS PROJECTS INVOLVED Content
About me 2D drafting Presentation video 3D modelling Tender drawing Hi. I'm Lai Xin Qi studying Diploma in Architecture Studies in UCSI University, I am currently doing my internship at Gibert & Tan. The task I have done throughout my internship: cindy02xinqi@gmail.com +60 135215339 https://issuu.com/xinqiii

COMPANY INTRODUCTION

GIBERT&TAN is an incorporated architecture, planning, interior and design studio directed by Michael Gibert & Tan Seok Foong. The studio was founded on the premise that a small but expert group of individuals can deliver outstanding buildings. Their prism is in a permanent search for an accurate interaction with the present, attentive and non-arrogant, with collaboration standing at the core of our methodology. Their interest does range from the pragmatic to the poetic and they endeavour to bring these conditions together to truly impact those who experience our works in real time.

01

LOGBOOK COMPILATION

02

PROJECTS INVOLVED

SRI HARTAMAS TOWNHOUSE

EAGLE CAMP

RORL SIERRAMAS

PV AMPANG

Throughout these project, I have been exposed in various stages from conceptual, presentation and tendering phases. I have also experienced how to do proper detailing and learning more advanced skill in my software skills such as Sketchup and Autocad.

03

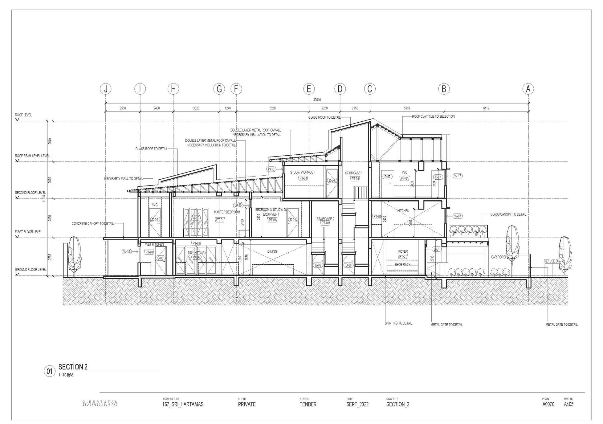
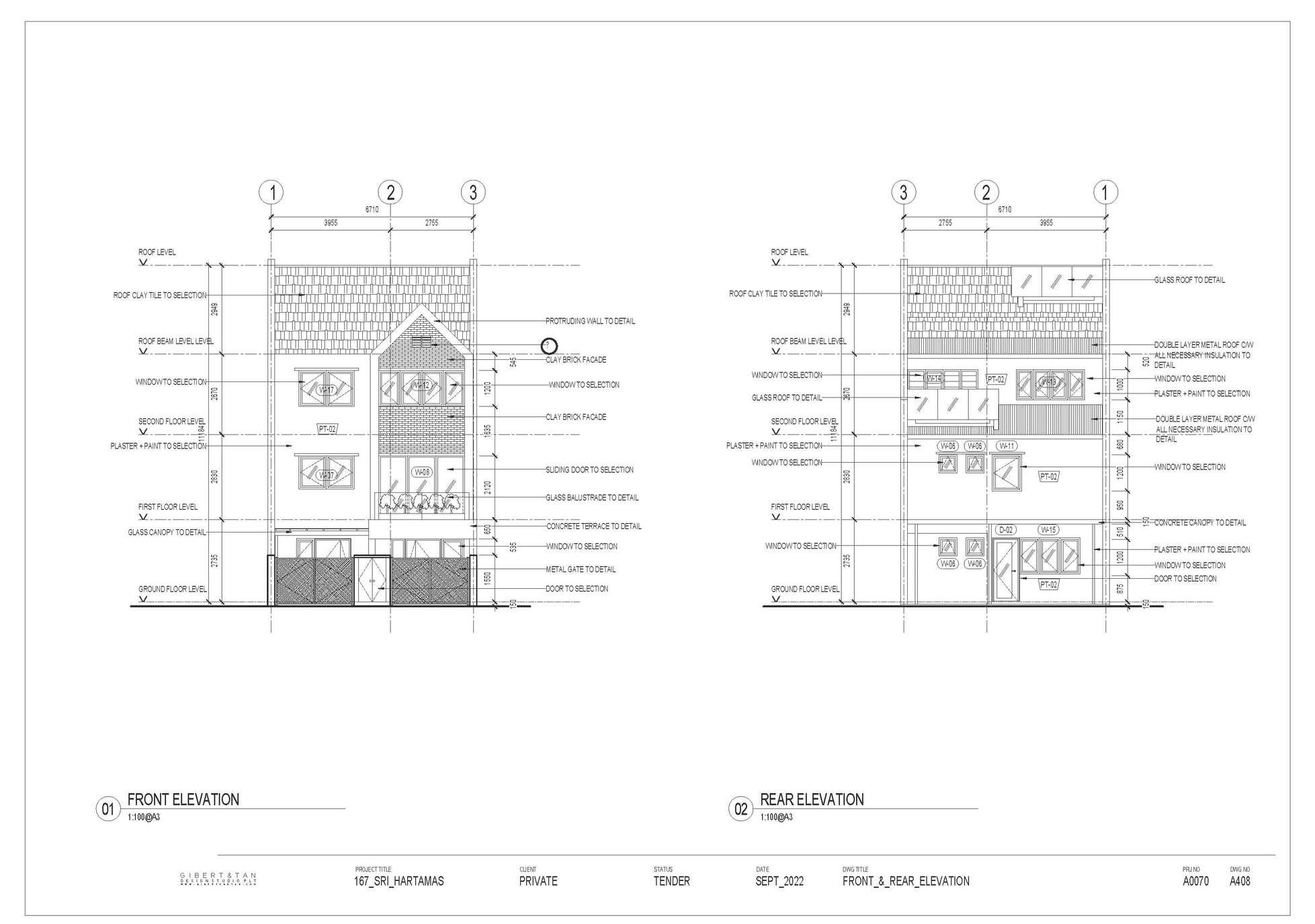
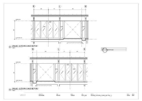
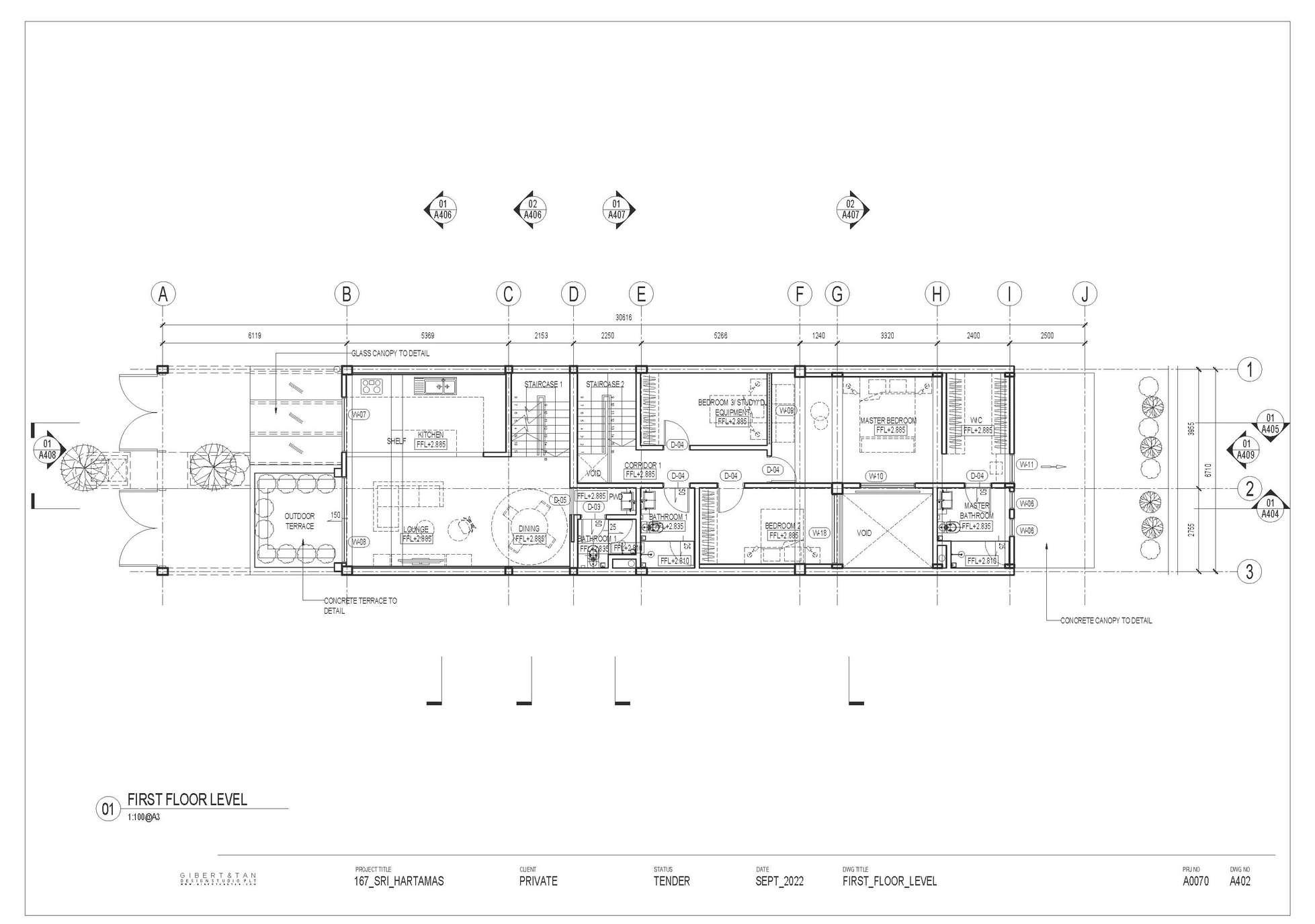
SRI HARTAMAS TOWNHOUSE

Sri Hartamas Townhouse is renovation project located at Sri Hartamas. What the client wish to renovate is the whole building from exterior to interior with some extension. This project I was involved at the conceptual phase to tendering phase

The task that I have done:

Space planning

3D modelling

2D drawing

Tender drawing

Site measure

EAGLE CAMP

Eagle camp is a glamping site located in Bukit Tinggi, Bentong, Pahang which will be launching soon as Camp Lu Ying. In this project, I have assisted in producing master plan, presentation and detailing for some units. This project does not required much construction as most of the units will be 'DIY' by the contractor.

here to watch presentation videos of units
Scan

RORL

RORL sits in a quiet neighborhood in central Kuala Lumpur. Our design proposal for this renovation of an old bungalow reconsiders an hybrid of tropical architecture to provide a relaxed ambiance to the headquarter of a law firm that is to house also an experimental coffee shop and an art gallery.

The task I'm assigned to do was to do a 3D model of the driveway with different pattern of brick with the floor plan given.

PV AMPANG

PV Ampang is a high rise project located in Ampang, Kuala Lumpur. In this project, we are handling the interior design. For this project, I was tasked to produce template for tendering drawing for each common areas in this building to further enhance it later on for the next person who will be handling it.

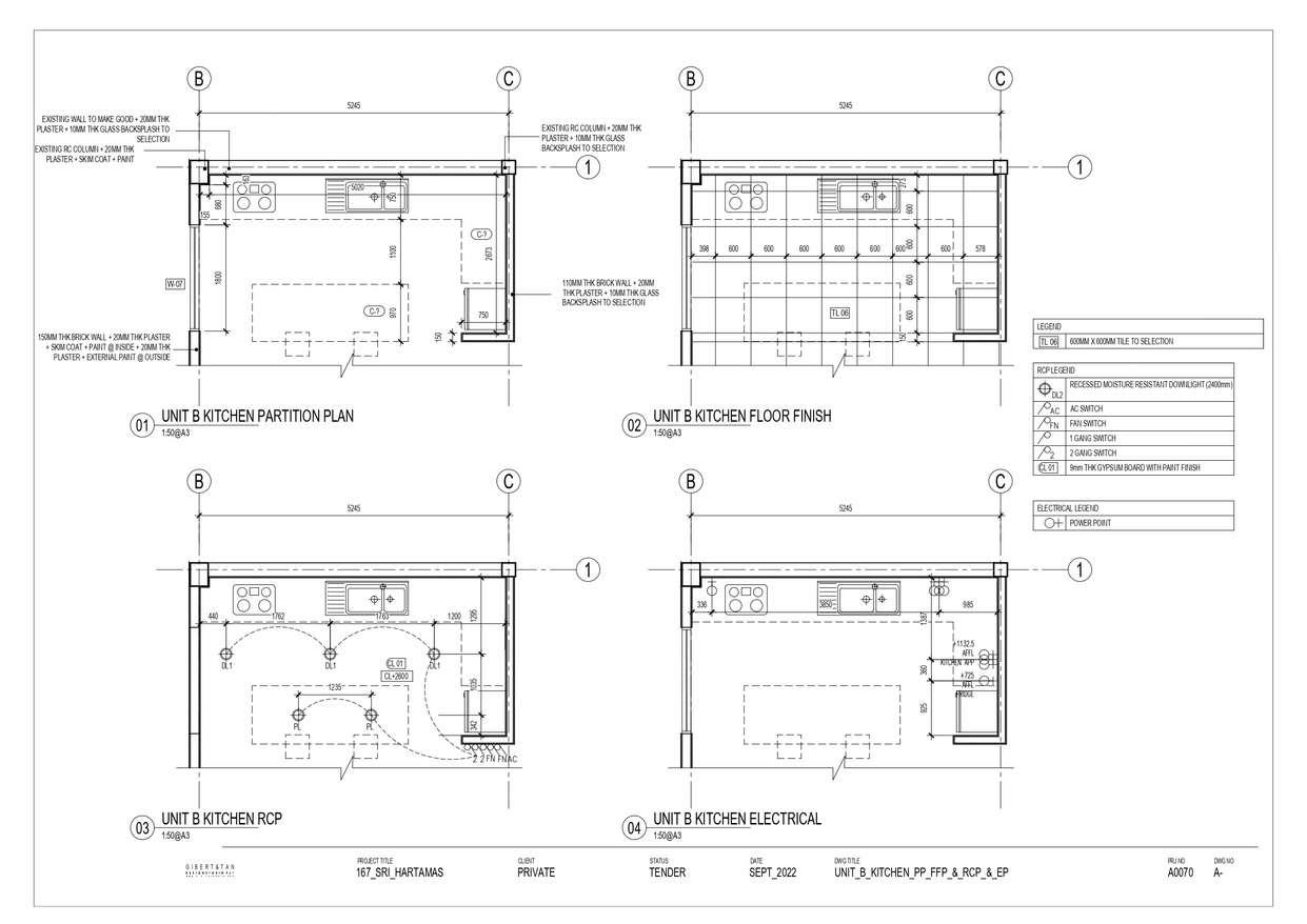
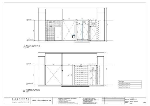
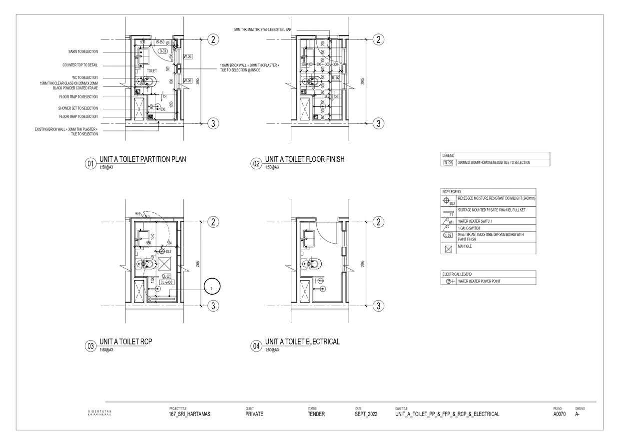
SIERRAMAS

Sierramas is a bungalow project that is still under design development. The task I have done for this project is to prepare template for interior tender drawing such as partition plan, floor finish plan, electrical plan, rcp plan and elevations to be further enhance by the next person who will be handing the project.

Thank you

In conclusion, I have learnt and experience a lot especially in tender drawing and advancing my software skills and critical thinking skills. Through my internship here, I believe that I have grow a lot in organizing, technicality, creativity, thinking and many more that leads to where I am today.

Turn static files into dynamic content formats.

Create a flipbook
Issuu converts static files into: digital portfolios, online yearbooks, online catalogs, digital photo albums and more. Sign up and create your flipbook.
Diploma_Internship Portfolio by xinqiii - Issuu