ARCHITECTURE PORTFOLIO - Wulan Maulina Lukitawati

Page 1

ARCHITECTURE PORTFOLIO 2021 - 2023 wulan maulina lukitawati

EDUCATION

2013 - 2017

Wulan Maulina Lukitawati S.Ars

A responsible and adaptable person who enjoys challenges and personal achievement. Have a proven capability to ensure architectural projects are functional, safe and economical with the needs of the client. Easy going and capable to get along with work environment and have an ability to identify and deal with client's needs then translating them into appropriate technical solutions

+6285200970052 maulinawl@gmail.com South Tangerang, Indonesia

WORK HISTORY

Jan 2016 - Mar 2023 Yogyakarta, ID

Aug 2018 - Nov 2019 East Jakarta, ID

Nov 2019 - Mar 2020 Bekasi, ID

Dec 2020 - now South Tangerang, ID

DIPONEGORO UNIVERSITY

Bachelor of Architecture Engineering

GPA 3.45

ARCHITECT INTERN

PT. M3 PROPERTY

JUNIOR ARCHITECT

URBANMONKEES STUDIO

ARCHITECTURE SUPERVISOR

PT. Dinamika Teknik Selaras

ARCHITECT

PT. Gagas Arsitektur Persada

NOTABLE CERTIFICATES

Oct 29th 2022

Penataran Keprofesian Kode Etik dan Kaidah Tata Laku Arsitek

Issued by : Ikatan Arsitek Indonesia (Jawa Tengah)

Jul 16th 2023

Penataran Pengembangan Keprofesian Arsitek 1

Issued by : Ikatan Arsitek Indonesia (Jawa Tengah)

SOFTWARE EXPERTISE

• 2D AUTOCAD

• Trimble SketchUp

• Lumion

• Vray for SketchUp

• Adobe Photoshop

• CorelDRAW

TABLE OF CONTENTS Alana Signature Residence Residential Area (2021) 03 The Patio Premiere Residential Area (2021) 05 Amara Residence Residential Area (2022) 07 Lumina House Private Residential (2021) 09 Puri Bintaro House Private Residential (2022) 11 DH House Private Residential (2022) 13 Mertilang House Private Residential (2023) 15 Ruko Kasuari Commercial Building (2023) 19 RZ Boarding House Residential (2023) 17 17 11 09 15 13 Completed Projects 21

alana signature residence

Location : Jl. Kelurahan Buaran, Serpong South Tangerang

Building type : Residential Area

Year : 2021

Status : Under construction

Involvement as : Architect

Alana Signature Residence 03

SOFTWARES

Alana Signature Residence 04

the patio premiere residence

Location : Jl. Palapa, Ciputat, South Tangerang

Building type : Residential

Year : 2021

The Patio Premiere 05

SOFTWARES

The Patio Premiere 06

amara residence

Location : Jl. Abdul Wahab, Sawangan, Depok, West Java

Building type : Residential Area

Year : 2022

Status : Under construction

Involvement as : Architect

Amara Residence 07

SOFTWARES

Amara Residence 08

lumina house

Location : Discovery Lumina Residence, Bintaro Jaya, South tangerang

Building type : Private Residential

Year : 2021

Status : Completed

Involvement as : Architect

SOFTWARES

Lumina House 09
Lumina House 10 1 2 3
Bedroom Living Room
Master

PURI BINTARO HOUSE

Location : Jl. Puri Bintaro no. 29A, Bintaro Jaya, South Tangerang

Building type : Private Residential

Year : 2022

SOFTWARES
11
Puri Bintaro House

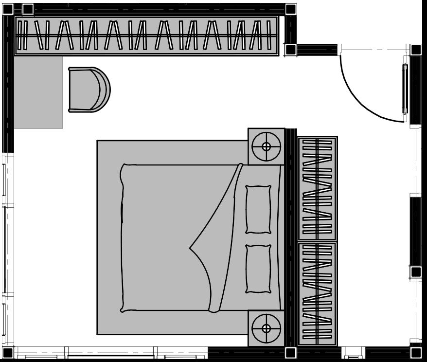
Master Bedroom

Puri Bintaro House 12
Living Room

mertilang house

Mertilang House 13

Master Bedroom

Mertilang House 14

DH HOUSE

Location : Cluster Sutera Harmoni, Serpong Utara, South Tangerang

Building type : Private Residential

Year : 2022

Status : Purposed Involvement as : Architect

SOFTWARES DH House 15
DH House 16
Living Room

rz boarding house

Location : Bintaro Sektor 7, South Tangerang, ID

Building type : Residential

Scope of work : Architecture

Status : Proposed design

Involvement as : Architect

RZ Boarding House 17

SOFTWARES

RZ Boarding House 18

ruko kasuari

Location : Jl. Kasuari, Bintaro Sektor 9, South Tangerang

Building type : Commercial Building

Scope of work : Architecture

Status : Completed

19
Ruko Kasuari

SOFTWARES

20
Ruko Kasuari
Completed Projects 21
RUKO KASUARI
MERTILANG HOUSE AMARA RESIDENCE
LUMINA HOUSE ALANA SIGNATURE RESIDENCE PURI BINTARO HOUSE THE PATIO PREMIERE

Turn static files into dynamic content formats.

Create a flipbook
Issuu converts static files into: digital portfolios, online yearbooks, online catalogs, digital photo albums and more. Sign up and create your flipbook.