HongjiZhu_From Language To Discourse(Behind The Scences Ver)

Page 1

Discourse

From Language To Behind The Scences Version

From the Method of Language Description to the Study of Modernity Discourse System

Where should my MIND drift towards the alienation force of modernity in the context of architecture?

HONGJI ZHU'S PORTFOLIO

PREFACE CONTENTS

"Discourse" ( 话语 ) carries multiple layers of meaning in the Chinese context. In the field of theoretical linguistics, it is narrowly defined as the exchange of linguistic information and communication within specific cultural contexts. On the philosophical front, discourse is regarded as a crucial component of societal power, as mastery of discourse equates to control over the perception of the world. Societal theories often consider discourse as a window through which to probe power dynamics . This diversity of meanings provides us with an opportunity to reflect upon the significance of discourse in the field of architecture from various perspectives.

In the realm of language and text, logical philosophy advocates maintaining silence on metaphysical matters, seeking to clarify the boundaries between highly abstract entities and reality through precise descriptions. Conversely, literary figures and poets approach these issues from a different standpoint, employing imagery and metaphor to narrate elusive sensations. From an architectural standpoint, can we consider these two approaches as a spatial methodology? That is, how to define methods for accurately describing space and how to imbue spatial materials with narrative capabilities

Within the domain of social theory, discursive power represents control over discourse and functions as a societal power, influencing people's cognition and understanding of the world. In a global context, the discourse system is dominated by capital as the paramount power, held by those in control of discursive power. Examining the urban context, the intrusion of modernization has brought about transformations in the subjectivity of urban discursive power. This transformation, while offering developmental advantages, also introduces a myriad of issues such as urban spatial justice and cultural authenticity. In the exploration of discursive power, the questions arise: how to define a correct stance, how to identify the paradoxes of development within the harsh reality of clichés, and based on this foundation, how to reshape an alternative history of urbanism?

This collection showcases five representative works in my exploration of these domains, yet the exploration in this field is far from concluded.

CHAPTER1: WONDERFUL LANGUAGE(S)

1.1. The Grammar of Architecture

-Theoretical research

1.2. An Unspeakable Thing

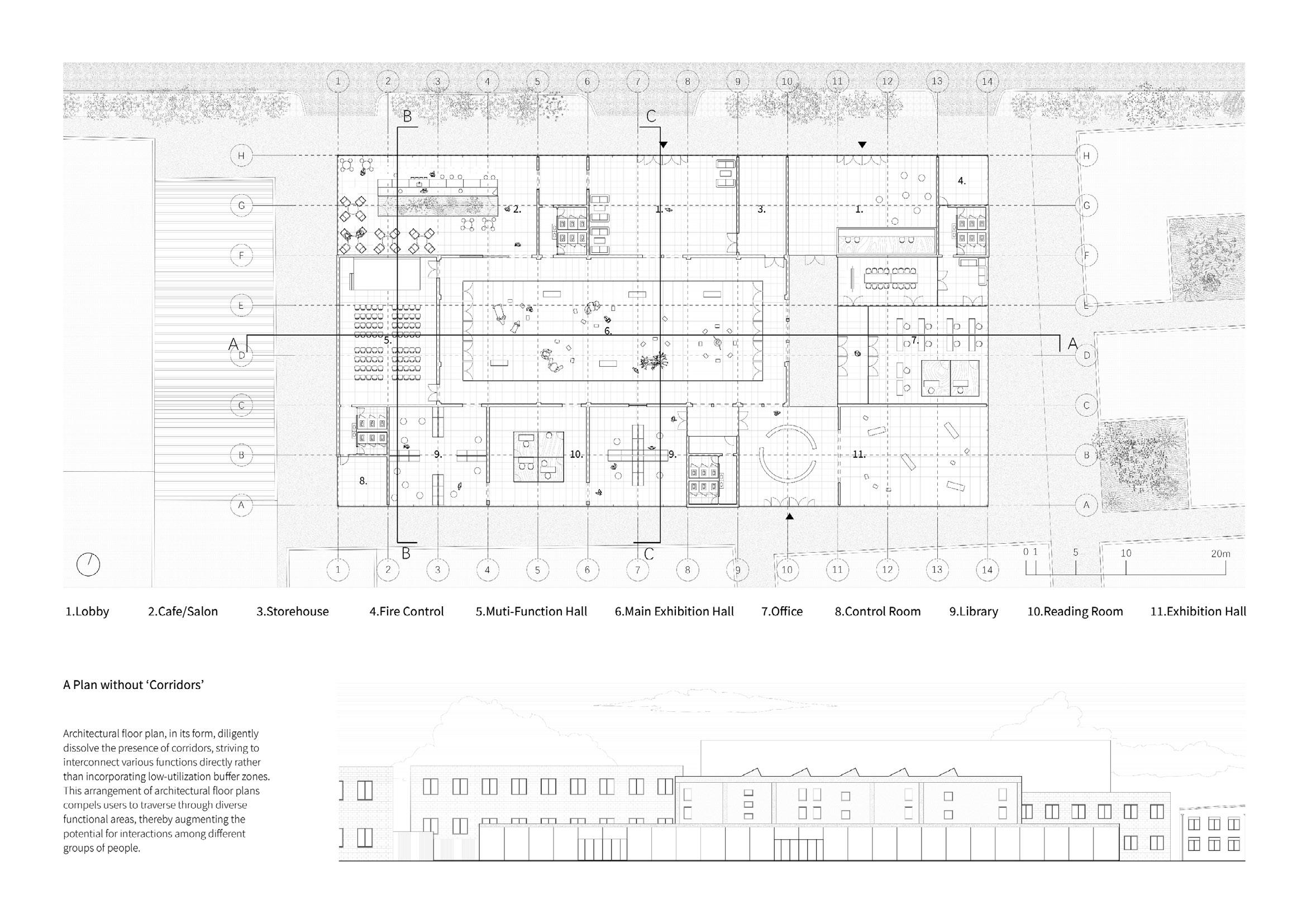
-Community Center as theoretical practice

1.3. Is The Traveler A Gaint Lying Down In The Wilderness?

-Rural Bus Terminu

CHAPTER2: "SILENT CULTURE", LOUD MODERNITY

2.1. Dignity & Resistance

-Urban village renovation

2.2. Authenticity Through Performance

-Moroccan traditional culture protection program

2.3. From the Past to Vernacular(-)Modernity

-Observing Suzhou's modernity through the Process of Urbanism's Historical Development.(Research & Thesis)

3-8

9-12

13-20

21-27

28-34

35-42

CHAPTER1: WONDERFUL LANGUAGE(S)
CHAPTER1: WONDERFUL LANGUAGE(S)
CHAPTER1: WONDERFUL LANGUAGE(S)
CHAPTER1: WONDERFUL LANGUAGE(S)
CHAPTER1: WONDERFUL LANGUAGE(S)
CHAPTER1: WONDERFUL LANGUAGE(S)
CHAPTER1: WONDERFUL LANGUAGE(S)
CHAPTER1: WONDERFUL LANGUAGE(S)
CHAPTER1: WONDERFUL LANGUAGE(S)
CHAPTER1: WONDERFUL LANGUAGE(S)
CHAPTER1: WONDERFUL LANGUAGE(S)
CHAPTER1: WONDERFUL LANGUAGE(S)
CHAPTER1: WONDERFUL LANGUAGE(S)
CHAPTER1: WONDERFUL LANGUAGE(S)
CHAPTER1: WONDERFUL LANGUAGE(S)
CHAPTER1: WONDERFUL LANGUAGE(S)
CHAPTER2: "SILENT CULTURE", LOUD MODERNITY
CHAPTER2: "SILENT CULTURE", LOUD MODERNITY
CHAPTER2: "SILENT CULTURE", LOUD MODERNITY
CHAPTER2: "SILENT CULTURE", LOUD MODERNITY
CHAPTER2: "SILENT CULTURE", LOUD MODERNITY
CHAPTER2: "SILENT CULTURE", LOUD MODERNITY
CHAPTER2: "SILENT CULTURE", LOUD MODERNITY
CHAPTER2: "SILENT CULTURE", LOUD MODERNITY
CHAPTER2: "SILENT CULTURE", LOUD MODERNITY
CHAPTER2: "SILENT CULTURE", LOUD MODERNITY
CHAPTER2: "SILENT CULTURE", LOUD MODERNITY
CHAPTER2: "SILENT CULTURE", LOUD MODERNITY
CHAPTER2: "SILENT CULTURE", LOUD MODERNITY
CHAPTER2: "SILENT CULTURE", LOUD MODERNITY
CHAPTER2: "SILENT
CULTURE", LOUD MODERNITY
CHAPTER2: "SILENT CULTURE", LOUD MODERNITY
CHAPTER2: "SILENT CULTURE", LOUD MODERNITY
CHAPTER2: "SILENT CULTURE", LOUD MODERNITY
CHAPTER2: "SILENT CULTURE", LOUD MODERNITY
CHAPTER2: "SILENT CULTURE", LOUD MODERNITY

Choose An Auspicious Day

Paintings For Tianning

Temple in Changzhou

Fine Art Project 2024.2

Hongji Zhu

Tel: +86 18118018917 | Email: hongji828@outlook.com | Beijing,

Central Academy of Fine Arts Beijing, China 09/2019-Present Major: Architecture | GPA: 85.05% Degree: BArch degree expected in 06/2024

Professional Experience

Special Instructor | Beijing Union University Beijing, China 09 - 10/2023

·Led software teaching and design courses for Sophomore students, emphasizing a digital software-based design approach using Rhino and Grasshopper.

·Guided students in developing a comprehensive understanding of design principles through hands-on practical application.

Architect Assistant | ECE Architectural Design Consulting Co. Ltd. Shanghai, China 12/2021 - 03/2022

·Spearheaded architectural facade design, detailed modeling, architectural layout, and text formatting during the schematic design (SD) phase.

·Earned top recognition among supervisors, showcasing strong bilingual communication, BIM modeling, and interdisciplinary teamwork skills.

Architect Assistant | Shanghai UEA Architectural Design Co. Ltd. Changzhou, China 07 - 08/2021

·Actively participated in the creation of visualizations, analysis diagrams, and textual content for residential building projects.

·Assisted the team in the overall layout of residential building master plans.

·Skills developed: software proficiency (Photoshop/CAD), teamwork.

Participant| Rural Revitalization Working Team of Nanjing University Changzhou, China 07 - 08/2020

·Engaged in the protection and design of architectural heritage sites, focusing on surveying and proposing renovation solutions for ancient building relics.

·Demonstrated proficiency in architectural surveying, contributing to the development of innovative transformation proposals for historical sites.

·Skills developed: teamwork, interdisciplinary coordination, and presentation skills.

Extracurricular Activities

Participant, Digital Futures Workshop, Digital FUTURES Association Nanjing, China 06-07/2022

·Acquired practical experience in the sculptural design methods within architectural design, delving into the inherent possibilities of this approach.

Member of Curator Team, Yu Xiaodong & Masters from Repin Academy Exhibition Beijing, China 09-10/2019

·Contributed to the organization of exhibits and provided explanations for the artworks.

Honors

·Outstanding Works Award, CAFA, 2023

Outstanding Student Scholarship, CAFA, 2022

·Third Prize, BIAD Scholarship, 2022

Silver Award, 3rd Hong Kong Contemporary Design Awards – Autumn Contest, 2022

·Shortlisted, Reshape the Tower of Memory- Jiaxing Nanhu Water Tower Design Competition, 2021

Other works

Turn static files into dynamic content formats.

Create a flipbook
Issuu converts static files into: digital portfolios, online yearbooks, online catalogs, digital photo albums and more. Sign up and create your flipbook.
HongjiZhu_From Language To Discourse(Behind The Scences Ver) by Hongji Zhu AKA Wordsounth - Issuu