Brad Croton: Architecture Plus-Professional Portfolio

Page 1

Architectural

Hi, I'm Brad Croton, it’s never to late to change your career, start learning or experience the new. I am a Gri th University, mature aged, Pre- Graduate, of a Bachelor of Architectural Design. Environmentally focused and passionate about self-sustainable living through ecient and climate responsive building design. I bring life experience, interpersonal, adaptable, goal oriented and a team focused skill set to any business and look forward to hearing from you.

ACHIEVEMENTS & AWARDS

Parent-Hood 2000-present

Customer Service Award (Bunnings)

Gri

Academic Excellence Award

Golden Keys International Honours Society

EDUCATION

Loganlea State High School

Cert 2 Food Safety Supervisor 2010

Contractors License (RESTRICTED) 2013

BA Architectural Design (under graduate) 2018-present

RELEVANT WORK HISTORY

Self-Employed @ Desert Rain Records 1993-2000 Bunnings Warehouse 2000-2013

Qld Sales Rep for Zarif Imports 2007-2009

Self-Employed @ Jollybean Espresso 2007-2014

Contractor- Maintanence & Repair 2014-present

manager @ Jimboomba Car Wash 2020-2022

SKILLS SOFTWARE

2011
th
2018 2020
2020
1991
Electrical
• GPA 6.3
Duty
• Carpentry • Revit • Sketchup • Endscape • Repair Work • Illustrator • Photoshop • Indesign • Premier pro • Microsoft Word
portfolio CURRICULUM VITAE • TRANSFERABLE SKILLS • ACTION-BASED CAREER PLAN • UNIVERSITY REFLECTION Photo by Brad Croton: Freedom Towers New York City, 2019 https://issuu.com/wingnut49/docs/brad_croton_portfolio LINKS

Architectural portfolio CURRICULUM VITAE • TRANSFERABLE SKILLS • ACTION-BASED CAREER PLAN • UNIVERSITY REFLECTION

TEAM WORK

Having, spent thirteen years within the ‘Team’ based culture of Bunnings, has re-enforced the importance of working together and co-ordinating e orts within the work place, for more a ective outcomes. University, has utilised and strengthened this team based foundation of open discussion and goal focused outcomes.

INTERPERSONAL • CULTURAL FITNESS

Customer service, con ict resolution, and how we approach them, are crucial elements of any success ful business. How we might approach a situation needs to be considered constructively; Customer focused, while considering the closely linked inter ests and well-being of the business we are support ing. Hardware retail, has re-enforced the value of respectful and balanced con ict resolution using attuned interpersonal skills acquired over many years.

LISTEN • UNDERSTAND • RESOLVE

COMMUNICATION • RESULTS

Communication was the job, two years as a state sales rep, for new to Queensland garden-ware importer, meant good communication and negotia tion instrumental for success.

A statewide position also required, rigorous time management and sales targets, in order to achieve a state presence.

ETHNICALLY- CROSS CULTURAL

I have been fortunate enough, to experience a broad amount of traveling. Engaging, with open ness to di erent cultures, is humbling. This, experi ence has instilled a deeper respect for people, and cultural diversity. Amongst the highlights are many solo trips to Vietnam, traveling of the beaten tracks and acquiring some life-long friendships.

PLANNING • ORGANISING • TIME MANAGEMENT

As any dedicated parent will attest to, raising children is not an easy feat. It could be said that it teaches and requires all of the skills required to run a business and more, but 24/7. Parenting has given me, planning, organising, interpersonal relationship, time management skills and resilience.

INITIATIVE • LEARNING • ENTERPRISE • ADAPTABILITY • RESILIENCE

A substantial portion of my working life has cen tered around various forms of self-employment. Building a business from the ground up required pure initiative, entrepreneurial spirit and resil ience, as businesses take time to build.

Academia, has not come naturally, requiring increased levels of adaptability and resilience in moving through a degree, in order to achieve set goals.

Learning new skills and re-learning forgotten, has been challenging.

Architectural portfolio

VITAE

SKILLS

ACTION-BASED CAREER PLAN • UNIVERSITY REFLECTION

Work Remotely Free lance Design Part-time

TODAY

Graduate Architectural Design

NaTHERS

Energy Efficiency Coarse

Improve Software Skills Prepare Building Designers License

• Potential work ST Constructions

• Pursue, the Disability the Design Field by being involved in my Nephews post accident, accommodation, rebuild of his residence. In addition cold calling & face to face canvasing.

THE FUTURE

The future, for me is about strengthening my current skill set with the intention of being an e ective, Environmentally focused, building designer, specialising in self-sustainable living, for the a ordable housing market.

I feel this is better achieved being apart of the design build, process for independent builders, which pres ents opportunities to in uence and perhaps, shift thinking at the ground level, encouraging much-needed change to dated building methods in Australia. ST Constructions, is a builder, I have contracted to before and have shown interest In my Architectural studies once complected. To open, any opportunities I aim to attend any trade fairs or exhibitions that might arise.

I also have an interest in pursuing design work in the disability eld, if a position became available.

Nathers, energy e ciency coarse will also improve employment opportunities once completed, as star ratings are required for any new build.

The
2022
RETIRE 2023 2026 2038
CURRICULUM
• TRANSFERABLE

Architectural portfolio

VITAE • TRANSFERABLE SKILLS

Brisbane

Green Urban Corridor

ACTION-BASED CAREER PLAN • UNIVERSITY REFLECTION

REFLECTION

The Green Urban Corridor project certainly presented challenges when having to rep-present a design that went beyond four walls and a roof, in terms of documentation. A structure over water, meant attaining a certain amount of clearance, and ultimately being curved. From the outset, Revit was used, and once underway I soon realised, that perhaps I had chosen an inappropriate set of tools for that particular task and skill level, at that time. The initial choice, reduced limited available time and added stress to the pro cess.Sketchup, was the action taken. This software was better suited to free formed and curvature modeling and relatively easy to achieve the desired outcome within a now limited time frame. The project was delivered on time and yealled a successful outcome, but not without added stresses.

Re ecting, on this situation, highlights importance of pre-planning and appropriate selection of tools based on current skill levels and highlighted the need for more intensive training, to increase software e ciency. Relat ing, this to the work place would mean seeking advice from peers as a means of learning and being a more e ective employee.

CONCEPT: HELICAL FLOW ZONES GREEN URBAN
CORRIDOR: STUDIO 4
CURRICULUM

Architectural

EAST ELEVATION REFLECTION

The ‘Whale Folly,’ was the rst hand drawn design project of the BA of Architectural Design. Academia, had never come naturally, and was an area that was going to required hard work and resilience.

Being a Mature aged student, meant graduation from high school was a life- time ago (30yrs). Over that time you tend to develop processes, habits, and unique ways of doing things that become re exes. Returning to study, particularly higher education was a daunting prospect. But, I'm not one to let inhibition and hard-work be the hurdle in forging new pathways.

Under taking a Design Degree, meant adapting to study after a lengthly hiatus and in some instances, unlearning how to approach a given task.

The Whale folly was my introduction to the design process and was included within this portfolio, as it was an early instance of placing aside, before mentioned habitual ways of doing things and trust in the process of design; no preconceived Ideas or desires, just a process that will lead to an end result. In trust I placed. The end result, was eye opening to me and well received, fueling a continuation of the degree with gusto.

This, experience highlights that, you are never to old to learn new and improved ways of achieving successful outcomes. Being exible to others experience, Ideas and methods can yield and enrich team spirit, work place experience, productivity and ultimately your life.

WHALE FOLLY: STUDIO 1
portfolio CURRICULUM VITAE • TRANSFERABLE SKILLS • ACTION-BASED CAREER PLAN • UNIVERSITY REFLECTION FORMS- STONE ITERATIONS PLAN VIEW 1:50

Architectural portfolio

REFLECTION

The ‘Shop House’ Burliegh, another early, yet challenging project within the degree. Challenging, because at that time, my software experience was nil and hand drawing a intricate design would have been overly ambitious endeavor limited by time. Although, a steep learning curve existed, I was able to learn enough to produced required views for the oor plans, but produced the remaining within Photoshop (Ps), for me, another ‘learn as you go’ application to adapt to. Not without falter. Unbeknown to me, Opening a le in PS, the standard way, does not consider the scale of the original le. This, produced an inaccurate scale to the nal output; a costly error re ected during assessment. This, type of error, could correlate to a monetary/client error in the work place, as simple typo’s can cost considerably if work is not reviewed. Experienced, or not, everyone makes mistakes. This experience, stresses the importance, of delegation, team work, processes and peer reviewing work.

THE SHOP HOUSE: STUDIO 2
CURRICULUM VITAE • TRANSFERABLE SKILLS • ACTION-BASED CAREER PLAN • UNIVERSITY REFLECTION

Architectural portfolio

REFLECTION

PLAN

REFLECTION

The design concept and approach for a Community Centre, Southport centered around the local and original custodians of the Gold Coast area (the Minjungbal People). Indigenous cultures have a deep sense of community, family, connection to the land and like many of our country’s Indigenous, central to life and well-being. Totem animals are a equally important element of Indigenous culture and were researched and included within the projects concept and design.

The Ba of Architectural design, aims to instill a sense of equality to all Australians. This aspect and view has opened my eyes to the importance of incorporating inclusive and culturally considerate design. Equitably, design approaches ultimately aim to augment the Australian narrative towards our Indigenous, one of equality and respect. Things of which I will Take with me through my personal life and career.

COMMUNITY CENTRE: STUDIO 3
CURRICULUM VITAE • TRANSFERABLE SKILLS • ACTION-BASED CAREER
• UNIVERSITY

Architectural

REFLECTION

Operational Architectural History, Is included within the new line of curriculum at Gri th University. A new Interpretation of history curriculum, meant an opportunity to interpret, curate and produce an exhibition, centering around a chosen architect. For me, this experience, and Louis Kahn’s body of work repre sented an opportunity to apply writing skills in combination with hands on skills acquired over a working life. The choice, to interpret this task using physical models and light, yielded a responsive result from fellow students and teaches a like; resulting In six pieces being displayed within the entrance of the building. Although, the majority of responses from fellow students were within the digital domain, most were equally inspiring to me. On re ection, although people, younger or older have di erent approaches, both can teach and inspire the other, have value and manifest equality within a work place.

portfolio CURRICULUM VITAE • TRANSFERABLE SKILLS • ACTION-BASED CAREER PLAN • UNIVERSITY REFLECTION ART EXHIBITION: OPERATIONAL ARCHITECTURAL HISTORY https://issuu.com/wingnut49/docs/louminous_exhibition_brad_croton

Architectural portfolio CURRICULUM VITAE • TRANSFERABLE SKILLS • ACTION-BASED CAREER PLAN • UNIVERSITY REFLECTION

SPECIAL MEDIA TOPIC: DESIGN COMPETITION-SPACE CAMP

REFLECTION

Theres, a broad spectrum of design competitions out there to choose from on an annual basis. The Special Media Topic coarse o ered In the third trimester 2020 required the participant to choose one. The trimester allowed, for choices outside of convention. Wanting to challenge myself to something ‘out side the box’, drew me to the ‘The Jurassic Space Camp, with a Poetic response’. Inspired by a stunning, Praia Canyon, Vermilion Cli s Wilderness Area setting in Arizona, USA, resulted In the free-form alien like interpretation to the left. This was a fun and interesting project, that re-iterates that we should always nd the joy in what we do and to take a break away from the serious from time to time, as enjoyment and creativity are important, and can bene t many aspects of your life.

Architectural portfolio

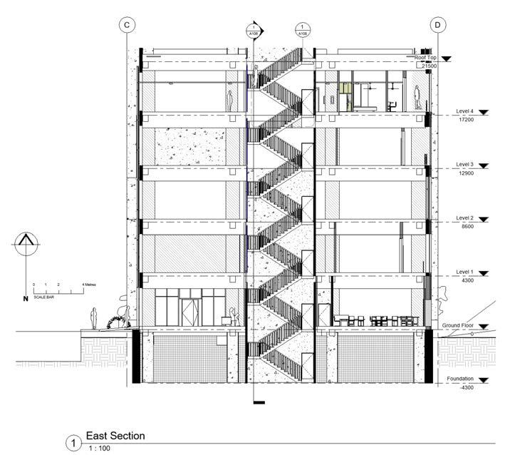
BUILDING CONSTRUCTIONS AND SERVICES: URBAN LIVING PROJECT

MAIN PERSPECTICE

REFLECTION

The Building, construction and services coarse, was to design a mid-rised building of choice, but was in large to understand the services and essential infrastructural elements of a functioning building. A solo, project centered around the introduction of detailed drawing and documentation of structures. The documentation phase of this coarse added to an appreciation of detail, reiterating the importance of strengthening this valuable skill. This project, also improved CAD (Revit) based e ciency, while drawing upon existing organisation and time management skills.

CURRICULUM
VITAE • TRANSFERABLE SKILLS • ACTION-BASED CAREER PLAN • UNIVERSITY REFLECTION

Turn static files into dynamic content formats.

Create a flipbook
Issuu converts static files into: digital portfolios, online yearbooks, online catalogs, digital photo albums and more. Sign up and create your flipbook.