PORTAFOLIO DE PROYECTOS BIM - 2022

Page 1

ARQ. WILSON CUBA CANDIA

Coordinador de proyectos BIM 2022

WilsonCuba

PROYECTOS PÚBLICOS Y PRIVADOS

PORTAFOLIO DE PROYECTOS BIM 2022
Cel. 961780316
ARQ. WILSON CUBA CANDIA “Coordinador de proyecto BIM” wilson.cubac@outlook.com
PORTAFOLIO DE PROYECTOS BIM 2022
Cel. 961780316
ARQ. WILSON CUBA CANDIA “Coordinador de proyecto BIM” wilson.cubac@outlook.com

PROYECTO #66 – LEVANTAMIENTO FOTOGRAMÉTRICO – RIO HUATATAS

FICHA TÉCNICA

Proyecto: N° 66

Propietario: MUNI – A.A. CACERES

Ubicación: Ayacucho – Rio Huatatas

Área: 5 Km.

Fecha: enero 2022

Función: Catastro

wilson.cubac@outlook.com

Cel. 961780316

PORTAFOLIO
PROYECTOS
DE
BIM 2022
ARQ. WILSON CUBA CANDIA “Coordinador de proyecto BIM”

PLANO DE PERFILES TOPOGRÁFICOS DEL RIO HUATATAS

PORTAFOLIO DE PROYECTOS BIM 2022 ARQ. WILSON
“Coordinador de proyecto
wilson.cubac@outlook.com Cel. 961780316
CUBA CANDIA
BIM”

PORTAFOLIO DE PROYECTOS BIM 2022

PROYECTO

#67 – DISEÑO DE VIVIENDA MULTIFAMILIAR - AYACUCHO

FICHA TÉCNICA

Proyecto: N° 67

Propietario: A.I.P.B.

Ubicación: AYACUCHO

Área: 160 m2

Fecha: Marzo 2022

Función: Vivienda Multif.

ARQ. WILSON CUBA CANDIA

“Coordinador de proyecto BIM”

wilson.cubac@outlook.com

Cel. 961780316

PORTAFOLIO DE PROYECTOS BIM 2022
Cel. 961780316
ARQ. WILSON CUBA CANDIA “Coordinador de proyecto BIM”
wilson.cubac@outlook.com

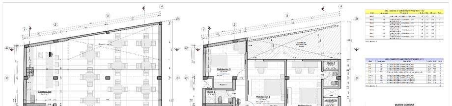
PROYECTO #70 – DISEÑO INTERIOR DE DISCOTECA - AYACUCHO

FICHA TÉCNICA

Proyecto: N° 70

Propietario: DreamsProduc.

Ubicación: AYACUCHO

Área: 400 m2

Fecha: abril 2022

Función: Discoteca.

wilson.cubac@outlook.com

PORTAFOLIO
DE PROYECTOS BIM 2022
ARQ. WILSON CUBA CANDIA “Coordinador de proyecto BIM”
Cel. 961780316
PORTAFOLIO DE PROYECTOS BIM 2022
Cel. 961780316
ARQ. WILSON CUBA CANDIA “Coordinador de proyecto BIM”
wilson.cubac@outlook.com

PROYECTO #72 – HABILITACIÓN URBANA – AYACUCHO – CARMEN ALTO

ARQ. WILSON CUBA CANDIA

“Coordinador de proyecto BIM”

wilson.cubac@outlook.com

Cel. 961780316

FICHA TÉCNICA

Proyecto: N° 72

Propietario: KILLA WASI.

Ubicación: AYACUCHO

Área: 7 hc

Fecha: Mayo 2022

Función: Habilitación Urbana.

PORTAFOLIO DE PROYECTOS
BIM 2022
PORTAFOLIO DE PROYECTOS BIM 2022
Cel. 961780316
ARQ. WILSON CUBA CANDIA “Coordinador de proyecto BIM”
wilson.cubac@outlook.com
PORTAFOLIO DE PROYECTOS BIM 2022
wilson.cubac@outlook.com Cel. 961780316 |
ARQ. WILSON CUBA CANDIA “Coordinador de proyecto BIM”
PORTAFOLIO DE PROYECTOS BIM 2022
Cel. 961780316
ARQ. WILSON CUBA CANDIA “Coordinador de proyecto BIM”
wilson.cubac@outlook.com
PORTAFOLIO DE PROYECTOS BIM 2022
Cel. 961780316
ARQ. WILSON CUBA CANDIA “Coordinador de proyecto BIM”
wilson.cubac@outlook.com
Render 1. Vista exterior de Capilla Render 2. Vista exterior de Parque Hananpacha Render 3. Vista exterior de viviendas tipo 1 y 2
PORTAFOLIO DE PROYECTOS BIM 2022
Cel. 961780316
ARQ. WILSON CUBA CANDIA “Coordinador de proyecto BIM”
wilson.cubac@outlook.com
Render 4. Vista exterior de Parque Kaypacha Render 5. Vista exterior del ingreso Principal Render 6. Vista exterior de vivienda tipo 3
PORTAFOLIO DE PROYECTOS BIM 2022
“Coordinador
wilson.cubac@outlook.com Cel. 961780316
ARQ. WILSON CUBA CANDIA
de proyecto BIM”
Render 7. Vista exterior Render 8. Vista exterior Render 9. Vista exterior

PROYECTO #73 – VIVIENDA UNIFAMILIAR – AYACUCHO

FICHA TÉCNICA

Proyecto: N° 73

Propietario: N.N.

Ubicación: AYACUCHO

Área: 80 m2

Fecha: agosto 2022

Función: Habilitación Urbana.

PORTAFOLIO
DE PROYECTOS BIM 2022
ARQ. WILSON CUBA CANDIA “Coordinador de proyecto BIM”
wilson.cubac@outlook.com Cel. 961780316

PROYECTO #76 – LEVANTAMIENTO Y ANALISIS SOLAR DE RUINAS EN EL

Inclinación

23.5°

Estructura geométrica

FICHA TÉCNICA

Proyecto: N° 76

Propietario: MUNI. CARMEN A.

Ubicación: AYACUCHO

Área: 1,000.00

Fecha: setiembre 2022

Función: Ruinas arqueológicas

PORTAFOLIO DE PROYECTOS BIM 2022
ARQ. WILSON CUBA CANDIA “Coordinador de proyecto BIM”
wilson.cubac@outlook.com Cel. 961780316
Levantamiento Fotogramétrico de la tierra Modelo Digital de Elevaciones CERRO CAMPANAYOQ
PORTAFOLIO DE PROYECTOS BIM 2022
Cel. 961780316
ARQ. WILSON CUBA CANDIA “Coordinador de proyecto BIM”
wilson.cubac@outlook.com

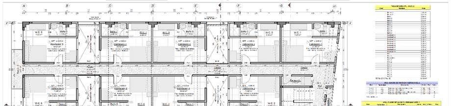
PROYECTO #80 – AMPLIACIÓN DE HOTEL** – AYACUCHO – SAN MIGUEL

FICHA TÉCNICA

Proyecto: N° 80

Propietario: Ponce & Fran Corp.

Ubicación: Ayacucho – San Miguel

Área: 420 m2

Fecha: octubre 2022

Función: Hotel **.

wilson.cubac@outlook.com

Cel. 961780316

PORTAFOLIO DE PROYECTOS
BIM 2022
ARQ. WILSON CUBA CANDIA
“Coordinador de proyecto BIM”
PORTAFOLIO DE PROYECTOS BIM 2022
Cel. 961780316
ARQ. WILSON CUBA CANDIA “Coordinador de proyecto BIM” wilson.cubac@outlook.com

FICHA TÉCNICA

Proyecto: N° 81

Propietario: Diógenes Casaverde

Ubicación: Cusco – Pichari

Área: 200 m2

Fecha: noviembre 2022

Función: Hotel **.

wilson.cubac@outlook.com Cel.

PORTAFOLIO
DE PROYECTOS BIM 2022
ARQ. WILSON CUBA CANDIA “Coordinador de proyecto BIM”
961780316
PROYECTO #81 – DISEÑO DE HOTEL** – CUSCO – PICHARI
PORTAFOLIO DE PROYECTOS BIM 2022
Cel. 961780316
ARQ. WILSON CUBA CANDIA “Coordinador de proyecto BIM”
wilson.cubac@outlook.com

FICHA TÉCNICA

Proyecto: N° 82

Propietario: Armando Godoy Flores

Ubicación: Ayacucho – S.J.B.

Área: 160 m2

Fecha: diciembre 2022

Función: Vivienda Multif.

wilson.cubac@outlook.com

Cel. 961780316

PORTAFOLIO
DE PROYECTOS BIM 2022
ARQ. WILSON CUBA CANDIA “Coordinador de proyecto BIM” PROYECTO #82 – DISEÑO DE HOTEL** – AYACUCHO – SAN JUAN BAUTISTA
PORTAFOLIO DE PROYECTOS BIM 2022
Cel. 961780316
ARQ. WILSON CUBA CANDIA “Coordinador de proyecto BIM”
wilson.cubac@outlook.com

Turn static files into dynamic content formats.

Create a flipbook
Issuu converts static files into: digital portfolios, online yearbooks, online catalogs, digital photo albums and more. Sign up and create your flipbook.
PORTAFOLIO DE PROYECTOS BIM - 2022 by Wilson Cuba Candia - Issuu