PORTFOLIO
William E. Portes-Brito Architecture 2018-24

![]()
William E. Portes-Brito Architecture 2018-24

I am a passionate and driven architecture graduate excited to bring fresh creativity and technical expertise to dynamic projects. With a strong foundation in design principles, sustainability, and industry-standard software, I excel in problem-solving and attention to detail. Adaptable and collaborative, I thrive in team environments and continuously seek opportunities to expand my knowledge. Eager to gain hands-on experience and make a meaningful impact, I am ready to contribute innovative ideas to the world of architecture.
Beyond technical skills, I bring a strong work ethic, creativity, and a commitment to designing functional and visually compelling spaces. I approach challenges with a fresh perspective, developing innovative solutions while staying mindful of practical applications. Driven by a passion for architecture that blends aesthetics with purpose, I look forward to working alongside experienced professionals, refining my craft, and shaping inspiring environments that enhance communities.


Associates of Arts Degree (PBSC) Palm beach State College
Bachelor’s Degree in Architecture Florida Atlantic University (FAU)
Work
Designed simple plans based on client requests while in school, helping bring ideas to life while gaining hands-on experience in architecture.
DZN Architects & Engineering
Assisted project teams with design development, drafting plans, and conducting research to support architectural concepts. Collaborated with senior architects to refine technical drawings, ensure compliance with regulations, and help bring creative visions to life. My role involved preparing presentations, visiting job sites, and occasionally communicating with clients to gain firsthand experience.
Employee
As a costumer service employee in stores, prioritized exceptional customer service while maintaining a clean, organized, and well-stocked store. I ensure shelves are neatly arranged, aisles are clutter-free, and products are easy for customers to find, creating a smooth and enjoyable shopping experience. Punctuality allows me to stay on top of tasks, support my team, and ensure the store runs efficiently, all while delivering friendly and attentive service.
English: native
French: native
Spanish: advanced
SOFTWARE SKILLS















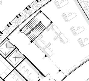
The community center designed for the little Haiti area in Miami, Florida, is envisioned as a dynamic, multifunctional space designed to serve the diverse needs of its residents. The architecture prioritizes accessibility, sustainability, and adaptability, featuring open, light-filled spaces that foster engagement and connection. This center stands as a beacon of empowerment, offering a foundation for personal and communal growth in a welcoming and functional environment.































Programming:
It includes dedicated areas for education, career development, health services, and family support, ensuring a well-rounded approach to community well-being. Thoughtfully integrated indoor and outdoor spaces provide opportunities for recreation and social gatherings, while resource hubs offer essential services
Programming:
On top of serving as the Support that can hold up the building, the design of the outer structure is also meant to provide some shading to the building from the sun. During the day the sun can become quite an issue since it creates a big amount of heat and glareing coming from tne East and the west in the afternoons.
































East Elevation:
























































South Elevation:
































































Key views:












Site View:














































Concept:
This architectural concept envisions a supportive space for the local homeless population in collaboration with a rehabilitation center. The facility will provide essential resources—including food, clothing, and hygiene products—while offering professional development programs to help individuals secure employment. Designed for inclusivity and functionality, the center will foster stability, social reintegration, and personal growth, creating a pathway for a second chance at life.




Repurposing existing buildings is a key strategy in sustainable architecture, reducing waste and minimizing environmental impact. Thismethod was use in by repurposing the structure of an unused wherehouse.













































































Circulation
Programming
Structure














Elegant, sustainable living designed for community and connection.

Concept: Neighborhood view








This modern residential development harmonizes contemporary design with sustainable living. The project features a refined blend of wood paneling, brick exteriors, and expansive glass windows, creating a sophisticated yet inviting atmosphere. Lush greenery and thoughtfully designed pedestrian pathways enhance the connection between residents and their environment while fostering a strong sense of community. By integrating natural materials with sleek geometric forms, this project offers an elegant and sustainable approach to urban housing, prioritizing comfort, aesthetics, and environmental responsibility.










































































































































































































































This peaceful, family-friendly neighborhood offers modern living with comfort and convenience, surrounded by lush green spaces and a welcoming community. Thoughtfully designed homes and pedestrian-friendly pathways create an inviting atmosphere where families can relax and thrive.



























Concept:
The intent of the project is to create a sustainable and vibrant community hub that meets the diverse needs of its residents and visitors. This building will serve as a catalyst for mixed-use development, promoting the integration of residential, commercial, and cultural activities within one space. The building would be designed to foster a sense of community, encourage sustainable practices, and provide a range of spaces and services to support the growth and development of the Wynwood area. The design was also meant to invoke a sence of moving forward and progress with its main structure feature resembling an arrow.




Wynwood, Miami, is undergoing significant development, with new residential, office, and retail spaces transforming the neighborhood. The area continues to evolve as a vibrant hub, blending modern urban design with its artistic and cultural heritage.
-Jigsaw Parking Garage
-Lobby Area
-Commercial Area/Cafe
-Park/Gathering Area
-Offices
-Atrium & Terraces
-Art Gallery and Art Studios
-Studio Appartments
-2 & 1 Bedroom Appartments
-Amenities
-Gym
-Rooftop Terrace/Gathering
-Green Space









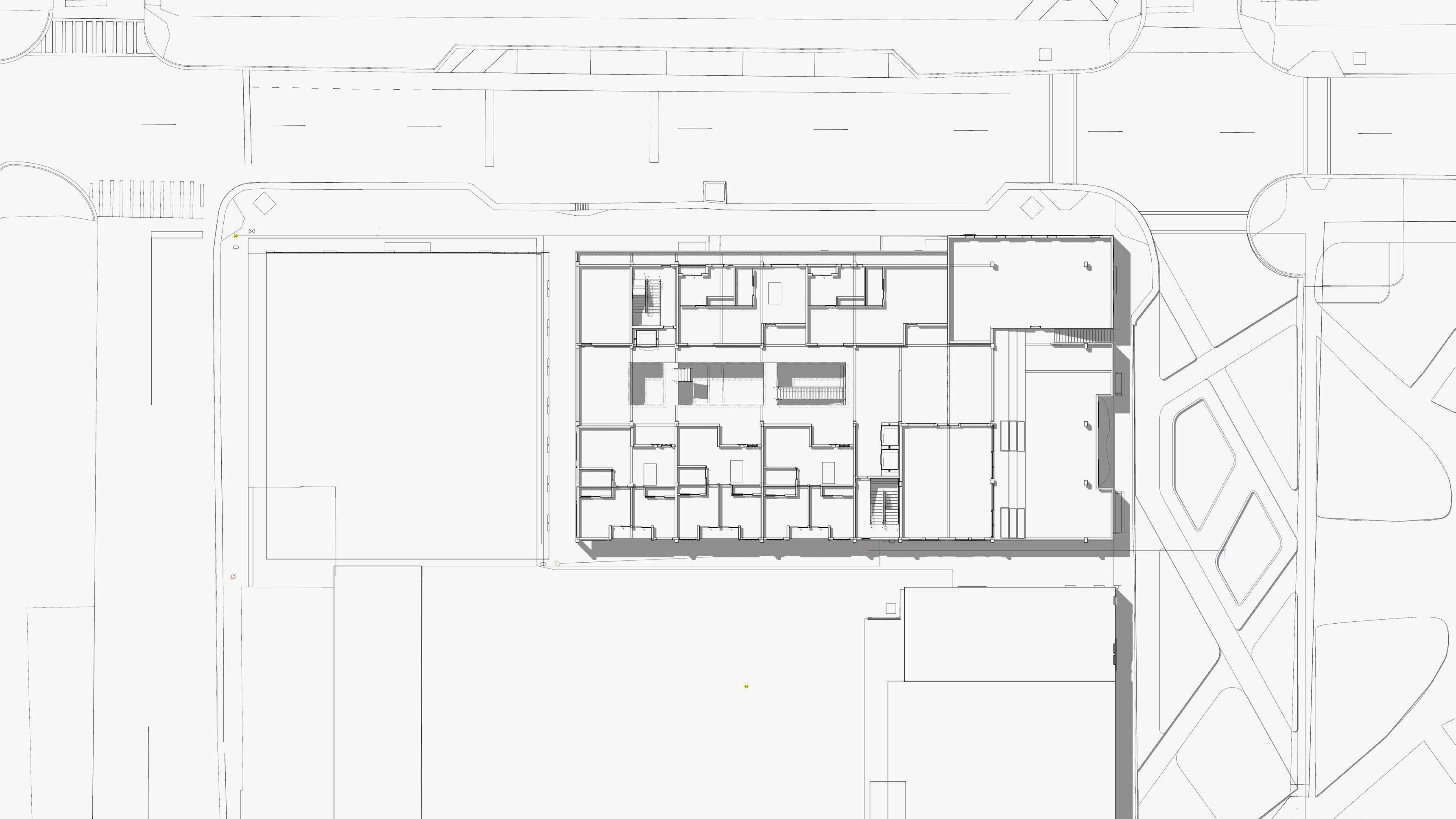
This project aims to create affordable housing units by integrating both existing structures and new construction, ensuring a sustainable and accessible living environment. With a strong emphasis on public transportation and pedestrian-friendly design, the development seeks to transform the area into a vibrant, walkable community. By prioritizing connectivity and affordability, the initiative fosters a more inclusive and livable urban space for residents and local shops on ground level.









This project embraces the Art Deco architectural style, ensuring a design that complements its surroundings. With its bold geometric rectangular and vertical patterns, intricate decorative elements, and refined materials, the development integrates seamlessly into the area's historical character. Beyond providing affordable housing, the project enhances the neighborhood’s visual identity while preserving its architectural heritage.









The project’s construction prioritizes efficiency, durability, and sustainability. Reinforced concrete and traditional masonry ensure structural integrity, while prefabricated elements streamline costs. Modern insulation and energy-efficient materials enhance environmental performance, aligning affordability with high-quality craftsmanship.




















Master Plan:
The project offers amenities like garden spaces, a game room, and a computer room, alongside ground-level retail. Combined with city services, such as transportation, grocery shops, and boutiques, these features create a connected and vibrant community.






Concept:
This section of the portfolio includes Revit architectural drawings to showcase my ability to work with industry-standard BIM tools. These drawings reflect my attention to detail, understanding of construction documentation, and ability to communicate design intent clearly. By presenting both 3D visualizations and technical layouts, I aim to demonstrate how I merge form and function in a way that’s both precise and visually compelling.














































































































































































































