Architecture Portfolio
          Willem Van der Voort
          
    Selected works Version | Spring 2023
        The coverpicture was taken in an abandoned quinine factory in Dschang, the former capital of Cameroon’s Western Region. Due to the size of its machinery, floorlevels are diverse and don’t seem to follow any logic now that the machinery has been removed. It leaves behind an intruiging play of staircases colored by the red sand and the tropical sun.
          01 Contents Back to the Future Commodity Market Changing Perspective Incubator Memling School Research 02 04 06 08 16 26 34
        
              
              
            
            Back to the Future
          2020 : Location :
          Team :
          Enabel - Belgian Development Agency
          Kigoma, Tanzania
          5 National engineers
          1 International engineer
          1 National logistician
          To reduce the transport cost and improve reliable access to markets, schools, hospitals and jobs, we built 100+ bridges in the Kigoma Region in Tanzania. The bridges were built using the centuryold stone arch technique, which we reintroduced in the country and which allows us to cut costs and embedded carbon by 75% each.
          
    My role was to coordinate the infrastructure team and drive the scaling from the 3 pilot bridges to the 100+ bridges built by the end of the 4-year project period. I developed tools for surveying, design, supervision and administration that allowed the rather small team of 7 infrastructure colleagues to complete this task successfully.
          The project sparked the interest of the national roads authority (TARURA) which picked up the technology and is currently rolling it out nation-wide with punctual technical support from our team.
          Apart from the bridges, our team also succesfully completed 7 warehouses (200 m2 each) and 1 commodity market (3000 m2) in the same project period.
          Stone Arch Bridges
        
    
    
    
    
    Willem Van der Voort 03 Weight of materials consolidate the arch and withstand floods Total load capacity > 40 ton Maximum axle load > 10 ton Compression forces can be borne by locally gathered natural stones Local craftsmen build reusable formwork Beautiful integration in landscape Simple erosion protection ensures service life of over 80 years 40t Principles of Stone arch bridges 10t 840 810 161 810 161 810 330 405 45 130 260 2752 100 80 60 80 170 80 60 80 100 UPSTREAM ELEVATION 00 -330 +580 -260 260 180 200 200 150 100 290 200 Riverbed Elevation 00-A 01-A Nyamihanga Buhigwe Janda Nyamihanga Mkipipi 4.71925 29.821033 District Ward Village Hamlet Latitude Longitude BRIDGE 2022.31 Drawing name Drawing no. Date Scale Drawn by Checked by August 2022 Not to scale Willem Van der Voort Eng. Mkangala 30 500 30 560 130 45 405 260 840 foundation arch stone lining cement water spout 580 900 500 15 slope of 2% for proper drainage SECTION YY' SECTION slope of 2% for proper drainage sloping gutter for proper drainage headwall small 130 130 65 260 290 550 15 40 enabel.be Main road Shortcut Oldmarketroute Irrigation scheme Market
        
              
              
            
            Commodity Market
          2022 : Location : Team :
          
    Enabel - Belgian Development Agency
          Kigoma, Tanzania
          
    1 National engineers
          1 National logistician
          The largest crop commodity market was up for an important upgrade to formal infrastructure as the road on which it is located is being upgraded to tarmac.
          Representing Enabel, I worked with the market committee and the district council to optimize the existing land use plan within the limits of the Tanzanian governance context. We then decided on a modular design that can be finished gradually and adapt as the market attracts more traders, rather than a finished product that might be empty for years to come.
          Prefabricated steel structural elements were chosen and can be finished with partitionings tailored to the shifting needs of the market.
          I managed the public tender process from inception to handover of the finished steel market sheds.
          The district council has already reserved budget to furnish 2 of the open sheds as closed warehouses which will kickstart the market operations.
          
    Commodity Market
        Nyakitonto map 01 Masterplan Nyakitonto Market 25 03 2022 Kasulu District Council SURVEY OF PLOT NO BLOCK KASULU D STR CT COUNC L SCALE 10 0 S G O U A E 2 3 AMENDMEN MADE BY T D AC ON CO LAN NO ¹ ege d PARCELS US T ND S R C HOS TA NG T T ON US NG ES ATE NFORM L SEC OR O EN P CE R MAR S HOOL S ERVAN HOU E ERV CE NDU TR N Nyakitonto Urban development Kasulu
        Kibondo
        
    
    Crop Commodity Market | 05 Functional plan | 05A Masterplan | Nyakitonto Market 25 - 03 - 2022 Kasulu District Council bus stand recycling Kasulu road sanitary block truck and bus parking warehouses retail market flexible drying water tower Willem Van der Voort Situation in land use plan | 02 Masterplan Nyakitonto Market 2503 2022 Kasulu District Council SURVEY OF PLOT NO BLOCK KASULU D STRICT COUNC L SCALE 100 DATE NOVEMBER 019 h b h S b h y g R G ONAL S VEYOR O OS CO S S O 1 2 3 AMENDMENT MADE BY 2 3 COMPS MP NO S ACT ON CO PLAN NO ¹ Legend PARCELS P USES U STAND CEMET R D STR CT HOSP TAL L NG AT ON O S HOUS NG ES AT NFORMA SECTOR MARKE NS OPEN SPACE LAY F E D O CE OFF CE SC OO RE DENT A RS WCP private sector commodity market retail market bus stand Kasulu road Zoning Plan | 03 Masterplan | Nyakitonto Market 25 - 03 - 2022 Kasulu District Council retail market private sector recycling area parking area commodity market bus stand parking area district office commercial RS commercial commercial commercial police station PB river valley Kasulu road
        
              
              
            
            Changing Perspectives
          2016 : Location : Team :
          Second year of master degree
          Leuven, Belgium
          Bruno Stevens
          
          Laurens Vanden Eynde Brecht Vermeylen
          
          We won the Existenz 24h competition on the topic of welcoming refugees in Leuven during the refugee crisis of 2015 - 2016.
          In our proposal we change the perspective from temporary asylum shelters towards an approach of integrating refugees in society and simultaneously strengthening the urban fabric. While the logical move is to provide shelter for incoming refugees, we change perspective and invite students to move in these new shelters. Their rooms that become available are allocated to refugees. We do this by implementing student housing in existing empty buildings. At the same time, every student house owner will be obliged to give a room to an asylum seeker.
          
    The students move to the government financed reallocated buildings. They keep paying rent to their landlord thus providing free rooms for refugees.
          This new system of student housing creates the opportunity for refugees to integrate in the urban tissue which leads to a multicultural society where solidarity can be one of the cornerstones.
          06 Changing Perspectives minorities empty buildings general public housing
        Number of new buildings 0 Urban expansion 0 0 Inte gration ∞
        
    07 Willem Van der Voort
        
              
              
            
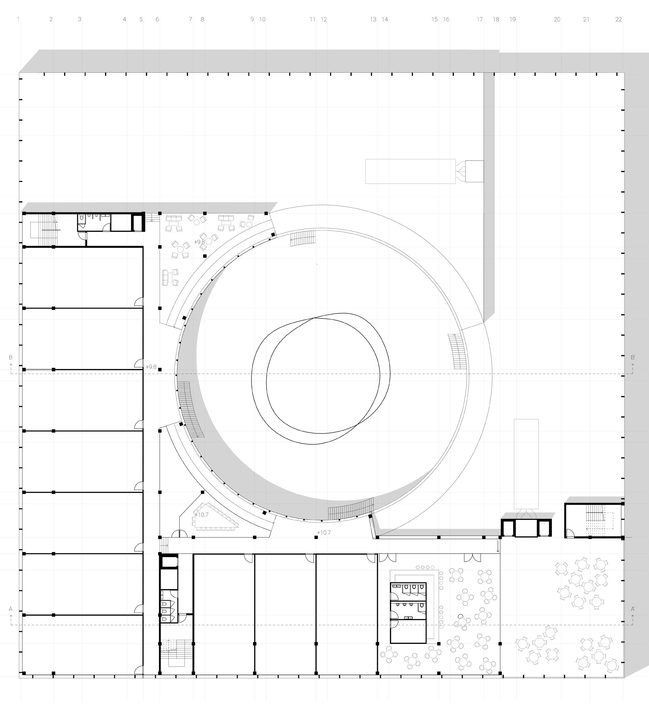
            INCUBATOR
          In a team of four we designed an incubator aimed at startups in the pharmaceutical or chemistry sectors. I introduced the idea of organizing all spaces along a trajectory of an upward spiral. Startups can rent out more space along the spiral as they expand. The spiral then starts to resemble the growth and the iteration happening within the building.
          Personal woodworking projects 08
        First year of master degree Hasselt, Belgium Lieselot de Rore, Sabine Eyckmans
          2015 : Location : Team :
          spiraling organization results in this that lifts from the ground to allow entrance and allows for cars to below-ground parking garage.
          The spiral lifts from the ground to allow a covered entrance for visitors and cars. The spiral allows for interaction throughout the building, which is the essence of an incubator.
          The spiralling organisation results in this shape that lifts from the ground to allow a covered entrance and allows for cars to enter the below-ground parking garage.
          The spiral is continued in the underground parking garage layout.
          The spiraling organization results in this shape that lifts from the ground to allow a covered entrance and allows for cars to enter the below-ground parking garage.
          In the center of the building you will find the spiral that continues throughout the building. This makes for an inclusive experience and the glass facade displays the activity on different floors to anyone who uses the spiral.
          the spiral that continues throughout the building. This makes for inclusive experience and the facade displays the activity on dif
          Underground the spiral continues the parking garage. No space is ramps and two hundred parking can be achieved by only digging we would dig for laying foundations.
          utility blocks provide for vertical like elevators and ventilation Restrooms are included in blocks so they can use vertical without compromising on of the adjacent modules.
          The spiraling organization results in this shape that lifts from the ground to allow a covered entrance and allows for cars to enter the below-ground parking garage.
          The spiral ascends along a courtyard garden bringing air, light and nature in the workspace.
          In the center of the building you will find the spiral that continues throughout the building. This makes for an inclusive experience and the glass facade displays the activity on different floors to anyone who uses the spiral.
          Underground the spiral continues in the parking garage. No space is lost to ramps and two hundred parking spots can be achieved by only digging where we would dig for laying foundations.
          A gracious tree marks the center building, it provides a pleasant sight can be enjoyed everywhere in the building because of the continuity of the
          In the center of the building you will find the spiral that continues throughout the building. This makes for an inclusive experience and the glass facade displays the activity on different floors to anyone who uses the spiral.
          Four vertical blocks accommodate elevators, restrooms and vertical shafts for amenities. Sunlight penetrates deep into the building thanks to the patio in the middle of the spiral.
          Underground the spiral continues in the parking garage. No space is lost to ramps and two hundred parking spots can be achieved by only digging where we would dig for laying foundations.
          A gracious tree marks the center of the building, it provides a pleasant sight that can be enjoyed everywhere in the building because of the continuity of the spiral.
          The outer facade is a glass facade with exterior vertical wind bracing. Those serve as shading devices, assisted by blinds on the southern facade. The spiral’s rotation is expressed in the facade.
          Four utility blocks provide for vertical facilities like elevators and ventilation shafts. Restrooms are included in these blocks so they can use vertical shafts without compromising on flexibility of the adjacent modules.
          Four utility blocks provide for vertical facilities like elevators and ventilation shafts. Restrooms are included in these blocks so they can use vertical shafts without compromising on flexibility of the adjacent modules.
          Sunlight penetrates deep into the building thanks to the patio in the middle of the spiral. Nevertheless, the tree in the middle will temper this sunlight in summertime when there is risk of overheating.
          Four utility blocks provide for vertical facilities like elevators and ventilation shafts. Restrooms are included in these blocks so they can use vertical shafts without compromising on flexibility of the adjacent modules.
          Sunlight penetrates deep into the building thanks to the patio in the middle of the spiral. Nevertheless, the tree in the middle will temper this sunlight in summertime when there is risk of overheating.
          The outer facade is a glass facade with exterior vertical wind bracing. These vertical members provide ample shading for the eastern and western facade. The southern facade however suffers from strong direct sunlight, therefor additional blinds are built into the vertical members.
          Sunlight penetrates deep into the building thanks to the patio in the middle of spiral. Nevertheless, the tree in the middle will temper this sunlight in summertime when there is risk of overheating.
          The outer facade is a glass facade exterior vertical wind bracing. vertical members provide ample for the eastern and western facade. southern facade however suffers strong direct sunlight, therefor additional blinds are built into the vertical members.
          To express the rotation of the on the inside of the building, vertical members are slightly inclined in the direction of this rotation.
          Sunlight penetrates deep into the building thanks to the patio in the middle of the spiral. Nevertheless, the tree in the middle will temper this sunlight in summertime when there is risk of overheating.
          The outer facade is a glass facade with exterior vertical wind bracing. These vertical members provide ample shading for the eastern and western facade. The southern facade however suffers from strong direct sunlight, therefor additional
          To express the rotation of the spiral on the inside of the building, the vertical members are slightly inclined in the direction of this rotation.
          09
        
    10 Incubator
        Foot-traffic diagram at the entrance area. Visualization of the spiral around the courtyard at the first floor. Floor-plan of the ground floor.
          
    Willem Van der Voort 11 1 2 3 4 5 6 7 8 9
        
    12 Incubator
        Foot-traffic at the roof terraces and restaurant area. Visualization of the roof terrace looking towards the restaurant. Floor-plan of the third floor.
          
    Willem Van der Voort 13 1 2 3 4 6 9 7 8 5
        
              
              
            
            DETAILING
          The focus of this challenge was the technical detailing of the building. Sections of the facades and several other complex points were elaborated. I took the lead on the facade sections.
          In addition, the ventilation was calculated by my team members, while I fitted the resulting ventilation ducts in our design.
          Since the incubator aims at chemistry startups, separated air evacuation is provided in each laboratory space. Air distribution is done in the hallways.
          Personal woodworking projects 14
        Construction details of the upper half of the facade. The ventilation duct layout for one of the four HVAC groups.
          
    15 vegitation substrate filter drainage layer protection layer roofing thermal insulation concrete incline compression layer prestressed hollowcore concrete geberit pluvia roof drain gravel roval fittings and coping rafters every 70cm extruded aluminum profile steel T-section renson fixscreen screen rockwool aerorock insulation rockwool rockfit insulation metal facade panel sapa facade 5050 steel reinforcement prestressed prefabricated beam neoprene strip A exterior interior stop element acoustic break seal support flexible seal seamless floor scale 1:1 seamless floor subfloor acoustic/thermal insulation pipes/lines filling layer compression layer prestressed hollow-core concrete renson fixscreen screen rockwool aerorock insulation rockwool rockfit insulation sapa facade 5050 steel reinforcement prestressed prefabricated beam A exterior interior seamless floor subfloor acoustic/thermal insulation pipes/lines filling layer compression layer prestressed hollow-core concrete vapour barrier water barrier suspended ceiling steel reinforcement starter bar prestressed prefabricated beam perimeter insulation enamel metal A exterior interior
        Last year of bachelor degree Brussels, Belgium
          Piet Berghmans
          
          
    Together with Piet, I designed 100 housing units on an empty plot along the Memling street in Brussels, named after the famous painter. We adopted the widely spread urban typology of a block with inner courtyard. This courtyard became a communal garden, sloping up to accommodate a bike parking underneath.
          Different apartment typologies are present to create a healthy social mix. A central square creates a passage and a new open urban space offering a water pool, greenery and commercial spaces around.
          2014 : Location : Team :
          Four main apartment typologies are grouped in different zones.
          
    
    
    
    Vertical circulation is organized in regular intervals.
          A central square connects the streets around and invites people in.
          Two shared gardens bring in nature and encourage community.
          Commercial spaces on the ground floor integrate in the context.
          
    17
        
    Floor-plan of the first floor. The different apartment typologies are easily recognizable, as well as the common garden and the central square.
          
    
    Memling
        
    
    Willem Van der Voort 21 p 26. MEMLING. TYPOLOGIE. niveau 1. schaal 1|100. noord niveau 0. schaal 1|100. noord 5 bewoners. 115 35 12 vierkante meter leefruimte. vierkante meter werkruimte. woningen aan de Kliniekstraat. links: KLINIEKSTRAAT. rechts: MEMLING NOORD werkruimte toegankelijk vanuit de straat. leefruimte aan de tuin nachtzone op verdieping
        
    Memling
        
    Willem Van der Voort 23 niveau 2. schaal 1|100. noord 4 bewoners. 102 8 vierkante meter leefruimte. woningen aan de Memlingstraat. leefruimte met terras in het zuiden badkamer verdeelt de ruimte terras in het zuiden
        Green roofs and a water-pool improve the water management through evaporation and infiltration.
          WATER. Het water blijft zo lang mogelijk in open lucht om verdamping te bevorderen. Dit gebeurt op de daken die als licht intensieve groendaken worden uitgevoerd en op het plein waar heel de verharding afwatert naar een ligte verlaging die in doordringbaar materiaal is uitgevoerd. Zo ontstaat op het plein een dynamiek die afhangt van het gevallen hemelwater.
          Accessibility for disabled people is assured through dedicated parking space and elevators serving each floor.
          TOEGANKELIJKHEID. Om het volledige gebouw ook voor mensen met een fysieke beperking toegankelijk te maken zijn alle niveau’s bereikbaar via de lift en zijn trappen gemakkelijk begaanbaar. In de parking bevinden zich vijf plaatsen die zijn voorbehouden voor mensen met een fysieke beperking. Deze plaatsen bivinden zich op minder dan zeven meter van een lift.
          The main structure is designed in a modular way and all materials are chosen with recycling in mind.
          AANPASBAARHEID. Door te werken met een skeletstructuur zonder dragende wanden en een lichte gevel opgebouwd uit panelen, kan in de toekomst het gebouw naar wens aangepast worden. Technische voorzieningen worden gecentraliseerd, zodat ze geen beperking vormen voor aanpassing van individuele ruimtes. Zo is er een verwarming op wijkniveau en een afvalsorteerstraat.
          Functions and typologies are mixed on the site and organized around a communal garden to stimulate community engagement.
          MAATSCHAPPELIJKE KWALITEIT. Verschillende functies vinden in het gebouw onderdak: sport, wonen, werken en winkelen. Ook wonen kan in op verschillende manieren: werkruimte in de woning, duplex, appartement, studio en kangoeroe-woningen worden aangeboden. De collectieve tuin ligt in het centrum en brengt deze diversiteit samen.
          Shading devices and appropriate thermal insulation are implemented, as well as efficient technologies such as district heating.
          ENERGIE. In de uitvoering van het ontwerp streven we naar lage-energie gebouwen. Naast het voldoende isoleren van de wanden, vonden we een groendak hierbij onontbeerlijk. Een gevel van bewegende panelen, laat toe de warmtewinsten door zonlicht naar voorkeur te regelen. Door de centrale installatie van de verwarming op wijkniveau te voorzien van warmtekrachtkoppeling, kan de opgewekte warmte veel efficiënter benut worden.
          Acoustically, the public square is surrounded by walls, safeguarding the tranquility in the communal garden.
          OMGEVING. De square zorgt voor een meer opvallende locatie van het geuzemuseum binnen de wijk. De publieke functies die aan dit plein grenzen, zorgen door hun plaatsing binnen een quasi volledig gesloten bouwblok voor minimale overlast. De rust van de bewoners is verzekerd door het verhogen van de tuinen ten opzichte van deze square. Het doortrekken van de commerciële plint, verhoogt de activiteit in residentiële zone’s van de wijk.
          GROENVOORZIENING. De vorm van het klassieke bouwblok laat ons toe de site van een grote hoeveelheid groen te voorzien. De ruimte binnen het bouwblok is dan ook volledig gewijd aan een tuin voor de bewoners. De square, die deze tuin doorbreekt, is uitgevoerd als waterplein en tevens voorzien van bomen. Het gebruik van groendaken zorgt voor een extra element in het streven naar biodiversiteit en een groene wijk.
          The classic block with courtyard typology allows to introduce a lot of greenery in the neighborhood. Sustainable mobility is encouraged through a large and easily accessible bike parking, as well as charging stations for electric cars in the parking garage.
          MOBILITEIT. Het gebruik van de fiets wordt gestimuleerd door een grote en goed bereikbare fietsenstalling te voorzien. De ondergrondse parking verminderd de nodige parkeerplaatsen langs de straat, waardoor die heringericht kan worden. In de parking zijn laadpalen voorzien voor elektrische wagens.
          24 Memling p 32. MEMLING. DUURZAAMHEID.
        Assembled construction details of the facade at the Memlingstraat. The chosen materials are prefabricated concrete panels and corten steel for the balconies and railings.
          
    Willem Van der Voort 25
        
              
              
            
            ASRO 2.0
          Since the castle which currently accommodates the architecture department (ASRO) of the KU Leuven is less and less able to provide adapted facilities for architecture students, we got the assignment to design a new building tailored to the department’s needs.
          I decided to validate the waterfront and use a public square to separate the functions meant exclusively for students from the mixed functions, like an auditorium and an exposition space.
          
    Second year of bachelor degree Leuven, Belgium Individual
          2017 Location Team
          
    28 School
        Buitenvolume
          A simple volume follows the contours of the site.
          Buitenvolume
          A square gives public access and separates the school’s functions.
          
    
    
    
    
    
    
    
    
    
    
    
    Buitenvolume
          Het nodige volume op de langwerpige site.
          A lowered quay-side provides a passage and view for the library.
          Aansluiting op circulatie door plein in het midden. Ontsluiten van uitholliing.
          Enlarging the mixed-functions part gives it a prominent place in the city.
          circulatie door Ontsluiten van de -1 verdieping door uitholliing.
          Laag volume sluit aan bij bestaande laagbouw, hoog ‘uithangbord’ sluit aan bij hoogbouw.
          Laag volume laagbouw, hoog aan bij hoogbouw.
          Willem Van der Voort 29
        
    30 School Willem
        2012-1013 Studio 1B 1 10 D vloer
        Van der Voort
        auditorium
        The construction detail of the large auditorium floor, situated in the higher of the two volumes.
          een traditioneel auditorium belemmert interactie met de spreker. enkel een monoloog is mogelijk.
          Een ronde opstelling maakt dialoog mogelijk zonder een monoloog uit te sluiten.
          de spreker kan zich mengen met het publiek en als moderator een gesprek op gang brengen.
          Anderzijds kan nog steeds een lezing of dergelijke plaatsvinden.
          I specifically chose a circular setup for the small auditorium. This shape allows for diverse ways of interactivity between the speaker and the public, whereas a traditional podium-audience set-up imposes limited interactivity.
          Ateliers die ingericht worden per jaar zorgen voor een afscheiding tussen studenten. nochtans kan je veel en snel leren van de ervaring van anderen.
          dit heeft tot twee beslissingen geleid. ten eerste worden de ateliers opgedeeld volgens omgeving. de ene ontwerpt liever in stilte, de andere in groep met muziek.
          ten tweede wordt er ruimte voorzien om een startend architectenbureau te vestigen. deze architecten kunnen alle faciliteiten van de school gebruiken en anderzijds kunnen de studenten van dichtbij volgen hoe het er in de praktijk aan toegaat.
          Ateliers die ingericht worden per jaar zorgen voor een afscheiding tussen studenten. nochtans kan je veel en snel leren van de ervaring van anderen.
          dit heeft tot twee beslissingen geleid. ten eerste worden de ateliers opgedeeld volgens omgeving. de ene ontwerpt liever in stilte, de andere in groep met muziek.
          ten tweede wordt er ruimte voorzien om een startend architectenbureau te vestigen. deze architecten kunnen alle faciliteiten van de school gebruiken en anderzijds kunnen de studenten van dichtbij volgen hoe het er in de praktijk aan toegaat.
          Rather than the studios separated by seniority, I propose to create a single studio open to all students. This studio has diverse working environments such as large tables, a workshop, quiet spaces and presentation areas. In addition, facilities are provided for young startups founded by former students. They two are mixed amongst current students.
          Willem Van der Voort 31
        klein auditorium
        
    School 000
        
    Willem Van der Voort C
        
              
              
            
            Passive Design for Energy Efficiency
          2017 : Mentors : Location :
          Second year of master degree
          Abed Tablada (NUS) and Karen Allacker (KU Leuven) Nusajaya development, Southern Malaysia
          PART 1 NARROW FOCUS WITHIN A BROAD TOPIC
          Part 2	Specific locality in A hot and humid environment
          Part 3	Elimination through literature
          Part 4	Quantitative Analysis
          Part 5 Discussion and conclusion
          Global population is booming and particularly in urbanized regions in the tropics. Millions of homes will be built to shelter this growing population. In the light of climate change, we have to look for a sustainable way to build those homes.
          How to reduce energy consumption in tropical urban districts, using passive design strategies? This is what I worked on at the National University of Singapore. I chose a site in the Johor Bahru region in southern Malaysia and tested a generic district on its energy consumption when changing several parameters.
          In a first phase, I used academic literature to select indicators, site coverage, floor area ratio and shape factor. Then, through preliminary simulations for natural ventilation, daylighting and solar radiation, I selected a typology, a tower with a podium and a courtyard.
          The second phase consisted of an energy simulation of a set of variations of this typology in Energy Plus. I set up a parametric model of a generic urban district in Rhino and Grasshopper and calculated the annual energy use and energy generation through solar panels.
          Lowest consumption was reached for a high floor area ratio, a high shape factor and a high site coverage in case 99. The energy generated by solar panels installed on the tower’s roof is sufficient to meet the on-site demand.
          However, this conclusion is only valid within the assumptions made for this study. I only looked at the energy aspect of urban sustainability, while many other important aspects play their role. The choice of location, typology and software also greatly impacts the results.
          34 Thesis Research
        7/23
        Willem Van der Voort
          Methodology
        Morphology Site Coverage Floor Area Ratio Shape Factor Energy Natural ventilation Daylighting Solar Radiation Cooling Generation
        Part 1 Narrow focus within a broad topic
          2	Specific locality in A hot and humid environment
          
    
    
    
    
    
    
    
    through literature
          Narrow focus within a broad topic 2	Specific locality in A hot and humid environment 3	Elimination through literature
          QUANTITATIVE ANALYSIS
          QUANTITATIVE ANALYSIS
          Case
          Energy generation, which is equal for all cases and cooling energy demand for cases 99 (blue) and 70 (red).
          Energy generation, which is equal for all cases cooling energy demand for cases 99 (blue) 70 (red).
          *Within
          Willem Van der Voort 35 Part 5 Discussion and conclusion Morphology Site Coverage Floor Area Ratio Shape Factor Energy Natural ventilation Daylighting Solar Radiation Cooling Generation Willem Van der Voort 15/23 Methodology Part 1 Narrow focus within a broad topic Part 2	Specific locality in A hot and humid environment PART 3 ELIMINATION THROUGH LITERATURE Part 4	Quantitative Analysis Part 5 Discussion and conclusion 3D Environment Parametric modeling F tw P x Ypd Y tw Opd,x R y
        topic 2	Specific locality in A hot and humid environment 3	Elimination through literature
        Narrow focus within a broad
        Discussion and conclusion 1 2 3 4 5
        Results environment ANALYSIS 22 23 24 cases (blue)
        Results Willem Van der Voort 19/23
        Part
        PART 4 QUANTITATIVE ANALYSIS Part 5 Discussion and conclusion 0 0.002 0.004 0.006 0.008 0.01 0.012 0.014 0.016 0.018 1 2 3 4 5 ENERGY PRODUCTION [kWh/m2]
        Case 99 Case 70
        Case 99 Case 70
        Part
        3	Elimination
        Case 99 Case 70 Results 19/23
        Discussion and conclusion 1 2 3 4 5 6 7 8 9 10 11 12 13 14 15 16 17 18 19 20 21 22 23 24 HOURS OF THE DAY
        99 Case 70 Results Willem Van der Voort 22/23 Part 1 Narrow focus within a broad topic Part 2	Specific locality in A hot and humid environment Part 3	Elimination through literature Part 4	Quantitative Analysis PART 5 DISCUSSION AND CONCLUSION Morphology High Floor Area Ratio Low cooling energy demand that can be met by on-site renewable energy generation. *
        assumptions High Shape Factor High Site Coverage Energy Conclusion Willem Van der Voort 23/23 Conclusion Part 1 Narrow focus within a broad topic Part 2	Specific locality in A hot and humid environment Part 3	Elimination through literature Part 4	Quantitative Analysis PART 5 DISCUSSION AND CONCLUSION
        Energy generation, which is equal for all cases cooling energy demand for cases 99 (blue) 70 (red). Assumptions
        *
        :
        +32 492 97 30 33 wvandervoort@gmail.com
        van der Voort
        Willem