Will B. Roberts Portfolio

Page 1

William B. Roberts

“Will to Create”

Table of Contents

More Life Nursing Home

Authentic Bernheim Cardboard

Half House

Foundation

Architectural Installation

Parkhill Projects

Infographic

Poetic Arch

Architectural Firm

Lebron’s Life: More Than An Athlete

Social Media Branding

Texture Mapping

Narrative Silhouette

Photography

More Life Nursing Home

Lexington, Kentucky 2021

The objective of this project was to design a Senior Living facility based off a site location in Downtown Lexington, Kentucky. I titled this project “More Life Nursing Home” to combat the stigma and stereotypes of nursing homes being a place where you go to just die. Although, like many others, I would prefer to not have to put my loved ones in a nursing home but if have to, I rather it be a place that makes life worth living even longer. With implementations of pivotal elements of life, such as poetry,reading, writing, exercise, games, music, healthy interactions, food, and more, I explored including a library, a gym, outdoor space as well as the necessities of cafeteria/diner, rooms, and such. The community a building is a part of plays a huge part in its development, therefore, I explored the idea of a porch and areas where the community can be very interactive with the residences. Just like the community, the workers are a major part of the lives of the residences, therefore, making sure they are in the best possible environment to be able to do their jobs well, was important.

Elevations

Entire site floor plan

Longated surrounding porch

Three wheelchair ramps

Drop-off semi-circle

Lobby

Enclosed garbage

- Two dumpsters

Underground parking

6 floors of residence living

Hall of Activities

- Kitchen, Cafe/Dinner, Physical

Therapy, Art Studio, Library

Enclosed outdoor

Outdoor pavilion

Memorial garden

Solar panels

Front Right Left Back CHRYSALIS CT. S LIMESTONE ELKINS ALLEY WARREN CT.

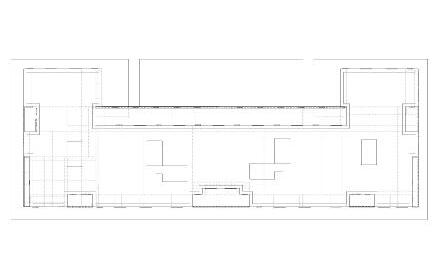
Lobby Floor plan

Receptionist

Offices

Livingroom/Waiting room Therapy rooms

Hall of Activities floor plan

From top to bottom

Memorial garden area

Enclosed outdoor space

Library

- Multipurpose room for poetry, meetings, acting, classes

Physical Therapy Kitchen

Outdoor pavilion for concerts, performances, outdoor gathering

Fitness gym

- extended outdoor with turf

Art Studio

- extended outdoor

Cafe/Dinner

- extended outdoor

First Level Floor plan

18 rooms

- 12 of them have a shared door

- 6 of them no shared door

Conference room

Workers lounge

- Restroom

- Kitchen

- Couches

- Dinning room table/chairs

Television

Private gym

ABCs - Authentic Bernheim Cardboard

Bernheim Outschooled Competition

Louisville, Kentucky 2021

OUTSCHOOLED was Bernheim’s new design competition for creating innovative, affordable, practical, and healthy outdoor learning spaces. This design emphasizes on the aspect of being eco-friendly and safe. From being made completely out of cardboard, with minimal sharp edges, versatility and ability to be made anywhere, 40 ft long x 30 ft wide x 9 ft tall with inclusion of social distancing, and a hybrid aspect of feeling secured inside and free outside at the same time.

Front Right Top Perspective Interior Top Back Diagram

Half House

In this project, I was to be able to understand how a building responds to its site and goes together, as it is important to develop the ability to “see” and communicate design, environmental and construction intent in various ways. After being assigned a particular configuration of the geometries as well as variables in dimension and construction strategies, I was able to develop a unique 3-D model and set of drawings describing the construction of the Half House using different variables and construction materials.

Foundation

Architectural Installation

This work explores the way architecture tells a story through words, sound, and installation figure. To be able know my story, the person I have become and strive to be, one has to know my foundation. I have lived at eight different places but the place that felt most like home, I lack in memory and information. Each place I have lived, has had its own set of architectural feel and impact on my development in life. It uncovers my passion as a creator whether through poetry or designing.

Front-Left side

Back-Right side

Front Back Worm’s eye View Interior: Desk in corner Top Interior: Poem on right wall Interior

Parkhill Projects

Infographic

I created an informational infographic to creatively and appealingly display to viewers while informing them about a passionate topic. The architectural development of my neighborhood, Parkhill apartments, on the North Shore of Staten Island, has been a prominent establishment in New York City’s plan for urban renewal projects.

Poetic Arch

I titled this work 'Poetic Arch', Arch being short for architecture. I am not only a designer but I am also a poet and one of my aspirations in life is to be an architectural designer, therefore, I wanted to combine the two to show how much they resonate with each other. I used my poetry and design abilities to be able to tell a story within my life and architecture. I redesigned the projects of where I grew up, Staten Island, New York and wrote the poem that was applied on the front of the building creating a sense of unity and connection.

WTC Architecture Architecture Firm

WTC Architecture (Will To Create) is a fictional architecture firm that specializes in the design and construction processes such as contracting to exterior and interior decorating. They are dedicated to bringing together multiple avenues of creativity and technicality to deliver design solutions, bridge gaps, inspire, motivate, and make an impact in this world.

Lebron’s Life: More Than An Athlete

Social Media Branding

The objective of this social media rebranding is to be able share a well-known person, specifically an athlete. LeBron James’ life was chosen to share with less focus on basketball and primary focus outside of sports, visually capturing the positive impact that is architecture has had for communities.

Personal view of profile Public view of profile

Texture Mapping

In these designs, I focused on the creation and translation of 2D imagery to 3D form using Autodesk Maya with Arnold Renderer. I generated a series of thoughtful geometric representations with focus on texture, contrast, abstraction, layering and lighting.

Narrative Silhouette

Objective was to create a narrative out of only silhouettes using black construction paper. The fact silhouettes only give a view of an object or a scene consisting of just the outline of the subject’s contour with a featureless interior challenged us to think critically. I learned to convey a story using imagery, symbols and composition choices to reveal elements from a story while encouraging the viewer’s imagination. Influenced and inspired greatly by Kara Walker’s use of this style of art to tell captivating stories, specifically about African-American struggles.

Photography

I created a series of photographs ranging from film and digitals works exploring the idea of architecture in a variety of places; Bermuda, Cincinnati, NYC, Chicago, Kansas City. Some pictures including short poems as I explored the combination of poetry, architecture, and photography working together.

Turn static files into dynamic content formats.

Create a flipbook
Issuu converts static files into: digital portfolios, online yearbooks, online catalogs, digital photo albums and more. Sign up and create your flipbook.
Will B. Roberts Portfolio by willbroberts - Issuu