Portfolio

Page 1


WILLIAMS EW designs

ELIZABETH

EDUCATION

Texas Tech University

Bachelor of Interior Design

Minor in Architecture

Graduation May 2025

GPA: 3.611

HONORS

Dean’s Honor List: Fall 2021-Spring 2023

Presidential Honor List: Fall 2023

Presidential Merit Scholarship

College of Human Sciences Merit Scholarship

SKILLS

Revit

AutoCA

Canva

Enscape

Adobe

Photoshop

Hand Drafting

Microsoft OS

INVOLVEMENT

American Society of Interior Designers

Student Member

2021-2025

International Interior Design Association

Student Member

2021-2025

WORK EXPERIENCE

Parkhill, Lubbock, Texas

Student Intern

June 2024 - current

Coordinate all representatives meeting, CEU’s, and online sessions across multiple offices.

Support material selection, order fulfillment, and returns as needed.

Assist registered designers with creative, technical, and administrative tasks to ensure timely, high-quality project delivery.

TEGA, Lubbock, Texas

Gymnastics Coach

August 2023 - May 2024

Specialize in expertly instructing young children, emphasizing fundamental skill development.

Proficiently guide children through daily rotations, ensuring seamless activity navigation.

Ensure successful activity completion, nurturing children's holistic development.

Rock Solid Athletics, Lubbock, Texas

Summer Day Care Coach

May 2021 - August 2023

Expertly guided day campers of all ages through a diverse array of engaging daily activities, cultivating a fun and enriching experience.

Exemplified unwavering commitment to safety by completing CPR training, prepared to respond adeptly to any emergencies.

Ensured a safe and enjoyable environment for campers through vigilant supervision and leadership.

SOFT SKILLS

Interpersonal Skills

Collaborative

Adaptable

Communication Skills

Organizational Skills

Problem-solving

JAZZMIND

BRIDGE

PEONIA VINES

COLLABORATION ROOM

The dimmable light fixtures in the design set the perfect mood for a luxury jazz lounge, casting a soft glow that guided guests effortlessly through the space. This thoughtful lighting not only created an inviting and sophisticated atmosphere but also embodied the essence of a high-end, immersive exper ience.

In the collaboration room, a smart board stood as the centerpiece, effortlessly bridging the gap between ideas and des igns. As teams gathered around, the seamless technology sparked creativity and streamlined communication, transforming the space i nto a hub of dynamic collaboration.

The design thoughtfully incorporated seating areas that invited guests to gather and engage in conversation, creating an a tmosphere that felt both relaxed and welcoming. This inviting arra ngement naturally fostered connections, turning every moment into an opportunity for meaningful discussions and shared experiences.

COFFEE SHOP
Paeonia Vines

Paeonia Vines

COMMERCIAL/HOSPITALITY PROJECT

SPRING 2024 SONOMA, CALIFORNIA SKILLS: REVIT

CONCEPT STATEMENT: The design concept for the boutique resort and winery was inspired by the peony, a symbol of beauty, luxury, and romance. Rooted in a modern Spanish country style, the approach seamlessly blended rustic elements with contemporary design to offer guests a unique and memorable ambiance. The color palette d rew from the peony’s petals, featuring rich tones of pink, burgundy, and cream, complemented by accents of gold and green. Plush fabrics such as velvet and silk emulated the flower’s soft texture, while textured walls and finishes added depth and interest to the space. Furniture selections focused on elegant and comfortable pieces with curved line s and ornate details, echoing the peony’s graceful form and enhancing the overall sense of opulence and refinement. Soft, diffused lighting fixtures were strategically placed to create a warm and inviting atmosphere, reminiscent of the gentle glow that surrounds a blooming peony. Artwork and décor featuring motifs, especially peonies, were integrated throughout the space to reinforce the design concept and add a touch of whimsy and romance. In essence, the desig n concept aimed to create a space that not only reflected modern luxury but also embraced the charm of Spanish country style, with the peony serving as a central theme to create an environment that was both visually stunning and emotionally resonant.

BUBBLE DIAGRAM:

BLOCKING DIAGRAM:

FLOORPLAN: NOT TO SCALE

COTTAGE ONE WORK PROGRESS:

The cottage was designed to comfortably accommodate one to two guests, featuring a shared kitchen, living area, and a cozy bedroom with a private bathroom. The layout allowed for easy access to all areas, creating a smooth flow throughout. The open living area provided a welcoming space for relaxation, while the bedroom offered privacy and comfort. Large windows framed stunning views of the surrounding mountains, fillin g the space with natural light and enhancing its peaceful atmosphere. The design perfectly balanced comfort and practicality, making it an ideal retrea t for individuals or couples, while connecting them t o the beauty of the landscape.

Paeonia Vines

COTTAGE

BUBBLE DIAGRAM:

TWO WORK PROGRESS:

The cottage was designed to accommodate three to four guests, with a shared kitchen, living area, and two cozy bedrooms, each with a private bathroom. The layout flowed smoothly, offering easy access to all spaces while promoting a welcoming environment. The open living area encouraged socializing, and the bedrooms provided privacy and comfort. Large windows framed mountain views, filling the cottage with natural light and enhancing its peaceful atmosphere. The design balanced comfort and practicality, making it an ideal retreat while connecting guests to the landscape's beauty.

BLOCKING DIAGRAM:

MULTI-ROOM COTTAGE

COTTAGE THREE WORK PROGRESS:

The cottage had been designed to accommodate six to eight guests, featuring a shared kitchen, living area, and three cozy bedrooms, each with its own private bathroom. The layout flowed smoothly, providing easy access to all spaces while creating a welcoming atmosphere. The open living area encouraged socializing, while the bedrooms offered privacy and comfort. Large windows framed mountain views, filling the cottage with natural light and enhancing its peaceful ambiance. The design balanced comfort and practicality, making it an ideal retreat for groups, while connecting guests to the beauty of the surrounding landscape.

MULTI-ROOM COTTAGE

FLOORPLAN:

Paeonia Vines

BUBBLE DIAGRAM:

BLOCKING DIAGRAM:

CONCEPT IMAGERY:

COTTAGE

THREE WORK PROGRESS:

The winery had been designed to offer an immersive experience, with a spacious tasting room that featured a central bar area, easy access to restrooms, and a seamless flow to the outdoors. Large windows had brought in natural light and stunning vineyard views, keeping guests connected to nature while enjoying their wine. Seating near the production area allowed visitors to experience the winemaking process up close, with a small bar adding to the ambiance. Private tasting rooms provided a more intimate setting, while the layout ensured easy movement between the lively bar, peaceful outdoor space, and beautiful views.

Flagstaff Green Paint
Cracked Pepper Paint
Gold Brass Hardware
Green Porcelain Tile
Concrete Countertop
Ceramic Vase
Textured Ceramic Tile
Patterned Woven Fabric
Terracotta Tile
Cream Wool Woven Fabric
Cracked Pepper Paint
White Stone
Paeonia Vines

The winery’s seating area offered a comfortable, social space where guests could relax, sip wine, and watch the w inemaking process through large windows. With a central bar for tastings, the area invited conversation and connection, turni ng waiting into an immersive wine experience.

The luxury bathroom felt like a personal sanctuary, featuring a sleek, freestanding bathtub perfect for soaking in tranquility, while a separate shower offered a refreshing escape with its spacious design. With both elements thoughtfully arranged, the space allowed for ultimate relaxation and convenience, letting you unwind in different ways at the same time.

The luxurious kitchen and dining space seamlessly f lowed together, creating the perfect setting for gatherings, where friends and family could enjoy each other's company amidst stunning de sign. Crafted with high-quality materials that promised lasting durability, the space was both a beautiful and functional heart of the ho me, built to stand the test of time.

COTTAGE MASTER BATH
COTTAGE DINING/KITCHEN

Bridge

CONCEPT STATEMENT: An innovative and eco-friendly design embodied the concept of a bridge, seamlessly connecting architects, interior designers, and engineers within a vibrant community space. Visitors crossed a symbolic bridge through striking metal arch doors into a central thoroughfare that linked design studios and engineering departments. The open ceilings, with their intricate framework, further represented this bridging concept, showcasing the interwoven nature of these disciplines. The use of reclaimed wood added warmth and sustainability, while highperformance glass enhanced natural light and energy efficiency, creating a transparent, open atmospher e. Modular furniture offered flexibility and a modern touch, reflecting the adaptable nature of a bridge. Wood accents guided movement and added visual continuity, reinforcing the theme of connection. Dedicated wings for each discipline were physically and visually connected, ensuring ongoing interaction. A prominent courtyard acted as the ce ntral hub, symbolizing the heart of this bridge-like environment and encouraging collaboration under abundant natural light. This design bridged gaps between fields and adapted to e volving needs, fostering a unified and dynamic community.

COMMERCIAL PROJECT SPRING 2024 SONOMA, CALIFORNIA SKILLS: REVIT/RHINO/TWINMOTION

BACKGROUND INFORMATION:

The bridge project was a unique collaboration between architecture and interior design students, combining their expertise to create a functional and aesthetically pleasing design. Architecture students focused on structural integrity, engineering, and spatial planning, while interior design students contributed their knowledge of human-centered design, lighting, seating, and atmosphere. This partnership allowed both groups to gain valuable hands-on experience working in interdisciplinary teams, simulating the teamwork they will encounter in the professional world. It highlighted the importance of integrating diverse perspectives to create a unified vision, giving students insight into how architects, interior designers, and other professionals collaborate on complex projects. Ultimately, the project served as a valuable learning experience, helping students develop communication, negotiation, and collaboration skills for their future careers in the design and architecture industries.

CONCEPTT IMAGERY:

BLOCKING DIAGRAM KET:

BUBBLE DIAGRAM:

Our bubble diagram illustrated how the various spaces interacted with one another and how each was influenced individually.

BUBBLE DIAGRAM KEY:

BLOCKING DIAGRAMS:

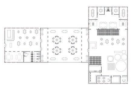
FLOORPLAN: LEVEL 1

The building acted as a bridge by connecting art, technology, and business through its thoughtfully designed spaces. These areas encouraged interaction , breaking down silos and fostering collaboration between diverse disciplines. By seamlessly blending these fields, the building facilitated innovative solutions and crossdisciplinary partnerships.

FLOORPLAN: LEVEL 2

COLLABORATION STUDIOS

N
SCALE

FLOORPLAN: LEVEL 3

FLOORPLAN: LEVEL 4

The space was designed for both indoor and outdoor learning, with large windows and terraces for natural light and fresh air. Each discipline had its own focus area, while bridges connected the main collaboration space to the faculty building. A central courtyard served as the heart of the campus, uniting students and faculty to foster community and collaboration.

Bridge
Red Glass
Black Leather
Red Terrazzo
Tile
Luxury Vinyl
Tile - Wood
Concrete
Black & White
Patterned Fabric
Black Marble
Cracked Pepper Paint
Stiletto Love Paint
Dove Paint
Black Metal
Black Marble
White Marble

The kitchenette was designed with an intuitive layout, making it easy for users to navigate while encouraging social interaction. Its open design fostered conversation, while the booths offered privacy for those seeking solitude or intimate discussions. This balance created a space that adapted to both social and personal needs.

The computer space featured an open concept that encouraged student interaction while the individual screens provided privacy for focused work. The red ceiling detail connected the studio spaces, creating a cohesive flow and serving as a wayfinding tool, guiding students through the area. This design balanced collaboration with personal space, fostering both engagement and concentration.

The booths were designed as private spaces for focused study, offering students a quiet retreat when needed. The bold red detailing drew users in, creating an inviting atmosphere. Positioned across from the studios, the booths allowed easy access to collaboration while still providing solitude for individual work, striking a perfect balance between privacy and engagement.

Turn static files into dynamic content formats.

Create a flipbook
Issuu converts static files into: digital portfolios, online yearbooks, online catalogs, digital photo albums and more. Sign up and create your flipbook.
Portfolio by wil77267 - Issuu