The Weyburn Review

![]()

Sara Parks SaskToday.ca
Weyburn city council has approved the purchase of a new 110-foot aerial ladder truck, awarding the $2,530,837 contract to Commercial Emergency Equipment Ltd. of Regina.
The 1426 Pierce Ascendant PUC Platform Aerial truck will replace the fire department’s 2009 Rosenbauer Raptor, which Acting Fire Chief Mike Wock said is nearing the end of its service life and has faced ongoing maintenance and reliability issues.
Wock told council the current ladder truck has been “having mechanical difficulties with the levelling switches and everything on that.”
During the February 9 meeting, councillors questioned Wock about the operational and safety advantages of the new platform truck.
Councillor Ryan Janke asked how the unit would improve firefighter safety.
Wock said the new truck’s platform “can hold three firefighters safely, plus excess tools that on a typical ladder you would have to manually take up the ladder. All the tie-off points in the basket keep our guys off the roof
so we can do a lot of work safely without putting ourselves at high risk.”
Councillor John Corrigan said the truck is a significant purchase and asked whether the truck meets the needs of a city the size of Weyburn.
Wock said the department requires the capabilities the new unit provides. It is needed for some of the commercial structures in Weyburn and the larger apartment building complexes which are multiple stories, he said, adding that the new truck will allow firefighters “to perform rescues, get up to rooftops and supply large volumes of water on complexes that need it.”
Councillor Kellie Sidloski asked about the typical lifespan of a ladder truck.
Wock said the industry standard is about two decades.
“You start losing pump capacity and components at that point,” he said. “Pierce has a reputation for building a truck that stands up towards the 25 years, so it’s a high-quality truck.”
Mayor Jeff Richards asked Wock to compare the current unit with the new model.
Wock said the existing truck’s mechanical issues are only part of the problem and the new
truck offers significantly improved performance. He told council the current pump truck provides 1,250 gallons per minute, while the new truck would be upwards of 2,000 gallons per minute.
“It’s going to get us everything we want on scene and not have to have that second product going back and getting a different truck. It’s just newer, better, faster, stronger.”
Administration said the purchase is through the Canoe Procurement Group of Canada’s co-operative purchasing program. Pricing was requested January 2 and received January 14.
Leveraging Canoe’s national purchasing power provided cost savings and reduced administrative work compared to running a standalone competitive bid, while ensuring compliance with industry standards.
The fire department budget includes a capital purchase of $125,000 for down payment on a new ladder truck.
The new ladder truck will be used for large structures, industrial sites and multi-storey buildings. It will also serve as the first due truck once in service.
The Weyburn Chamber of Commerce announced that nominations are now open for the 2026 Golden Spike Award, one of the community’s long-standing and respected honours.
Since 1982, the Golden Spike Award has recognized individuals who have made exceptional contributions to Weyburn through leadership, innovation, and dedicated volunteer service. The Chamber receives outstanding nominations that reflect the strength, character, and commitment of the people who help shape our community.
“The Chamber has been presenting the Golden Spike Award for more than four decades, and we continue to be inspired by the individuals whose efforts help Weyburn thrive,” said Monica Osborn, Executive Director of the Weyburn Chamber of Commerce. “We encourage residents to consider nominating someone who demonstrates leadership, creativity, and a passion for community building. The award is open to individuals of all ages and career stages.”
Nomination forms are available at the Chamber office, located at 11 Third Street, Weyburn, or online at https://weyburnchamber.com/golden-spike/.
Completed nomination forms must be submitted by Friday, March 6 at 4:30 p.m.
The 2026 Golden Spike Award will be announced and the recipient recognized at the President’s Annual General Meeting on March 25. Tickets for the event will be available on January 15.


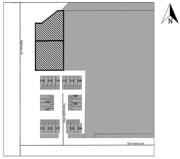
The Council of the City of Weyburn, pursuant to section 207 of the Planning & Development Act, hereby gives notice of its intention to consider passage of a bylaw to amend Official Community Plan Bylaw 2020-3411 and Zoning Bylaw 2020-3412 as further described below
AND TAKE FURTHER NOTICE that the proposed amending Bylaw has been deposited in my office, in the City Hall, Weyburn, Saskatchewan, and may be inspected by any person without payment of any fee between the hours of 9:00 a.m. and 4:30 p.m., Monday through Friday, holidays excepted, up to Noon on Monday, March 2, 2026.
Intent: It is proposed to amend the Official Community Plan, Bylaw No 2020-3411 as follows:
Land Use Designation Map be amended by changing the land use designation of land legally described as Block E, Plan 98SE03966 and land legally described as Block D, Plan 98SE03966 from Residential Semi-Detached (R2) to Highway Commercial (HC) It is proposed to amend the Zoning Bylaw No 2020-3412 as follows:
That the Zoning Map be amended by changing the Zoning of land legally described as Block E, Plan 98SE03966 and land legally described as Block D, Plan 98SE03966 from Residential Semi-Detached (R2) to Highway Commercial (HC)

Affected Land: Lands legally described as Block E, Plan 98SE03966 and Block D, Plan 98SE03966.
Reason: The reason for the amendments is to allow for the sale and development of the lands for commercial use.
Public Hearing: Council will hold a public hearing on Monday, March 9, 2026, at 6pm in Council Chambers of City Hall. Any person that wants to comment on the proposed bylaw is welcome to attend or to submit comments prior to the meeting. Council will consider all comments received.
All written submissions for City Council’s consideration must be forwarded to: His Worship the Mayor and Members of City Council c/o City Clerk’s Office, City Hall 157 3rd St, Weyburn, SK, S4H2K6
Please refer to the City’s website for a copy of the amending bylaw: https://weyburn.ca/public-notices/
Dated at Weyburn, SK, this February 9, 2026.
Weyburn Wildlife Federation recently donated $10,000 to the Weyburn Theatre Cooperative. Like conservation, restoring a community theatre is about stewardship, caring for shared spaces, preserving local heritage, and ensuring future generations have places to gather and connect. Pictured, l-r, Weyburn Theatre Cooperative representative Sean Purdue, Wildlife Federation representatives Larry Olfert, Judy Olfert and Terra Hartley Ortman, theatre representative Abby Kradovill, and Wildlife Federation representatives Shaun Ortman and Dale Paslawski.
David Willberg SaskToday.ca
The Envision Counselling and Support Centre, along with the Estevan and Weyburn Police Services, gained a greater understanding of investigating sexual assault cases thanks to the Violence Against Women Advocacy Case Review (VACR) partnership.
Sunny Marriner, who created the VACR model, was in Estevan from Jan. 26-30. She said the main focus was to train front-line advocates who work with survivors in a community on how to review a police investigation.
“We spend the first [part of the] week together both training advocates on police investigations and the specific steps they have to follow, and how to actually actively review a file and apply a standard criteria,” she said.
The review team was comprised of staff members of Envision in Estevan and Weyburn.
Then on Jan. 30, the review team met with the chiefs of the Estevan and Weyburn Police Services to communicate findings, ask questions about investigations and make recommendations, not only for possible individual cases the team has reviewed, but also for larger or more systemic issues that might affect the ability of survivors to access the criminal justice system when reporting sexual assaults.
“I think it’s important to stress that the VACR and review teams only look at cases that did not proceed to charges,” said Marriner.
VACR has a “very strict” criteria for who conducts reviews, she said, in terms of independence and accountability for services provided to survivors in the community.
Marriner added it’s ultimately up to the leadership of a police force to determine
if they’ll accept recommendations and implement them within the service.
“They do report back to the review team, because reviews are ongoing every quarter, and they report back in the next review about whether or not they accepted the recommendations, if they took additional actions, etc., so there’s a loop that’s closed from one review to the next,” said Marriner.
The VACR has seen results in other communities, she said. Some cases result in charges that might not have occurred otherwise. Others develop new policies or approaches to try to ensure survivors are able to engage with the police service in what she called a “trauma-informed way”. Other communities reduce barriers to survivors of sexual violence.
“A lot of survivors who report have been telling people for decades and decades and decades that the process of reporting can have an active effect of driving them away, or that they attempt to report and their case doesn’t proceed,” Marriner said.
Only about five per cent of all sexual assault survivors file complaints with police, she said, and only about one in five reports result in charges.
“The conversation we have in Canada tends to be on the low numbers of people who report, and doesn’t tend to pay a lot of attention to what happens to people who try,” she said. “So, our first goal is to try to ensure that people that are coming forward, that there is actually a result, a criminal justice system response.”
She believes it also helps survivors to know their cases are being reviewed by advocates that are independent from the police.
Envision executive director Lynda Rideout described the training as intensive,
educational and informative. They learned a lot of the terminology, processes and interviews employed by police, and how each individual case is investigated.
“We really enjoyed being there and increasing our understanding of how it all works,” she said.
Seven people from Envision were present throughout the week, she said. Three people will work in each of the Estevan and Weyburn police stations every three months, and Rideout will oversee their work.
“It will be our role to just dig in and review the file and determine from our standpoint if perhaps there were any areas that we would question the process a little bit to determine why charges were not laid.”
Envision will be delving into any trends they’re seeing to try to find out why they are showing up, and if there are any changes that should be made to remove barriers. She hopes victims will be more prepared to come forward.
Marriner was great to work with, Rideout said.
“She’s a wealth of knowledge and a very supportive lady,” said Rideout.
Marriner noted the VACR is a model that was for municipal police forces and piloted in Ontario beginning in 2016. She has implemented all 32 case review sites using VACR in Canada. Six of them are in Saskatchewan, with Saskatoon, Regina, Moose Jaw and Prince Albert joining Estevan and Weyburn. Marriner pointed out VACR is in communities of all sizes, but it works in rural communities and smaller centres because they don’t have as many resources as large urban centres. She added it was not created by government or police; it was created and advanced by sexual assault centre workers in the front lines.
Sabrina Kraft/ Weyburn Review
Rainbow Trout eggs were delivered to the Fish in Schools (FINS) program, a partnership between the Weyburn Wildlife Federation and St. Michael School.
Many of the Grade 4 students were part of the Kindergarten class, as FINS marked five years at the school. As the eggs has transformed into the
larvae stage before the winter break, students spoke about why they enjoyed participating in the program.
“I like that we get to go all the way to Marine Prize to release the fish,” said Hayz.
“I like this program because I like learning about animals,” said Noah.
“My favourite part about the program is seeing the fish and all their
scales,” said Olivia.
“I like first seeing the fish as eggs,” said Fiona.
As the students are older this year, they will take on additional responsibilities, including weighing the food, measuring the chemicals and changing the water.
“I think the most responsible thing we have to do for the fish is clean their tank and feed them,” said Heidi.
“I learned that about being responsible to take care of the fish, that the egg feeds them before like we have to feed them first,” said Tryphena.
The students will head to Mainprize Regional Park to release the fish into Rafferty reservoir the first week of June.
It is also an opportunity for the students to learn about nature and other wildlife.
“Whenever I see a frog, I think of the fish, because I see them like tadpoles and they kind of look like fish,” said Ellie.
“Something we learn is how big they’ll get, and we learn how many days they spend in an egg,” said Hayz.
“The other thing we learn about is that they have to stay, the tank has to stay dark when they’re in the tank and then when

Grade 4 student Owen carefully released rainbow trout larvae into a fish tank at St.
School. Many of the students in this class were part of the first classroom to participate in the Fish in Schools program when they were in Kindergarten five years ago.
SaskToday staff
The next event for the Southeast Techhub (SETH) will be a nuclear supply chain information breakfast.
The free event will be a chance for people to learn about what SETH called Saskatchewan’s emerging nuclear small modular reactor (SMR) opportunities, along with an upcoming nuclear supply chain workshop in Estevan on March 18 and 19.
A breakfast for Estevan will happen February 20 at 8 a.m. at the Days Inn, while a similar event will occur February 25 at 8 a.m. at the Weyburn branch of the Royal Canadian Legion. People can register for the Estevan session here, and can visit here for the Weyburn event.
“The province is going to announce the when, where and what of SMR
nuclear in the coming months,” states a post on the Southeast Techhub’s Facebook page.
The moment that happens, the post said the scramble for contracts will start immediately on what SETH expects will be a $5 billion build.
“Communities that are ready will build this. Communities that wait, will watch others do it,” the post states.
“We cannot afford the
‘that’s 10 years away, I’ll deal with it later’ mindset.
If we do, Alberta, Ontario and Saskatoon will end up building the facility that will be built here. And this isn’t just construction.”
Food and beverage, transportation, bookkeeping, trades, fabrication, logistics and services all stand to benefit, the post said.
The breakfast session is designed to answer questions and help people under-

stand what they’ll learn, why it matters, and whether the full March workshop is right for a business.
The Techhub said this is a business breakfast. No employees from SaskPower, GE Hitachi, or the Government of Saskatch-
ewan will be in attendance. It is not an information session on nuclear power.
“It is about how your business and your community can take part in a oncein-a-generation build. If we want to be part of building this, we need to start now.”
we let them out they go to the bottom so when it’s, because it’s dark and it’s cold,” said Heidi.
The Weyburn Wildlife Federation initially applied to the Saskatchewan Federation to take part in the program, and provided two 100-gallon aquariums and the related supplies.
The eggs were provided by the Saskatchewan Wildlife Federation’s hatchery in Fort Qu’Appelle. They provided the supplies and expertise so the classroom teachers know what they have to do to take care of the fish from eggs to fingerlings.



Norm Park SaskToday.ca
I am thoroughly convinced there is no such thing as a solid democratic governance model.
That somewhat explains why and how several countries that used to adhere to a democratic model have slid into more autocratic regimes, sometimes not realizing their democratic demise until it was too late.
We don’t have to go far to see how it happens even to a land we once felt was one of the globe’s strongest democratic models. I refer, of course, to the good old U.S. of A.
As noted on many fronts, this is now the land of the not so free and the home of the not so brave.
But let’s not get too high-minded here … I mean really how glowing are our hearts? And what do we see up north that is rising strong and free?
Americans are observing first hand all the sloppy loopholes and escape routes that exist in what they once considered to be a rock-solid Constitution and declarations of independence.
Instead of solidness we see how a simple Executive Order edict from a sitting president that requires no checks and balances, can outweigh anything their Constitution called for back in the late 1770s or can be referred to now. It might be time for an update, but then with a shaky Supreme Court, do their lawmakers really want to go that route now?
Then we can cast a glance at what we consider to be a pretty infallible democracy here at home and see all kinds of escape hatches that could be unleashed by an unhinged Prime Minister.
Our codes of conduct appear to be no better than that of our southern neighbour. After all, when our provinces want to challenge executive decisions made by the feds, it seems all they have to do is haul out that Not Withstanding Clause we have written in clay, if not stone, and eureka, we have a weakened federal strike force.
At least the Americans insist on their Senators being elected while we here in Canada let our PM and his henchmen and women simply appoint them, therefore rendering them toothless with no scheduled appointment to visit a denture clinic.
We have a Governor General and Lieutenant Governors who can help us plough a straighter course, if requested, but mostly they are just show pieces that are great at reminding us that we were
once a colony of the Brits, and let us not forget that! Apparently we had just borrowed Canada for a while until we grew up.
In America, they have a 435 seat Congress and a 100 seat Senate, run by elected people, who it seems are rather toothless as well when attempting to navigate a democratic society within the current realm of Donnie Deflector who has no interest in democracy and doesn’t even want to read about it, let alone practise any of it.
So, the once great U.S. democracy, like many before it, appears to be melting and when problems arise or opposition surfaces … well, it’s the fault of the vile opposition, previous administrations or the unexplained Deep State, a force that no one seems to be able to explain, identify or uncover, buts can be used effectively to move an unapproved agenda forward. Just too much fun for the manipulators I would think.
We don’t seem to have a Deep State in Canada, so far. We prefer to skate on the surface for the most part, but when it comes our turn to fight back against autocracy, we must be aware that this ice is just a thin layer of democratic principles and ownership.
We have a Speaker of the House, who is somewhat neutral unlike the Speakers in the U.S. who are partisan politicians to the core.
We have a Question Period and assigned times in Parliament when the leader of the party in power has to stand up and answer probing queries and accusations from opposition members, under oath. They don’t have that in the U.S., and maybe they should. After all, I would love to hear Mr. Deflector stand up under oath to answer direct questions. But, that isn’t going to happen, not when it has already been well documented that Deflector has issued over 30,600 verified lies within the past 14 months. It seems the narrative is that the U.S. is his to do with it as he wishes. So he will talk with or rant at what is left of the regular media as well as all his friends or foes all he wants without having to account for sketchy decisions and fables.
So boil it down folks. We have a Governor General and a P.M.’s advisor and the Deflector has a Miller, Lutnick and Loomer. And that’s not a law office but rather some sketchy selected advisors and none of them were elected to represent anybody.
So, you want democracy … who ya gonna call? Ghost Busters?
Publisher/Sales Manager: Andrea Corrigan • acorrigan@glaciermedia.ca
Production Supervisor/Sales: Leslie Coulter • lcoulter@glaciermedia.ca
Accounting/Circulation: Debbie Stuart • dstuart@glaciermedia.ca
Reporter/Production Assistant: Sabrina Kraft • skraft@glaciermedia.ca
Commercial Print Department: acorrigan@glaciermedia.ca



Saskatchewan RCMP are warning the public of an ongoing email scam with incidents reported across the province.
Saskatchewan RCMP received multiple reports of individuals receiving an email containing a fraudulent ticket.
The scammer represents themselves as the Saskatchewan Fine Collection Branch and indicates that the recipient has received a Provincial Violation Ticket. The fraudulent tickets include: a ticket number, fine amount to pay, due date, payment instructions, a link to unsubscribe from emails, contact information and Provincial Court Services copyright.
The contact information listed is the accurate information for the Saskatchewan Fine Collection Branch, however
the ticket information and payment link are fraudulent. Do not click the link or provide payment.
The Saskatchewan RCMP encourages the public to protect themselves from email scams by: checking the sender for misspellings or unusual email addresses, never clicking on links from unknown senders and looking for red flags such as urgent language or generic greetings. If you receive an email similar to this, report it to your local police and the Canadian Anti-Fraud Centre. Saskatchewan RCMP can be contacted by calling 310-RCMP. Information can also be submitted anonymously by contacting Saskatchewan Crime Stoppers at 1-800-222-TIPS (8477) or online.
The Weyburn Police Service (WPS) responded to 86 calls for service during the period of February 9th through February 15th, 2026, resulting in 24 charges. Of the charges, three were laid under the Criminal Code of Canada and twenty one under the Traffic Safety Act (TSA)
During this time WPS members also attended to false alarms, calls of disturbances, calls related to Mental Health, wellbeing checks, reports of suspicious persons or activities, and offender management.
Two individuals known to have outstanding warrants for their arrest, due to failing to attend court, were located by WPS members and arrested. Both individuals were given new court dates to face their charges.
A RID (Report Impaired Drivers) complaint was received by WPS, with the caller indicating a possible impaired driver travelling northwest through Weyburn. A Weyburn Police CTSS officer was able to
locate the suspected vehicle and check the driver who did not display any signs of impairment.
Three reports of “Hit and Run” incidents were reported to WPS during the week. One of the complainants was able to provide the license plate number of the offending vehicle, which enabled WPS officers to locate and speak to the driver involved in that incident. The police advise drivers involved in an accident in which they are unable to locate the owner of the other vehicle/property, to leave a note with contact information and to call to advise WPS of the incident in case it is reported as a hit and run.
*Anyone with information regarding one of these matters, or any other matter of a criminal nature, is encouraged to contact the Weyburn Police Service at (306) 848-3250, the local RCMP Detachment at 310-RCMP (7267), or Crime Stoppers at 1-800-222-TIPS (8477).
Submitted
Southeast College students in Adult Basic Education and various postsecondary programs received $21,000 in financial bursary awards.
Students apply for and awards are distributed at the midpoint of their programs to ensure they have access to funds when they need support the most.
Award presentations took place in Whitewood and Indian Head on February 10, Estevan on February 11, and Weyburn on February 12. A total of 22 awards were given to 18 different students throughout the Southeast College Region.
“We are incredibly proud of our students and everything they have achieved and continue to work towards,” said Jody Holzmiller, President and CEO. “We are so grateful for the ongoing support that our College and our students receive and we are looking forward to a
renewed and re-energized focus on increasing the dollar amount of awards in 2026-2027 with a new and improved donor engagement and recognition strategy.”
Applications for academic-based scholarships will open in March, with distribution occurring as part of our annual graduation ceremonies.
Southeast College bursary donations are made possible thanks to community organizations, businesses and individuals, as well as various fundraising events such as the College’s Swing for Scholarships Golf Tournaments. Eligible funds are matched by the Ministry of Advanced Education through the Saskatchewan Innovation and Opportunity Scholarship (SIOS) program.
Southeast College is proud to offer innovative and flexible programming that encourages students to learn where they live.

Southeast College students at the Weyburn campus received financial bursary awards, presented on February 12. Back row, l-r, Weyburn Security representative Adrian Miller, Prairie Sky Co-op representative Danielle Wahl, Weyburn City Councillor Kellie Sidloski, Julie Pearson (Prairie Sky Coop Bursary enrolled in Adult Basic Education), Evans Agyapung (Weyburn Security Bursary enrolled in Continuing Care Assistant Program), Julius Ohemu (Weyburn Security Bursary and Weyburn Rotary Club Bursary enrolled in Continuing Care Assistant Program), Weyburn Rotary Club member Heather Sidloski and SE College Vice President Academic, Teaching and Learning, Dean Loberg . Front row, l-r, Tkeyae Reader (Weyburn Rotary Club Bursary and Barber Motors Bursary enrolled in Practical Nursing) and Leah Rose Macajelos (City of Weyburn Bursary enrolled in Adult Basic Education).
SaskToday
City council unanimously approved all three readings of an updated bylaw governing the operation of Hillcrest Cemetery, a move
administration says modernizes language but doesn’t alter day-to-day practices.
Director of Leisure Services Richard Henning told council at its regular meet-

ing February 9 that the revisions are strictly clerical.
Councillor Ryan Janke asked whether, aside from the rate changes already approved last year, the updates would affect cemetery operations.
Henning confirmed the changes simply formalize what staff already do.
“The updates in the bylaw just reflect the operational practices that have been going on and it’s just an update to the verbiage within the bylaw,” he said.
The city’s cemetery bylaw, originally adopted in 2005, underwent a comprehensive working update to align with current rules, regulations, and operational standards. Administration said no procedural changes were introduced and only clearer language used.
According to the city, the updates to the Cemetery Bylaw focus on clarifying existing practices rather than
introducing new ones. The revisions to Section 7 expand and clarify the rules governing permitted items, maintenance expectations, and restrictions, all aimed at improving the overall appearance and operational efficiency of Hillcrest Cemetery.
Section 8 includes additional clarification on monument height and the responsibilities associated with markers. The city also revised Section 10 to bring memorial bench donations in line with current Buy-ABench Policy, removing outdated fixed pricing. Beyond these specific sections, the bylaw includes updated definitions and improved working throughout.
Council previously approved cemetery rates for 2026 - 28 at its August 11, 2025, meeting. Those rates are now incorporated into Schedule A of the updated bylaw.

The Weyburn Red Wings lost an 8-4 game to the Melville Millionaires on Monday. The Wings are now four points behind the Bunge Division leading Yorkton Terriers of the Saskatchewan Junior Hockey League.
In a penalty-heavy first period, both teams kicked things off by scoring powerplay goals. Melville scored at 2:35, followed by Drew Molde for Weyburn at 9:26, assisted by Rylan Pearce and Turner McIntyre. The Millionaires took advantage of more Weyburn penalities by scoring two more powerplay goals, at 14:56 and 16:37, and scored their fourth of the period 17 seconds later at 16:54.
Emotions remained tense in the second period, with 15 penalties taken over the 20 minutes. The Wings fought back early in the second period with Pearce scoring a powerplay goal at 8:59, assisted by Josh Sale and Callas Pierce. Sale scored a powerplay at 9:27, assisted by Molde and Pierce, and 25 seconds later at 9:52, Ryder Rommelaere scored the third Weyburn goal of the period, assisted by Luke Schraeder and Dion Schraeder. Melville regained the lead in the second half of the period with a powerplay goal at 12:00, a
goal at 15:52 and a powerplay goal at 17:32. An empty-netter scored by Melville at 11:11 in the third period was all they needed to wrap up the win. Things remained heated in the penalty box, with eight penalties taken at 17:23.
Both Joey Rocha and Nate Stevens spent time in net for the Wings. Rocha stopped eight out of 12 shots, while Steven stopped 17 out of 20 shots.
On February 14, the Weyburn Red Wings won 3-2 over the Nipawin Hawks during a home game at Whitecap Resource Centre.
In the first period, the Hawks opened the scoring at 9:40, followed by a Weyburn goal scored by D. Schraeder at 13:18, assisted by Pearce and Pierce.
Weyburn added two more goals in the second period, with Sale banking one at 13:31, assisted by Roan Burgess, and D. Schraeder scoring at 14:28, assisted by Rommelaere and Aidan Mohan.
The Hawks scored an early third period goal at 1:20, but it was not enough to draw even with the Wings. Stevens was in net for the Wings, stopping 36 out of 38 shots.
The Red Wings beat the
Millionares 5-2 on February 13 during a road game in Melville.
Weyburn started strong with two powerplay goals in the first period. Josh Karman scored at 11:08, assisted by McIntyre and Pearce, and Pearce scored at 19:01, assisted by Sale and Munro.
The Millionaires scored their first goal of the night at 5:16 in the second period. Weyburn continued to dominate by adding three more goals to their lead. Mohan scored at 9:22, assisted by Bierd and McNichol, Sale scored at 12:04, assisted by McNichol and Bierd, and Doyle scored at 14:54, assisted by McIntyre and Sale.
The Millionaires added a late powerplay goal at 16:34 in the third period.
Rocha was in net for the Wings, stopping 43 out of 45 shots.
There are only three games remaining in the regular season for the Red Wings. They will face Kindersley twice, playing at the Inter Pipeline Events Centre Arena on Friday, February 20 and Saturday, February 21. The Wings will travel to Melfort for a road game on Tuesday, February 24.
There is also a rescheduled home game set for March 10 against Melville.

Weyburn U18 Barber Motors Wings forward Kaleb Sheasby faced off against an Avonlea defenseman during a home game at Whitecap Resource Centre on Sunday.
David Willberg SaskToday.ca
The Estevan Motor Speedway is looking to have more race dates and it’s ear-
David Willberg
SaskToday.ca
The first round is over and the semifinals are set in the Big Six Hockey League’s playoffs.
All four first-round series finished with three-game sweeps. The defending league champions and the top seeds, the Redvers Rockets, eliminated the No. 8 Midale Mustangs; the No. 2 Moosomin Rangers beat the No. 7 Kipling-Windthorst Oil Kings; the No. 3 Oxbow Huskies defeated the No. 6 Carnduff Red Devils; and the No. 4 Carlyle Cougars knocked out the No. 5 Wawota Flyers.
Moosomin was the last team to advance from the first round, thanks to an 8-2 win over Kipling-Windthorst on February 12.
As for the semifinals, Redvers will face Carlyle in a battle of Highway 13 rivals in one series, while Oxbow will face Moosomin in the other. Both showdowns will be best-of-five battles. Dates for the series were not immediately released. Teams in the Big Six are also still in the hunt for provincials. The Rockets and the Rangers are in the senior A division. Redvers has advanced to the south semifinal with a sweep of Langen-
burg in a best-of-three affair. Moosomin is tied 1-1 in their clash with Round Lake; the third and deciding game is February 13 in Round Lake
The Huskies are facing Southey in senior B. Game 1 is February13 in Oxbow at 8 p.m. Game 2 is February 21 in Southey and Game 3, if necessary, would be the following day in Oxbow.
Four teams entered senior D. The Oil Kings are tied 1-1 in their second-round series with Lafleche. Game 3 is set for February 15 in Lafleche. The Oil Kings defeated Rouleau in two straight in the first round.
The Wawota Flyers are
up 1-0 in their match-up with Milestone. Game 2 is February 13 in Wawota at 8 p.m., and Game 3, if necessary, would be the following day in Milestone. Wawota swept Indian Head in the first round.
Carnduff is facing Ochapowace in their first-round cash. Carnduff has a 1-0 lead and will look to wrap up the series in Game 2 February 14 in Carnduff at 8 p.m. Game 3, if necessary, would be the next night in Carnduff at 5 p.m.
Midale’s quest for a provincial title ended in the first round with a 2-0 series loss against Lafleche.

liest-ever start to the season in 2026.
The facility released its schedule in late January with 15 race programs spread out over a five-month span.
For the first time, regular race programs are scheduled for April, with races slated for April 18 and 25. Traditionally, the season starts the first weekend in May.
The April programs, as well as those for May 2 and May 16, are scheduled to start at 3 p.m.
Other highlights on the schedule include the Tougher than Dirt Tour for hobby stocks and sport modifieds on June 5; a Can-Am Shootout June 26; the Dakota Classic Modified Tour for stock cars and modifieds July 6; Kids’ Night July 25; the track championship night Aug. 15; and Riley Raynard’s Dirt Wars hobby stock special Aug. 28 and 29.
A spring Enduro race is set for June 14 and the fall Enduro is September 12.
Modified Madness is penciled in for July 24, but details are still being ironed out.
Speedway president Brad Pierson acknowledges the earlier start to the season is a “roll of the dice”, but when looking back on last year, April likely had nicer weather than most weekends in May.
“We put a couple of dates in there and if we can race, we can race,” said Pierson, who added they had to cancel the Victoria Day long weekend program last year due to weather.
“Hopefully we can give a couple of extra nights for our fans and our racers,” he added later. The track has a lot of really competitive driv-
ers who only race locally, he said, because of family or work commitments.
“We heard and we wanted to let people know we were listening, that we want to try to get in a couple of extra nights if we could,” he said. “It’s a catch-22. Sometimes you can run extra nights and not make money off of them or lose money, but we want to show that we’re trying to do our best for all of our people.”
He believes the 3 p.m. starts for the first four programs will help. If it’s a sunny, 15 C afternoon, then it could be great, he said. If it’s 5 C and windy, then they likely wouldn’t be racing.
The Dirt Wars program has been moved from late July to after the track championship night, and Pierson hopes that will attract a few more hobby stock drivers if it’s not for points.
“Last year Dirt Wars brought in some drivers from different tracks,” he said.
Pierson noted that Estevan is among the latest tracks to crown its champions, and the local speedway would like to have the championship night out of the way earlier, leaving the final weekend of August available for something special.
Pierson said the track is always looking to try different things, and some of them work out and others don’t. It has looked at a fall special but recognizes it would be tough because it would be going up against established promotions at other tracks. He added the EMS is also looking at ways that it can improve the facility to boost the experience for fans, drivers and volunteers.

The Weyburn U18 AAA Gold Wings took an important overtime win against the Regina Rebels, during an away game in the Co-operators Centre on February 11.
There was no scoring in the first period of the game.
Regina banked a powerplay goal at 6:54 in the second period, with Weyburn’s Chelsea Madsen tying things up just one minute and four seconds later, assisted by Tristan Todosichuk
and Skyla McNichol.
Both teams traded goals in the third period. The Rebels scored at 16:05, followed by Harper Danchilla scoring a powerplay at 14:52, unassisted. Taelah Schnurr put her team ahead at 8:08, assisted by Haven Bourassa. The Rebels came back to tie up the game with a short-handed goal scored at 7:13.
In the overtime period, McNichol scored a power-
play goal with just eight seconds left to secure the win for Weyburn, assisted by Harper Danchilla and Sage Johns. Maci Patterson was in net for the Gold Wings, stopping 36 out of 39 shots. The Gold Wings last game of the regular season will be held at Whitecap Resource Centre on Saturday, February 21, when Weyburn will host the Battlefords Sharks.
The Jerry Mainil Ltd. #2 rink won the A event at the Weyburn Oilfield Technical Society (OTS) Bonspiel. Pictured, l-r, Kevin Moffat, Barclay Charlton, Tyler Tollefson and Brian Woodard. Photos courtesy of Andria
committee

Goodwater Machine Shop won the B event at the Weyburn OTS Bonspiel. Pictured, l-r, Paul McInnes, Andria Brady, Bonnie Adacsi-Cooke and Kevin Cooke.


Energy II were the first team out at the OTS









Carles



Born on July 27, 2025 Daughter of Hunter Kopec & Wayne Vandenhouten of Whitecourt, AB Submitted by Grandma Koa Terry Lee Anderson
Born on January 1, 2025
Son of Carlee & Ray Anderson of Regina, SK
Submitted by Grandma & Papa

Born on October 4, 2025
Son of Riley Croal & Madison Kundert of Yellow Grass, SK Submitted by Grandmother
Born on July 26, 2025
Son of Eric & Rebecca Joa of Lang, SK
Submitted by Grandma
Born on October 5, 2025 Daughter of Colt & Moriah Prall of Saskatoon, SK Submitted by Grandma

Born on January 18, 2025
Son of
Bendickson & Natalie Lillijord of Weyburn, SK
Submitted by Great-grandmother




Born on January 25, 2025
Daughter of Tyson & Ashley Becker of Weyburn, SK Submitted by Grandma

Born on July 18, 2025
Son of Bailey & Draven of Weyburn, SK Submitted by Grandma
Born on April 17, 2025
Son of Austen & Jayden Carles of Ceylon, SK Submitted by Great Grandma

Born on August 1, 2025 Daughter of Kaitlin Bowers & Scott Mercer of Weyburn, SK
Submitted by Grandparents



Bodhi Fonz Leslie
Born on October 16, 2025
Son of Brayden & Sydney Leslie of Regina, SK

Submitted by Grandparents Cooper Wagner

Liam John Hill
Born on December 22, 2025
Son of Erica & Mitch Hill of Yellow Grass, SK
Born on March 23, 2025
Son of Katelyn & Justin Wagner of Weyburn, SK
Submitted by Grandma & Grandpa Wagner

Submitted by Mother Nelly Hoium

Born on January 28, 2025
Daughter of Chelsey & Kelton Hoium of Weyburn, SK
Submitted by Grandparents

Tinley Moule
Born on February 5, 2025
Daughter of Rhett Moule & Riley Blackmore of Trossachs, SK

Submitted by Grandma & Great Grandma Kai Garcia

Katelyn Blair Ruiz
Born on December 31, 2025
Daughter of Keyla Tochor & Daniel Ruiz of Regina, SK
Submitted by Grandparents
Born on June 16, 2025
Son of Gale Regines & Mark Garcia of Weyburn, SK
Submitted by Mother

Bishop Boone Postnikoff
Born on April 24, 2025
Son of Rachael Smith & Cayden
Postnikoff of Weyburn, SK
Submitted by Grandparents


cornerstonefuneralhome com






September18, 1961 –Februar y22, 2025





Youshouldstill be here We weren’tready to saygoodbyenotevenclose. Your absencewas sudden, anditcut deep Onemoment, youwerepartof theday-to-day The next, ever ythingchanged In
We’restill tr ying to make senseofit. Youbrought humour andinsight to even thebusiestdays. Youleft fartoo
PROVINCE-WIDE CLASSIFIEDS 44 local community newspapers, distributing to over 450 communities, including 14 cities Call 306-649 1405 or visit www swna com for details Find QUALIFIED LOCAL EMPLOYEES using the strength of community newspapers! Visit www swna com or call 306-649-1405 to find out how!
Advertisements and statements contained herein are the sole responsibility of the persons or entities that post the advertisement, and the Saskatchewan Weekly Newspaper Association and membership do not make any warranty as to the accuracy, completeness, truthfulness, or reliability of such advertisements For greater information on advertising conditions, please consult the Association s Blanket Advertising Conditions on our website at www swna com








Submitted by Norm Park, Contracted Reporter for SECPSD
Data pretty well drives most departments in the South East Cornerstone Public School Division (SECPSD) and helps build the narrative.
No guesswork is required, just interpretation and deliberation prior to delivery.
With that in mind, two high school principals were in the SECPSD head office conference room in Weyburn on February 11 to discuss how data drives the narrative in their respective schools and across the expansive division.
Jordan Ethier, principal of McNaughton High School in Moosomin, and Amy Rutten, who holds the same position at Gordon F. Kells High School in Carlyle, were invited by the board to address their use of data as a driver to monitor and measure progress.
The two presenters were introduced by director of education Keith Keating as all board members and presenters focused on the division’s system goal No. 3 that calls for the division and schools to effectively use information to measure, monitor and report continuous improvement.
Keating opened by pointing to the various sectors where data is collected whether it is in the area of behaviour or perhaps literacy and attendance records. It’s all there to be used effectively by those in the educational realm.
Ethier noted the im -
portance of local context data at McNaughton, pointing out at the start that data is not necessarily neutral and is value-laden since the supposedly simple numbers soon drive reflection, stories and responsibilities that lead to action plans and processes.
Translating data-driven information into action is a valuable goal and school-based data provides relational meaning, contextual understanding and immediacy to the base that can be used to translate data points into action.
There is the need to extend the local data to include the system-wide approach.
School-based data and analysis is crucial at the singular school level so that everyday realities of individual students are noted and how they relate to the dynamics within the school are important. Intervention needs are identified and the local cultural, historical and community context is revealed.
“Data represents actual experiences, so what you do with the data is important,” he said. “It’s the why behind the emerging patterns,” he added.
The effective use of data information is a key, he added, noting for instance that attendance is one of the first requisites for success and data supports that process, as does the monitoring of each student’s progress through the academic year.
Rutten, in turn, opened by stating that a move away from subjective
judgments towards relying on objective data for effective decision-making was a key component, as the two administrators were obviously agreeing on the ways and means of data collection and delivery.
She spoke about collaboration activities within the school that can drive various groups of students in the middle and high school years. Teacherdriven sharing techniques are implemented to keep them moving forward.
Rutten also provided a monthly breakdown report on data-driven results, participation in clubs and sports and transition meetings at various grade levels.
Staff-driven plans include preparation for incoming students, she said, as well as communication with parents. She said that if a student is failing in a certain sector then parents and guardians enter into communication with the supports for their child.
The monthly data recording and plans include such things as attendance and transition plans that begin as early as January. The risk indicators are also discovered through data collection, as is credit attainment or exam schedules.
School surveys are continuous and lead to staff meetings where goals are reviewed and course corrections implemented if called for, all under a banner of key considerations.
A collaborative response model is on tap any time and school support team meetings are also on-

going, as are specialized support systems and lessons for student-specific interventions. Results are measurable and meaningful, she said.
Rutten also spoke of how senior high school students are lent support for
social skill development.
The trio of presentations captured the attention of the board for about an hour with the discussions focused on data and how it can be, and is being deployed to measure and monitor continuous improvements. Rutten and Ethier were thanked by chairwoman Audrey Trombley for taking time out of their busy school-based schedules to come to the boardroom to provide the updates and information.









For more local news and stories, visit our website and click on the “Weyburn” button.