

WWW.NASAINDIA.CO
Published by
NASA India Publication Cell under
National Association of Students of Architecture,India
Headquarters-School of Planning and Architecture, Department of Architecture, 6- Block-B, Indraprastha Estate, Delhi, 110002
www.nasaindia.co
Copyright © NASA India 2020
All content of this book is either NASA India’s intellectual property or is shared with the parties mentioned. While every effort has been made to produce genuine content.
Any omissions brought to our attention will be remedied in future editions.
All rights reserved.
No part of this publication may be reproduced, transmitted or stored in a retrieval system, in any form or by any means, electronic, mechanical, photocopying, recording or otherwise, without the prior consent of the publisher.
ISBN:
WWW.NASAINDIA.CO
This book is sold subject to the condition that it shall not, by way of trade or otherwise, be circulated without the publisher’s prior consent, in any form of binding or cover other than that in which it is published.
Disclaimer:
The design ideas in this publication are a compilation of the winning entries of the design competitions hosted by NASA India. The winners have been selected by a panel of jurors based on the information detailed in the presentation sheets and reports as provided by the participants. The NASA India Publication Cell does not take responsibility for accuracy, technical soundness or completeness of the content of these works and shall not be liable for any loss or damage that may be occasioned directly or indirectly through the use or reliance on the content of this publication.
The contents of the publication are intended for general reference only and are not intended to replace the need for professional advice in particular area.
Citation
Z211 IES College Of Architecture Mumbai
Special Mention
Z214 Faculty Of Architecture - Sarvajanik College Of Engineering & Technology
Z324 Institute Of Design Education And Architecture Studies, Nagpur
Z306 Shri Prince Shivaji Maratha Boarding House’s College Of Architecture, Kolhapur
Shortlisted
Z319 Dr D Y Patil College Of Architecture, Pune
Z438 Faculty Of Architecture - Sri Sri University, Cuttack
Z516 Karnata Law Society’s Gogte Institute Of Technology
Z604 T K M College Of Engineering, Kollam
Z122 Amity School Of Architecture And Planning, Delhi
Z210 Rizvi College Of Architecture, Mumbai
WWW.NASAINDIA.CO
Intent & Introduction
We have a good news in Indian architecture, it is being more documented than ever in the past. Most architecture schools across the nation are looking into villages and towns; increasing number of individual research projects are studying the past; conservation projects necessitate detailed measured drawings; many thesis students are choosing context specific topics and of course, institutions like INTACH and COA are encouraging heritage documentation.
In this emerging scenario, NASA trophies have a special place. A very early initiative by the students of architecture, it has stood by the need for documentation, year after year. However, one among the critique of these trophies have been how such original and major works of field work and documentation untraceable after few years, simply because they do not get archived and made accessible.
Given this, this present publication comprising of select entries for Louis Kahn Trophy, from the 62nd NASA 2019 – 20 conducted in collaboration with INTACH (Indian National Trust for Art and Cultural Heritage) is a welcome step. Let us hope this will pave a path for many future publications, enabling deeper awareness and rooted architecture, in this age of internet enabled copy and paste anywhere anytime architecture.
LIK trophy has also evolved over the decades. Initiated by Vasthushilpa Foundation, for long it focused on enriching the capabilities of students by doing measured drawings of built structures, selected as per the criteria set forth in the trophy theme. Of course the theme was changing from one to another year, but the act of sketching, measuring and drafting did not. Given this, there were apprehensions about what were the cerebral learnings by students, besides upgrading the skills, after undertaking such a painstaking exercise.
To mitigate this criticism, the LIK Trophy is now evolving as an exercise in observation, documentation, study and analysis, to ensure a comprehensive beginning to end learning. Students from mid-years who mainly work on LIK cannot be expected to emerge with deep theories, yet the collections in this volume would prove that our students are becoming better in analysing. Hopefully, all these efforts will produce more thinking architects in India! Considering the young students and diverse urban / rural backgrounds they hail from, the theme had to be understandable and acceptable for all. Thus, the idea of studying a house came up, which is so common, anyone can sketch and analyse it. Within this large mandate, we could see an opportunity to fill into another lacuna – general lack of construction knowledge among students of architecture. A typical school of architecture bound by academic regulations cannot let students actually construct, so NASA / INTACH stepped in to develop a theme around the “Construction of Dwellings”. Indian architecture curriculum limits the study of the past into history and not necessarily heritage at large. INTACH Heritage Academy is pioneering many efforts to broaden the scope of related studies, be it academic courses, hands on workshops, seminars, publications, researches, journals and many such others. Needless to say, heritage documentation has been among its key activities, with its own Award scheme for documentation. With INTACH for heritage and LIK for documentation, two nationwide institutions have joined hands. The theme revolving around construction of heritage houses has created a rare opportunity for students to study and understand ‘the making of Architecture’. We hope this volume would prove that the intentions of the theme have been fulfilled.
Prof. Sathya Prakash Varanashi, Bangalore
WWW.NASAINDIA.CO
Moderator - LIK Trophy 2019 - 20
National Association of Students of Architecture | NASA India
Indian National Trust for Art and Cultural Heritage (INTACH)
WWW.NASAINDIA.CO
Preface
Louis I Kahn Trophy is one of our legendary trophy and a treasure to the Association and to the Architectural fraternity. Over the years, trophy evolved in the aspects of competition and several layers were added which led to quite an amount of misconceptions, Though the intent of the trophy was to study and document our rich diverse heritage of varied scale and create a repository for the same It became more representation oriented in the past few years which brought down the magnitude of documentation and analysis. Considering all this the idea of digitalization was brought in, which will also ease the process of archiving, the publication (both print and Online medium) and reusing the drawings to help competent organisations to preserve and conserve the heritage. This year is the first year to this major shift the results were more than what was expected the quality of documentation and analysis has really surprised the eminent jury panel. This book will be the first step for a great Indian Heritage archive that is going to come over the years by students, of the students and for the students. We National Association of Students of Architecture holds up this as our responsibility and respect that we pay to Indian Heritage Architectural marvels. We believe one day these archives will be used by schools of varied professional to teach, learn and explore. We express our sincere gratitude to INTACH – Indian National Trust for Art and Cultural Heritage and our Moderator Ar Sathya Prakash Varanasi for making all this possible.
J.P.K. Vinod
National Advisor | 2019-20
National Association of Students of Architecture | NASA India.
WWW.NASAINDIA.CO
Simply put, the theme ‘Architecture of the Semi Sacred’ intends to relook at the architecture located between the civic and the sacred, the two major categories studied during architecture program. Incidentally, the semi sacred has been ignored by the fraternity at large.
At present, there is no accepted terminology called semi-sacred, but this text uses this thematic word to denote all those structures which spring around a core sacred phenomena like Islamic mosque, Hindu or Jain temple, Christian church, Parsi temple, Sikh Gurudwara, Buddhist stupa or of any other religion. Centres of philosophy and spirituality which abound in India, also have a core space established by the Guru, Swamiji, spiritual master, holy person, heads of the institution or the enlightened initiator.
The core such established, cannot be functionally and meaningfully effective without supportive functions. We need to preserve traditions; instruct rituals; teach scriptures; care for devotees; safeguard the archives; train the young; facilitate the visitors and in general provide supportive infrastructure. Buildings housing them need not be - visually, stylistically or thematically - as symbolic as the sacred core itself, yet they cannot be as mundane as the civic or public designs are. The major responsibilities of the semi-sacred could be providing ancillary support, complimentary activities, contributory roles and associated services.
Typically, LIK brief would not list out the qualifying building types, but to dispel possible confusions on this comparatively new direction in study, a generic list follows. Semi-sacred as a loosely defined term would not include the core sacred shrines listed above, but may mean all those associated with them - ashrams, chatrams, cloisters of congregations, convents of a church, dharamshalas, dining halls, gurukuls, langar complexes, madrasas, meditation spaces, monasteries, mutts, nunneries, pilgrimage sarais, pravachan halls, priests residences, refectory, samadhi complexes, spiritual retreats, vedic pathashalas, yagashaalas, yathrighar and many such others.
Project Selection
A single building or a group of buildings within one campus / location / complex with total built-up area of minimum of 1000 square meters would qualify for the trophy. The open spaces, outdoor areas, paths and unbuilt parts of clusters, which have no roof overhead, are not to be included in this minimum area requirement. It should have been occupied for more than 50 years exhibiting notable significance in terms of culture, community, crafts, construction, faith, function, beliefs, values, representation, association, irreplaceable uniqueness and such other heritage criteria, largely belonging to their era and may be continuing so even today.
WWW.NASAINDIA.CO
IES COLLEGE OF ARCHITECTURE MUMBAI
Team
Vaibhavi Shirsat (USEC)
Kareena Shah (UD)
Sagarika Deo
Tanvi Udeshi
Rohini Soni
Sarovsh Wani
Heena Chaudhari
Sanika Bhide
Shraddha Kher
Mihir vaidya
Tushita Mehta
Rishabh Shaha
Murtuza Madarwala
Taksh Jain
Himanshu Wanjari
Vishakha Vekhande
Kunal Tambulkar
Ojas Bora
Diksha Marde
Vrushali Shirke
Mayuresh Chhapre
Samruddhi Ugale
Akshith Shetty
Suhani Vijayvergiya
Siddhi Mahale
Mihir Payelkar
Vedang Pandeshwar
Akshad Chavan
Johan Patel
Sayam Mulani
Ananya Singh
Harshita Patil
Ekta Oza
Shreya Kamble
Maria Mamaji
Nimish Sawant
Manvita Neve
Sakshi Vyas
Shraddha Bardia
In the City of Bhubaneswar, let’s start a journey To seek an oasis of serenity

Where thousands of diyas illuminate the land The city welcomes you with glory and grand
To see, hear and experience The confluence of civic and sacred
IN BETWEEN SPACES
Sacred and civic spaces have been constructed centuries back. But as time passed, there came a need to build structures that support and improve the functioning of the sacred core while catering to the civic needs. Such spaces are located in between the civic and the sacred and are often ignored.
OF SEMI SACRED SPACES
SPRINGING AROUND THE SACRED
These structures spring around the temples, mosques, gurudwaras and other religious complexes. Although not religious in nature, THEY hold a high value in the lives of the people. For everyone who visits and experiences the sacred core, it is necessary for them to pass through these ancillary spaces.

Semi sacred spaces in between civic and sacred core
Functionality of the semi sacred
The significant duties are to give allied help, contributory activities and related administrations, without which the sacred core is functionally not effective.
UNDERSTANDING OF THE FAITH AND NEED OF THE SEMI SACRED
Lord Shiva came to Ekamravan in Ekamra kshetra in search of peace to meditate. As they were traversing through the city, Shiva and Parvati came across some demons trying to harass Parvati.
WWW.NASAINDIA.CO
Lord Shiva and Parvati in ekamravan fighting over demons in Ekamrakshetra
Lord Shiva fought back. After defeating them, Parvati felt thirsty. To quench her thirst, lord Shiva shot an arrow at the ground, where a waterbody sprung up.
Providing accommodation Instructing rituals
Faith in lord Shiva and the associated rituals and festivals
Semi sacred spaces sprung around the sacred core

This waterbody was named as the Bindusagar lake and is still considered very sacred by the locals. The people of bhubaneswar started worshipping lord Shiva.
Teaching scriptures Instructing rituals
People built numerous temples dedicated to lord Shiva, the most famous being the Lingaraj temple. Lord Shiva became the major deity of bhubaneswar. As ekamravan developed into ekamra kshetra, with the occurrence of these temples, the number of pilgrims visiting bhubaneswar increased day by day. There was a need to look after these pilgrims in order to offer them a fruitful visit.
Ancient Kalinga (Tosali) was ruled by Jain king Kharavela in 8th century B.C.
Jainism became Odisha’s state religion
THE TALE OF BHUBANESWAR
Bhubaneswar is an ancient temple town in eastern Odisha replete with a rich history of spectacular stone temples. Various empires and religions that have dominated bhubaneswar throughout history shaped the fabric of the city. The life of the people revolves around the several temple complexes dotted across the city. The old traditions and culture of this town still prevail in the present.
TEMPLE CITY, BHUBANESWAR, ODISHA

AND ITS TEMPLES
Odisha is famous for its rich culture, history and heritage. Famous cities like the temple city, bhubaneswar; silver city, Cuttack; spiritual city, Puri and its rich temple culture form an Identity of this state.
Kshetra, Bhubaneswar
And Mughal
from different parts of the country coming to odisha during British
Shanti Stupa (3rd century B.C.)
Sisupalghar fort (4th century B.C.)
Traces of Buddhism construction of shanti stupa , Sisupalghar fort.
Khandagiri Udyagiri caves 6Th century B.C.
Ashoka ruled Kalinga 274-232 B.C.
Saivism became a dominant form of religion in odisha during 5th-8th century A.D.
Construction of Parsurameswara temple in 8th century A.D.
Ananta Basudev temple, first Vishnu temple constructed in Ekamra Kshetra.
Rasoishala at ananta Basudev temple Anna Bhandar
Marathas safeguarding saivite temples (1751 A.D.)
Dalmia Dharamshala
Formation of Bindu Sagar lake during the construction of Lingaraj Temple
Ashokan Pillar converted into Saivite Lingam during 6th century A.D.
Construction of Bharati mutt in 7th century A.D.
Traders
Raj
Dalmia dharamshala (Built in 1920)
India is amongst the few countries where faithbased architecture has a notable presence and acceptance .
ODISHA
saivism
CONTEXTUAL ACTIVITIES AND THEIR RELATION WITH THE SITE
The Temples In The City Of Bhubaneswar Are Bustling With Festive Activities All Year Round. Owing To The Festivities That Take Place In And Around The Lingaraj Temple And Bindusagar Lake, The Supporting Semi Sacred Structures And The Path Leading To Them Are Activated At Different Times Of The Year.





SITE VIEW
Doodwawala
Dharamshala
Dalmia Dharamshala
Anna Bhandar
Anand Bazaar
Rasoishala

Bharati Mutt
Rukuna rath yatra celebrations near lingaraj temple Pilgrims are given the mahaprasad in the Anand bazaar
Widowed women observe the “Baluka puja” in the courtyard
Chandan yatra celebrations at the bindusagar lake
Doli purnima celebrations at the Bharati mutt

Activation of path from lingaraj temple to the periphery of bindusagar lake.
RUKUNA RATH YATRA
In the Hindu month of ‘Chaitra’, the wooden chariot carrying the idol starts from the lingaraj temple and follows a path along the periphery of the bindusagar lake, accompanied by chanting of hymns by the devotees.
The bindusagar road and ghats act as informal public gathering spaces as well as host elaborate rituals during the festival. This emphasizes on the semi sacred nature of the path and its edges.
DHARAMSHALA :

Activation of the rasoishala, Anna bhandar and Anand bazaar
MAHAPRASAD
The ananta basudev temple offers bhog to the deity everyday and then, it is served to the people as the mahaprasad. Due to its easy accessibility, the eating area, Anand bazaar, is used by the pilgrims and the locals. During festivals, the rasoishala and the Anna bhandar becomes busier since they have to cater to a large number of devotees.

Activation of the Dalmia and Doodwawala Dharamshalas and the bharati mutt
BALUKA PUJA
Widowed women observe the holy month of “Kartik” by practising rituals around the Tulsi in the courtyards of the Dharamshalas and the mutt. Apart from this, the dharamshala provides basic necessities and facilitates the visitors all year round.
Dharamshala means “a spiritual dwelling”, a shelter or rest house for pilgrims and travellers. Dalmia and doodwawala Dharamshalas provide accommodation to thousands of pilgrims from far away places like west Bengal, Andhra Pradesh, Maharashtra,etc. Who come to visit the lingaraj temple and other temples of bhubaneswar.
HISTORY OF THE DHARAMSHALAS

SOCIAL CAUSE
They realised a need of a resting space and thus built these dharamshalas to help the society.
PANDITS
The pandits of the lingaraj temple perform the sacred rituals in the Dharamshalas for the pilgrims visiting. During the Hindu month of ‘Kartik’, a ritual, Baluka pooja, is observed in the Dharamshalas, where widows stay there and perform rituals around the sacred Tulsi plant.

EXTENSION TO BUSINESS
Later, as years passed, the functioning of these Dharamshalas became a part of their business.

MARWARI FAMILY
Two Marwari families came to bhubaneswar at different times to visit lingaraj temple and for their businesses in the city.


Activation of the path from the lingaraj temple to the temple in the center of the bindusagar lake
CHANDAN YATRA
A procession begins from the lingaraj temple, to the temple in the centre of the bindusagar lake. The devotees gather around the ghats to observe the ritual of the idol being taken to the temple on traditional boats, “Chapas”.

PILGRIM
Pilgrims rest and stay in the Dharamshalas overnight while visiting the lingaraj and other sacred spaces around bhubaneswar.



Activation of the path from lingaraj temple to bharati mutt
DOLI PURNIMA
In the month of “Falgun”, a procession led by the village drummers halts at the bharati mutt to offer bhog to the deity. A grand celebration involving dance and music by the locals takes place at the mutt.

GROUP OF PILGRIMS
Many pilgrims come in larger groups to stay in the dharamshala, they cook their own food in groups and eat it in the central courtyard.





DALMIA DHARAMSHALA
DHARAMSHALAS AS A SEMI SACRED SPACE
DOODWAWALA DHARAMSHALA



DALMIA AND DOODWAWALA DHARAMSHALA
The dalmia and doodwawala dharamshala are on the edge of the bindusagar lake, where numerous rituals take place throughout the year.

CORRIDOR
The corridor has niches and kunthis on the walls to hold diyas and lanterns during special occasions and festivals. The corridor aids in visual connect to the courtyard.



PORCH
The porch serves as a stopping point for the people outside. Pilgrims who come to stay in the dharamshala store bags in this space.
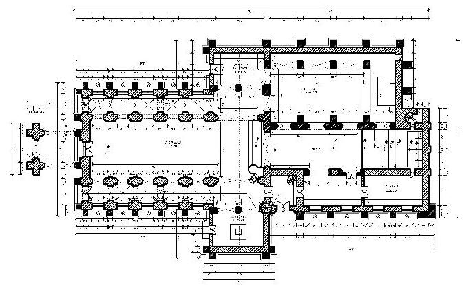
BUILT AND UNBUILT ANALYSIS OF THE DHARAMSHALAS

Floor plates Of Dalmia Dharamshala

Open Spaces

Enclosed Spaces
The Well Water Is Used By The Pilgrims For Washing And Cleaning.

Floor plates Of Doodwawala Dharamshala

Semi-Open Spaces
The Dharamshalas are symmetric in plan. The entrance opens into a common courtyard, through which all the rooms are accessible. This is also seen in the planning of the sacred core structure. Since the pilgrims prepare their own food, they bring the materials and cook food in the smaller courtyard.


WELL
COOKING AREA
The courtyard is also used as a bhog area where meals are served to the pilgrims. Many religious activities take place around the sacred Tulsi in the centre of the courtyard. The openness of the space makes the environment welcoming and well suited for all other public gatherings like the celebration of festivals, offering prayers, resting, etc.
The first floor of the dharamshala has a hall which acts a gathering space. It opens up to the bindu sagar road facing the bindu sagar lake, maintains a visual connection with the outside street and people and provides view of the lake.
WEST ELEVATION
This space caters to the civic needs of the locals.
The floor height of the rooms are higher to accommodate more people during peak festival months.
Comparison of floor heights of a house and a semi sacred structure.

SECTION BB’
SECTION AA’
PLAN
MUTT :
Mutt is a Sanskrit word that means “institute or college”, it also refers to a monastery in Hinduism.
BHARATI MUTT: Bharati Mutt is the residence of pandits, with a Shrine devoted to Lord Lingaraj’s sister, Subhadra.

HISTORY AND EVOLUTION OF BHARATI MUTT

Buddhist Monastery Used for Hindu preachings Artisans engaged in the construction of lingaraj
RITUALS AND ACTIVITIES OBSERVED IN THE BHARATI MUTT
“In bharati mutt, we pandits worship the lord and his sister and offer the bhog to the lord everyday. We perform our daily rituals and preach our disciples. During festivals we offer the bhog to the lord and serve it to the devotees as prasad.”

MAHANT OF BHARATI MUTT
PANDITS
Instruction of the daily rituals, offerings to the lord and his sister, preserving the scriptures, managing the administration of the lingaraj, forms an important part of the daily routine of the pandits.

DISCIPLES
Disciples seek preachings by the gurus, recite scriptures, observe the rituals while staying in the mutt. The disciples in the mutt are taught all the religious as well as civic learnings.
ISOMETRIC VIEW
Key plan showing bharati mutt and lingaraj temple Scale dimensions in m

Grand celebrations are held at the mutt on major festivals such as Doli Purnima, Karthik Purnima and Sital Sasthi when lord Lingaraj is said to be visiting his sister Subhadra. Large crowds visit the mutt during these festivals. Food is prepared for the devotees. Widows visit the mutt during the month of ‘Kartik’ to perform their traditional rituals.

BHARATI MUTT AS A SEMI SACRED SPACE
The complex of bharati mutt holds different spaces for various semi sacred and cultural activities which help the bharati mutt to maintain its cultural and heritage value .
EVOLUTION OF THE EXTENT OF THE MUTT AND ITS CONTEXT
Initially, the extent of the complex of mutt was much larger. The celebrations hosted were much grander and involved more people.


LEGEND
1. Entrance
2. Common Room
3. Courtyard
4. Priest’s Room
5. Storage Room
6. Shrine
7. Bedroom
8. Inaccessible
9. Open Terrace
10. Puja Room
11. Kitchen
12. Wash Area
13. Backyard
14. Toilet
Initial extent of the complex of the mutt
Over time, the value of the semi sacred structures for the people has decreased. This has resulted in a decrease in the extent of the mutt complex.
COMPLEX AS A PUBLIC GATHERING SPACE
THE SAMADHI COMPLEX THE COURTYARD

Gatherings and celebrations in the complex
The complex of the bharati mutt hosts numerous festivals throughout the year.
THE ENTRANCE
Samadhis of the mahants
The samadhis of the caretakers (mahants) of the mutt who have passed away are constructed in the complex.
THE COMMON ROOM

The entry to the mutt
Existing extent of the complex of the mutt
WWW.NASAINDIA.CO

The main door of the bharati mutt is intrinsically detailed and grand in its form which resembles the ideology of grand and symbolic temple entrances .
10 Common gathering space
The bharati mutt acts as an institution where the mahant safeguards the religious texts and imparts knowledge to the young.

The central courtyard hosts elaborate rituals and community lunch during festivals. The young disciples are taught to perform rituals ,read scriptures and prepare bhog. Number of festivals like Doli Purnima, Sital Sashti are celebrated in the courtyard.


The daily activities of the courtyard BUILT AND UNBUILT ANALYSIS OF BHARATI MUTT


Public Gathering Area
Samadhi Complex
Doli Purnima Celebration
RITUALS IN THE COURTYARD COMMON AREA
Widow women practicing rituals
THE COMPOUND WALL
MUTT KITCHEN
The mutt has two kitchens: a private kitchen for the residents of the mutt and a kitchen in the central courtyard to prepare bhog during festivals.
WEST ELEVATION
The courtyard hosts many religious activities and rituals , one of which is the Baluka puja practiced by widowed Odiya women. The faith based design of the mutt has been integrated with rooms to accommodate the widows , residents of mutt and pilgrims .
The complex of the bharati mutt has two layers of walls. A lower outer compound wall, resembling a civic structure and a higher inner wall, resembling a sacred structure. The lower outer wall allows connect of the people with the festivities in the complex . The higher inner wall maintains the security and privacy required for a sacred structure.
The common area being used for various daily activities
Compound wall of a sacred structure
Compound wall of a semi sacred structure
Compound wall of a civic structure
Private kitchen for the residents
SIMPLIFIED DETAILS
The ornamentation at the bharati mutt closely resembles the embellishments of the sacred core, but in diluted expressions. The windows and gargoyles adorning the elevation of the sacred core have been simplified and integrated in the bharati mutt. These intricate carvings reflect the localised style of ekamra kshetra.

SECTION AA’
SECTION BB’
Window observed at the mutt and the lingaraj temple
Door and column observed at the mutt
Gargoyle observed at the mutt and the lingaraj temple
Kitchen of civic structure
Kitchen of sacred structure
RASOISHALA
Rasoishala is the place where food is being cooked.
ANAND BAZAAR
Anand bazaar is a place where the cooked food is being sold .
ANNA BHANDAR
Anna bhandar is the storage space for raw materials and utensils used for the cooking.
ANANTA BASUDEV TEMPLE COMPLEX
The Anna bhandar, rasoishala and Anand bazaar have been built in the vicinity of ananta basudev temple. They have been constructed in traditional Odisha style of architecture with varying degrees of foreign influences.

FUNCTION AND EVOLUTION OF ANANTA BASUDEV TEMPLE COMPLEX

Pilgrims worshipping Lord Vishnu
Preparation of bhog Offering bhog To the lord
Later the pilgrims have the bhog as prasad
Ananta basudev temple Need of the Anna bhandar Need of the Rasoi shala Need of the Anand bazaar

PANDIT: Preparing the raw food
The pandits prepare the raw materials for the cooking of the bhog. They carry the raw food in pots to the rasoishala.

PANDIT: Cooking of the bhog
The pandits prepare food in the rasoishala to offer to lord Vishnu and it is then served to the devotees as prasad. The pandits perform certain rituals, read the scriptures, recite the mantras, worship the Tulsi plant during process.
ISOMETRIC VIEW
LEGEND
1. Entrance
2. Corridor
3. Preparation room
4. Store room
5. Eating space
6. Selling area
7. Rasoishala WWW.NASAINDIA.CO

DEVOTEES : Feasting Of The Bhog
The prasad is then sold and eaten by the devotees in the Anand bazaar. Various rituals are performed around the eating area. The inscriptions on the wall are worshipped by the devotees.
RITUALS AND ACTIVITIES PERFORMED IN ANANTA BASUDEV COMPLEX

AS
Instructing Rituals
Facilitating the pilgrims Care for devotees Teaching scriptures
Safeguarding inscriptions
ANANTA BASUDEV COMPLEX
A SEMI SACRED SPACE
The storage area, Anna bhandar, the Rasoishala and the eating area, Anand bazaar work in sync with each other to facilitate the ananta basudev temple. These ancillary structures provide supportive infrastructure to the temple by aiding in administration, the pilgrims and the locals by providing food in close proximity to the Dharamshalas, bindusagar lake and temple.

Schematic plan showing the movement due to the semi sacred activity of preparing bhog
RASOISHALA
ANNA BHANDAR

The corridor acts as the spine of the structure. The office is placed at the front to keep a record of the grains bought, stored and supplied to the rasoishala. The grain storage areas and vegetable cutting areas are placed throughout the length of the passage. The utensils used occasionally by the rasoishala are stored at the rear end of the structure.
ACCESS

Schematic view showing the corridor of the storage area and the linear movement within the structure

The rasoishala comprises of a row of blocks to allow the pandits to prepare bhog. The pandits pray and perform a cleansing ritual before cooking which is considered to be pure in nature. The raw food and firewood is stored outside the block
The rasoi is equipped with “Chulas” for cooking purposes. Ventilators are placed at higher height, so that hot air moves out of the structure.

NORTH WEST ELEVATION
The pandits of ananta basudev temple offer bhog to the lord Vishnu 8 times a day. The bhog is offered in small matkas and kept in front of the idol. Only after the offering, it is served to the visitors.

Anna Bhandar
Anant Basudev Temple Rasoishala GROUND FLOOR PLAN


The mahaprasad is brought to the Anand bazaar to be given to the devotees. The serving areas lie on the periphery of the eating area, which is designed as a pavilion. This area is the most publicly accessible space of the complex and lies within a close proximity of the temple. This facilitates the easy movement of the visitors.
The Anand bazaar is divided into two parts: selling and eating area. The selling area is divided into rectangular blocks of spaces. The rear end of each block is used as a storage area for the food, which is stored in small matkas. The front end of each block has a small pedestal, on which the person selling the food sits and interacts with the people.
THE ATTIRE OF THE PEOPLE ACCORDING TO THEIR ACTIVITIES KATTA AIDING THE SEMI SACRED ACTIVITY

At the time of the construction, the Anand Bazaar was just an open ground for people to come and eat the prasad. Later the ‘katta’ started acting as a gathering space and a place for people to eat the mahaprasad and hence became a semi sacred place in itself by catering to people’s civic as well as sacred activities.





The spaces of the complex are divided as public and private spaces. Areas like the rasoishala and the storage space are private in nature. This is not publicly accessible and only people from a specific community are allowed to enter this space. These blocks don’t directly impose the faith in terms of their accessibility and usage.

The attire of the people of this region changes according to the activities they’re doing. People are dressed in normal clothes when they conduct basic activities. But before conducting a sacred activity, they wash their hands and feet, wear a ‘gamcha’ and then proceed with their sacred activity.
Food is served to the people and pilgrims in the Anand bazaar. Hence this space is public in nature.
WWW.NASAINDIA.CO

The similarity between the details of the sacred core and the semi sacred is seen in the ananta basudev complex as well. A stark resemblance between the Vrindavan of the sacred Tulsi in front of the rasoishala and the Shikhar of the lingaraj temple is observed, but with reduced ornamentation.

The cooking area of the ananta basudev complex has ventilators on the walls for the hot air to go out. These ventilators are seen beside and above the opening. These help in letting out the hot air from the kitchen area.


The Dharamshalas, constructed during the British reign, have an influence of colonial style of architecture. This is seen evidently on the front facade of the Dharamshalas. These consist of semicircular, multi-fold and pointed arches suggesting influences of the architecture of that era. The structures of ananta basudev temple complex have a simplified facade and appearance.

The details of the rasoishala resemble that of the ananta basudev temple where as the details of the Anna bhandar resemble that of the lingaraj temple. The cornice detail of the roof of the Anand bazaar is also similar to the cornice detail of lingaraj temple.
The sacred core holding the utmost value and importance has intricate ornamentation and detailing. Bharati mutt being the most religious typology of all the structures, was constructed during the same time as the lingaraj temple. It has a local relevance and the details have a close resemblance with the details of the lingaraj temple, but with simplified and reduced elements.
NEED OF SEMI SACRED STRUCTURES
Owing to the presence of numerous temples, rich culture and history, people from all over the country visit bhubaneswar to perform religious activities. During these visits, a number of ancillary structures are required to cater to their religious and civic needs. Hence the need of structures that can house such activities arose.
Structures like Dharamshalas, mutts, bhojanalays, cooking and storage areas aid in the effective functioning of the lingaraj temple as well as facilitating the devotees. These structures hold a strong cultural value and speak volumes about the city’s traditions and history. They hold a great social value and exert their importance by having a strong architectural identity. These structures preserve traditions and cater to the large number people visiting this region. Hence there is a need of conserving and preserving semi sacred structures.

ABSENCE OF SEMI SACRED STRUCTURES
Semi sacred structures play an integral role in not only carrying out the religious activities of the devotees but also have an undeniable impact on the lives of the locals. Absence of these structures will have a direct impact on the sacred core and the society. This would lead to heritage loss and tourism loss, leading to economic problems and unemployment. Abandoning of semi sacred structures will adversely result into encroachment and corruption.
These structures will no longer cater to the needs of the visitors. They will not have a place to perform certain rituals, stay and eat within the proximity of the lingaraj temple. Tradition and culture will not be preserved which will lead to loss of community. Dilapidation of these structures will result into loss of functionality and will lead to its architectural degradation.
CONSTRUCTION DETAILS

In the similar manner, stone chajjas have been constructed in the bharati mutt and both the Dharamshalas.
Stone cornice: unlike usual cornices, the stone cornices in the Dharamshalas were not carved. Instead, courses of flat stone pieces were laid in an alternate fashion to achieve a projecting detail.
BHARATI MUTT TERRACE FLOORING
DETAIL A (HOUSE JOINERY)
BHARATI MUTT INTERIOR FLOORING
BRACKET AND WALL JOINERY
STONE CORNICE COURSES
STONE CHAJJA
STONE CORNICE
BHARATI MUTT WOODEN DOOR
The ancient kalinga style of architecture seen in the lingaraj temple is considered to be the style of large volumes, detailed carvings and stone constructions. The semi sacred architecture around it thus resembles the construction details such as joinery, masonry details of the sacred. The degree of resemblance of the construction details varies within structures.

DHARAMSHALA GUTTER DETAIL MULTIFOLD ARCH
SEMI-CIRCULAR ARCH POINTED ARCH
Due to sagging of timber members in dharamshala flooring some of timber members were replaced by steel i-sections.
DRY STONE MASONRY- TENON AND MORTISE JOINT
DRY STONE MASONRY SECTION
DHARAMSHALA OLD FLOORING DETAIL- WITH TIMBER MEMBERS
TIMBER MEMBERS REPLACED BY STEEL I-SECTIONS
DHARAMSHALA RAILING DETAIL
DETAIL A
DHARAMSHALA FLOORING SECTION STONE WELL (13M DEEP)



WWW.NASAINDIA.CO
Special Mention
FACULTY OF ARCHITECTURE - SARVAJANIK COL-
LEGE OF ENGINEERING & TECHNOLOGY
Team
Priyal Mehta (USEC)
Dev Sheth (UD)
Nandini Shah
Brinda Patel
Dhruvil Vaghani
Jhanvi Prekh
Kekin Patel
Purva Kathiriya
Shivang Raval
Vaidik Khorasia
Vinay Kakadiya
Darshak Koshiya
Dhruv Tapadiya
Preksha Rajyaguru
Nisha Patel
Aayush Patel
Krisha Kadhiwala
Niharika Tare
Nikhil Viras
Sindhu Kaur
Prayag Shah
Aayush Kanodiya
Prashant Vaghsiya
Varnit Dhanani
Nirva Patel
Prachi Shah
Jahnvi Shah
Dhwanit Khandelwal
Devansh Shah
HYPOTHESIS
Some spaces elicit humans to respond beyond the ordinary, these become the focal importance of one’s life, however, some extended spaces congregate, and explore their own meanings of spirituality. These extended spaces not only serve as an extension of the sacred, but itself act as a core to the space. With a unique essence to every structure, these embody native themes and elements.

LOCATION
Namdroling monastery in Bylakuppe, Karnataka, India is a thriving community and home to thousands of lamas, monks and nuns, making it the largest Nyingaya teaching center in the world.

Reincarnation of tenth Zhabdrung Rinpoche at age of four.
Padmanorbhu was born in Powo region of east Tibet.
SITE JUSTIFICATION
The genesis of the sacred territory is mostly ingrained with metaphysical beliefs of divine presence, and the elongations of its semi sacred and civic fabric follow in. However, the site follows reverse establishment of the former order, where the refugee camps (civic) were established in the first order to sustain the crippled livelihoods, the monasteries and vihara’s (semi-sacred) to accommodate the monks, and the majestic temples (sacred) after a decade of getting financial support and world recognition. The choice to establish semi sacred spaces here didn’t generate for the sacred, but was the cause for the sacred itself. Infact the relics that form the stupa of the main temple, are of the person who built the whole complex with his sheer will and commitment.

Communist Chinese army invaded Tibet, rinpoche fled to India and was invited by the king of Mysore
padmanorbhu rinpoche returned to Palyul monastery
WHY BYLAKUPPE

BYLAKUPPE
CLIMATE
WWW.NASAINDIA.CO
Bylakuppe settlement is the largest as well as the oldest of settlements of Tibetan refugees in India. It is located in the far-east end of Mysore district. Before this settlement, the area was more or less uninhabited except for a few Indian families residing in the remote pockets of the forests. Needless to say that not even roads were available in this part of the country - not to speak of other facilities like electricity, telephone / etc. The Bylakuppe settlement was established by clearing the forests in this region and now it is an area which is full of agricultural activity and hubbub of life. This settlement has given bylakuppe an identity of its own on the map. The tourism has been boosted in this area, moreover monks from all over the world come to study in bylakuppe.
Invited people at the great gathering from all over India to spread awareness about Namdroling and ask for funds.

BYLAKUPPE CLIMATE SUMMARY
Bylakuppe lies 866m above sea level. The climate is tropical. In winters there is less rainfall than summers. The average rainfall is 102.7mm. April is the warmest month with average temperature as 25.7°C. December has the lowest average temperature of 21.0°C. The average annual temperature is 22.7°C.
Visited palyul monastery after 20 years, established palyul retreat center and ordained many monks.
Established two Buddha temples in Pemakod Arunachal Pradesh and preached his followers there
Established Namdroling monastery in Bylakuppe after he fled from Tibet.
Established Buddhist research center and trained the first batch of Khenpos at Namdroling.
Started to established himself overseas and enlightened 30000 people in Canada and the USA.

CIVIC STRUCTURE

The town is divided into the new and old camps, which were established by the Tibetan refugee.
1. Lugsung Samdupling Tibetan settlements (the old camps of1960)
An area of approximately 3000 acres was granted by Mysore government to the Tibetan refugees and his holiness, Penor Rinpoche for the dratsang


2. Dickey Larsoe Tibetan settlements (the new camps of 1969)
An additional area of approximately 2500 acres was granted by Mysore government later on to fulfill the growing number of refugees
POPULATION DEMOGRAPHIC
Division on basis of Religious vows


Gender Ratio


Age Criteria


Migration from Tibet


REFUGEE CAMP MAPPING

The 6 old camps are in the northern part of Bylakkupe, are very dense in nature and has many important monasteries, while 16 new camps are in the southern part of Bylakkupe, are of low density. The camps have a particular morphology, they resonate with a urban sprawl pattern.
CULTURAL CONTEXT
Nymingya lineage is a culturally eccentric lineage among all the six lineages. It has a varied spectrum of festivities and rituals that are followed by the monks and students residing in there which includes Saga Dawa.

MEASURING TECHNIQUES

Nymingya sub-sect wise distribution




1.Triangulation Method
For locating the exact location of the site the trees on the context is measured with respect to the compound wall of the unit.
2. Anthropometric scale
The unreachable heights are measured by relating with the human heights and rest are measured using measuring tapes.
3. Foot&palm measurement
For making plans the measurements have been taken with respect to foot, details have been measured using palms.
EXPLANATION OF FAITH IMPORTANT DEITIES OF BUDDHISM

BUDDHIST PHILOSOPHY
“My teaching is not a philosophy. It is the result of direct experience ... My teaching are means to practice, not something to hold onto or worship.

My teaching is like a raft used to cross the river, Only a fool would carry the raft around after he had already reached the other shore of liberation”
BUDDHA SHAKYAMUNI
The variety of teachings that Lord Buddha gave to suit the different mentalities of beings can be simply condensed into the profound view of interdependence of all phenomena and the conduct of non-violence (ahimsa).
GURU PADMASAMBHAVA
Guru Rinpoche not only gave various esoteric and secret Tantra teachings through his immense compassion for the beings of Tibet, but also concealed many treasures for the benefit of future generations; all Tibetans consider him to be extraordinarily kind and revere him as the Second Buddha.
BUDDHA AMITAYUS
Whosoever hears the name of Buddha Amitayus will have the length of his or her life extended. When beings are nearing death, if they touch the letters of his name, recite his name and mantra, or praise his qualities, their life spans will be extended.



Family occupation in Bylakuppe



4.measuring using the measure tape
Block measurements have been done by taking a datum line on the ground and then measurements are done by tape to make plan.

THE WHEEL OF EXISTENCE
(BHAVACAKRA)
It represents the cycle of birth, death and rebirth. If after death we disappear, everything would just be over; but that doesn’t happen. One is indeed forced to take a new birth in Samsara according to one’s karma. The term ‘Samsara’ means a circle in which we turn round and round, taking rebirths one after another in the six realms owing to our own actionswhether positive or negative. In this way, the cycle turns endlessly like a potter’s wheel. The Wheel of Existence depicts all beings held by the jaws, hands and feet of Yama, the Lord of Death, who turns the wheel. The outer circle of the Wheel (not shown in detail in this gallery) is the Paticca Samuppada, the Links of Dependent Origination. The Wheel of Life is one of the most common subjects of Buddhist art. The detailed symbolism of the Wheel can be interpreted on many levels.


STUPA OF HEAPED LOTUSES
This stupa refers to the birth of Gautama Buddha. At birth Buddha took seven steps in each of the four directions. In each direction lotuses sprang up, symbolizing the brahma viharas.

STUPA OF THE ENLIGHTENMENT
This stupa symbolizes the 35-year-old Buddha’s attainment of enlightenment under the bodhi tree in Bodh Gaya, where he conquered worldly temptations and attacks, manifesting in the form of Mara.
STUPA AS A SACRED ELEMENT
All the stupa’s have been constructed in light of Buddha’s life events by his followers all over the world. Here, they have been shown in ascending order.

IMPORTANCE OF CONSTRUCTING STUPA’S
1) Stupa is a sacred space which is open to everyone at all points of time, making worship spiritually open to all social hierarchies.
2) Presenting small offerings and doing services for the maintenance of the stupa, can ripen great karma for the individual and enhances his connection to the faith
3) Stupa’s are the manifestation of the Buddhist ideology that “the form of Buddha is not important, nor is the time, but the worship”



BUDDHISM AS A RELIGION : TIMELINE
ESTABLISHMENT
746-765 Fear of evil on the kingdom is sensed and felt -Buddhism was rising in southeast Asia and was believed to fight the evil powers -King Trisong Detsen invites Pornu Padmasambhava to Tibet to preach Buddhist philosophies

770-The preachings are termed as Nyingma teaching meaning old and are started to be translated into 785-First Buddhist monastery, Samye Monastery set up in Tibet
SYSTEMATIZATION AND DIVISION
850-1100- Due to invasion by King Langdarma, two groups of people escape to east and west of Tibet and Buddhism goes underground

SPREAD OF BUDDHISM
1550- many practices and preachings of tantras are discovered and started to be used. The people who believed in more meditating practices than the tantras established Dzonchen Lineage, but still were a part of nyingma lineage.

1665- Mindroling Monastery, Dehradun 1675- Dzongchen Monastery, Tibet 1680- Shechen Monastery, Tibet 1759- Kharchu Monastery, TIbet
EDUCATIONAL INSTITUTION
Various attempts were made to spread the nyingma lineage
1848- Dzochen Shri Shechen, Tibet, a nyingmya monastic 1168 Vajrayana people (east) see themselves as new people and establish new lineage I198 Kathok Monastery, East Tibet, is established which is the first vajrayana monastery 1159- Katok Monastery, Garze, Tibet 1236- Rongzom Chokya the main writer of Nyingma text starts to compile all the written and oral data which is used as well as preserved at Dorge Monastery.
STUPA OF MANY DOORS
Very soon After attaining enlightenment, the Buddha taught his first bunch of students in a deer park near Sarnath. The series of doors on each side of the steps represents his first teachings.
STUPA OF DESCENT
At 42 years of age, Buddha spent a summer retreat in the Tusita Heaven where his mother had taken rebirth. In order to repay her kindness he taught the dharma to her rebirth.
STUPA OF GREAT MIRACLES
This stupa refers to various miracles performed by the Buddha when he was 50 years old. Legend claims that he overpowered maras by engaging them in intellectual arguments and also by performing miracles.



STUPA OF RECONCILIATION
This stupa commemorates the Buddha’s resolution of a dispute among the sangha.
STUPA OF COMPLETE VICTORY
This stupa commemorates Buddha’s successful prolonging of his life by three months
STUPA OF NIRVANA
This stupa refers to the death of the Buddha when he was 80 years old. It symbolizes his complete absorption into the highest state of mind.

college was established, first Buddhist college and second largest institutional in history of world
1961- Establishment of Namdroling Monastery, Bylakuppe, Karnataka. Under the religious scenarios of lyingma lineage by Penor Rinpoche
CULTURAL ACTIVITIES
Drupchen is a form of intensive group practice that epitomizes the depth, power, and precision of the Vajrayana, drawing together the entire range of its skillful methods

Losar is a new year's festival, celebrated on the first day of the lunisolar Tibetan calenda.
CLOTHING STYLE



SITE LAYOUT OF NAMDROLING MONASTERY
SITE INTRODUCTION
The Namdroling monastery is situated in Bylakuppe town of Mysore district. It is a complex that comprises of various buildings with varied characters and these buildings have their unique essence and serve for different purposes.
CONTEXTUAL PLAN- BYLAKUPPE

LEGENDS
1. Admin Block: commercial shops are at ground floor and monk residence on upper.
2. Junior High School: The jr. high school is where students study upto eighth grade.
3. Monk’s Dormitory: place where students and monks live together.
4. Padmasambhava Vihara: prayer hall (sacred) and student’s dome(civic) are present in complex.
5. Zangdok Palri Temple: it has huge statue of pinor rinpoche and is considered as sacred.
6. Tara Temple: another important sacred landmark in the campus.
7. Nangagyur Nyingma Institute: NNI is for students to persue education after school, it offers a nine year course.
8. Retreat Centre: the retreat centre is a restricted space, yet a semi-sacred space.
9. The Old Stupa: this is the oldest structure in the complex.
10. The 16 Stupas: these depict the life events of rinpoche after he came to India.
11. Old Age Home: to cater all the age groups of society old age home was built.
12. Guest House: as the tourism grew in the area a place for tourist to stay was made.
SITE PLAN AT LVL +7800
Total Site Area : 1,12,800 sq.m2
Built Up Area : 25,820 sq.m2






DATE: 2OTH JUNE,2020 TIME: 12:00 PM (IST)










DATE: 20TH JUNE,2020 TIME: 4:00 PM (IST)

DATE: 21ST DEC,2020 TIME: 12:00 PM (IST)

DATE: 21ST DEC,2020 TIME: 4:00 PM (IST)
SITE PLAN AT LVL +7800
Padmasambhava Vihara
The focal Centre of the complex
Ngagyur Nyingma Institute
Center for higher education and Buddhist philosophy.
GENERAL ANALYSIS
Landscape Zoning

ISOMETRIC VIEW OF THE SITE
All dimensions are in mm
Accessibility
Public path
Private path for monks
Socio-Interactive Nodes
Jr. High School Educational foundation for the young.
Spatial Zoning
KEY PLAN AT LVL +7800


The ‘padmasambhava Buddhist vihara’ holds eccentric importance in the complex. It is an amalgamation of various functions taking place at one time, which include prayer hall, meditation hall, monk residence, gathering space, library, examination hall. The prayer hall holds importance in the daily lives of school and college students, as they worship here twice a day.

The space where monks reside. Extended to the core, is the simple holistic lifestyle of a monk.

PRAYER HALL
The space where the spiritual functions of the built take place.

For a structure with semi-sacred nature, its purpose signifies, the need and practice of the built mass, and their co-relation results in the establishment of spiritual and functional core of the space.

MEDITATION HALL
Meditation, in the Buddhist tradition is its way to divinity, thus the meditation hall is an extension of the core divinity.

PLAN AT LVL +3300
EXAMINATION HALL
The examination which is a part of teaching curriculum, for the academic growth, is held in the basement of the building


Library aids in safeguarding the archives in form of texts and books.

GATHERING HALL
The gathering space on the ground floor, aids them in social gatherings and festivities,

LEGENDS
DHARMA WHEEL AND PAIR OF DEER
Buddhist emblem of Dharma wheel with eight spokes and deers, flanked by 41 male and female deer on the right and left sides, both gazing single-pointedly at the wheel, is traditionally seen on all Tibetan monasteries, and is one of the most significant symbols in Tibetan Buddhism.

THE DHAMMA CHAKRA
In Buddhism, the Dhamma Chakra is widely used to represent the Buddha’s (Buddha’s teaching and the universal moral order), and the walking of the path to enlightenment.

PLAN AT LVL + 7800
WWW.NASAINDIA.CO
1. Examination Hall / Meditation Hall
2. Store Room
3. Teacher’s Quaters
4. Stairs For The Service Core
5. Sunken Passage
6. Stairs For The Sunken Passage
LEGENDS
1. Entrance Porch
2. Tourist viewing area
3. Sitting for students
4. Sitting for monks
5. Sitting for abbots
6. Rinpoche’s throne
7. Guru padmasambhava’s statue
8. Lord Buddha’s statue
9. Buddha Amitayus’s Statue
10.alternate entry
11.service core for vihara
12.stairs for abbots
13.stairs for supreme
14.stair for handicape
15.Offering Room


TOURISTS ACTIVITY




1. Removing footwear
As the tourists enter in the vicinity of the vihara, the first activity is to remove their shoes near the vihara.
MOVEMENT AND ACTIVITY
MAPPING

ACCESSIBILITY MAPPING
WALL SECTION
2. Experiencing the divine
As they enter in the vihara, a divine and spiritually admiring feeling is experienced by the tourists.


3. Praying
As the time passes, they observe the prayers and rituals taking place in the prayer hall, they experience and enjoy the various activities taking place.
4. Experiencing the landscape
After experiencing the divinity, at the vihara, tourists enjoy the adjoining landscape, the water bodies and green spaces give them a serene experience and a refreshing scenery, which rejuvenates them.


Dynamic and static spaces can be observed and experienced due to the movement and accessibility of the monks, students and tourists, through which we can define the nature of spaces and their behaviour. The degree and extent of privacy can be observed as we ascend upwards.
The activity mapping is done according to the movement and thresholds created unconsciously by the tourists, monks and students by their interactions, the spaces highlighted show the accessibility of each one of them. Static and dynamic spaces are created by the amalgamation of movement and function.

PADMASAMBHAVA
BUDDHIST VIHARA
KEY PLAN AT LVL +7800

FIRST AND SECOND FLOORS
The first and the second floor comprise of mostly private spaces accessible to monks and students only. As the height ascends upwards, they become more private. The atrium on the ground floor extends up-to the second floor. The first floor comprises of the monk’s residence and the library, where the library is accessible to everybody. The second floor consists of a prayer and meditation hall and monk residences.
SOCIAL HIERARCHY
Hierarchy in the ranking of Buddhists according to the social hierarchy, where rinpoche is the supreme leader with maximum power, about are the unit head, and thus the hierarchy follows.




LEGENDS
1. Meditation Room For Monks 2. Terrace 3. Monk’s Cell
Washroom
Service Core
Passage



VOLUMETRIC ANALYSIS
The volumetric play in the structure is done such that, as we move forward in the built mass, the variance in these heights depicts the hierarchy towards the core.
HIERARCHY IN VOLUMES
The spread in cone of vision in both horizontal and vertical direction makes a person believe that almighty is biggest supernatural power
LEGENDS
Entrance foyer- 4.94m
Visitors space- 9m
Praying and gathering space -13m
Core - 20.6m
Empiricism of divinity through the entrance foyer.
1.7m rise from the ground to mark the respect to the space.
Visitor’s space enables tourists to experience the rituals.
The entrance foyer has a clear height of 3 m and sense of belonging is felt.
Praying and gathering space as imperative space of the built mass. Long walk in awe towards the deity and modulating volumes is experienced.
The magnificent core acts as the spiritual focus.
Dominated by the quadra hieghted atrium, one bows down to monumental scale statue.

EVOLUTION OF BUILT MASS
Buddhist architecture has evolved over time, and so have evolved the viharas , with their form growing vertically, these magnificent structures stand tall with their quadra-hieghts.

Stupa 3rd Century BCE Maha Stupa 2nd Century AD Animeshlochha Stupa 7th Century AD
SPATIAL CODES IN PLANNING

The spatial codes of Buddhist architecture, follow a hierarchy, arranging spaces according to their characteristics and functions, keeping the prayer hall in the centre of the complex, it being surrounded by the ambulatory, further extending to monk residence , library and meditation hall.
WWW.NASAINDIA.CO



VIHARA- SPATIAL PLANNING

Maha Stupa 12th Century AD
The form of padmasambhava Buddhist vihara is amalgamation of all the Buddhist architecture forms.
MASSING


Library- safeguarding the archives

Instructing rituals near the prayer hall

Monks sitting as per their ranks in the prayer hall



Sitting of monks and students in the vihara. Examination hall in the basement.
Sanchi
BUDDHIST PHILOSOPHY- BUILT ORIENTATION
In order to pay respect, to the statue, first ray of rising sun should fall on Buddha. The light which falls on Buddha as zenith shows enlightenment of Buddha according to Buddhist belief the statue of Buddha must be in the direction of rising sun and the sunlight at zenith must reach the statue.

HIERARCHY IN PLACEMENT AND POSITIONING
The hierarchy in placement and position is done according to the ranking of monks, the most experienced lamas get the most carved ‘paath’ and the intrinsic value reduces as the rank reduces, students get a simple paath. abbot, gets the carved chair



VIHARA AND ITS SEMI-SACRED ELEMENTS

LANDSCAPE AND THE FIVE ELEMENTS
The five elements hold an eccentric importance in Buddhism, common symbol of the five elements is the gorinto, a stone tower of modest size used mainly in Buddhist temples and cemeteries. It is composed from bottom to top of a cube, a sphere, a triangle, a crescent and something resembling a lotus flower, shapes that also have the meaning described above.
FIRE- DRAGON COLUMNS
These are symbols of enlightenment and the preachings that Buddha gave.

SKY- MANDALA
The paintings of mandala are always drawn on the inner roof which depict the ‘sky’.

WATER- FOUNTAIN
Water symbolizes purity and clarity. It reminds to cleanse our minds and attain enlightenment.


VOID- QUADRA HIEGHTED ATRIUM
It depicts that there is always room for further learning and new positive energy.

EARTH- BASEMENT AND LANDSCAPING
Symbolizes Buddha’s enlightenment under the bodhi tree.

NGAGYUR NYINGMA INSTITUTE
NNI is a Buddhist institute established by penor rinpoche, to push for the research of Buddhist philosophy and enrich his community in bylakuppe spiritually. It offers a nine year course, accommodation and food to students free of cost.

LEGENDS
1. Student’s Dorm
2. Class Room
3. Meditation Hall 4. Prayer Hall 5. Auditorium 6. Kitchen 7. Dining Room 8. Admin Block 9. Students Cafe 10. Common Washroom 11. Storage 12. Informal Sitting 13. Passage
They are taught different levels of Buddhist sutras according to their academic curriculum
The young budding students learn to practice the Buddhist faiths.
All the rituals and beliefs are properly practiced here by the students.
It is the epicenter of all the intangible activities exercised by monks
Meditating and reciting the scripts help strengthen their inner spirit.
Since there is distribution of knowledge, the network spreads exponentially.
All the facilities direct the students to concentrate on their academics.
EMPERICISING AN INSTITUTION AS A SEMI SACRED SPACE
The institute has a space to practice the faith and perform spiritual activities (prayer hall) along with lifestyle activities (hostels & classrooms).


LEGENDS
1. Student’s Dorm
2. Class Room
3. Prayer Hall
4. Auditorium
5. Admin Block
6. Students Cafe
7. Common Washroom
8. Passage

ACTIVITY MAPPING
CLASSROOM
It can accommodate upto forty students at a time.


9 Year Course Structure Ngagyur Nyingma Institute
• Ascertaining the Three Vows Engaging in the conducts of Bodhisattva.
• Tibetan Grammar Dialectical Syllogism.
• Praise of Distinction to the Buddha.
• The Ornament of the Middle Way Gateway to the Ways of the Wise.
• Political History of Tibet History of Nyingma Teachings.
• Essence of Clear Light The General Sutra that Gathers All Intentions Interpretative.
• Verses on Vinaya Discipline.
• Essence of Clear Light The General Sutra that Gathers All Intentions Interpretative.
• Verses on Vinaya Discipline.
• Supreme Teachings on the Greater Vehicle Lamp of Definite Understanding.
• Ornaments of Sutras .
• Four Hundred Verses on the Middle Way.
• Political History of Tibet.
• Relaxing in the Nature of Mind, The General Sutra that Gathers All Itentions The Instructions on the Four Rivets of Meditation Explanation of Eight Pronouncements.
STUDENT’S DORM
It has two beds with an attached common unit for study, and is equipped with all the basic furniture.

• Treasury of Explicit Teachings and Interpretative Treatise.
• Cognition Biography of Palyul Throne Holders History of Nyingma Teachings.
• The Ornament of the Explicit Realization.
• Interpretative Treatise on Valid Cognition Distinguishing the Phenomena and Reality. MASSING
KITCHEN & DINING
It can serve upto 40-45 people at a time.


DAILY ROUTINE DENSITY MAPPING INFERENCES
SELF-STUDY
5:15 -7 AM
The students wake up and go for self study sessions in open ground or the terrace.
BREAKFAST
7 -8:30 AM
A typical south Indian meal is taken as breakfast.
ACADEMICS
8:30 -11 AM
Students attend the classes for academic lessons.
LUNCH
11 -1 PM
Students eat the lunch in open or bhojnalaya, and interact in the remaining time.
SPIRITUAL CLASSES
1- 3PM
The students head to the auditorium for spiritual classes.
The density dissipates from high to low, static to dynamic, inwards towards the common open space. This signifies their movement from private spaces to community spaces.
The mass starts to move out of the complex, and becomes very low dense. The institute remains static, whereas the outer spaces become dynamic.
The rigorous schedule begins here, as the mass starts to accumulate in the classrooms, and becomes stagnant.
The mass starts to dissolve again, and becomes very low dense. The institute remains static, whereas the outer spaces become dynamic.
TEA BREAK
3 - 4:30 PM
Tea break is taken and then they study the minor subjects.
RECESS
4:30 -5 PM
They rest or pursue their hobby and activities in open spaces.
DEBATE
5 -6 PM
A curriculum stated topical debate is orgainized daily in the central open space.
SUPPER
6- 7:30 PM
Supper is taken, and they conclude their day by sharing routines.
The prayer halls and auditorium starts TO FILL up and become nodes for spiritual meditation, and points of very high density.

SELF STUDY & SLEEP
7:30- 11 PM
A little tea break is taken followed by self study and then they go to sleep.
This is the mid-DAY break, and an escape from their daily routine. They explore the complex, and HAVE extremely low density.
The mass starts to move towards the playground and it becomes very dynamic.
This is the only instance where all the students are gathered in the same ground, they are static physically but very dynamic mentally.
The mass starts to dissolve again, and becomes very low dense. The institute remains static, whereas the outer spaces become dynamic.

Everybody returns to their personal space, and the movement stops.
JUNIOR HIGH SCHOOL

The school was an initiative taken by penor rinpoche to educate the young breeding minds about basic Buddhist knowledge system and Tibetan grammar. The twenty two classes on the ground floor accommodate students from class 1ST- 8th, and dormitories above are inhabited by the respective students. The school not only helps to spread and to educate children, but also prepares them for college.
JUNIOR HIGH SCHOOL
Near the complex are bhojanalaya, kitchen and a self-study room. The food is prepared in bhojanaya by the school alumni and is then consumed by students and teachers. The self-study room acts as an extension of the school complex, where the students study after academic sessions. NORTH
SIDE ELEVATION
LIVING SPACE
The repetitive modules are stacked on top of each other, creating a vertical mass and a uniform built language.
MASSING OF JUNIOR HIGH SCHOOL
The repetitive modules are stacked on top of each other, creating a vertical mass.
Static and dynamic spaces are result of the amalgamation of the characteristics and functions of a space, here the classrooms and bedrooms are static in nature and passages are dynamic.

CONSTRUCTION STAGES AND DETAILS
The padmasambhava vihara is a frame structure, built with reinforced cement concrete, and bricks as infill material, having intricate carvings and detailing.

CONSTRUCTION DETAILS OF BUILDING COMPONENTS
1. FOUNDATION DETAILS 2. FLOOR TO WALL JOINERY

The New Foundations The Old Foundations Upper Ground Detail Basement Detail
Concrete shallow strip foundations have been used in the new buildings, where the footing has been angled at 45 degrees so that the load is transferred properly in the ground. They are particularly suited to light structural loadings such as those found in many lowrise or medium-rise domestic buildings - where mass concrete strip foundations can be used.
They used a thicker concrete pad and the masonry walls were directly laid on it. Balancing Load

3. TRUSS ROOF
It is used above the central void of the prayer hall because it is extremely light wight in nature and has a high strength value.
A space frame is a three dimensional truss whose linear member from a series of triangulated polyhedrons.

4. JABZHI ROOF
The Jabzhi roof is a square hipped roof with four prominent corners. The Jabzhi roof can be designed with just one roof layer or with several layers of roof to form a pagoda style roof. The roofing material IS usually made of metal, plated with gold. The eaves of the roof are then ringed with a metal curtain, embellished with decorative and sacred iconography carvings known as Chuzha Chulo.


7. WALL
The behaviour of foundations during an earthquake, and its response to it
The site being on a contour, offers the possibility for one of the floors to be a basement floor, while the upper floor has load bearing walls, with RCC as structural member, thus making it a composite structure.
5. SLAB DETAIL
6. DOOR DETAILS



9. HIPPED GABLE ROOF
Hip roofs can be constructed on a wide variety of plan shapes. Each ridge is central over the rectangle of the building below it. The triangular faces of the roof are called the hip ends, and they are bounded by the hips themselves. The “hips” and hip rafters sit on an external corner of the building and rise to the ridge. They have the advantage of giving a compact, solid appearance to the structure.

The span of the door is decided by the type of building. In the padmasambhava vihara the door has a 3.25 M span.
The monastery door has 3 layers of detail -Rcc door frame -Wooden rig -5 Ornamented cornices

8. FLOORING
The flooring materials are locally available, and are easy to install on the rcc slab. It is very thin, as well as durable in everyday use.
Flooring : marble stone
U&R VALUE

R value = resistance to heat transfer.
U value = rate of heat transfer.
Lower the U value, the more energy efficient is the material.

Bedding : cement
Slab : reinforced cement concrete

3D of hipped gableroof

CORRUGATED ROOF WITH SKYLIGHT
The skylight is present on the ceiling such that a beam of light touches the statue of Buddha, thus giving it a divine effect.
Hipped Gable Roof

Metal Truss Isometric
Jabzhi Roof Detail
Stucco Details Interior Tile Details Exterior
Panel Joinery With Wall
10. MONASTERY RABSEL DETAILS
The Byelgo Rabsel is said to be easier to construct as this Rabsel has only a single tier of windows without the small members of Kachung and has large open spans from Bhu to Bhu. In the Byelgo, the Rabsel height is divided into three sections like in the Parop Rabsel but this is done without the Thrangcho.


Dormitory Window Details

DETAIL SECTION

11. COLUMN / KACHEN DETAILS
Kachen and Zhu are the traditional Bhutanese column and capital that are built together as a component. In traditional Bhutanese architecture, the Kachen and Zhu are fashioned out of timber by local carpenters as two separate elements and then assembled together during installation in a building. The more elaborate Kachen and Zhu were normally installed in Dzongs, Lhakhangs and palaces.
12. ROUND KACHEN ELEVATION

ZHU is a timber bracket shaped like a bow and reduces the length of a beam to increase the load bearing capacity, IT IS placed as a capital on top of the Kachen.

Byelgo Rabsel Elevation
Byelgo Rabsel Exploded
Zhu Bracket Detail
Square Kachen Sectional Detail
Round Kachen Exploded
AN ORGANIC EVOLUTION OF BUILT MASS
Completion of buildings as per the stages mentioned
THREE STAGES OF TYPOLOGY-WISE
EVOLUTION
1.Sacred
Complexes of such scale are planned rigorously by a team of architects, engineers and urban planner. However, the built masses started materializing spontaneously according to needs of people and their religious practices, following the vernacular spatial patterns. After 1999, large scale structures were built and the site plan was revised properly to accommodate the tourist flow. The buildings in the initial phase were temporary in nature, but as finance came in, the buildings were built in rcc reinforcements.
He established the first semi sacred space, jr high school for training the young refugee’s in the three basic vinaya and other skills, vihara’s for monks and helped in building refugee camps.
He hosted the great gathering which helped in funding many buildings of the complex. He started NNI with 14 khenpo’s.
He established samden otsel retreat center and an old age home. He started editorial committee, and repaired the road network to bylakkupe.
2006
Completion of the construction of padmasambhava vihara which brought a lot of tourists to the complex. zangdok palri temple was finsihed, and is the highest structure in the complex. the temple contains the relics of padma norbu rinpoche

The initial stage of tibetan temple architecture was a subset of palace architecture, because the patronages mostly came from the tibetan kings and rich nobles. As soon as buddhism started growing in followers, and gained the finance from the locals, the architectural codes started adapting to the functions of the stupa and the chortens, that were to store and preserve relics of Buddha and the supreme leaders.
2) SEMI SACRED FOR SACRED
The most basic function to support the sacred in Buddhism is the prayer hall, and the its arrangement. It is a planned in a cellular radial plan, where the outer periphery contain high density living cells for monks, the inner periphery is the ambulatory for the prayer hall.
3) SEMI SACRED FROM CIVIC
The ancillary utilitarian functions such as religious institutions, guest houses etc have derived their spatial codes from them timber framed pekong house, where the upper floors are for people to live on and the lower floors are for community and storage.



GENESIS OF TIBETAN ARCHITECTURE AND SPATIAL CODES
Every civilization breed certain lifestyles and thus produce spaces that support their activities, but it is not necessary that the spatial codes must originate from their own lands , and can be a culmination of two or more prototypes from nearby territories. Tibet has been the product of the same, where they were influenced from Indian and Chinese architectural models, adapting and creating an array of elements for the high altitudes, cold and arid Tibetan plateau.

Plan
Dhanka Ya-Baka Stupa, Bogan
Generic Plan For A Prayer Hall Elevation Of Generic Prayer Hall
Evoloution Of Basic Form Of A Pekong House
Indian architectural prototype from temples of pali kingdoms. Inner courts and courtyards from temples of pali kingdom of Indian subcontinent.
Roof and structural systems, and coloUr palette.
Ancient chineese architectural prototype from the imperial times.
ADAPTATION OF TIBETAN ARCHITECTURE IN OUR SITE
For Tibetan communities, preserving tradition in architecture can mean not only ensuring socio-cultural continuity but also making sure local livelihoods are maintained, based on a more sustainable natural resource use. they take a more sensitive approach, where they sacrifice their architectural style for a better livelihood.
The people of Bylakuppe started from a place where nothing but nature existed, and were dependent on the local construction materials and techniques. Slowly and gradually, they found new ways to absorb the Buddhist elements and symbols in their built language.



THE JABZHI ROOF is a square lantem type structure with pitch roof, which is usually placed on main roof or on another larger Jabzhi known as Jabzhi Wogma (lower JabzhI). Traditionally the Jabzhi roof is painted yellow, has carvings of mythical birds or animals like the Jachhung (Garuda) or Chhusing (alligator) and is framed with a special eave board known as Chhuzar-chhufog. has carvings of mythical birds or animals like the Jachhung (Garuda) or Chhusing (alligator) and is framed with a special eave board known as Chhuzarchhufog.
THE GYALTSHEN OR VICTORY BANNER is the second highest architectural element placed on the roof of DzonGs and Monasteries. Historically, the Gyaltshen was permitted only in Monasteries that had 110 umes of Kanjyur, 240 volumes of Tenjyur and other very sacred ‘Kusung Thuk Ten”.


THE SERTOG is the highest architectural element placed on dzongs, monasteries and royal buildings. The sertog is invariably placed on a jabzhi roof either standing on a norbu bagam or on a structure with a kemar band or on a structure with windows fully incorporated with traditional cornices. It has been used at four places here in the site
ZHU is a timber bracket, shaped like a bow and reduces the length of a beam to increase the load bearing capacity. There are no strict rules as to the type of zhu one can use on a particular structure.


ARCHITECTURAL PRINCIPLES
HIERARCHY OF HEIGHTS

An introverted character is introduced in certain buildings, to create a social and physical distance from the monastery. The enclosure also provides a sealed off open space, for students to perform their daily routine. This has been done in many buildings of the complex, where narrow passages open to big courtyards and open spaces. This not only creates a sense of scale of small to big, but also increases security for people living inside it.
BIBLIOGRAPHY
1.‘Traditional architecture in Tibet : linking issues of environmental and cultural sustainibilty’ by william semple
2. ‘A study on the decorative patterns of Tibetan Buddhist monastery architecture’ by miaomiao liu
3. Www.Namdroling.Net founded by palyul organization
BYELGO RABSEL is the name of a smaller unit of rabsel that doesn't cover the entire facade of a building. The construction and the architectural details are same as other rabsel and it is permissible on any building irrespective of number of storeys permissible on any building irrespective of number of storeys.
CORNICES in this context means Phagna, Bogh,Choetseg, Pedma, Nottiu Bagam, Norbu. These cornices may be used in different combinations to achieve hierarchy and aesthetic look.
The whole complex has a varied distribution of heights according to functions, but two of the most important structures, which are the zenith for the surroundings, have a distinct hierarchy in terms of ascendance from the ground as well as tapers in width upwards. A viewer located between these, realises that both follow the same ratios of height and width, although the rainbow arc of the zangdok palri gives it more height.

zangdok palri temple
Padmasambhava Vihara


WWW.NASAINDIA.CO
WWW.NASAINDIA.CO
Special Mention
INSTITUTE OF DESIGN EDUCATION AND ARCHITECTURE STUDIES, NAGPUR
Team
Nathulal Shirsat (USEC)
Sahil Bomdade (UD)
Payal Kshirsagar
Awani Shelke
Juhi Asare
Anushka Nagpure
Mansi Suchak
Nathulal Suthar
Shubham Didhole
Shwetal Pahade
Shrunali Poreddiwar
Akanksha bahadure
Aditi Agarwal
Madhura Bhojraj
Sahil Bondade
Bhavi Chandrakar
Divya Gupta
INSIGHT
The European colonizers have a very everlasting impression etched upon Indian society. In their thirst of exploiting India's resources which led to immense suffering, some of their policies have also benefited the Indians in the longer run. If pondered upon the 'British India' in the recent time we can see that it has equally positive and negative impacts, majorly one being that in the process of establishing their rule, they introduced and strengthened services that lacked in India like Railways and Postal communication
The British impact started to take effect long before the East India Company was established here through the arrival of the missionaries. Their rule was widespread throughout the country and affected social, political, economic and majority in the cultural and religious domain been spread by the missionaries. They established western education system, hospitals and churches in every possible corner of the country thus contributing in the attempt to maintain equilibrium in Indian subcontinent.
UNDERSTANDING OF FAITH
Christianity is a religion that revolves around the life and teachings of Jesus of Nazareth. There is a variation in beliefs and doctrines of the diverse Christian churches, but revolves majority around the beliefs in God, Jesus Christ, the trinity, spiritual practices and ethical living. In the “Gospel”, Jesus commands his followers to spread the teachings about the God in the world and hence through evangelism the missionaries followed the path of ultimate obedience.
The diversity of churches has historical roots of disagreement in between the community regarding the doctrinal development. The four largest branches of Christianity are the Catholic Church, Protestant, Eastern orthodox and Oriental orthodox. The major split within the Christian church happened in early 16th century, now known as protestant church. It emerged from present day Germany, where Christians protested against corruption in the Christian church. Protestantism was again further split into numerous denominations that were Adventist, Anglican7, Baptism, Calvinist, Lutheran, Methodist, Anabaptist and Pentecostal. Out of which Anglican Church i.e.. Church of England was established by King Henry.
UNDERSTANDING OF SEMI SACRED
Semi sacred architecture is a religious architectural practice concerned with the design and construction of spaces supporting and performing administrative or social activities related to places of worship (Sacred spaces).
These are the spaces designed for preserving traditions, by instructing rituals or by teaching scriptures to train the young generations or facilitate the visitors. Talking about church and its extensions; Bishop House, Priests House, Bell cages, Parish Hall etc. are few important structures that can be prominently seen in almost every cathedral complex. Among these Church is the core sacred space, which makes us realize a connection with the Holy Spirit.




SITE INTRODUCTION AND HISTORY
In the middle of eighteenth century, the East Indian Company first signed a treaty with the Marathas. The administrative system established by Richard temple was all set, and therefore after the great mutiny of 1857, the Nagpur province was formed in 1861 and governed by chief commissioners. The British population in the army and civil services grown significantly in size. With the appointment of a Chaplin to fulfill the needs of the army people, the mission work of the Church of England began in the Nagpur region. This was initiated by ecclesiastical department, which took care of all religious matters. This was also the rudimentary beginning of what later became to be known as the English church [All Saints Cathedral]. The European colonies have had a huge legacy of building dedicated to the public. This complex is one such fragment of that legacy.
LOCATION
All saints cathedral is situated at residency road, Sadar opposite VCA stadium.
Latitude: 21.1530 N
Longitude: 79.098 E
Area of site:
Total built-up area:

CIRCULATION

The primary circulation talks about the major road network that circles around the site and connects it with the city.
Vegetation
Vegetation covers 60% of the site which provides natural shade to the building.

Topography
The gradual slope of the terrain is inclined towards south.


CLIMATE STUDY
Air temperature
Annual mean max temp: 43.7°C
Annual mean min temp: 23.1°C
Annual mean temperature: 34.7°C

Humidity:
Annual mean relative humidity
Morning-75%
Evening-70%


PATH DIAGRAM: Wind rose diagram:


SUN

St. Ursula Girls High School was started in 1859. There was no provision at Nagpur for girls education beyond the middle school stage. So they had to go to boys school to continue their education which was difficult in those days.

1840 church was established by 'Sir Stephen Hislop' together with Scottish missionaries in 1840.

Bishop Cotton School was named after its founder Bishop Cotton George Lynch Cotton, who was the metropolitan of India. He established school in 1880 for the children of European and Eurasian peoples with limited means.

Kasturchand Park which was known as Arsenal Ground during British times was also a site of 1817 battle of sitabuldi between the Maratha rulers and British East India Company.

WWW.NASAINDIA.CO
As Nagpur was capital of central provinces with no college, so Hislop College was established in 1883 in Mahal area, Nagpur. It was first college in Nagpur.
The current site location map illustrates the major areas and building occupied by the Britishers that marked the start of their establishment in Nagpur.

STATION CHURCH TO CATHEDRAL
CHURCH TO CATHEDRAL:
In 1803, Scindia and Bhosles united to oppose Britishers. After Bhosles were defeated Britishers established residency in 1804 on the south west side of sitabuldi hills which later became Morris collage. In 1816 the war took place and finally Britishers became “Lord of Nagpur”. Later Commissary of ordinance was set up and the whole of what is now Kasturchand Park, Mohan nagar, Khalasi line, tent lines and Gaddi godam came under charge of army. As Nagpur came under jurisdiction of Madras, the Chief Secretary of the ecclesiastical department wrote a letter on 3rd May 1860 saying, “Sitabuldi is without a chaplain, the chaplain of Kamptee should be directed to visit it once a month for the 270 people”. This was beginning of English Church.
At same time, civil and army personal stationed in India with their families began to clamour for education for their children.
In 1863, Edward Linch Cotton, the head of English church and metropolitan of India established “Bishop Cotton School”. It was decided by the administration to build a place of worship for members of Church of England. In March 1861 itself Colonial Elliot, the chief commissioner of the central provinces laid the foundation of the station church and it was named the Church of All Saints.

HISTORY OF ALL SAINTS' HOUSE:
BISHOP HOUSE HISTORY:


Bishop house is one of the important structures of All Saints' campus as bishop is the only person who connects people to Cathedral. Eyre Chatterton was first Bishop of Nagpur. When he began to settle in his diocese, he first established a diocesan chronicle in January 1904 .If Nagpur had to be the cathedral city, accommodation of Archdeacon, Chaplains and Bishop was to be managed. The house of the senior chaplain of Allahabad was selected as the model for the Archdeacon's house. When the government was formed some set of conditions were made. Government of central province began construction of house in 1906 and was completed by September 1907.
WWW.NASAINDIA.CO
Since 1940 the building came to be known as bishop house and is currently held by Nagpur diocesan trust.
Bishop Cotton School was brought by Church of England for educational needs of not only Eurasian community that resided there but also for the Anglo Indians. By 1867 Railway came in Nagpur due to which population was increased. Anglo-Indians were found not just in railways but also in the offices, schools, government administration and the army.
In 1910, the first meeting was called at the Mission Bungalow of the Scottish Episcopal Church (1840 church) and then it was decided to start the home immediately and call it “The All Saints Orphanage”.
Immediately bishop approached Mr. & Mrs. Philip of Scottish Episcopal mission. Both of them decided to divide their bungalow into two and start accommodating children. By July 1911, the orphanage was in full swing. So they decided to look for a spacious space.
The hill crest property was then handed over to the bishop for the girls home and hostel connecting the Bishop Cotton School. By 1922, the building took shape and was ceremonially opened on 9th November 1922, for 50 children.






The street sections illustrates the vibrancy of the site by different types of activities that takes place on site.

UNITY MONUMENT
Unity Monument
The union of six denomination by the central north India (CNI) was commemorated by this unity monument on the 14 th October 2010

The monument was acknowledged on 29th November 2019 on the completion of 50th year of the CNI and is known as the. Golden jubilee monument .


SITE PLAN
SCALE - 1:200
SILVER JUBILEE MONUMENT
BISHOP’S HOUSE
This is a residential building which was built as a dwelling of the bishops of the cathedral. a part of the house is considered as the bishop’s main office. it was completed in 1970.
SITE JUSTIFICATION
As the church was evolved into cathedral it become the site of Bishop Since the Bishop is the head, who is responsible for all the administrative and religious contengeneus, he will be needing a residence near the cathedral where the people can approach him. This extension acts as a vessel to shelter the head of cathedral which acts as his office and residence.
The cathedral is the head building of the diocese and is headed by the bishop. Thus for contributing the administrative and religious contingencies of the diocese he takes his seat in the cathedral as semi sacred as this is the place from where he controls all the administrative work.


SPATIAL ORGANISATION
Total area of built up spaces: 764.264 Sqm.
The bishop house at present functions majorly as per three zones namely, semi public (the outermost zone including waiting room), semi private (the living area and other areas of common family interaction) and the private zone(bedrooms). The position of the spaces in the residence has been planned in a linear form to facilitate a smooth and easy flow from one space to another without hindering the activities of one another.

WWW.NASAINDIA.CO





NORTH SIDE ELEVATION
SCALE - 1:100
View of the bishop’s main office.
Transition space on the roof.
Front view of bishop house
A long continuous chajja is projected out from the east and west elevation of the building .it has timber frame covered with tin and obstructs rain and harsh sunlight.

Series of cupolas are used instead of parapet walls throughout the elevation of the house giving it a castle like appearance which reflects the importance of Bishops post.

Portico is incorporated with three arches similar to the arches on front elevation of the cathedral which symbolizes the trinity.

The boundaries of the structure are defined with the use of pediments and cornices which are emphasized through red colour.


CLIMATE RESPONSE
As Nagpur district experiences composite climate characterized with extremely harsh summer and winters. thus the dwelling employed the following climate responsive technique.
TECHNIQUES TO REDUCE SUMMER HEAT GAIN AND WINTER HEAT LOSS
Increase thermal resistance: Through roof and wall insulation
Increase buffer space: Maintaining day and night temperature. use of terraces and verandahs.

Increase thermal capacity: thick walls to increase time lag.
Increase air exchange: increased ventilation by maximizing openings.
MATERIALS
PLINTH
the plinth is raised in order to keep a check on capillary action and to prevent termite invasion. material used-
Sandstone- durable high strength, can withstand effects of acid rain and natural corrosive substances.

DILUTED ELEMENT

Pointed arches are used in the cathedral but here their simplified and less dominate form is used.

The roof form is similar to the church and both resemble Latin cross
Increase shading: use of chajja


BRICK WALLS
Interior walls made of bricks help adjust the building’s temperature, as they store heat and cool air.
In winter, the walls offer warmth, while on a hot summer day they have a cooling effect.



LIVING ROOM
One of the most important and actively used part of the residence that provides a space to the family members for formal and informal discussion. It is a common area that leads to all master bedrooms.

BEDROOM
A sufficiently big room along with attached verandah and toilets. A comfortable space for sound, sleep and relaxation. The dwelling has four bedrooms on ground floor that serves elderly childrens and guests.
PORCH/PORTICO
It is a main defined entrance to the house that is similar to that of the cathedral and is dominated by the wide semi open arches.



DINNING AREA
Provided next to the living area, in its best suitable position.

KITCHEN
To facilitate the family, kitchen has been provided with a sufficient space, along with a storage and utility space. it is directly connected to directly connected to dinning area and backyard providing ease of access and communication between the space.





WWW.NASAINDIA.CO




KEYPLAN
INTRODUCTION
This is a co-ed dormitory for all the students and faculties of bishop cotton school . A stage is also built outside the hostel with a playground as recreational space for the children. After many considerations and change of plans the home was finally completed by 1922.
JUSTIFICATION
“ The bishop cotton school at Nagpur provides first rate education for the residents and for those who can afford to send their children as boarders. But we have not yet made suitable provision for those who are poor and do not live near a good day school.”
Bishop cotton school is an extension of the cathedral since it was under the administration of the 1st Bishop that is Eyre Chatterton. It was his decision to built a abode for the underprivileged students of bishop cotton school where teachings of their tradition is extended to the students. It may not be a sacred space but acts as an contributory space to reach out their teaching to the young generation.
SENSE OF ORIENTATION

·The orientation of the building is in east west direction.
·A well defined entrance is carved out from the primary road network as the functionality of the building is different from all the other structures of the complex.
·The Front view of all saints home building faces the Cathedral.
SPATIAL ORGANISATION
Hierarchy of spaces can be seen with respect to private, semi private and public activities as the planform is in grid pattern and the spaces are divided into two levels according to their activities

All the semiprivate spaces such as dinning, kitchen and common room, are placed on the ground floor along with the semi public spaces such as classrooms and office.
on the first floor private spaces such as dormitories, locker room and warden room are placed.

PLAN AT LEVEL 1.5M
SCALE - 1:100





VERNACULAR ELEMENTS

·Timber flooring is used on the first floor . The roof is sloping with roof tile on timber frames .
·Overhanging eaves or chajjas are used on the exterior facade of the building to shelter the openings from harsh sunlight and rainfall.

·Jali patterns are fabricated with proper arrangement of bricks all over the building which cuts glare and let the diffused light to get through and also provide proper circulation of air.
·High ceiling rooms with clerestory windows.

SECTION A-A’
SCALE - 1:100
ISOMETRIC VIEW


Open terrace- Open terrace is carved out on the first floor which acts as a common gathering space.

Transition space- corridors are illuminated by arched openings which are secured by lattice thus creates an interesting play of shadows and also the consecutive windows serves the purpose of cross ventilation within the building.

Utility- the utility area acts as a courtyard for the secondary activities related to the spaces around it.

dormitories are divided into two parts, one where all the beds are placed and other part is used as locker rooms


Dormitory-





The facade is further articulated with variation in openings and fabricated jalis giving it a very symmetric as well as balanced look.
Dominance is reflected through the building facade with the use of exposed brickwork and ornamentation of sills and piers.
Exterior semblance of the building is very solid as a result of using exposed brickwork but when one enters into the building can perceive, how porous the building is as numerous openings are crafted into it which brings in ample of diffused light and air.
COLONIAL ELEMENTS USED

·Clerestory windows are used for ventilation and provide with diffused lighting to illuminate the spaces with natural lighting.
·Double Dutch doors and openable transom windows are used.
·A combination of segmental and semicircular arches are used to articulate the openings.


STAIRCASE
PURLIN AND RAFTERS

Distance between two levels is bridged by the use of staircase which is the only double storied space and has ample of clerestory windows thus illuminating the whole area
CORNICES

CLERESTORY WINDOW
LOUVRED WINDOWS
VENTILATORS
TEAK WOOD CEILING

Nosing
Riser
THICK BRICK WALLS
Elevated platform made up of cement concrete

Landing
Tread



Total area of built up spaces: 516.478 Sqm. This is the only informal structure of the complex which is used for religious activities and also for formal meetings . It was completed in1918.
SITE JUSTIFICATION
Eyre chatterton was the 1st bishop of All Saints Cathedral and it was named after him in his remembrance.
All the secondary celebrations which involves larger crowd happens here. Not only celebrations but formal meeting of the committee , training the young about christianity and preaching from the bible .
ORIENTATION
•The building is oriented at northwest side of the Cathedral.
•Indirect entry is provided from the main entrance.





CHARACTERISTICS OF PLAN FORM
•A section of the floor plan is elevated to establish a single zone of a space within larger hall. This raised space can serve as a retreat from the activity around it or be a platform for viewing the surrounding space.
•passage is provided at three sides of the hall which acts as a buffer space and give emphasis to the central space.
•Individual entry is provided to the stage from both the side.

Front elevated platform : it is used as a space for celebration and also marks the great ambiance to the structure.



“ A hall like this combines things both grave and gay. we shall use it for religious meetings as well as for social gathering. as we meet in the church for common worship , it is good that we should meet here from time to time in a social way and get to know one another.”
- EYRE CHATTERTON
PLAN AT LEVEL 1.5M
SCALE - 1:100








T.W Top rail
Glass
T.W Window rail Muntin Hinges
T.W Mid rail
T.W Groove for panel
T.W Bottom rail


T.W Top rail
EXPLODED ISOMETRIC VIEW
T.W Groove for panel
Shoulder
RAFTERS AND PURLINS
QUEEN POST TRUSS
VERNACULAR ELEMENTS
•Wooden frames are used in windows.
•Timber trusses are used.
DILUTED ELEMENTS
•The placement of activities is similar to that of the church from public to semi private to private and is surrounded with arched pathway similar to the aisle inside the church.
•Use of arches on the exterior facade similar to that of the stained windows.

T.W rail
T.W Queen Post
T.W Strut
Cleat
Tie Beam






















WWW.NASAINDIA.CO
WWW.NASAINDIA.CO
Special Mention
SHRI PRINCE SHIVAJI MARATHA BOARDING HOUSE’S
COLLEGE OF ARCHITECTURE, KOLHAPUR
Team
Shantanu Sunil Patil (USEC)
Atharva Shinde (UD)
Gayatri Kumbhar
Ishwari Shinde
Pradnya Walawalkar
Omkar Mali
Vishakha Killedar
Purva Patil
Padmashree patil
Yasharaj Kharade
Pradnyasurya Karanjhar
Vaishnavi Pawar
Satyajeet Jadhav
Shachi Mane
Purva Khodbole
Sairaj Salokhe
Pranav Vaidya
Monish Sanga
Swarup Jadhav
Parth Ghatte
Suryakoti Thomake
Mandira Jambhale
Samruddhi Shitole
Shreya Kumbhar
Omkar Magdum
Kaustubh Sutar
Shubham Dhotmal
Gayatri Dongre
Here I stand,
So huge and tall.
Personifying the glory of this Old Town !

I’ve seen the sunrise and shine And have seen it whine for a while. These walls of mine Have seen it all, the neancy and decease of the crown. Yet here I stand, So huge and tall.
I’m here unveiling the history, So that nothing stays a mystery.
The grandeur of the complex depicts our victory. And here I stand, So huge and tall.
Future generations for them to know, At what cost the seed of freedom was sown.
Thus here I stand, So huge and tall.
Personifying the glory of this Old Town ...!
CASE STUDIES :
It is rightly said that you can visualize a space to some extent but you can get a clear perspective of the same only by visiting it. Thus, case study was then followed by the short listing of the sites.
The following places, sites were taken into consideration for the visit :
1. Sajjangad,Satara
2. Sangam Mahuli,Satara
3. Mira Saheb Dargah,Miraj
4. Jyotiba,Kolhapur
5. Mouni Maharaj Math, Patgaon
6. Moorusavir Math, Hubli
1. SAJJANGAD, SATARA :

Sajjangad, which literally means "Fort of Good People" is located near the city of Satara, India. It is a hill fort, at a height of 3350 ft. The basic requirement of the space being a semi sacred was fulfilled. The fort consisted a main temple, accommodation facilities (dharmashala), bhojanalay, and three water bodies and fewer sacred space. The old structures are not intact and few of them are demolished and renovated later.
2. SANGAM MAHULI, SATARA :

Sangam Mahuli, located few kilometers from satara, off SH 58 and NH 48 is a place where three rivers meet each other,Confluence, holds a huge marvelous, historic background. The Confluence of the three rivers creates a perfect ambiance of purity and serenity. The main sacred place in the area is the Shiva Temple.
One of the finest example of semi sacred place, due to a perfect blend of civic activities like Yadnya, shradh, Weddings and numerous religious activities as observed on any confluence. The reason for not selecting the site was that every temple there had their very own significance and they were not an extension.
3.

Miraj, a city in southern Maharashtra, India that was found in the early 10th century. The Miraj Dargah is 300 years old, ancient Dargah. There is a graveyard behind the Dargah. This site was not finalized because the Dargah was the only major space there.
4. JYOTIBA TEMPLE:

Jyotiba Temple is a pilgrim place, located on a hilltop which is 20km from the city. Jyotiba, as the name suggests "Evolved from a jyot i.e. flame." Is the god of the under privileged. The settlement there has developed along the temple. The conditions of it being a semi sacred space were not satisfactory.
5. MOUNI MAHARAJ MATH, PATGAON:

The Mouni Maharaj Math and Samadhi is at Patgaon in Bhudargadh Taluka in Kolhapur District. As the place gain importance over the years, people started visiting it. Thus facilities like food and accommodation were provided in the form of Dharamshalas and Bhojanalay. As half of the structure is demolished, the site was not considered further.
6. MOORUSAVIR MATH: HUBLI.

WWW.NASAINDIA.CO
Moorusaveri math was built in 12th century, the monument comprises of the tomb of Shri Gurusiddheswar Swami. It is said that 3000 saints halted here on their way to Ulavi. They stayed here to spread gospel, so the place named as moorusaveri math, that means Three Thousand in kannada. Moorusaveri Math is a religious center dedicated to the accomplishment of the universal good by fostering the growth of Educational, cultural, social and medical institutions. The site was not finalized because most of the part is recently built.
7.BHAVANI MANDAP, KOLHAPUR:

Bhavani Mandap is a historical building situated in the walled city center of Kolhapur and to the west of Mahalakshmi Temple. It was a royal palace of the Maharaja of Kolhapur. It used to be a Darbar of Chhatrapati Maharaj. It is the best and fine example of combination and civic and sacred bodies.
HISTORY :

This is a historical complex situated in close proximity to the famous Mahalaxmi Temple, within the walled precincts of Kolhapur City. Although smaller in size than the Mahalaxmi Temple yet the Bhavani Mandap has great religious significance for the devout as it is the temple of Goddess Tulja Bhavani. The complex consists of the Nagarkhana building and the Pagakhana building.
The Nagar Khana serves as an entrance to the Bhavani Mandap through Bhausing Road. Nagar khana is a massive 3 storey building in ancient style. It is the tallest ancient building of the city which provides a birds view of the whole town known as the watch tower. The main purpose of Paga Khana was to serve as a stable for the royal masses and horses.
The central rectangular portion was used to store drinking water for horses.
EMBARK :
Embark means to begin or mark a beginning of something or an event. The brief which has been selected is Bhavani Mandap,Kolhapur. It is considered as the Gateway of Kolhapur. This place has a spiritual base. It was once said by, Joseph Joubert,
‘Monuments are the grappling irons that bind one generation to another’
Yet this is true, generations come and generations go the monuments are remembered and go on forever. The great maratha warrior Shivaji Maharaj brought the Mughals at its knees. The great goddess Tuljabhavani mandir has been placed there. The aura of the Goddess defines the power and the blessings on Shivaji Maharaj. The site selected by the College of Architecture, Kolhapur truly satisfies the conditions of the brief. The roots of Kolhapur are said to be in Bhavani Mandap. The area of Bhavani mandap is a semi sacred space and it is a part of a faith an extension of the main complex which extends towards the public and civic bodies. The site has a strong historical background and is recognized as one of the important benchmarks of our Indian history. This brief provides us with an insight into our cultures of origin as well as cultures with which we might be less familiar, thereby increasing cross-cultural awareness and understanding. Hence there are some areas which are neglected and we have tried to bring it into limelight this has truly made us aware of our bygone days.
MIRA SAHEB DARGAH,MIRAJ:

The architectural features such as the arches, the wooden jalis, motifs, domes, pinnacles, and many others can be seen in the Juna Rajwada i.e. the first palace complex built in 1780. Some of the above features can be seen in the building selected and then, use of these features gradually increased in ordinary residential buildings. The materials and the construction techniques used for the buildings taking into consideration the climatic conditions. The construction of these buildings is so pure and fine that it stands unto this period exhibiting the glory of that period. The load bearing structures of palaces and the public and the residences were built of stone masonry with lime mortar. These structures are delicately carved into Maratha style of architecture. The settlement has gone through a huge amount of changes throughout its 2000 glorious years of history.
SEMI SACRED :
A semi sacred space is a space which has civic bodies and sacred bodies in cohesion. City of Kolhapur originated and developed around the auspicious temple of Shri Mahalakshmi. The site selected has been bifurcated in three sectionsJuna Rajwada(Old Palace).
Paga Khana.
Nagar Kahana.
Juna Rajwada has a huge glorious history. The place has seen the good, the bad . It has seen the sun rise and sunset. Earlier as the name suggests, the place was a Royal Palace but as time changed, the Rajwada was opened as a temple of Kulaswamini Tulja Bhavani. People from different places make it a point to visit the temple i.e. The Juna Rajwada. Tulja Bhavani is a household shrine (devgarh) but the Mahalakshmi temple is said to be the most sacred place. This temple is the most spiritual one and a large number of bhaktas visit Kolhapur and seek the blessings of goddess Mahalakshmi. Thus, the sacred reference . Paga Khana as the name suggests was a stable but now it's use has changed It is used for civic purposes.
Nagar Khana :The entrance representative of the history, glory and grandeur of the city of Kolhapur.

LOCATION MAP :

KOLHAPUR
:
There are many ancient cities with great historic backgrounds in the Indian Subcontinents, one of these is the city of Kolhapur. The city lies to the east of western ghats (Sahyadris) in the transitional zone. Kolhapur has history dating back to the 1st century A.D. The city has seen numerous dynasties rise and fall during its 2000 years of history. Kolhapur city settled about a religious centre. The city flourished due to its religious importance. Then it became the kingdom of Maratha Dynasty. The rulers of the Maratha dynasty developed this city as industrial town and providing infrastructure facilities for better living.
WWW.NASAINDIA.CO
PLANNING OF KOLHAPUR CITY :
The families closely related to the king, royal complexes, temples, have their working and residential area near royal complex. These residence have used same style of architecture. The roads interconnecting the areas has deep perspective. Kolhapur has water bodies in various forms. These are the sources of water supply and have religious importance.

EVOLUTION OF SETTLEMENT
: NO TEMPLE, NO SETTLEMENT :
In ancient India, each place of habitation had to maintain its own temple for the prosperity of its inhabitants. Observations prove that Indian cities have mostly grown around temple. The famous Tamil poet, Auvaiyar once said,
“Men ought not to live in the places where there are no temples. Places without temple are unfit for human habitation as they are merely deserts.”
There are also references in ancient books that summarize to a simple saying ,
“ No temple, no village.”

KOLHAPUR-THE CAPITAL OF THE MARATHAS :
When the capital was shifted from Panhala to Kolhapur in 1782, the Juna Rajwada was built and the town entered the next stage of development. Along with that, the Juna Rajwada came into existence, the residential wadas of the Watandars i.e. people working immediately under the Maharajas. The houses of the Balutedars whose leaders were these Watandars were built in the surrounding with the Rajwada as its centre. The ‘bara(12) Balutedars’ is a servant system which existed in Maharashtra. The 12 Balutedars were the village servants. The Juna Rajwada or the Old Palace was built as a Royal Complex; a complex where the Royal family lived, conducted their meetings, held all the religious functions related to the city. The construction took nearly 15 years to complete.(1785-1800)

GEOGRAPHICAL LOCATION
:
The city stands on the rising ground about 545.6m above the sea level and about half a mile from a right of the south bank of Panchganga. The Kolhapur city is situated at 16.7000N latitude and 74.2333E longitude. Kolhapur is a city situated in the south west corner of the Maharashtra, India. It is situated on the bank of river, Panchganga.
ORIENTATION :

SOIL :

The soil in kolhapur district varies in colour from brownish to reddish black. The soil in Western hilly region is red to brownish red in colour having high iron content which is useful for plantation of paddy crops and fruits. The Central region of District has brown fertile soil while Eastern region has black soil. Due to presence of phosphorous in the soil the overall land is very suitable for plantation of Sugarcane and Tobacco. Bauxite mining is carried out in the areas of Shahuwadi, Radhanagri and Chandgarh. Silica and Iron are also found in abundance in the soil of Kolhapur district.
TOPOGRAPHY
:
Kolhapur city lies in the Sahayadri mountains in the Western Ghats. The topography of city shows many undulations and the ground is generally sloping from south to north towards the Panchganga. The region has everywhere thick coverings of basalt, which presents a steplike appearance. As regards the origin of the numerous lakes in the city, many of which have been filled-in during the last 100 years, one is led to think that people extracted excellent building stones from these sites in the past. The low alluvial land along the bank of the river to the north and the hilly aspects to the south are the two striking features of the city.
CLIMATE:
Kolhapur’s climate is a blend of coastal and inland elements common to Maharashtra.

WWW.NASAINDIA.CO

SWOT ANALYSIS :
STRENGTH :
The year may be divided into three periods as follows :
1. Coldest weather period -
Kolhapur experiences winter from November to February. Lows range from 9 °C to 16 °C while highs are in the range of 26 °C to 32 °C due to its high elevation and being adjacent to the Western Ghats. Humidity is low in this season making the weather much more pleasant.
2. Hot weather period -
Kolhapur experiences summer from March to May. The temperature has a relatively narrow range between 10 °C to 35 °C. Maximum temperatures rarely exceed 40 °C and typically range between 33 and 35 °C. Lows during this season are around 24 °C to 26 °C.
3. Season of general rain -
The city receives abundant rainfall from June to September due to its proximity to the Western Ghats. Kolhapur receives 1031.2 mm of mean annual rainfall. Temperatures are low in the rainy season and range between 19 °C and 30 °C.
It is the most integral part of the City. It has a very strong historical background. Bhavani mandap has some places neglected and hence this is an attempt to bring into the limelight these features of Bhavani Mandap
WEAKNESS
:
There are recent structures which create an obstacle to the viewer.
OPPORTUNITY
:
It is the most visited place by the Bhaktayatris or Pilgrims. Hence there is profit during the festivals and we are well aware about our history of our native place.
THREAT :
Bhavani mandap has some places neglected and hence this is an attempt to bring into the limelight these features of Bhavani Mandap

Mahadwar of Mahalakshmi Temple
Fortification wall of Mahalakshmi temple
Mahalakshmi temple
Ghati darwaja of Mahalakshmi temple Campus of Mahalakshmi
Dakshin darwaja of Mahalakshmi temple
Pashchim darwaja of Mahalakshmi temple
Juna Rajwada (old palace)
Indumati girls highschool
Tulaja Bhavani Temple
Nagarkhana
Motibagh Talim
Bhavani Mandap
Rajaram highschool
Pagakhana



NAGARKHANA
The Maratha empire as is known for its incisive warfare techniques. Thus the planning was done in accordance with the same.
The word Nagar means Drums. The Building of Drums forbid the arrival of the king or any other important person.
The Nagar Khana serves as an entrance to the Bhavani Mandap through Bhausing Road.
Initially the Nagar Khana was also used as a public and pedestrian pathway, but only the royal and aristocratic chariots, Bagels and the imperial horseman were granted through that passage.
STAIRCASE
:

The staircase was used to keep the warriors out of sight.
The staircase acted as a shield to protect the warriors and hide them while attacking.
Hence, this idea of building a staircase, was so thoughtful that is now known from the stories of past.
INVERTED CEILING
:
A ceiling is a overhead interior surface that covers the upper limit.
It is not generally considered as a structural element, but a finished surface concealing the underside of the floor of a storey above.
The inverted ceiling observed at the Nagarkhana is intricately carved in stone and is visually appealing.

Inverted Ceiling Plan (Detail at ‘A’)

SECOND FLOOR PLAN


WWW.NASAINDIA.CO


TURRENT CLOCK :
The arch comprises of a clock which has inscriptions made in Devnagari script. It is the first tower-clock in kolhapur which was installed in 1877. Public clocks played an important timekeeping role in daily life as a public amenity to enable the community, it has a large face visible from far away, and had striking mechanism which rings bells upon the hours. Today they are preserved for traditional, decorative, and artistic reasons.
WATCH TOWER
A watch tower is a type of fortification used in many parts of the world. Its main purpose is to provide a high, safe place from where a guard may observe a surrounding area.


SHISH MAHAL :

ELEPHANT SHED :
Elephants were the mode of transportation of the Royal families. They were a symbol of prestige and royalty. Thus it was mandatory to have a massive structure for them to rest. There are two elephant sheds on either side of the main entrance which have multi foiled arches. The shed is 7m high.
There is a chamber on top floor of Nagarkhana called "SHISH MAHAL". There are polished stone pillars in the mahal, which reflect images distinctly and so this chamber is termed as '' Hall of Mirror ".
A single candle could lighten-up the whole Mahal, which emphasizes the property of reflection. The stone for the same was transported from Jotiba, a hill located 20km from the Kolhapur city.


CARVINGS:

Rain water spout is basically a British concept.
The rain water spouts assume aesthetic character besides performing function.

The interior side of the main arch has three tiny window which serves the purpose of viewing gallery for queens and princes.

There are numerous stone corbels on each level.
A corbel is a bracket which is projecting from wall. Its function is to support a ceiling or the roof, to carry weight.
The main entrance symbolizes the grandeur and majesty of the rulers of the city.
The massive and huge structure is a pleasure for the eyes of the spectator.
The whole structure is constructed using stones which were locally available.
We can identify an ancient clock, saffron coloured flag representing Maratha empire, ornamental features, stupendous arch, all perfectly blended together to add on to the glory of the city.

Carving is an art of using tools to shape something from a material by scrapping away portion of that material.
Stone is more durable than wood, and carvings in stone lasts much longer than wooden.
We can find carvings of animals (for instance a person sitting on elephant).
Human figures potrayıng various activities like dancing, playing drums, which indicate cermonies and festivities; Demons (Asura);and many more.

RAIN WATER SPOUT
VIEWING WINDOW :
CORBEL : MAIN ENTRANCE :



KASAV CHOWK:
It is the smallest courtyard among the Seven. Kasav forms an inetgral part of most temples of this style and thus is their characteristic feature.
It symbolises the active meditation or looking in to one’s inner self or soul just as a tortoise withdraws into its shell.
There is a shrine of the padukas of Chhatrapati Shivaji Maharaj II situated in a water body which has a depth of 4 m.
The base of the shrine is in the shape of the Tortoise. This shrine is placed in the chowk, Kasav Chowk.
In accordance with the Bhavani chowk, the Kasav Chowk is placed in South west direction.

BHAVANI CHOWK:
Bhavani chowk titled after the deity Kulswamini Tulja Bhavani formed the congregation area for people to worship and perform ritual celebration.
There is a fountain amidst the courtyard. The Bhavani Chowk is covered by a pitched roof.
The water body which is present on one side of the courtyard carries cool wind in the overall area of devghar.




BHAVANI CHOWK:
It is important as a religious, cultural and traditional zone.
Functions like marriages, Navrathri utsav, Ganesh utsav, etc take place.
The light in the chowk (courtyard) enters through the translucent tiles fitted over the battens. It is a central courtyard surrounded by verandah.

BHAVANI MANDAP:
A Mandap, grand hall pendol was erected for the purpose of a wedding, opposite to the Devghar. This place has witnessed many wedding ceremonies.




ARCHES:
A false arch is an arch which has no actual openings and which is applied to the surface of the wall as a decorative element. It is designed as an ornamental architectural element and has no load bearing function.
JOISTS:
Across the rooms, runs joists orthogonal to the binders spanning the open space between the two walls. They hold planks which provide thickness to the slab.
BRACKET:
A bracket is a architectural element, a structural element as well as a decorative element. These brackets are constructed in stones.
The brackets are found on all the four sides of the column and are of various sizes.
FOUNTAIN:
Fountain forms typical Mughal element in a structure. The fountain symbolizes prosperity. One can find a fountain in the Bhavani Chowk. They are intricately carved in stone. The fountain is below the ground level to a depth of 0.50m.



STONE COLUMN





ENTRANCE DOOR:
Main door leads to the courtyard named Bhavani chowk.
The door is double leaf paneled door, made of timber.
The door frame is constructed in stone . The stile and rails are intricately carved and are in timber.
The door has three panels out of which bottom panel had a small opening for security purposes.
The bottom panel was skilfully carved. The rest of the ornamentation is made up of metal.
DOOR KNOCKER:
The middle panel consists of centrally placed door knocker which is joined by nut bolts.
RAILING:
Four different types of railings are found in the Bhavani Mandap. The material of the railing is cast iron and timber.
We find two railings on the outer facade,while the other two are in the courtyard.
The basic architectural principles like balance, rhythm, emphasis, repetition, harmony, etc are strongly represented in the railings.
BULL’S EYE ARCH:
The Bull's Eye window is circular in shape and is centrally placed in between the multifoiled arch, which gives the facade a unique appearance.
It has a jali and is used for ventilation purpose.
We can observe varied sizes of this type of windows all over the facade out of which the largest one is found on the top most floor.



SOUTH SIDE ELEVATION
PAGAKHANA
This arched structure is situated facing the Bhavani Temple.
It was built during the reign of Shahu Maharaj.
Direction -East facing (In comparison to the Bhavani Mandir).
It presents a very grand and glorious elevation feature.
HISTORY
:

The main purpose of Paga Khana was to serve as a stable for the royal masses and horses.
The central rectangular portion was used to store drinking water for horses.
Judicial Court sessions and cases were also heard and pleaded here.

JALI
:
The intricate jali work is seen on the parapet of the balcony.
It imparts horizontal character to the building. Jalis are more emphasized by the stone balusters tapped globular at regular intervals.
Jali serve the purpose of both aesthetic and functional, Elimination of visual barriers is the another important function served by these jalis.

GROUND FLOOR PLAN

STYLE AND ITS FEATURES
:
The paga building is constructed in Indo-Saracenic style.
The characteristics of indo-saracenic style areBalconies, Curved cornices, Open pavilions
Cusped arch, Bulbous dome, Chala roof, Arcades , Towers.
ROOF
:
FIRST FLOOR PLAN
The structure has typical Bengali thatched roof,called chala with dome which gives volumetric appearance.
This type has hanging roof tips on each side of the roof creating a dome like shape; the double storey at-chala type has eight roof corners.
ARCH
:
The principal feature of the Info-Saracenic style is arch. Multi foiled and tri foiled arches are used in this building. These arches are assembled from black basalt stone. These arches have ornamental keystone and spandril which adds more aesthetic treatment.
SPIRAL STAIRCASE
:
There is a wooden staircase on both sides of entrance of Pagakhana.
The staircase leads to the upper floor of the building, and further the quarter turn staircase leads to the topmost level which is the terrace.
The fixing between the tread and riser is done by tongue and groove joint.

TW.RISER (180MMX40MM THK)
TW.TREAD (40MM THK)
TW.CIRCULAR COLUMN (120MM RADIUS)
TONGUE AND GROOVE JOINT
RAILING
:
Railing consist of a series of upright members, that is used as a guard or barrier or for support, as on a balcony.
The materials used for railing are cast iron and wood.

CAST IRON RAILING
:
Base plate and Handrail of railing are made up of Wood and the balusters are of cast iron. The baluster and the hand rail are held together by tongue and groove joint. The placement was planned strategically, such that they are placed externally.

WOODEN RAILING :
GALLERY
:
A gallery is a wide platform projecting outwards from the wall of a building. Most galleries overhang the width of the side-walk and are supported by posts or columns reaching to the ground.
The gallery is constructed in stone and is supported over the stone brackets.
It has stone balusters between two consecutive jali works and the gallery is joined using tongue and groove joint.
A Jali helps in lowering the temperature by compressing the air through the holes.
L-SHAPE STAIRCASE :
There is a quarter turn staircase at first floor level, which connects that floor to the upper level.
The landing rests on the beam, whose end rests on the wall.
TONGUE AND GROOVE STONE DECORATIVE
SANDSTONE JALI

WWW.NASAINDIA.CO
The baluster and the hand rail are held together by tongue and groove.
Years passed, but the wooden railing has not lost its luster.
Keeping in mind the climatic conditions, they are placed internally.

TW. HAND RAILING (80MMX50MM)
TONGUE AND GROOVE JOINT
TW. BALUSTER (75MMX75MM)
MS. MID BALUSTERS
TONGUE AND GROOVE JOINT

MANDAP TRUSS
:
TW.TREAD (40MM THK)
TONGUE AND GROOVE JOINT


A Mandap was erected for the purpose of a wedding.
Many wedding ceremonies are held in this mandap.
It is traditionally made up of wood, although now modern materials are used.
In the yesteryears, the mandap was built using the wooden trusses but Rajaram Maharaj replaced them with cast iron.
The span of the Mandap is 12.6m Type of truss: N type truss with bottom chord curved.
Depth of truss is 4.3m.
Overall height of the roof is 13.8m. There are total eight trusses. Distance between the consecutive trusses is 3.2m (c/c).


TONGUE AND GROVE JOINT
IRON ROD (30 MM DIAMETER)


WALL PLATE (150MMX125MM)
WALL PLATE (150MMX125MM)
LAP JOINT TONGUE AND GROVE JOINT
TW COLUMN (180MMX180MM)



Once you enter the Juna Rajwada there is a courtyard just before the Devghar(The Household Shrine). This courtyard is embraced with a magnificent structure consisting of Four columns continued with arches and followed by a ceiling.
The column is constructed in a combination of Two materials,sub part comprises of Stone where as super part is Timber.
RAFTER (80MMX150MM)
BATTENS (40MMX30MM)
MANGALORE TILES (420MMX250MM) IRON ROD (30 MM DIAMETER)
TIE ROD (30O MM DIAMETER)
DETAIL AT ‘G’

CEILING JOIST CEILING JOIST CEILING JOIST CEILING JOIST
The stone part is not so very ornamented but has numerous offsets, while the timber part is ornately carved.
The stone part rises upto 3.78 m and timber part is 3 m high.
The Multifoiled arches which rest on the columns are exquisitely carved.
The inverted ceiling includes various geometric patterns which are made out of timber and the chandelier is centrally placed.
The Rafters keeps the ceiling intact. The rafters and battens are visible.
There are Four main rafters. The columns are of Composite order which combines the volutes of the Ionic order capital with Acanthus leaves of the Corinthian order.
TONGUE AND GROVE JOINT




AND GROVE


STONE BLOCK (500MMX500MMX300MM)
TONGUE AND GROVE JOINT
STONE BLOCK (500MMX500MMX300MM)
STONE BASE
WOODEN COLUMN
TONGUE
STONE COLUMN
ANALYSIS
BHAVANI DEVGHAR:
As a peculiar feature of Vernacular Architecture we can observe courtyards in the Juna Rajwada complex. These courtyards are the major source of natural light and ventilation.
Though the Bhavani Chowk is covered with a pitched roof, ample amount of light is obtained through the translucent tiles.
And for ventilation, there is an open courtyard, Kasav Chowk adjacent to the Bhavani Chowk and there are doors which fulfill the purpose of the same. As Vastu-Shastra suggests, the water body helps in the cooling process.
Thus, the overall atmosphere of the space is well ventilated and has adequate amount of light.
LOAD TRANSFER :

MATERIAL :
The most common building material in Kolhapur is black basalt stone, that is available almost every where in the city at a depth of 1-2 m. While some are exported from Jyotiba hill. The roof made up of bamboos and country tiles. The Timber is available in kolhapur district. The Bricks and the country tiles are manufactured at Shahupuri and Utarreshwar and the Bamboos are extensively available in the Karveer Taluka. Roofing material, manglore tiles and translucent tiles are seen in the complex.

LIGHT AND VENTILATION :

NAGARKHANA :
Light and ventilation is served only through the medium of windows.
We can find Harem Windows for the same purpose in the staircase block.
Shish Mahal being on the top-most storey, there's a galore of light and ventilation.
PAGAKHANA:
This building is in the Indo-Sarcenic style of architecture. As a distinctive feature of the same, which provides light and ventilation.
Along with this there are windows in the staircase block for the same purpose.
In addition, there are vents for the ventilation and light on the first floor which opens on the terrace level.
WATER CHANNEL :
A Water Channel is a passage or a pathway through which water from a huge source can be supplied to the desired location.
The water for the fountain and for the water body in the Kasav Chowk is extracted from the Kalamba Lake with the help of aquaducts.
There is a Valve before the fountain and the water body of the Kasav Chowk which is solely responsible for the supply of water.
All the fountains in every courtyard and water bodies are connected to each other thorugh a water channel.

FINIALS :
A Finial is an element marking the top or end of the roof often referred as decorative feature.
It is an ornamental device, typically carved in stone employed to emphasize the apex of a dome.
FLOORING :

The flooring is bifurcated into four categories :
1.Stone Flooring :
Stone flooring is found in most of the parts.
2.Timber Joist flooring :
The floor consists of wooden joists and supported on the end walls over which timber planks are fixed. This is a single joist timber floor which is found.

COMPARATIVE STUDY:
3.COMPOSITE FLOORING :
Material used for composite flooring is cast iron and timber.
We can observe two I-Sections placed one above the other and above it timber planks are fitted. This type is found in the balcony .

4.JACK ARCH FLOORING :
A Jack Arch is a structural element in masonry construction that provides support at openings in the masonry and is found.
It involves a series of smaller sized yet elongated vaults that are supported on intermediate beams. This roof is constructed in brick and steel, concrete and clay gypsum mortar.
It is observed that a coating of thin mud plaster is given to all the above floorings.


ACTIVITIES:
Here we have enlisted the festival which depict the semi sacred characteristics.
Makara Sankranti :
Makara Sankranti or Maghi, is a festival day in the Hindu calendar, dedicated to the deity Surya.
This day the people of India celebrate their harvest.
People wish each other on this day and offer sweet to the god.
Ghatastapana :

Ghatasthapana is the first day of Vijaya Dashami. Ghata means "pot or vessel" and sthapana means "to establish".
Combining both words the literal meaning is to establish a pot. Ghatasthapana is also known as Kalasthapana as Kasal also a type of water vessel. Weapons are placed front of Goddess Durga Bhawani and worshipped.
People blow Sankha and play Damaru while worshiping Durga Bhawani and Jamara. This is a semi sacred activity. During this festival cultural activities take place and a puja held and a large amount of people seek blessings.
Shivaji Maharaj Jayanti :
This is the most auspicious day when the great Maratha warrior was born and this is the most awaited day for the Royal family.
The courtyard is decorated by using banana leaves and a huge Rangoli is drawn. The royal family remembers Shivaji Maharaj on this day.
Dusshera :

Dussehra or Dashain is a major Hindu festival celebrated at the end of Navaratri every year. It is observed on the tenth day in the Hindu calendar month of Ashvin or Kartik, the sixth and seventh month of the Hindu Luni-Solar Calendar respectively, which typically falls in the Gregorian months of September and October.
Vijayadashami marks the end of Durga Puja, remembering goddess Durga's victory over the buffalo demon Mahishasura to restore and protect dharma. The people first take blessings of the goddess Mahalakshmi and Tulja Bhavani and then people gather in Dusshera chawk for the event of distribution Sona lutane (Bidi) leaves.
Gudi padwa :
Gudi Padwa and Konkani
Sanvsar Padvo is a springtime festival that marks the traditional new year for Marathi and Konkani Hindus.
It is celebrated in and near Maharashtra and Goa on the first day of the Chaitra month to mark the beginning of the New year according to the lunisolar

Hindu calendar. As it marks the beginning of the hindu new year, people visit temples to seek blessings of Goddess Mahalakshmi, Tulja bhavani and Jyotiba. This is a sacred activity.
Mahashivratri :
Maha Shivaratri is a Hindu festival celebrated annually in honour of Lord Shiva, and in particular, marks the day of the consummation of marriage of Shiva. On this day there is a puja held in the shrine of Bhavani mandap
Diwali :

Deepavali is the Hindu festival of lights, usually lasting five days and celebrated during the Hindu Lunisolar month Kartika (between mid-October and mid-November).
One of the most popular festivals of Hinduism, Diwali symbolizes the spiritual "victory of light over darkness, good over evil, and knowledge over ignorance".
The festival is widely associated with Lakshmi, goddess of prosperity, but regional traditions connect it to Sita and Rama, Vishnu, Krishna, Durga, Kali, Dhanvantari, or Vishvakarman. There is a puja held and people visit the temple to pray for the well being.
Sambhaji Raje Jayanti :
He was the second ruler of the Maratha kingdom. He was the eldest son of Shivaji, the founder of the Maratha Empire and his first wife Saibai. Sambhaji's rule was largely shaped by the ongoing wars between the Maratha kingdom and Mughal Empire as well as other neighbouring powers such as the Siddis, Mysore and the Portuguese in Goa. This activity resembles the activities during Shivaji Mharaj jayanythi. The royal family visits the temple and seek blessings.
Chatrapati Shahu Maharaj Jayanti :

Shahu Maharaj was of the Bhonsle dynasty of Marathas was a Raja and the first Maharaja of the Indian princely state of Kolhapur. This is the most important day celebrated and the naming ceremony is recreated. The courtyard is decorated with all natural resources like the leaves,flowers, and a huge rangoli is drawn. People light lamps and a cradle is centrally placed.
CONSTRUCTION TECHNIQUES : NAGARKHANA
:

Nagarkhana
Chp. Shivaji Chowk
The NagarKhana was constructed in 1838, the construction was all done manually (no use of machineries).
Huge animals like elephants were used for transportation of load from one place to another.
A temporary ramp from Shivaji Chowk to the NagarKhana, was constructed using locally available material like stone,mud,etc was constructed through which the material was transported to the great heights.
CLOCK MECHANISM :
The Turrent Clock was the very first British clock in the town.
It was located over the NagarKhana which once was the talllest building, thus, could be visible from a far distance.
The clock works on the mechanism of counter-weight.

PROXIMITY :
MAHALAXMI MANDIR :
The temple belongs architecturally to the Chalukyan empire and was first built in the 7th century that displays Hemadpanthi sculpture architectural form. The walls, interiors and exteriors of the ancient shrine are beautifully adorned with carvings and sculptures.
In addition to this, the temple also displays a unique phenomenon, with sunlight falling on the face of the idol.

VITTHAL MANDIR :
The blackstone built Vitthal Temple complex is situated 0.5 km south of Bhavani Mandap Beautifully stone carved Temple is built in Hemadpanthi Style of architecture.
The carving style indicates that this shrine is built prior to that of Mahalaxmi Temple complex.
RANKALA LAKE :
This lake was constructed by late Maharaja, Shri Shahu Chhatrapati.
It is located on the western side of Mahalaksmi Temple Kolhapur.
This wide and spectacular lake is so called because at its centre lies the temple of Lord Rankabhairav. It is a popular evening spot and recreational centre for people of all age groups.
MOTIBAGH TALIM:
Motibagh talim is just besides the famous Mahalaxmi mandir, and is a very prominent place. The wall of the talim is smeared with the palm print of red soil all over, a mute testimony to the red soil clad sweeting wrestler resting on the wall.
NEW PALACE :
Architect of this magnificient building is Major Charles Mant.
It took 7 years for the construction of the palace. It is built in black poilished stone obtained from locally available qurries.
The whole building is eight-angled and has a tower in the middle.

Tulja Bhavani Temple
First Floor
Paga Building
Nagarkhana
Shish Mahal
Watch Tower
Courtyard


1. Effigy of Khashaba jadhav
2. Civic activity
3. Kasav chowk
4. View of bhavani chowk
5. Paga khana
6. Civic activity
7. Verandah
8. Hustle and bustle
9. View from first floor, bhavani chowk.
10.Nagarkhana.
11.Shrine of padukas.
12.Ceiling in bhavani chowk.
WWW.NASAINDIA.CO
DR D Y PATIL COLLEGE OF ARCHITECTURE, PUNE
Team
Anakha A Nair (USEC)
Harsh Gupta (UD)
Kartik Sarde
Rahul Shewale
Kalyani Sonekar
Supriya Desale
Shreyansh Chaple
Shreyas Soni
Somya Pattnaik
Atharva Wankhade
Siddarudha Byadagi
Nandana Ramakrishna
Abhipsa Sahoo
Rajkumar Kadam
Rahul Deora
Jaideep Patil
Riddhi Godambe
Sujal Singh

BRIEF INTERPRETATION
The architecture world is majorly divided into two parts, the civic and sacred although the blend of thiis is neglected. Architecture is deeply rooted in our culture. The sacred structures reflect the history, narrated through their architecture. The gurukuls, the mutts, the shrines, may n ot be sacred to the core but are an essential part of the storytelling. These functionally and structurally assisting structures of faith have been embedded as an integral part of faith over time.
The semi-sacred structures when studied with their elemnets, characteristics and embodied themes denote that they aren’t as symbolic as the sacred core itself but not as simple as civic design too.
SITE JUSTIFICATION
The Mouni Maharaj Samadhi Complex, situated in Patgaon, houses the Samadhi of Sage (Dharmguru) Mouni Maharaj. It was constructed by Chhatrapati Shivaji Maharaj as an tribute to Mouni Maharaj. Years passed and the seekers for his blessings increased enormously. Thus came the addition of pilgrim residences, Ved Shala and Bhojan Shala in the complex for pilgrims. The semisacred Samadhi complex embodies intricate Maratha architectural style and gives an identity to the village. Not being maintained presently, the complex represents the diluted expressions of architecture evolved with time, preserving traditions in its wake.


Patgaon -Gargoti kolhapur, maharashtra
Latitude -16.127N,73.9463E
IMPACT

basalt stone and laterite stone deteriorated due to heavy rainfall.
SITE SURROUNDING


INFLUENCE OF STRUCTURE ON SURROUNDING

EVOLUTION MAP 1
EVOLUTION MAP1 2
These maps show the evolution of patgaon over years post the construction of the svamadhi and its flourishing development.

The village has five major castes namely the sutar, wani, desai, naik and linga out of which the majorly populated grew the settlement around the site.


Timber post gets exposed to termites, due to continuous exposure to heavy rainfall.

a- soil b - regolith is a loose heterogenous superficial deposit covering the rock c- saprolite is a chemicaly weathered rock d- bedrock is a lithified rock


WWW.NASAINDIA.CO
The sculptors profit during festive season since they achieve great commerce
offerings like flower, coconuts are made. these shops also gain a lot of profit


eatery’s economy increases due to incoming of more customers during festive season the street leading to the samadhi becomes more lively, due to influx of more people
INFLUENCE FROM MARATHA ARCHITECTURE

when the copper sheets are continously exposed to moisture, it gets oxidised and turns green.


The inluence of maratha architecture can be seen in mouni maharaj math which is inspired from the bhavani mandap in kolhapu. This architecture style reached patgaon due to the influence of shivaji maharaj.
ARCHITECTURAL FEATURE


A simple sloping roof with gable end or hip roof
Sloping roof with projected balcony which act as shading device



Lean to roof is extended supported on the walls creating a living space.
A simple sloping roof with gable end or hip roof
Depiction Of Wada Architecture
• Upper floors were made up of grids of girders and joist on which wooden planks with mud mortar was laid to keep the interior cool.
• The base of the timber post is made up of stone
The window openings are lined with wooden grills

The trail begins at patgaon leading to gargoti, covering 8 villages in the way, with each village joining in, consecutively.
Patgaon Dam Lingaraj Temple
Bhadarkali Temple
The 17th century: before the wars of gingi and srirangapattam against the mughals, chhatrapati shivaji maharaj set out to seek the blessings and guidance of his guru shri SAMARTH ramdas. therein Guru Ramdas asked him to seek the blessings of all the religious gurus he utterly believed in for the empire’s victory in the battle.
Mouni maharaj was one of the chhtarapatis’s religious gurus. in september of 1676, he visited patgaon to visit mouni maharaj to seek his blessings wherein he guided shivaji.

Four years later, the inevitable happened and chhatrapati passed away. but before his death he asked sambhaji to complete all his works including the construction of the samadhi, to which sambhaji faithfully obeyed.
The maratha confedarcy fought valiantly and the maratha empire won those battles. the chhatrapati gave a big credit to mouni maharaj asserting that his blessings helped him win th war.
Centuries passed, the british colonised india, brought reforms all around, including patgaon. general alexander commissioned ramgiri in 1874 for the addition of a sabhamandap to the samadhi to erect a nagarkahana patgaon.
STRUCTURAL EVOLUTION
In 1678 the samadhi mandir was constructed the architecture of this mandir was inspired from the hemdpanti style of architecture the decorative columns of antaralaya confirms the fact that it was built in a later period of time.
In 1874 the sabhamandap and nagarkhana was built for the comfort and accomodation of royal families due to the influence of royal families wada style architecture is visible in structures
Later on in 1900 a hathimahal and ashram was constructed to meet the requirements of royal family
WWW.NASAINDIA.CO
In 1678, shivaji maharaj came back to patgaon to meetmouni maharaj only to know that the wise sage had taken exile. chhatrapati then decided to build a samadhi for mouni maharaj and laid the founding stone for its construction on 3rd may 1678.
Patgaon beacoming as an important pilgrimage spot over years, shahu maharaj collected taxes from nearby villages and built a pilgrim house in front of the samadhi in 1894.
In 1920 a court was built for the villagers where they could solve their disputes during this time period a ved pathashala was built above the antaralaya to educate the children with vedas and shastras
In 1960 ashram was converted into pilgrim residence

DESIGN PRINCIPLES

SYMMETRY HEIRARCHY
The structure is in bilateral symmetry divided along the north south axis.
The extented part of the samadhi has three levels where different classes of people worship.
SPATIAL ORGANISATION

Site area 8981sqm
Built up area 1634sqm
Open built up 1:54
ACCESS
Primary access is provided from the direction of the nagarkhana Two separate entries along the south and west directions have been provided.
STRUCTURE IN ACCORDANCE TO CLIMATE
MATERIAL
LEGEND
1. mahadwara 4. bhojanalaya 7. dormitory
2. pilgrim residence 5. pilgrim residence 8. samadhi 3.sabha mandap 6. samadhi mandir
SECTION AA’
SECTION BB‘
SHADOW ANALYSIS




WWW.NASAINDIA.CO

VASTUSHASTRA PROPORTION
The shape of the builtmass is rectangular which creates vibrations appropriate for peaceful and tranquil pattern of life. The shorter side should be facing along north and south axis
LIK PRINCIPLES



The proportions of larger courtyard are in accordance to the human scale thereby providing space for the people to carry out their activities and also facilitates circulation of air and light
The shadow created by the court building falls on the foreground, thus creating an comfortable space for kids to play and other leisure activities.
The space between the samadhi buildings is shaded from sunlight,the first and last ray of sunlight falls on the copper tortoise.
The light and shadow play in the osari created by the combination of columnates and beam shows harmony of light and space.

SHADING DEVICES

Flooring - basalt stone is used which helps keepng the interiors warmer in winter and cooler in summer.
Walls - laterite stone wall act as a insulator which does not allow the warm air to get in.
At the outer facade of the structure, the roof is projected out to provide shade.
Since the inner courtyard does not receive harsh sunlight, no shading devices have been provided in the inner side courtyard
PASSIVE COOLING TECHNIQUES

The positioning of the windows were such that it facilitates cross ventilation
Opening the slanting window profile permeates more daylight into the structure.
MAHADARWAJA
• Total area :- 78.50 Sq.M
• Nagar khana/gateway marks the entrance to the samadhi complex.
• The gateway was built in the year 1874.
• This structure mainly used to serve the purpose as nagar khana.
• The structure had an Indo-Ismalic influence.
• Typical sloping roof style was observed in the gate which is a prevailing feature in this area.
FUNCTIONALITY
GROUND FLOOR PLAN
The gateway had an internal passage known as jibhi. Jibhi consists in raised side plinth which served as interaction space between the sentries and the masses.
This also functioned as a sitting place for accomodating the outsiders.This also maintained as hindrance from direct access to the complex.

FIRST FLOOR PLAN
The first floor of the gateway holds the nagar khana, a drum house .It was also used as an administrative office and watchpost.
The nagar khana was more oftenly used to seek villagers and pilgrims attention for announcement and gathering masses near the entrance.


CIRCULATION
Instead of providing first floor over ground floor cantilever balcony is provided for circulation on first floor.So the area that is same as that of ground floor can be totally used as carpet/floor area on first floor.

BEHAVIOUR ANALYSIS
TECHNICAL ADVANCEMENTS

Purpose:- the rings served the pupose of tieing the horses of the warriors.

WWW.NASAINDIA.CO
Purpose: - sole purpose of the khunti was to hang in the clothes or bags of the serving sentries.
GROUND FLOOR PLAN
Upper floor of mahadarwaja was deteriorating hence retrofication was necessary. Columns and beams were weathering out due to termite action and weather effects.Also floor on the balcony side was on the verge of collapsing.


he purpose of the konada is to facilitate storage and oil lamps.

Holes on either side of the opening are provided to insert the wooden log as locking system.





RINGS
KHUNTI
KONADA
LOCKING SYSTEM
MAHADARWAJA
POINTED ARCH
A pointed arch place more stress on the very tip of the arch, which actually concentrates, rather than evenly distributes the pressure.
OGEE ARCH
When two double curves (ogee curves) meet at the apex it is called ogee arch.
MULTI-FOLIATED ARCH
It is created by overlapping of circles and symmetrical leaf shapes.
KIRTIMUKHA
It is the swalloing fierce monster face with huge fang and gaping mouth very common motif on hindu temple architecture. banana flower carving




MAHIRAPI KAMAN
This is based on wada architecture where cusped arches also called Mahirapi Kaman are cascaded to achieve greater lengths of modular structures.
MOTIFS
It is inspired from indo islamic and victorian style of architecture.
AEDICULES
Purpose:- the geometry of structure is purely enhance by use of aedicules,the architecture framework on the wall served as an element of architectural compostion on wall surface.

FRONT ELEVATION




MAHADARWAJA
CONSTRUCTION PROCESS:
ROOFING
The roof is supported by the principal rafter, purlin and king post. The spacing between batten is decided by the size of the corrugated sheet.
OPENINGS
Segmental arch provided as non-monolithic lintels on windows or doors.

BEAM-COLUMN JUNCTION
Beams are rested on the columns and both are fixed by tenon and mortise joint.

RAILING
The balustrade are fixed in handrail and baserail by tenon and mortise joint. The base rail is secured to the ground with a central bolt.

SLABS
Slab consits of a grid of girders and joist on which brick bat coba is laid. There is an rammed earth layer above brick bat coba.


TIMBER STAIRCASE
A stair stringer is the housing on either side of a flight of stairs into which the treads and risers are fixed and will have two stringers on either side of the steps.

WALLS
A load bearing wall of 3 feet was constructed out of dressed Calcareous sandstone laid over thin layer of lime mortar.

PLINTH
BALCONY
The girder extended for the balcony is supported by the wall acting as a counterweight. 1. the beams are directly inserted in the walls by providing support on three side. hence giving more cantilever with less overlap.

Joist is placed above the girder. The connection between the two joist is done with a dado joint.
WALL SETION
Plinth was made out of calcerous rocks which was available in jyotiba hills. These rocks were laid on a thin layer of limestone mortar. Upto to a height of 1.1M.

WWW.NASAINDIA.CO
FOUNDATION
•The foundation in those days was done by digging a trench which was filled in with boulders. •The boulders were grouted with rammed earth .To make the soil compact water was sprinkled at last.

FIXING DETAIL OF RING
A rod with a ring at its end is bend in the shape of hook. A plate is then inserted in the rod to hide the connection.

Wooden planks are laid over battens on which a layer of rammed earth is laid which is finished by cowdung.

TOOLS TO CARVE THE STONE

Club Hammer Toothed Stone Chisel
Diamond Chisel

Masonary Chisel

SABHA MANDAPA
INTRODUCTION
Total area :- 508.63 sq.m
Sabhamandap which means a ‘gathering hall’ was built as an extension of the samadhi mandir.
• It was built by ramgiri under british orders in 1874.
• Architectural style: wada architecture
• Centre of social gatherings and religious activities the upper floor was used for royal gatherings. Due to these activities the structure serves its semi sacred purpose
• The royal family performed their worshipping rituals in antralaya while the upper floor was a ved pathshala making it a semi sacred complex .
SPACE FUNCTIONALITY
COLUMN GRID:
Within the available land area, a structural grid comprising of a configuration of sqaure units was expressed in local parlance as khann(the square grid) and ghaee(the bay formed by two or three khann).
SPACE FOR CIRCULATION :
Huge space is provided in the middle where bhajans are played with sideway circulation spaces to reach the antralaya.
Arches erected on the beams and columns at the entry and exit points.
PRADIKSHANA PATH
the door in the antralaya and sabha mandapa act as entry and exit point of the pradikshana path, whose circulation is always in clockwise direction.
TILE DROP IN CENTRE:
Drop of 100mm created in centre of sabha mandap for separation of circulation spaces.It segregate the function of space creating a sitting space for bhajans and worships at the samadhi.
MID-LOCATED DOUBLE HEIGHT SPACE:
This space acted as a visual connection of the royal women at the upper floor, to the activties below.
INCREASED FLOOR TO FLOOR HEIGHT:
This increase in height adds to the grandeur of the structure and gives a feeling of welcome to the visitors.
VASTU:
Provision of openings towards the east channelises positive energy throughout the day and doors are provided along the east-west direction to direct the pradakshina






FIRST FLOOR PLAN

FIRST FLOOR PLAN

FALSE CEILING:
As the copper sheets on the roof absorb heat readily, the false ceiling provides heat insulation to the spaces underneath.
LIGHTING:
Hooks provided in the false ceiling to hang the chandeliers adorned with lamps or diyas.
AXIS:
The structure is oriented along the north-south axis.


FACADE DESIGN:
Facade of the building profoundly echoes the structural grid which consists of a series of bays within which openings in the shape of arches were punctured.

The latest murals installed in the Sabha Mandap depicts the story about Chatrapati Shivaji Maharaja’s life events.

Indian history flourishes in stories of wars, tales of king’s life, mythological assumptions.These were represented through carving.
Sharabha, a mythical animal found holding elephants in its tail legs and mouth.It is depicted to show power, dominance and ward off evil spirits which can be seen on fort architecture.

It is depiction of various deities.the third last is kali and corpse. there is a cow which is kamdhenu. below it is another band of decorations.


FEATURES OF ANTRALAYA:
Size of doors: Smaller size of openings to minimize the chances of threat.
Seating extended from the wall.
Shorter railings on first floor for better vision of activities taking place in the ground floor.
VIEW
POINT :


Doorframe is known as Dwarshakha and it has Ganesha on Lalat (means forehead), bimb (icon), and it has demon like face which is called kirtimukh which is a common motif of indian temple architecture.


EAST SIDE ELEVATION


CONSTRUCTION DETAILS
COLUMN
Timber columns were usually plain square posts with a stone pedestal of cyna reacta out line.
TREATMENT TO WOODWORK:
Dark linseed oil was applied on the woodwork for its polishing and for protection against termites.
EXPANSION JOINT OF COLUMN
DOUBLE TENONED SCARF JOINT
Tenons are provied on the face and underside to resist cross strain folding wedges are used secure the two pieces in position.
Cutting two member in given profile Placing both member and interlocking.
Hammering wedge pieces for complete rigidity.
BEAM AND COLUMN JUCTION
Mortise and Tenon joint for beam column junction
SABHAMANDAP (FIRST FLOOR) RAILING DETAIL
EXPLODED VIEW

Railing is fixed with column using end threaded bolts to give additional support.
Elevated stone ceiling of Antralaya
Timber cusped arch fixed to column and beam by nailing
Junction of multiple beams and columns
DOUBLE TENON AND MORTISE JOINT
FALSE CEILING CONSTRUCTION
Stone blocks of 40cm width and 20cm depth are placed centre to centre on the beam
ROOF CORNER JOINERY DETAIL
The stone pieces are placed in layers, one over the other in a fasion such that the upper stone is placed diagonally to the underlaying stone to form a conical void in a slab.
CLOISTER SLAB DETAIL
EDGE PEICE BOX JOINT
Tenon and mortise joint in multi beam and column junction (sabhamandap first floor)
Tenon and mortise joint with mitred face (in pradikshina marg gate)
SLAB SECTION OF CLOISTER
SLAB SECTION OF PILGRIM NCE
RAILING DETAIL
VED PATSHALA DOOR
Three leaved panelled foldable door with 180 degree hinge provided between panels and the panel is attached with the frame using a pivoted joint.
WALL SECTION OF YATRI GHAR
YATRI GHAR
INTRODUCTION
Total built-up area :- 1286.2 Sq.M
This structure is at the rarer side of the site
It was built in 1920
Architectural style :- wada architecture
PILGRIM HOUSE
Was originally built as an ashram which now accomodates the pilgrims.
OSARI
Since former times the osari served as a place for provision of food for pilgrims.
COURT
The structure served as a court where the disputes among the villagers were resolved. Pilgrims in the upper floor when the yatra commenced.
FUNCTIONALITY OF SPACES
Kitchen was used by the workers,devotees, or helpers for preparing the prasad.
Store room had minimal ventilation and was used to store grains. The traditional grinding equipments like the stone flour mill was seen here.
Use Of Osari
This space was usd by the devotees to have their prasad.
Residence For Devotees
The devotees halted in the upper floor of the ashram. The balcony and semi open space acted as an interactive place for these devotees. During yatra when the number of people increases, the semi open space is also occupied.

KEY PLAN
The augmentation of civic activities to an envisioned religious structure to bring order and betterment to the village. Makes it a significant semi-sacred structure.
GROUND FLOOR PLAN
Provisions were provided for the person looking out for the strucuture in the absence of the main authority.
The provisions consits of one hall connected to kitchen and bedroom.






LOCKING SYSTEM
TECHNICAL ADVANCEMNT
KHUNTI
Khuntis were used to hang the lamps. these were found adjacent to doors, landings and other places where illumination was required.

KHUNTI
Khuntis were used to hang the lamps. these were found adjacent to doors, landings and other places where illumination was required.

BEHAVIOUR ANALYSIS
Beams and columns were deteriorating rapidly due to termite action and climatic effect.

A layer of p.C.C bed is provided to prevent the slab from collapsing. Due to increase in the thickness of slab, the clear height of the upper room has reduced.

EFFECTS DUE TO RETROFITTING
RAISED PLATFORM FROM F.F.L
To avoid any damage or leakage and for the ease of cleaning ,the cupboards were placed at a raised platform.




Platform is provided just above the lintel level of the door, and objects placed on that platform can be easily picked up by ascending steps.
The locking mechanism has a block of wood embeded with two c shape iron pieces and a rod is placed through them. The long rod has a loop at its end,through which a lock is placed.
DEGREE OF ORNAMENTATION
The ornamentation of the structure is done extensively on the cloisters column of the ground floor and reduce considerably with increase in height.

THEN :
These were used to store the crops collected from the villagers.
SECTIONAL ELEVATION aa’
NOW:
It is used to store materials like matresses and blankets which are required by the pilgrims during festive season.
SECTIONAL ELEVATION AA’
THEN:
It was served as a court where disputes among the villagers were resolved by ramgiri .
These are different animal motifs with central sahastra dal for decorating this separations.
CARVINGS
NOW :
It is used as pilgrim residence

The various animals depicted here are for decorative purpose with creepers and central 1000 petalled
The end part of the beam is visible in the side elevation which consits of decorative Carvings and it compliments the other structural elements .
The different carvings have different meanings and functions. These are combination of temple, memorial and residential place. Most of the elements are from ramayana, religious narrative panel and dieties which serve as demarcation of architecture and space as symbol sacred. Others are for aesthetic purpose, also they want there create their own eclectic mythical scape to attach meaning. Some are to ward off evil and few are awkwardly executed from past.Some of the carvings depict the every scene such as musicians, palakhi , processions , hunts , troops, place etc.
These are non structural brackets of 1000 petals wheel on it.
These horses depict the medeival period, when wars were won on horse back.
These are cyprus columns. The style post is attached to the column in such a manner that it looks like a single unit.
This is hanumana and garuda holding 1000 petalled flower (sahastra kamal).
flower.
The mythical lion tiger like animal is seen with horse.
CONCLUSION

The structure was a fusion of temple,sabhamandapa and a hall of a palace making it a grandeur edifice.it is a self evident part of its surrounding and it seems to belong there because of the use of local design ideas and planning principles, but at the same time the structure has its own unique identity because of the use of a combination of materials.different themes were emodied through elements like columns,pedestals,brackets,niches and arches in a very distinct way.the unique identity is seen because the temple was operated by the royal family of bhosale's making it a necessity to make the structure imposing
Being a part of the history of patgaon depicting various architectural style of different era and uniting these discrete styles into a sole unit.each era creates a different impact on the structure and it evolves with the need and time. as seen in our structure the core samadhi was built in ancient era in hemadpanti style of architecture but with evolution the structure had to be expanded for better functionality leading to the construction of antralaya. due to difference in the era there is a slight change observed in the architectural style as seen in the columns of antralya further when the influence of royal families prevailed wada style architecture is evident as seen in the sabhamandapa.
WWW.NASAINDIA.CO
With time the rituals are carried forward but not the structure. eventhough the structure provides functionality and helps to serve the purpose.the structure itself is ignored and not given as much importance as the purpose.the structure and purpose goes hand in hand and hence must be given equal sigificance.


WWW.NASAINDIA.CO
Team
Lakhan Jitendra Dhameja (USEC)
Gayatri Jadhav (UD)
Reshmi Goswami
Lakhan Dhameja
Falguni Garg
Rudrani Sarkar
Shriya Sahu
Shalini Agrawal
P. Aditi
Akhil Agrawal
Jatin Jagtap
Jahnvi Batra
Jay Shah
Poorvi Dasari
Pranshi Agrawal
Nidhi Lachuriya
Sai Dubewar
Saswat kumar Dash
Dipesh Zajariya
S.S. Mouli
Shashanka Mouli
Nirajana Mishra
HISTORY OF BHUBANESHWAR AND LINGARAJ TEMPLE
Bhubaneshwar, the capital of Orissa, is popularly known as ‘The temple city of India.’ Being the seat of Lord Lingaraj, it is an important Hindu pilgrimage centre. As noted in Ekamra Purana, the presiding state deity of Lingaraj was originally under a mango tree, hence the city was given the name, Ekamra Kshetra. Ekamra was a sacred area “…adorned with hundreds of mango groves, wherein exists a single Devakula (temple) surrounded by numerous temples,” as quoted by the Anantavasudeva inscription. Ekamra Kshetra was divided into eight sacred precincts, each with its water body, temples, small shrines, ‘tirthas’ and prescribed ritual procession routes that are connected to the Lingaraj temple, which lies in the centre. Thus, establishing the parallel existence of Lord Lingaraj and the city of Bhubaneshwar.
THE JOURNEY OF PILGRIMS
The main shrines of temples, from the great Lingaraj Temple to smaller deities have witnessed flocks of pilgrims over thousands of years. Pilgrimage- an important aspect of one’s duty in the society accentuates the transition from mundane to superior realms. The architectural details reflect likewise with respect to the metaphysics and hierarchy of our universe. The semi scared space bridges the transit -from the cacophony of everyday life with the soothing vibrancy of the sacred divine presence. The need to purify one’s physical form by bathing in fresh water or sacred Ghats before proceeding towards the sacred sanctum establishes semi sacred spaces.
The semi sacred space tries to emulate the aspects of its local temple architecture while simplifying the quantum of intricate detailing.
Balancing the grandeur of the highest honor with the generic civilization-built systems gives semi-sacred space a mystique secrecy.
The selected site – Doodwawalla Dharamshala boasts of the vigor of a pilgrims heart and the sense of gravitas for the faith that induces duty.
Sharing a temporary living space with fellow devotees encourages bonding and experiencing a profound belongingness to one’s devotion to god.

JUSTIFYING THE SELECTION OF SITE: DOODHWAWALA DHARAMSHALA
CULTURE: Conserving the spirituality while also providing civic spaces for holistic practices is the culture that can be observed here.
COMMUNITY: The temple chores were divided amongst different Brahmin families who worked together. This Dharamshala, is now maintained by a ‘sevak.’
CRAFTS: The Dharamshala is generously decorated with a number of arches, niches and doors. This had been a great opportunity for employment for local artists.
CONSTRUCTION: The building was constructed using vernacular techniques while holding on to the indigenous methods, using laterite as a local material along with cement and wood.
FAITH: The Dharamshala was built abiding by the faith, that Lord Lingaraj would take care of everything that was needed to sustain life by providing hygienic food, water and shelter which was made available within the premises of the Lingaraj temple, taken care of by the Doodhwawala Dharamshala.
DISTINCT FEATURES: The eccentricity of this establishment is the location, which is surrounded with a temple on its left for morning prayers, and a lake to the right for evening pujas. It has been equipped with ‘laalten’ hooks and punctures for apt lighting. Big windows, a courtyard and double heights have been designed for adequate ventilation and cooling. Amidst the structure, a kitchen has been provided. Intricate details on arches, niches and at the entry door add to the beauty of this space.
BELIEF: The Doodhwawala family built the Dharamshala on the belief and compassion that they would become a haven for the pilgrims coming to worship Lord Lingaraj.
ASSOCIATION: This building is not only used for the pilgrims, but also for other ceremonies such as ring ceremonies, ‘Upanayanam’, ‘Annaprashana vidhi’, etc. These are some of the ways that help generate revenue, as this Dharamshala is a private property.

INTRODUCTION
The Doodwawalla Dharamshala was built in 1920 by Mr. Rai Hagarimull Doodwawalla Bahadur, son of late Seth Debeduttji Doodwawalla. It is a private property owned by the Doodwawalla family and maintained by the Lingaraj temple ‘sevaks’ of the Mahasinghar family. Along with providing boading to pilgrims, the Dharamshala is often used by the local residents for ring ceremonies, thread ceremonies and engagements at a low rate. A nominal charge of Rs.500 is accepted as rent which contributes to the maintenance of the dharamshala. Renovations were last carried out in 2005. The peak season where the dharamshala is most in use is from November to February, Shivratri being an important festival celebrated here. On an average, 100 to 150 pilgrims visit the dharamshala annually. Provisions of food are not available for guests, however a kitchen is made available to them for cooking their own food. In the past, an octagonal well accessed from every floor by a pulley system, served as the primary source of water. Water is pumped out of the well and supplied through pipes. A single tap supplies water from the Municipal Corporation.
The Doodwawalla along with the Dalmia Dharamshala live harmoniously as a community where both owners being to the same caste. The Dalmia, however was built in 1920, before the Doodwawalla. A second dharamshala was constructed due to the rapid rise in demand.

OTHER SITES EVALUATED
1. Gora Kabar Cemetery, Cuttack, Odisha: Hidden in the ruining wilderness of years of ignorance, colonial era structures still stand today. The structures are inaccessible and face the threat of demolition due to lack of awareness. The cemetery is still in use but this forgotten wonder is engulfed in fierce despair along one corner.
2. Digambar Jain Temple, Cuttack, Odisha: The Digambar Jain Temple complex houses the main Mahavir temple and a Dharamshala for Jain pilgrims. Although the temple itself was built in the latter half of the 20th century, the Dharamshala was a recent addition to the complex thus not fulfilling the requirements of the brief as a semi-sacred structure.
3. Nitai Gauranga Matha, Cuttack, Odisha.
4. Dalmia Dharamshala, Cuttack, Odisha: The Dalmia Dharamshala was built in 1920


SIGNIFICANT STRUCTURES IN THE VICINITY
LINGARAJ TEMPLE: Bhubaneshwar’s oldest and mightiest temple is unique in the fact that it is ground for worship of both Lord Shiva and Lord Vishnu. The Lingaraj temple marked the culmination of the evolution of Odishan architecture. It is built in red stone and is a classic example of Kalinga style of Architecture. It houses the sanctum, the hall of yajnas, the hall of offering and the Natya Shala, hall of dance. A magnificent courtyard also comprises of small temples dedicated to the several gods of the Hindu pantheon.
BRAHMA TEMPLE AND BINDUSAGAR: Taking blessings from Lord Brahma at this temple is necessary before visiting the Lingaraj temple. Here, the Brahma temple is surrounded by the Bindusagar tank. The history of main Brahma temple dates back to the 15th century. The temple is constructed according to the Kalinga style of Architecture. The major festivals celebrated in this temple are Karthik Purnima, Ashokashtami, Guru Purnima and Diwali.
EKAMRAVAN: The name, Ekamravan means ‘one mango tree forest’. The spiritual significance is that Bhubaneshwar housed one of Lord Shiva’s favorite places to meditate, which was under a huge mango tree. The garden was revived by the Odisha Government and it accents raised platforms dedicated to Lord Shiva, Parvati and Ganesh. Numerous animals linked to the story of the formation of Bindu Sagar, have been carved out of sandstone. The clanging of temple bells and chanting from the Lingaraj temple can be heard nearby, giving an ethereal feel to it. It has been beautifully landscaped with a lotus pond and numerous stone sculptures which makes it relaxing and enjoyable for most people.

DIGAMBAR JAIN TEMPLE,
GORA KABAR CEMETERY, DALMIA DHARMSHALA
SITE INTRODUCTION
Name: Doodwawalla Dharamshala
Location: Lat - 20°14’41’’N
Long - 85°50’09’’ E
Elev – 56 ft
Address: Doodwawalla Dharamshala is located on the eastern embankment of Bindusagar tank on the right side of the road leading from Lingaraja temple to Kedar-Gouri lane, Old Town Bhubaneshwar. It is a Dharamshala for the pilgrims commissioned by Late Rai Bahadur Hazari Mal Doodwawalla.
Traditions and Legends: Pilgrims Facility Centre
Ownership: Single, Private
Present care taker of the Dharamshala is Ranjit Batu
Name of the owner: Raj Bahadur Doodwawalla Hazari Mal
Address: Bikaner, Rajasthan
Precise Date: 1929
Source of Information: As recorded in the foundation stone
Subtype: Dharamshala (Pilgrim Rest House)
Typology: Three storeyed building
Present use: Dharamshala
Past used: Used for the same purpose
SIGNIFICANCE:
i) Historic Significance: Late Rai Bahadur Hazari Mal Doodwalla constructed this Dharamshala.
ii) Social significance: It is meant for the dwelling of visitors and pilgrims
iii)Associational significance: Late Rai Bahadur Hazari Mal Doodwawalla
Physical Description
Surrounding: It is surrounded by paddy field in east, Bindusagar tank in west at a distance of 5 meters across the road, Dalmia Dharamshala in North and private residential buildings in south.
Orientation: The Dharamshala is facing towards west. Architectural features (Plan and Elevation) : The rooms are on the three sides of North, South and West of the courtyard. The Dharamshala has a total of fifty rooms. There are 110 flights of steps leading from bottom to the third storey. The eastern and western verandas is provided with eight pilasters. The northern and southern verandas are provided with four pilasters. There are two courtyards in the Dharamshala.
Building Material: Laterite and sand stone
Construction techniques: Ashlar with lime mortar and cement plaster
Architectural style: Rajasthani
Special Features: There is an octagonal well in the Dharamshala which is 80 feet deep and dressed with laterite blocks.
State of preservation: (Good/Fair/Showing signs of deterioration/Advanced): Good
ZONING
ARCHITECTURAL FEATURES
The courtyard:
This acts as a semi-private internal space that provides for various levels of privacy.
A range of activities – sacred thread ceremony, engagement ceremony, annaprasans. The courtyard creates a hierarchy of spaces ranging from open, semi-open to closed. This creates shaded spaces for thermal comfort and induce passive cooling. This space also establishes the scale and proportion of the building through colonnaded rows accentuated with ornamental arches. The courtyard acts as a buffer for the building that induces stack effect and cross ventilation in a dense and congested space around the main complex.
Entrance:
The entrance has intricate ornamental carvings and welcomes the user into the main courtyard. The passage through the main entrance also has seating spaces which acts like a waiting area. The front veranda on the ground floor was initially open and acted as a grand entrance. Now it has been bricked and used as an extension of the rooms and rented for shops.
Arches and Pillars:
The Dharamshala complex comprises of several ornamental arches that are mostly semi-circular. The courtyard is enclosed by a system of arches and pillars on all its four sides. There are 6 types of pillars in the complex.
Balustrade:
The verandas and open corridors are enclosed by ornamental balustrades that also form parapets to the terrace.
Niches:
Ornate niches have been carved into walls at regular intervals. These held diyas in the past for illumination of rooms and corridors.

SOIL PROFILE ANALYSIS:
Hard reddish gravelly soil: ground level to 3m deep soft disintegrated rock (SDR): up to 1.5-2m deep hard laterite bedrock



CLIMATE ANALYSIS
45m above sea level
Tropical climate
Average annual temperature is 27.4 °C
Average annual rainfall is 1505 mm
The warmest month of the year is May, with an average temperature of 31.7 °C
December has the lowest average temperature of the year of 21.9 °C. May- June – hot and humid climate
Rains from Bay of Bengal, South-west monsoon winds
Monsoon from June to September
Average annual rainfall of 1542mm
August is the wettest month, average of 330mm
SWOT ANALYSIS:
STRENGTHS the site is in the periphery of various famous temples Lingaraj temple being one of them attracts pilgrims who come from far away. The location of the Dharamshala being very strategic plays an important role to attract these pilgrims with a scenic view of lake BinduSagar. The Dharamshala is worth documenting architecturally.
WEAKNESSES the Dharamshala initially did not have toilets, guests had to go out of the building for relieving themselves. Later as living standards increased toilet blocks were attached inside the building intruding the East elevation with pipes, punctures, and creepers growing from the walls. To sustain the buildings features modern techniques and materials are used which is diminishing the nature of the building.
OPPORTUNITIES Improvement In The Infrastructure and maintenance Of The Site would help make this Dharamshala a heritage site.

THREATS: due to lack of resources and financial problems the Dharamshala is unable to maintain itself on its own hence it catered to ring ceremonies, annaprasan and other occasions.
PLANNING:
The plan is bilaterally symmetrical and has three zones – public (waiting area), semi-public (courtyard 1) and semi-private (courtyard 2) and private (Toilets, Kitchen space) The courtyard and the colonnaded rows on all sides reduce the isolation on all the rooms. The second floor offers activity spaces with view of the Bindu Sagar lake and the Lingaraj Temple. There is only one staircase (width = 1.1 meters) for vertical circulation with vaulted slabs. The structure is load bearing supported by timber rafters with additional steel I-section purlins.
FIRST FLOOR PLAN
ORIENTATION
The southern side of the courtyard has the lowest elevation – this allows the dominant wind flow to naturally ventilate the main courtyard
SPATIAL ORGANISATION


WWW.NASAINDIA.CO

Three storeyed structure.
Three storeys of intricately carved, indo saracenic style arches adorn the facade. The arches are separated by ornamental balustrades that line the corridor. This outer corridor faces the street giving stunning views of the Bhubaneswar skyline while providing added ventilation to the rooms.



FRONT ELEVATION
ELEVATION AT B
AT B

WWW.NASAINDIA.CO
ELEVATION

WWW.NASAINDIA.CO

HYPOTHESIS
1. The rooms of the Doodwawalla Dharamshala has been furnished with an open concrete cabinet built into the wall for storage purposes. Additionally, the windows in every room are recessed to form a wide ledge to be used for storage.
2. The furniture in these rooms is left to a bare minimum. The storage spaces are built into the walls, thus increasing the available floor area and also reducing overall maintenance charges.
3. The south side of the Dharamshala structure goes only up to the first floor, while the building on all other sides are g+2 structures. This allows ample sunlight to filter into the courtyard, thus uniformly illuminating all the rooms.
4. The wind direction in Bhubaneswar is from the south-west. The south side of the elevation being lower in height allows sufficient air circulation.
5. All rooms lead out into a continuous corridor that eventually opens into the courtyard. This corridor helps to maintain the privacy of the rooms while protecting the rooms from dampness and radiant heat during summer.
6. The arched entrance to the Doodwawalla is bears elaborate carvings of flora and fauna. It is also the largest and most adorned arch in the Dharamshala complex, signifying the importance of a grand entrance.
7. The rooms on the ground floor opened out into a veranda facing the street in the past. However, the veranda has presently been sealed and the space is used for retail or storage purposes.
8. The corridors and rooms are on a higher level from the ground than the courtyard to protect the rooms from rainwater. Furthermore, a stormwater drain runs along the entire length of the courtyard to expel the rainwater from the courtyard.
9. Each floor has a well-planned system of recessed drains running along the corridors. These help in redirecting the rainwater from the corridors to a drainage tank on site which then percolates into the groundwater. This makes for an effective method of groundwater reclamation.
10. Lantern holders fixed at regular intervals in the corridors and rooms signify the use of lanterns for illumination in the past. Diyas were also known to be lit in the decorative niches that are now seen in the walls.
11. A wide ornamental ventilator provides daylight and ventilation to the otherwise dark passage at the end of the corridors.
12. A system of columns and arches act as load bearing elements to support the structure.
13. Two distinct kinds of locking mechanisms can be seen in the windows of the Dharamshala. The older latches comprise of a single piece of wood fixed on a pivot that can be rotated in place to lock the window. However, where this mechanism has been damaged, a newer draw latch has been fixed in its place.
14. A few rooms in the north-east wing of the Dharamshala have presently been altered to bathrooms for residents to satisfy modern needs.



WWW.NASAINDIA.CO
Z516
KARNATA LAW SOCIETY’S GOGTE INSTITUTE OF TECHNOLOGY
Team
Krutika Patil (USEC)
Prajwal Kambalimath (UD)
Ajay B
Anurag D
Aditya A
Komal B
Priyanka p
Shraddha S
Swarali A
Vaishnavi P
Vrundha T
Yash P
Arunkumar
Amulya A
Manjunath k
Srushti H
Aditya T
Deepa H
Goutami N
Sameera khan
Pratik S
Sneha O
Rubeena G
Shivani C
Kanti M
Shrivatsa J

The impact of the sanctity at a regional or global level is a result of the secondary spaces evolved around it. As the street was formed organically, it had its values framed based on the activities and purposes occurring on a daily basis. The local people and pilgrims create an ambience in and around the complex which likewise is a result of urban development of that region. Through time, these sacred spaces demanded efforts for handling the responsibilities and renewing the traditions which require new spaces with reduced amount of sacredness and importance, making it semi - sacred. Thus this impact of this scared place at a regional and global level demands for infrastructure that preserves traditions and rituals which help preach values and facilitate the visitors.
THE JOURNEY FROM A STREET SHRINE TO A TEMPLE COMPLEX
DEMANDING INFRASTRUCTURE
Sacred buildings had their own purpose and importance and stayed independent of any other structure. Through time all the religious activities increased and so did the requirements of the people. As an ancillary support to the sacred building , semi-sacred structures were built around the holy place which helped them by providing contributory roles and associated services. The semi-sacred spaces were an active space for imparting knowledge on the young minds of that period. These structures gave shelter, food and communal spaces for Priests taking up the responsibilities of the sacred buildings.
WWW.NASAINDIA.CO
INTRODUCTION TO SITE
Udupi Shri Krishna Mutt in Karnataka state is a magnificent religious, economic and socio-cultural entity. The Temple was established 1500 years ago while the Mutts have 300 years of history. Shri Krishna Mutt and the astha Mutts here are intimately associated. These Mutts have never been looked upon as a place of worship with a commercial bias. Education and enlightenment receive greater emphasis than economic gain in the functioning of the Udupi Mutt.
Shri Krishna Mutt, associated and assisted by the eight Mutts of Udupi is a potential director for a host of employees, a centre of Vedic and secular learning, an organization with genuine social concern, apart from being an medium of relief to the poor. It encourages education, art, and culture besides performing various charitable activities. The development and growth of the Udupi region are closely associated with Shri Krishna Mutt in one way or the other. It is a powerful social and economic organization. The mode of living of the people of the Udupi region is greatly influenced by the shrine of Shri Krishna, its rituals and other socio-economic activities.
“THE ACTION THAT TRANSFORMS THE ACT OF
NATURE INTO THE FUNCTION OF ITS SOCIETY AND THE STORY OF ITS ARCHITECTURE IS THE TALE OF THESE TRANSFORMATIONS.”

COMPONENTS OF SEMI SACRED
BUILT SPACES
IMPORTANCE OF WATER :
While we universally recognise the significance of water from human life, each culture also has it’s own way of symbolising that value. As seen among all the religious and faiths, water plays an important role in rituals and practices.
DEEPSTHAMB:
To light a candle or fire, both have the same symbolic meaning and originated in the form of sympathetic magic, not only illuminating the dark nights but acting as a light, guiding the sun back to us.
ROLE OF STREETS:
The streets in and around the religious precinct play an important role in adding more value to the holy place. It serves as a processional street, a place to celebrate festivals, place for social gatherings and also to some extent helps the flower vendors and other people to make capital.

With the increase in number of devotees visiting the scared place, there comes a need to make space for their needs and activities. Thus the Mutts, Convents, Monasteries and similar other semisacred spaces of different faiths and religions come into picture.
GOPURAM:
The Gopurams act as a threshold to enter a divine place from the chaotic outside world. To celebrate this feeling of peace, the Gopuram is accentuated by ornamenting with floral and other abstract patterns.
FLOWERS:
Flower is a symbol of strength, purity and generosity. Flowers such as plumeria, star jasmine, roses known for their fragrance are seemed to be used in religious places of all the faiths to create an aura of sacredness.

INTRODUCTION TO MUTTS
Generally, the earliest case on record of a university scholarship is what a Mutt is. It is the part of the studies that comes from our ancient history. Ever since the beginnings of consciousness, a living creature would've understood that something physical or something that's materialistic isn't the only fundamental part of existence or reality. In this case,as of the existence of these Mutts, there are these external considerations and purposes that provoke the spiritual realization in an individual. As an institutionalized structure to help sustain and maintain its daily operation, the experiences created alongside its purpose go beyond the tangible world.
Likewise, these Mutts consist of wooden features and lofty walls and other such features that combine to create a strong fundamental mood that is powerful enough to affect us, which possesses the qualities of work of art. The personalities of these built forms are shaped by their past events that have successfully become to be the masters of knowledge and services repository.
JUSTIFICATION FOR SITE SELECTION
WWW.NASAINDIA.CO
The Mutts were originally founded to impart education to disciples and to serve the travellers, ascetics, and beggars. One such great example of Mutts is seen in the Shri Krishna temple Udupi. The Udupi Shri Krishna Mutt is an important religious centre for the Hindus and is placed among the principle pilgrimage sites in India.
It is a conspicuous centre of Dvaita Vedanta Hindu philosophy that believes lord Vishnu (the supreme soul) and the individual existential realities. It resembles a living ashram a holy place for daily devotion and living. The Krishna Mutt is known throughout the world for its religious customs, traditions and learning in Dvaita philosophy.
It is the centre of Dasa Sahitya (a form of literature that originated in Udupi). The reason to choose the site is its culture which is seen to be adopted by the people of different backgrounds. It is also observed that there is no social discrimination and most importantly the Mutts act as a connection between the Sacred and Civic.
Among the eight Mutts , the Krishnapur Mutt and the Shiroor Mutt are chosen to be documented due to its originality in existence. The other six Mutts have gone through renovations in a contemporary way where the materials used distort the harmony of these structures. Our motive of documenting these two Muttts is to highlight the semi sacred, conveying the message to preserve the rich in heritage, traditional and vernacular architecture of these unacknowledged structures.


HISTORY - RELEVATION TO KANAKANA KINDI
Looking back at the history and traditions of Udupi, all the major saints of Dasa Tradition and the local people were devotees of Lord Krishna. However, Udupi has its own belief towards the story of Kanaka Dasa.Based on ancient records, the facts of this incident run like this.
Kanaka Dasa was a great devotee of Udupi Shri Krishna. Once he came on a pilgrimage to Udupi. Shri Vadiraja Swamiji, who knew the greatness of Kanaka Dasa, arranged for his stay in a hut in Car Street only and the place was opposite to Krishna Temple. Kanaka Dasa used to sing devotedly in praise of the Lord tuning his Tanmbura and Tala. Surely the Krishna temple was directly in front of him. But its western wall was blocking the view of the Lord to Kanaka. His physical eyes were not able to see Krishna but none could stop him from seeing the Lord through his inner eyes. Kanaka's inner eyes were open to

The bliss of uninterrupted Darshana of Krishna. Thus several days passed. Kanaka Dasa was getting Darshana of Krishan through his inner eyes. One night it seems an earthquake of minor scale occurred in Udupi. The next morning people were amazed to see small cracks on the walls of Chandrashala which was directly opposite to Kanak Dasa’s hut. Through the crack, Kanaka Dasa could see the lord through his physical eyes also.
Sri Vadiraja swami, who knew the greatness of Kanaka, instead of closing the crack on the wall, set a window to commemorate this divine event. He called it as Kanakana kindi as Lord Krishna gave darshan to kanaka through this window.
CULTURE AND COMMUNITY
Although known as temple town Udupi’s cultural influence goes far beyond that. Many forms of folk dance, dance dramas, religious festivals, and art have evolved out of here and are often on display in the city during festivals. Some of the dance forms that have been evolved are Yakshagana Karangolu, Bhuta Kola, Aati kalenja, Yakshagana and special form of snake worship called Nagardhane. Rathabeedhi Geleyaru and Kalavrinda are local non-profit organizations founded to encourage creative pursuits, especially those that keep alive the traditions of the region.
Wooden crafts, God peethas of silver and wood and copper materials are famous here. The residents celebrate festivals such as Makara Sankranti, nagara Panchami, Krishna Janmashtami, Deepavali, eid-al-Adha, eid-al-Fitr, and Christmas.
One of the most celebrated festivals is the Paryaya that occurs every two years which is celebrated in the famous Krishna Mutt.

CLIMATE
The Udupi lies on 9m above sea level the climate here is tropical. There is significant rainfall in most months of the year. The short dry season has little effect on the overall climate. In Udupi, the average annual temperature is 27.2 degree Celsius. Average Precipitation being 4360 mm. April is the warmest month of the year. The temperature in April averages 29.4 degrees Celsius.


PHASE 1
Initially, in the first phase, the annanteshwar and chandramoleshwar temple were constructed with a natural sarovar on it's Eastern side.

PHASE 3
The third phase tells us about the wooden murti of Lord Krishna which was established along side the sarovar by Madhwacharya.
SITE FEATURES

CAR STREET

PHASE 2
In this phase, Madhwacharya saved the life of a sailor who had lost his way in the sea and thus received a doll of sandalwood (gopichandan) as gratitude from the sailor. Few days later Madhwacharya discovered a wooden murti of Lord Krishna enclosed in the sandalwood.

PHASE 4

In this phase Madhwacharya appointed eight of his shishyas ( students ) to establish the murtis in eight different parts of Karnataka.
A Lane inside the temple complex surrounded by the sacred and semi sacred buildings, which act as a processional path during the festivals where the people experience the essence of the rathas.
The Gopuram acts as a threshold to enter a divine place from the chaotic outside world.
TOPOGRAPHY


MADHWA SAROVAR
A waterbody surrounded by bhoojnashala and firewood chariot. Acharyas bathe in the holy water before the commencement of puja.

THE ASTHA MUTTS

Dating back to the history of The Temple complex, the Ananteshwar and the Chandramoleshwar Temple were built with a natural sarovar on its eastern side. These structures were flanked with rich vegetation and a very few built structures.

A few years later, the Krishna temple (Mutt) was established alongside the Anateshwar and the Chandramoleshwar Temple. During this period of time, built spaces including residential and commercial complexes grew organically around the sarovar thus reducing the volume of the sarovar.

During this phase the foundation of astha Mutts were laid in a way which formed the car street enclosed in the temple complex.
LEGENDS
1.
2. Ananteshwar Temple
3. Chandramoleshwar Temple
4. Sri
5.
6.
7.
8.
9.
11.
12.

Madhwa Sarowar
Krishna Mutt
Kaniyur Mutt
Sode Vadiraj Mutt
Puttige Mutt
Adamaru Mutt
Pejavara Mutt
10. Palimaru Mutt
Krishnapura Mutt
Shirooru Mutt
INTRODUCTION TO THE DOCUMENTED MUTTS
The vernacular architecture of the mutts the vernacular aspects include the huge ornated columns 50cm. Diameter made of teak wood carved with floral patterns standing strong since 300 years, supporting the whole structure. Red oxide flooring with the purpose of keeping surface cooler considering the city’s climate. Locally available laterite stones used to construct the walls of the building to keep the interiors cool. Sloping roof with mangalore tiles catering to the rainy season to drain the water into the central courtyard. Thus providing comfort to the people residing in the mutt.
INTODUCTION TO SHIROOR MUTT
Shiroor mutt is located on the northern side of the car street beside Krishnapura mutt. As it is paired with sode Vadiraj mutt, after the death of the swamiji of the Sode mutt, the administration and the rituals of Shiroor mutt are been looked upon by the Sode Vadiraj mutt. It is due to this system of dualism which has the significance of helping its other pair when in need. The original mutt is located in the Shiroor village of Karnataka. This mutt has been offered with a Vithala Panduranga idol which is worshipped by the main Thirtha of the mutt only. The goshala, preaching halls, kitchen, bhojnalay, Naga gudi, and other culture related spaces were built as their activities demanded them.
INTRODUCTION TO KRISHNA
Located on the northern side of the car street, is the Krishnapura mutt known for its simplified façade and mildly ornamented interior. Not just architecturally elegant, it is also known for its rituals, culture and parampara’s which are descended to each pontiff generation.
Being paired with Puttige Mutt the rituals and the enchantments were given to the mutts by Madhavacharya are similar. The mutt consists of two storeys , the ground floor consists of the shrine in the central courtyard with a passage around it flanked by rooms on the exterior. This floor also has storage spaces to store food items. The first floor has rooms to accomodate students and a small library to keep sacred books. This traditional semi sacred building with its vernacular aspects is beautiful in its own way.

COURTYARD
SLOPING ROOF
LAYERS
LAYER 1 (Original): Consists of ground floor with private and semi private spaces. Material used : laterite stone, lime mortar, wood and red oxide flooring.
LAYER 2: Consists of ground floor with addition of the utility spaces and a secondary courtyard.
Material used : laterite stone, lime mortar, wood and red oxide flooring.
LAYER 3: Addition of first floor consisting of private rooms
Material used : laterite stone, cement mortar, and granite flooring.
GROUND FLOOR PLAN
LAYER 4: Addition of front facade for aesthetic purpose
Material used : concrete, cement mortar, tinted glass.
ZONING

Courtyard
Store Room
Bhojanaalay
Goshala
Rear Entrance
ANALYSIS OF SHIROOR MUTT
The mutt stands gracefully with the facade part by columns on the ground floor supporting a balcony with a screen of arches on the upper floor. The entrance is led by a series of 4 steps with verandah on either sides. As we enter into the mutt one can see the central courtyard with the main shrine at its centre enclosed by corridoors. These corridoors are further flanked by graineries and small rooms on the eastern and western sides to accomodate students of their community . Moving towards the northern side is another small courtyard which homes another small shrine. Around this courtyard is the kitchen and a goushala on the eastern side, and graineries on the other two sides. The upper floor has rooms to accomodate few more students. This walls of the mutt are constructed of locally available laterite stones plastered with cement. The ornated columns and doors are made of teakwood detailed with floral patterns. The sloping roof is covered with mangalore tiles. The hot and humid climate of this area is the reason for the wooden windows to be smaller in size.
ARCHITECTURAL FEATURES
FIRST FLOOR PLAN
Wooden bracket sculpted depicting an elephant
Unfloding a veil off his mouth
Square based wooden column with intricately carved floral patterns
SECTION B-B’

Window With Tinted Glass
Wooden Sculpted Bracket
SECTIONAL VIEW

The balcony on the first floor accomodates the students overlooking the central courtyard which homes the sacred shrine.
A secondary courtyard with a small shrine flanked by utility spaces.
The mantapa space around the shrine in the mutt where they preach classical music to the devotees.

A room for social and political discussion owned by the main swamiji.
The traditioal kitchen setup with brick stove (chula) and manmade mud and wooden utensils.
LAYERS
LAYER 1 (Original): Consists of ground floor with private and semi private spaces.
Material used : laterite stone, lime mortar, wood and red oxide flooring.
LAYER 2: Consists of ground floor with addition of the utility spaces and a secondary courtyard and goshala.
Material used : laterite stone, lime mortar, wood and red oxide flooring.
LAYER 3: Addition of first floor consisting of private rooms and a library.
Material used : laterite stone, cement mortar and granite flooring.


GROUND FLOOR PLAN
ANALYSIS:
Krishnapur Mutt is known for its simplified facade and mildly ornamented interiors. It has a blend of architectural features. Looking at the facade most interesting element is its entrance door, with shorter height than usual door. As we enter the Mutt, a wooden wide screen with small and intricate detail partition is seen. There are huge columns which are standing still since four hundred years supporting the whole structure. The floorings of the Mutt are done with red oxide for the purpose of keepig surface cooler compared to the city’s climate. Mutt consists of central courtyard with main shrine at its centre enclosed by corridoors. These corridoors are surrounded by small room on the either sides of the muth. Moving towards northern side, there is another small courtyard which consists of a small shrine. The courtyard is surrounded by kitchen, goshala and graneries.
ARCHITECTURAL FEATURES

RAILING:
Wooden railing with rhythmic abstract floral pattern.
The upper floor of the Mutt consists of several rooms for Swami’s and students. The Mutt also consists of library which withholds several Vedas, manuscripts and books.The walls of the Mutt are made up of laterite stone plastered with lime mortar. The columns and doors are made of teak wood and ornamented with floral patterns. And the roof of the Mutt is covered with mangalore tiles.
FIRST FLOOR PLAN
PARTITION SCREEN:
Perforated wooden latticed screens with intricately carved floral patterns
MAIN DOOR:
Small in height, double wooden column door with exquisite floral carvings
BRACKET:
A support member with simple curved wooden body
COLUMN:
Simple square based geometrically modulated wooden column
FRONT ELEVATION
The ritual of bathing from the holy water of the semi sacred well before commencing the pooja.
Goshala- a semi sacred space in the temple complex to shelter the holy cow.

Worshipping lord brahma who is believed to reside in the holiest tulsi plant.
The dwarf and narrow opening to the mutt, to avoid the animals from entering the mutt
SECTIONAL VIEW
SECTION A-A”
The semi-sacred mantapa where the swami recites and preaches the holy scirptures.


This study focuses on the event of Shri Vadiraj Teertha’s idea of retaining culture started by Shri Madhvacharya. The temple complex is composed of eight Mutts which are exceptional examples of wooden architecture in Karnataka. Through time this temple complex has evolved from just a sacred space into a space with different arrangements of sacred and semi-sacred entities. For the longer existence of the structure, layers or physical restoration have been made which is a cause of attraction for tourists or pilgrims. The architecture of the main temple is superior and of much detail than the Mutts or any other semi-sacred building.
The bearer of holiness, the seeker of faith,

Everything around me is newer to date. Been through everything, Seen them all Almighty himself has framed it all.
Sacred structure, what I am, Gold and timber, what I wear. Uniqueness would be my tag, A reputation being the price.
For the world was built in order, And atoms marched in tune. It's a longer way, None can even assume.
Pooja’s and Aarthi’s befall in me, Bright lights and features highlighted you see.
Then you were shaped,You looked like my twin.
Thou and thy purpose, Admirable and distinct.
URBANISATION
Losing of educational essence in the growing urban context
Ever wonder how would the sacred function in the absence of its right hand ?!
REDUCING
IMPORTANCE
Ignorance of semi sacred built forms as they are secondaryPilgrims usually prefer getting blessed in temples rather than visiting the mutts with no exact purpose. Thus the number of people going to the mutts decreases. considering these priorities the semi sacred structures remain ignored.
Even though the semi sacred buildings have existed since a long time , its actual purpose has been unaware of. The motive of the mutt is to impart knowledge of our culture and pass it on to the generations to come .The vedic theories have answers to the most asked questions and lessons on the way of living life. Thus making it important for us to acknowledge it and understand its value.
Greetings thee semi-sacred, I respect your deeds, Cause you've handled my activities and coached away my wisdom. Accomplished the capable that enhanced the religion. Somewhere, a feeling emerged, Neglection wasn't what I deserved. Confusion, where'd I go wrong.
WWW.NASAINDIA.CO
Civic took to charge and gained the credit.
But I'm sure this is where you belong.
Formerly, Mutts were a centre of educational institutions where Hindu students attained Vedic knowledge and enhanced their religious cultures. These gurukuls were built on their original birth place where the traditions are rooted deep down which helps the tree of knowledge stand strong. Whereas the present upcoming institutes which intend to teach in a more contemporary context in some way lack in having the traditional essence which inversely hampers the interest of the student.
CONSERVATION
Restoration at priority over renovationThe Mutts in Shri Krishna temple undergo through facade renovations on a yearly basis whereas the culture is maintained throughout. Since the existence of these Mutts, the traditions and the values have been retained till now, while we find changes in its appearance which has no purpose architecturally except aesthetic reasons. They are advantaged by the donations they gain by
this process. The materials and methods used aren’t leading to an conservative architectural technique .
Preserving of the tradition since the existence of these structures from the beginning, the traditions that began were created with a purpose that was meant to be continued for generations to come. These traditions are still being followed at a larger scale which gave this region its own identity.
The culture and traditions of the region’s past are being preserved through books in the libraries of these mutts. They support the system of continuing and conserving the antiquity that were created and to maintain it in a formal way. Similarly, measures have to be taken the construction techinques used for the establishment of these mutts happened in a non-parallel way which changed the vernacularity of these built forms.

A change in the typology of the built form from sacred to civic - Erstwhile, the built forms had unique and vernacular designs responding to the climate and context of the site. Lately these structures went through renovations using more contemporary materials destructing the harmony of the building as time called for a rapid and efficient construction techniques. Thus the current built forms have evolved in different styles with diminishing individual identity.


WWW.NASAINDIA.CO
WWW.NASAINDIA.CO
Team
Shawn Itty Jacob (USEC)
Samil Baby (UD)
Mohamed Zain
Athul K
Sreelakshmi K K
Mary Elizabeth Joe
The manifestation of an exceptional amalgam intertwining the social and devotional life of the people to a point of interdependency seen like in none other, the ambalappuzha sree krishna swamy temple complex subsists as a forsaken testimonial to a bygone prosperous era. A paradigm of obscure modus operandi of indian architectural heritage, the precinct is an archetype of the discursive exhibition of faith and fidelity. Endowed with capacious expedients of cultural, functional and communal connotation, the edifice stands as a focal point preserving traditions both substantially and spiritually.

Veterans of the colossal 1503 cochincalicut war sought refuge on the shores of thekkankur, ensuing a fatal shipwreck.

The natives gratuitously gave away their land, acquiescing the virtuous cause and in a moment of religious piety, the brahmin king adopted the title ‘deva narayanan’.
The debilitated soldiers beseeched an impoverished brahmin for help, who bestowed them with his most cherished asset, an exquisite ring; a remnant of his prosperous days.
The brahmin king, a devout adherent of the lord, built a nalukettu alongside the temple for selfless servitude. Similarly, the shantikar madom was devised to house the shantis; adjoint to it, the vicharippu maalika accommodated the workers.
Upon losing out on a wager to lord krishna, who was disguised as a sage, the brahmin king was bound to offer rice grains to the devotees in the form of paalpayasam (delicacy made of rice).
Impressed with the destitute’s benignity, the king proffered his sword to the brahmin; vouchsafing him all the land he could annex with it, instating him as the overlord of the lands.
In pursuit to restore the kingdom to its former glory, the brahmin king under vilumangalaswami’s counsel, constructed a temple at ambalapuzha; where the presence of lord krishna was felt.
Intermitten raids to subdue purrakkad by the descendant of the brahmin king, led the sree krishna swami temple to its ruin; prompting the valyamadom family to flee with the deity.
This episode prompted the development of structures like the panchasara maalika and paayasa kottaram to store the sugar and paayasam respectively.
This episode prompted the development of structures like the panchasara maalika and paayasa kottaram to store the sugar and paayasam respectively.

The sree krishna swami temple complex is a shrine located in the coastal town of ambalapuzha, 14 Kms south of alappuzha city.
CLIMATE
Ambalapuzha experiences a warm, humid climate with
Average temperature
Average wind speed
Average humidity
Solar irradiance
Average rainfall


The ambalapuzha kannipadom thodu (canal) served as the major trade and transportation route during olden times. The waterway gradually lost its significance, following the emergence of modern transportation services.
ORIENTATION
The temple is aligned along the east-west direction following the principles of Vaastu Shastra. The ancillary structures which operate as an interface between the community and the sacred core are placed around the temple on the North, South and West.

DEMOGRAPHIC PROFILE
The total population of ambalapuzha consists of 2,40,991 people, whose religious composition is as follows:


Pilgrimage destination for thousands who seek the blessings of the lord.
A school established by P.N. Paniker, father of the kerala library movement.

Formerly administrated by the temple, it is presently under the government.
WIND DIRECTION
A milestone of the buddhist legacy in ambalapuzha.
The local winds are directed from southwest to northeast, due to ITS proximity TO the sea.

SOIL PROFILE
A commemoration for the pioneer of the performing art, thullal.
HYDROLOGY

The water table in Ambalapuzha extends to a depth of 2.26 metres below ground level (mbgl).
The soil profile of the site follows the regional soil series and has a layer of acidic silt.

Consists of a koothambalam for staging traditional artforms.
Habitation of melshanti and keezhshanti (priests).
Preparation space for the velakali performers.
Space devised for providing devotees with temple meals.
Habitation of the workers associated with the temple.
Preparation and storage of paayasam.
ENNAKALATHATTU
Requisition space for the devotees.
Storage of sugar for preparation of paayasam.
Storage of polas (banana sheath) for rice preparation.
1. Sree Krishna Swami Temple 2. P.N. Paniker Memorial School 3. Kunjan Nambiar Memorial
4. Ambalapuzha High School 5. Karumadi Temple
NADAKASHALA
SHANTIKAR MADOM
UDUTHKETTU MAALIKA
OOTUPURA
VICHARIPPU MAALIKA AALIKA
PAYASAPURA
PANCHASARA MAALIKA
POLAPURA

STRENGTH
The locality is famous for being the birthplace of numerous performing arts and has distinguished itself as an excellent cultural hotspot.
PLANNING PRINCIPLES
BASED ON VAASTU SHASTRA
The site has been demarcated into four veedhis in order to avoid congestion: ‘pishashveedhi’ , the setback zone; ‘manushyaveedhi’ , the construction and circulation zone; ‘devaveedhi’, the sacred temple zone and finally ‘brahmaveedhi’, which is the focal point of all veedhis.
WEAKNESS
When the railroad to kottayam was established, alappuzha was deprived of its water routes and gradually lost significance as a commercial hub.

VEGETATION
The vegetative cover of the site includes trees such as PEEPAL, Mango and Chempakam which enhances the overall sanctity and acts as a buffer zone between the compound and the adjacent streets.
TOPOGRAPHY
The site is relatively flat with minimum contour. The drainage channels lead to the north EASTern side of the site; flowing out into the Kannipadom thodu and finally merging onto the Pamba river.
WWW.NASAINDIA.CO
VEGETATION
The three temple ponds within the site facilitate greater thermal comfort. Moreover, the lush vegetative cover in the southern and western parts of the site help in subduing the heat.
OPPORTUNITY
The temple complex is a treasure trove of traditional knowledge. Organising expositions about the life and customs of the natives is a possibility to be explored.
The temple is oriented along the eastwest axis; consequently the first and last rays of the sun fall on the diety. The vicharippu malika, placed at ‘nirthicon’ has large walls and scarce openings compared to the walls at ‘eeshanacon’; effectively trapping the energy that flows towards it.

THREAT
Neglect and improper maintenance of the ancillary structures within the temple complex can result in their dilapidation with the passage of time.

The large amount of sand in the northwest part of the site, creates a low pressure zone; perpetuating wind flow from the high pressure region over the extensive east pond.
SITE SUMMARY
The site has an area of 8 acres and 20 cents with sree krishna swami temple forming the nucleus, around which the following ancillary structures are placed.

The massive gopuram spanning the entrance, facilitates the entry of a large crowd and at the same time, increases visibility from a distance.
ZONING

Kalathattu and uduthukettu maalika are placed at ‘vayucon’ (presence of adhithi devan) which is suitable for guest houses due to prominent wind patterns.
INTANGIBLE ELEMENTS

The union of mango and peepal trees is believed to be the ‘paramatma’ (highest of souls). Thus, devotees circumambulate around the trees to receive blessings from it.
The ootupura and payasapura are placed at ‘eeshanacon’; despite ‘agnicon’ being the apt position as per vaasthu, to prevent fires in the kitchen due to the local winds.

‘Thalikallu’ is a stone marker distinguishing the sacred ring from other areas. Instead of imposing itself as a visual barrier, it reminds the devotees of the holy precinct they set foot into.

HISTORIC POINTERS

‘Bhoodhams’(spirits) present at the four corners of the temple are believed to protect it. In return four sculptures, assumed to embody the ‘bhoodhams’, are offered food.





The year 1868, inscribed on the rooftiles, specifies the manufacturing year of these mangalore tiles from quilon, which were among the first batches to replace the pre existing thatch.

Cleat wiring with wooden casing describes the adaptability to energy sources and is a significant indicator of the structures’ evolution with the passage of time.

One of the earliest prototype of a door lock, present within the structures of the complex, testifies the existence of priliminary locking systems.
SCHEMATIC SECTION SHOWING ACTIVITY IN THE OOTUPURA

Hindus believe that in order to attain ‘moksha’ (liberation), charity to the less fortunate is essential. Annadanam is provided to all people, regardless of caste or creed, during the festive and pilgrimage seasons.
Owing to the faith, a necessity for an ancillary structure that fulfilled the functions of distribution and consumption arose; leading to the construction of the ootupura.
PAALPAYASAM (SOUTH INDIAN DELICACY MADE OF RICE) ‘NASCENCY OF THE AMBALAPUZHA ‘PAALPAYASAM’
VELAKALI
A MAGNIFICIENT DISPLAY OF MILITARY SKILLS

Velakali, a traditional martial art and dance form, is a transcription of the kurukshetra war from the mahabharata. The performance was supervised by mathoor panikar and velloor.
NADAKASHALA
The ootupura consists of a long hall with a high roof to facilitate proper ventilation. An enticing meal along with the paayasam is served to almost 800 people, at the same time.
SCHEMATIC SECTION SHOWING ACTIVITY IN PAYASAPURA
The ambalapuzha king was once challenged to a game of ‘chathurangam’ (chess) by lord krishna, disguised as a sage. Failure in the game, meant the king having to place rice grains on each square,in a geometric progression.

Upon accepting defeat, the king owed the sage an immeasurable amount of grain, beyond his hold. On revealing his true form, lord krishna asked the king to repay his debt, by serving it in the form of ‘paalpayasam’ in the temple.
One of the two types of velakali, is the kulathil velakali. The performers stage the artform on one side of the pond, facing the deity placed on the opposite side.
The other type of velakali, is the thirumunbil velakali. It is performed in the presence of the deity, mount over an elephant; organised after the evening pooja.
WHERE ART MEETS RELIGION MYTH
Nadakashala is a point of confluence for the natives, where sacred artforms were staged and vedic scriptures conversed. Rituals conducted here were designed to propitiate the gods.

SOUND WAVES REFLECTING FROM CONVEX CARVINGS WWW.NASAINDIA.CO
Thus, ambalapuzha paalpayasam was born, owing to the commitment the king showed god. His profession of faith resulted in the creation of ‘payasapura’ and ‘panchasarapura’ (where sugar is stored), bestowing a significant faith-based purpose.

ACTIVITY SECTION OF NADAKASHALA
PLANNING ASPECTS

ACOUSTICS

Convex carvings on the ceiling of the koothumandapam diverge and direct the sound waves at different angles, increasing the reverberation time, and as a result sound spans a larger audience.
Simultaneously, the sound waves get deflected into the voids between the rafters of the roofing system , thus reducing distortions and sound focii.
The construction of the koothambalam was interrupted several times, due to lord krishna’s discontent with it’s design; this was overcome only by adopting the rectangular vallappura roof of kayamkulam.
NEPATHYA

Compact backstage space reserved for the performers,with intricate trellis work.
KOOTHU MANDAPAM
A performance space demarcated with granite bands on all three sides and has a ceiling with detailed embellishments on top.
PREKSHAGRAHA

A seating space for the spectator. Nadakashala sadhya is conducted here.
SOCIO-CULTURAL INTERACTION
the cultural harmony of the region encourages the natives to enjoy the performances in the nadakashala, thus making it stand out from a conventional koothambalam.
ENNAKKALATHATTU
A CULTURAL CONCOURSE
A hub of social interaction and a space for relaxation, the ‘kalathattu’ is a temporary structure often found on paddy fields and in temple premises for devotees.
RELIGIOUS HARMONY
Oil used in the temple complex is donated to the brahmins, by a muslim family. This practice eventually led to popularising the ‘kalathattu’ as ‘ennakkalathattu’ (’enna’ meaning oil).

CIVIC NATURE
A blend of the civic and sacred, this structure provides an interim calmness to enervated devotees and a platform for social interaction, regardless of denomination.

NASCENCY OF THULLAL
ORIGIN
The kalathattu originated on the paddy fields of southern kerala as a place of solace for weary travellers and pilgrims. This civic structure was adopted into the temple complex, which was once surrounded by paddy fields.

THERMAL COMFORT
Due to heat moderation, the teakwood flooring provides tranquility for the weary pilgrims, seated on the floor.
Thatch roof is a natural insulator due to the air pockets within; consequently it maintains a cool environment inside.
CUSTOMS AND TRADITIONS
The age old tradition of serving the percussionists, the ‘nadakashala sadhya’ on the tenth day of the ambalapuzha utsavam, continues even today. Chakyarkoothu and kathakali are performed during temple festivals.
The onset of the festive season, in the malayalam month of meenam, is marked by replacing the thatch roof ( woven in traditional style) of the kalathattu with a new one. This is done 41 days prior to the commencement of the festival.

The gable ensures that the hot air, produced within, is expelled out of the structure due to stack effect.



ACTIVITY SECTION OF ENNAKKALATHATTU
KOOTHU
Koothu is a solo narrative theatrical art performed in temples. It is of socio religious nature and is interspersed with mime and comic interludes. Excerpts from great epics are narrated in a satirical form.
THULLAL
Introduced in the eighteenth century by kunjan nambiar, thullal is a dance and poetic performance which parodied prevalent socio political questions and regional prejudices.


SYMBOLISM
A blend of the civic and sacred, this structure provides an interim calmness to enervated devotees and a platform for social interaction, regardless of denomination.

The nadakashala staged chakyarkoothu performances, by the chakyar, with the nambiar playing the mizhavu (a musical instrument).
Abruptly, the nambiar fell asleep while playing the mizhavu, prompting the infuriated chakyar to taunt him.
Humiliated by the chakyar, the nambiar walked out of the nadakashala, determined not to be undermined by him.
The next day the nambiar performed his novelty, the sheethangan thullal, attracting a huge audience.
The enraged chakkyar complained to the king,but the king ruled in favour of the nambiar, permitting his dance form and thullal was born.
ORIGIN
The ‘chuttumaalika’ (FORT), unlike a chuttumathil’ (boundary wall), links the temple with its profane context; the structures within it assist the shrine and the people serving it, alike.
SHANTIKAR MADOM
SACRED RELATIONSHIP
The structure functions as both, an administrative centre as well as a portal for the devotees into the complex; it operates as an interface between the community and the divine.
HISTORY
Inspired from the gopurams of traditional kerala architecture, the structure gradually procured an authoritative character, considering its position within the complex and its accessibility.
The shantikars (priests) who safeguard the temple and propitiate the deities are obligated to remain chaste for their duration of service. The shantikar madom is where the shantis (priests) are housed; fulfillment of the service period is connotated by designating another shanti.

Religious scriptures and temple rituals were taught in the vedapadanashala (long study hall), adjacent to the head priest’s room, ascertaining supervision.

The room occupied by the head priest has a window, opening to the ‘govani ’(stairs), utilised for inspection.

The pond has been demarcated into two; one for the personal use of the ‘shantis’(priests) and the other, for the public.


Council meetings were organised in intricately embellished rooms and in order to maintain confidentiality, these rooms were isolated from the general public.

Proximity of the pond to the kitchen, helps preserve its sanctity and minimises public access.
The connection room between the upper floors of the shantikar madom and the vicharippu maalika, facilitates easy access into the main council hall.


GROUND
VICHARIPPU MAALIKA
The ‘chuttumaalika’ (FORT), unlike a chuttumathil’ (BOUNDARY WALL), links the temple with its profane context; the structures within it assist the shrine and the people serving it, alike.

PECULIAR FEATURES
The vicharippu maalika shelters the exhausted workers and has a south ‘nada’(gate) for their accessibility. Additionally, it functions as an immediate waiting area for the devotees.
Wooden trelis work around the structure facilitates airflow keeping the “polas“ (banana sheath) fresh.
The wooden trellis spanning the first floor provides an unobstructed vision of the temple and also lets in diffused light. The overhanging eaves offer privacy to those viewing from inside.
TIME-HONOURED PRACTICES
‘Anubhoghangal’ which were rewards granted by the king, consisted of rice bound within a ‘Pola’ (banana sheath) and carefully preserved for future use. eaves offer privacy to those viewing from inside.


SECTIONAL VIEW SHOWING ACTIVITY
DISTINCTIVE ATTRIBUTES
The north eastern part of the polapura has a kitchen for preparing food for the workers in the vichaarippu maalika. An adjoining well provides water for washing the ‘polas’.


A store room provided within the vicharippu maalika accomodates the needs of the workers serving the temple complex.
CLIMATIC RESPONSIVENESS

Attic windows facilitate proper ventilation and help remove heat entrapped within the building.

Axial positioning of windows facilitate cross ventilation, thus enhancing thermal comfort.

Expulsion of warm air through the gable vents of the polapura helps maintain the thermal balance of the structure.
Wind flowing from the high pressure zone of the pond through the polapura, cools the entire structure.

The verandah and the low hanging eaves throughout the structure, protect the exterior walls from solar radiation and driving rain, keeping the interiors cool.


WWW.NASAINDIA.CO

SECTION DD’
SECTION EE’

WWW.NASAINDIA.CO
SECTION BB’
SECTION AA’



SOUTH FACING ELEVATION OF SHANTHIKAR MADOM
SECTION CC’
SECTION KK’
EAST FACING ELEVATION OF KOLAPURA
NORTH FACING ELEVATION OF ENNAKALATHATTU PLAN OF ENNAKALATHATTU AT +175CM
NORTH FACING ELEVATION OF NADAKASHALA
WWW.NASAINDIA.CO

ROOF PLAN OF ENNAKALATHATTU
SECTION GG’
SECTION GG’
DETAILED JOINERY OF RADIATING RAFTER
In radiating rafter systems,the hip rafters are placed over the ridge while the radiating rafters taper off to the side of the ridge.

ROOF PLAN OF SHANTIKAR MADOM
DETAILED JOINERY OF THULAN
the thulan ,attached to the wall plates by notch joint,maintains the distance between the wall plates and stabilises the roof.
DETAILED JOINERY OF GABLE
LENGTHENING JOINERY IN RAFTERS
A rafter made from two pieces of wood are locked in using dowels.
LENGTHENING JOINT IN
WALL PLATES. Wall plates are connected with iron plates on both sides,secured by screw bolts.
Iron bars were introduced to strengthen the function of the thulans, during renovations, due to its high tensile strength and durability.
OBLIQUE JOINT
The wooden member connecting the wall plate and arudam cuts the rafter obliquely.
STAGGERED VIEW OF NADAKASHALA, POLAPURA, SHANTIKAR MADOM AND VICHARIPPU MAALIKA
Once shareholders of a great history, these ancillary structures have been overlooked upon for more than 200 years after the downfall of the mighty chempakassery dynasty. The dynamic changes in the structure of the society and the lifestyle of the people in the late 17th century, led to the decline in the maintenance of these architectural marvels. The prominence of the temple is the sole reason that sustains the supportive structures today. The building is now showing signs of deterioration, owing to the ravages of time and neglect. Despite it all, the cultural significance of these structures is colossal for it to evanesce. Thus, one has to embark on a new venture to bring into light, the prominence of all these forgotten structures.

INDIGENOUS CONSTRUCTION TECHNIQUES
URACHUKETTU

A methodology commonly used in temples for construction of walls; a course of laterite is placed in position, over which the next set of laterite stones are loaded. The first layer of laterite is abraded by the second, until the two courses of laterite are interlocked.
Layers of laterite, when vigorously brushed, produces laterite in its powdered form. The powder is mixed with shell lime, concocting lime mortar, which is used as a binding material. The bond is strengthened by filling mortar between the courses.
IMPARTING ANCESTRAL KNOWLEDGE LIME MORTAR AND PLASTER

Shell lime : lime obtained from sea shell.
Varaal pasha : an extract of ‘channa stratia’ varaal (a freshwater fish), used to enhance the binding ability of lime mortar. Gunnu : a resin obtained by mashing the bark of a native plant species ‘karakil’.
CONSTRUCTION DETAILS
‘Anjili’ (wild jack), endemic to the evergreen forests of the Western Ghats, is widely used in the construction of outdoor elements due to its higher fungal resistance and easy workability.
Teak has been extensively used throughout the temple complex, on account of its essential oil which enhances the durability and workability. of the timber.
FLOORING
The indigenous technique of ‘tharayodu paving’ is done for the better durability of floors. This method ensure effective cooling when integrated with the use of clay floortiles.
FIRST FLOOR
The binding and plastering of laterite blocks is effectuated by using a mixture constituting shell lime (binder), sand (fine aggregate) and an admixture of varal pasha and gunnu, where the latter is used to augment the binding quality.
COMPOSITION OF LIME PLASTER

The mixture is consolidated to create a homogenous paste. It is then placed on a wooden platform rested on a pit in the ground. Water is added to this thoroughly blended mixture and further compaction is done using a wooden trowel.
Shell lime to sand ratio-1:3 Lime water ratio does not exceed 0.65. Initial setting of the mixture requires 5 - 7 days and 90 days for complete curing. The lime mortar wicks any dampness in the wall, to the surface where it evaporates.

WWW.NASAINDIA.CO
SCHEMATIC SECTION OF SHANTIKAR MADOM
Owing to the construction of walls using traditional knowledge, a significant decrease in wall thickness is observed in upper floors compared to the lower floors; this prevents overloading, ergo the collapse of lower walls.

The laterite used for walls, were quarried from the mottled layers of Chengannur soil, 33 kilometers away from the site. With continuous exposure to air, this laterite gradually hardens and binds together with lime mortar.

The window openings of Shantikar Madom have splayed reveals, for even distribution of light and wind into the interiors, antecedently when sunlight and natural wind were the only form of lighting and ventilation.
The wide openings of shantikar madom that opens into the kulappura,facilitating the entry of a crowd, is spanned by a granite arch for efficient load transfer.they are provided with an additional support of granite lintel.
SURKHI LIME /CLAY TILE LAYER
Burned mud, derived from broken terracotta tiles is used to prepare surkhi lime.
MUD BRICK LAYER
Increase durability of flooring. Brick size: 25 x 14 x 6.5 Centimeters.
SURKHI LAYER
The layer acts as a levelled surface for bricks to be placed.
TEAK LEAF LAYER
To protect wooden panels from the effect of surkhi lime.
WOODEN PANELS
Thick teakwood panels.
WOODEN JOISTS
Teak wood joists that run in perpendicular directions at an interval of 45 cm in between.
GROUND FLOOR
Laterite has been used for flooring, which is later coated with surkhi. Due to deterioration over time, few areas of the floor have been replaced with terracotta tiles.
The foundation is composed of laterite blocks, which acquires strength on exposure to moisture.

SURKHI LAYER levelled surface made of surkhi lime which is 1 cm thick.
LATERITE BRICK
Laterite bricks acts as durable layer and provides cooling effect to floors as they release the moisture inside their porous surface.
SAND FILLING
Sand filled and compacted with trowel to attain a levelled surface .
RADIATING
RAFTER DETAILS
1. KOTI RAFTER length -470 a 2. UPAKOTI 1 length -435 a 3. UPAKOTI 2 length -413 a 4. UPAKOTI 3 length -395 a 5. UPAKOTI 4 length -383 a 6. UPAKOTI 5 length -378 a 1 angulam (a) = 1.763 cm
The radiating rafter system exclusive to southern travancore, is a distinct method of construction that features rafters that radiate from a single focus. As the unique assembly requires skilled craftmanship, it is disappearing in practice and becoming obsolete with time.

RAFTER PLAN OF ENNAKALATHATTU
RAFTER ASSEMBLY

Utharam (wall plate) is erected over the 12 pillars, and are interconnected by half lap joint.
DETAILED JOINERY OF KOOMBU
‘Koombu’ is a vertical wooden member, placed at regular intervals on the longitudinal beams spanning the nadakashala to prevent the lateral twist of the roof.
DETAILED JOINERY: BALUSTRADE
The handrails of the balustrades are joined using half lap joint.
KOODAM
The end of all rafters rest on this member whose diameter is sufficient to hold it all by bearing on its side.Diameter 48 cm.
KOTI RAFTER
They are hip rafters of the system and are 4 in number. Cross section of 5 cm x 17 cm .
UPAKOTIS
40 Rafters that are in slanting position. Cross section Of 5 cm x 17 cm.
THUVANA PALAKA
The eave board.


Ksudrottarams (joists) are secured to the uttaram by kila (peg). Hip rafters (kazhukol) are arranged radially over uttaram.


The minor wall plate is connected to the wall plate using kila [peg].

DETAILED JOINERY OF WOODEN CEILING
WWW.NASAINDIA.CO
The ceiling consists of wooden beams placed perpendicularly, one over the other using cross lap joint.

DETAILED JOINERY OF CEILING BEAM AND RAFTERS
The upper part of the rafter is connected to an extended segment of the ceiling beam, while the lower part joins with the wall plate [uttaram].
Vala/runner
Cross section of 5cm x 5 cm.
UTHARAM
The wall plate .
EXPLODED VIEW OF RAFTERS AND WALL PLATES
Hip rafters (kazhukol) are arranged radially over uttaram, followed by arranging the radiating rafters in specific angles to stabilise the structure.

Koodam is slid into position from bottom of rafter till all rafters are aligned. The koodam is then hammered from top to lock all the mortise-tenon joints of the koodam and rafters.


DETAILED JOINERY:DOOR LOCK
A traditional mechanism for door lock; lifting and dropping the wooden pin, unlocks and locks the door.

DETAILED JOINERY: TRELLIS WORK IN POLAPURA
The trellis work consists of horizontal wooden beams with vertical wooden members at equal intervals.

DETAILED JOINERY OF ATTIC
Numerous diminutive wooden members are joined using tongue and groove joinery to form partition panels for the ‘machch’ [attic space].

DETAILED JOINERY OF EAVE SUPPORTS
The eave supports are held in position by the protruding beam from the wall and the rafter.

DETAILED JOINERY OF GABLE

LENGTHENING JOINT
The lengthening joint in the wall plate restrains displacement; a dowel is used to further tighten it.



DETAILED
JOINERY OF WATER PULLEY
The pulley used for drawing water from the well is connected to the ‘vala’ [collar pin] passing through the rafter.

DETAILED JOINERY : AARUDAM
‘Aarudam’ is a special wooden collar pin which passes through the rafter, ensuring greater stability of the roof structure.


DETAILED JOINERY OF VALA AND PIRIVALA
DETAILED JOINERY: COLUMNS
‘Pirivala’ is a short twisted collar pin that gouges out through the rafters and is often misinterpreted to be a single continuous pin.
‘Chithrakoodotram’ is an intricately carved wooden member, joined using lap joint and tightened using pegs.

Two ‘valas’ [collar pins] are joined using notched joint.

DETAILED JOINERY OF TRELLIS WALL
The wooden trellis wall is connected to the pillars using mortise and tenon joinery and restricts the view from outside.
WWW.NASAINDIA.CO





DETAILED JOINERY OF DOORS IN SHANTHIKAR MADOM
DETAILED JOINERY OF STAIRCASE
The staircase consists of a riser tightly secured between every two treads using mortise and tenon joinery, followed by fixing both into the groove in the stringer.

‘Chuzhikutti’ was used for the rotation of door panels, prior to the use of hinges. The rails and stiles were joined using mortise and tenon joinery; it was further tightened with wedges.


INTRICATE WOODEN CARVINGS OF FLORAL GARLANDS ON THE CEILING OF THE NADAKASHALA ENHANCE THE SPLENDOUR OF THE STRUCTURE
ORNAMENTAL STRIP CARVED IN WOOD ON ‘THULAN’, ADORNS THE NADAKASHALA.

WOODEN ORNAMENTATION ON THE STRUCTURAL ELEMENTS OF THE GROUND FLOOR OF VICHARIPPU MAALIKA
THE CEILING OF KOOTHUMANDAPAM IS DIVIDED INTO NINE SQUARES, OF WHICH EIGHT ARE ORNATELY CARVED, WITH THE DIETIES OF RESPECTIVE CARDINAL DIRECTIONS,’ASTADIKPALAKAS’,AND THE CENTRAL SQUARE IS DECORATED WITH MOTIF OF BRAHMA.
ORNAMENTATION SEEN ON THE SIDES OF NADAKASHALA, REPLAYING SCENES OF PERFORMERS IN VARIOUS POSES.
INTRICATE FLORAL WOODEN CARVINGS ON ALL STRUCTURAL MEMBERS OF NADAKASHALA ADD TO THE GRANDOUR OF THE STRUCTURE.
STONE CARVINGS ON PILLARS OF ENNAKKALATHATTU
WEST FACING GABLE OF VICHARIPPU MAALIKA.
SOUTH FACING GABLE OF VICHARIPPU MAALIKA.


WWW.NASAINDIA.CO
WWW.NASAINDIA.CO
AMITY SCHOOL OF ARCHITECTURE AND PLANNING, DELHI
Team
Shalvi (USEC)
Hamza Khan (UD)
Sagarika Samal
J. Sri Krishna
Saransh Arora
Adrijaa Bhuyan
Riya Bansal
Vipul Solanki
Yishita Mittal
Rupal Juneja
Divyansh Nagar
Shourya
Akriti
Simran Singh
Aarya
Ishika
Ritika
Laksh
Gayatri
Bhawana

In the absolute truth, there is no direction, there is no centre, v is no concept such as the above, below; there are no distinctions such as holy place or not holy place. In the absolute realm, everything is equally and primordially pure. There is no hell, there is no heaven .
INTRODUCTION
Chokling monastery is located in a small village named Bir in Himachal Pradesh. It is also known as the Pema Chokgyur Gyurme Ling. It was established in the 1960s, when Neten Chokling, an incarnate lama of the Nyingma lineage of Tibetan Buddhism, migrated to Bir and established a Tibetan settlement.

HISTORY
Pema Ewam Chögar Gyurme Ling Monastery (Chokling Monastery) was built by the Chokling Rinpoche. The initial structure of the monastery was merely tented in which the daily practices of the devotees took place. Today, it stands as a fully established complex of stupas, temples, a school for young monks and lodging for 60 resident monks. The complex also includes a three-year retreat center for the visitors. The monastery practices the Vajrayana school of Buddhism.

EVOLUTION OF FAITH THROUGH AGES
Over the years, Buddhism has undergone a series of transformations which has led to the emergence of many different Buddhist schools. Each school has significant differences with its own liturgies, rituals, and interpretation of scriptures.
MAHAYANA BUDDHISM
Mahayana teachings inculcate the Bodhisattva attitude, which promotes the idea of being useful to others. The teachings and meditations of the Mahayana school aim to gradually increase compassion and wisdom. Their goal is to become not just liberated but fully enlightened for the benefit of all. This school also includes the Theravada teachings.

THERAVADA TRADITION
The Theravada teachings revolve around cause and karma, as well as pacifying meditations to create distance from difficult thoughts and feelings. This school, also described as the Hinyana, believes that thoughts and feelings are not personal. This gives the practitioners an opportunity to act in a beneficial way and accumulate positive karma. Their goal is liberation from all disturbances.

VAJRAYANA TRADITION
Buddha’s teachings described under the Vajrayana school are about the mind itself. In Vajrayana, the Buddha is not considered as a person, rather he is a mirror to our own mind. The teachings reflect the qualities of the human mind directly. They also practice Buddhist Tantra. This also includes the Theravada and Mahayana teachings. The teachings aim to help an individual achieve nirvana or enlightenment in a short duration through mantras and meditation.

CULTURE AND TRADITION
Culture tells us what a community is. Buddhism, being a widely practiced religion, has very different traditions and rituals. They don’t celebrate the usual festivals and have their own Pooja. These Poojas are an offering and tribute to Buddha, in which they usually perform their lama dance, sit together and listen to sermons from their guru. They also meditate for hours and days to show their devotion to the faith, and to meet the ultimate goal of achieving Nirvana.


View of Chokling Monastery, Bir
The historical Buddha
The way of the elders
Monks praying and spinning prayer wheels Lama dance during festivities
Monks preaching Theravada teachings
PATH TOWARDS BUDDHISM
Monks must be at least 21 years old before agreeing to take a vow to follow the 36 rules of conduct for a novice monk. There are 227 rules of conduct for male monks. The path to those 227 rules of conduct takes place along a journey of four steps.
The first step includes the Five Precepts, in which an individual pledges to:
1. Not take the life of a sentient being.
2. Not steal.
3. Not engage in sexual misconduct.
4. Refrain from false speech.
5. Refrain from becoming intoxicated.

Path to enlightenment
The second step involves entering a monastic way of life and living in a monastery. During the third step, the monk is considered a novice and spends a fixed amount of time in preparation and familiarization, while getting ready for the last phase of their journey. In the fourth and final step of their journey, the monk takes a vow for the 227 rules of conduct and becomes a fully ordained monk.
LIFESTYLE OF MONKS
A Buddhist monk’s life is one of simplicity and monastic dedication to the religion and its tenets. They start their day at 4 in the morning by one hour of chanting and prayer. It is followed by their first meal of the day. They generally cook and eat together. The young monks attend the school which is situated in the complex itself. They are taught Buddhist teachings in Pali. Senior monks perform daily chores and spend their time meditating. They have their second meal at 2 in the afternoon, which is also their last meal of the day until next sunrise. All monks are given specific duties in the day-to-day functioning of the monastery.





Young monks learning Pali texts
Trumpet being used in a Buddhist ceremony
A still from the community kitchen
The Jewelled Parasol
The Two Golden Fish
The Lotus Flower
The Endless Knot
The Dharmachakra
The Treasure Vase
The Right-turning White Conch Shell
The Dhvaja
A SPIRITUAL SUSTENANCE OF TIBETAN COMMUNITY
TEMPLE
The temple or assembly hall, which is traditionally known as the Chaitya, came into existence out of the particular demands of the Buddhist religion in the region. The Buddhist principle of centrality is represented in this model of a monastery complex whereby a central prayer hall lies at the intersection of the two world axes.
ACCOMMODATION
The monk quarters has three levels and houses a total of 60 monks. The need for an accommodation grew after the temple complex.
COURTYARD
The courtyard is a symbolic representation of a mound of earth. It is enclosed on three sides by monk quarters. The courtyard acts as a focus for directing all conversations towards the main prayer hall. It is a place for various daily activities and is a semi-sacred space.
KITCHEN
This building houses the kitchen on the ground floor and a dining area on the first floor. Monks of all age groups come here to have their meals. They prepare their own meals and they sit together and eat. This building is relatively new which was built after the addition of the monk quarters and the school.
MEDITATION CENTRE
BELL ROOM

This is a sacred centre for senior monks. This area is restricted and only monks of a certain order are allowed to enter and preach in this centre. Monks practice severe penance for three years to attain nirvana.
PRAYER HALL
The prayer hall is a sacred space and can only be accessed by monks of a higher monastic order. It has elaborate ornamentation and acts as a center for monks to attain Nirvana or enlightenment.
Mostly used by Tibetan and Nepalese Buddhists, prayer wheels are another aspect to Buddhist ritual. This space encloses three prayer wheels. Prayer wheels are hollow cylinders, inside which are placed scrolls of mantras. They represent the Wheel of the Law (Dharma) that Buddha set in motion.
LAMP ROOM
It is during Chötrul Düchen, which is also known as Chonga Choepa or the Butter Lamp Festival that lamps are lighted in this space. It is one of the four Buddhist festivals commemorating four events in the life of the Buddha, according to Tibetan traditions. It is a sacred space.
INTRODUCTION
The initial structure of the Chokling monastery was merely tented in which the daily practices of the devotees took place. Over time, it became an established complex of stupas, temples and monk quarters along with a three-year retreat centre for the monks. The monastery has Tibetan architecture which is influenced by topography and climate, its culture, Tibetan Buddhism, art and architecture of the Pali kingdom of India, Newari kingdom of Nepal and Tang dynasty of China. The art and architecture are colourfully radiant which is in contrast to the grey and ochre colour scheme of the Himalayan landscape, thus proving that Tibetan Buddhist art is a showcase of the art of imagination at its purest level.
SPATIAL ARRANGMENT
The Buddhist principle of centrality is represented in this model of a monastery complex whereby a central prayer hal lies at the intersection of the two world axes. According to the Buddhist, the world is conceived to have four dimensions which are structured as two oppositional pairs of two axes. The meting point of axes is of religious significance as being the centre of the physical world. Thus, the temple was constructed on the meeting point of these axes.
COMPLEX PLANNING
The main building of the monastery is at the centre of the complex, with all other buildings emanating out as a mandala. The internal structure of the main building has evolved from the original temple structure and symbolizes the centre of the Buddhist universe, Mount Meru. The overall layout of buildings around the main prayer hall has been designed to replicate the layout of a typical mandala, depicting the four continents and eight subcontinents of the Buddhist world.
TRADITIONAL KNOWLEDGE SYSTEM OF WALLS
The walls are built over the foundation, usually with a wall base of 1 to 1.5 meters. These walls were traditionally composed of two layers of heavy masonry with an inner layer of crushed stone and clay, binding together the entire construction. This has been replaced by bricks and mud plaster. Interior wals have an inner wall that is vertically straight while the outer wall has an upward slope creating a battered wall that provides protection from earthquakes.


ARCHITECTURAL INFLUENCE EIGHT STUPAS
PALI KINGDOM
(323 BCE - 184 BCE)
The origin of Buddhist architecture can be traced back to the region of the Pali kingdom. The construction of the oldest stupas, chaityas and viharas dates back to that period. The principles that prevailed at that time can also be seen today. The architecture of Tibetan Buddhist gradually developed from niches and ritual halls to independent building complexes.
TANG DYNASTY
(618 CE - 907 CE)
One of the prominent features of the Tang dynasty is the use of bilateral symmetry and the articulation of structures and the use of hip-gable roofs, which can be seen in the construction of the accommodation. Chinese painting developed dramatically both in subject matter and technique during this period whose influence can also be seen in the monastery.
NEWARI ARCHITECTURE
(1673 - 1722)
WWW.NASAINDIA.CO




The Eight Great Stupas represent eight important events in the life of Buddha. They are symbols of an enlightened mind and the path to its realization.

The most prominent feature of Newari architecture which can be evidently seen in the construction of lodging of the monks and the main prayer hall is the wide projecting roofs. They typically protrude more than one meter from the building line. The windows project outwards. This is highlighted in the construction of almost all windows in the complex.


Interior view of entrance gate



Lotus Stupa
Stupa of many doors
Stupa descent from god realms
Stupa of complete victory
Enlightenment stupa
Stupa of great miracles
Stupa of reconciliation
Paranirvana stupa

Colonnaded ritual halls of the chaityas
View of the accommodation
LIVING QUARTERS: LEVEL ONE
There are three levels in the monastery. Level one comprises of a dormitory for monks, aged between 7-15 years. From the very beginning, monks are taught the rules of conduct stated in the vinaya, which includes the abandonment of all luxuries in their life and adaptation of a simpler lifestyle. The dormitories of the younger monks are furnished with bunk beds and storage units for their belongings. There are common washrooms for the dormitories as well as for the rooms on level two.
KNOWLEDGE OF DRAINAGE SYSTEM
The main drain runs along the U-shaped accommodation of the monks, at the lower level. This drain receives sewage directly from the washrooms on that level. As there is no provision of shafts in the accommodations, the pipelines for the washrooms situated on the third level run over the outer walls and gets connected to the drains on the first level.

Gable roof indicating Tang influence


Elaborate ornamentation bedecking the roof
Newari style window
DESCRIPTION
:
• Actually measured on site
• All measurements are in mm
• Ground slope measured using altimeter
• Roof angles found using hypotenuse method
• Details traced from photographs clicked on site
• Heights measured using Laser Range Finer and Stick technique
Pembe frieze adorning the entablature

View of dormitories at level one
TRADITIONAL KNOWLEDGE OF STRUCTURAL SAFETY
To add strength to the structure, walls are sloped inward at 10 degrees. This dissipates the load laterally. The monastery is constructed on a stone foundation. The dead load is more at the bottom part of the monastery than at the top due to an increase in wall thickness. The dead load gets transferred from the slab to beam, beam to column, and column to footing. The structure follows a vertical load transfer path.
LIVING QUARTERS: LEVEL TWO
What sets the monks apart from the rest of the mass, is their renunciation of the pleasures of life. Since, all they accept are the bare necessities, the rooms on level two of the monastery, that accommodates monks aged between 15 to 25, are only furnished with a mattress, table, and a shelf, where they can pray, study and meditate. These rooms can be accessed through single-loaded corridors. The courtyard in the center of the monastery serves as a space for various social activities. The monks that reside on the ground floor use the common washrooms built-in level one.
ORIENTATION OF ROOM IN ACCORDANCE TO COURTYARD
The central courtyard is placed on the south side of the complex which receives the maximum amount of daylight. This not only provides the rooms with adequate lighting but also shields them from the cold winds. The ‘U’ shaped courtyard facilitates the capturing of solar radiation through horizontal and vertical apertures.



DESCRIPTION
• Actually measured on site
• All measurements are in mm
• Ground slope measured using altimeter
• Roof angles found using hypotenuse method
• Details traced from photographs clicked on site
• Heights measured using Laser Range Finer and Stick technique

TRADITIONAL KNOWLEDGE SYSTEM OF FOUNDATIONS
The process by which a Tibetan monastery is constructed begins with a geomantic survey and ritual cleansing of the site. The monastery had a stone foundation which is made of rubble masonry. The foundation is built on a firm, uniform strong subsoil. Under the foundation, there was a layer of tamped sand, which had a minimum depth of 40 cm.


TRADITIONAL KNOWLEDGE SYSTEM OF THE COURTYARD
The courtyard or the assembly hall in the center of the complex,serves the purpose of providing space for monks to gather for praying, performing their puja, to receive sermons from their gurus, etc. Monks usually spend their free time sitting in the courtyard interacting with one another and meditating. The younger monks play in the courtyard during evenings, making the whole ambiance of the complex cheerful. Courtyard planning
LIVING QUARTERS: LEVEL THREE
Meant for the senior monks of the monastery are the rooms of the third level, where each room has a washroom attached to it. These rooms too can be accessed through singleloaded corridors. In the center, at a height of four steps from the third level, a room is situated solely meant for the monks to carry out their beloved tradition of debating, through which they eradicate various misconceptions of Buddhist scriptures.
TRADITIONAL KNOWLEDGE OF FLAT ROOF SYSTEM
The monastery complex had a flat roof. Flat roofs are known to be more efficient for conserving internal heat since they have a smaller area of cross-section. Thus, the radiated heat loss is less. Due to the location of the monastery in a colder region, the roofing system acts as a barrier against the cold weather. They are also easier to build and maintain.


SOURCE OF LIGHT
TRADITIONAL KNOWLEDGE SYSTEM FOR MATERIAL
Set in the topography of hilly regions, Tibetan architecture initially used wood as the prominent building material. With the advancement in technologies, stone, brick,concrete with mud mortar and lime plaster are now used. The mud mortar acts as an insulation for the wall whereas the lime is used for waterproofing. A layer of mud phuska is used for insulating the roof.
The rooms on the third level receive light from the windows that open on the outer façade as well as from the single-loaded corridors that face towards the courtyard. These corridors also serve the purpose of balconies.

South orientation to maximise daylight


Wall section showing insulation layers
DESCRIPTION
:
• Actually measured on site
• All measurements are in mm
• Ground slope measured using altimeter
• Roof angles found using hypotenuse method
• Details traced from photographs clicked on site
• Heights measured using Laser Range Finer and Stick technique

TRADITIONAL KNOWLEDGE SYSTEM OF FLOORING
The flooring in the accommodation has layers for insulation. After casting of slab, a layer of mud is spread over the floor which acts as an insulator for the room. This layer is topped with a wooden lamination, which acts as a floor finish.

CARVED INSCRIPTIONS
One can find inscriptions carved above the column capitals in the interior facade of the accommodations. Some doorways and window lintels too are detailed with carved inscriptions and iconography.
DESCRIPTION :
• Actually measured on site
• All measurements are in mm
• Ground slope measured using altimeter
• Roof angles found using hypotenuse method
• Details traced from photographs clicked on site
• Heights measured using Laser Range Finer and Stick technique

COMPARISON OF OUTER AND INNER ELEVATION
The outer elevation of the complex is whitewashed and is plain in contrast to the inner elevation. The ornamentation on the outer facade is kept minimal with the use of only a decorative frieze on the window lintels. The inner façade, on the other hand, has radiant hues of red and yellow which are considered to be sacred colours according to Buddhist beliefs. The elevation is decorated with columns, above which there is a band of decorative inscriptions.
SECTION A’-A

Details traced from photographs clicked on site
• Heights measured using Laser Range Finer and Stick technique

DETAIL AT (A)

DETAIL AT (B)

DETAIL AT (C)

ELEVATION SIDE X
TRADITIONAL KNOWLEDGE SYSTEM OF NUMEROLOGY IN ARCHITECTURE
Numerology is very prevalent in Buddhist teachings. Number three represents the three levels of existence, as well as the triad of Buddhism- the teacher, the teachings and the religious community. Therefore the temple in monasteries and the accommodations of the monks are in three levels.
TRADITIONAL KNOWLEDGE OF VERTICAL SPATIAL ARRANGEMENT
The accommodation had 3 levels. The first level had dormitories for young monks and common washrooms. The administration office and infirmary opened on the outside and rooms were on the inside. This level also had storage rooms. The second level had single rooms for monks that opened in the courtyard. The façade of the building had decorative patterns and Buddhist scriptures. The second level also had single rooms but with attached washrooms. This level also had a balcony running all throughout. The railing was forged with Buddhist patterns.

Detail at (A)
Detail of balcony
railing

Detail at (B)
Detail of inscriptions on the entablature

showing three levels in the accommodation
TRADITIONAL KNOWLEDGE OF ROOF INSULATION
Due to snowfall in this region, the provision of insulation on the roof have always been a part of their architecture. Applying a layer of mud phuska on the roof, acts as a very good insulator for the accommodation. And a layer of bitumen is used for preventing the water to seep through the roof.
TRADITIONAL KNOWLEDGE OF DOORS AND WINDOW OPENINGS

Diagram showing vertical spatial arrangement

Detail at (C) Detail of roof
Another distinguishing feature of a Tibetan building is the treatment of the openings for doors and windows. The portals are outlined with a thick black border frame. This frame is made from a clay that is thickly applied to the masonry wall after placement of the windows or doors. It has a distinct trapezoidal form making the portals appear much larger than their openings. This can be seen in the openings of the school. This detailing traps heat to warm the air before it flows to the inside of the building. Also, constructed over top of each window of the accommodation is a cantilevered shading structure.


Fenestration design for trapping heat
TRADITIONAL KNOWLEDGE SYSTEM OF PLINTH
Since the monastery is situated in a mountainous region, the plinth of the monastery is built with a height of 3160 mm. The plinth is made entirely of stones and mud mortar. The monastery has a raised plinth to prevent water from seeping in the complex.
TRADITIONAL KNOWLEDGE OF ART AND BUILDING ORNAMENTATION
Building ornamentation is an important and essential part of monastery art and architecture.. Each pattern and painting relates to some event in the history of Tibetan Buddhism. Local craftsmen skilfully made these paintings. A variety of carved patterns were found in the details of doorways, column capitals and window frames. Usually these were bands of decoration within a layering of details. Two common decorative frame borders included a lotus flower motif and a triangular pattern of tiny cubes cut in relief called “chötsek.”A longbow and short bow capital elements were carved with cloud and floral motifs giving the impression of weightlessness.



Detail of roof slab
Diagram
Raised plinth to prevent water seepage
Ornamentation on doors
LIVING QUARTERS: LEVEL TWO
As the monastic orders developed, and time passed, sleeping arrangements changed. The dormitories became divided by walls, into separate rooms. The elder monks occupied these separate rooms on level two and level three.
STORAGE ROOM
The room had old furniture and mattresses. The room also had a designated space for extra supplies and goods, which were stored to be used during festivities and Pujas.
TELEVISION ROOM
A Monastic community needs an environment which promotes and protects, not only geographical distances from society, but more importantly a cultural space for the distinctive monastic way of being. The television room on level one provided a recreational space for monks where they interact with each other.
LEVEL ONE WASHROOMS
Ritual surrounded every aspect of the monastic life, including grooming. Level one has common washrooms for dormitories and for monks residing on level two. There was a segregation of wet and dry areas. The urinals and cubicles for bathing were placed separately.
DEBATE ROOM
The physical environment of the monastery is geared to support various activities. It has both formal and informal, indoor and outdoor spaces. These spaces are so arranged that reading is central to the life of the community. Thus, there was a provision of a debate room for monks to debate on various religious issues.
INFIRMARY
The infirmary at the monastery serves as a place to care for the sick, the elderly, and those who needed rest. Medicines and special foods were provided, but more importantly, the infirmary serves as a place where the seriously ill monks would receive assistance in preparing their soul for death. Care of the infirm and sick is of highest moral importance.
LIVING QUARTERS: LEVEL ONE

The dormitories were located on level one on the living quarters. They had bunk beds for young monks. Instead, of cupboards, they had shelves to store their necessities. For the elder monks, the dormitories took the shape of single rooms, which were divided by walls.
KITCHEN AND DINING
A monastic space will derive the particular pattern of its buildings from the shaping of its simple lifestyle, so that nothing seems left to chance. In this way, monastic buildings are carriers of purpose, shaped to function so that everything that is required to sustain the life of the community is easily found close at hand.

The monastery has a shared space for eating, relaxing and cooking together. It is an example of the striving for congruence of interior and exterior in monastic living. Shared meals in a monastery are as ritualistic as all other parts of the religious life. The monks have two meals in a day and a few monks might work as labourers in the kitchen on a rotating basis. The kitchen building has the kitchen on the ground floor and the dining room on the first floor.

Interior view of dining area
DESCRIPTION :
• Actually measured on site
• All measurements are in mm
• Ground slope measured using altimeter
• Roof angles found using hypotenuse method
• Details traced from photographs clicked on site
• Heights measured using Laser Range Finer and Stick technique





Interior view of kitchen
Exploded view of kitchen and dining
ISOMETRIC VIEW OF WINDOW
EXPLODED VIEW OF ROOM
DESCRIPTION :
• Actually measured on site
• All measurements are in mm
• Ground slope measured using altimeter
• Roof angles found using hypotenuse method
• Details traced from photographs clicked on site
• Heights measured using Laser Range Finer and Stick technique

ISOMETRIC VIEW OF
DESCRIPTION :
• Actually measured on site
• All measurements are in mm
• Ground slope measured using altimeter
• Roof angles found using hypotenuse method

• Details traced from photographs clicked on site
• Heights measured using Laser Range Finer and Stick technique

WWW.NASAINDIA.CO
With the spread of Buddhism around the world, it has developed into a religion from a faith. The growth of Buddhist religious schools led to the formation of Chaityas, Viharas and stupas. It focused on the material and spiritual needs of people. Gradually, it was classified into temples, palaces and housing. It led to the formulation of the concept of the monastery- a social institution. It is a complex which is inclusive of a temple that acts as the core, housing for monks, a school for young monks, a dedicated courtyard, separate kitchen and many other facilities, all of them which serve as ancillary spaces. The temple paved way for semi-sacred spaces, and they grew with the growth of the temple structure.
Chokling monastery in Himachal Pradesh is an example of one such building complex which is an amalgamation of sacred spaces, that is, the temple, and the semi-sacred spaces, that is, the housing of the monks, the dining area, kitchen and learning space for young and old monks. All these structures have had a local relevance, being part of the society and its users, hence they have an architectural expression rooted in their culture.


WWW.NASAINDIA.CO
RIZVI COLLEGE OF ARCHITECTURE, MUMBAI
Team
Arunav Sinha (USEC)
Swarali Pasalkar (UD)
Divya Bhambhra
Mohammed Faisal
Srishti Dasgupta
Abdullah Barwaniwala
Nandan Patel
Amita Saroya
Sana Shaikh
Adam Ezzi
Shivani Suvarna
Jamal Siddiquie
Misbah Undre
Trinisha Srijith
Farzeb Shaikh
Areeba Khan
Chetna Singh
Diya Mary Joseph
Vaishnavi Bhosle
Revati Raj
Saqlain Pathan
R Pawan
Parvez Musharaf
Aarti More

Abstraction of the Nivas

Sri Aurobindo’s symbol

The Mother’s symbol
INTRODUCTION
Sri Aurobindo Nivas became a National Memorial as it got preserved and adapted to function as spiritual retreat. The links to Aurobindo’s roots were the strongest here and this was recognised by his followers as well as the localities.
It was in here, where he started exploring Meditation and Yogasna under professor Lele which evolved into Integral Yoga. It does not proceed through any set of mental teaching but by ‘aspiration’. Self-Concentration inwards by opening thyself to an influence formed by union of mind and body.
In this process architecture of The Nivas played an important role by setting up an atmosphere where the mind could be at peace and one can cut himself off from the physical world.
‘In the silence, stand and hear voices of architecture of etiquettes, Something which tells you to experience the unutterable, the hospitality of the exposed, for you to follow the lead of bricks, and set foot on the impression of still. A boat sailing between the shores of: the profane and the holy, is grateful enough to lend you a hand, is fetching you: to the calmness of the still, to nowhere, but to YOU’
ICONOGRAPHY
The symbol of Sri Aurobindo: The descending triangle represents Sat-Chit-Ananda.
JUSTIFICATION
Why spirituality and how it relates to Sri Aurobindo?
India has been known for its spirituality from the past several centuries- Osho Rajneesh, Kabir, Mother Teresa and many more.
The term spirituality embraces the deepest values and meanings by which people live. Not all spirituality is religious, but all religion espouses a distinctive spirituality.
Sri Aurobindo, a secularist in an attempt to be guided by his integral values practiced forms of reflective meditation. Sri Aurobindo was one of the greatest contributors in this field, he introduced Integral Yoga, by undergoing major reforms within himself.
Why this structure and what makes it Semi-sacred?
Sri Aurobindo Nivas is a National Memorial and functions as a spiritual retreat.
The structure was adapted to carry forward Aurobindo’s Ideologies by spreading the idea of exploring oneself through Integral Yoga.
WWW.NASAINDIA.CO
The ascending triangle represents the aspiring answer from matter under the form of life, light and love. The central square at the junction is the perfect manifestation having at its center,the Avatar of the Supreme -the lotus. The water inside the square represents the multiplicity , the creation and unfolds spiritual consciousness within the individual.
The symbol of The Mother: The symbol is inspired from bloomed lotus and the central circle signifies the divine consciousness.
INTERPRETATION

The dichotomy of sacred and civic space has always been evident. The reason behind this is the traditional and intricate details found in sacred structures and the flexible design parameters of civic structures. Hence, it is imperative that we understand the importance of semi-sacred spaces.
Semi sacred spaces are a dilution of restrictive nature of sacred and civic spaces, they have no social constraints on their accessibility and usage. When it comes to experiencing these spaces, semi-sacred spaces are the ones which gives a glimpse of spirituality or faith without conditioning one to follow it.
When faith and spirituality is incorporated in our routine and manifested physically through architecture, it brings together a community that believes in practices and ideologies collectively which are the sacred components to make a space semi-sacred. In-between

‘Here and there stood old trees in a deep meditative peace’
The structure extends towards public through various spaces like Meditation halls, lawns for yoga, libraries. These activities are civic which support the sacred core by following Aurobindo’s ideologies and beliefs, thus supporting the sacred core and acting as interface between the civic and the sacred .
HISTORY
On the banks of the Vishwamitri River, Vadodara brims with heritage
The enduring architecture from India’s medieval and modern periods is a testimony to the progressiveness of the city’s various rulers.

The dynasties which ruled Vadodara before The Marathas (Gaekwad).

Sri Aurobindo
The Guptas
The Solankis
The Mughals Rashtrakutas Sultans Of Delhi
The Marathas

TIMELINE: STRUCTURE TIMELINE: STRUCTURE
• The structure was specially built by Maharaja Sayaji Rao Gaekwad III in 1896 for Khaserao Jadhav who was the sardar of Gaekwad army.
• Khaserao Jadhav and Aurobindo lived here together.
• Born in Bengal Presidency, India on 15th August 1872.
• His father sent him to England to study thus ,ideas of nationalism began developing due to atrocities of Britishers.
• Deliberately failed ICS exam and got introduced to Maharaja Sayaji Rao Gaekwad III of Baroda and secured a job in his state as a teacher.
• In 1893, when he set foot on Indian soil ,a vast peace and calm descended upon him.
• 1896-1906 – Aurobindo got married to Mrinalini Devi in 1901 and they lived here with Khaserao Jadhav’s family till 1906.
• Aurobindo left for Calcutta and Khaserao Jadhav resided here till 1922.
• In Baroda, he later worked as the king’s advisor.
•
• Learned Sanskrit and Bengali literature. His first poetry was published from Baroda (Savitri) and wrote articles for Indu Prakash.
•
WWW.NASAINDIA.CO
• Furthermore, started pranayama (yoga).
• Met Yogi Vishnu Bhaskar Lele, meditated under his guidance for 3 days and acquired silence of mind.
• 1924-1944 The structure functioned as women’s hostel.
• 1944-1949 As the state of Baroda was taken under Indian government, the structure was abandoned.
• 1950-1963 it was used as government servant’s quarter.
• In 1971, The Government of India handed over the structure to Aurobindo society with adjacent spaces along with the garden and Samadhi.
• In1906 Moved to Calcutta and became the chief editor of ‘Bande Mataram’.
• Got falsely accused in Alipore bombing case in 1908 and was sent to jail where he meditated and attained spirituality in seclusion.
• After returning from jail, he further worked for India’s freedom until he moved to Pondicherry (a French colony at that time) and dedicated himself to spiritual pursuits.
• Sri Aurobindo considered Mirra Alfassa, as equal yogic strature and called her, The Mother.
• He introduced integral yoga in the year 1910.
• Died on 5th dec 1950 in Pondicherry.

LOCATION AND TOPOGRAPHY
Co-ordinates:
22.3072° N, 73.1812° E


Mahi River

The Rann
Mainland
Peninsular
Vishwamitri River

Map of Vadodara showing Mahi and vishwamitri river.
Topography of Gujarat shows a wide range of physical features ranging from desert to coastal and marine environment.
Gujarat is located near the Thar desert; therefore most of the land is dry and arid in nature. Topography is divided into 3 major regions, namely:
• The Peninsular - the region, which is also known as Saurashtra, is essentially a hilly tract. The Mainland that extends from the Rann of Kutch and the Aravalli hills to the river Damanganga.
• The Kutch - It is a barren and rocky area comprising the great Rann.
CONTEXT
Aurobindo Nivas is surrounded by 5,110 Sq. Meters of open land which is consists of different gardens and a pond, all made and managed by the Aurobindo Society.
Located along National highway 8, has a health care centre adjacent to the structure. A reflection of traditional pol and wada style of houses can be seen, with government quarters behind it.
Opposite to Aurobindo Niwas lies a 200 years old dargah ‘Khanqah-e-Rifaiya’. Furthermore it is a part of the Kothi present which comprises of 13 historical structures (including this) each having its own unique features.
Landmarks Around The Structure
1. Sri aurobindo nivas
2. Jaisingh rao library
3. Vadodara abhilekhagar
4. Kothi record tower
5. Kothi building secretariat
6. Mama ni pol
CLIMATE
Located at an altitude of 39 meters above sea level. The city is located between the fertile plains of Mahi and Narmada rivers. The climate of Vadodara is semi-arid. A wide variety of climatic conditions facilitates growth of different species of flora, also it includes one of the largest dry deciduous forest in the western region.

Temperature throughout the year
WWW.NASAINDIA.CO
PHYSICAL FORM

Tambekar wada
Khanqah-e-rifaiya
The ‘l’ form of structure creates pressure difference, by acting as an partial obstruct for south- west winds. Thus, creating pressure zones and wind movement. The courtyard has been placed on the eastern side, to receive morning sunlight.



Wind direction during summer(above) and winter(below)
The mass (photogallery) on the eastern side protects the courtyard from North-East winds during winter. On the other hand the mass on the western side(main structure) is more due to height, also openings on South-Western sides receive cool air during summer nights.

LANDSCAPE

ORIENTATION
The orientation of the structure is towards south because of the existing road. In the northern hemisphere, the south side receives direct maximum radiation of sun. Since all the spaces which are present on northern side are habituated for longer hours, the spaces remain cool during summers.

The arrangement of landscape determines the connection between vociferous highway and a silent atmosphere. Surrounded by floral and dense trees which are home to squirrels, pigeons and other different species of birds and animals. The hierarchy of heights of trees are in three levels: hedges, flowering plants and trees. The chirping of birds, refreshing floral fragrance and the shade of the trees create a calm and serene environment around the structure which further flows inside as they are used for flower arrangements in the structure.

The rustic tones of facade compliments the surrounding environment.

The green stretch at front is a relief to the sense unlike the chaotic street.

The floral bushes and trees enchant the sacredness of the memorial.

The lawn at back acts as an informal gathering space.
The effective shading by neem, sacred fig and other deciduous trees helps reduce heat gain during summers. Deciduous trees shed leaves during winter thereby letting in winter sunlight and also increases air flow during summers. They direct air into the building or deflect it away. Since, the summer winds are from south-west, the water body placed in the west, helps with evaporative cooling. The trees direct wind inside the structure, which in turn makes the interiors comfortable by enhancing air ventilation.




VARIOUS TYPES OF TREES AND PLANTS.



Hopea Odorata
Dense and large foliage helps in shading.
Jasmine
Scent of jasmine produces calming and relaxing effect and has sedative properties
Ixora
Bright colored flower bunch and dark green leaves.
Attractive ornamental hedge.
SPATIAL ORGANISATION




Sacred Fig
Deciduous tree, cuts off heat during summers and allows winter sun.
Neem
Dense foliage and medicinal properties. Deciduous tree, cuts off heat during summers and allows winter sun.
Ashoka
Known for its effectiveness in alleviating noise pollution.
1. BUILT AND UNBUILT:
The ratio of built to unbuilt is 1:3. The landscape creates a spatial balance between the built form and enhances the spatial qualities of the structure. At the same time landscape forms the foreground of the structure which hinders the visual connection between the street and the structure.
The soft scape helps in reflection of heat,which along with trees help in cooling the environment.
2. LAYOUT:
In the Vedas, east direction is considered to be auspicious, the memorial of Shri Aurobindo Nivas faces towards the east making it receive morning sunlight. The memorial has been positioned adjacent to the structure in order to focus on semi sacred (ashram) more than the sacred (memorial). Hence, prioritizing the former.
LOCAL RELEVANCE
FUNCTIONAL IMPORTANCE
Aurobindo spent 14 years in Baroda ostensibly as A professor of English in state college. He was also the brain behind the emerging national radical movement. The bungalow of Khaserao Jadhav acted as a platform for Sri Aurobindo to associate with the local people including his students and fellow professors of Baroda. This helped him instigate his ideas of spirituality and Nationalism within the native people. However, at present Aurobindo Nivas is locally neglected. Very few people apart from followers of Sri Aurobindo are aware about the existence and purpose of this structure.
FACTUAL IMPORTANCE
The Kothi sector has another structure similar to Aurobindo Nivas. The Jaysingh rao public library with its exposed brick facade and Indosaracenic style of architecture .The Wada style planning of the structure is inspired from Ambekar Wada and Bhavaskar Vithal Wada (both built in same time period).It is evident from the urban context that elements like these were popular during that era .

WWW.NASAINDIA.CO



Aurobindo with his students The Jaisingh Rao Library; built by Major Charles Mant in 1882
3. HIERARCHY:
The hierarchy of spaces from public to private has changed drastically from past to present.



4. VERNACULAR PLANNING:
Aurobindo nivas has an influence of both, wada architecture and vernacular architecture of Gujarat. The spaces on the ground floor and first floor follow a hierarchy of public to private spaces while the mass enclosing the courtyard and the lattice work is inspired from the planning of wadas. The typical layout of a vernacular house of Gujarat is placed to follow hierarchy of public to private linearly. The design of wada was influenced by social and cultural factors and is similar to the forts with an open space in the center and massing on all the four sides along with indigenous lattice work on the façade.





Ashoka Neem Hopea Odorata Hibiscus Rohea Tube Rose
Details of Jaisingh Rao Library
Lattice work
Exposed Brick Arch
GROUND FLOOR PLAN
INTRODUCTION TO THE SPACES
One thing about Sri Aurobindo Nivas is that even pictures cannot encase its silence. Silence is something which primarily makes the atmosphere calm and serene. This is experienced as soon as one enters the landscape, followed by the bare feet walking and then the use of materials which absorb sound.
Sri Aurobindo nivas is a load bearing structure, hence it doesn’t have any hindrances of columns and protruding beams which provides a free-flowing plan making it’s transformation convenient from a residence into an ashram. Gable roof increases the height and adds up to the volume.
Large volumes increase chances of echo and makes one conscious of the silence. The faith believes in balance between aesthetic and materialistic life, which is incorporated using certain design elements like altering the allowances of light, manipulating the circulation by blocking selected doorways and use of sound-absorbing materials,aroma and symbols without changing the structure’s original form.


Visitors sometimes circumambulate around it offering their respect.

The pattern made by flowers on the Samadhi along with small shrubs and incense sticks spread pleasant aroma in the surroundings.
The relics of Sri Aurobindo are preserved in the Samadhi, establishing it as the sacred core of the complex. The memorial has been designed with no ornamentation and as a covered space. The use of uniform colour yet different textures makes it stand out in the surrounding. In a very minimalistic way they have tried to imitate chatri, which is a very common form of architecture for samadhis in India.

The connection of side porch; sometimes used as a space for meditation.

Chhatri architecture

ENTRANCE
The protruding and embracive entrance porch comprises of columns and series of arches(arcade) guiding one inside the structure.
Another course with similar series of arches, but comparatively greater length exists in front of the memorial. Considering the high construction cost of arches only aristocrats of that era would find it economical to construct such arches. The entrance porch is divided into two parts with one part levelled up to maintain transition of cutting off light in the porch using French windows on both sides. The porches are used as a seating space by visitors and the walls are used to display information.

WWW.NASAINDIA.CO
The columns and arches adorned with symbols of The Mother and Sri Aurobindo, which marks their belonging.

Shoes are put off at the entrance to avoid noise while walking.

Entrance porch
Reflected Ceiling Plan of The Memorial adorned with symbol of ‘The Mother’ Section through the Memorial
Samadhi is constructed with white marble which symbolizes peace and spirituality. The marble being a smooth finished material doesn’t hold heat in high temperatures, hence it is used for this covered space. Due to its non-porous crystalline structure and high thermal conductivity. Marble also helps one to achieve and hold deeper states of meditation because of the constant cool temperature, which doesn’t fluctuate easily.

LIBRARY
The library is a longitudinal space, illuminated by a series of door opening towards the courtyard, conference hall and the corridor which connects it to other rooms. The shape determines the movement of users which is linear.
The series of doors aligned axially from side porch to the courtyard provide cross ventilation keeping the room cool. The louvres in doors facilitates the flow of wind further providing escape towards the courtyard.

Section showing wind flow
The tower has two bands of louvred windows which helps with stack ventilation. The tower acts as a narrow escape which helps in directing wind towards it and allows continuous air movement.
As the structure belongs to a time when there were no artificial means of ventilation. The placement of doors, louvred windows and tower helps in effective cooling. Thus, cutting off the energy consumption.
RIGHT ELEVATION
The courtyard lies in an unforeseeable position, as it is neither on the visual axis that connects the entrance to the library nor on the one which connects the side porch to the conference room. The courtyard caters to almost all the spaces by providing light. Thus, breaking the monotony of enclosed spaces. Volumetrically it is small as compared to the built up area, which helps in efficient stack ventilation.

The verandah surrounding the courtyard provides sun shade using slits to check direct sunlight and rainfall for its smooth functioning.
ADMINISTRATION

Visual axis from entrance, making courtyard unforeseen.
To the right of the entrance lies admin office, which previously served as meeting space for Sri Aurobindo where he attended his students and visitors There is a large window at the right of the entrance through which one can see visitors coming from the porch.
SECTION BB’

Courtyard caters many services of the structure including toilet, drainage and water cooler.

Administration Office
PHOTO GALLERY
• Photographs are placed on protruding walls,which have glass openings on either side to highlight the portraits.
• The floor has marble and granite finishing that reflects light and makes the space bright.
• The panels describing the life of Sri Aurobindo act as a movement guide for the reader.


WWW.NASAINDIA.CO
CONFERENCE
The conference hall is accessible from the side porch and the library. Every evening, lectures of Savitri’, are delivered here. This room lies on the western side, thus receives maximum air and makes it suitable as a gathering space.
Side windows highlighting portrait of The Mother.
Entrance to Photo Gallery.
WWW.NASAINDIA.CO
Meditation Halls
• The first-floor comprises of 5 rooms that function on the idea of hierarchy of volumes, division of spaces into sole units with multiple connections.
• Diffused light emphasizes on the space by scattering evenly which makes the space invariable and composed. The diffusion of light is done by the incorporation of louvres, fluted glass and clerestory windows.
• Soft colours (majorly white) helps increasing the brightness of diffused light.
• As activities are carried out in permanent contact with the floor, timber is used as a flooring material because of low U value. The fluctuation of temperature is slow thus making the user comfortable. The carpets act as a movement guide and also facilitates in sound proofing.
• The fragrance of flowers and incense sticks, sound of chirping along with continuous breeze due to cross-ventilation drives one’s attention inwards and makes the atmosphere serene.

MEDITATION HALL 1

• The first meditation space was previously used as family drawing room and is accessible from all the other rooms.
• This hall is the most illuminated space being adjacent to the corridor, most users prefer using this hall.
MEDITATION HALL 2

A view of Mediation Hall 2

A view of Mediation Hall 1 This hall is adjacent to the main hall. This is dimmest of all rooms and hence suitable for profound meditation. Darkness embodies a lot of energy and as it restricts our vision, it activates our other senses
• The doors behind the portrait and adjacent to it are kept closed to create a backdrop and make it the focal point of the space which is enhanced by the linearity of the room.
• Doors are aligned axially in east-west direction which maintains cross ventilation in the room, making sure that there is a continuous circulation of air.
MEDITATION HALL 4

The western façade has a protruding hexagonal mass, which due to its small area and constant height makes the space voluminous. The southwest summer winds entering through the louvres are cooler due to venturi effect
The fluted glass and louvres allow diffused light and directs the orientation of the user.
MEDITATION HALL 5

This space does not majorly serve as a meditation hall but as a depository to store souvenirs of Sri Aurobindo. The room has a swing on which Sri Aurobindo meditated with Prof. Lele for 3 days continuously. The window adjacent is kept closed and the portrait is being highlighted by diffused light coming from the clerestory window.
Swing on which Sri Aurobindo meditated for three days.
MEDITATION HALL
3

CONSTRUCTION AND MATERIALS
BRICK:
• The porosity of the material decreases its thermal conductivity due to the presence of air, adding to the insulation of the structure especially during summers.
• The structure has English bond which consists of alternative layers of stretcher and header. It avoids continuous vertical joints as it has queen closer inserted next to quoin-header to produce overlap making the bond strong.
MANGALORE TILES:
• Porosity of clay renews air layer between tiles and the roofing underlay allows natural and forced convection through the tiles joints and from caves to ridge, thus cooling the roof.
• Mangalore tiles also help to mitigate the effect of extreme rise or fall in temperature in a building. They are usually fired at around 42°C to 47°C which means they can absorb high degrees of heat and cold alike. This helps to maintain healthy room temperature within the built mass.
• They are non-combustible and hence offers good protection for the structure in events of fire accidents.
• Economical as compared to other roofing materials.
• Low maintenance-Water leakage is minimum and it rarely requires repairs or maintenance unless they break due to heavy impact.
TIMBER:
WWW.NASAINDIA.CO
• Teak (sagwan) is used for structural members like ridge, rafters, chords and tie beams. Babool(Desi bawal) is used for other members.

The new extension is made using R.C.C. through rebarring.
The symbol of Aurobindo placed in the center forms the focal point to which users face while meditating.
Situated on the southern side, the hall receives maximum sun radiation. Two balconies are placed on the same façade, that diffuse light. Further the curtains cut the glare and spread diffused light evenly. It also compliments the symbol of Sri Aurobindo.
FORM
• Previously furnitures were placed towards the wall to provide easy circulation within the space. This was possible because of the rectangular shape of the space as it provides larger perimeter.
• Segmental Arch: Considered as one of the strongest arches,is able to resist thrust. It has a rise equal to a minimum of one-eighth of the span’s width in order to prevent failure.
• A combination of hip and gable roof can withstand strong windstorms due to their selfbracing design and shape.
• Teak wood like all other solid wooden furniture and flooring moderates heat. What this means is that it does not become too hot or too cold in the hot summers or the cold winters even when exposed to the elements.
FLOORING:
• Kota Flooring: A fine grained variety of lime stone. Grey colour kota stone has been used in the structure. It is hard, impervious, compact and stain proof. Hence it is used for exterior spaces.
• IPS Flooring: Indian patent stone flooring provides good wearing properties and aesthetic appearance.
• Terrazzo Flooring: Terrazzo consists of marble, quartz, granite, glass and other suitable material, poured in cement binder.
• Terrazzo has high compressive strength, it can withstand heavy amounts of pressure caused by foot traffic or heavy machinery. The durability of the material allows the surface to last for years.

The offsets provide strength for distributing loads, makes the structure strong and durable.




Uttarakhand was the source of timber used in the structure.
External walls are subjected to horizontal wind loads, hence corners are chamfered to avoid obstruction in air flow especially on eastern and western sides.
Babool Teak Tree
TECHNIQUE
1. LOAD BEARING:
Brick has low U-value which helps in keeping interiors cool. The load bearing technique increases the thickness further and adds on to the heat resistance.
In order to prevent dampness from affecting the structure the sulphate content has been kept in check. A solution of silicon resin, sodium methyl and siliconate stearate is used to damp proof the wall.
2. ARCHES:
Arches are used instead of lintel and beams as it can span wider openings and has efficient load bearing capacity. The voussoir of the arches spread the load uniformly, it can resist greater thrust compared to lintels. Thus, arches can carry greater loads than lintels.
3. BALCONIES:
The small slits on the upper portion of the lattice work prevents harsh sunlight from entering, while the wider slits on the lower side helps cool wind to enter.
The projection of balcony allows wind to enter from all 3 sides, and enlarges the room without hampering the privacy.
4. FLOORING:
Wooden flooring is easier to install. Teak wood retains its oil content so it doesn’t crack easily and hence it is durable and has low maintenance.
5. ROOFING:
A combination of hip-valley roof and gable roof adds on to the volume, thus making the space voluminous. Hip and valley roofs have risk of leakages, this is tackled by using waterproof boards instead of mangalore tiles in some edges near gutter.
It provides excellent insulation against heat and cold.



CONCLUSION
• The embodied themes and elements impart a unique character in the semi sacred spaces making it crucial to study their individual architecture.
• Sri Aurobindo Nivas transitioned from a private to a public equity using different design principles which enhanced the theme of spirituality.
• The colonial architectural style gives an understanding of how foreign elements can be incorporated through use of passive climatic strategies.
• At present the structure has lost its relevance in the society. Thus,conservation of the structure through its faith and belief embarked its journey as a spiritual centre.
‘A profane wood was burnt, the flames of the fire were holy, the ashes were realization of the real. They were picked to calm the disturbed, The birth, then the ancestry gave rise to thinkings. It is YOU, silent but loud enough.’