Portfolio William Clay Shehan 2023

Page 1

Portfollio William Clay Shehan

Clemson, M. Arch. I Semester 1, 2022-2023

Portfollio William Clay Shehan

Clemson, M. Arch. I Semester 1, 2022-2023

The Clemson Center for Wellness

A Storefront for Philosophy

1-5 6-11 12-15
Ascent 1 16-22 Artwork

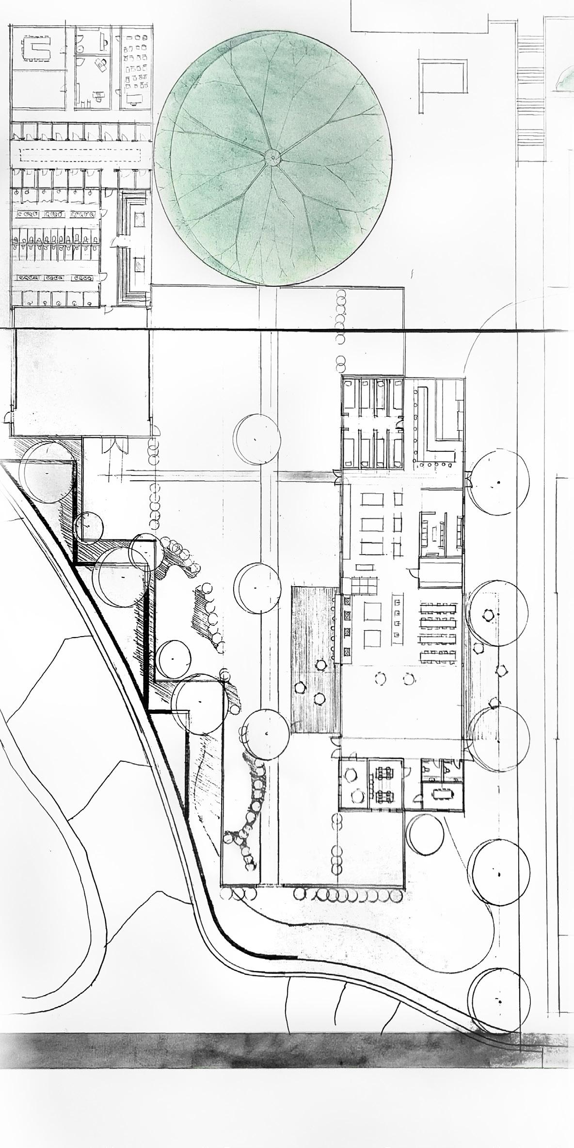
The Clemson Center for Wellness:

Project seeks to promote the mental health and well-being of Clemson university students, to incorporate and align the site campus to the campus grid.

2

Site sectons and isometric drawings including the architecture building, Lee Hall

3

The Main Axis:

Views along the main axis of cmapus, looking north.

4

Lee Hall:

The wellness center comunal areas align with the axis of Leee Hall

5

A Storefront for Philosophy

An urban infill in Greenville SC to provide a lecture space and residence for the practice and teaching philosophy.

6
7
8
9
10
11

Ascnent:

A Pavilion based on Plato’s Allegory of The Cave

12
13
14
15 Oil On Canvas
Oil On Canvas 2003
Canvas 2003 16
Oil On Canvas 2003 Linoleum Block Print 2002
17
Etching on Copper Plate 2003 Etching on Zink Plate 2003
18
Etching on Zink Plate 2003

Etching on plexiglass 2003

20
Etching on Zink Plate 2003
21
Woodblock Print 2021
22
Marker on Paper 2000

Turn static files into dynamic content formats.

Create a flipbook
Issuu converts static files into: digital portfolios, online yearbooks, online catalogs, digital photo albums and more. Sign up and create your flipbook.
Portfolio William Clay Shehan 2023 by wcsheha - Issuu