PORTFOLIO 2020-24
SELECTED WORKS



![]()



I am currently in the final year of my Master of Architecture degree at Deakin University, Geelong, building on a strong academic background that includes an Advanced Diploma in Building Design (2019), a Bachelor of Construction Management (Honours), and a Bachelor of Architecture with Distinction (2023).
I am a highly driven individual with a meticulous attention to detail, excelling in both independent and collaborative environments. My university experience has improved my ability to work effectively in teams, where my strong communication skills, positive attitude, and natural leadership have helped not only myself but those around me to achieve greater success. I pride myself on my interpersonal skills, building genuine and meaningful connections with those I work with.
While I’ve had the opportunity to explore the field of construction management, my passion for design continues to drive my ambition to become an architect. I am dedicated to designing iconic structures that not only look great, but also make a real difference in people’s everyday lives, combining creativity with practical solutions to improve the spaces we live and work in.



https://www.linkedin.com/in/william-caris-210b9b1b8/
St Bernards College, Essendon. VCE Completed
Advanced Diploma in Building Design (Architectural) Completed
Bachelor of Design (Architecture)/Bachelor of Construction Mangement (Honours), Deakin University, Geelong Completed
Master of Architecture, Deakin University, Geelong Ongoing
RELEVANT WORK EXPERIENCE
Junior Draftsman (Cadet), HDZN, Essendon Casual
Cabinet Maker, Steding Interiors & Joinery Part time
Project Administrator, Cooke & Dowsett, Keilor Park Full time
Freelance Drafting and BIM Rendering Casual
Nellie Georgiou-Karistianis
Professor - Monash University
Joanne Westover
Human Resource Manager - Cooke & Dowsett
Lisa Shanahan
Director - IDA
Damian Hatzis
Director - HDZN
Shawn Lim
Lecurer & Architect - Deakin University
0419 391 015 0412 060 528 0418 850 182
9331 3902
5227 8408
CAREER OBJECTIVES
Become a Licensed Architect
Work Internationally
Be involved in Iconic Structures
Make a difference
Earn international recognition
SOFTWARE PROFICIENCY












AutoCad Lvl.1 RMIT Short course 1NXNXNXN73
Advanced Diploma in Building Design (Architectural) Melbourne Polytechnic - 22268VIC
White Card Work Safe Victoria. Reg No: 0005578113 01
Deakin University Architectural Exhibition - Earthscapes
Bachelor of Construction Management (Honours)
Deakin University - H2B Second Class Honours Division B
Bachelor of Design (Architecture)
Deakin University - D1 Distinction






















The Geelong Maritime Museum aims to create a community space that encourages people of all ages to visit a currently under utilised area along Western Beach. The Concept is a mixed exploration of a whale’s anatomy anzd ship hull, taking in many physical aspects of the Hump Back whale and bringing that towards a maritime focus. Geelong’s maritime history spans to its early development of its township and by creating an expansive space along Western Beach, the project can help celebrate and educate those on the rich history of Geelong’s industrial maritime trade.




Western Beach is an underdeveloped area with many structures surrounding it. It is in close proximity to Deakin University and will soon be adjacent to the soon to be Nyaal Banyul Geelong Convention and Event Centre which is currently in early development stages. Buildings/structures located within western beach include Geelong Western Beach Boat Club, Geelong Waterfront Skatepark and The Geelong Boat House.
The Waterfront area is abundent with trees and shrubs largely due to new plantations of trees along the park and skatepark which have been newly developed within the area. There is also many Eucalapytus trees growing along the foreshore and up towards Western Beach Road. Nearby, Deakin University has numerous Bradford Pear trees which expand along the Univerity grounds and carpark which will soon be developed into the Convention Centre.

Western Forshore Road is the main vehicle and pedestrian access point connecting to Western Beach Road. The entry is shared with Cunningham Pier and has several walkways that can enter the site premises. Western Beach Road connects to Deakin University and Central Geelong as well the Esplanade which provides further access towards North Geelong suburbs and the M1 highway to Melbourne.

Natural lighting enters through the mouth of the whale predominantly due to its Northern orientation, however light also enters through the southern entry point on Western Beach Road. The facade also facilitates light to entre between the buildings scales creating filtered illumination throughout daylight hours. This provides users with well lit interior spaces without direct glare from sunlight.


Entry points to the Museum include direct access along a footbridge from Western Beach Road. This was initially impossible given the slope of the foreshore along Western Beach Road. This new access point directly meets up with Deakin University and the soon to be developed Convention Centre. Movement around the building includes steps and DDA compliant ramps and pathways which allow access for all people. The buildings access points connect people to other nearby amenitites serving as a central meeting place for pedestrian access to Western Beach.

Within the proposed concept is a newly developed pier which aims to provide two large garden beds with surrounding seating. This will break up the concrete area that is the pier, providing a more enjoying and tranquil space for users. The pier also incorperates an upper mezzanine level which provides a secondary garden space breaking up the levels connecting to the footbridge and Western Beach Road.

The Mouth of the Museum/Whale provides shaded views of Corio bay all the way out to the North Shore along the bay. Given the large mouth of the whale, people are able to look out towards the esplanade, Cunningham Pier as well as back towards some of Geelong City. These views are also amplified from the restaurants rooftop seating areas which are situated higher within the structure and have views of Corio bay completely sheltered and protected from weather and direct sunlight.

1. Solar panel scale fascade system - Blocks out northern light to reduce heat gain and minimilise direct sunlight onto exhibition pieces. The windows formed from this fascade, allow southern light into the building and makes the structure completely transparent from Western Beach Road.
2. Aluminium fin - Acts as a filter for rubbish that washes into Geelong. The fins will catch rubbish as it sweeps back out for it to be collected and safely disposed of.
3. Reclaimed laminated timber beam structure - The reclaimed timber used helps reduce energy consumption and aids forest conservation. The wood also has high durability making it ideal to hold the structural loads of the building. The beams have been shaped to symbolise the bone structure of the Hump Back whale and can be seen on all levels of the building.
4. Double glazed window system - Shaped and designed to symbolise the whales jaw and mouth. The double glazed window system that spans two levels will reduce heat gain while providing optimal views out to Corio Bay.


LONG SECTION (EAST)
SECTION A-A

SHORT SECTION (NORTH)
SECTION B-B

The Geelong Maritime Museum is a unique architectural vision that aims to redefine Western beach and become not only a significant feature of Geelongs Waterfront but also to Australian Architecture. While the building has a strong biological analogy to its design, it works well within the site and establishes a new context for the waters edge, creating an augementation between land and sea.


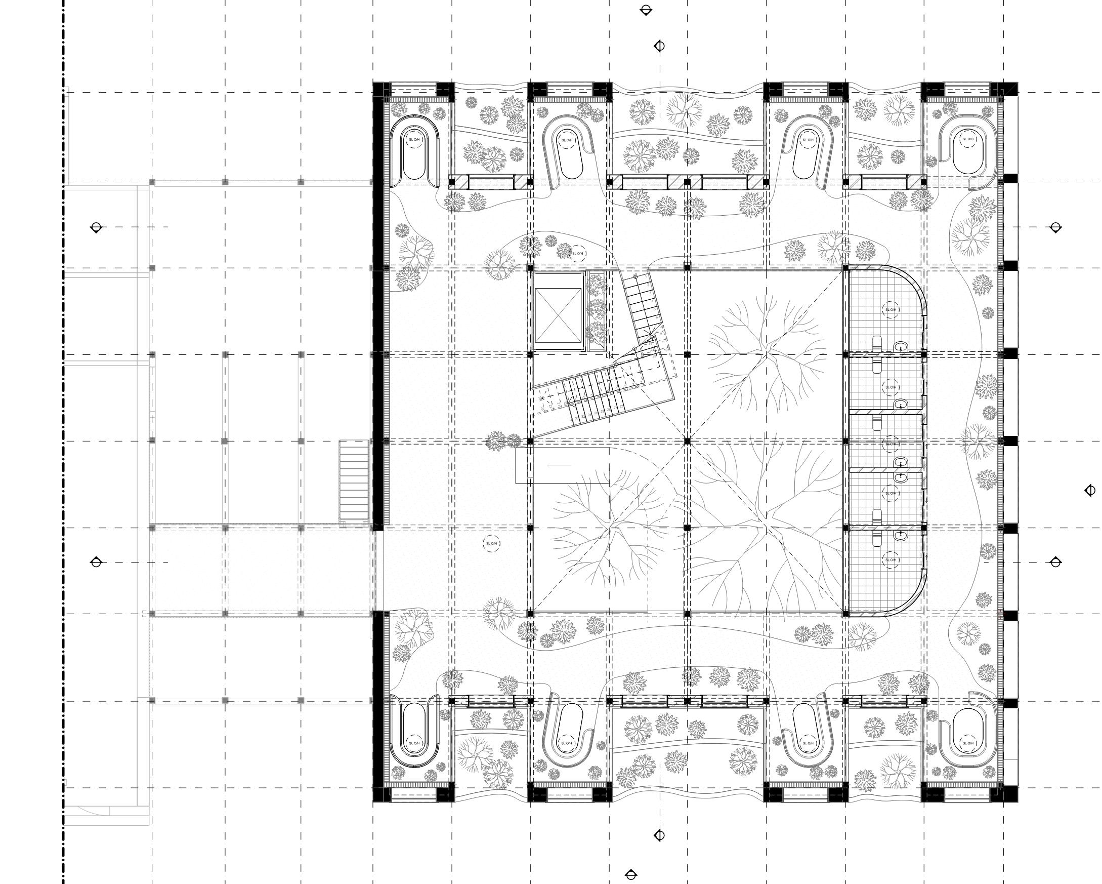
The former Dennys Lascelles woolstore at 20 Brougham Street stands as a testament to Geelong’s historical significance in the wool trade industry during the 20th century. Originally constructed in 1919 by Lyall and Sons, the woolstore evolved into a pivotal facility for wool storage, eventually being utilised by Dennys Lascelles. In 1953, the building underwent significant renovations, expanding its storage capacity and unifying the appearance of the adjoining structures. This building forms part of a rare cluster of woolstores in Geelong, including the Deakin University Waterfront Campus and the National Wool Museum, all reflecting the city’s rich industrial heritage. The building’s proximity to Geelong’s thriving CBD, as well as to Norlane, a historically disadvantaged suburb, strongly influenced the design objectives of this project. A key goal was to preserve the exterior façade, retain the building’s streetscape prominence, and maintain iconic elements such as portions of the sawtooth roof, fenestration, and the “Dennys Lascelles” signage on the eastern parapet. The client’s objectives were to achieve a balance between heritage conservation and sustainability, incorporating adaptive reuse while respecting the building’s cultural significance.
Now named “Sanctuary Vertical Gardens,” the corner of Brougham and Gheringhap Streets has been transformed into an urban refuge at the heart of Geelong. The design splits the building into two sections, connected by a central thoroughfare, and integrates transitional housing, healthcare, and childcare services with a vibrant, nature-infused garden space. The vertical gardens offer much needed public open spaces in an area where such spaces may diminish as the city continues to develop in the future. The design preserves the original brick façade and the iconic “Dennys Lascelles” signage, while repurposing the saw-tooth roofing to create a greenhouse floor on top of the building. The structure emphasises natural light, rainwater, and ventilation through openings in the existing fenestrations. These openings encourage rain to enter the building, nourishing the extensive greenery that climbs the exterior walls. The ground floor has also been recessed to improve pedestrian accessibility around the building. Perforated panels have been incorporated into the windows, providing users a sense of “refuge”—allowing them to look out over the city and waterfront while remaining hidden within the garden’s protective embrace. “Sanctuary Vertical Gardens” harmonises community values with the surrounding environment, seamlessly blending indoor and outdoor spaces. It creates a tranquil and immersive experience for visitors, offering a place to unwind, connect, and explore within a safe and secure urban oasis.





THIRD FLOOR| COMMUNITY GREEN HOUSE |1:100


The gardens span four levels, each offering distinct programs that connect to the adjacent building across the central thoroughfare. A large central void runs through the entire structure, exposing the heart of the building to natural elements, capped by an open framed sawtooth roof. On the ground floor, all new developments and vegetation adhere to a grid pattern established by the existing columns and beams of the woolstore. As users ascend through the building, the structured form gradually gives way to more organic, free-flowing spaces, reflecting the way plants grow unpredictably. However, the columns and beams remain intact across all levels, providing structural support for the floors while honouring the heritage of the original building. Large native trees, aligned with the grid, fill the central void, allowing vegetation to rise through the levels. Diamond plate steel stairs, designed to respect the industrial history of the building, have been placed off centre to symbolise the gradual loss of structure as users move upward.
The first floor, the “Sensory Garden”, is a relaxation space that heightens users’ awareness of their surroundings. Elements like native plants climbing the rough concrete walls, Eucalyptus-stained glass windows that bathe the interior in green light, and open spaces on the north and south façades invite wind, sunlight, and rain into the building. These openings also encourage birdlife to enter, immersing visitors in nature within the city.
The second floor, known as the “Interactive Garden,” features a landscape of grassy slopes for exploration. Users can climb a net through the existing windows of the setback wall to reach a hammock overlooking Brougham Street and Geelong’s waterfront. The windows on the south wall have been transformed into seating areas, while tunnels through the slopes, lit by light wells and portholes, offer playful interaction with the lower levels and the central void. An acrylic-glass-roofed slide extends from the second floor through the void to the first, encouraging exploration across the various levels.
The third floor is a community garden, departing entirely from the grid structure of the lower levels. The winding pathways lead to vegetable gardens and seating areas, creating a peaceful space for relaxation, with views of the central void, the city, and the waterfront.




|

|



REUSE OF SAW TOOTH ROOF FOR GREEN HOUSE

NEW FLOORS WITH CENTRAL VOID & PERIMETER GRATES

EXISTING COLUMNS & BEAMS RETAINED

The design of the vertical gardens aimed to preserve as much of the building’s original heritage as possible. The existing walls were retained, while the exterior and interior spaces were adapted by setting the ground floor back 3 metres, enhancing the building’s street presence. On the first floor, every second window was recessed by 3 metres, creating shaded openings that allow sunlight and rain into the building, inspired by the “Engawa” seen in Japanese architecture.
The original timber floors were replaced with structural slabs, landscaped with vegetation, and disconnected from the perimeter walls. Supported solely by the structural columns and beams, this 200mm cavity accommodates floor grates that allow heat, wind, and rain to flow freely between levels, promoting plant growth and reducing noise reverberation in the open spaces.
The existing saw-tooth roof was repurposed into a greenhouse level, now reoriented to face north, bringing in natural light and wind from Corio Bay. The south side, known for prevailing winds, serves as a buffer, preventing strong gusts from entering the building.
The original columns and beams were retained as a central design feature, providing both structural support and aesthetic continuity. These elements run through each level, crossing over the central void, also drawing inspiration from Japanese architecture and highlighting the building’s heritage throughout its transformation.



Moonah are a series of organic structures built in conjunction with the Victorian Fisheries Authority Marine and Freshwater Discovery Centre. The buildings comprise of an Eco Centre and Lodge unified by a central entry point that connects to the Discovery Centre. The two buildings are placed along the embankment of the globally significant wetland, Swan Bay in Queenscliff. The two buildings have been developed in a way of respecting the historical, current and indigenous

cultural context of the Swan Bay lands. The design acknowledges the Wadawurrung people and their connection to the elements of trees and water within Wadawurrung country, and how their environment has been impacted over time. Moonah, a native protected tree thats branches warp sporadically are commonnly present in and around the site in which the design takes inspiration.


The flow of water and its imprint on the earth create coastal erosion that is depicted in free flowing walls and wavy rooftops that expand over both the Eco Cente and Eco Lodge.
Arches have been created in a seamless flow of waves, emphasising a continuous undulating rythmn as if the two buildings have fluidity, creating a connection between sea and land. This connection depicts the significance of Wadawurrung peoples imprint on country and the protection of both sea and land.
Moonah is a sustainable setting that allows recreation, relaxation and reflection. The functions and materials are cohesive and show it is empathetic to its natural surroundings.



The Eco Lodge accommodation is designed to create a lively and accessible space for occupants. The free flowing and wavy timber is warped over the structure like a tree canopy, creating a seamless connection to the Eco centre building and to the surrounding environment. The floorplate and form of the Lodge is subject to the organic erosion imprints on the Swan Bay coastline which form a unique floorplan and a series of different accommodation spaces. The wavy canopy roof opens to allow trees to grow out through the voids, further connecting the building to the land around it.



The Eco Centre is a mix of commercial elements that aim to educate and inform users of the Swan Bay area, its natural plant life as well as fish and birds found around Queenscliff.
Moonah trees are potrayed heavily throughout this concept in which forms the basis of the tunnel that runs through the Eco Centre. The timber tunnel symbolises the overhead canopy of Moonah trees when travelling to the site along Bellarine Highway.
Its timber beams undulate around the user creating a sense of surrounding and protection. The tunnel also serves to accomodate the existing footpath already on site with it connecting all buildings together towards the Discovery Centre.









Two years after completing the Moonah project, we were tasked as part of a university assignment in creating design resolutions for previously completed works. In this resolution, Moonah was adapted to incorporate new ironbark tree columns to support the lightweight, curved roof structure. Locally sourced ironbark timber was further treated to meet BAL 29 requirements.
The columns were connected to a Hess GLT beam, which spanned the length of the roof and integrated with a freeform waffle frame, also supplied by Hess. The roofing and ceiling panels were fitted with Sculptform steam bent spotted gum mounted battens, designed for easy attachment and removal for maintenance.


Additional considerations included an efficient drainage system for the roof, which channels water into a 200,000-litre ACO Stormbrixx retention tank installed below ground. This allows the building to rely entirely on harvested rainwater.
A key feature of the development in the Zen Garden space, introduces a new indigenous dark room designed to heighten the senses, through light and shadow. As visitors move through this dark, tranquil space, they transition into a light-filled, natural environment. The dark room serves as a moment of calm before entering the Zen garden, creating a peaceful progression.
The Zen garden also features an elevated mezzanine with integrated drainage solutions, including a box gutter and light wells that illuminate the lower floor. These light wells were particularly important for brightening the tunnel running through the building, which required more natural light during the day.



The proposed Geelong Gallery extension and redevelopment aims to modernise the gallery by creating a cultural presence within Geelong and Victoria while still keeping the heritage facade located in Johnstone Park. The building is located in the heart of Geelong city and is connected directly to Geelong town hall and Geelong library and heritage centre.
In consideration of Geelongs long maritime history in Australia, I envisioned a structure which embodies a representation of Australia’s coastal landscape, taking inspiration from Coral found in the ocean. Coral reefs provide shelter and spawning grounds for ocean life and serve a vital role in the marine ecosystem. Given Geelongs historical connection to the surrounding bay as well as being in close proximity to the great ocean road which it connects to Melbourne, White coral was chosen as the buildings analogical form. White coral is also significant as it represents climate change and the increasing ocean temperatures which have led to coral bleaching all across the world and in particular the Great Barrier Reef which is currently being threatened by global warming.
In such, the building takes on a white coral exo skeleton that filters natural light during daylight periods and city lights at nightime for the interior spaces of the Gallery. This creates a visual experience through a play of light for users walking through the gallery spaces.
The New gallery aims to increase in scale to meet the large adjoining structures of the neighbouring Geelong city town hall and Geelong Library. The Gallery is intended to connect to both buildings to allow free flowing movement for people during events and exhibitions.


The existing building features a single floor with an upper mezzanine level to meet the elevated height of the existing heritage steps and facade in Johnstone Park. The demolition plans aim to remove all spaces which are not listed as heritage to allow for the new development of the gallery.





The Short Section (A-A) faces north towards Little Malop street. It shows the various levels of gallery walkways around exhibition spaces as well as the many voids and openings which allow the building complex to feel larger, while also making use of natural lighting during daylight hours. The arched coral roof organically curves into a central column and light well, petruding through a void to the gallery’s main entrance.






The Long Section faces West towards Geelong City Town Hall and Gheringhap Street. The Long Section (B-B) comprises of basement level parking, loading zones and storage for gallery artwork as well as exhibition and gallery spaces and a theatrette. On the ground level there is also a seperated meeting room and classroom area. The coral shell can be seen to wrap over the internal structure encasing it in a porous shell. Galleries can also be seen to wrap around the perimeter of the building allowing for ease of movement around the building, maximising natural lighting.


Geelong Gallery’s ground floor space comprises of two key functions. That is to serve as a public gallery space, while also maintaining private areas seperated from the gallery for meeting room and classroom hire as well as office spaces for employees of the gallery. The ground floor has two entrances with a seperated private entrance for staff and room hire and two large openings down the Eastern side of the building. A side entrance was made to allow for ease of access from either Little Malop street or Johnstone park.
Given the length of the adjoining buildings in the park, this opening also creates more pedestrian movement through the side entrance, as it encourages people to shortcut through to get to the other side towards their destination. The Gallery interwines with the Library and Town hall, making use of connected entry ways that provide free flowing movement of staff.


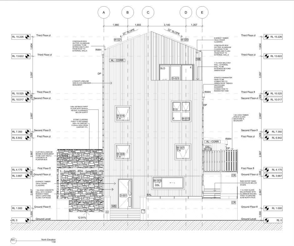
The Triangle House is a currently built project in Seongnam-si ,South Korea, designed by TIUM Architects. As part of a university studio design, we were to adapt the Triangle House to Australian standards, while also incorperating Cross Laminated Timber to replace all structural components of the building. With this, new walls, shear walls, staircasing and floor panels were swapped with CLT. The only issue while reconstructing the building to meet Australian standards was that the building was over allowable height restrictions. However, all other components meet AS and NCC regulations.
Additionally, given my construction management background, it was integral to locally source Australian products, including off the shelf items, allowing for reduced lead times in estimated material delivery and installation. These materials were also chosen to be suitable for Australian climates, long in durability, and high in weather resistance.









The Triangle House is situated in a location of choice on a hill depreciating in height of 2.6 metres. As such, 22 Forester street in Waurn Ponds was chosen due to its empty plots of land in high development areas, making it easier to modify the building to the chosen location. The building has a two tone cladding facade that contrasts with each other, while also maintaining a clean and modern design. The surrounding area is high in native Australian and coastal vegetation, that allows the building to isolate itself while in close proximity to neighbouring dwellings.
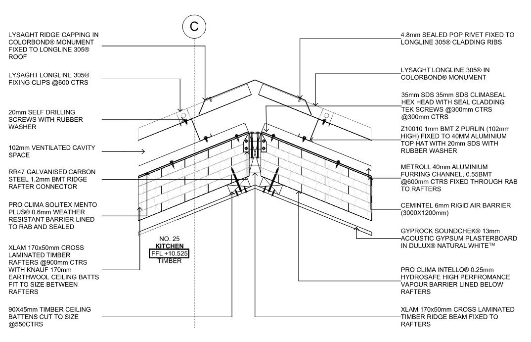
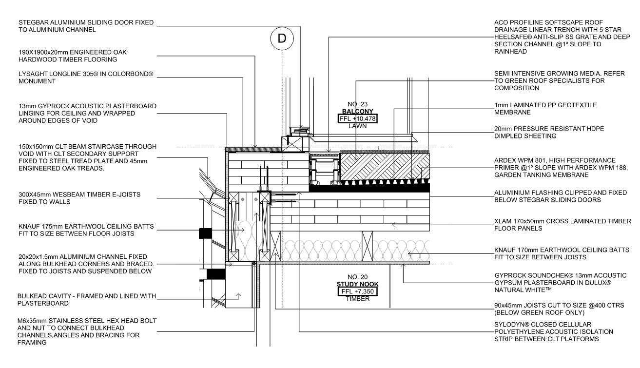
Details chosen for the specified project included roofing and drainage. Given the complex design of the roof on a raked ceiling, it required more depth in the roof to allow for the drainage of the concealed box gutters. Due to the nature of requiring CLT structural components, the slab/floor panel external to the building and below the green roof required a high water performance tanking membrane to ensure protection of the timber panels.




Triangle House | Second Floor

Triangle House | Third Floor
The structure comprises of three levels with a large triangular light well and void. All structural components are made from Cross Laminated Timber and have been indicated in the sections symbolically.

Triangle House South Section



https://www.linkedin.com/in/william-caris-210b9b1b8/
