Architectural Portfolio - 2023

Page 1

ARCHITECTURE PORTFOLIO PROJECT DESIGNER JANUARY 2023 / AYRESIVARCH.COM WILLIAM
HOWARD AYRES IV, ASSOC. AIA
TABLE OF CONTENTS
I
III 1
ELKTON FEASIBILITY STUDY HANOVER BOROUGH PUBLIC WORKS LOYOLA BLAKEFIELD
II
PRECEDENT
IV
VI 2
GILETTE TOWER
STUDY
V
MOTHER MARY LANGE ELEMENTARY SCHOOL

IELKTON FEASIBILITY STUDY

Commercial (11,238 SF) Buchart Horn / 2021 110-112 North Rd Elkton, MD

The Town of Elkton requestied proposals for an adaptive reuse feasibility study for the former Elkton Council Hall building located at 110112 North Street, Elkton, MD.

The design option shown is innovative and would protect and showcase the unique construction of the historic building. The design intent was to add economic value to the Downtown area and provide a revenue source for Elkton’s Main Street organization, the Elkton Alliance.

This project was funded through the Maryland Department of Housing and Community Development (DHCD) & the Technical Assistance Grant (TAG).

4
6

HISTORICAL CONTEXT

The two-story brick structure with a bell tower, was turned over to the commissioners in February of 1891. Once the Singerly Fire Company was incorporated in 1892, the first floor housed Singerly’s steam engine, hook-and-ladder, and two hose carts while the upper story served as the municipal office.

In a town at the time that relied on two old hand-pumpers for over 60 years, it was a modern advancement as the latest in firefighting.

10

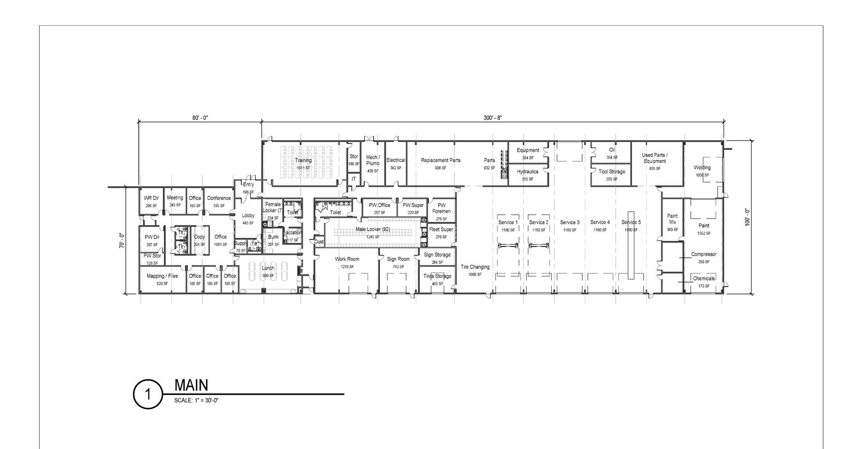
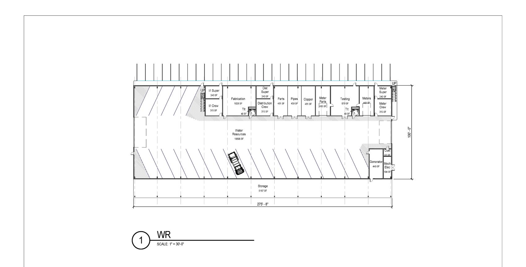
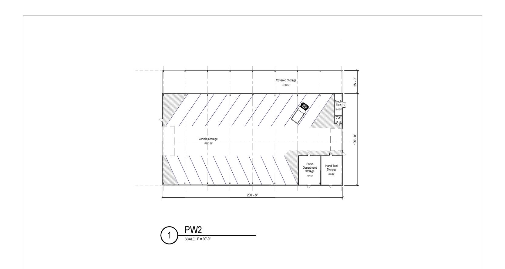
PUBLIC WORKS / ADMINISTRATION BUILDING

Municipal (11,238 SF) Buchart Horn / 2022-Current Client / Address Classified PA 17331

Buchart Horn provided architectural and engineering services to this Borough for the design and construction administration of a Municipal Public Works Service Maintenance Facility.

The project was built on the existing Public Works site and required a phased construction schedule. The project includes eight new buildings : two vehicle storage buildings, administration building, two wash bays, and salt/gravel storage bays

The Borough’s goals for the project were to be a model project for social, environmental, and economic sustainability as well as energy reduction, flooding remediation, and reduced emissions, all while using the unique resource opportunities at the site (solar access, stormwater).

II
12
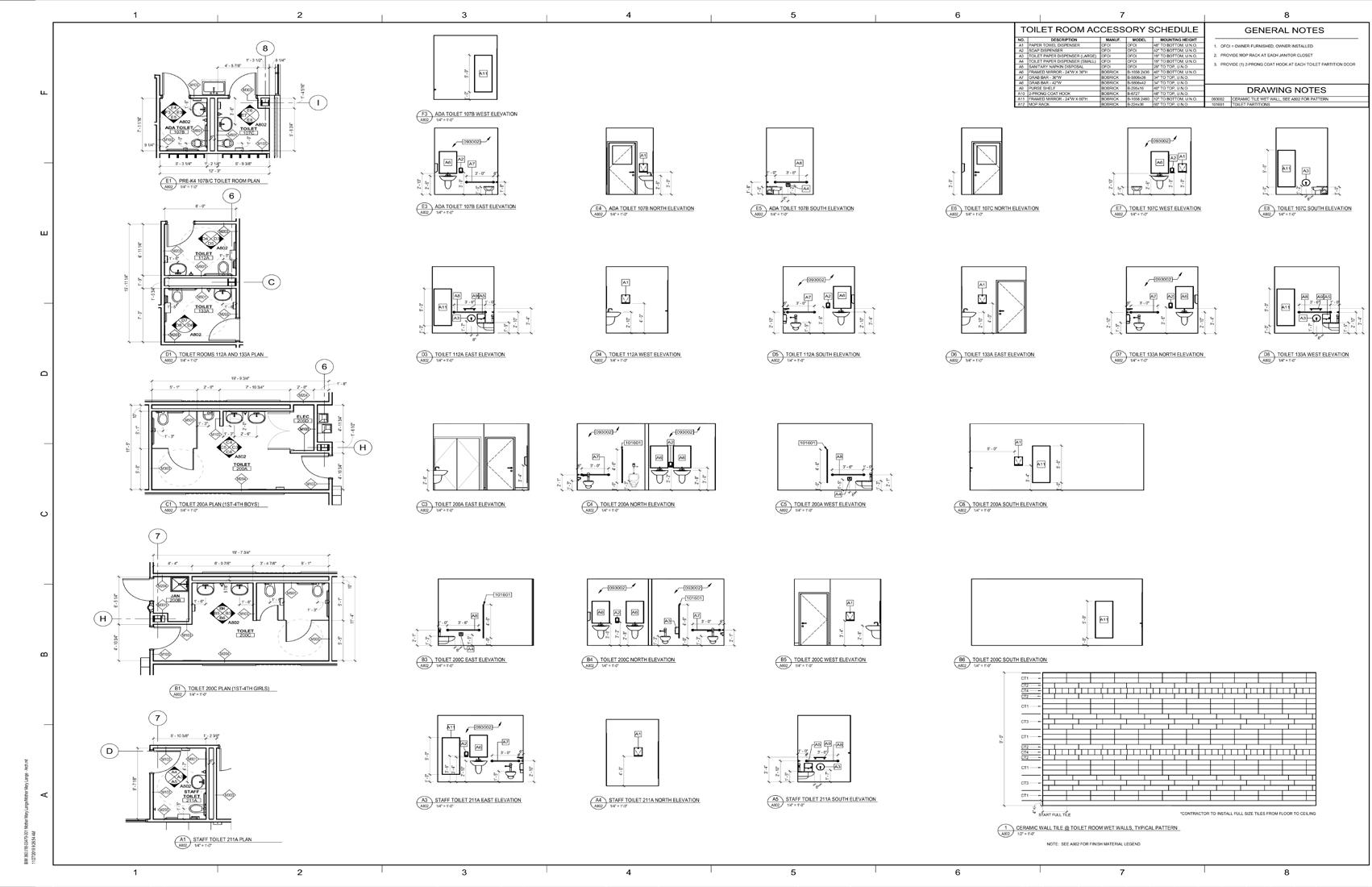
187 SF Bicycle 399 SF Detectives 189 SF Testing 133 SF Interview 110 SF Proc 345 SF Intake 51 SF Sec 538 SF Patrol 233 SF Sergeants 434 SF Wellness 127 SF EOC Storage 201 SF Fire Commision Assistant 96 SF Conflict 682 SF Public Lobby 269 SF Fire Chief 222 SF EMS Captain 119 SF Storage 122 SF Breakout 218 SF Reception 163 SF SRO / Co Res 221 SF Administrative Assistant 78 SF Closet 269 SF Lieutenant 248 SF Administrative Conference 269 SF Police Chief 78 SF Closet 121 SF Juv Rec 539 SF Records 411 SF Mechanical 300 SF Equipment 371 SF Quartermaster 128 SF Armory 128 SF Cleaning 299 SF Range Lobby 721 SF Archive Evidence 835 SF Evidence 143 SF Range Control 180 SF Shooting Area 1125 SF Firing Lanes 42 SF Custodial 39 SF Drugs 64 SF Weapons 45 SF Cash 282 SF Evidence Lab 389 SF Large Evidence Storage 389 SF Vehicle Evidence 1014 SF Sally Port 730 SF Male Locker (25) 822 SF EOC 147 SF Breakout 148 SF Kitchen 237 SF Lunch 289 SF Female Locker (5) 46 SF IT 74 SF Supplies 122 SF Copy Work 334 SF Electrical 247 SF Clerks 151 SF Mayor 168 SF Borough Secretary 300 SF Conference 199 SF Borough Manager 199 SF Conference 199 SF Property File 199 SF DPE Adminstator 178 SF Code/Permit Manager 178 SF Code Officer 280 SF Lunch 171 SF Open / Solicitor 236 SF Finance Director 178 SF Assistant Finance Director 178 SF Finance Administrator 199 SF HR Manager 178 SF Payroll 178 SF Assistant Manager 368 SF Copy / Work Mail 158 SF Accounts Receivable 158 SF Accounts Payable 560 SF General Files 420 SF Mapping 81 SF Supply 46 SF IT 175 SF Meeting 65 SF Lactation 68 SF Duty Bags (31) 122 SF Juvenile Interview 45 SF Cust SCALE: 1" = 30'-0" 1 Floor Plan 14
Vehicle Storage Cold Truck / Equipment Storage Water Resources Leaf Collection Salt Anti-Skid Container Storage Hand Wash Auto Wash Impound Fleet Maintenance Office Material Storage Employee Parking Visitor Parking Recycling Fueling Employee Parking HANOVER PUBLIC WORKS Cougar Drive SCALE: 1" = 100'-0" 1 LEVEL 1
16
18

LOYOLA BLAKEFIELD

Private K-12 (53,228 SF)

JMT Architecture / 2018-2020 500 Chestnut Ave Towson, MD

Complete renovation and addition to Wheeler Hall, the Upper School and oldest building on the Loyola Blakefield campus dating back to the 1930’s. Upgrades to the building include window replacement, drywall demolition and reinstallation, new ceilings and lighting, “telescoping” seating in the commons hall, and general spatial and finishes improvements to all classrooms, restrooms, and library. The entire building and addition were designed with “smart classroom” technology.

III
20

Existing

SITE ANALYSIS

This new Innovative Learning Center, a 50,000 SF+ building that will serve as a new middle school on campus to support 6th, 7th, and 8th graders; house science, computer, and robotics labs; and include a Learning Commons where all of the students will interact. The building will be designed to LEED® Silver standards and include ADA improvements, a green roof, and expansive views of Loyola’s grounds.

22 Enscape, Lumion, and Revit w/ Photoshop Editing
Conditions

INTERIOR DESIGN

The Innovative Learning Center was designed to be environmentally friendly and energy-efficient with a green roof and expansive views of Loyola’s grounds. The lower-right rendering shows the connecting staircase outside of the Center. The rendering above shows the final iteration with the finishing floor plan in the lower-left corner.

6
Enscape, Lumion, and Revit w/ Photoshop Editing
Enscape, Lumion, and Revit w/ Photoshop Editing

Enscape, Lumion, and Revit w/ Photoshop Editing

Enscape, Lumion, and Revit w/ Photoshop Editing

INTERIOR DESIGN

A one-of-a-kind space for the students that artistically combines both modern and traditional Jesuit architectural components.

26
Enscape, Lumion, and Revit w/ Photoshop Editing

FLOOR & WALL FINISHES

Every aspect of interior design was utilized during this project. From the marble tile floors to colored walls, the school is filled with variations of enginuity and functionality. The building houses 10 classrooms, two science labs, an art studio, cyber science lab, and a learning commons where all the students can interact.

Enscape, Lumion, and Revit w/ Photoshop Editing Enscape, Lumion, and Revit
Existing Conditions
10

CLASSROOM DESIGN

Enscape, Lumion, and Revit w/ Photoshop Editing

Enscape, Lumion, and Revit w/ Photoshop Editing

w/ Photoshop Editing
Enscape, Lumion, and Revit

IV

MOTHER MARY LANGE ELEMENTARY SCHOOL

Private K-8 (65,000 SF)

JMT Architecture / 2018-2020

200 Martin Luther King Jr. Blvd Baltimore, MD

Mother Mary Lange Catholic School is a $24-million investment and scheduled to open in Fall 2021. The new K-8 school will provide students in Baltimore City with access to an academically excellent Catholic education, especially those living in an area of the city that has been without access for many years. Mother Mary Lange Catholic School will be the new home for students currently attending Saints James & John and Holy Angels Catholic Schools, representing 400plus students living in 40 zip codes throughout the city. Enrollment is expected to total 520 within its fourth year of operation.

30
w/ Photoshop Editing
SketchUp, Lumion, and Revit
ARCHITECTURE © JMT 2019 40 WIGHT AVENUE HUNT VALLEY, MARYLAND 21030-4151 410.372.4617 WWW.JMTARCHITECTURE.COM
.
B-03
MOTHER MARY LANGE CATHOLIC SCHOOL LEXINGTON STREET CROSS - OPTION 3
32
SketchUp, BluBeam, and Photoshop
ARCHITECTURE © JMT 2019 40 WIGHT AVENUE HUNT VALLEY, MARYLAND 21030-4151 410.372.4617 WWW.JMTARCHITECTURE.COM . MOTHER MARY LANGE CATHOLIC SCHOOL B-02 LEXINGTON STREET CROSS - OPTION 2 SketchUp, BluBeam, and Photoshop 34

MOTHER MARY LANGE CATHOLIC SCHOOL

ARCHITECTURE © JMT 2019 40 WIGHT AVENUE HUNT VALLEY, MARYLAND 21030-4151 410.372.4617 WWW.JMTARCHITECTURE.COM .
B-01
36
LEXINGTON STREET CROSS - OPTION 1 SketchUp, BluBeam, and Photoshop
SketchUp, Lumion, and Photoshop

GILETTE TOWER

Undergraduate Studio Project Spring Semester/ 2018 University of Maryland, College Park

Apart of the Aerotropolis studio during the senior year of my undergraduate studies; Gilette Tower along with the aerotroplis were created in an effort to provide College Park, MD with a more modern, aviation themed epicenter. The foundation of this studio was to learn how to redesign existing conditions with a futuristic eye.

This watchtower is the center of the aerotropolis. It is adjacent to the city’s metro line which brings in majority of the area’s commuters. With the new purple line being constructed in College Park now, this project goes hand in hand with that aesthetic.

V
42
Revit w/ Photoshop Editing
AutoCAD w/ Revit 44

AAV POINT-OF-VIEW

SketchUp w/ Photoshop
34
HAND-DRAWINGS 46
Revit w/ Photoshop Editing

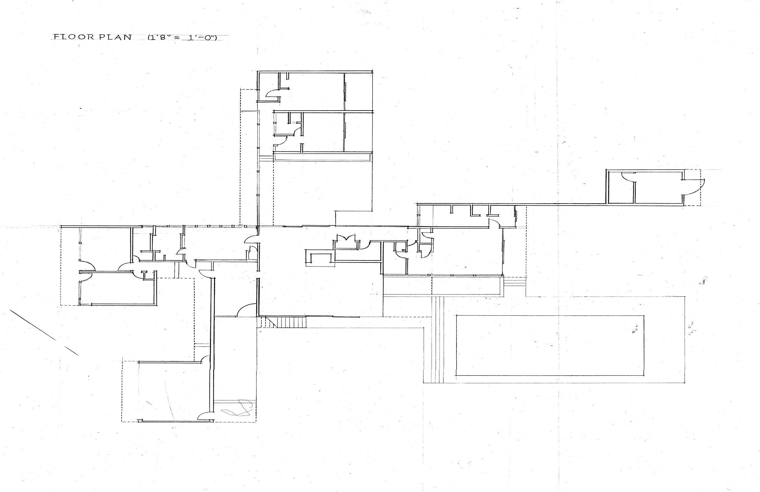
PRECEDENT STUDY

Undergraduate Studio Project Spring Semester/ 2016

The Kaufmann House University of Maryland, College Park

The Kauffman House, one of architect Richard Neutra’s several iconic projects, is in Palm Springs, California. Completed between 1946-1947, the Kaufmann House was a vacation home for Edgar J. Kaufmann Sr. and his family to escape the harsh winters of the northeast. This precedent study was our studio program’s introduction to architecture. We were all assigned a famous home/monument and instructed to study the building in addition to the site, architect behind the design, and its properties.

VI
48
Revit w/ Photoshop Editing
HAND-DRAFTED 50
40
HAND-DRAFTED 52
42
HAND-DRAFTED 54
44
56
HAND-DRAWN

Turn static files into dynamic content formats.

Create a flipbook
Issuu converts static files into: digital portfolios, online yearbooks, online catalogs, digital photo albums and more. Sign up and create your flipbook.