ICHARD ARREN
PORTFOLIO
TABLE OF CONTENTS

PG 4-9

PG 10-17



































![]()

PG 4-9

PG 10-17

















































Located adjacent to Washington D.C.’s Judiciary Square, this annex to the Library of Congress acts as a point of physical transition from a highly-dense urban area to the more open green space surrounding Judiciary Square. This library also acts as a cultural threshold for justice, where the pursuit of knowledge leads to breaking down barriers of bias and inequity. The building’s program incorporates a large open atrium and auditorium for community gathering, providing opportunities to engage in meaningful conversation. A series of bridges span across the atrium to connect the public and private spaces.
PROCESS MODELS PRECEDENTS
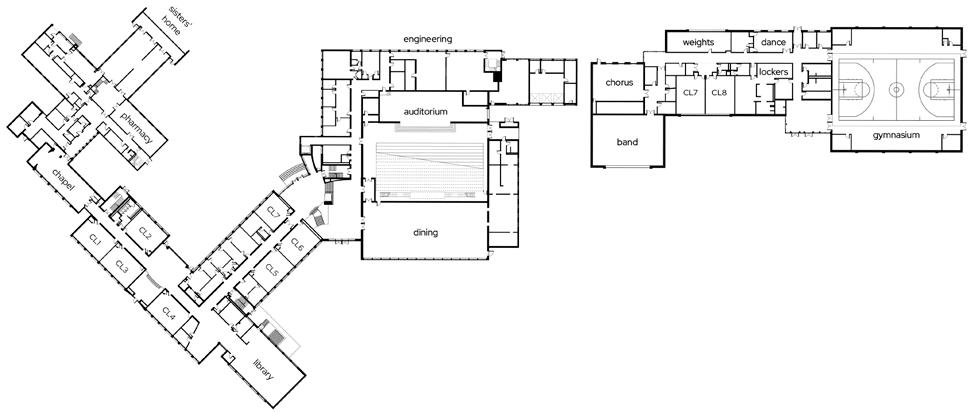
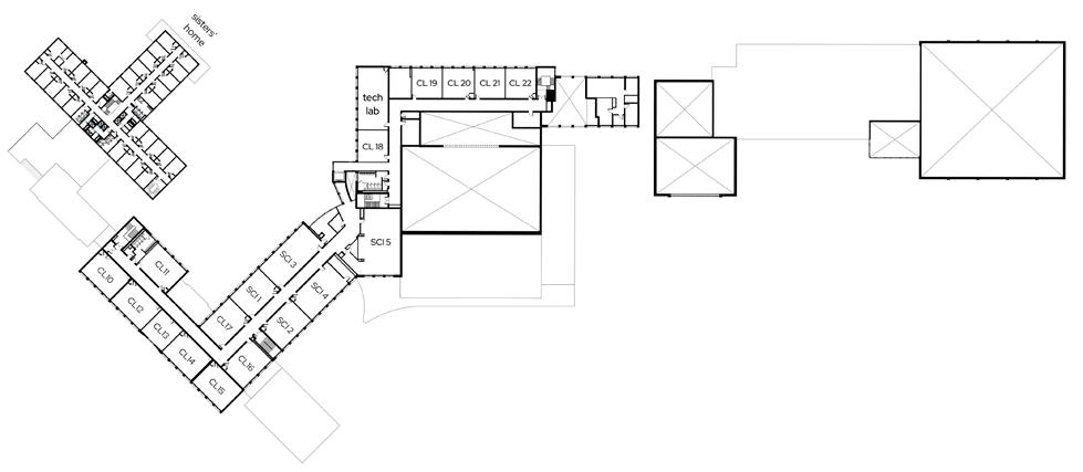
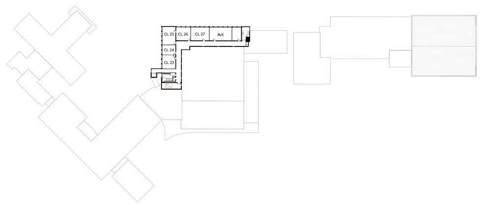
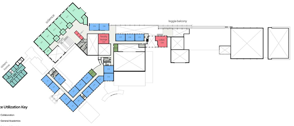
Client: Elizabeth Seaton High School
Scope of Work: Master Planning
Scope of Design: Renovation & Addition
Size: ~185,000 sf
Role: BIM Modeling, Zoning + Site Analysis, Interior Program Layout, Presentation Packaging
Software: Archicad, PDF Studios, Adobe Suites
Narrative:
Elizabeth Seton High School is a three-story, all-girls private institution located in the suburban context of Bladensburg, Maryland. The existing campus was characterized by outdated facilities and inefficient circulation patterns that hindered connectivity and spatial coherence.
Through a collaborative process with the school’s design and building committee, the proposal establishes a long term framework that balances functionality, flexibility, and sustainability. Strategic additions physically and visually link the academic and athletic buildings, transforming previously isolated structures into a more interconnected and navigable campus. These new connections also introduce opportunities for informal gathering, collaboration, and student engagement beyond the classroom environment.
Programmatically, the design expands the campus by approximately 58,450 square feet, accommodating new instructional spaces, administrative offices, and student commons areas. The architecture prioritizes natural light, clear wayfinding, and accessibility, creating an inclusive environment that reflects the school’s commitment to academic excellence and community.





















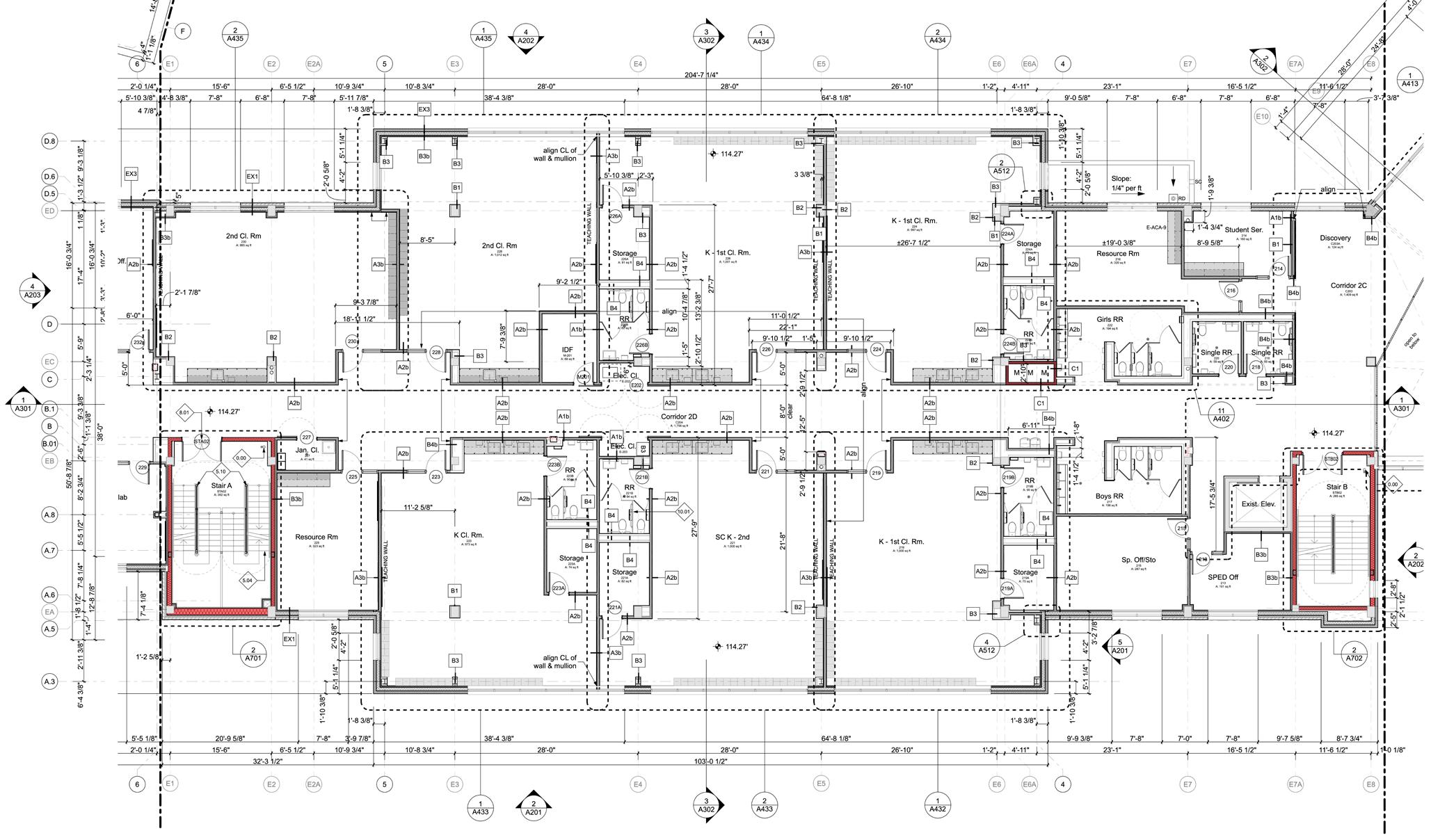
Client: DC Public School Systems (DCPS)
Scope of Work: Design-Build Size: ~85,000 sf
Role: BIM Modeling, Zoning + Site Analysis, Interior Program Layout, Techinical Designer, LEED Documetation
Phases: Concept Design, Schematic Design, Design Development, Construction Documentation, Construction Administration Software: Archicad, PDF Studios, Adobe Suites
Narrative:
Malcolm X Elementary School is a comprehensive renovation of an existing three-story building with a partial basement located in Southeast Washington, DC. The project aims to transform the facility into a fully revitalized, Net-Zero learning environment serving Pre-K through 5th grade students, with the addition of an infant and toddler care center.
As part of DCPS’s initiative to modernize and sustainably restore public schools, Malcolm X is one of the first projects to incorporate Net-Zero design requirements. To achieve Net-Zero performance, the existing exterior CMU shell was demolished and replaced with a high-performance building envelope. The design also integrates photovoltaic panels across all roof surfaces and parking areas, along with geothermal wells distributed throughout the site—carefully planned around the underlying Green/Yellow Metro line.
Together, these efforts position Malcolm X Elementary as a model for sustainable, future-focused educational design within the DCPS system.




























Studio: Integrated Building Design Studio (IBDS) - Spring 2022
Professor: Brian Donnelly
Partner: Rachel Searl
Software: Revit, Adobe Suites, SketchUp
Award: James Binkely Prize: Honorable Mention
Narrative:
Situated adjacent to Washington D.C.’s Judiciary Square, this annex to the Library of Congress operates as both a spatial and conceptual mediator between the dense urban fabric of the city and the open civic landscape surrounding the Square.
Our design establishes a dialogue between knowledge and justice, positioning the library as a cultural threshold where intellectual pursuit becomes an instrument for dismantling systemic bias and inequity. The programmatic organization centers on a grand atrium and auditorium, envisioned as catalysts for civic engagement and collective discourse. A series of bridges traverse the atrium, orchestrating visual and physical connections between public and private realms, while reinforcing themes of transparency, permeability, and exchange.
The new library integrates a series of passive design strategies that align with Washington D.C.’s 2030 sustainability goals. Mass timber construction is employed for its carbon-sequestering properties, establishing low embodied energy structural system. A hydroponic green roof system filters greywater while contributing to thermal regulation. Additionally, a network of underground cisterns collects and stores filtered water for reuse. Together, these systems articulate a stewardship to responsible nd sustainable design practices.






















































Located adjacent to Washington D.C.’s Judiciary Square, this annex to the Library of Congress acts of physical transition from a highly-dense urban area to the more open green space surrounding Square. This library also acts as a cultural threshold for justice, where the pursuit of knowledge breaking down barriers of bias and inequity. The building’s program incorporates a large open atrium







































































































































































































COMPUTER LAB
BOOK STACKS






















BOOK STACKS


























BOOK STACKS
















COMPUTER LAB

COMPUTER LAB


AUDITORIUM
































































COMPUTER LAB




BOOK STACKS

























































AUDITORIUM
































COMPUTER LAB



AUDITORIUM


















































































































adjacent to Washington D.C.’s Judiciary Square, this annex to the Library of Congress acts as a point transition from a highly-dense urban area to the more open green space surrounding Judiciary library also acts as a cultural threshold for justice, where the pursuit of knowledge leads to barriers of bias and inequity. The building’s program incorporates a large open atrium and community gathering, providing opportunities to engage in meaningful conversation. A bridges span across the atrium to connect the public and private spaces.











Washington D.C.’s Judiciary Square, this annex to the Library of Congress acts as a point highly-dense urban area to the more open green space surrounding Judiciary as a cultural threshold for justice, where the pursuit of knowledge leads to bias and inequity. The building’s program incorporates a large open atrium and gathering, providing opportunities to engage in meaningful conversation. A the atrium to connect the public and private spaces.




























































SYNERGY SECTION


























