Architecture Portfolio 2022

Page 1

Portfolio Architectural

Fikri Maulana 2022

Fikri Maulana Padang, 9 Juni 2000 Jl. Semen 3 Cijerah, Bandung +6282121526969 fikrimaulanaamisbah@gmail.com

CURRICULUM VITAE

Pendidikan

2015 - 2018 | SMA Labschool UPI

2018 - 2022 | Institut Teknologi Nasional S1 Prodi Arsitektur

Kemampuan

Adobe Photoshop Adobe InDesign AutoCAD Enscape Lumion SketchUp Vegas

Pengalaman Kompetisi

2015 - Sekarang | Karang Taruna Swabhakti RW 05 Kel. Caringin Kota Bandung Anggota

2019 - 2020 | Himpunan Mahasiswa Arsitektur Anggota Div. Kemahasiswaan

2020 - 2021 | Himpunan Mahasiswa Arsitektur Ketua Himpunan

2021 | CV.Mahoni (Praktik Kerja) Junior Architect

2021 | Sayembara Krearture Vol.III Peserta

CONTENTS

- Bandung Sport Hall Akademik

- Mixed Use - Bank & Retail Akademik

- Netra Eye Hospital Bandung Akademik

- Pre-fab BeWanDuy House Kompetisi

BANDUNG SPORT HALL

Lokasi :Jl. Soekarno - Hatta no. 439, Kota Bandung Luas : ± 10.600 m2 Tahun : 2021

Bandung Sport hall merupakan sarana olahraga di kota bandung, terdapat lapang futsal dan basket. Bandung Sport Hall merupakan tugas akademik yang berfokus pada bangunan bentang lebar, serta penggunaan atap Flat Truss.

Mixed-Use Bank & Retail

Lokasi :Jl. Asia - Afrika, Kota Bandung Luas : ± 6.000 m2 Tahun : 2021

Bangunan Mixed-Use di tengah kota Bandung yang tetap harus memiliki Axis yang sama dengan bangunan sekitar dikarenakan tepat berada di kawasan Heritage Kota Bandung. Bentuk repetitif merupakan suatu upaya untuk tetap memberikan bentuk bangunan yang selaras di jalan ini.

Netra Eye Hospital

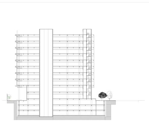
Lokasi :Jl. Soekarno - Hatta, Kota Bandung Luas : ± 6.500 m2 Tahun : 2022

Netra Eye Hospital adalah Rumah Sakit Khusus mata di Kota Bandung, dengan daya tampung rawat inap 30 kamar serta terdapat fasilitas rawat jalan yang baik dan penunjang lainnya. Netra eye Hospital adalah jawaban dari kebutuhan atas Rumah Sakit Mata di Jawa Barat yang dimana masih kurangnya penyembuhan untuk masyarakat yang terkena penyakit katarak maupun penyakit mata lainnya. Netra Eye Hospital adalah Project Tugas Akhir, dimana ‘Netra’ disini mengadaptasi Biofilik Desain ke dalam bangunan Rumah Sakit. Penyembuhan pasien rumah sakit tidak dapat hanya sekedar dari pengobatan namun juga lingkungan berperan penting.

Pre - Fab BeWanDuy House

BeWanDuy House adalah hasil pemikiran dan solusi dari rumah prefabrikasi di Indonesia. Rumah ini terbuat dari beberapa modul per 3m dengan struktur kayu yang menggunakan penutup dinding papan GRC. Rumah ini memiliki luas yang dapat mengikuti bentuk tapak. Harapan nya adalah dengan efisiensi bahan serta waktu pembangunan rumah di Indonesia.

Fikri Maulana Bandung, Indonesia +6282121526969 fikrimaulanaamisbah@gmail.com

Turn static files into dynamic content formats.

Create a flipbook
Issuu converts static files into: digital portfolios, online yearbooks, online catalogs, digital photo albums and more. Sign up and create your flipbook.