蔡宛靚建築系大三作品集

Page 1

2023 Seleted Works National University Of Kaosiung 蔡宛靚
PORTFOLIO

CONTENTS

2022.09.14-2022.11.02 果貿公有市場|中繼站 2022.11.02-2022.12.21 這個世界永遠缺少一個X|穿越 2023.02.22-2023.04.16 高大建築學園|CONNECTION 2023.04.19-2023.06.07 三民社會住宅|SHARED

2022|果貿公有市場|中繼站

SITE ANALYSIS

基地位置位於高雄左營,目前是左營果貿市場用 地,基地西側具大型綠園道公園,假日會有家庭 會在此公園聚集。北側為高雄左營眷村、舊城東 門、龍虎塔,為歷史性質分佈的區域。基地南側 則為高雄市立美術館,較多文化、美術相關產業 的分布區域。

SITE SITUATION

SCHOOL DISTRIBUTED PARK DISTRIBUTED MILITARY VILLAGE DISTRIBUTED

透過分析學校分布的位置、綠地分布以及眷村的分布,轉化新的果貿市場成不單單是 一般的早市,而是能夠變成不同年齡層民眾的中繼站,是學生在上下學的過程中,成

為騎乘腳踏車路途中的中繼站,是眷村老年人找朋友聊天路途中的中繼站,是家庭假 日公園散步時的中繼站。此基地的眷村—果貿三村,在假日時也有假日二手市集的擺

設,而中繼站也將能除了擺設假日市集,也能匯集民眾作為不同用途的中繼站。

海光三村 自助新村 崇實新村 果貿三村

2022|果貿公有市場|中繼站

CONCEPT

量體概念

THIRD FLOOR PLAN

利用摺疊門創造出不只有一樓才

有的大型廣場,創造出每層樓都能 夠聚集的廣場。廣場的用途不只提

SECOND FLOOR PLAN

供給眷村老年人使用,包含下課經 過基地進行休憩的學生、假日小家

庭帶著孩子買著食物到基地休憩、 抑或是假日市集的擺設場所。創造 出讓人能久留的市場,讓市場的用 途不再是只限於買菜吃飯的場所。

FIRST FLOOR PLAN

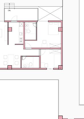
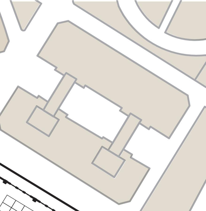
SITE PLAN 2022|果貿公有市場|中繼站

1. MARKET 2. OFFICE
1 2 3 1 A A' B B' N
3. BICYCLE PUMP STATION
SCALE:1/800
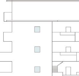
FLOOR PLAN 1 1 1 1 3 4 2
2022|果貿公有市場|中繼站
SECOND FLOOR PLAN THIRD FLOOR PLAN 1. AUDIOVISUAL ROOM 2. FAST FOOD RESTAURANT 3. EXHIBITION ROOM 4.OUTDOOR DINING AREA 1. WORKSHOP
N
SCALE:1/500
2022|果貿公有市場|中繼站
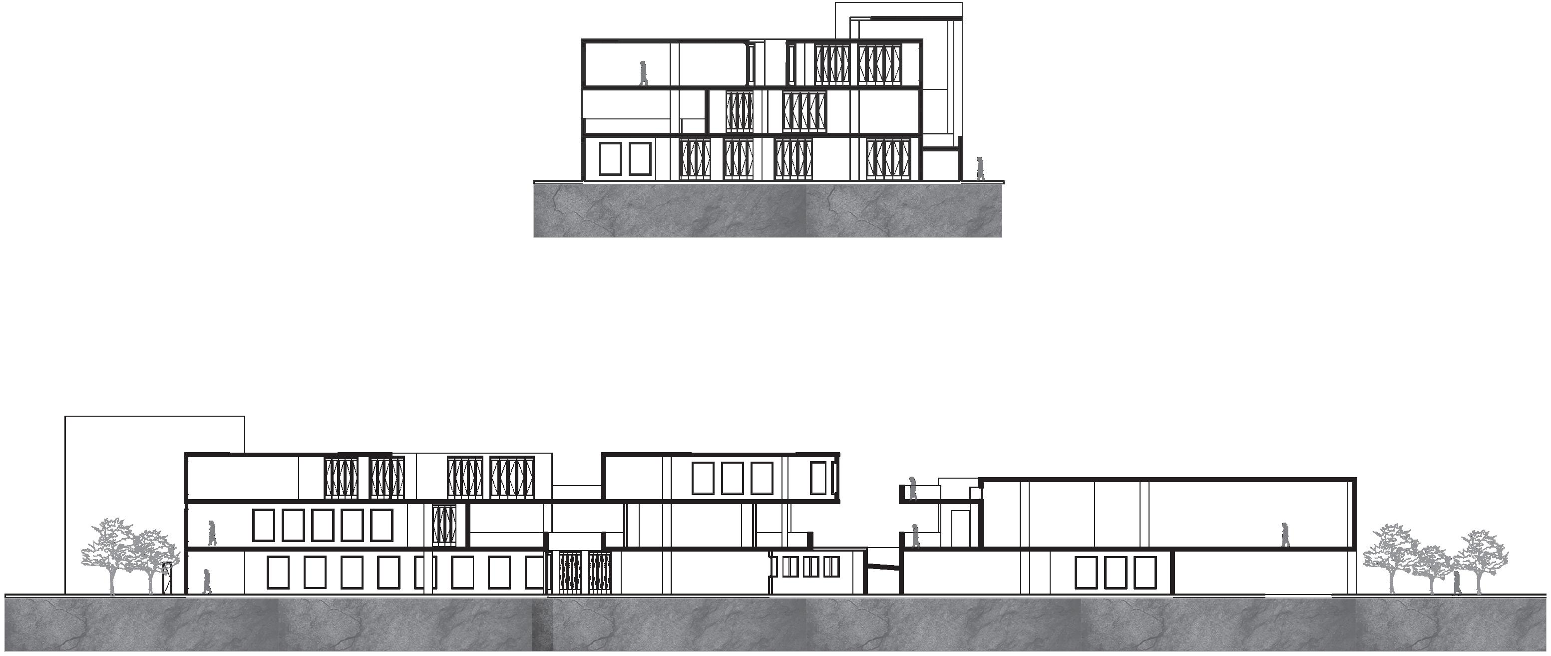
SECTION A-A' SECTION B-B' SCALE:1/200 SCALE:1/200

2022|果貿公有市場|中繼站

2022|果貿公有市場|中繼站

EAST ELEVATION

WEST ELEVATION

NORTH ELEVATION

SOUTH ELEVATION

G 2 3
1. AUDIOVISUAL ROOM 2. FAST FOOD RESTAURANT 3. EXHIBITION ROOM 4.OUTDOOR DINING AREA 1. MARKET 2. OFFICE 3. BICYCLE PUMP STATION
1 1 1 1 2 3 4 1 1 2 3
1. WORKSHOP
2022|果貿公有市場|中繼站

2022|這個世界永遠缺少一個X|穿越

SITE ANALYSIS

台中車站

台中刑務所演武場

綠空鐵道1988

基地位置位於台中文創產業園區內,周遭有台中第三市

場、兒童運動中心、台中火車站、綠帶的長春公園和綠空 鐵道1988以及藍帶的綠川。

而文創產業園區目前計畫建置創意學院,以無圍牆、藝文 生活步道的建置創造周邊巷弄藝術生活連接到周邊的藝術 景點和藝文小學。

SITE SITUATION

分析基地周遭老年人的群聚以及文創產業園區 的計畫,發現到老年人多群聚於公園綠帶處以及 文創園區廣場遮蔭處,但基地周遭能夠休憩的空 間過少、以及遮蔭處過少。透過分析基地歷史、 學校分布、老年人分布,將此次設計取名—穿 越,穿越年齡上的限制,老年人到幼年都能夠休 憩,和從日據時代製酒廠到現今的時代穿越。

綠川 長春公園 兒童運動中心 台中第三市場
ELDERLY SCHOOL 2022|這個世界永遠缺少一個X|穿越

2022|這個世界永遠缺少一個X|穿越

CONCEPT 量體概念

SECOND FLOOR PLAN 人行動線

FIRST FLOOR PLAN

將藍帶的視線往上層移,讓貫穿建築的藍帶不只在一 樓能夠觀賞。

THIRD FLOOR PLAN

利用綠川延伸藍帶進入基地,貫穿主體建築的分布,利用不一樣的退縮、 樓梯的設置,創造初步一樣大小的休憩角落,提供幼年至老年人都能做 使用。

在視線上也將開窗多設置在面藍帶側,讓室外與室內更多視線上的互動。

藍帶分布 視線方向
藍帶分布 視線方向
視線方向
藍帶分布

2022|這個世界永遠缺少一個X|穿越

2022|這個世界永遠缺少一個X|穿越

2022|
a a’ b b’ 1 5 2 4 5 6 3 4
這個世界永遠缺少一個X|穿越 SITE PLAN
1. CAFE 2. RESTAURANT 3. GALLERY 4. STORAGE 5. KITCHEN 6. MEETING ROOM

2022|這個世界永遠缺少一個X|穿越

THIRD FLOOR PLAN

SCALE:1/500

SECOND FLOOR PLAN

SCALE:1/500

N DN
1. CAFE 2. RESTAURANT 3. VIP ROOM 4. CUISINE CLASSROOM 1. AUSIO-VISUAL ROOM 2. BACKSTAGE
N
N

2022|這個世界永遠缺少一個X|穿越

SECTION

SCALE:1/300

SECTION A-A'

SECTION B-B'

2022|這個世界永遠缺少一個X|穿越

NORTH ELEVATION

SOUTH ELEVATION

EAST ELEVATION

WEST ELEVATION

2022|
這個世界永遠缺少一個X|穿越

2022|這個世界永遠缺少一個X|穿越

G 2 3
1. CAFE 2. RESTAURANT 3. GALLERY 4. STORAGE 5. KITCHEN 6. MEETING ROOM 1. CAFE 2. RESTAURANT 3. VIP ROOM 4. CUISINE CLASSROOM 1. AUSIO-VISUAL ROOM
1 2 4 5 6 3 4 3 2 1 1 2
2. BACKSTAGE

2023.02.22-2022.04.16

高大建築學園|CONNECTION

基地位置位於高雄後勁,基地內部住宅多具預留

筋,故想透過建築學園與新興建築師事務所來改

善社區的住宅,除了能夠提供學生有更多的學習

機會,也分析了周遭的學校分布,讓周遭的高中、

國中生可以對建築有更深的了解。此外也可提供

新興建築師事務所有更多的工作案例,最終也可

以讓後勁舊社區的住宅能夠有新的居住空間。

SCHOOL DISTRIBUTED PEDISTRIAN FLOW TRAFFIC NOISE
COMMUNITY PROBLEM 2023.02.22-2022.04.16 高大建築學園|CONNECTION
ISSUE ARCHITECTURE ASSOCIATE BIULDING MATERIALS STORE

2023.02.22-2022.04.16

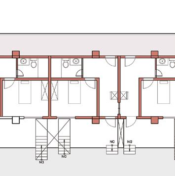
高大建築學園|CONNECTION

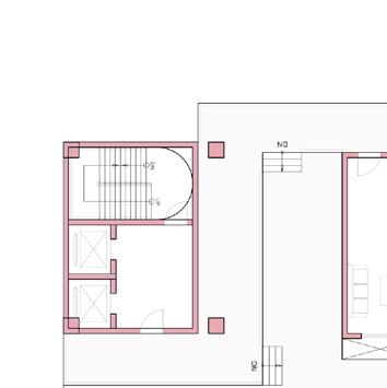
1. 大型評圖空間 2. 系辦 3. 出圖室 4. 圖書空間 5. 實作空間 6. 建築師事務所工作室
1 2 3 4 5 6 6 7 2023.02.22-2022.04.16 高大建築學園|CONNECTION
7.商業空間
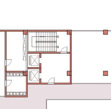
N UP U P DN 1 2 3 4 5 1 2 SECOND FLOOR PLAN THIRD FLOOR PLAN
1. 短眠空間 2. 大一工作室 3. 大二工作室 4. 中型評圖空間
2023.02.22-2022.04.16
5. 小型評圖空間
高大建築學園|CONNECTION
3 4 N UP 0 2 12m 4 N 1 2 2 2 1 1
1.
FOURTH
2.
FLOOR PLAN
1. 大五工作室 2. 大三工作室 3. 大四工作室 4. 中型評圖空間 1. 研究生辦公室
2023.02.22-2022.04.16 高大建築學園|CONNECTION
2. 辦公室

SECTION A-A'

SECTION B-B'

2023.02.22-2022.04.16
高大建築學園|CONNECTION
1. 研究生辦公室 2. 辦公室 1. 大五工作室 2. 大三工作室 3. 大四工作室 4. 中型評圖空間 1. 短眠空間 2. 大一工作室 3. 大二工作室 4. 中型評圖空間 5. 小型評圖空間 1. 大型評圖空間 2. 系辦 3. 出圖室 4. 圖書空間 5. 實作空間 6. 建築師事務所工作室
1 1 1 1 1 1 2 2 3 4 5 3 4 5 6 6 7 2 3 4
7. 商業空間
2023.02.22-2022.04.16
高大建築學園|CONNECTION

NORTH ELEVATION

SOUTH ELEVATION

2023.02.22-2022.04.16
高大建築學園|CONNECTION

EAST ELEVATION

WEST ELEVATION

2023.02.22-2022.04.16 高大建築學園|CONNECTION
& 教業& 教 教業 補教業 補 廳 &餐廳 餐廳 餐 行 車行機車 市場 市場 PEDISTIAN STUDENT FOREIGNER 12:00‑13:00 12:00‑13:00 PEDISTIAN STUDENT FOREIGNER 12:00‑13:00 12:00‑13:00 PEOPLE FOREIGNER 12:00‑13:00 12:00‑13:00 車流多 多為機車 多為行人 基地位置位於高雄三民區,基地鄰 近高雄車站、高雄高級中學,故周 遭多小吃攤販、市場、餐廳。透過 分析周遭商店分布,在此次設計中 加入了食物銀行的概念,讓此社會 住宅的弱勢族群能夠透過食物銀行 再利用食物,而有工作的機會,也 讓周遭的攤販的食物剩餘量能夠減 少。食物銀行的運作機制為社會住 宅居民進行烹飪,而烹飪後的食物 運送提供給周遭弱勢居民,以及提 供給周遭弱勢族群做使用。 2023.04.19-2023
.06.07|三民社會住宅|SHARED

共享陽台型式 CONCEPT

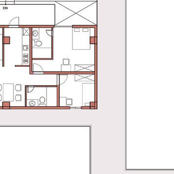
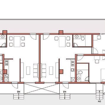
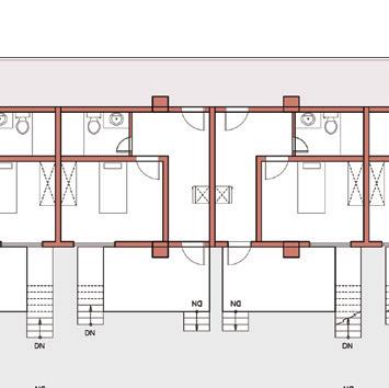
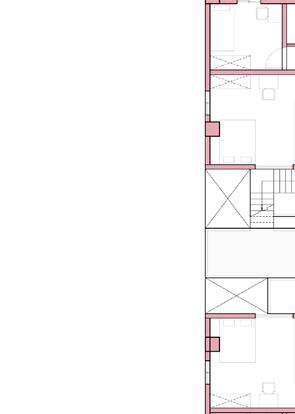
由廚房進出私人陽台空間, 私人陽台至共享陽台空間 利用樓梯分界公共私人。

2023.04.19-2023.06.07|三民社會住宅|SHARED

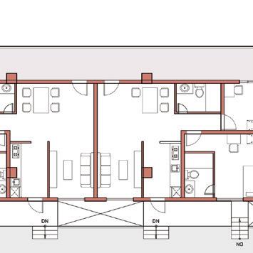
UNIT PLAN 一房型 二房型 三房型

由廚房進出私人陽台空間, 上下樓共同使用相同露臺, 創造出挑空空間。

2022.04.19-2022.06.07|三民社會住宅|SHARED

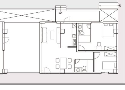
1. 青年創業中心 2. 老人日照中心 3. 大廳 4. 食物銀行
1 2 3 3 4 5 2023.04.19-2023.06.07|三民社會住宅|SHARED
5. 餐廳

2023.04.19-2023 .06.07|三民社會住宅|SHARED

1 2 2 3
SECOND FLOOR PLAN
1. 健身房 2.
3.
THIRD FLOOR PLAN
料理教室
舞蹈教室
DN DN DN DN UP DN DN DN DN DN DN DN DN DN DN DN DN DN DN DN DN DN
2023.04.19-2023.06.07|三民社會住宅|SHARED
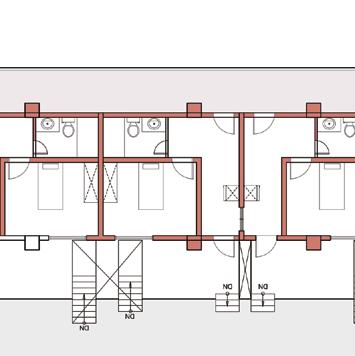
FOURTH FLOOR PLAN

2023.04.19-2023 .06.07|三民社會住宅|SHARED

DN DN DN DN DN DN DN DN DN DN DN DN DN DN DN DN DN DN DN DN DN DN DN DN DN DN DN DN DN DN DN DN
SIXTH FLOOR PLAN SEVENTH FLOOR PLAN
DN DN DN DN DN DN DN DN DN DN DN DN DN DN DN DN DN DN DN DN DN DN DN
2023.04.19-2023.06.07|三民社會住宅|SHARED
EIGHTH FLOOR PLAN

2023.04.19-2023 .06.07|三民社會住宅|SHARED

ELEVATION

WEST ELEVATION

EAST ELEVATION

NORTH ELEVATION

SOUTH ELEVATION

2023.04.19-2023.06.07|三民社會住宅|SHARED
SECTION A-A' SECTION B-B'
SECTION
SECTION C-C'

THANK YOU

Turn static files into dynamic content formats.

Create a flipbook
Issuu converts static files into: digital portfolios, online yearbooks, online catalogs, digital photo albums and more. Sign up and create your flipbook.