Did You See It There ?

吳宛蓁 WanChen Wu NCKU Architecture ��� Thesis Project ����
東部作為觀光勝地,長期被描繪成原始美麗的淨土,卻鮮少被討論到因此而失去的地方發展。以台東杉 原灣閒置的渡假村建物為基地,我希望透過空間介入,提供新的視角,揭示隱藏於美景之下的其他可能。
杉原灣地區於����年前後開始了數個大型渡假村開發計畫,其中首個動工的案件在一連串的爭議後無 法營運,導致其他案件只能暫緩進度,靜觀其變。在這之中,美麗灣渡假村作為第一個實際動工的開發案 ,由台東縣政府主導,以BOT的方式計畫在既有海水浴場沙灘範圍新增度假村建物。從計畫階段就不斷 有法律層面的爭執,空間上也存在開發量過大、將公共海灘私有化等爭議。因此,����年建物完工後無 法真正開始營業,一直閒置至今。
開發爭議壓制了此處原先的敘事。把既有的觀點強制塞進了贊成或反對兩方的框架中。在空間上,渡假 村建物將環境簡化成千篇一律的明信片框景,將「觀光地區」這樣的印象植入每一個人的視野。掩蓋了這 之下潛伏在環境中長期存在的事物。山中竹材的使用、海邊漂流木的堆積,或是當地居民的生活習慣等, 此處長期存在的活動呈現了山與海之間的來回,而垂直於此的閒置建物將成為一切的交匯點。藉由資源 的轉化所形成的工作地景,我希望扭轉此處一直以來的被動敘事。
交織的理想與地景之下的權力動態,藉由指認空間與時間中潛在的衝突,我想在這道厚厚的高牆鑿開洞 口,填入時間與可能。美麗灣建物是否有機會利用其身分,對所佔據的土地的過去、現在、有所回應? 美 麗灣作為不該發生的錯誤又或是千載難逢的機會,得以重新定義。
當土地開始運轉,當人與水與更多的事物 流向海洋,我們將再次遇見,那片閃閃發光之地。
Author| Advisor| Duration|
吳宛蓁 Wan-Chen Wu
張鶴齡 Ho-Ling Chang
對環境產生較大擾動
對環境輕微擾動
對環境尚無擾動
無最近資訊








杉原灣地區在西元����前左右,陸續開始了好幾個大型渡假村開發的計畫, 在發展的途中,第一個開始動工的案件發生了一連串的爭議、最終無法營運 的結果,讓其他的案件只能暫緩進度,靜觀其變。這個第一個動工但無法營 運的案件,是我這次畢業設計想要討論的對象:美麗灣渡假村。
它是由台東縣政府主導的bot開發案。計畫在既有的海水浴場沙灘範圍新增 度假村建物。從計畫階段就不斷有法律層面的爭執,在空間上也有開發量過 大、將公共海灘私有化等爭議出現。因此在����年建物完工之後就無法真的 開始營業,閒置至今。
對我來說,這個爭議案件是不同價值觀的拉扯在空間上的體現,度假村的規 劃與建立,是追求發展,以個人利益為優先的價值觀。而無法營運的現狀,則 更多是嚮往原始自然、愛護環境的價值觀所形成。事件產生了非常多的討論 ,但閒置的結果讓無論哪一方的理想都未能達成,開發商沒有因此得利,對 於環境的巨大擾動也已經形成,當地居民嚮往的發展機會也未能成真。
我認為閒置的現況並沒有回應任何族群的理想,只是加速這個事件的淡化 以及遺忘,也讓場域失去了更多可能性。
周遭地區近年的發展,在開發案停滯後南北區域的差異更加明顯。以美麗灣 建物區分,北側是相對發達的觀光地帶,咖啡廳、民宿比較多,為了推廣生態 保育,對於海的限制十分嚴格;南側是當地聚落,生活品質較差,工作機會、 發展機會相對不足。但對於海的使用並沒有任何限制,從幾十年前就一直是 開放的海水浴場空間。此處應該有更多接觸海洋的可能。



漂流木
生長
竹材(長期使用)
生長
竹材(短期使用)
生長

沖刷


砍伐
漂流
指認
集中
暫放
開放撿拾
使用
清除
海岸線
殺青
戳洞
浸泡
乾燥
儲存
加工
使用
砍伐
削皮
埋沙
泡海水
竹筏製作
海祭
使用
海岸線
海岸線

介入來自對當地的觀察。
冬季時,海灘上會大量堆積著漂流木,他們在山上斷裂 ,被沖進大海,再回到岸上,堆積得比人還要高。它們通 常需要被清理,清理過程會形成具規律的工作活動與 地貌改變。同時我也觀察到當地聚落共用的,以竹子搭 建而成的工作空間。竹子從山上被砍筏,運到沙灘用傳 統工法處理,轉變成竹筏後進入海中,或是轉變成家屋 的圍籬、日常用的竹簍等。 對近代的當地而言,竹材在 功能上作為娛樂活動的臨時構造,比如看板或是市集 攤位,或是大型裝置藝術的材料,加工處理方式多樣。
需要被清理的漂流木、是人對於自然力量的被動應對, 而被加工利用的竹材,則是人對於自然環境主動進行 的資源轉換。
這兩件事情有一定的工作流程以及與空間的關係,在 山海之間來回,在人的需求下移動。
在一年的時間軸上,這些事物會因為自然的規律而有明 確的發生時間。漂流木的堆積在颱風季後的秋冬;竹子 的最佳採收期在糖分最低的冬季。
在秋冬發生的工作流程,會和夏娛樂活動區分開。如此 不同面貌的活動,是可以並存在同一個場域中的。我想 藉由自然資源的處理提供場域另一個面貌。
我對這個場域的理解逐漸變得完整。
自然環境漂亮的景色使他被選中、進行開發,過大 的開發量以及不當的開發方式使得他在爭執之下 被強硬的終止。
渡假村建物作為這些發展歷程具象的結果,我想藉 由對他的改動,去強化其他原先就存在在這裡,不 斷發生著的事物。
�F: 公路/山
#開車
#竹子
GF:沙灘/海
#行走
#漂流木

現況 提案





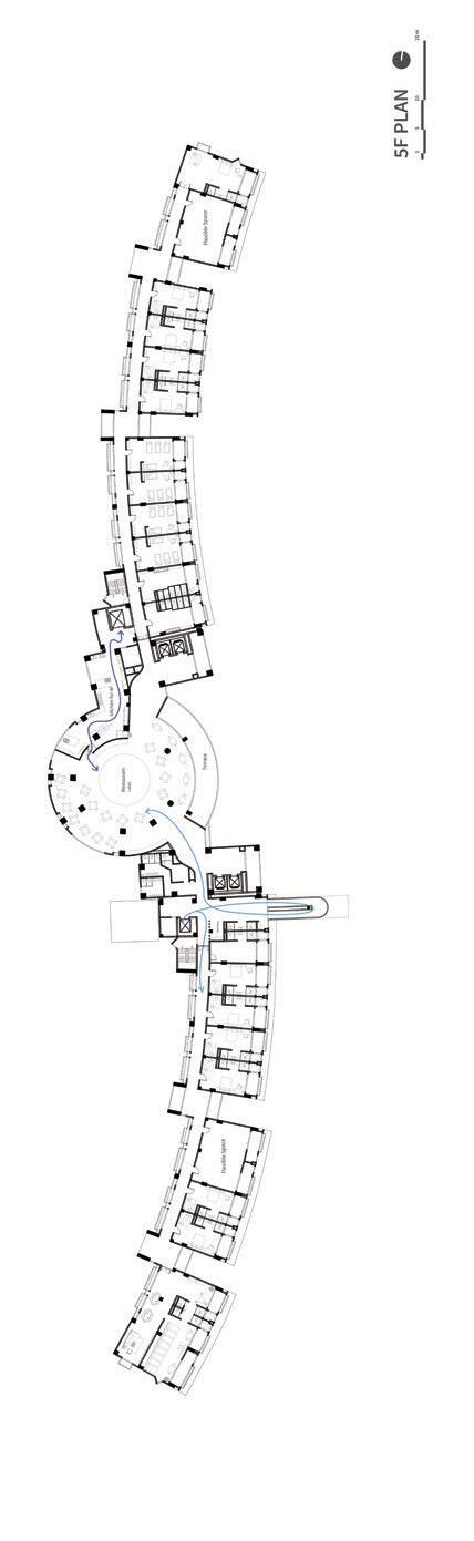
我從基地的東西向剖面作為空間討論的起點。這 棟建築橫跨兩種重要的地形高程:西側臨接公路, 為建物的三樓,東側通往沙灘,是建物的一樓。我 試圖去思考,在這兩個高程之間的轉換,是否能有 不同的空間形式去創造活動與進入的可能? 我製作了幾個量體模幫助思考。我希望介入的方 式是相對既有量體而言輕盈、收斂的。
我同時藉由建物本身狀態的理解決定介入方式。 建物由地下一層以及地上五層構成,每層都以圓 形的公共空間為中心往南北兩側延伸出單邊走廊 形式的客房。後備設施⸺貨梯、廚房、廢棄物進 出口等⸺多配置在中央空間的兩側。公共空間、 後輩空間之外都是客房,共有���間,這樣過大的 規模成為當初無法營運的原因之一。
因此,我在保留大部分設施的情況下減少住宿空 間的比例,將部分樓層轉化為可供公共活動與工 作行為進行的空間。讓這棟原本高度集中管理的 度假村建物,轉向更開放、多元的使用方式。
具體而言,我保留了四、五樓的住宿空間,主要的 改動集中在公路層(三樓)與沙灘層(一樓)之間。 進行局部拆除,並置入新的構造物,服務竹材、漂 流木處理等工作行為以及娛樂活動的進行,同時 創造更通透的空間感與動線經驗。








� � �� �� SECTION AA’


原有建物除了五層樓量體外,在沙灘上還延伸了一塊人工地盤,原先作為 不同深度的泳池以及大面的植栽庭園。最南端建物內地面層設有海水浴 場的服務設施、沙灘上的救生員駐點臨時棚架,以及既有的泳池設施。中 段建物是原先為大廳、餐廳等,兩側設有垂直動線,是人在建物中的集散 地。北段公路側是後備進出口 ,有貨梯與鐵捲門等設施。
根據既有建物原先的機能分布與空間性質,我對各個段落有不同的處理。

在最南端,我保留既有海水浴場服務設施以及停車場,以維持此處的觀 光娛樂性質。我將部分牆面與樓板移除,置入構架與斜坡,作為山海兩 側空間感的延伸,以及幫助物件的移動。越過樓板的構架作為長型物品 (如竹材、水上活動器材)放置、使用的空間。當人經過三層的走廊時,視 線會向東西延伸,看見兩側的活動⸺如清理活動用具、拖行/清洗帆船 或竹材加工⸺的發生。
同時,我將原先的泳池填平,並新增軟性的布料 棚架,在夏季活動人群較多的時候可作為遮蔭空間延伸活動,而冬季時 ,布料收起,則可以做為竹材處理流程中,在蒸煮後將竹材曬乾這個步 驟所需要的支架。
往北一些,我將公共空間其中一側的垂直動線向面海側延伸出一個細 長的觀景台,每層樓的電梯出來後,無論是視線或是動線都能延伸向外 。在地面層、二層將飯店房間改為海水浴場救生員的休息空間以及器具 儲藏空間,在無設置救生員的季節,此處以及以上的樓層是公眾可以抵 達的路徑。
新增鋼構架使人能從公路側一路走向海,我希望它是個輕盈 但強力的穿透,並重新定義了這個建物的入口處。原先建物室內外��� 公分的高差則用新設階梯銜接,讓活動得以延伸,或使人於此處休憩。








在最大的公共空間這段,我將公路層部分樓板移 除,用階梯狀觀眾席將三層連接至二層,並將原 先面海側有的鋼構支撐玻璃帷幕牆移除,讓這裡 變成一個能以太平洋為背景的半戶外開放空間, 可做表演空間或舉辦多人公眾活動。 而在地面層 ,我將原先高於人工地盤水平面的泳池拆除,使 平整的開放空間延展,建物內收納著可伸縮的觀 眾席,需要的時拉出使用,讓從公路側到沙灘的 動線更為連貫。在觀眾席收納時,地面層作為平 整的硬鋪面開放空間,與沙灘軟鋪面做出區隔, 提供更彈性的使用可能。如現有舉辦於沙灘上的 各式活動如音樂會、市集等,能有更舒適的場域 舉辦,對於沙灘的擾動也能減低 。

另一組垂直動線處,因為其面公路側是渡假村的 後備進出口 ,有貨梯與鐵捲門等設施,以及因為 既有庭院高程差較南端高,我將第四層以下的空 間打通、置入棚架,使此處成為可容納大尺度活 動的工作空間。地面層原先室內外���公分的高 差由一個大緩坡連接,使大型物件的移動能更好 的進行。冬季的活動包含漂流木的集中、分類標 記、裁切、裝袋等等移除前所需的工作,以及竹材 的加工處理,空間性質由工作行為主導。夏季時 則作為沙灘的延續,讓大量的遊客從山攤上蔓延 至遮蔭處。當有大行活動物件需要移動到沙灘時 也能透過此處。 同時置入一條與原先走廊等寬的 步道,讓人在南北的移動得以維持,並且提供另 外一個視角觀看下方的工作行為。





北端是處理完的竹材與貴重漂流木的 儲藏空間。
因為竹子尺度的關係,我將一二層甚至 部分的三層空間打通,竹子是直立著放 置於此。
我選擇用旋轉門作為面海側 的立面,季節影響它的開放與關閉。開 放時是遮蔭空間的延伸,夏季能作為海 邊活動的休息空間。
同樣將地面層原先室內外���公分的 高差以一個大緩坡連接,使大型物件的 移動能更好的進行,讓沙灘的活動得以 蔓延。而大斜坡之下的空間包含被覆蓋 掉的原有植栽槽,能作為拆除掉的建築 廢棄物的埋置場所。






杉原灣這個紛爭不斷的場域,在研究的過程中我不斷的挖掘場域中運作中的人事物, 他們在時間的流動下,有的獲得重視,有的自然消長,也有的就此被遺忘。
我的介入並不想抹除或隱藏任何存在過的事情,或許也包含這個不那麼令人愉快的 爭議本身。我希望藉由對空間的介入、轉化,讓當地生活、資源處理、觀光娛樂等不同 與環境互動的方式,能夠成為一種長期、具有時間性的展示。
讓來到這裡的人,不再只 看到一片風景式的海景,而能夠真正看見這片土地背後持續流動無論是源於自然或 是人文的事物。
也期待未來有更多我還未看見的事情,能夠在此發生。
When the land begins to move —when people, water, and countless things return to flow toward the sea —we shall meet again, in that glimmering place reborn.