Skip to main content

2024 Portfolio

Page 1

001 2024 portfolio 游廷翰 selected works

00 01

02 03

個人資料 太空宅 小住宅 台南恰恰恰

• p.5

• 太空居所

• 基地 - 想像

• p.5

• 電影人的家

• 基地 - 台南

• p.9

• 活動中心

• 基地 - 台南

• p.15

contents 1

04 05 06 07

四季之家 我們的水 出謀劃廁 工作營

• 街屋類型研究

• 基地 - 台南

• p.23

• 傳統生活領域

• 基地 - 花蓮

• p.29

• 廁所競圖

• 成大建築系館

• p.39

• 台南北門水上 實作

• p.41

CONSTRUCTION SUMMER CAMP IN TAINAN Students can experience the process from design to construction all by themselves, we corp with students from department of Civil Engineering in NTU, sharing the knowledges and technic with each other. most importantly, the construction site is on the water which used to be a fish farm for local industry. NCKU ARCH CONSTRUCTION SUMMER CAMP IN TAINAN RIVER STREAMING, ADVENTURING contents 2

我是游廷翰,畢業於成大建築系。

期望能加入建築設計與工程顧問公司,並在職場上與 各種職務人員相互合作,在工作團隊中扮演有力的角 色共同完成任務,期待未來有機會能於貴公司服務。

電話: 0965166103 聯絡信箱:

profile 3
volvoppai@gmail.com。

•2023

•2022

•2021

•2020

成大建築系館廁所改造設計參與

台南市樸木建築師事務所兼職

台東市陳哲生建築事務所6個月實習

台中市戴淯澤建築師事務所2個月實習

•於校內競圖得標,參與規劃設計與細部大樣繪製。

•安平區火鍋店立面設計與建模、魚電共生案製圖。

•台東市運動中心基設、國立史前博物館工地實習。

•整理事務所歷年作品集。

profile 4
真實材料 5

OuterSpace Sanctuary

• 假設基地

• 真實材料

• 小組合作

• A MIXED-USE HIGH-RISE.

• A SMALL SCALE MATERIAL EXPERIMENTS. 太空宅

6
真實材料

OUTERSPACE SANCTUARY

全組共同假設一個外太空基地, 有固定且易於地球的物理條件, 以真實材料搭建出各種想像中供 太空居民使用的空間。

這顆星球整年有強烈日曬且極少 降水,但具有與地球相當的重 力,我選擇以金屬與木料做為主 要材料,設計一座以一艘墜毀的 太空船其內部空間為主體的集合 住宅,將樓板向外延伸並以鋼纜 懸掛出挑,成為深遮簷避免日曬 直射,同時成為居民休閒的戶外 廣場與展演中心。

MY SITE

WEATHERING STEEL LAMINATED WOOD
真實材料 7
太空宅

The site for this project is on a planet in outerspace. This planet is dry throughout the year, has strong sunshine and a similar gravity to the earth. Each artificial base is composed of two materials as the main structure, which are weathering steel and laminated wood.

My base is a shelter transformed from a crashed spaceship, a mixed use highrise with a residential tower that spring from a research center.

The front end is mainly slab structure, and some outdoor tests or research can be carried out here. The residential tower at the back provides a space for researchers and future immigrants to live.

真實材料 8
小住宅 9

Directors Home

• 台南吳園

• 導演的家

• 公私領域

• A family housing for a director.

• A sunken living area and lounge.

小住宅 10
小住宅

Directors Home

這次設計的業主為一位國內年輕導演,他的專業除導演外 還包含攝影與影片剪輯,這個住宅必須滿足這位導演與未 婚妻的日常生活,並具備導演的工作室、能讓親友聚會的 公共空間。

取消台南街巷住宅中鄰接馬路的入口,拉長進入玄關前的 距離成為一樓的公共空間,同時提高一樓樓板形成半下挖 式的私人聚會所,建築量體因此產生各種面向台南市定古 蹟-吳園-的縫隙,增加採光與通風,回應業主的需求與居 住的舒適性。

First floor plan

小住宅 11
小住宅

Second floor plan

Our proposal is led by a Taiwanese young director dedicating photography and entertainmemt industry, committed to sharing a lot with his parents and fiancee together.

As the usual single family porch is dimolished and replaced by a metal staircases with six meters corridors via a void area around the front of the structure, the opportunity for social street front interaction is increased.

SECOND FLOOR FORTH FLOOR 3層樓以下 3層樓以上 五層樓以下 五層樓以上 P R O J E C T DIFFERENT
P R O J E C T W U G A R D E l a n e w a y NO.173 C C’ D D’
VIEWING LEVEL
N
12
小住宅

Section 1

Section 2

Elevation
小住宅 13
+
viewing toward south main structure
staircases hanged by retaining wall
小住宅 14
entrance logia
公共空間 15

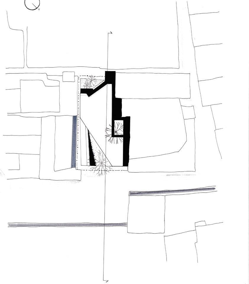
台南恰恰恰

Channel Challenged industrial Chain in Tainan

• 台南市海安路

• 共同工作空間

• 里民活動中心

• Tainan county

• Coworking Space

• Residential Community Center

公共空間 16

公共空間

Public Space

基地位於象徵著日本殖民時期台南生活的 西門市場街廓,曾經興盛一時的市場主體 於2000年便不再使用長達15年,我想聯繫

起既有台南市場生活與現代的使用,取台 南恰恰恰為此案名。

活動中心的空中走廊環抱著西門市場主建 築,形成廣場,並預留未來西門市場整修 完畢的主要出入口。基地北側延續國華街 商業行為,成為假日市集與銀髮族運動的 據點,南側則新設數位圖書中心,提供人 聲鼎沸的市中心一處供遊客與居民閱覽的 空間,所有人都能透過端景欣賞西門市場。

SECTION A-A’ SECTION B-B’ WORKSHOP
PUBLIC MARKET
FOR COMMUNITY PLAZA TIAL(SHORT-STAY)
TAINAN
STUDIO
公共空間 19

The site is located next to Ximen Market, which was built during the Japanese Occupation Period. It was originally a large market that Tainan citizens depended on, selling meat, vegetables, daily necessities and other commodities. However, from 2000 to 2014 this building was no longer used for many years due to the industrial transformation in Tainan.

As stated before, the project is dedicate to Channel Challenged industrial Chain in Tainan.

In order to cope with the many freelance workers and new industries created during the post pandemic era, the Tainan City Government chose to establish a service points of Tainan coworking industry at this site next to Ximen Market.

By providing the coworkers hot desk, indie desk, conference room and private room, they can share a better environment to develop their own business.

PROJECTS 10 公共空間 20

GROUND FLOOR GALLERY

公共空間

21

WORKSHOP FOR COMMUNITY

COWORKING SPACE: TERRACE

HOT DESK INDIE DESK CONFERENCE ROOM PRIVATE ROOM

FIRST FLOOR PLAN SECOND FLOOR PLAN
22
公共空間
四季之家 23

• 台南街屋類型討論

• 空間模矩與使用性

• 可拆換構造與接頭

• Tainan county, Taiwan

• Housing +1 四季之家

Four Season House

四季之家 24

四季之家

Four Season House

當舊街屋被拆除後,共同壁仍會留下, 暗示著共同壁在街屋的構成中扮演空間 基礎的角色。既有的共同壁已經區隔出 每戶的私領域範圍,則中間的"空"是 否能具有可變動的彈性?

1. 行為誘導

• 當舊街屋被拆除後,鄰房與其之間的 共同壁仍會留下。試問,街屋被圍塑 出的空間是否能視為具有彈性且可變 動的?

2. 空間模矩

• 基本的單位是 9 x 9 m 的正方形,由

十字形分區細分為 3 x 3 m 的四個角 區域。主結構安裝好後使用者決定空 間模樣。

3. 共用騎樓柱

• 騎樓中兩戶共有的構造物出現兩種相 異使用方式,左戶設有餐廳洗手槽, 右戶機車行則裝置廣告刊版。

4. 獨立出入口

• 集合住宅出入口兩戶各自以既有的L 形牆角為基礎外搭雨遮,偶爾有街道 家具鑲嵌在既有的花台旁。

四季之家

25

• 1fl:餐廚+用餐區(停車)

• 2、3fl:套房(學生短居)

四季之家 26
Type B

基地選擇同批建案3層街屋的其中一棟,保留既有的共用壁與短向的RC樑,形成長向封閉的 可操作空間。在空間中置入L牆與長向的小鋼樑,並置入固定的樓梯串聯上下動線,形成新的 平面模矩系統,空間在基本架構的限制下自由變動。

Program設定為住商混合的使用型態,1樓為餐廳,2至3樓為居住空間。

Type B

Section B-B’

四季之家 27

薑母鴨店與冰店依照季節性替換,搭配樓上的學生宿舍,內部空間變化的同時也創造可變的街 屋沿街面。

L 牆定義出房間基本配置,透過家具尺度"板"的變化,劃分出獨立的空間與使用方式。建築立

面隨季節變化,空間進退深度不一,空間用盡則外掛彩鋼板外牆,空間剩餘則延伸半戶外陽台, 增加採光面。

GL+1100 最小高度附加樓板完成面

GL+1080 既有結構完成面

GL+740 最小高度附加樓板完成面

GL+720 既有結構完成面

GL+380 最小高度附加樓板完成面

GL+360 既有結構完成面

四季之家 28
我們的水 29

我們的水

Our Water

• 花蓮縣秀林三棧部落

• 用水文揭露部落傳統領域

• Hualien county, Taiwan

• Uncover the Tribe’s Traditional Domain with Water

我們的水 30

我們的水

Our Water

三棧 部落位處花蓮縣秀林鄉三棧溪旁,1928年,族人因為溪谷穩定且豐沛的溪水所以在 此定居,到溪邊取水成為居民生活的一部分,對於居民而言,三棧溪是我們的水。

1954年,部落以南10公里的北埔地區有灌溉需求,美援的資金介入建造中美合作水渠,以 三棧溪中游轉折處的深潭為起點設置取水口,並流經部落開放居民使用,我們的水開始和 遠處的人共享,成為大家的水。

我們的水不斷受到擾動,美援的介入是改變居民用水方式的起點,從溪邊取水變成上山巡 水,因此和水渠產生相依存的關係。遊客的出現形成了新的對於三棧溪的介入,取水口與 一旁的深潭是遊客跳水烤肉的好去處,水對於遊客是短暫的解脫與享受,卻對這個水對於 部落的重要性毫不知情,和我們的水形成衝突,我想讓人知道從深潭開始就是我們的水, 讓所有共享的人尊重這片水域。

The Sanzhan tribe is located next to the Sanzhan River in Xiulin Township, Hualien County. In 1928, the tribe settled here because of the abundant water in the valley. Taking water from the stream has become a part of the residents’ life. For the residents, the Sanzhan River is our water.In 1954, the Beipu area, 10 kilometers south of the tribe, needed irrigation. US aid funds were involved in the construction of a Sino-American Cooperation Canal.

我們的水

31
我們的水 32

居民對於環境的理解建立在山與水之間,人為 搭建的東西會隨著土石、水被帶走,使用輕巧 且方便攜帶的材料才是居民和水之間取得平衡 的相處方式。

部落集會所在民國88年以前是軍營的中山堂, 民國90年主要道路還於部落,車輛可以直接抵 達入山口而開始湧入遊客,集會所於是成為遊 客下水前後更衣整裝的地方。

透過從擋土牆流洩而下的泉水告訴來訪的人用 水空間的位置與部落的用水方式,水池是居民 集會用來沖洗地面與殺豬時血水的地方,一道 牆將往上走到更衣間的樓梯與水池分開,居民 與遊客之間保持著舒服的距離。

水與慶典結合,平常被小心儲存在依靠著擋土 牆而建的儲水槽裡,只在部落共同舉辦的慶典 才會看到水滿溢而出的場面。

1. 三棧部落集會所取水空間透視圖 2. 三棧部落集會所更衣平台、水池剖面圖 3. 集會所現況-舞台巨大的量體遮蔽了水渠 4. 設計模型-水渠向集會所延伸成為用水空間 1 2 3 4

The water intake was set up starting from the deep pool at the turning point of the middle reaches of the Sanzhan River, and flowed through the tribe for residents to use. Our water began to be shared with people far away.

對於居民而言,中美合作在山間蔓延的厚重混 凝土設施曾經侵占到居民在山裡的領域,甚至

改變三棧溪水的服務範圍供應更遠的地區使 用,擾動了居民對於我們的水的認知,因為居 民也能共享水渠穩定的水源而接受了這座人工 構造物建造在三棧溪中游豐滿的深潭旁。

居民在步道沿線為了克服陡峭地勢而出現的建

造行為是我想讓來訪的遊客看到的,透過提高 這些構造物的可見性讓遊客在沿途四個點稍作 停留,透過望向溪水的框景、踏入山間溪谷的 平台與走進既有取水口建築面向上游一側的空 間,意識到人和山水的關係除了短暫的解脫享 受外,也存在著一群人正小心維護著水源。

1. 入山口透視圖

2. 入山口設計平面圖

3. 渡槽設計平面圖

4. 入山口設計剖面圖

5. 渡槽設計剖面圖

6. 入山口現況

7. 入山口設計模型

The emergence of tourists has formed a new intervention in the Sanzhan River. Our water is constantly being disturbed. The intervention of US aid is the starting point for changing the way residents use water. Taking water from streams has changed to patrolling water in mountains. Therefore, there is an interdependent relationship with canals.

1 2 3 4 5 6 7

我想在現況位於步道終點的取水口增設浮橋連 接起山間與溪畔,形成首尾相通的步道,向來 訪的人傳達相較於遊客爭相前往的跳水台,中 美合作取水口更需要被大家視為部落用水的源 頭,尊重這片水域。

水對於遊客是短暫的解脫與享受,卻對這個水 對於部落的重要性毫不知情,和我們的水形成

衝突,我想讓人知道從深潭開始就是我們的 水,讓所有共享的人尊重這片水域。

我們的水界定出部落傳統領域而在當代扮演新 角色。

1. 中美合作取水口透視圖-由取水口內部望向上游

2. 取水口設計剖立面圖

3. 取水口設計平面圖

4. 取水口現況

5. 取水口設計模型

The water intake and the deep pool beside it are good places for tourists to dive and barbecue. Water is a short-term relief and enjoyment for tourists, but they don’t know the importance of this water to the tribe. This situation is in conflict with our water. I want people to know that it is our water from the deep pool, so that all people who share it can respect this water.

1 2 3 4 5

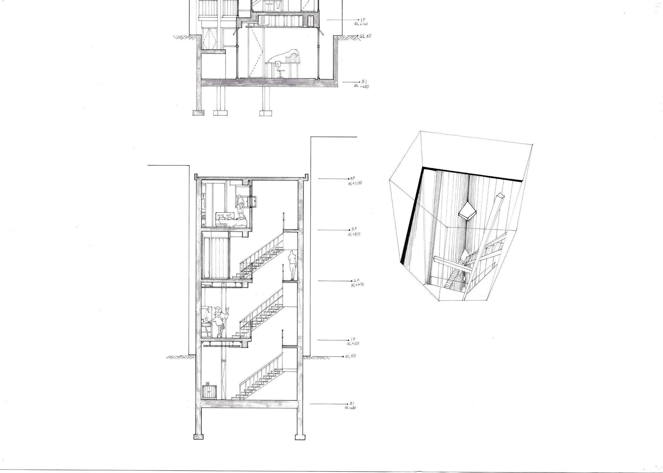
Restroom Renovation

• 成大建築系館廁所競圖

• 廁所規劃與細部設計

• 施工參與

• Restroom Renovation in NCKU.

• Details Drawing.

出謀劃廁
出謀劃廁 39

SHARING W ALL (=FACADE+RESTROOM+SIGN)

透過一道牆去整合新立面、性別友 善廁所與指標系統,創造不同層次 的空間,同時相隔與相連。設計著 重於觀看與隱私性的控制,並選擇 與系館磚紅對比的綠色作為牆的顏 色。

走近建築系館時看見一條突出牆面 的招牌,招牌下的燈在晚上時微微 點亮系館門口 1 。進到大廳,看 到牆露出一角,標示著系館的空間 2 。隨著牆的引導走上樓梯會看到 系上海報與各空間的指引。

上到二樓,扶手延伸到牆內,牆延 伸到廁所內將空間一分為二 3 。 廁所因牆的介入與外界成為一體, 深色的空間與入口寬度保留了必要 的隱私 4 。在廁所底端霧面玻璃 透露著天光,空間再次相連 5 。

C-C’ SECTION S=1/50

D-D’ SECTION S=1/50

立面外掛鋼板

立面突出招牌

DETAIL S=1/20

鄭崇明 游廷翰 王品蘋

A-A’ SECTION S=1/50

B-B’ SECTION S=1/50

GENERAL PLAN S=1/40

PERSPECTIVE: APPROACHING THE RESTROOM

牆面扶手 牆與樓板接合處 洗手台 廁間排風與照明
DN A B’ A’ B D C D’ C’ UP DN 2 1 3 4
5

水上工作營

水上工作營

Construction Studio

• 台南北門區

• 木構工作坊

• 可動水上裝置

• Tainan county, Taiwan.

• Wooden Structure Construction.

41

水上工作營

Construction Studio

In 2020, we joined a construction studio in Beimen District.

Students can experience the process from design to construction all by themselves, we corp with students from department of Civil Engineering in NTU, sharing the knowledges and technic with each other.

CONSTRUCTION SUMMER CAMP IN TAINAN

most importantly, the construction site is on the water which used to be a fish farm for local industry in Tainan.

Students can experience the process from design to construction all by themselves, we corp with students from department of Civil Engineering in NTU, sharing the knowledges and technic with each other.

most importantly, the construction site is on the water which used to be a fish farm for local industry.

游廷翰
portfolio

Turn static files into dynamic content formats.

Create a flipbook
2024 Portfolio by Tim You - Issuu