University of Virginia Law School Library - Space Study Report

Page 1

LIBRARY SPACE STUDY REPORT JULY 2023
UNIVERSITY OF VIRGINIA SCHOOL OF LAW

Design Committee Members

Amy Wharton, Director, Arthur J. Morris Law Library

Leslie Ashbrook, Assistant Director and Head of Research Services

Rebecca Hawes Owen, Head of Access Services

Randi Flaherty, Head of Special Collections and Law School Historian

Ben Doherty, Head of Library Instruction and Research Librarian

John Roper, Research and Administrative Service Librarian

Marnita Simpson, Government Documents Coordinator

University of Virginia

Richard S. Minturn, Senior Academic Facility Planner in the Office of the Executive VP & Provost

Connie Warnock, Associate University Architect

EXECUTIVE SUMMARY 01 INTRODUCTION 02 BENCHMARKING 03 ENGAGEMENT 04 PROGRAMMING 05 RECOMMENDATIONS CONTENTS

EXECUTIVE SUMMARY

Dear Reader,

This space study is the product of a close collaboration that began in the fall of 2022 among VMDO Architects, the UVA Office of the Architect, and the Arthur J. Morris Law Library. To inform this report, the architects conducted many hours of surveys, interviews, and workshops with library users and employees, consulted with building engineers, and reviewed data about the libraries of our peer institutions. They asked important questions about what in the library was critical to preserve (e.g., the Caplin Reading Room), what needed to be improved (e.g., employees within the same library departments being scattered among the floors), and what should be jettisoned (e.g., our oversized reference desk). Most importantly, they considered what is unique about the mission of our Law School, our library, and even each department within the library. The plan sets forth a path for providing an attractive and highly functional library space that supports excellence in services and collections according to Law School community needs and goals. It achieves this while allowing for continuing cohesiveness as space evolves to accommodate future changes.

print volumes, a large technical services department that supported a sixteen-member paraprofessional staff, a rare book room (since scaled back), a media production studio, and a robust collection of microforms, VHS tapes, and CD-ROMS. The library was, in fact, the hub of computing technology for the Law School’s students, supporting a computer lab with dozens of terminals for students to access word processing and online legal research services. Technological developments gradually reduced the need for library space, but to a substantial degree the technology students used in the mid-1990s was situated in the library and consumed its space voraciously. Print publishing continued unabated for many years, along with the demand for the space required to process and house it.

A strategic look at the Law Library’s space has been long overdue. The library’s initial footprint was established when construction of the original North Grounds Law School building was completed in 1976. Two decades later, the Law Library space was redesigned -- the last time its space was expanded – when the Law School accessioned the former Darden building (now Slaughter Hall). The renewed library space housed more than 600,000

Research services have evolved as well. Today’s faculty can easily use many of the library’s resources from the comfort of their offices or homes through their computers. Yet as information has become easier for the Law Library community to access, the requests that come to the library have become more sophisticated and complex. Research librarians used to do much of their work among the books in the stacks, and challenging projects tended to be interspersed with tasks that were more mundane. Though print volumes are still essential to their work, today’s research librarians spend much more of their time at computers in their offices engaged with nuanced research problems that require a high degree of focus. Yet along with this need for solitude, librarians working through complex research strategies often benefit from the advice of other librarians. Conversation around librarian offices tends to disturb students studying nearby, so dedicated space for the casual exchange of ideas is sorely needed.

4 UVA Law Library Study // EXECUTIVE SUMMARY

Library space has been affected by external changes as well. Legal scholarship, education methods, and the law school curriculum have developed along their own path over the years, and the Law School has repeatedly drawn from library space to accommodate emerging needs. Every few years, regions of library space, including part of the rare book room, have been relinquished for faculty and administrative offices and classrooms. As the curriculum began to incorporate more collaborative and experiential learning, student interest in group study spaces followed. Desire has swelled for study spaces that mirror modern bookstores with small cafés and a variety of seating options. Since 2007, library space has been reallocated to a self-serve café (“MyLab”), a collaborative classroom, eight group study rooms, private carrel seating, and standing desks.

which stands adjacent to new green space or outdoor terrace. Importantly for the Law School, it is designed with the future in mind, with offices and group study rooms that are easily convertible to other types of space. While the plan includes many innovations, the designers were careful to preserve and enhance the things that make the library an iconic Law School space and a popular destination for students, alumni, and visitors.

This report is intended to be the first step in a process that develops and details important renovation concepts, shapes a strategy to implement them, and then assigns probable costs to the various stages of the recommended plan. Once the scope of work is established, the next step is to devise a design and construction schedule around the academic calendar that minimizes disruption to our students’ use of the library.

Each alteration of library space has been necessary, thoughtful, and practical. Yet without a comprehensive space plan to guide its development, fracture lines are showing. As this study shows, navigability of collections, co-location of staff within library departments, and the configuration of individual and group study spaces have all been affected.

On behalf of all who have collaborated on this work, my hope is that this plan sparks the excitement and enthusiasm that will propel the vision it expresses into fruition.

The remedy begins on the pages that follow. The plan proposes an enlarged, more welcoming “storefront” entrance and cohesive “neighborhoods” for various study areas, staff areas, and collections. It answers calls from students and library staff for maximizing natural light and views of nature while providing for more compact and navigable library stacks. Students will no doubt appreciate relocated and expanded MyLab,

VMDO Architects 5
1

INTRODUCTION

In the fall of 2022, a group of Librarians and architects convened at the UVA Law School to discuss the current state of the physical library space housed in Brown Hall. Like many libraries in the early 21st century, there were questions about what a library’s major roles were, how it should provide resources, what kinds of amenities should be prioritized, and what the role of the physical collection was - for students, faculty and the public at large.

Equally pressing were concerns about the manner in which library staff were being accommodated. As the result of a series of alterations, relocations and spatial incursions placed on the library, librarians found they’d been moved into increasingly remote locations within the library and in some instances disconnected from colleagues and the very collections they were delegated to manage.

From the outset, the aim of the study was threefold and placed equal emphasis on the following areas of interest:

• Student Experience: what do today’s law students need to excel in their chosen course of study?

• Librarian effectiveness/efficiency: what do the people working in the library need to deliver world-class services to faculty, students + the public?

• Spatial Flexibility: How can work done today provide for present needs while being able to be deployed in phases and/or creatively adjusted as future needs dictate?

WORK PLAN + SCHEDULE

Working closely with the Library Design Committee, the design team drafted a schedule of work that foregrounded the input of students and librarians, and thus based our collaborations upon empirical data collected from the individuals who know the building and its programs best.

Approach to Space Assessment and Strategic Plan

nature of the academic year. As unplanned events unfolded through the fall of 2022, some scheduled parcels of work shifted to react to University and Law School calendar adjustments.

To meet the deliverable schedule mapped out in the calendar at right we established a recurring set of weekly meetings with a smaller oversight team, a monthly meeting with the Design Committee, and more informallyoccurring meetings with librarians and students based upon the fluid

The final report was concluded at the end of the Spring 2023 semester.

UVA Law Library Study // INTRODUCTION 8
University of Virginia: Law School Library Space Study
Research and Engage Refine Vision Collections / Workspace Assessment Analysis On/Off-Site Strategies Workspace Space Programming / Planning Space Needs Gap Analysis Adjacencies Qualitative Recommendations and Concepts Final Reporting Interviews Benchmarking Goals / Values Best Practice Clear and Compelling Data and Visuals Long-Term Framework Effective Short-Term Response Modular Scopes Implementation Sequence High-Level Costs 10.12.22 11.09.22 12.08.22 01.13.23 04.14.23
VMDO Architects 9 1 University of Virginia Law School Library Space Assessment Study VMDO Architects |10.12.2022 100% TaskScope Wk. 1234567891011121314151617181920212223242526272829 Deliverables scope % 0.0Kick Off / Project Initiation RESEARCH / ENGAGEMENT /VISION WORKSHOP 1 10.12.22 1 20% 1.1Staff/Student Interviews & Focus Groups Summary of Impressions and Objectives 1.2Existing Facilities / Tour and Analysis Preliminary Space Assessment 1.3Peer Institution / Benchmarking / Library of the Future Law Library Peer / Benchmarking Report SPACE PLANNING PROGRAMMING WORKSHOP 2 11.09.22 2 10% 2.1Gather Information / Data 2.2Investigate Existing Conditions (Structure, MEP, Finishes) Outline of Structural Feasibility and MEPFP Concerns 2.3Assess Circulation, Accessibility, Service Model Summary of Circulation and Accessibility Issues 2.4Review Implications of brightspot Study (consider growth) Assessment of Law School Programs and Potential Impact 2.5Future Space Needs / Gap Analysis High-Level Space Program - Projection COLLECTIONS / SERVICE / WORKSPACE ASSESSMENT WORKSHOP 3 12.08.22 3 25% 3.1Project Goals / Principles Statement of Guiding Principles 3.2Space Needs / Short-Term and Long-Term Programming High-Level Space Program - Analysis 3.3On/Off-Site Collections Storage Strategies (Ivy Stacks) Collections Report with On/Off Site Options 3.4Collections and Workspace Design Considerations Collections Layout Options 3.5Service Strategy and Library Partners 3.6Staff Roundtable I 12.12.22 RECOMMENDATIONS AND CONCEPTS WORKSHOP 4 01.13.23 4 25% 4.1Master Plan / Building and Site Connections 55 Law School Context / Connections Diagrams 4.2Building Infrastructure Building Infrastructure Recommendations 4.3Renovation and Reconfiguration Strategies (3 options) Illustrative Plans and Model Views 4.4Program Adjacencies / Blocking-Stacking / Layouts 4.5Functional / Service Strategies Summary of Service Strategy Study 4.6Long-Term Framework / Effective Short-Term Responses Summary of Short-Term / Long-Term Strategic Plan 4.7Phasing and Future Implementation Sequence Implementation Sequence(s) 4.8Staff Roundtable II 02.09.2023 PRESENTATION FINAL REPORT F 20% 5.13D Modeling / Visualization Conceptual Model Views of Priority Improvements 5.2Data-Driven Case-Building Graphics and Documentation 5.3Preliminary High-Level Cost Estimate and Schedule Hign-Level Cost Plans for Priority Improvements 5.4Final Report / Presentations 04.14.23 PDF, PPT, and Bound Printed Study Report (20 copies) scope totals fee totals ADDITIONAL SERVICES S.1Fundraising Visualizations S.2Collections & Shelving Accounting S.3Environmental Graphics Study / Wayfinding S.4Sustainablity / Energy Use Studies Finish Start NOVEMBER OCTOBER 3 - Month Study Process and 1 Month Final Reporting DECEMBER JANUARYFEBRUARYMARCH APRIL

HISTORY

Like its parent, the University of Virginia, the Law School and its library have undergone continuous change since their inception during the earliest days of Jefferson’s academical village.

Originally housed in various structures on main grounds, the Law School moved to its current site on Copeley Hill in 1974. Throughout a series of expansions and contractions to its physical quarters in Brown Hall, the library has maintained an impressive collection of books, microfilm and digital assets, and has prioritized the services it provides both to the law school community and the public.

The Phase II expansion that occurred in 1979 expanded the law school by almost 60,000 square feet and increased available seating in the library by more than 250 seats. Seminar rooms, group study rooms and expanded staff space, along with a substantial increase in collection space add nearly 30,000 sf to the library. Shortly after opening, a donor gift made it possible to create a rare book room and supporting facilities, completing the original vision for the expanded facility.

As the result of a period of expansion in the early 1990s, a significant addition to the law school was executed, adding much needed academic and office space. Though the library remained largely intact and unchanged, the renovation included work to create a commodious double-height reading room that would become the symbolic center of the law school community.

UVA Law Library Study // INTRODUCTION 10
Design perspective from the 1995 law school expansion project Construction photograph of the Phase II expansion of the law school, 1979

PHASE 1, 1974 PHASE 2, 1979 LAW SCHOOL EXPANSION, 1995

L1, 2 & 3 OFFICE RENOVATIONS, 2001-17

L2 OFFICE RENOVATION, 2023

Breakdown of academic / staff vs. library spaces in Brown Hall. Library Floor Area demonstrates changes in overall gross square footage over series of building interventions.

VMDO Architects 11 1 LEVEL 3
73,350 SF 80,700 SF
LEVEL 2 LEVEL 1 LEVEL 0 50 k 60 k 70 k 80 k 100 k 90 k LIBRARY GROSS
AREA:
91,300 SF
80,200
SF
51,460 SF
FLOOR
Academic and Staff Brown Hall Space Allocation Library

EXISTING FACILITY

The first step in the process of assessing the existing library was to make a thorough investigation into the physical conditions of the building and its various public and private spaces. The architects, joined by a working group of librarians and representatives from the University, set about surveying the environmental conditions through the library space, noting high-level observations about the varying degree of material and spatial wear seen throughout. An abbreviated list of areas that were reported on follows:

• interior finishes

• furniture

• equipment

• lighting

• structure

• shelving

• wayfinding

• environmental controls

• natural daylighting

LEVEL 3

Quiet study space with good light from roof monitors above. Collections on this level are important but not heavily used.

Accessible access to this level is limited by unclear route + access-controlled doors.

LEVEL 2

Rooftop is under-utilized

Some offices lack natural light Need acoustic separation from group studies

MyLab vending has a suitable central location, but a constrained footprint

Collection & Study spaces to be converted into faculty offices

Staff shared spaces are poorly configured. Break room & kitchen are lacking.

LEVEL 1

Collection swing space, currently holds government documents.

Klaus Reading Room is underutilized and could benefit from opening to corridor.

Main entry lacks prominence. Entry gallery feels too compressed.

Circulation desk is well located. Would appreciate natural light.

Caplin Reading Room is the symbolic heart to the library, no desire to change it.

LEVEL 0

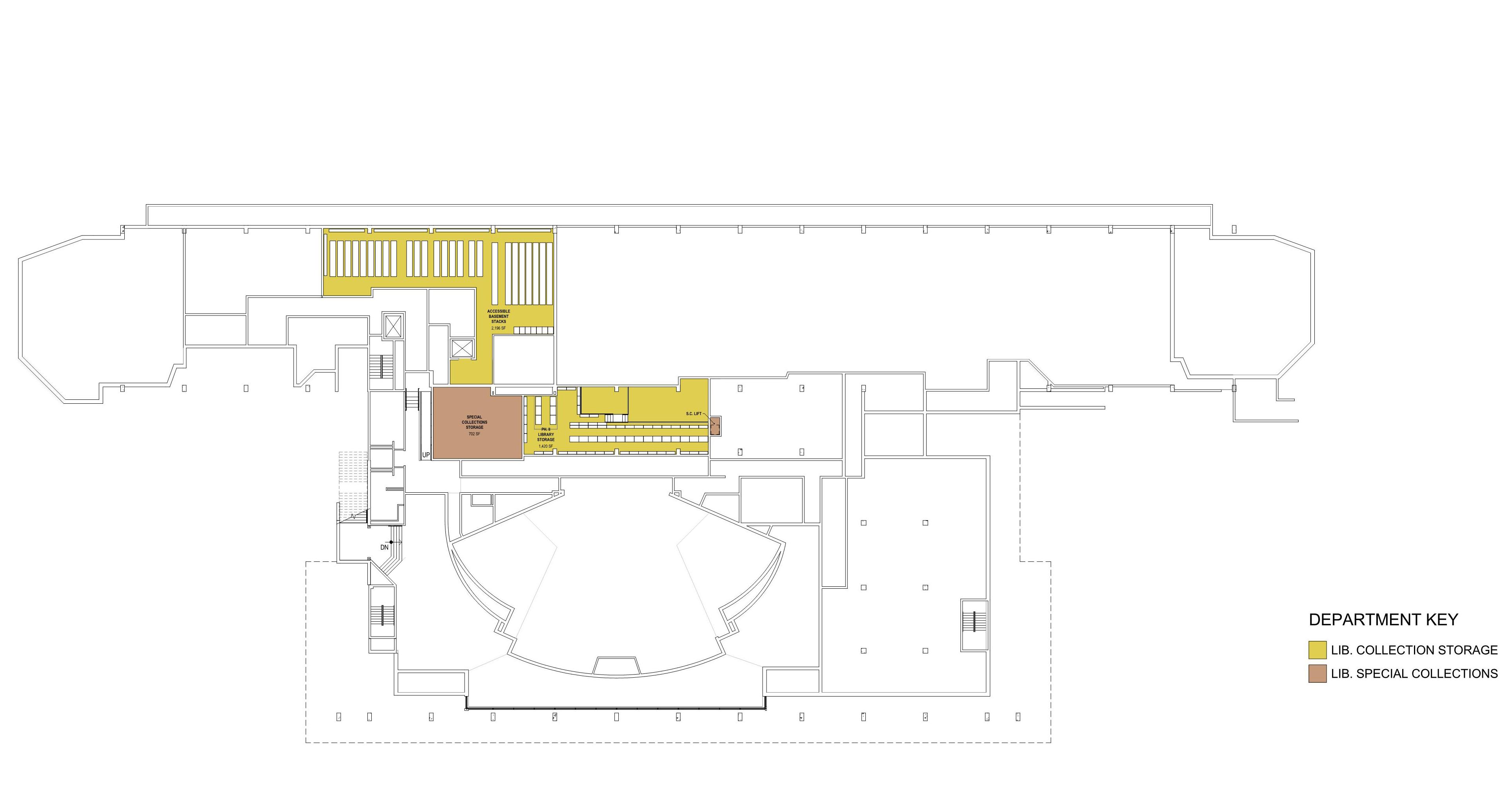
Functional compact stacks with direct elevator access from Lobby.

Special Collections storage space

UVA Law Library Study // INTRODUCTION 12
DEPARTMENT KEY Study Special Collections Service Lounge Circulation Staff Open Study Collections
VMDO Architects 13 1 Level 0 Level 1 Level 2 Level 3
Front door from concourse Accessible compact stacks Reference collection and reading room Special Collections Reading Room Entry with special collections displays MyLab student lounge & vending Rare Books Room Klaus reading room Staff workspaces Collections & Reading area Former Periodicals Room, level 1 north Collaborative classroom Archivist workspace on level 2 Caplin Reading Room Staff Break room Digitization work room Microform cabinets Additional compact storage Phase II Storage room Unusable space in Phase II Storage room
2

BENCHMARKING

The University of Virginia School of Law is unique among its peers. Known for its long history (the fourth oldest law school in the US), law was one of the original disciplines taught in the Academical Village when Thomas Jefferson founded the University in 1819.

UVA is consistently ranked as one of the top law programs in the nation. Notable alumni include members of Congress, federal judges, leaders of prominent law firms, corporations, government, and public interest organizations, and deans of law schools and universities. As programs have expanded, and as the law school has grown on its lush North Grounds property, there has been one underlying constant: the collegiality and comraderie of Grounds and the greater Charlottesville community and Piedmont region have continued to set life here apart.

As work began on the Space Planning study, the design team and library staff populated a list of peers that reflects the academic trajectory of the Law School’s well-respected programs while also capturing the more intangible aspects of place, community and regional relevance considered so important to the experience at UVA.

FIRST TIER INSTITUTIONS

SECOND TIER INSTITUTIONS

THIRD TIER INSTITUTIONS

FOURTH TIER INSTITUTIONS

FIFTH TIER INSTITUTIONS

UVA Law Library Study // BENCHMARKING 16

PEER INSTITUTIONS

The venerable institutions to the left served as early benchmarks for our assessment work. Previous space planning efforts at the Law School highlighted these schools, and compared their spatial and programmatic underpinnings to those of the UVA Law School.

Using publicly available resources, the design team mounted a survey of comparable statistics including enrollment, physical size (sf), location, tuition, and faculty size. Once the broader institutional comparisons were established, we focused-in on the particular offerings of each school’s library. We isolated collections size, user seats, group study rooms and a

variety of other metrics to establish a convention to measure the existing library’s physical assets against what other similar programs offer their students. We also considered schools outside of this select group. These schools exhibit characteristics that appeal to students considering UVA Law, and frequently attract the type of individual considering coming to Grounds to study law. Included in the expanded benchmark list are the following: U of Chicago, Columbia, U of Pennsylvania, Duke, Northwestern, U of Texas, UCLA and Vanderbilt.

VMDO Architects 17 2
UVA Law Library Study // BENCHMARKING 18
- data unavailable
VMDO Architects 19 2
Yale University Lillian Goldman Law Library University of Virginia Arthur J. Morris Law Library Harvard University Law School Library University of Chicago D’Angelo Law Library University of Michigan Law School Library Stanford University Robert Crown Law Library Georgetown University Williams Law Library Columbia University Arthur Diamond Law Library University of Pennsylvania Carey Law Library

ENROLLMENT

Thanks to its amazing Piedmont setting, a history dating back two centuries, and a long tradition of academic excellence, UVA sees its bucolic home in the Blue Ridge foothills as an attractive alternative to its peers located in larger urban areas. The collegiality cited by students as a central motivation for attending UVA has roots in the mix of native landscapes,

pedestrian-friendly streets and the storied cultural institutions of the Charlottesville area. Its distinctive location, access to shopping, dining and recreational opportunities, and welcoming year-round residents are decisive factors in student’s decisions to attend UVA Law.

UVA Law Library Study // BENCHMARKING 20
Enrollment data from 2022 ABA disclosures

CAMPUS IDENTITY + URBAN DENSITY

University of Virginia - Charlottesville, VA

Population: 46,550 / 150,000 metro area

University of Michigan - Ann Arbor, MI

Population: 123,850

Stanford University - Palo Alto, CA

Population: 68,570

Columbia University - New York, NY

Population: 8,336,817 / 20,100,000 metro area

University of Pennsylvania - Philadelphia, PA

Population: 1,600,000

Harvard University - Cambridge, MA

Population: 117,090

Yale University - New Haven, CT

Population: 134,020

University of Chicago - Chicago, IL

Population: 2,570,000

University of California, Berkeley - Berkeley, CA

Population: 117,145

VMDO Architects 21 2

SPACE TYPES

Office Spaces

Special Collections

Outdoor Study

At early engagements with the Library working group it became evident that there was an interest in developing a lexicon of space types that would help serve as short-hand for the kinds of rooms and programs being discussed. An outgrowth of that discussion was an early “space type primer” - a visual guide to the gamut of spaces, furniture configurations and architectural elements that continued to surface in our meetings and workshops. These pages capture some of the most frequently-referenced spaces, and begin to paint a picture of a more open, warm, flexible and friendly library - one that both supports academic excellence and encourages engagement between faculty, students and staff.

UVA Law Library Study // BENCHMARKING 22

Formal Study Space

Collections

Informal Study Space

VMDO Architects 23 2

STUDY SPACE ANALYSIS

- data unavailable

Perhaps the single biggest differentiator among peer institutions, and between peers and UVA Law is the preponderance of small group study rooms and meeting spaces. More than any single space type discussedboth with librarians and students - the group study room was repeatedly

cited as the most important and useful room in the library’s catalog of spaces. It was also consistently considered lacking in count and availability in the current library.

UVA Law Library Study // BENCHMARKING 24

Benchmarking study and brightspot study reveal that the UVA Law Library has slightly less study space and fewer group study rooms than its peers.

VMDO Architects 25 2
Harvard Law School Group Study Space Harvard Law School Group Study Space UC Berkeley Study Space Georgetown University Group Study Space UC Berkeley Classroom Northwestern Study Room
3

ENGAGEMENT

It cannot be overstated how important user input is in the early stages of any design process. Without invoking user feedback, a space study like this one is relegated to best-guesses and built upon assumptions. To construct a case around sound arguments requires reaching out to the people who know the building best: the staff, faculty and students who call the library their home.

From the outset of our engagement with the UVA Law Library, we were determined to operate with transparency, but also with empathy and an openness to sharing authorship of this work. Using a range of strategies - individual staff interviews, weekly working group meetings, monthly committee sessions, librarian forums, student outreach meetings, and a storefront day in the halls of the law school - we endeavored to listen first, listen closely, and to imbue our professional assessment work with the everyday perspectives of those we were serving.

What follows is a summary of the many ways we appealed to those who stand to reap the most from a successful re-envisioning of the Law Library at UVA.

The survey results presented on these pages represents feedback culled from in-person and digital surveys conducted with a range of current UVA Law students. The survey questionnaire is the result of a collaborative effort

that employed insights from both UVA representatives familiar with similar surveys used across the University and Law Librarians with an intimate knowledge of student needs, expectations and attention spans.

Favorite Seating:

First and second floor study spaces

Some of the group study rooms could be bette,r, comfortable.

The Klaus reading room, the carrels

1st floor room.

First floor study desks

The second floor open study space

collaborative classroom

Classroom

The space opposite VLR on the north side of the building (near KFZ)

The individual spaces on the second floor; I also like the periodical space and the individual carrels back there

I like the back hallway looking over the walkway to the jag school it has pretty trees

Places to nap would be awesome

E Sports computer lab. Law IT services desk. Outlets in ALL the carrels.

Places to Nap

Renovate the back of the first floor its mostly empty stacks. There could be a lot more effective use of that space. More study rooms. Also, larger whiteboards in all group study rooms. Most are too small.

Cups, a refrigerator, improved furniture, more study space (most students go their entire law school careers without accessing things like microfilm, the volumes of journals from other law schools, laws and decisions from other nations, etc.; I know that the library has reasons for keeping these resources, but their utility appears to be quite low)

Napping pods; more segmented spaces sometimes the main floor feels too big free dr. pepper

More Study Rooms

the collaborative classroom

window seats

2nd floor windows

"The gunner pit."

The reading room on the first floor

The mason room

MyLab and Second floor tables in main room

the areas by the windows

gunner pit

My Lab (where the free coffee is)

The talbles by the window

Second floor carrels on first floor

2nd Floor Windows

study rooms, VJIL office I like enclosed, more private spaces that can also be used for small group work carells looking out windows

Caplin / “Gunner Pit”

more study rooms

lighting? comfortable chairs, laptop stands, sitting desks

Better coffee, more seating options.

Standing desks, more comfortable chairs that can adjust to desk height, more and better group study rooms

Standing Desks

Carrels

Reading room downstairs, my lab, and tables in the open upstairs area.

Small study rooms

Main area on the second floor; small study rooms; conference rooms

The 3rd floor Carrells, the basement (I'd love a couple of chairs down there, would be an excellent place to study while communing with expired textbooks), the newspaper stacks, the far side of the second floor (near the UN books).

A microwave, fridge, and cups (most important)

Sleeping pods/ quiet meditation area. More vending machines with better options. More coffee machines

New Food & Coffee Options

low lighting new windows

more tables with lamps that are elevated for easy reading. Sleeping area

more food options and group study room.

Aesthetics, making study rooms more cozy

Updated Lighting & Aesthetics

Smaller, two-person desks to replace some of the four-person desks often times tables are taken entirely by one or two people and there's a lot of open space; some people find it uncomfortable to sit with strangers

I'd like to be able to use the stairs without getting locked out, and I'd love a fiction section. Law students need light reading too, and it's fun to browse books.

VMDO Architects 29 3
Desired Amenities: 1st & 2nd Floor

LIBRARY STAFF

Law Library Mission Statement:

“The Arthur J. Morris Law Library provides outstanding research, teaching, and collections to advance the University of Virginia School of Law’s mission of excellence in legal education and public service. As a cornerstone of the UVA Law School experience, the Law Library cultivates a welcoming environment where our community can learn, collaborate, and thrive.”

Law Library Vision Statement:

“To empower discovery for everyone in our community and be a foundation for world-class scholarship and teaching at UVA Law.”

Given the number of hours library staff spend in the building, the space study focused on getting as much feedback and input from the librarians as the project schedule permitted. By and large, the staff spend as much or more time in the library than they do at home; a testament to both their

keen awareness of the ways the space operates to allow them to perform their jobs, but also ways in which it might be improved to help make their time working with students, faculty and each other more fulfilling, effective and healthy.

UVA Law Library Study // ENGAGEMENT 30
VMDO Architects 31 3
Photos from Librarian Forum

LIBRARY DEPARTMENTS

Successive librarian workshops were aimed at revealing the true nature of their daily obligations. Each of the librarian forums used different tactics to drill into what departmental missions were, how individuals spent their days, and what they liked and disliked about the current library.

This exercise was developed to learn first-hand how each department viewed their mission within the larger library ecosystem. It was instrumental in helping the design team understand what lie at the center of each group’s responsibilities.

Floor plans with current staff office locations.

The library staff have adapted to changing space needs over the years, resulting in a decentralized layout. Teams are spread across the building and team members indicated that this makes collaboration more difficult.

UVA Law Library Study // ENGAGEMENT 32
L1 L2 L3

ADMINISTRATION CIRCULATION

TECHNICAL SERVICES

“To be the central hub for the flow of info & services among library departments, Law School management, alumni, and the greater UVA community; to establish and coordinate implementation of the overall priorities for the library.”

FOREIGN, COMPARATIVE, & INTERNATIONAL LAW

“A library within the law library, focused on foreign, comparative, and international law. Coordinate between research, technical services, and circulation to provide access to this subject material.”

“The circulation dept. fosters a welcoming environment for library visitors as the first point of contact and ensures the efficient flow of library materials.”

“We order, purchase, and process library collections. We run the systems that make them available to users, like the catalog and web site. Provide analytics on collection and its usage and collaborate with other departments to communicate with users.”

SPECIAL COLLECTIONS & DIGITAL SCHOLARSHIP

“We preserve, interpret, and share the history of UVA law and enable research in legal history.”

RESEARCH LEGAL DATA LAB

“Supporting faculty, students, and other patrons in their research by partnering with faculty, teaching students research methodology, and providing access to legal information for the public. To maintain collections and ensure users are aware of available resources.”

“We provide support across the life cycles of empirical projects by meeting the needs of empirical scholarship of faculty members, and helping students acquire and develop their data skills.”

Library departments with number of staff in each.

These departmental mission statements were written collboratively by library staff. Solid dots indicate current staff members and outlined dots indicate vacant positions.

VMDO Architects 33 3

FACILITY UTILIZATION BY PERSONNEL

To drill down into the everyday inner-workings of the library, we asked each librarian to respond to two prompts: trace your activities within the library on a typical day, and consider the balance of time you spend working in a variety of individual and collaborative settings. These exercises created a visual accounting of the physical parameters within which library services were being delivered, and the spatial and time constraints responsible for shaping the service model.

It became evident that, unlike other libraries on Grounds, the Law Library is responsible for generating a significant amount of support for not only the student users but also the faculty. Much of the effort expended on research support for the faculty is done during focused, individual time that necessitates acoustically isolated, well-lit and digitally-connected research/office space. It was established that, though the need for individual space is considered important, that space need not be any larger than standard University office/work space.

UVA Law Library Study // ENGAGEMENT 34

What percentage of your time do you spend working in the following categories?

Administration

Research Special Collections

Technical Services

Formal, Comparative, + International Law

Legal Data Lab

Individual (Includes participation in virtual meetings)

Colleagues

Faculty Students

Visitors

Other

Circulation

These pie charts reflect the impressions each librarian recorded of the time they spend working individually and collaboratively with fellow library team members, faculty, students and the public. The design team and working group concluded from this exercise that the majority of the librarians spent at least half of their time engaged in focused work best performed in acoustically isolated spaces dispersed throughout the library. A smaller but still significant number of library staff reported that they spend considerably more than 50% of their time working alone.

VMDO Architects 35 3

More windows needed overall!

Improved wayfinding graphics

Need separation b/n quiet study and social spaces

Gunner’s Pit is good for image, but I don’t use it

Plug in monitors to use w/ laptops

more reading height tables, instead of low lounge furniture

The above are excerpts from the various student engagement sessions. Law students were generally pleased with the overall condition of the library and the services it provides. They commended the staff, and suggested that improvements to the facility would increase the likelihood they would utilize the library over the duration of the semester.

UVA Law Library Study // ENGAGEMENT 36

WHAT WE LEARNED FROM STUDENTS + STAFF

As our work proceeded, and as quantitative information continued to develop, an evolving list of design themes began to emerge. These themes were grounded in the physical parameters of the study: they articulated the requested spaces, relevant spatial adjacencies and the specific environmental characteristics requested by staff and students, but they also struck a deeper chord. The list of themes below appeared to crystalize the more intangible aspects of what our design conversations referred to as UVA’s unique “collegiality”

- some mix of warmth, esprit de corps, and a genuine admiration for the place we live in.

Emergent Design Themes

• Co-location of staff into “neighborhoods” that support individual responsibilities but encourage collaboration

• Shared/collaborative work zones that welcome staff and students

• Locate people along exterior walls, near views and natural light. Locate books on the interior.

• Consolidate Special Collections. Bring spaces from across the library together.

• Create a Legal Data Lab. Create a home for burgeoning digital pedagogy.

• Expand the range and number of study spaces. Add spaces that can be reserved to be meet demand.

• Delineate a Quiet Study Zone. Make a dedicated room for silent study.

• Enhance the public visibility of the library. Expand the amount of glass at the entry to enhance views into and out of the library.

• Create a rooftop garden and activate adjacent library spaces. Transform the underutilized roof into a welcoming outdoor space.

• Improve myLab. Introduce furniture options to provide more flexibility.

VMDO Architects 37 3 Survey Response Distribution by Program / Year: Year 1L Year 2L Year 3L Year LLM 17 7
8 2
4

PROGRAMMING

Working closely with the librarians at the UVA Law Library, and with the guidance of representatives from the University Architect’s Office and the Office of the Provost, the design team established an existing space program that records the full complement of spaces within the library. This program document was presented in both tabular/ spreadsheet format and a graphic format that allows for easy visual comparison of space distribution. Spaces were divided into the following categories for tracking purposes: staff space, open study space, group study space, student lounge space, collection space (traditional bookshelves, compact storage, periodicals, and microfilm), special collections (including the rare book room) and open circulation space. Service areas including restrooms, stairs and elevators were given their own category.

Once the existing program was established, the working group began to analyze ways to re-balance square footage among departments to achieve the goals established in the workshops, interviews, and forums. Multiple studies were mounted to consider viable alternative layouts, and then a single, preferred plan design was created that synthesized the best aspects of the generative studies.

More efficient/dense collection storage, co-located staff, consolidated special collections and re-distribution of student study space and office space allows the proposed library plan to provide all the necessary spaces and services in an efficient and easy-to-navigate new layout.

BREAKDOWN

The tabular program records the spaces and their square footages as we found them at the outset of the design process. It registers space at the southern end of the library on Level 2 that has since been converted to faculty offices, and thus represents an existing library condition that has already diminished in area by 5,700 square feet.

In addition to presenting general categories of space, and the rooms that comprise them, the program list the number of discreet rooms in each sub-category and includes, where applicable, the number of user seats attendant to that space.

Total Area by Department

Collections - 43%

Special Collections - 3%

Lounge - 1%

Flexible Instruction - 1%

Open Study - 17%

Circulation - 19%

Study Rooms - 4%

Staff - 13%

UVA Law Library Study // PROGRAMMING 40
VMDO Architects 41 4 Existing, Pre-L2 Existing, Post-L2 Total Offices LF of Shelving Total Group Studies Total User Seats 76,400 70,800 23 55,000 9 670

EXISTING FLOOR PLANS

Level 0 Plan

DEPARTMENT KEY

Collection Storage

Special Collections

UVA Law Library Study // PROGRAMMING 42
N
VMDO Architects 43 4 Level 1 Plan N DEPARTMENT KEY Study Collections Circulation Staff Open Study

EXISTING FLOOR PLANS

UVA Law Library Study // PROGRAMMING 44
2 Plan
Level
Study Special
Lounge Circulation Staff Open
N
DEPARTMENT KEY
Collections
Study Collections
to Faculty Offices
5,700 SF - SUMMER, 2023
Converted
VMDO Architects 45 4 Level 3 Plan DEPARTMENT KEY Open Study Collections Circulation Staff Special Collections N

PROPOSED PROGRAMMING

The proposed program at right is the result of repeated drafts that considered a range of re-balancing scenarios. Working closely with the library committee, we settled on this preferred program after considerable deliberation, and counsel from parties across the University.

Key to the logic of this proposed program is the flexibility it provides by reducing the floor area dedicated to the storage of the physical collection on-site. A number of options would allow the library to convert static stack space to student-focused learning areas, expanded service accommodations, and improved asset layout (which in turn improves wayfinding and visibility). Three possibilities, either deployed together or used independently, permit the necessary space to be freed-up:

Install high-density/compact shelving. This strategy would keep the large majority of books in the library, but would condense them into fewer, smaller areas.

Re-locate lower-circulating books to off-site (remote) storage. This option keeps the collection intact, but moves less frequently used books into an environmentally-controlled satellite storage facility where they can be delivered to students and faculty when needed, typically within a day.

Reduce/retire portions of the collection. De-accessioning some non-circulating books or journals available digitally would further reduce the square footage needed for book storage and return library space to users and staff.

UVA Law Library Study // PROGRAMMING 46
Reduced Collections (15-20%)
VMDO Architects 47 4
Spaces MyLabEnlargeorDuplicate /Cafe NewStudyRooms StudyIncreaseDistributed Space CollectionsCombineSpecial Spaces DataNewLegal Lab 36,450 sf 7,365 sf 4,290 sf 10,990 sf 12,010 sf 675 sf 2,800 sf
StaffRe-groupOther
5

RECOMMENDATIONS

The following Law Library Space Study recommendations are the result of eight months of engagement with UVA students, librarians and institution representatives from the highest levels of the University Planning and Design echelons. We are confident that they not only meet the current needs of the staff, faculty and student users, but also equip the Law School Library to react nimbly to future academic needs and spatial pressures that may arise from shifting pedagogical trends. As outlined earlier in the report, these recommendations hew closely to the stated goals that emerged from our early engagements. Outlined in the following pages are our proposals for how to:

• provide more, and more flexible study spaces for students

• co-locate staff into a “neighborhood” that supports individual work patterns but promotes collaboration and collegiality

• balance the desire to maintain a world-class collection of resources with a desire to prioritize people

• consolidate the amazing special collections assets into a single, identifiable, and easy to locate home

• create a digital media lab that supports faculty work but also welcomes students

• connect the interior of the library to the Law School community and the natural setting beyond.

With these proposed changes and many other, more subtle shifts to the way the library is organized, furnished, and staffed, we hope to extend the level of excellence UVA Law has established for generations.

BUILDING FLOOR PLANS

A Reinvigorated Library Ecosystem

Central to the success of the proposed plan organization is the concept of collecting related programs into identifiable precincts within the library perimeter. By co-locating staff, aggregating all of the disparate pieces of the Special Collections department, gathering student study space together, and locating related parts of the collection together, the new library space plan aims to make navigating to and through the library a more efficient and enjoyable experience for users. By leveraging off-site storage options, the percentage of library area dedicated to books and other reference materials can be reduced to provide more space for users and appropriate staff accommodations.

NOTE: Plans rotated on this page to allow all 4 floors to be shown in sequence.

UVA Law Library Study // RECOMMENDATIONS 50
0 Plan SF Floor Area SF Floor Area EXISTING PROPOSED Number of Offices Number of Offices Traditional Collection LF Traditional Collection LF Number of Group Study Rooms Number of Group Study Rooms Compact Collection LF Compact Collection LF 70,800 70,800 23 25 52,000 35,000 9 21 3,000 7,000 Number of User Seats Number of User Seats 670 704
Level
VMDO Architects 51 5 Level 1 Plan Level 2 Plan Level 3 Plan N

FIRST FLOOR PLAN A Warm, Welcoming New Home

The first floor of the Law Library is dedicated to iconic library programming, and sets the tone for the rest of the experience that unfolds on upper floors. The redesigned main entry beckons to individuals passing by with newly created views deep into the interior of the naturally day-lit Caplin Reading Room.

NEW FRONT PORCH

The proposed space plan includes a redesigned public entry that announces the presence of the library along the major north-south corridor in this part of the Law School. Swapping out solid walls for new glass storefront will provide students passing by with a glimpse of the program and people within.

REORGANIZED / REORIENTED CIRCULATION DESK

With the anticipated increase in foot traffic, and a desire to strengthen line-of-sight to front desk personnel, a rotated circulation desk helps to greet visitors as they enter.

The sequence of spaces on the first floor is carefully orchestrated to unfold along the path created between two crossing axes: the entry axis that brings visitors into the formal Caplin Reading Room, and a perpendicular axis that reorients visitors towards the new Special Collections suite of rooms.

NEW SPECIAL COLLECTIONS SUITE

For the first time in decades, the new design assembles all of the disparate pieces of the Special Collections department into one, central location. A flexible reading room welcomes users into a space that hosts Special Collections events and broader library programming.

A PRESERVED CAPLIN

The Caplin Reading Room (“The Gunner Pit”) is the symbolic center of the UVA Law School and, as such, will be maintained in its current condition. The double-height room serves as a major point of orientation for journeys deeper into the library.

EXPANDED GROUP STUDY ROOMS

Located in space currently allocated for SJD offices, a new row of reservable group study spaces expands the number of rooms dedicated to individual or small-group project work.

UVA Law Library Study // RECOMMENDATIONS 52 1 2 3 4 5
Diagram of primary first floor axial alignments
VMDO Architects 53 5 Level 1 Plan N 1 2 3 4 5 DEPARTMENT KEY Study Open
Collections Special Collections Circulation Main Entry Secondary Entry Staff Flexible
Study
Instruction

SECOND FLOOR PLAN An Intellectual Crossroads

The second floor of the new Law Library is where the energy of the student body and the expertise of the staff converge. The current ad hoc layout of student space, collections, and staff offices and work areas is efficiently reorganized to emphasize the underlying geometric clarity of the building. The western bar becomes home to the places and spaces where students and staff interact while the eastern bar is dedicated to housing the majority of the circulating collection. The zone in-between is largely cleared of program and is devoted to flexible student use. Informal reading spaces and clusters of seating are organized to take advantage of the views out to the landscapes beyond and to the new garden space created atop the existing roofscape.

NEW STAFF OFFICE SUITE

Five distinct staff “neighborhoods” cluster around a central, shared meeting room. Each department is provided with offices that have access to natural daylighting, and each group has their own, collaborative work zone.

NEW SMART CLASSROOM

A relocated smart classroom is positioned to take better advantage of visibility from public access points. The new room is easy to find and its visibility makes tech troubleshooting easier.

ROOFTOP GARDEN TERRACE

Long-isolated from the outdoors and the many fantastic natural amenities of the Copeley Hill site, the new space plan recommends that the currently unutilized roof be converted into a limited access roof deck with native plantings and modest hardscape areas.

OPEN STUDY AREA

A new south-facing student study lounge takes advantage of a southerly prospect and an inspiring view into the double-height Caplin Reading Room to the north.

STUDENT & STAFF INTERACTION

STUDENT FLEX USE

CIRCULATING COLLECTION

Diagram of three clear functional zones

COLLECTIONS

With the judicious use of compact storage, the new library space plan can flexibly accommodate both today’s collection and - in tandem with remote storage capacity at Ivy Stacks - the uncertainty of tomorrow’s. The consolidation of books on L2 helps the library better organize the collection to enhance browsability and wayfinding.

RELOCATED MyLab

To make the most of the opportunities provided by the rooftop garden terrace, the current myLab space is moved into the glassy connector to the north of the terrace, creating a vibrant new flex space that has direct connection to the outdoors.

UVA Law Library Study // RECOMMENDATIONS 54 1 2 3 4 5 6
VMDO Architects 55 5
Plan 1 2 3 4 5 5 6 N Reference Circulating DEPARTMENT KEY Study Open Study Collections Roof Terrace Lounge Circulation Green Roof Staff Flexible Instruction
Level 2

THIRD FLOOR PLAN A Quiet Place to Study

The third floor plan envisions a quiet study zone that can provide space for students looking to work and think in relative isolation from the everyday goings-on of the rest of the Law School community. A range of tables, carrels and comfortable armchairs provide a variety of environments to choose from, all under the diffuse natural light provided by the north facing clerestory windows above.

QUIET STUDY AREA

The upper reaches of the library’s four-floor building is ideally situated to provide an environment that can be made acoustically separate from the library proper. Using storefront glazing, the third floor can be enclosed along the balcony edge to isolate itself from the activity below, while maintaining access to views and natural daylighting.

To accommodate the addition of the new group study rooms on the main level, this plan proposes swapping out the requisite square footage on this floor for the relocation of offices. The new configuration places them along an existing office corridor, and provides ideal access from other quadrants of the Law School.

COLLECTIONS

As on the level below, the third floor’s post-tensioned concrete structure has been determined to be able to support a specific type of compact shelving system.

RELOCATED SJD OFFICES

The eight offices displaced by the addition of group study rooms find a new home along this existing office corridor.

UVA Law Library Study // RECOMMENDATIONS 56 1 2 3
Swap Diagram - Section a-a New Group Studies +1,100 sf Relocated SJD Offices -1,450 sf

SECTION a-a

DEPARTMENT KEY

Circulation

Collections

Special Collections

Open Study

Staff

VMDO Architects 57 5 1 1 2 3
N

LOWER LEVEL PLAN A Homebase for Resources

The lower level of the library is reserved entirely for the storage of books, microfilm and other low-circulating items that do not need to be within easy reach of students, faculty and the public at large. With no natural light and little physical/visual connection to the major public spaces within the library above, this floor is ideally suited to housing portions of the collection that need to remain onsite and that benefit from secure storage requirements/demands (like Special Collections documents).

REORGANIZED COLLECTION AREA

A key part of the strategy to reallocate space within the library is to reconsider the ways resources are stored. In addition to weeding the collection to remove unused materials, the Law Library is also considering relocating some of its holdings to a remote storage facility at the Ivy Stacks.

MECHANICAL BOOK LIFT

A new book lift will allow materials held in the lower level of the library to be transferred to the Special Collections spaces directly above. Currently, librarians need to exit the library, descend stairs/elevators and re-enter secure collection areas to retrieve books for patrons. This measure will alleviate that need by directly linking the spaces vertically.

UVA Law Library Study // RECOMMENDATIONS 58
2
1 Mechanical Book Lift - Liberty University Library

DEPARTMENT KEY

Collection Storage

Special Collections

VMDO Architects 59 5 1 2
N

GROUP STUDY

At present, the UVA Law Library ranks somewhere in the middle of the pack with regards to small group study space, when compared to peers. Our early engagements with students and librarians revealed a perceived need for more, and better, reservable study rooms that can be used by one to four students at a time. The current spaces are poorly designed acoustically, lack appropriate technology, and are often oversized for their intended uses. (Our research reveals many larger rooms being utilized by single students.)

The proposed space plan prioritizes the addition of 12 new study rooms, and ample additional open study space to address the growing demand for small to medium sized spaces designed for collaborative work. A range of room sizes help promote the utilization of a right-sized room, while guaranteeing that an appropriate number of smaller spaces are always available when called upon. To accommodate the additional rooms on the first floor, the proposal recommends relocating existing offices to the upper (third) floor of the library, where they would be situated among similar office program.

Group Study

DEPARTMENT KEY

Circulation

Collections

Special Collections

Open Study

Flexible Instruction

Study

Staff

UVA Law Library Study // RECOMMENDATIONS 60

STAFF WORKSPACE

Earlier in this report it was demonstrated how widely decentralized staff workspace has become in the existing library. Though adequately sized and appointed, the somewhat happenstance nature of staff offices and work areas contributes to a fragmented and Balkanized collection of work pods. The geographic distances between librarians working together on shared projects has become a distraction, and has created less than ideal conditions for inclusion, integration and camaraderie.

The design of the proposed space plan eschews departmental distribution in favor of near-total co-location in the northwestern portion of the library’s second floor. Here, departments are assigned “neighborhoods” equipped with the necessary individual work areas, but designed around collaborative work areas and shared conference and break rooms. All offices and the break room are organized to benefit from natural light along the perimeter of the building, while shared work rooms and processing areas are kept internal. Reference librarians reside in an outstretched arm of this staff zone, where their frequent engagement with students recommended a more public location, while circulation staff are positioned at the front help desk nearest the entry. From here they can passively monitor arrivals and departures, and can greet visitors looking for assistance. The Special Collections staff is located with their resources on Level One, but are located together within the building for the first time.

VMDO Architects 61 5
KEY Study Open Study Collections Roof Terrace Lounge Circulation Green Roof Staff Flexible Instruction
Staff Workspace DEPARTMENT

ROOF TERRACE

It doesn’t take a space planning study to uncover ways to improve the connection of interior spaces to the natural environment - which is why, perhaps, one of the first requests from staff and students was to convert an uninspiring roof scape into an occupiable outdoor terrace. Presently, the existing flat membrane roof sits mute, amidst spaces teeming with activity. The redesigned plan puts new emphasis on this part of the library by locating modest outdoor seating areas and planters next to a new myLab to the north of the terrace, creating a space that is both beautiful to look at, and accessible for the first time.

By reorganizing the spaces around the terrace, and by doing some surgical MEP realignment (i.e. relocation of a duct), direct access is provided both from the top of the main stairway and from the myLab lounge, making what previously was an inconsequential roof and mechanical room penthouse into a great new asset for library users.

Achieving the addition of occupiable roof areas would require the careful addition of new rooftop structure that would span between existing columns supporting the roof from below. Beams, purlins and decking would effectively float above the existing column grid and roof membrane and would maintain the waterproof layer where it presently exists.

UVA Law Library Study // RECOMMENDATIONS 62
DEPARTMENT KEY Study Open Study Collections
Terrace Lounge Circulation
Roof Staff Flexible Instruction
Terrace New Garden Access
Roof
Green
Roof

VISIBILITY + NAVIGATION

Given the important role the library plays at the Law School, and the fact that it features so prominently in alumni’s fond recollections of their legal training, it comes as some surprise that the physical presence of the library within the larger school is as obscure as it is. Fleeting views of the library can be seen as one walks along the main corridor through a set of double doors, but, if you weren’t aware that it was a library, little about the architectural design would indicate as much.

The proposed plan suggests the introduction of a modest amount of new storefront glazing in the two bays facing the corridor and, adjacent, a redesigned entry sequence (including a new circulation desk and supporting workspace and office suite). By expanding the amount of glass at the entry, and by revealing more of the library environment to the corridor, the design aims to address the fact that a number of students are unaware of the many services the library provides. The new glassy front porch will promote more foot traffic, better visibility of library programs, and more opportunities for the Special Collections department to display rotating exhibits of its incredible holdings.

VMDO Architects 63 5
KEY Study Open Study Collections
Circulation Staff
Instruction New Entry Sequence
DEPARTMENT
Special Collections
Flexible

SPECIAL COLLECTIONS

The UVA Law Library has an outstanding collection of historically significant resources in their Special Collections department. The current Rare Book room on the upper level of the library contains 14,000 volumes of books and manuscripts, and represents hundreds of years of legal decision-making, theory, and research, helping establish UVA as a preeminent institutional repository for important documents.

To better position the Special Collections department within the library, and to better enable its dedicated librarians to serve students, faculty and the public, the proposed space plan assembles the many individual spaces associated with the special collections into one enclave on the first floor of the library, immediately north of the Caplin Reading Room. This move and the introduction of new staff collaboration space will support the department’s work creating digital exhibitions and managing digital content. Its location also enables direct physical connections to the collections held in the lower level of the library by way of mechanical book lifts. By introducing a lift, materials can be delivered vertically from below without librarians having to leave the confines of the library.

The new visibility provided by this prominent location both publicizes the contents of UVA’s world-class collection, and invites more visitors to engage with the available resources and the subject matter experts there to help them. Together, a larger, environmentally controlled vault for materials, co-located staff offices and processing areas, and an expanded, flexible reading room create a dynamic, efficient, and accessible suite of spaces that will help share the mission of the Special Collections department to “preserve, interpret, and share the history of UVA law and enable research in legal history.”

UVA Law Library Study // RECOMMENDATIONS 64
DEPARTMENT KEY Study Open Study Collections Special Collections Circulation Staff Flexible Instruction Special Collections Suite Flexible Reading Room
VMDO Architects 65 5 Collections Suite Collections Suite Structural Analysis

CONCLUSION

Our work with the librarians and law students at UVA’s Law School Library and in consultation with the representatives of the University Architect’s Office and the Office of the Provost has been noteworthy given the transformative events that have unfolded over the course of the last few academic years. A.I. engines have created a new level of possibility in the world of data collection and harvesting, and have induced a new sense of awe and wonder regarding the promise of technology. The fact that software and a growing catalog of apps wield an inordinate amount of influence over the information we create and consume is both liberating and frightening. Increasingly, there is uncertainty about the veracity of data being presented and the validity of the locus of its origination - reason enough to invest in the institution of the library, and the role of the law librarian in helping to cultivate reliable, trustworthy sources of information.

at merging the physical and virtual implications of legal education in the early 21st century, as it seeks to provide ways to work and learn together effectively, whether from within the physical confines of the library facility on Copeley Hill or from across the broad landscape of digital resources available to students and faculty today. The Law Library Space Study prioritizes physical space as a major contributor to academic success and social cohesion, but also acknowledges the role technology and virtual engagement play in today’s world. We hope that the foundations laid in this report provide a robust platform from which UVA’s Law School Library can continue to give life to its vision “to empower discovery for everyone in [its] community and be a foundation for world-class scholarship and teaching at UVA Law” well into the future.

At the same time we are being presented with an explosion of information and options for its access and retrieval, we are confronting a significant change in the physical limits of the places in which we live, learn, work and play. The Covid-19 pandemic permanently shifted the way we think about the physical environment, and the ways it both limits and empowers creativity, camaraderie and joy. The library study was our best attempt

UVA Law Library Study // RECOMMENDATIONS 66

Turn static files into dynamic content formats.

Create a flipbook
Issuu converts static files into: digital portfolios, online yearbooks, online catalogs, digital photo albums and more. Sign up and create your flipbook.
University of Virginia Law School Library - Space Study Report by VMDO Architects - Issuu