Architecture Portfolio

Page 1


Architecture

Portfolio

2019 - 2025

Freehand rendering referencing a realistic digital image, completed as part of a design communication exercise exploring light,

Vanesa Lopez

depth, and texture.

Content

GRADUATE:

Transpartation Hub + Resort

P04 - P09

Neue Gallerie + Gallery Addition P10 - P17

UNDERGRADUATE:

Incubator

Bus Shelter

Museum

P18 - P25

P26 - P33

P34 - P43

TRANSPORTATION

HUB + RESORT

FALL 2024 - ARCH 5670: ADVANCED DESIGN STUDIO with Professor Chad Porter, Andrew Lane, and Diego Barreto

When examining Roans Prairie, TX, we started by thinking about what really matters—people, food, energy, water, the environment, and community. In a rural place like Roans Prairie, building connections isn’t always easy, but it’s very important. That is why my vision for this project was to provide a transportation hub and resort that blends the energy of progress with the calm of rural life.

At is core, this project is about connectionconnecting people, ideas, and opportunities. By combining transportation, leisure, business, and retail, it creates a vibrant destination that serves many purposes.

Every part of the layout, from the train station to the resort, is carefully designed to create a great experience for visitors while supporting the local community.

GROUND FLOOR PLAN

The idea behind this design is to create a site that naturally blends the fast pace of modern life with the peaceful, slower rhythms of rural life. The journey begins with a dynamic and vibrant atmosphere, positioned on the right, where the highenergy elements are situated. This includes the train station and arrival area, places that immediately immerse visitors in a fast-paced environment, reflective of urban progress and movement. These spaces are bustling with activity, capturing the excitement and energy of travel, as people arrive and move quickly through the space.

As the visitors move along the site, the experience transitions into a more moderate, medium-paced zone. In this area, the program includes retail centers, restaurants, and a business hub. The atmosphere shifts to one that still maintains an active vibe but allows for more leisurely engagement. The pace here is not as hurried as the arrival area, offering a balance between activity and relaxation, where visitors can shop, dine, or conduct business in a more measured setting.

Further along the site, the visitor’s journey leads to a serene and tranquil space, the resort, where the pace slows significantly. This final destination is purposefully designed to evoke a sense of calm and retreat, offering a peaceful environment for relaxation and enjoyment. The transition from the fast-paced train station to the tranquil resort creates a rich, varied experience, guiding visitors through a thoughtful progression of environments that reflect both the pulse of modern life and the timeless calm of rural serenity.

Train Station Arrival/Departure

A vibrant arrival and departure space at the train station, bustling with energy and movement—a dynamic hub where travelers connect, explore, and experience the excitement of the journey.

Transportation Lobby

A train station lobby illuminated by skylights, offering a bright, open atmosphere and a breathtaking view of a connecting roof that seamlessly links the surrounding buildings.

Dining Area

An inviting dining zone where you can enjoy a variety of delicious meals—a perfect spot to take a break and satisfy your cravings.

A charming interior courtyard featuring picnic tables, offering a serene and cozy spot to relax, enjoy a meal, or gather with friends—perfect for a peaceful retreat or casual dining experience.

Courtyard

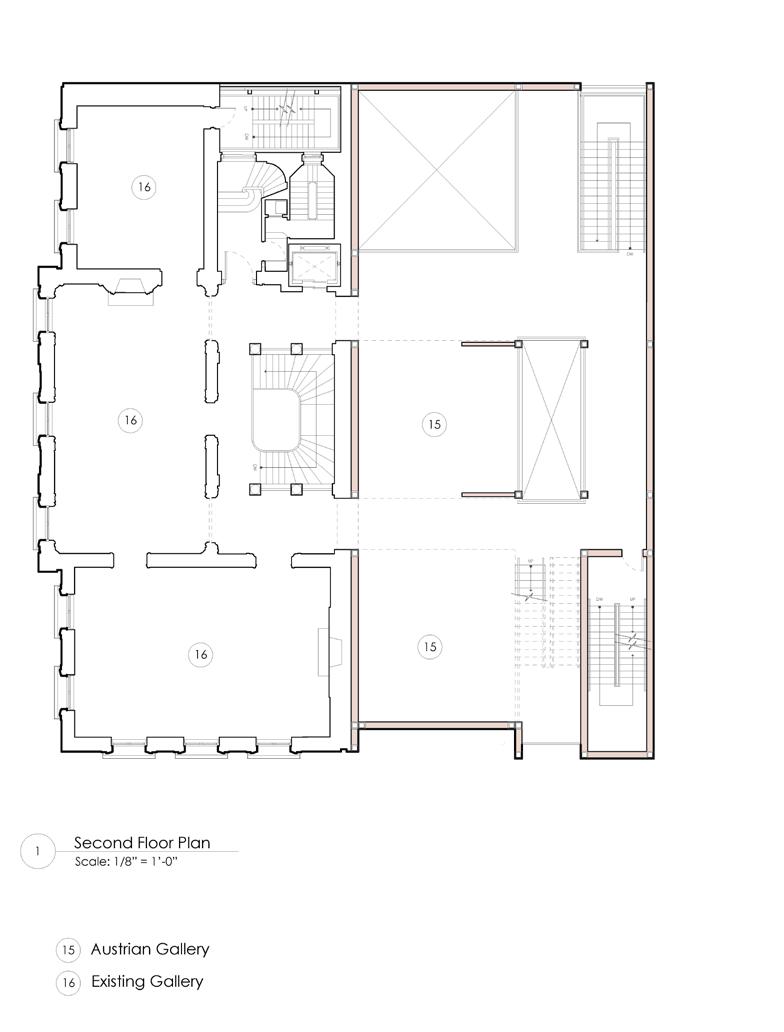
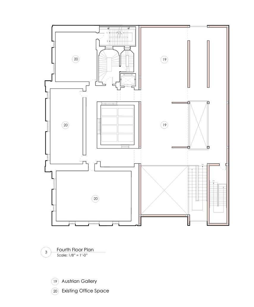
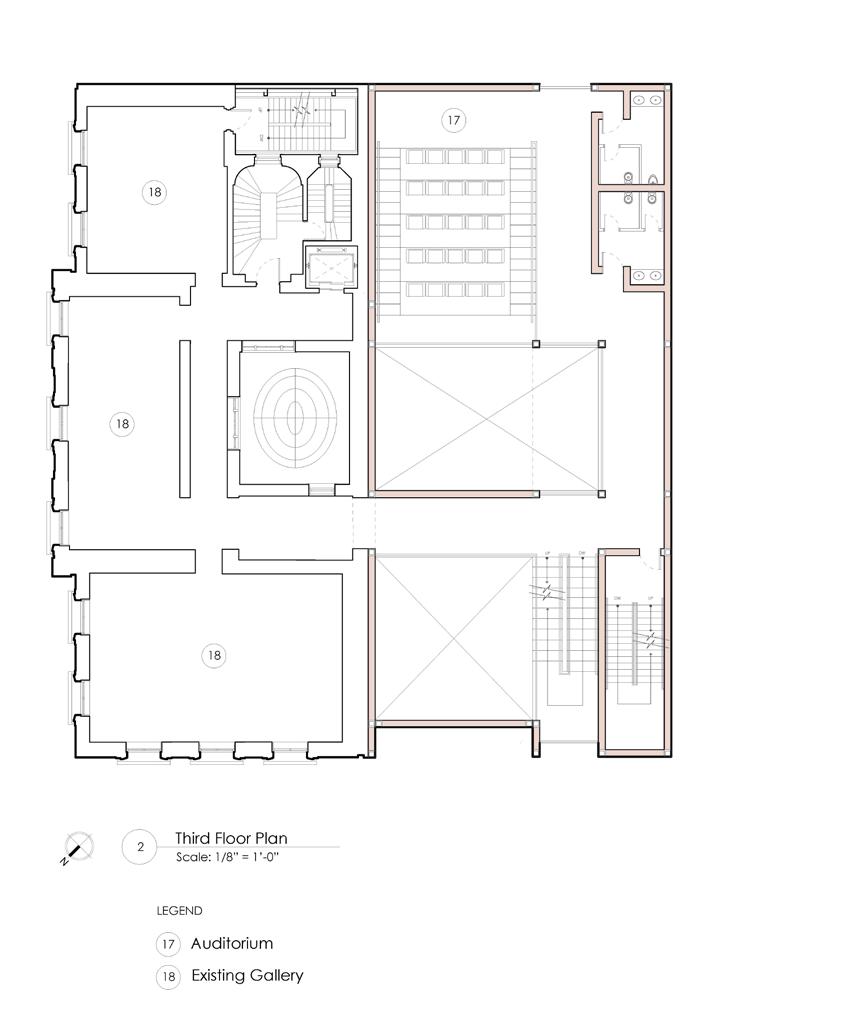
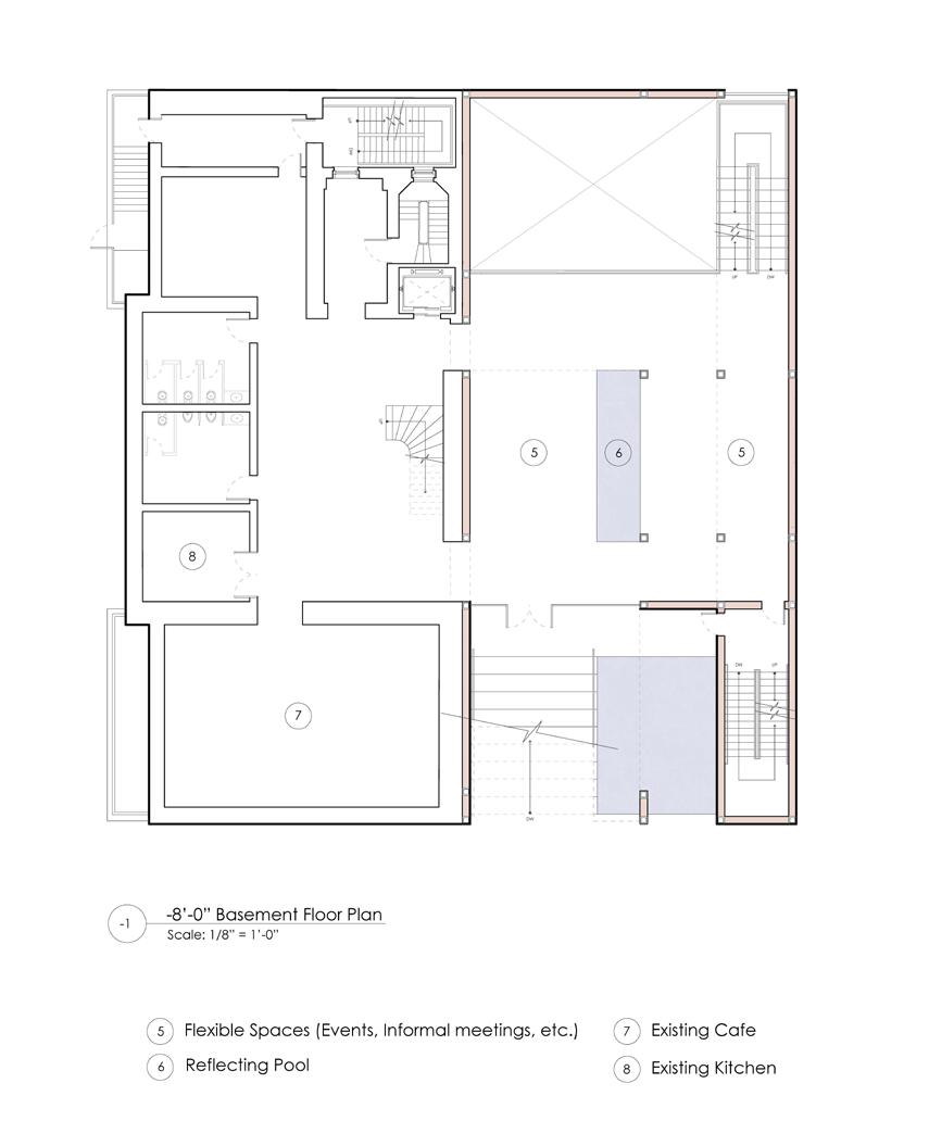
Neue Gallerie + Gallery Addition

At the start of the year, we set out to study Manhattan—not just as it is today, but as a foundation for reimagining infrastructure. Our research focused on a continuous landscape loop connecting art institutions around Central Park.

Digging deeper, we found that Manhattan’s history with water extends beyond its surrounding rivers. Once, streams and wetlands crisscrossed the island, naturally managing rainwater. But as the city grew, these waterways were buried, leading to faster runoff, overwhelmed storm systems, and increasing flood risk.

Our response: bring the rivers back. We envisioned them resurfacing along the grid, not only to manage water but to reconnect communities. A riverwalk would trace this path, linking cultural landmarks and returning public space to the city.

From this larger vision, my project focuses on one point along the loop: the Neue Galerie.

SPRING 2025 - ARCH 5670: ADVANCED DESIGN STUDIO with Professor Shadi Nazarian

Concept Diagram

Public - Private Diagram

Lighting Diagram

Program Diagram

Circulation Diagram

This portion of the parti holds the core programs of the building. The sectionreveals how movement flows fluidly through the floor plates, emphasizing the spatial relationships and continuity between each level.

Structural Diagram

The design is organized around a linear path that starts at the main entrance and guides visitors through the building. Along the way, it opens up to views of the atrium and other spaces, creating moments of curiosity and connection. As people move through the building, especially upward, the path encourages exploration and makes the experience of reaching the highest level feel intentional and engaging.

Axon Diagram

The Neue Galerie, along with its contemporary addition, is seamlessly integrated into the newly envisioned urban infrastructure—a revitalized riverwalk along Fifth Avenue. With vehicular traffic now rerouted into Central Park, the former avenue has been transformed into a vibrant pedestrian and cultural corridor, reconnecting the museum to the city through water, landscape, and public space

For the addition I’m designing, I translated the riverwalk concept into the architecture itself. At the entry, a miniature riverwalk welcomes visitors—a linear journey that begins at the threshold and draws them inside.

Upon entering, visitors find themselves beneath a tall, open atrium, where natural light from a skylight above pours down into the lobby. This moment sparks a sense of wonder, inviting them to explore upward. The guiding line of movement continues through the building, forming a loop that ultimately reconnects with the existing Neue Galerie — just as the riverwalk reconnects the city above.

INCUBATOR

The initial form of the project is derived from the existing site and eventually strengthens its connection between the project and its surrounding context. To address the high level of activity and foot traffic in the Columbus street area, the form of the building is set back to create a public outdoor space in front of the street, enhancing the accessibility and usability of the area for pedestrians and visitors. To emphasize the entrance, part of the first floor is further recessed. The location of the site features slopes, and the design aims to integrate this topographical feature making it a noticeable and engaging element for visitors as they approach the upper level.

SPRING 2023 - ARCH 4557: DESIGN STUDIO: ARCHITECTURE IV with Professor Bang Dang and Rizi Faruqui

FLOOR LEVELS

The first level is organized into spaces where it is both private and public. Programs include, Conference Room, Office Spaces, Break Room, Loading Dock and Lobby.

The second level is organized into spaces where it is private and collaborative environment. Programs include, MockUp Space, Material Testing, and Studio Spaces.

The third level is organized into spaces where visitors can have a learning experience. Programs incluce, Exhibition Space and an Informal Conference Space.

The exhibition space is located on the third floor, symbolizing the peak of the journey. It’s like reaching the top of a slope, representing a moment of achievement or progress. From here, visitors can experience the doubleheight space, which acts as the heart of the entire incubator.

The upper level gives people a new perspective of the spaces below. Looking down from the exhibition area lets visitors see how everything connects and works together. It creates a sense of curiosity and encourages them to think about the incubator as a dynamic and interactive place.

The double-height space is the main feature of the incubator, and from the third floor, it really stands out. It naturally draws attention and serves as a gathering place for people to share ideas, network, and collaborate. By placing the exhibition space up high and opening it to the central area, the design invites the public to get involved and imagine what’s possible within the incubator.

Overall, this layout creates an immersive experience that leaves a strong impression, helping people see the incubator as a space full of potential and innovation.

EMERGENCY HOUSING UNIT

The concept is based on designing a compact module that can preserve more open space with its basic necessities, and at the same time be modular and easy to transport.

This compact module is suitable for one or two people, and as the module expands it becomes more suitable based on needs. The design of this emergency unit incorporates a straightforward system of panels and framing. With a footprint of 54 square feet, the shelter is ingeniously designed to create a sense of openness.

The design carefully considers the utilization of light and architectural elements to maximize the perception of openness, ensuring that occupants can enjoy a more spacious and inviting environment within the limited area.

Concept 2 Area: 216 sq ft

Max Individuals per Unit: 4

Aluminum Panels

Plywood

Aluminum C-Chanel

Aluminum Stud

Wood Panels

Glass Panels

Lorem ipsum dolor sit amet, consectetur adipisicing elit, sed do eiusmod tempor incididunt ut labore et dolore magna aliqua. Ut enim ad minim veniam, quis nostrud exercitation ullamco laboris nisi ut aliquip ex ea commodo consequat. Duis aute irure dolor in reprehenderit in voluptate velit esse cillum dolore eu fugiat nulla pariatur.

Plywood
Alumiinum Panel
Aluminum Studs
Aluminum Framing
Drywall
Aluminum Column
Aluminum Base Frame
Aluminum Footing

BUS SHELTER

FALL 2022 - ARCH 4556: DESIGN STUDIO: ARCHITECTURE III with Professor Julia Lindgren

During Fall 2022, the University of Texas at Arlington - College of Architecture Planning and Public Affairs fourth-year design build studio worked in partnership with DART + AIA Dallas to redesign and build a bus shelter prototype to enhance rider experience. This project explores what the next generation of Dallas Area Rapid Transit (DART) bus shelters can be. The prototype was developed during a one-semester course and will be displayed at various locations across the Dallas area to solicit additional public input.

Demographics

DART is strategically positioned to serve the area’s growing population, in particular its low-income residents and people of color. Research shows these populations use buses more frequently than more affluent White people (Research Gate, 2015). In Dallas, 34% of Blacks, 27% of Hispanics, and 14% of White residents report utilizing public transportation weekly.

DART works to benefit the region by providing a sustainable system of innovative, affordable, reliable and safe mobility options for riders enhanceing the quality of life and stimulates economic development. In 2021, DART bus ridership totaled 20.1 million people being served by 6,878 bus stops across the region. The majority of DART riders are reliant commuters who use public transit to get to and from work. It is predicted that by 2045, the North Texas region will expand to accommodate 4 million new residents and 2.2 million new jobs (Dallas Morning News, 2022).

Bus Shelter Study

We examined the existing bus shelters thoroughly and documented their current specifications through sketching.

Iteration Two

In the second iteration, the design approach shifted towards a simpler aesthetic while still incorporating elements that retain an artistic quality.

Iteration One

The initial design concept for the bus shelter aimed to create an abstract and innovative structure.

Final Design

Taking into consideration the insights gained from the previous iterations, the final design focused on refining the functional screening elements and enhancing the structural connections. The emphasis was placed on the meticulous detailing of these elements to ensure optimal functionality and a seamless integration of the overall structure.

Having local art in a bus shelter can provide several benefits to the community and enhance the overall experience of using public transportation.

For the upcoming generation of DART bus shelters, it is essential to incorporate and showcase local art as an integral part of their construction. Collaborating with initiatives such as the City of Dallas Public Art Program or BIG Thought, the aim is to engage local artists and community members in the creation of unique artworks that reflect and celebrate the culture of each neighborhood. By transforming bus stops into public gallery spaces, the shelters become vibrant expressions of the communities they serve, fostering a sense of belonging and pride.

This collaborative approach nurtures neighborhood ownership, strengthening the bond between residents and their surroundings. The integration of local art into bus stop design not only enhances the visual aesthetics but also fosters cultural engagement and appreciation among commuters. As people wait for their buses, they are immersed in an environment that represents the rich diversity and creativity of their neighborhood.

The inclusion of art in bus shelter construction creates a harmonious integration of functionality and cultural expression, elevating the commuting experience and fostering a stronger sense of community identity.

MUSEUM

NEW FREE STYLE ARCHITECTURE MUSEUM AND RESEARCH CENTER

SPRING 2022 - ARCH 4554: DESIGN STUDIO: ARCHITECTURE II with Professor Michael Malone

Located in the heart of El Raval, a culturally rich and vibrant neighborhood in Barcelona, this Museum and Research Center is designed to engage both visitors and students through a bold architectural presence. Surrounded by key attractions such as La Rambla and MACBA, the site offers an ideal context for a project that bridges research, culture, and community.

The design introduces a distinctive material palette that contrasts with the traditional textures of Barcelona, making the building stand out while still responding to its urban fabric. Outdoor terraces, courtyards, and cafés are integrated into the layout to extend the museum experience beyond its walls— activating the street edge and inviting the public to participate in the everyday life of El Raval.

FIRST LEVEL

Area: 11,432 sq ft

First level is organized into spaces to interact and socialize Programs:

Visitor Scholar Dwelling, Lobby, Auditorium, AV Room, Kitchen, Cafe, Outdoor Cafe

SECOND LEVEL

Area: 8,800 sq ft

Second level is organized a learning experience Programs: Gallery 1, Gallery 2, Bookstore, Receiving

FLOOR LEVELS

THIRD LEVEL

Area: 10,690 sq ft

into spaces where visitors can have

Bookstore, Bookstore Office and

Third level is organized into spaces where it is a private and quiet environment Programs: Library, Archive, 10 Offices, Conference Room, Copy Room, Break Room, Assistant Director’s Office, Director’s Office

Lobby and Cafe Interior View

The lobby and cafe are next to each other because it enhances convenience and accessibility for guests, allowing for seamless transitions and easy access to refreshments. Additionally, it fosters social interaction and creates a positive first impression by providing a welcoming and vibrant space that encourages community engagement.

The layout of this building was designed with a clear and thoughtful approach. Putting the lobby and café on the first floor creates a welcoming entrance where visitors can grab a drink or snack and have a space to hang out and socialize right as they come in..

The second floor brings together a bookstore, galleries, and period rooms, which creates a really immersive environment. Having all these elements in one place makes it easy for visitors to explore and connect with different historical and cultural pieces in a way that feels natural and engaging.

The top floor is where the library, archive, and offices are located. This level is meant to be more quiet and focused, which makes it a great spot for studying, research, or work. By placing these spaces higher up, it helps keep them away from the busier areas, so it’s easier to concentrate and have some privacy.

Overall, the layout works really well for both visitors and staff. There’s a logical flow from the active, social areas at the entrance to the more reflective and focused spaces at the top. The building feels organized and easy to move through, which makes the whole experience more enjoyable and functional.

The physical model's exterior view showcases the seamless integration of the building with the surrounding landscape and enticing glimpses of captivating interior spaces.

Entrance View

Basswood and white museum board are the chosen materials for this project.

PORTFOLIO 2019-2025
The University of Texas at Arlington Vanesa Lopez

Turn static files into dynamic content formats.

Create a flipbook
Issuu converts static files into: digital portfolios, online yearbooks, online catalogs, digital photo albums and more. Sign up and create your flipbook.
Architecture Portfolio by Vanesa Lopez - Issuu