Skip to main content

Portfolio 2022_SV

Page 1

SIYABONGA VILAKAZI

PORTFOLIO
2022

SIYABONGA VILAKAZI

ARCHITECTURAL TECHNOLOGIST

SKILLS

REFERENCES

Bhavik Ranchod MArch(Wits),PrArch. Director at The Creative Axis Architects

Email: Bhavik@creativeaxis.co.za Cell: 076 460 8401

Sanjay Jeevan MArch(UJ(GSA)),PrArch. Team Leader at The Creative Axis Architects

Email: Sanjay@creativeaxis.co.za Cell: 083 674 8096

ABOUT ME

I am well experienced young Architectural Technologist, who believes in breaking boundaries to be the best. I am selfmotivated and professional in whatever I do and a passionate team player who believes there is always a space to learn from the others.

WORK EXPERIENCE

2022 ARCHITECTURAL INTERN (Full-time) AT THE CREATIVE AXIS ARCHITECTS

Working closely with a Team leader and Director. Tasked as an all-rounder from developing a design to producing very detailed working drawings, rendering, attending client and site meetings.

PERSONAL INFO

Title:

First names:

Surname:

Address:

Mr Siyabonga Vilakazi

2339 Powderpuff St, Lufhereng, Extenstion 1, Soweto.

2021 ARCHITECTURAL INTERN (Full-time) AT RUBEN REDDY ARCHITECTS

Assisting with going to site for measurements and producing asbuilt drawings using REVIT. To later achieve cost effective design for refurbishments to take place.

2021 ARCHITECTURAL INTERN (Part-time) AT LOUISE O. ARCHITECTS

Cell Number:

Email Address:

Nationality:

Race:

Identity Number:

Home Language:

Other Language:

Criminal Offences:

Marital Status:

083 257 4204

Siyavilkazi7@gmail.com

South African African 9707235127082

IsiZulu English

Basic drawings of projects in REVIT. Attending site meetings as well as client / architect meetings. Assisting with compiling information and measuring up for PS and PC allowances for Tenders.

2019 SURVEYOR / DATA CAPTURE AT COUNTERSPACE-STUDIO

Johannesburg Masterplan Study:Street and Edge and Conditions. conducting surveys, collecting data and producing CAD drawings.

EDUCATION

2018-2021

BACHELOR OF ARCHITECTURAL STUDIES AT UNIVERSITY OF THE WITWATERSRAND BRAAMFONTEIN, JOHANNESBURG.

2011-2015

MATRIC NATIONAL SENIOR CERTIFICATE AT P.J SIMELANE SECONDARY SCHOOL DOBSONVILLE,SOWETO.

No
Single
REVIT AUTOCAD SKETCHUP LUMION ILLUSTRATOR INDESIGN PHOTOSHOP EXCEL

◊ STIMELA MUSEUM

◊ FORDSBURG MIX-RESIDENTIAL

◊ KURUMAN TVET COLLEGE

◊ TSITSIKAMA TIMBER SHELTER

SCHOOL PROJECTS WORK PROJECTS

◊ COMMONWEALTH WAR GRAVES COMPETITION

◊ NORTHGATE MALL ENTRANCE

◊ GROWTHPOINT BUSINESS PARK

ALL DRAWINGS ARE NOT TO SCALE FOR PORTFOLIO PURPOSES

CONTENT

SCHOOL PROJECTS

THE

UNIVERSITY OF THE WITWATERSRAND
1095914@students.wits.ac.za

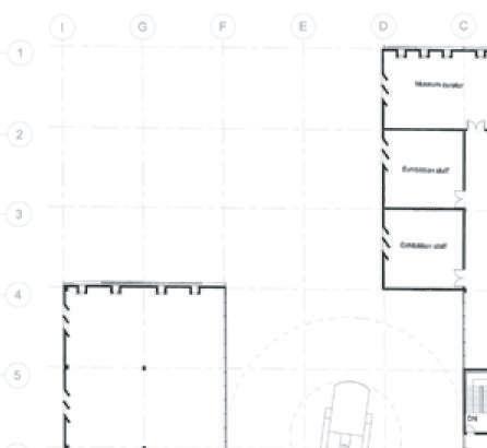
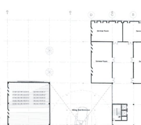
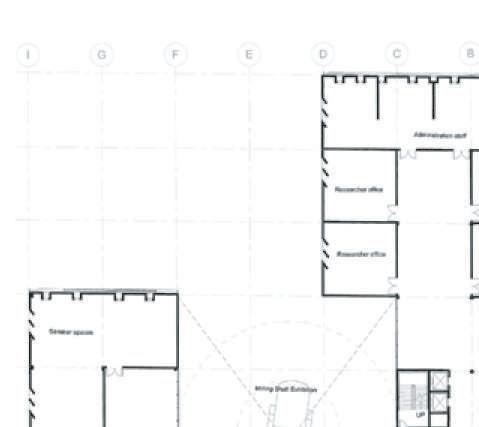
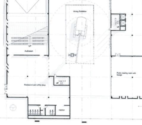
This project is inspired by the history of mining in Johannesburg, where the name S’timela which is the train in isiZulu . It was used as the primary transport that brought young and old african men from different countries of Southern and Central Africa, to mine gold in South Africa.The name of the central courtyard shaft which is iS’fanakalo is derived from the emerged intergrated languages of foreign languages with predominately isiZulu language.iS’timela and iS’fanakalo serves as a uniting tool of different nations. In which the key design element of the museum came about, Linking historical places to the moderns ones.

STIMELA MUSEUM

FORDSBURG RESIDENCE

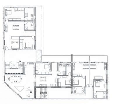
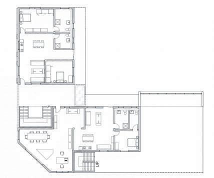
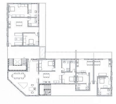
This urban design project is about creating social spaces where people come together; spaces which extend their urban lies beyond homes, offices and workplaces; spaces which can be considered public rooms. In which those spaces should be comfortable and vibrant creating nodes that will increase the economical standard of the area accommodating different range of economical background people.

GROUND FLOOR PLAN FIRST FLOOR PLAN SECOND FLOOR PLAN THIRD FLOOR PLAN FORTH FLOOR PLAN
SECTION A-A WEST ELEVATION

This project of the Technical & Vocational and Training (TVET) was introduced in response to understand designing for the different climates around South Africa, by promoting TVET programs that can produce a labour force to service a green energry economy. The site chosen is Kuruman located in the Northern Cape, which its climate is classified as a boundary between hot desert & hot semi-arid. The design of the building is to respond to the context by applying sustainable building methods that will meet the needs of the present without compromising the future needs.

KURUMAN
TVET COLLEGE

This project of the Tsitsikama timber shelter, located in the Eastern Cape was introduced in response to understand the construction of a design and how different component are put together. Using only South African materials, understanding their treatment and durability in different conditions. By creating a design that will blend with the existing forest without harming the landscape or the surroundings.

TSITSIKAMA SHELTER

WORK PROJECTS

THE CREATIVE AXIS ARTCHITECTS

Siyabongav@creativeaxis.co.za

COMMONWEALTH WAR GRAVES COMPETITION

‘The un-forgotten’ memorial is conceptulized as a space to honour 2500 Black South African service men and women who lost their lives in the First World War, who have never been commemorated before. These men formed part of labour units during the war and are believed to be buried in South Africa, elsewher in Africa and at sea.

NORTHGATE ENTRANCE

This is the Northgate shopping centre, entrance five. Re-development proposal for Broll Property Group. I was tasked at Creative Axis Architects as a new intern to design a suitable proposal. With gathered context and site information, the entrance is a west facing facade and by using a screen as an integral part of the design to prevent heat build up in the building.

GROWTHPOINT

This is the Growthpoint Business Park located in Midrand. The client Growthpoint Property Limited gave the task to Creative Axis Architects to re-design the exterior facades of the old warehouses to accommodate new proposed office space, using minimal design changes that are cost effective.

Turn static files into dynamic content formats.

Create a flipbook
Portfolio 2022_SV by Siyabonga Vilakazi - Issuu