Portfólio - Vívia Queiroz

Page 1

ARQUITETURA & CONSTRUÇÃO

TFÓ TFÓ TFÓ LIO LIO LIO

VÍVIA QUEIROZ

POR POR POR

(11) 94804-8102

vivia.pqueiroz@gmail.com

Meu nome é Vívia Queiroz, sou arquiteta formada pela UNIP, com especialização em Arquitetura Hospitalar pelo

Albert Einstein - Instituto de Ensino e Pesquisa.

Trabalho realizando projetos e obras, principalmente no segmento corporativo e hospitalar, desde 2015. Á seguir você poderá ver minhas competências e habilidades profissionais, além de projetos realizados.

Espero que goste!

Guarulhos-SP

s o b r e m i m
Contato
Olá!
c o n t e ú d o
OBRAS DETALHAMENTO
PROJETOS

projetos

Laboratório de testagem

Desenvolvimento de projeto a nível executivo laboratório de testagem, dentro de galpão farmacêutico. Foi desenvolvido projetos complementares para aprovação na Anvisa e condomínio.

Software utilizado:

Loja em Shopping

Softwares utilizados:

Desenvolvimento de projeto a nível executivo de loja com 30m², para aprovação de shopping.

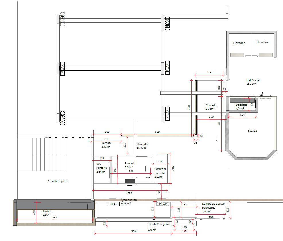
Reforma de portaria de condomínio

oftwares utilizados:

Desenvolvimento de projeto a nível executivo de portaria e entrada de condomínio.

obras

Construção de laboratório de testagem, em galpão farmacêutico

Responsabilidades

Gerenciamento de obra; Gerenciamento de projetos.

Aprovação de projetos; Gerenciamento de equipe.

OBRA

OBRA

Construção pronto socorro infantil

Responsabilidades

Gerenciamento de obra;

Gerenciamento de projetos.

Aprovação de projetos;

Gerenciamento de equipe.

REFORMA DE ESCRITÓRIO

Gerenciamento de obra; Gerenciamento de projetos.

Responsabilidades

Aprovação de projetos; Gerenciamento de equipe.

REFORMA DE ESCRITÓRIO

Gerenciamento de obra;

Gerenciamento de projetos.

Aprovação de projetos;

Gerenciamento de equipe.

R

Detalhamentos

Obrigada!

Turn static files into dynamic content formats.

Create a flipbook
Issuu converts static files into: digital portfolios, online yearbooks, online catalogs, digital photo albums and more. Sign up and create your flipbook.
Portfólio - Vívia Queiroz by Vívia Queiroz - Issuu