Portifólio Vitória Zanni

Page 1


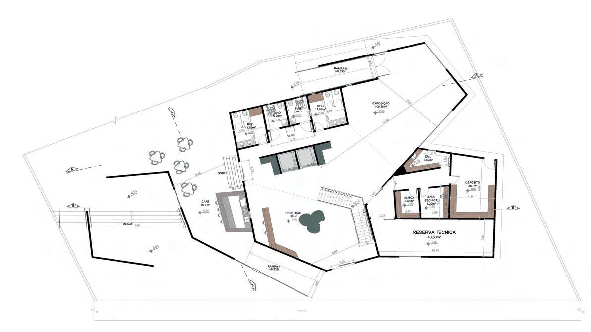
A casa Arthur Bernardes, localizada em Viçosa, Minas Gerais, foi moradia do então presidente da república Arthur da Silva Bernardes e atualmente é um museu aberto para visitação. O anexo proposto, Centro Cultural Origami, busca se relacionar com a construção pré-existente. Seu conceito gira em torno da gradual descoberta da Casa Arthur Bernardes pelo usuário através de abertu ras, as quais foram alocadas estratégicamente para atingir este objetivo. Desse modo, para vizualizar por completo a casa, o usuário deve adentrar o anexo e seguir seus caminhos, permitindo também a integração do ambiente interno e externo.

Na busca de uma forma que se relacionasse com o conceito, foram feitos diver sos experimentos por meio de cubos de origami, originando o nome do anexo

Ano

Autores Orientadora

Softwares Prancha Informações Disciplina

2023

Ana Carolina Vicente

Projeto II

Vitória R. Zanni, Thais Cunha e Letícia Bertolino

AutoCad, SketchUp, V-ray, Enscape, Ilustrator e Photoshop https://drive.google.com/drive/u/0/folders/1wCfTaO6WrxLqZXB65pruwXgxnDqjw1hy

Implantação

Informações

Ano

Autores Orientadora

Disciplina

Softwares

Prancha

2024

Vitória R. Zanni, Thais Cunha, Gabriela Carneiro, Nicole Nogueira e Lucas de Oliveira

Carolina Margarido, Maristela Solari e Marília Solfa

Projeto III

AutoCad, SketchUp, V-ray, Enscape, Ilustrator e Photoshop

https://drive.google.com/drive/u/0/folders/1wCfTaO6WrxLqZXB65pruwXgxnDqjw1hy

O projeto está localizado em um dos distritos de Viçosa, Cachoeirinha de Santa Cruz. Ao visitar o local foi observado a interação da comuni dade, a qual é evidenciada pelo uso frequente de bancos em frente das residências, refletindo o conceito de sociabilizar e coexistir.

Sendo assim, o projeto de Habitação de Interesse Social: Café com Prosa destaca e fortalece estas características locais, promovendo uma melhor qualidade de vida para os residentes do distrito ao valorizar e incentivar a prática de "prosear" em espaços comunitários.

A partir desses conceitos, as casas foram projetadas com orientação para a rua, além disso possuem um banco incorporado na estrutura, afim de manter e incentivar os costumes locais dos moradores do distri to.

fachada

PLANTA COBERTURA TIPOLOGIA B
sala de estar
banheiro

Apartamento

Projeto feito com o objetivo de treinar e aperfeiçoar por meio de diferentes softwares

Apartamento Viçosa

aperfeiçoar a renderização e edição de imagens softwares como o V-ray e Photoshop.

Turn static files into dynamic content formats.

Create a flipbook
Issuu converts static files into: digital portfolios, online yearbooks, online catalogs, digital photo albums and more. Sign up and create your flipbook.
Portifólio Vitória Zanni by vitoriarzanni - Issuu