Architecture Portfolio V01-22

Page 1

Portfolio

V01-22

| Vincent Bizot | ENSAPVS | Selected Works | M.Arch | 2020 - 2022 |

bizot.vincent@gmail.com (+33)0789021469

1, Rue des Parclairs 94170, Le Perreux sur Marne | France

About me:

I feel lucky to have had the opportunity to grow in a culturaly rich environment. It allowed me to seek a lifepath which resonated well with my interests and left ample room for experimentation. Having a scientific background merged well with my architecture studies, empowering my design decisions with the pragmatism of the scientific method in order to create feasible and audacious projects.

Vincent

Education

2017-2022 Ecole Nationale Supérieure d’Architecture Paris Val de Seine | Paris Masters of Architecture, Graduate with highest honors

2021 Yeungnam University | South Korea Architecture Masters Student Exchange

2020 Ecole Polytechnique | Saclay

Département MIE: Project Management

2016-2017 ICAM Paris Sénart | Melun Classe préparatoire intégrée (engineering)

2013-2016 Lycée Louis Armand | Nogent sur Marne

Bac S options : Sciences de l’ingénieur, Euro (English)

2022 Triptyque Architecture | Paris

Architecture internship

Worked on large scale projects and international competitions with the ability to contribute to the final design. International workflow between the Sao Paulo and Paris offices.

2022 Hangar 0 | Le Havre

Voluntary architecture workshop : Building with raw earth

Contribution to a participative worksite. Work included: building poured earth walls, hemp based insulation, shipping container transformation, fabrication and application of raw earth wall coatings.

2019 Agence Gembu | Paris Architecture internship

Worked on large scale commercial and residential projects with a focus on interior design

Worked in collaboration with LVMH group, SANAA 2018 Chantier Rempart | Modane Volunteering

Restoration of a 18th century fortress in the french alps, on site archeology, manual labor

2012 Interdit Créations | Shanghai Design Internship

Experiences Skills

Initiation to industrial design, worked with a 90% chinese team, commercial and residential projects

Design : Revit, Dynamo, Autocad, Adobe suite, Sketchup, MS office

Representation : Unity Engine, Twinmotion, D5 Render, Enscape, Video/Photography, Graphic design

Manual work : Laser cutting, 3D printing, Hand drafting/drawing, Physical model fabrication

Languages : French (native), English (University level), Spanish (Conversational level), Chinese (Conversational level), Italian (basic knowledge)

Achievements

2022 ENSAPVS Best Diploma Project

Winner, project showcased at Architect@Work exhibition in Paris and at the school exhibition hall

2021 Concours Fondation Jacques Rougerie 2021 (International competition) Finalist

2019 Concours Pierre 2019 (National competition, building with structural stone)

Finalist

2019- Graphic design project

100+ album covers produced and sold for emerging artists

Bizot

Contents

04 Vincent Bizot
05 Portfolio V01-22 P.6 P.18EUR Asia P. 6 13 P. 22 25 P. 14 17 P. 18 21 P. 26 27 misc

Divert the flow

Year: 2022

(ENSAPVS Best Diploma Project Winner)

Program: Research Center, Exhibition Gallery

Location: Xiangshawan desert, China

The desertification of the soil is an existential threat for the chinese territory and the rest of the world. Every year, more than 12 million hectares of fertile land are lost to the relentless progression of the desert. In Inner Mongolia, only a few natural barriers remain to contain the desert expansion. But most of these forests are now too weak to stop the desert on their own. Located at the top of the dune that threatens the forest below, the building deflects the progression of this part of the desert. The shape of the reclaimed steel structure is calibrated to redirect the path of the wind and thus preserve the natural barrier while it regenerates.

The interior layout follows the topography of the site. Entering the building from one of the two ends, one discovers an ascending path that ends at the top of the dune. Two programs cohabit wit hin the same structure: the in-situ research center spreads over three levels, separating the two poles of geology and biology. Starting at the opposite end, the interpretation center represents the connection to the tourist activity already present on the site.

On the first two levels there is a semi-modular space dedicated to cultural activities. Then, following the path to the summit, the vi sitor discovers the facets of the desert environment by geological strata, starting with the soil, water, life... until the summit. The pro gression along this route is directly felt by the fact that the walls progressively lower the closer the visitor gets to the experimental forest at the top

09 Portfolio V01-22=divert the flow
010 Vincent Bizot
011 Portfolio V01-22=divert the flow
012 Vincent Bizot
013 Portfolio V01-22=divert the flow

Elementary ascent

Year: 2020

Team: Vincent Bizot, Nicolas Boucher, Luis Quick

Professors: Brigit de Kosmi

Program: Kindergarten, Elementary school, Gymnasium

Location: Vitry-sur-Seine, France

The industrial past of Vitry-sur-Seine left many deserted sites by the main railroad. In order to bring new life to this discarded Paris suburb, we were tasked with building a new educational and recreational complex for the neighborhood.

The very dense project requirements forced us to build a massive structure. However the team decided on having one rule for this entire project : we need to have at least 1000m² of unobstructed soil once the building is complete. This allowed us to stay away from the easy route of box-like behemoths and helped us to come up with a lighter design while maintaining the original project requirements.

016 0 3,2 9,2
017

Remnants of ages

Year: 2021

Team: Vincent Bizot, Baptiste Cabrol

Professors: Henri Herré, Philippe Roussel

Program: Museum, Heritage Restoration

Location: Coulommiers, France

In the geographic center of the city of Coulommiers lies the ruins of a 17th century castle, which is now home to a park. The only remai ning building from this time period is a convent, now home to the municipal museum. This museum suffers from a poorly arranged collec tion and lack of exposition spaces. The main goal of this project is to provide additional space and make the overall area more attractive to visitors and the local population.

020 Vincent Bizot
021 Portfolio V01-22=Remnant of ages

Wavelength

Year: 2021

Team: Vincent Bizot, Lee-In Wu

Professors: Seung-Man Baek

Program: Residential units

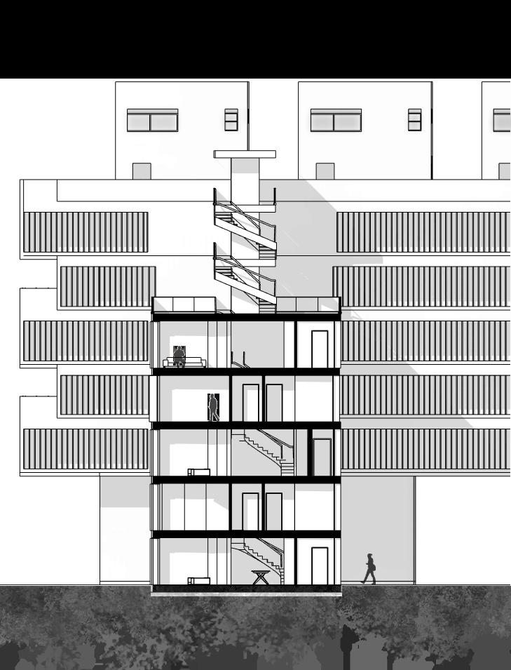
Location: Daegu, South Korea

As a part of the international student ex change I took part in during the 2021 spring semester, I worked with a korean teammate on a residential project. The site is located near a highway so it was primordial to reduce the environmental noise levels. The building was separated between us, the tallest vo lume being used as a noise buffer for the residential terraces located further back which was the part that I designed.

024 Vincent Bizot
025 Portfolio V01-22=wavelength
026 Vincent Bizot
027 Portfolio V01-22=Graphic design - photography

Portfolio

V01-22 ...End

|VincentBizot|ENSAPVS|SelectedWorks|M.Arch|2020-2022|

Turn static files into dynamic content formats.

Create a flipbook
Issuu converts static files into: digital portfolios, online yearbooks, online catalogs, digital photo albums and more. Sign up and create your flipbook.
Architecture Portfolio V01-22 by Vincent_Bizot - Issuu