Portfolio



Hello! it’s me, Vince Landicho
![]()



Hello! it’s me, Vince Landicho








Proposed High-End Subdivision Residence




GROUND FLOOR PLAN ON SDP

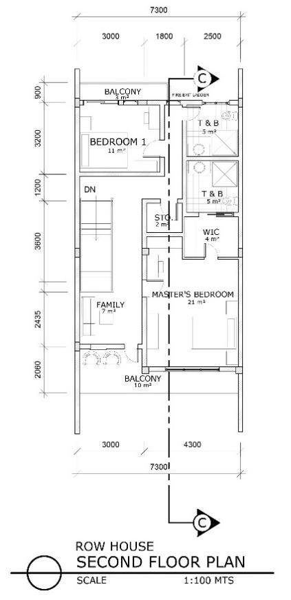
SECOND FLOOR PLAN
THE FLOOR PLAN CONCEPT















La Querencia’s Master site development plan consists of 21 blocks with 319 residential dwelling units & 19 sealable vacant lots.
The site is located in Dasmarinas, Cavite and is accessible through a connected major highway road. It has an irregular boundary, a relatively flat elevation of 2% slope and is being traversed by a creek in the middle which affects the site development which bears potential risks of noise, potential odor threat, unorganized road network circulation, cluttered lot configuration placement and flooding
Placing commercial establishments near Emilio Aguinaldo highway is strategic for residents, outsiders, the owner of the business and also for the project developer. Utilizing the creek as a crucial part of the subdivision’s natural feature became part of our concept, which would be the central space for socialization of the community.


SALEABLE


NON-SALEABLE




VEGETATION

































LIVING ROOM






Personal Drawings, Sketches, Manual Plates, Portraitures, and Artworks
MATERIALS USED
SOFTWARES USED


















