Architectural Portfolio

Page 1

R. V INAY S AXENA

A

R630 RESIDENCE

RAJENDRA NAGAR, DELHI

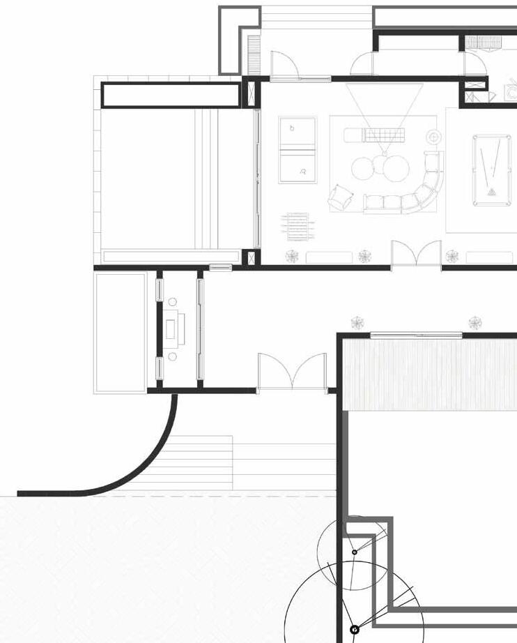
This architectural project with its forest surrounding, features a parametric metal screen for shading and aesthetic appeal. The glass cube bedroom offers unparalleled views of the forest, while the open-plan integrates innovation with nature creating a serene retreat that aspires and rejuvenates.

FLOOR PLAN
LIVING ROOM LIVING ROOM BEDROOM 2 BEDROOM 1 TOILET TOILET BALCONY POOJA LIFT LIFT STAIRCASE
± 00 +150 mm TOS - STILT FRONT ROAD LVL -600 mm SER. ROAD Radius = 5190 Radius = 5190 1952 1455 Centre Point 8520 1200 5870 1450 +2850 TOS - Ground Floor Lvl +5850 TOS - First Floor +8850 TOS - Second Floor Lvl 750 3000 4775 8535 01 -4940 -5170 -11940 -11940 -6900 x303 x404 ±00 -12265 -10000 -10000 -5140 -2800 +1500 1400 +1500 1740 R1 02 ± 00 +150 mm TOS - STILT FRONT ROAD LVL -600 mm SER. ROAD Radius = 5190 Radius = 5190 1952 1455 Centre Point 8520 1200 5870 1450 +2850 TOS - Ground Floor Lvl +5850 TOS - First Floor Lvl +8850 TOS - Second Floor Lvl 2700 750 3000 3000 4775 8535 01 -4940 -11940 -11940 -6900 x303 x404 ±00 -12265 -10000 -10000 -5140 -2800 +1500 1400 +1500 1740 R1 02 SIDE ELEVATION FRONT ELEVATION
585 150 665 20° UP +2850 mm +2925 mm TOS FFL 1 2 3 4 5 6 7 8 9 10 11 12 13 14 15 1000 1000 Metal Mesh Railing as per selection MS section railing as/contractor Metal Mesh Railing as/selection MS Pole 1000 1000 20 175 584 195 30 30 150 20 20 175 30 20 230 230 20 175 20
LANDSCAPE RENDERED PLAN
METAL STAIRCASE DESIGN
SECTION AA’
TERRACE VIEW FOUNTAIN VIEW

A377 BUILDER

DEFENCE COLONY, DELHI

“Experience architectural innovation in every step you take. Our builder floor building stands as a testament to creativity, with its dynamic play of vertical double-height masses weaving back and forth, creating a visual symphony of space and light. Step onto the wide balconies, where the cityscape unfolds before you, inviting moments of reflection and inspiration.

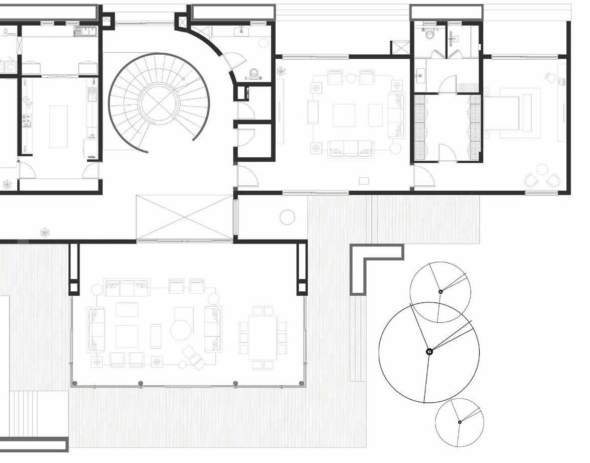
TYPICAL FLOOR PLAN

JALI EXTENSION

BEDROOM 2

&

LIVING AREA

BALCONY BEDROOM 1
POWDER
TOILET DINNING
BALCONY
BEDROOM
3 POWDER STAIRCASE LIFT
TOILET TOILET
LOBBY
STAIRCASE
LIFT LOBBY
SLOPE SLOPE 1050 1050 1050 1050 1050 1050 1050 Section PROFILE LIGHT AS/SELECTION PROFILE LIGHT AS/SELECTION PROFILE LIGHT AS/SELECTION OUTSIDE INSIDE OUTSIDE INSIDE 1052 Metal plate to connect 115 x 115 toe wall 50 x 150mm ms section 75 x 40mm ms section 50 X 150mm ms section 5 1235 10 40 80 50 150 75 10 115 115 Metal plate 12 x 50mm ms louver 20mm thk stone flooring 115 x 115 toe wall Flooring 150mm thk slab L section SLOPE SLOPE 1050 1050 1050 1050 1050 1050 1050 Section PROFILE LIGHT AS/SELECTION PROFILE LIGHT AS/SELECTION PROFILE LIGHT AS/SELECTION OUTSIDE INSIDE OUTSIDE INSIDE 1052 Metal plate to connect 115 x 115 toe wall 50 x 150mm ms section 75 x 40mm ms section 50 X 150mm ms section 5 1235 10 40 80 50 150 75 10 115 115 Metal plate 12 x 50mm ms louver 20mm thk stone flooring 115 x 115 toe wall Flooring 150mm thk slab L section Metal plate to connect 115 x 115 toe wall 50 x 150mm ms section 75 x 40mm ms section 50 X 150mm ms section 5 1235 10 40 80 50 150 75 10 115 115 Metal plate 12 x 50mm ms louver 20mm thk stone flooring 115 x 115 toe wall Flooring 150mm thk slab L section Metal plate to connect 115 x 115 toe wall 50 x 150mm ms section 75 x 40mm ms section 50 X 150mm ms section 80 PLAN SECTION METAL RAILING SECTION PERGOLA SECTION
R.C.C Beam +3300 B.O.F.C +3500 B.O.S +3200 B.O.B. Cove Light Aluminium Frame 70 70 40 400 15 100mm height fluting 75 25 15 R-70 15mm Plaster 150mm thk slab Fluting Ceiling Line In Elevation +3200 B.O.F.C +3500 B.O.S 12mm thk. POP False celing Cove Light Aluminium Frame 150mm thk slab Cove Light Curtain track Pelmet R.C.C Beam 150mm thk slab 115 300 200 260 25 400 25 25 25 25 30 12 eq eq Fluting details refer detail 1 detail 2 R.C.C Beam +3300 B.O.F.C +3500 B.O.S +3200 B.O.B. Cove Light Aluminium Frame 70 70 40 400 15 100mm height fluting 75 25 15 R-70 15mm Plaster 150mm thk slab Fluting Ceiling Line In Elevation +3200 B.O.F.C +3500 B.O.S 12mm thk. POP False celing Cove Light Aluminium Frame 150mm thk slab Cove Light Curtain track Pelmet R.C.C Beam 150mm thk slab 115 300 200 260 25 400 25 25 25 25 30 12 eq eq Fluting details refer detail 1 detail 2 INTERIOR RENDER OF A377 FALSE CEILING DETAIL 1 FALSE CEILING DETAIL 2 (CURTAIN COVE)
SIDE SECTION

EURONICS

Experience rustic elegance and modern allure in our architectural farmhouse. Adorned with a custom brick jali on the facade and featuring a serene swimming pool amidst lush surroundings, it’s a haven of tranquility. Inside, the living area boasts a captivating butterfly slab, blending tradition with innovation. Every detail reflects bespoke craftsmanship, offering an unforgettable retreat where countryside serenity meets architectural splendor.

Imagine a space where walls disappear, replaced by openness and light. That’s our architectural plan. A formal living room with a central staircase, inviting fluidity and connection. It’s not just a design—it’s an experience of seamless living.

RENDERED ELEVATION VIEW WITH WEATHER CHANGES EXPLAINING

UTILITY ENTRANCE
PUJA ROOM LIVING ROOM DECK SWIMMING POOL BALCONY OPEN SIT-OUT LOBBY GROUND FLOOR PLAN

DRESSER TOILET

BEDROOM 1

UTILITY LOBBY LIFT STORE POWDER
STORE STAIRCASE
LIFT LOBBY FORMAL LIVING
KITCHEN
&
BALCONY BALCONY
DECK
FORMAL LIVING
DOUBLE
BALCONY
HEIGHT

ELEVATION VIEW

SERVICE STAIRCASE DESIGN
SECTION

BRICK JALI DETAILS

DETAIL 1

ENTRANCE VIEW
SIDE VIEW OF BUTTERFLY SLAB
SLAB
VIEW
INTERIOR
ENTRANCE VIEW INTERIOR VIEW
CENTRAL METAL STAIRCASE VIEW

MISCELLANEOUS...

MISCELLANEOUS...

DEVLI COMMERCIAL PROJECT RENDERED VIEW DERA MANDI RENDERED VIEW R630 RENDERED VIEW R630 RENDERED VIEW GOA VILLAS RENDERED VIEW
A377 RENDERED VIEW GUPTA FARMHOUSE RENDERED VIEW
A377 RENDERED VIEW

EURONICS INTERIOR RENDERED VIEW

BEDROOM RENDERED VIEW

BEDROOM RENDERED VIEW

TOILET RENDERED VIEW BEDROOM RENDERED VIEW TOILET
MODEL TOWN INTERIOR RENDERED VIEW
BEDROOM RENDERED VIEW TOILET RENDERED VIEW
TOILET RENDERED VIEW BEDROOM RENDERED VIEW
SITE VISITS
COMPLETIONS...
ARCHITECTURE: TURNING ‘WHAT IF’ INTO ‘WOW’ SINCE FOREVER.

Turn static files into dynamic content formats.

Create a flipbook
Issuu converts static files into: digital portfolios, online yearbooks, online catalogs, digital photo albums and more. Sign up and create your flipbook.
Architectural Portfolio by Vinay Saxena - Issuu