




![]()





Catholic education is an expression of the mission entrusted by Jesus to the Church He founded. Through education, the Church seeks to prepare its members to proclaim the Good News and to translate this proclamation into action.
A crucial measure of the success or failure of the educational ministry is how well it enables one to base one ' s love and service of God upon the Gospel message, to achieve a personal relationship with Christ, and to share the Gospel's realistic view of the human condition which recognizes the fact of evil and personal sin while affirming hope.
The Catholic school "strives to relate all human culture eventually to the news of salvation so that the life of faith will illumine the knowledge which students gradually gain of the world, of life, and of mankind." Therefore, at Villa Walsh Academy, students are instructed in human knowledge and skills, valued indeed for their own worth, but seen simultaneously as deriving their most profound significance from God's plan for His creation. Instruction in religious truth and values is an integral part of the school program. It is not one more subject among the rest but is the underlying reality which gives deep meaning to the students' experience of learning and living.
The integration of religious truth and life values distinguishes the Catholic school from other schools. It is a matter of crucial importance today, in view of contemporary trends and pressures, to compartmentalize life and learning, and to isolate the religious dimension of existence from other areas of life.
To Teach as Jesus Did: A Pastoral Message on Catholic Education (United States Catholic Conference) Washington, D.C., 1973, p.3, p. 29. Absence of Faculty and Substitution Coverage 20 1 1 1
Absence of Faculty and Substitution Coverage
Absence of Students
Academic Integrity Infractions
Academic Integrity, Policy on Accidents
Administrative Policy for Attendance Absence
Admissions
Advanced Placement Courses
After School Activities
Anti-Discrimination and Anti-Harassment Policy
Assemblies
Attendance
Benefits for Full Time Employees
Bus Duty
Cafeteria Proctoring
Class Rank
Classroom Care
Classroom Procedures
Concert Attire
Contractual Understanding for Faculty
Copiers and Computers
Course Changes
Course Selections
Curriculum
Curriculum Sequence
Department Chairpersons, Responsibility of
Discipline Policy
Dress Code, Students
Dress Code, Teachers
Dress Up Days
Drugs & Alcohol Policy
Early Dismissal
Emergency Procedures
Employment Contract
Errands
Failure
Family & Medical Leave Act
Field Trips
Fire Drills
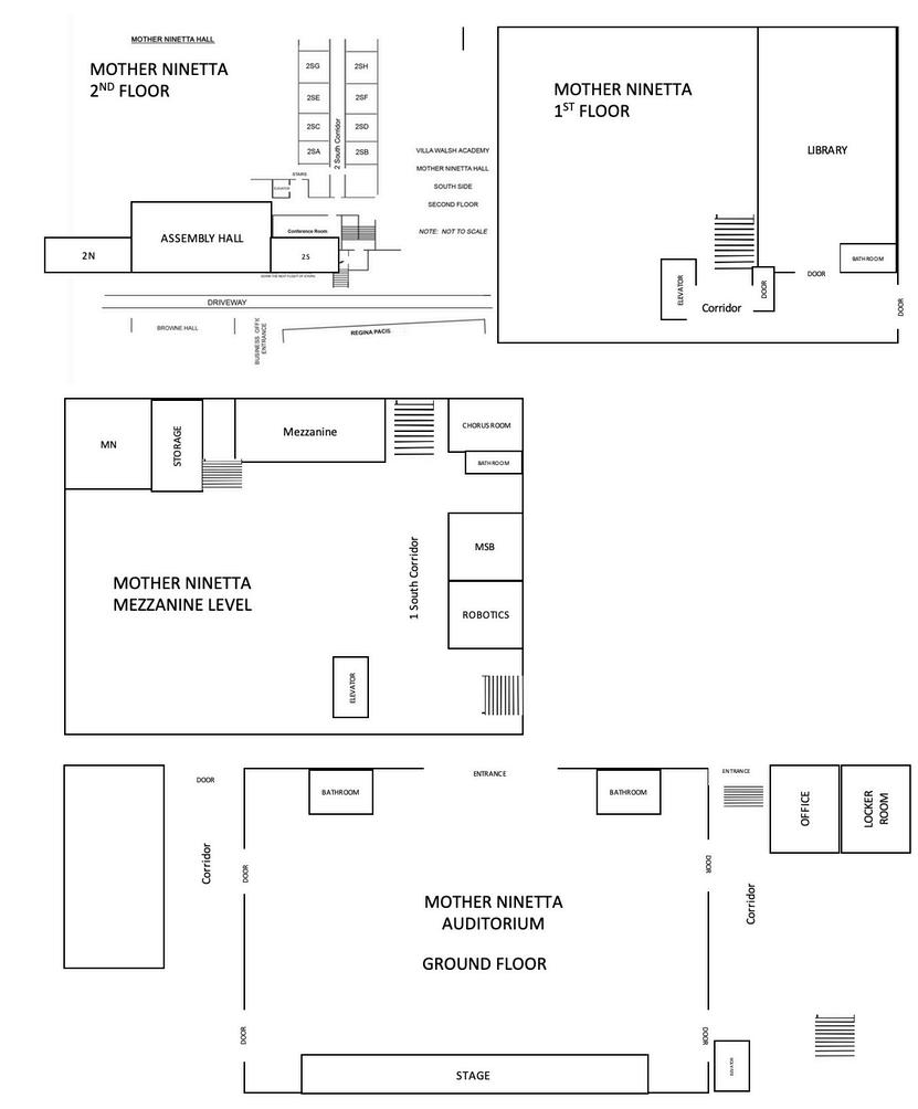
Floor Plans
Grade Point Average
Graduation Requirements
Guest Speakers Guidance
Harassment, Intimidation, or Bullying Policy
First Period Teachers, Responsibility of Homework
Internet and Technology Policy
Introduction
Mail | Email
Make-Up Work
Media Services/Library
Mission Statement
Parent-Teacher Conferences
Personal Belongings
Personal Business Appointments
Personal Grooming
The Mission of Villa Walsh Academy, a college preparatory Catholic school, is to inspire our young women to their intellectual breadth and depth and to enhance their sense of local and global concern, empowering them to influence their world in a Christian manner.
Villa Walsh Academy, conducted by the Religious Teachers Filippini, is a college preparatory Catholic school for young women from grades seven through twelve desiring an exceptional academic background for higher studies. The Academy offers diversified programs with participation in student-oriented activities wherein each student may acquire a rich cultural background in the liberal arts
The administration and faculty comprise a highly qualified staff of religious and lay teachers Students are offered a well-balanced program of academic, cultural, social, physical, and Christian moral training which will enable them to achieve their fullest potential.
Fully equipped science laboratories, computerized classrooms, and resource media centers are all connected via a state-of-the-art local area network which contributes to Villa Walsh Academy's technological advances
Theology courses and liturgical worship allow students to acquire the knowledge and insights necessary to give witness to their Catholic faith Catholic theology courses encourage students of other faiths to develop wholesome moral values in keeping with their own religious beliefs.
The Academy seeks to offer quality education in order to prepare citizens who will create a better community for the good of society.
VillaWalshAcademyiscommittedtothebeliefthatallpersons,beingrichlyendowedbyGodwithgiftsof intellectandspirit,haveanuniqueopportunityandobligationtodevelopthesequalitiestothefullestin accordancewithHisplanofcreation
TheAcademyisfurthercommittedtothephilosophyandpracticeofthethreefoldpurposeofCatholic education,namely,toteachtheGoodNewsofJesusChrist,tobuildChristiancommunity,andtoservethe needsofothers
VillaWalshAcademyiscommittedtoactualizingthisvisionby:
PreparingitsyoungwomentoproclaimtheGoodNewsandtotranslatethisproclamationintoaction.
Inspiringfaithwhichwillenliventheknowledgestudentsgainoftheworld,oflife,andofhumankind. Providinglearningexperiencesthatnurtureself-esteemandencourageself-discipline.
Communicatingideasandvaluesinamannerthatencouragescreativity,reflection,andintellectual curiosity
ProvidingprogramsofstudywhichhelptoformyoungwomencommittedtoChristianprinciplesand values
ProvidingprogramsofstudywhichdevelopknowledgeofAmericandemocracyandpromotethosecivic virtuesnecessarytoitspreservation
EveryeffortismadetoprovidestudentswithfaithexperiencesdirectedtowardarealizationofChristianityasa wayoflifethatwillenhancetheirvalues,judgments,decisions,andactionsThestudentsareencouragedto actualizetheirChristianbeliefandspiritualitythroughclassroominteractions,school-relatedactivities,and volunteerservice.Prayersaresaidduringannouncementsandatthebeginningofeachclass.
Itisourfundamentalbeliefthatifwearetobesuccessfulinfulfillingourmission,we,asalearningcommunity, mustmodeltheattributesofourgraduateprofile.
Inordertoinspireouryoungwomentoexpandtheirintellectualbreadthanddepth, webelieve-
Wemustcreateapositiveandchallenginglearningexperiencethatwillencouragestudentstodevelopa passionforlifelonglearning.
Wemusthelpthemtobecomeconfidentandcompetentyoungwomen.
Ifwearetoenhancestudents'senseoflocalandglobalconcern, webelieve-
Wemustfosterempathytowardothersinourinteractionsasalearningcommunity
Wemustcreateacultureofserviceinsupportofthelocalandglobalcommunity
IfwearetoempowerouryoungwomentoinfluencetheirworldinaChristianmanner, webelieve-
Wemustshowourownintegrityandpassionforourchosencareeranddemonstrateourpersonalbelief thatwearecalledbyGodtoserve
AVillaWalshAcademygraduatedemonstratesamoralfoundationbasedonChristianvaluesthatenablesher to be a responsible member of society Having completed our rigorous academic program, the Villa Walsh Academygraduatewillapplyherspiritualandintellectualqualitiesbydemonstratingthefollowing:
Integrity
Passionforlife-longlearning
Strongworkethic
Theabilitytothinkcritically
Confidenceinheropinionsandideas
Empathytowardothers
Serviceinsupportofherlocalandglobalcommunity
VillaWalshAcademyisforthemotivatedcollege-boundstudentwhoshowsproficiencyinthebasicacademic subjects.
Applicants:
1 TaketheAcademyentranceexamination
2.ForwardpreviousscholasticandstandardizedtestscorestothePrincipal'soffice
3.Submitaletterofrecommendationfromateacherand/orPrincipal
4.Submitanadditionalletterofrecommendation(e.g.,musicteacher,athleticcoach,co-curricular/extracurricularadvisor,scoutleader,etc)
At the discretion of the school administration, an interview of the candidate will be arranged, following the successful completion of admission procedures. Non-Catholics seeking admission must be willing to accept and abide by the philosophy and curriculum requirements of Villa Walsh Academy After the interview the candidatemayrequesttospendadayattheAcademyandattendclasses.
The curriculum is designed to provide a variety of courses with emphasis on theology, the fine arts, languages, sciences, mathematics, technology and humanities. Small classes provide the framework for serious study and individualized learning Through large group assembly, small group discussion, and independent study, the studentisencouragedtoassumeagreaterresponsibilityforherownlearning.
To facilitate students' needs, major courses are offered on three levels: college prep, honors, and Advanced Placement. Grades are weighted accordingly. Student performance, teacher recommendations, and standardizedtestscoresdeterminethecourselevelofferedtoeachstudent
Administration and faculty assume the responsibility to continuously assess, evaluate, and develop the curriculum The Faculty collaborate on a departmental and interdepartmental level Villa Walsh Academy boasts a 6:1 student-teacher ratio. All courses adhere to the standards established by the New Jersey State DepartmentofEducationandthePatersonDiocese
A graduate from Villa Walsh Academy must have successfully accumulate a minimum of 140 credits, which include the basic college entrance requirements:
Additional electives may be selected from the following areas: Mathematics, World Language, History, Science, Computer Science, Arts and Humanities.
GRADE 7
Religion
English
Latin
Life Science
Pre-Algebra
Social Studies
Computer I: Microsoft Word and Excel
Chorus
Art Education
Health Education
Physical Education
GRADE 8
Religion
English
Latin
Physical Science
Algebra I
Social Studies
Computer II: Microsoft Powerpoint and Publisher,
Adobe InDesign
Chorus
Art Education
Health Education
Physical Education
Theology I
English I/H
Biology
Algebra I
Algebra II/H
Geometry/H
United States History I/H
World History
Health Education
Physical Education
ELECTIVES
French I/ II
Italian I/ II
Spanish I/ II
Chorus
Art
Freshmen must choose one language and one fine art course from the above list.
Theology II
British Literature/ H
English 10: AP Seminar
Chemistry/ H
Algebra II/ H
Geometry /H
Pre-Calculus /H
United States History I /H
World History AP
French II/ III H
Italian II/ III H
Spanish II/ III H
Physical Education
Driver Education
ELECTIVES
Web Design with HTML Programming
Computer Science Discoveries
AP Computer Science Principles
Democracy and Government
Chorus
Advanced Art
Art & Design
Dance
Sophomores must choose at least two electives from the above list.
JUNIOR COURSES
Theology III
American Literature H
AP English Language & Composition
Algebra II / H
Precalculus/H
AP Calculus AB
Calculus H
Physics I/ H/AP
United States History II H/ II AP
Physical Education
Health Education
ELECTIVES
AP Chemistry
AP Biology
French III H/ IV H
Italian III H/ IV H
Spanish III H/ IV H
AP Research
Computer Science Discoveries
AP Computer Science Principles
AP Computer Science A
Web Design with HTML
Engineering H
Democracy and Government
Advanced Art
Art & Design
Advanced 2D Art and Design H
Art History/ AP
Chorus
Dance
Juniors must choose at least three electives from the above list
SENIOR COURSES
Theology IV
World Literature H
AP English Literature & Composition
Senior College Guidance & Financial Literacy
Precalculus /H
Calculus H
AP Calculus AB, BC
Statistics H/AP
Physics II/ H/ AP
Physical Education
Health Education
Anatomy & Physiology
AP Biology
AP Chemistry
Females in Fairy Tales & Film
Introduction to Psychology
AP Psychology
French IV H/ V H/AP
Spanish IV H/ V H/AP
Italian IV H/ AP
Modern European History/ AP
Democracy and Government
Economics H
Web Design HTML
Engineering H
Computer Science Discoveries
AP Computer Science Principles
AP Computer Science A
Advanced Art
Art & Design
2D Art & Design AP
Art History/ AP
Chorus
Dance
Seniors must choose at least four electives from the above list.
ThefollowingAPcoursesareoffered:
2DArt&Design
ArtHistory
Biology
CalculusAB
CalculusBC
Chemistry
ComputerScienceA
ComputerSciencePrinciples
English10:APSeminar
EnglishLanguageandComposition
EnglishLiteratureandComposition
AP Research
French Language and Culture
Italian Language and Culture
Modern European History Physics I Physics II Psychology
Spanish Language and Culture
Spanish Literature & Culture
Statistics
United States History II
World History
Students may elect to study independently for an AP Exam, but will not receive course credit The resulting scorefromtheAPexamcanbeforwardedtocollegesbythestudent.ThenumberofAPandHonorscoursesa studenttakeseachyearmayvaryduetoschedulingconflicts
The requirements for the AP courses are listed in the Program of Studies and vary from subject to subject However,admissionisbasedonacombinationofPSATscores,diagnostictestscores,abilityinsubjectareaas evidencedingradesreceivedthepreviousacademicyear,andteacherrecommendations Studentsenrolledin APcoursesarerequiredtotaketheAPexaminthatsubject.
Course selection forms are distributed to all freshmen, sophomores, and juniors in early spring Students, with the assistance of the Guidance Counselor, subject area teachers, and Director of Curriculum, will choose courses for the next scholastic year using the course requirements listed in the Program of Studies Once the course selection form has been completed by the student, it must be signed by a parent or guardian
If a student decides to make a change in her courses once the school year has started, the request must be approved by the Guidance Counselor and teacher. All changes must be made by the end of the Add/Drop period.
The school year is divided into two semesters. Reports of student progress are issued mid-semester; grade reports are issued at the end of each semester. All students are required to take final examinations in each academic area of study. The school considers this experience vital preparation for college. The final exam grade will be calculated as 1/7 of the final average. Each semester grade will be calculated as 3/7 of the final grade average.
Report cards are emailed to the parents at the end of each semester.
Letter Mark Numerical Equivalent
If a student receives a "D" as a final grade in a major subject, she will be required to attend summer school to improve in that subject area Any student failing a major subject or receiving two "D"s as a final grade will be in jeopardy of not returning to the Academy
Grade point averages, based on all subjects, are cumulative from freshman year through senior year. The system used is as follows:
Villa Walsh Academy does not rank its students since the concept of rank does not accurately reflect the selective nature of our student body, our rigorous college preparatory curriculum, and individual achievements Class rank may be a misleading indication of a student's true academic quality and ability to perform successfully in college
Guidance services are available for every student in the school. These services include assistance with educational and college planning, interpretation of test scores, occupational information, career information, study aids, and personal counseling A School Counselor is also available to meet with all students Students and parents are encouraged to check the Guidance Department website for current information
The guidance program includes personal interviews with the Guidance Counselor and parent-teacher-student conferences In junior and senior years, greater emphasis is placed on college and career planning
Standardized testing is an important part of the guidance program, and such tests are administered at each level
If a student wishes to see the Guidance Counselor or School Counselor, she should go to the respective Counselor and make an appointment
The guidance personnel will issue a copy of the student’s transcript at the request of the student. The law requires that an official transcript may only be sent directly to the institution of learning and not be handed to the student or her parents
Three approved college visits are also excused for seniors If an additional college visit is required, the reason must be presented and approved by the Guidance Department Juniors are permitted two college visits. All students are required to bring a note indicating they were attending a college visit from the admissions office upon their return.
Each year college representatives visit Villa Walsh Academy Seniors are required to notify their teacher prior to the visit and sign up in the Guidance Office Juniors who wish to attend need to either have a study hall or lunch
At Villa Walsh Academy, we are committed to nurturing the academic and personal growth of our students While we do not offer specific learning needs services, we do develop an individualized approach to help our students Our faculty and staff are dedicated to supporting students with learning needs by creating a learning environment that is appropriate Our small class size, combined with teachers offering additional support and a peer tutoring program, allows students to thrive
Should a student have learning needs diagnosed from their previous school district, physician, medical professional, or therapist, we ask for documentation in order to develop an individualized, confidential educational plan for that student Please call the Guidance Office for additional information
The Policy on Academic Integrity recognizes that integrity and trustworthy behavior reflect a solid tradition of faith in moral and Christian values The attitude and spirit of the administration, faculty, and student body activate and empower the Policy on Academic Integrity to support Villa Walsh Academy’s rules and regulations This policy reflects the school’s philosophy of teaching Christianity as a way of life permeating values, judgments, and actions
Honorable behavior based on Christian ethical principles reflects a healthy self-esteem and a genuine concern for others. A Villa Walsh Academy student is expected to demonstrate a moral foundation that is based on Christian values and that enables her to be a responsible member of society Respect for and ad‐herence to the Policy on Academic Integrity will enhance the Villa Walsh Academy family, not only during those years spent at the Academy, but also throughout life
At the beginning of each scholastic year, students and their parents will be required to sign an Honor Code contract attesting to their knowledge of the rules governing plagiarism and cheating, as well as the ensuing consequences. The contract is located on our Magnus portal.
Cheating during any testing situation and plagiarizing any class assignment are considered serious offenses A student found cheating in any manner (either giving or receiving information) will automatically receive a failing grade and will not be permitted to finish a test or quiz.
Plagiarism is defined as copying the language or thought of another and passing it off as one ’ s own. If a student copies the language or thoughts of someone else, she must credit the language and ideas, in either the body of the paper or in a footnote, and place quotation marks around verbatim language. Any student found guilty of plagiarizing any assignment will receive a grade of zero for the assignment If any student is found guilty of cheating or plagiarizing, the teacher will notify the Principal and the parents The student's status at the Academy will be in jeopardy
Generative AI (GenAI) is a powerful technological advancement with incredible potential to enrich teaching and learning However, it should not be a substitute for independent thinking In all instances, GenAI should be used as a tool to enhance, not replace, student work For example, if a student wishes to use GenAI for preliminary research for a project, she should check with her teacher to see if it is permitted. If she is permitted, she should use it in a way that helps her to take ownership of her learning and final output. Then, she should cite the website or app she used as she would another source that significantly contributed to her final work.
Villa Walsh Academy is committed to upholding the highest standards of academic integrity This includes, but is not limited to, taking steps to prevent and address academic dishonesty and recognizing and mitigating potential biases and shortcomings in AI tools For example, teachers may require students to handwrite essay drafts or submit a document with tracked changes to oversee their students’ writing process.
Students are ultimately responsible for the authenticity and integrity of their work, including any work produced with the aid of GenAI If a student is found guilty of cheating or plagiarizing, the teacher will notify the Principal and the parents The student’s status at Villa Walsh will be in jeopardy
Villa Walsh Academy recognizes that technology is changing rapidly and will periodically review and amend this policy. If students have any concerns about if and how they may use GenAI or other computational tools for their studies and assignments, they should speak with their teachers for further directions.
Teachers, staff, and students are never permitted to engage in conduct, whether inside or outside school, that is detrimental to the reputation of Villa Walsh Academy or the Religious Teachers Filippini, regardless of whether that conduct is included in this or any other handbook. The Administration of Villa Walsh Academy reserves the right to waive and/or deviate from any and all disciplinary regulations for just cause at their discretion
Students are never permitted to possess or to use drugs/alcoholic beverages on school premises, or at any school-sponsored activities Students are not permitted to attend any school-sponsored event, either on or off campus, under the influence of drugs/alcohol
Any violation concerning possession of an illegal substance is a major infraction of school policy If a student is found under the influence of drugs and/or alcohol, the parents/guardians will be notified and directed to obtain drug/alcohol screening and testing immediately Results in the form of a written report from an appropriately certified or licensed professional or agency must be sent to the Principal The status of the student will be determined upon receipt of said written report. Any student found in possession of drugs/alcohol will be dismissed from the Academy.
As of September 2019, the State of New Jersey has mandated that all schools, whether public or nonpublic, serving grades 9 through 12, adopt policies and procedures to maintain and administer an opioid antidote to any student, school personnel, or other person believed to be experiencing an opioid overdose during school hours or during on-site school sponsored activities (PL2018, c106) This guidance was prepared by the New Jersey Department of Education (NJDOE) in consultation with the Department of Human Services
An “opioid overdose” means an acute condition including, but not limited to, extreme physical illness, decreased level of consciousness, respiratory depression, coma, or death resulting from the consumption or use of an opioid drug or other substance with which an opioid drug was combined, and that a layperson would reasonably believe to require medical assistance
An “opioid antidote” means any drug, regardless of dosage amount or method of administration, which has been approved by the United States Food and Drug Administration (FDA) for the treatment of an opioid overdose The drug of choice for effective treatment is Naloxone (Narcan) and is administered by nasal spray
Pursuant to NJSA18A:40-1224(c) (1), the School Nurse shall have the primary responsibility for the emergency administration of an opioid antidote Additionally, schools must designate additional employees who volunteer to administer an opioid antidote in the event that a person experiences an opioid overdose when the School Nurse is not physically present at the scene.
An in-service will be provided for every employee In addition, an email attachment will provide specific details
Smoking and/or vaping are not permitted in school buildings, on school grounds, on school buses, or at any school-sponsored activity. A student violating the non-smoking policy will receive a one day in-school suspension for the first offense. Parents will be notified. Further offenses will result in dismissal from the Academy.
Classroom discipline must be consistent; therefore, classroom teachers are responsible for implementing school guidelines of discipline for their classes For problems of a serious nature, they may call upon the Administration for assistance and guidance The Administration of Villa Walsh Academy reserves the right to waiveand/ordeviatefromanyandalldisciplinaryregulationsforjustcauseattheirdiscretion
Demerits
Thefollowingwarrantatleastonedemeritissuedbytheteacheroradministrator:
1 Classroomtardiness,unlessareasonableexcuseisprovided("reasonable"issubjectto teacher'sdiscretion)
2 Tardinesstoschool
3.Chewinggum
4 Usingtheelevatorswithoutpermission
5.Failuretowearpasscard
6 Non-compliancewithphysicaleducationuniformrequirement
7.Infractionofthedresscode
Detention
Thefollowingwarrantatleastaone-hourafterschooldetentionsupervisedbyamemberofthefaculty:
1. Cuttingascheduledclass
2 Violationofcellulartelephoneandelectronicpolicy
3.Accumulationofthreedemerits
4 Unreturnedathleticequipment
Any student using inappropriate language or displaying disruptive, rowdy or unreasonable behavior will be immediately referred to the Principal. The Principal will speak to the student and notify the parents. If the behavior continues, the student will be dismissed from the Academy.
Students will be informed by the Principal at least one day prior to their detention.
Detention will be held after school for one hour.
Detention sessions will be supervised by a member of the faculty. Transportation after a detention period is the responsibility of the student.
Four detentions will warrant an in-school suspension (student does not attend classes but remains in a designated area to accomplish the schoolwork for the day). Parents will be notified.
Failure to report to detention will result in an in-school suspension.
If a student receives excessive detentions during one scholastic year, she will not be able to participate in extracurricular activities until she in good standing.
The primary purpose of Villa Walsh Academy's dress code is to eliminate daily preoccupation with fashion Students are expected to adhere to this dress code, keeping in mind that the uniform is to be worn appropriately and neatly.
Skirt: Plaid school skirt No shorter than one inch from top of knees Skirts must not be rolled at waist
Shirt: White short or long sleeve banded bottom shirt with logo
Sweater: White Chapel sweater | Dark green or navy-blue pullover worn over the uniform shirt, but not alone. These sweaters may be purchased only from the uniform company.
Sweatshirts: Dark green, white, and navy-blue pullover worn over the uniform shirt, but not alone. These sweatshirts may be purchased from the VWA Boutique
Socks/Tights: Navy blue knee socks or navy-blue tights
Shoes: Simple style and conservative color (no fur lined or tie sneakers)
Sneakers: For PE classes only or with a pass from the school nurse
Lanyard with security pass card (see information under Security) should be worn visibly around neck.
Uniform Approved Attire: On regular school days, Villa Walsh Academy sweatshirts, which are purchased from the school boutique, may be worn over the uniform shirt These include sweatshirts, vests, and fleece pullovers or jackets See website for a complete list of items which are approved to be worn with the uniform
The following are considered unacceptable: items such as hats, scarves, crew socks, and inappropriate footwear including boots, platforms, heels, sandals, clogs, moccasins, fur lined slippers, flip-flops, slipper-style or backless shoes
Any infraction of the dress code will result in an automatic demerit.
Spiritwear: On designated tag/spirit days, other items purchased from the boutique may be worn. These include spirit rugby shirts and non-uniform polos, among others. See website for a list of these items. In addition, on tag/spirit days, club shirts and/or VWA athletic shirts are permissible
Teamwear: On away game days or tournament days, sports team members may wear sports uniforms as designated by athletic staff.
Spiritwear Days: Fridays Only: Students can wear Villa Walsh Academy Spiritwear They may wear sneakers of their choice and any Villa Walsh attire that is approved through the Boutique, Athletics, or Clubs and Ministries.
Tag days (ie days when students do not have to wear the designated uniforms) are permitted on certain occasions during the school year. Students are expected to adhere to a neat, appropriate, and modest style of dress. The following are unacceptable: torn jeans, pajama pants, short-shorts, sleeveless tops, and attire that is tight and/or revealing
On certain day students are asked to dress up. This includes dresses, skirts at appropriate lengths, shirts with sleeves, nice dress pants No jeans, leggings or sneakers are to be worn on these days
It is expected that hair styles be simple and neat Radical hair styles, haircuts, or colors are unacceptable Accessories such as head gear, facial or other body piercings, and multiple earrings are unacceptable, as are tattoos The Administration reserves the right to define what is considered appropriate attire and personal grooming.
Each student in grades 9-12 enrolled in Chorus will be responsible for purchasing her own performance gown Arrangements for purchasing the dress for new members in the choral program will be facilitated by the school In addition, students will need to wear hosiery and simple black flats for all performances
Students in grades 7 and 8 Chorus will be provided with a long black skirt and a concert sash. Each student will be responsible for purchasing a long-sleeved white concert blouse. In addition, students will need black opaque stockings and simple black flats for all performances.
Before touring the school or attending classes, all visitors must have prior approval from the Principal or DirectorandreporttotheBusinessOfficetoobtainanIDbadge
Students are encouraged to become involved in club and service-related activities, such as:
Campus Ministry
Computer Science HS
Diversity Club
FIRST Robotics
Forensics
History Club
Horizons Yearbook
Life Witness Team
Innervisions Literary Magazine
Math League
Mock Trial
Modern Language Clubs
Operation Smile
P.O.P. (Protect Our Planet)
St. Lucy's Angels
Student Ambassadors
Towerette (School Newspaper)
Villa Serves
Vocal Ensemble: Cantiamo
A complete list may be found in the "Ministries and Clubs" brochure Students may initiate a club of their choosing provided they have a faculty advisor, sufficient membership, and the approval of the Principal
Many other activities are sponsored by the school which promote student involvement in social and cultural activities throughout the school year See back of book under Villa Walsh Academy Community and Traditions
Senior/Freshmen Luncheon
Fall Festival & Student Fashion Show
Junior/Senior Prom
Student Art Exhibit
Spring Musicale/Collage Concert
Field Day
Mental Health and Wellness Day
Senior Al Fresco Night
Septemberfest
Mother/Daughter Dinner
Father/Daughter Dance
Christmas Concert
Cultural Trips/Field Trips
Semi-Formal Dance
Junior Ring Ceremony
Senior Overnight
Spirit Week
Aprilfest
Admission Open House
The Student Council of Villa Walsh Academy was initiated to maintain an open working relationship among the administration, faculty, and student body, and to enrich student life at the Academy
The Student Council functions as the voice of the student body It is modeled on the commission form of government, composed of President, Vice-President, Secretary, Treasurer, Commissioners, and Representatives; a member of the faculty serves as moderator Council meetings are held regularly, and Student Council activities are scheduled at least four times a year The activities and projects undertaken by the Student Council focus on school and community concerns
The Student Council maintains membership in the New Jersey and the National Association of Student Councils
Theinterscholasticsportsprogramincludesthefollowing: basketball,crosscountry,golf,lacrosse,soccer, softball,swimming,tennis,trackandfield,volleyball,andwintertrack Pleaserefertothesportsprogramlisting intheStudent/ParentHandbook
Allinterestedstudentsareinvitedtobecomestaffmembersoftheschoolpublicationswhereliterary,graphic, andartistictalentsfindexpression
TOWERETTE is the official school newspaper and is published at least four times a year A faculty member advisesthestudenteditorialstaffwhichtakescompleteresponsibilityforthecomposition,layout,editing,and proofreadingofthepaper
HORIZONS is the yearbook which is published annually by the senior class and advisors The students decide theformatandthematicdesignofthepublication
INNERVISIONS is the literary magazine of the school It consists of student poems, essays, short stories, and artwork.ThestaffandfacultymoderatorofINNERVISIONSselectsthematerialandisresponsibleforitslayout. Allstudentsareencouragedtosubmittheirworkforpublication
VillaWalshAcademyschoolcolorsaregreenandwhite.
All faculty must be in the school building no later than 7:30 AM, and remain until 3:20 PM, so that students who come early or stay after school will have the required supervision and the opportunity to seek guidance andobtainextrahelp TeachersneedtosigninontheGooglesheet
The parking lot for all cars is located in the auditorium area Each teacher is assigned a reserved parking space Numbers for each car are issued at the beginning of the academic year. Teachers who do not have a numbered parking space are to park in the designated area by the Mansion According to New Jersey law regarding school security, as part of bill A3348, it is MANDATORY that all student drivers and faculty must maintain a parking decalortagiftheyplantoparkoncampus
Villa Walsh Academy employees are required to present themselves in a neat and professional manner, and to dress appropriately for the work they perform. Jeans, shorts, leggings, sweatsuits, and the like are not consideredappropriateschoolattire
Daily attendance is critical to student learning and contributes to the overall wellbeing of the school climate Unsatisfactoryattendanceincludesexcessiveabsenteeism,abuseofsickdays,absencesthatprecedeorfollow regularlyscheduleddaysofforholidaysandcontinuedtardiness.Doctorappointmentsshouldnotbemadeon days that liturgies or other school activities are scheduled Any abuse in this area will be addressed by the schoolAdministration.
In the event of absence or tardiness, the Principal must be notified before 6:45 am. via text or cell phone call. Assignments must be given for each class Teachers should email (srelaine@villawalshorg and VWA@villawalshorg) with class assignments For anticipated absences, assignments must be submitted to the Principal.
If a teacher is absent from school for reasons of illness or because of a family emergency, the teachers listed on the substitution coverage will assume the responsibility for proctoring his/her class If a teacher knows in advance that he/she will be absent, specific assignments and class roster must be provided with clear instructions for the substitute teacher Sub plans should not include group work Substitute teachers must take attendance and make notations apprising the teacher of the work accomplished.
Employees shall schedule any medical and dental appointments outside normal working hours, when possible For personal business, employees shall utilize a personal day.
If school is cancelled or dismissed early, teachers will be notified through the School Messenger system Information will also be posted on the school website, www.villawalsh.org, and on the school answering machine
Villa Walsh Academy recognizes that the use of unlawful drugs and the abuse of alcohol pose a threat to the health and safety of all employees. Any employee who is observed to be intoxicated or under the influence of alcohol or drugs during working hours or is under reasonable suspicion of same shall be immediately tested and is subject to discipline up to and including termination Anyone observing such behavior must immediately report it to the school Administration.
Each faculty member is assigned a mailbox in the Business Office where all personal mail, notices, and bulletins are placed Mailboxes and email are to be checked each morning and at the end of the day
TheschoolphonelocatedintheFacultyRoomshouldnotbeusedforextended,personalorlong-distance calls. When a phone call to a parent requires additional privacy, a teacher may use a phone located in a conferenceroomonthesecondfloorofBrowneHall Eachfacultymembermustcheckhis/hervoicemaildaily
In recognition of the importance of technology to the academic community, Villa Walsh Academy makes personal computers, laptops, and internet access available. It is imperative to understand that the use of technologyisrestrictedtoacademicpurposes
VillaWalshAcademyhastherighttoregulatethematerialsthatfaculty/staffwillaccessorpostwhileonschool grounds,toensurethatalluseofthesystemisinaccordancewiththeCatholicphilosophyoftheschool,and enforceallrulessetforthintheschool’sdisciplinarycodeandthelawsoftheUnitedStatesandtheStateof New Jersey Further, faculty/staff may not use this system for commercial purposes to offer, provide, or purchaseproductsorservicesthroughthesystem.AccesstotheInternetisavailablethroughthisschoolonly withpermissionoftheprincipalorherdesigneeandparentsasindicatedbythesigningofanInternetUse Agreement
Theuseoftheinternetandrelatedtechnologiesisaprivilege,notaright,andinappropriateusemayresultin cancellationofthoseprivileges.Eachuserwhoisprovidedaccesstotheinternetandrelatedtechnologieswill participateinadiscussionwithassignedstaffperson(s)concerningtheproperuseofthenetwork Thefaculty, staff, or parent/guardian may request the administrator or designee to deny, revoke, or suspend a specific user ' s access to the internet and related technologies due to unacceptable use Villa Walsh Academy also reservestherighttologinternetuseandtomonitoruseoffileserverspace.
Personal Computers and All Other Devices
Theuseofcellphones,smartdevices,andthelikecanbedisruptivetotheeducationalenvironment.Therefore, faculty/staffarenottousepersonaldevicesduringinstructionalorproctoringsessions Personalcellphones maybeusedonlyduringallocatedbreaks.
Theinternetisconsideredalimitedforumsimilartotheschoolnewspaper;therefore,theschoolcanrestrict faculty/staffrightsoffreespeech.Anyexerciseoffreespeechusingtheschool'scomputersmustbeinkeeping withCatholicvaluesasexpressedintheschool'sphilosophyandmissionstatement
Faculty/Staff Responsibilities
Personal Safety
Faculty/staffwillnotpostcontactinformation(e.g.,address,phonenumber)aboutthemselvesoranyother persononanyinternet-basedresource
Faculty/staffwillnotagreetomeetwithsomeonetheyhavemetonline.Anycontactofthisnatureorthe receiptofanymessageshouldbereportedtoschoolauthoritiesimmediately
Faculty/staff will not attempt to gain unauthorized access on any computer system or go beyond authorized access by entering another person ' s password or account number, or by accessing another person ' s files
Faculty/staff will not attempt to disrupt the computer system or destroy data by spreading computer viruses or by any other means
Faculty/staff will not attempt to modify any of the school’s computers or computer systems by changing system, hardware, or software configurations Faculty/staff will not use the system to engage in any other illegal act
Villa Walsh Academy internet access is protected by a firewall Bypassing this firewall is prohibited
Faculty/staff are responsible for their individual email accounts and should take all reasonable precautions to prevent others from using their account
Under no circumstances will faculty/staff give their passwords to another person.
Faculty/staff will immediately notify the Principal or the technology administrator of any system problems.
Faculty/staff are prohibited from downloading material of any kind from any other computer system or the internet without the express permission of the Administration or the technology administrator
Faculty/staff are prohibited from loading or installing any program files or software onto the school’s workstations or system
Inappropriate Language
On any and all uses of the internet, whether in application to public or private messages or material posted on the web pages, faculty/staff will use appropriate language consistent with our Catholic philosophy and values Faculty/staff must not use obscene, profane, lewd, vulgar, rude, inflammatory, threatening, or disrespectful language
Cyber bullying includes, but is not limited to, the following misuses of technology: bullying, discriminatory remarks, hate mail, harassment, intimidation, teasing, threatening, or terrorizing another student or staff member by way of any technological device or tool, such as sending or posting inappropriate or derogatory email messages, instant messages, text messages, digital pictures or images, video, film or website postings Faculty/staff participating in any form of cyber bullying will be subject to disciplinary and/or legal consequences.
Cyber bullying that takes place on or immediately adjacent to school grounds, at any school-sponsored activity, on school-provided transportation, or at any official school bus stop is prohibited
Any off-campus acts that substantially cause disruption to the school or faculty/staff or interfere with the rights of faculty/staff to be secure will be subject to disciplinary and/or legal consequences
Cyber bullying cont.
Faculty/staff are prohibited from posting information that could cause danger or disruption Faculty/staff must not engage in personal attacks, including prejudicial or discriminatory attacks.
Students or parents witnessing or being subjected to cyber bullying should immediately follow reporting procedures outlined in Harassment, Intimidation, or Bullying (H.I.B.) policy.
If a student or faculty member is a victim of or witness to cyber bullying, he or she should collect evidence including copies of emails, text messages, or other related media and/or record evidence by taking screen shots of media in order to document the incident.
Respect for Privacy
Faculty/staff must respect the privacy of others by not reposting any message without permission. Faculty/staff must not post private information or images of themselves or another person
Respecting Resource Limits
Faculty/staff must use the system only for academic purposes
Faculty/staff must respect the rights of all by using the system in a timely manner.
Faculty/staff use for product advertisement, political lobbying, game playing, “spamming,” unauthorized "chat," or chain letter communication and subscriptions to lists that have not been approved by the administration is also prohibited.
Faculty/staff may access internet news groups, discussion groups, and bulletin boards for academic purposes only with the express permission of the administration or the technology administrator.
Plagiarism and Copyright Infringement
Material obtained through research on the internet, and then used in research papers for any classes at Villa Walsh Academy, must be properly documented Students must not plagiarize words or ideas that they find on the internet Students must respect the rights of copyright owners Students should direct any questions regarding copyright law to a teacher.
Inappropriate Access to Material
Faculty/staff must not use the school’s computers to access material that is profane or obscene or that advocates illegal acts of violence or discrimination toward other people ('hate literature').
Faculty/staff should expect no privacy or permanency of the contents of personal files on the school’s computer system Routine maintenance and monitoring of the system will occur and may result in the viewing and/or removal of faculty/staff files An individual search will be conducted if there is reasonable suspicion that faculty/staff have violated any of the terms of this policy, the school disciplinary code, or the law. Villa Walsh Academy will cooperate fully with local, state, or federal officials in any investigation related to illegal activities conducted through the school’s computer system. Any violation of the terms of this policy will be subject to disciplinary actions Villa Walsh Academy may, at any time, restrict a faculty/staff member's use of the school’s computer system Villa Walsh Academy makes no guarantee that the functions or the services provided by or through the school’s system will be error-free or without defect Villa Walsh Academy will not be responsible for any damage faculty/staff may suffer including, but not limited to, loss of data or interruptions of service Villa Walsh Academy is not responsible for the accuracy or quality of the information attained through or stored on the system. Villa Walsh Academy will not be responsible for financial obligations faculty/staff may incur while using the system Villa Walsh Academy fully expects that faculty/staff will follow the directions of the Administration and other school authorities in all matters regarding access to information using the school’s computer system All uses of the system must show a respect for the rights of others and the dignity of the human person
The internet is a public forum with unrestricted access. For this reason, faculty/staff shall not post or spread disparaging, defamatory and/or untrue information about the school, its employees, students, family members of students, and/or any person or entity with which Villa Walsh Academy affiliates or does business.
Computers and other electronic devices may not be used to make sound or video recordings of individual(s) without the consent of all involved. Any person involved in the posting or transmission of such material is subject to disciplinary action deemed appropriate by the administration at the school
Any posting shall not include any school logo or trademark, unless expressly authorized in writing in advance by the Administration.
Every member of the Villa Walsh Academy community, including faculty, Administration, staff, students, and volunteers, has the responsibility to reflect the school’s philosophy of teaching Christianity as a way of life permeating values, judgments, and actions. This includes maintaining acceptable standards of personal behavior to ensure that all school members have the opportunity to experience an atmosphere which promotes respect and is free of harassment.
, INTIMIDATION, OR BULLYING (H.I.B.) POLICY CONT.
AspertheNewJerseystatute:“Harassment,intimidation,orbullying”meansanygesture,anywritten,verbalor physical act, or any electronic communication, including videoing another student, whether it be a single incident or a series of incidents, that is reasonably perceived as being motivated either by any actual or perceivedcharacteristic,suchasrace,color,religion,ancestry,nationalorigin,gender,sexualorientation,gender identity and expression, or a mental, physical or sensory disability, or by any other distinguishing characteristic, that takes place on school property, at any school-sponsored function, on a school bus, or off school grounds as provided for in section 16 of P.L. 2010, c.122 (C.18A:37-15.3), that substantially disrupts or interferes with the orderlyoperationoftheschoolortherightsofotherstudentsandthat:
a. areasonablepersonshouldknowunderthecircumstances,willhavetheeffectofphysicallyor emotionallyharmingastudentordamagingthestudent’sproperty,orplacingastudentinreasonable fearofphysicaloremotionalharmtohispersonordamagetohisproperty
b hastheeffectofinsultingordemeaninganystudentorgroupofstudentsor
c. createsahostileeducationalenvironmentforthestudentbyinterferingwithastudent’seducationor byseverelyorpervasivelycausingphysicaloremotionalharmtothestudent
ReportingofHIBincidentsshouldbedoneinthefollowingmanner:
a anymemberoftheVillaWalshAcademycommunitymayreportanyincidentofHIBtoanyfaculty memberormemberoftheadministration
b thatfacultymembershouldforwardthisinformationtothePrincipal
c. thePrincipalwillthenfollowtheTimelineforInvestigationofReportsofHIB
FOR INVESTIGATION OF REPORTS OF HARASSMENT, INTIMIDATION AND BULLYING*
SCHOOLDAY1: HIBoccursand/oremployeelearnsofHIB VerbalreportmustbemadetoPrincipal ThePrincipalmustinformparents/guardians“ofallstudentsinvolved”
SCHOOLDAY2: PrincipalmustinitiateinvestigationbyAnti-BullyingSpecialistwithinoneschooldayof report
SCHOOLDAY3: Harassment,Intimidation,andBullyingReportmustbefilledoutbyfacultymemberand giventotheprincipal Awrittenreporttoprincipalmustbemadewithintwodaysof employeewitnessingorreceivingreliableinformationthatastudenthasexperiencedHIB.
SCHOOLDAY11: Theinvestigationmustbecompletebytenschooldaysfromwrittenreport
SCHOOLDAY13: Theresultsoftheinvestigationmustbegiventoprincipalwithintwoschooldaysof completing investigation Principalwilltakeaction(interventionservices,discipline, counseling,etc.) appropriatetothesituation.
Schoolmustprovide“informationabouttheinvestigation”toparents/guardiansof“studentswhoarepartiesto theinvestigation”aboutinvestigationandfindingswithinfiveschooldaysafterinvestigationiscomplete. Informationwillincludenatureofinvestigation,whetherevidenceofHIBwasfound,whetherdisciplinewas imposedorserviceswereprovidedtoaddresstheHIB
*Thistimelineisbasedonthe2011Anti-BullyingBillofRightsAct
Chairpersons are responsible for the smooth operation of their respective departments and are expected to fulfill thefollowingobligations:
1 Meetmonthlyduringthecourseoftheacademicyeartoevaluate,reviseandupdatethecurriculum ThePrincipalandDirectorofCurriculumshouldbeinformedoftheagendaandreceiveacopyofthe minutestakenatthemeeting
2 Decidewiththemembersoftheirdepartmentwhetherornotachangeoftextshouldtakeplacefor thefollowingyear(thisshouldbedoneinJanuary).Alltextbookchangesshouldhavepriorapproval ofthePrincipalandDirectorofCurriculum.
Homeroomperiodbeginsat7:45AM Homeroomsareorganizedsothatschoolbusinessmaybeconducted, attendancetaken,andmorningexercisesheld.Morningexercisesconsistsofanopeningprayerandsalutingtheflag. Duringfirstperiod,announcementsaremadeoverthepublicaddresssystemconcerningtheimmediateand/or upcomingeventsthataffecteachstudent Teachersandstudentsaretobeattentiveduringannouncements The homeroomteachermusttakeattendancedaily.Itiscrucialthattheattendancebeaccurateinordertoavoidcalling parentswhen,infact,thestudentisinschool.Theattendanceistobesubmittedelectronicallyby7:55AM.A completelistofabsenteesandtardieswillbepostedonthesharedspreadsheet Atthebeginningofeveryperiod, eachteachercheckstheclasslistagainsttheabsenteelistandreportsanymissingorunaccountedstudenttothe Principal’soffice.
TheHomeroomteacherisresponsibleforthefollowing:
Homeroombeginsat7:45amandlastsfor12minutes
MorningOffering
PledgeofAllegiance
ListeningtoDailyAnnouncements
Takeattendance-Recordattendanceonthesharedspreadsheet
Ifastudentaccumulatessixnon-excusedabsences,pleasenotifytheSchoolNurseandDirectorofCurriculum viaemailasaphonecallwillbemadetothestudent’shome
Ifastudentaccumulates10ormoreabsences,thiswillbeimportantasitwillaffectastudent’sabilitytoattend futurefieldtripsandspecialevents/opportunitiesduringtheschoolyear ie,clubactivities,schoolvisits, CareerDay,7thGradeGirlforaDay,etc
StudentTardies-pleaserecordifastudentislateonapinkslip
Onceastudenthasthreetardies,theDirectorofCurriculumwillbesendinganemailtothestudentinforming themofadetention
Studentswillhaveacertainamountoftimetocompleteherdetention (nomorethan2weeks)
StudentCounsel-Studentswillnowhavetheabilitytodisseminateandcollectinformationduringhomeroom viarepresentatives.ThiswillbeextremelyhelpfulregardingeventssuchasSchoolElections,Mother/Daughter Dinner,Father/DaughterDance,FieldDay,etc
Information-Givingstudentsfurtherinformationasneeded ThiscanbeanythingfromtheFashionShowto attendanceatAthleticEvents.
Whenastudentisgoingtobeabsentortardy,herparentorguardianmustphonetheBusinessOfficeat(973)5383680 ext 170, or send email to attendance@villawalshorg, before 7:45 AM If the parent or guardian is leaving or sending a message, the following information must be included: student’s name, grade, and reason for her absence/latearrival
A written note, signed by a parent or guardian stating the reason for and the date of absence is to be presented to the Business Office upon the student’s return. A note must accompany a student who misses class or is absent for any doctor appointment. Following an absence of more than five (5) days due to illness, a doctor’s note is required, and the student must report to the Nurse prior to first period.
Regularattendanceandclassparticipationarecrucialforachievementinhighschool Inaddition,college admissionsofficesandfutureemployersuseattendancerecordsasameansofdetermininganapplicant’s dependabilityandgoodcitizenship
Excessiveabsencehindersthelearningprocess.Therefore,studentsareexpectedtobepresentdailyforall classesThisincludesallspecialassemblies,religiousservices,retreats,andothereventssodesigned
Parentsarerequiredtonotifytheschooloftheirdaughter'santicipatedabsenceformedicalleave,family travel,etcThisinformationshouldbesenttotheBusinessOfficeinwritingatleastoneweekinadvanceofthe absence.Additionally,studentsshouldprovideeachoftheirsubjectteachers,inwriting,thedatesoftheir absence
Theonlyexcusedabsencesfromclassattendanceareasfollows:
Personalillness
Familyemergency/bereavement
Religiousholidays
School-authorizedactivities
Statedriver’stest
Threeapprovedcollegevisitsforseniors Ifanadditionalcollegevisitisrequired,thereasonmustbe presentedandapprovedbytheGuidanceDepartment.
1. Ifastudentisabsentforareasonthatisunexcused,shemustmake-uptheworkmissedeitherduringa studyhallorafterschoolonthedayshereturnsThestudentisresponsibleforspeakingwiththesubject teacher(s)onthedayofherreturn.
2 Parentswillbenotifiedifstudentsshowapatternofabsenteeismonthedaysoftests/quizzes
3 Ifexcessiveabsencesarenoted,ameetingwillberequiredbetweenadministration,parent(s),andthe studenttodetermineanappropriatecourseofaction.
ThereisaseriousobligationtoarriveatschoolandtoclassontimeHomeroombeginsat7:45AMIfastudent arrivesafter7:45AM,sheislateandmustobtainalatepassfromtheHomeroomTeacher.Ifastudentreports toclassafter7:45AMshewillreceiveonedemeritfromtheteacherandwillbemarkedlateStudentswhoare latetoanyclasswillreceiveademeritfromthat subjectteacher
Studentswhoarriveafter10:15AMorleavebeforenoonwillnotbeallowedtoparticipateinanyafterschool activitythatday,ieclubactivities,musicalrehearsal,athleticevents,school-sponsoredsocialevents,etc
Ifastudentiscominginlateorleavingearlyforadoctor’sappointment,adoctor’snoteisrequiredbythe studentupontheirreturntoschool
Excessivetardinessjeopardizesastudent’sacademicstandingand/orcoursecreditParentswillbenotifiedif thetardinesspersists.
Students should make appointments outside of school hours. However, if a school hour appointment is unavoidable, a letter signed by a parent/guardian must be submitted to the Business Office, or a parent/ guardian may call the Business Office in advance. The student will be dismissed from the school office only to a parent/guardian, or an individual identified by the parent/guardian as assuming this responsibility
If a student needs to be dismissed early, she must present her teacher with an Early Dismissal Pass before she is allowed to leave class. The pass should be obtained from the Business Office prior to dismissal. Any student who has a last period Study Hall on a Friday is permitted to leave school at that time As with any other early dismissal, the student must present a note in advance to the Business Office so that an Early Dismissal Pass can be issued
Seniors have the privilege of leaving school I period if they have a study unless they need to stay for sports or an after-school activity However, before leaving the campus, they are to sign out in the Business Office This privilege does not apply whenever there is a scheduled school activity (eg, liturgy, assembly, or special programs which involve the entire school community). Students who leave campus without signing out will be in jeopardy of losing this privilege.
Students who are absent for any reason will be required to make up work missed in each class It is the student's responsibility to obtain all make-up work. Make-up work should be submitted within a time period commensurate with the length of absence (1 day for each day absent) Only in extreme cases of prolonged absencewillexceptionsbemade.Thesestudentsshouldbegiveneveryconsiderationtobetutoredortomake upworkmissed
Facultymembersarerequiredtolistallmajorassessmentsandquizzesontheonlinecalendardedicatedtothis purpose No more than 2 major tests may be given in a day Unannounced short quizzes based on previous night'sassignmentsdonothavetoberecordedonthecalendar
Teachers should not schedule a major test or long-term project before or after a significant school activity, i.e. tournamentgames,concerts,musicalproductionorvacations
Every class begins with a prayer, as a reminder of the importance of God's presence in our lives Attendance mustbetakenpriortocommencinginstruction.
1 Teacher should complete a student concern form
2 Teacher will communicate concerns with parents by phone or email
3 Teacher can schedule a meeting with parent (s) and the Director of Curriculum
1Ifastudentreportsabullyingincident,aHarassmentIntimidationandBullyingReport(HIB)formmustbe completedandsubmittedtotheprincipal.
2If a student reports an incident of abuse, self-harm, suicidal ideation, administration must be informed immediately.
Studentsassignedtoastudyhallmustarriveontimewithsufficientworktodowithintheclassperiod The atmosphereinastudyhallisoneofquiet,affordingallstudentstheopportunitytofocusonschoolrelated work Attendancewillbetakenbythestudyhallteacher Anystudentrequestingtoleaveastudyhallmust obtainapassfromeitherthestudyhallorsubjectteacherStudentsmustreporttothestudyhallfirstbefore leavingforotherareas.Studentsareallowedtotakethestudyoutsideinthegardenareaiftheweatheris conduciveJuniorsmayusethegazeboarea
Homeworkshouldhaveadirectrelationshipwithclasswork.Whenhomeworkisassigned,itshouldbechecked andrecorded Ifastudentisroutinelyunpreparedforclassand/orfailstocompletehomeworkassignments, parentsshouldbenotifiedassoonaspossible Homeworkshouldnotbeassignedduringvacationsor weekends.APclassesmayassignhomeworkduringweekendsifitisdeemednecessary,occasionally.
TeacherssalariedbyVillaWalshAcademymaynotchargeAcademystudentsforanyextratutoringin classworkduringtheschoolyear
Ifastudent'sacademicperformancereachesanunsatisfactorylevel(C+orlower),itisimperativethatan InterimReportbesenttotheparentsthreeweeksbeforeendoftermItisverydifficulttojustifyafailinggrade atmid-termortermiftherehasbeennopriorcommunicationwiththeparents.InterimReportformsarea googleslideandmustbesubmittedtothePrincipal'sofficeanditwillbesentoutfromthere.
Parentsareencouragedtovisittheschool,and/ormeetwiththeteachers,theguidancecounselor,andthe Principal Theyarerequestedtocalltheschooltoarrangeforanappointmentconvenienttoallparties An opportunitytomeetwiththefacultyisscheduledinthefallofeachacademicyear
Teachersandcertifiedschoolpersonnelwhohavebeenassignededucationalresponsibilityforthestudents mayhaveaccesstostudentrecords.
Thestudentrecordsarelocatedinafire-prooffilecabinetintheGuidanceDepartment.Thestudentrecords includethefollowingdata:personaldata(name,address,dateofbirth,familymembers,etc),andadescription ofpupilprogress(grades,credits,honors,testdata,careerinterests,detailedtestresults,anecdotalreports) Upongraduationallinformationisdestroyedexceptforthepermanentrecord(transcript)whichiskeptinthe GuidanceDepartmentAllhealthrecordsofcurrentstudentsarekeptintheHealthOffice
TeachersshallinformthePrincipaland/orGuidanceCounseloroftheirdesiretoreviewastudent'srecords UnderNOcircumstancesaretherecordstoberemovedfromtherespectiveoffice.
IncompliancewithNewJerseyStatelaws,allstudentsmustpresentproofofimmunizationandacurrentphysicalto theHealthOfficepriortotheopeningofschool
Thenurseisavailablethroughouttheschooldayandmustbenotifiedifastudentbecomesillorinjuredandcannot attendclass Ifthenursedeemsitnecessaryforthestudenttobesenthome,shewilltelephoneaparentandmake arrangements TheBusinessOfficewillnotifyteachersifastudenthasbeensenthomeduetoillness
Studentsthemselvesarenottocallaparentrequestingpermissiontoleaveschoolortobepickedup Ifastudentis ill,sheshouldnotcometoschool.Parentsshouldmonitortheirdaughter'ssymptomsandfollowourhealthpolicy guidelines
Thenurseistheonlyauthorizedpersontodistributeanytypeofmedicationtostudents.
SneakerpassescanbeissuedthroughtheNurse’sOfficeonlywithadoctor’snote
VillaWalshAcademyisanut-freeschool Noitemsshouldbebroughttoschoolthatcontainoraremadefromtree nutsorpeanuts.
Everyaccidentintheschoolbuilding,ontheschoolgrounds,atpracticesessions,oratanyeventsponsoredbythe school,mustbereportedimmediatelytotheschoolAdministration.
Iftheaccidentisviewedasserious,911shouldbecalledimmediatelyandtheAdministrationnotified Parentsmust beinformedofanyinjurywhichtakesplaceonschoolproperty.
Students returning to school after recovering from a communicable disease must have a written note from their physician in order to be readmitted Communicable diseases include mononucleosis, chicken pox, strep throat, conjunctivitis,andCOVID
All students, faculty, and staff are issued a lanyard with a security pass card that allows them to access the school buildings. The pass card must be worn at all times while on campus, except on the athletic fields during games or gym classes A student with a misplaced or forgotten pass card must be issued a demerit Students may not decorate or adorn the lanyards or the cards, and the school name is not to be displayed on them. If a student misplaces or loses her pass card, she must immediately report it to the Principal's office so that card can be deactivated Ifthecardisfound,itwillbereactivatedafterthestudentreportstothePrincipal'soffice Ifthecardis lost,itwillbedeletedfromthesystem,andanewcardwillbeissuedtothestudent.Thereisa$20.00chargefor eachadditionalcardthatisissued
Thepasscardsareprogrammedtoallowaccesstotheschoolfrom6:45AMto7:00PMweekdays.Ifitisnecessary forastudenttoreturntoschoolatanyothertime,shemustmakeotherarrangementstoenterthebuilding Teacher passcardsareprogrammedtoallowaccesstotheschoolfrom6:30AMto 7:00PM Passcardsarecollectedbythe firstperiodteacherattheendoftheschoolyear.
Studentsmaynotopendoorstoallowvisitorsintothebuilding.AllvisitorsmustbeadmittedthroughtheBusiness Office
Forstudentsafetypurposes,studentsarenotpermittedtoorderfoodfromdeliveryservicesduringthe schoolday
Fire drills are necessary to prepare students to meet an emergency which might require a rapid mass exit Everyone should know the specific directions for reaching a point of safety from those areas of the building in which one may be at the time of the drill.
There are certain general principles which must be observed:
1 Walk rapidly
2. Proceed quietly.
3 Exit in a single file when leaving a given room However, if two classes meet, then students must exit side by side thus forming double lines through the corridor and stairways
4. Move to a reasonable safe distance away from the school, as designated by the Fire Department.
WHEN YOU ARE LOCATED IN: USE:
BROWNE HALL
Locker Room Nearest Exit
Room 10 (Chemistry Lab) Garden Exit
Room 11 Turn Right - First Exit
Room 12 Turn Left - First Exit
Room 32 Stairway to Garden
Room 31 Emergency Exit to Chapel Exit
2 North Turn Left
2 South Turn Right
M North Turn Left Proceed to Stairs
Corridor 2 South Exit and proceed to Red Door Exit Library Turn Left - use Exit
Chorus Room & Mezzanine South Turn Right - Proceed to Exit Auditorium Left or Right Exits
REGINA PACIS HALL
USE NEAREST EXITS
SR DORIS LAVINTHAL ATHLETIC CENTER USE NEAREST EXITS
FOR TEACHERS: You should be the last one out; and make sure to close the door after everyone has exited
Carry your roll book with you. Check attendance outside
FOR STUDENTS: Proceed quietly in a single file line.
A complete manual delineating emergency procedures is distributed to faculty members and updated as needed The manual should be housed in a top desk drawer in each classroom Teachers must familiarize themselveswiththecurrentprocedures.Lockdowns,lock-ins,evacuation,and/orshelterinplacedrillswillbe heldatvarioustimesthroughouttheschoolyear
Allproctorsassignedtocafeteriadutymustreportatthebeginningoftheperiodassignedandremainuntilthe periodisover.Proctorsaretosupervisethestudents,seethattablesareleftclean,andmaintainorder.
VillaWalshAcademydoesnotendorseanycarservicewhetherbysmartphoneapporotherwisetotransporta student Theschoolwillnotberesponsibleforanythingwhichmayoccurwhileastudentisusingsuchservices However,ifaparentchoosestouseacarservice,theyareencouragedtotakeeveryprecautiontoseethatthe driver'sidentificationisverified Teachersarenottousetheirpersonalvehiclestotransportstudentswithout properauthorization.
Allfull-timeteachersareaskedtosignupforbusduty Amonthlycalendarisavailableonlineforteachersto selectonedayeachmonthwhentheywillassumethisresponsibility Allteachersassignedtobusdutymust reporttothecafeteriaby3:20PM Proctorsaretomakesurethatthestudentsenterthebusesinasafeand orderlyfashion Studentswhoarewaitingfortheirparentsaretoremaininonesectionofthecafeteria Specific busdutyguidelinesareissuedtofacultymembersatthebeginningofeachschoolyear.
Students are not to be excused from classes unnecessarily. They are never to lose classroom time to run errandsfortheteacher Teachersarenottoleaveschoolduringthedayforpersonalerrandsunlessauthorized bythePrincipal.
Theappearanceoftheclassroomisultimatelytheresponsibilityoftheteacher Itisgoodtraining,however,to givestudentscertainresponsibilitiesfortheupkeepoftheclassroom Teachersshouldtakecarenottodamage walls surfaces when hanging materials in the classroom Boards should be cleaned when needed Shades shouldbeleftatanevenlength,windowsclosed,andclassroomdoorslockedattheendofeachday.
Faculty and staff are counseled to leave no personal possessions in easily visible or accessible places in classrooms, offices, or other school facilities The school is not responsible for personal valuables and possessions brought to campus. All vehicles, personal or school-owned, should be left locked when unoccupiedonschoolpropertyoratschool-relatedevents Employees’workareasanddesksarefortheiruse, butemployeesshallhavenoexpectationofprivacyinanyschoolpropertyorspace.VillaWalshretainsthe righttomonitorandinspecttheseareasanditemsatanytime,withorwithoutadvancenoticetoemployees
Work order forms are to be submitted to the Principal's Office for all school repairs and maintenance They can befoundinthefacultyroominReginaPacis.
ThePrincipalmustgivepriorapprovalforallpurchasesthataretobechargedtotheschool
The VWA Library/Media Center serves as a multi-media center for reading and research and provides a quiet placetostudyinawelcoming,supportiveatmosphere.Fullyequippedwithnetworkedcomputers,printers,and an automated catalog, the library provides access to the Internet for academic research Students may use computers (including laptops) in the library under supervision and only for academic purposes. The use of technologyforpersonalreasons,includingemail,isnotpermitted
Students can log on to the following specialized online databases and eBooks from any computer on the school’swirelessnetwork:
ENCYCLOPEDIA BRITANNICA - ACADEMIC EDITION ONLINE
FACTS ON FILE
AmericanHistory
AncientMedievalHistory
ModernWorldHistory
Bloom’sLiterature
ScienceOnline
GALE CENGAGE
ArtemisLiterarySources
ContemporaryAuthors
LiteratureCriticismOnline
GaleResearchinContext
GaleVirtualReferenceLibrary
OpposingViewpointsinContext
NEW JERSEY STATE LIBRARY
EBSCOHost
JerseyClicks-NewJerseyStateLibrary
Students and faculty may also access these electronic databases and eBooks from home using a special password,whichwillbeprovidedbythelibrarianuponrequest.Nopasswordsarerequiredforin-schooluse.
Thelibraryisopenonallschooldaysfrom7:45AMto3:30PM.Booksmaybecheckedoutforthreeweeksand renewed upon student request Periodicals may be checked out for three days and renewed upon request Fines will be charged for materials that are not returned on time. The overdue fine is $.15 per day and will double to $30 per book per day if a book becomes fifteen school days overdue Only school days are considered in calculating fines. Students are responsible for returning library materials by their due dates and will not be allowed to sign out additional materials until all items are returned and fines are paid Any lost or damaged materials will be replaced at the expense of the borrower. A copy machine is also available for studentuse
Students are encouraged to speak softly at all times and to be aware of others who may be studying, reading, ortakingatest.Foodandbeveragesarenotallowedinthelibrary.
Copiers and printers are available in the faculty room Students are not permitted to use the faculty or office machines. Copiers and printers are available in the library for the students' use. If a machine is not working properly,pleasedonottrytofixit NotifythePrincipal'sOfficeimmediately
Assemblies are held several times a year The purpose of these meetings is to enhance and enrich the educational, cultural, and social experiences of the students. Faculty members are expected to attend all assembliesheldduringtheschoolday
Any teacher wishing to invite a guest lecturer should inform the Principal before doing so and make the necessaryarrangementsinadvanceforanyschedulechanges
Frequently students remain after school for sports, club meetings, music rehearsals, and extra academic help The teacher in charge must be present throughout the activity to ensure the safety and well-being of the students No activity is to be scheduled unless the moderator is present It is the teacher's responsibility to see thatlightsareturnedoff,windowsclosed,andtheroomleftingoodorder.
Since there are no activity buses, students must provide their own transportation Students are not to be left oncampusunsupervised.StudentsshouldwaitfortheirparentsintheGraceAnnCafeorinthevestibuleofthe Sr DorisLavinthalAthleticCenter
Fieldtripsshouldbeintegratedintothecurriculuminordertoproviderichexperiencesandtomakeclasswork moresignificantandmeaningful Thefollowingprocedureswillbeusedforfieldtrips:
-Alltripsmustbesponsoredandsupervisedbyafacultymemberwhowillsecureinadvancetheapproval ofthePrincipal
-Atleastoneweekpriortothetrip,theteacherinchargeistosubmittothePrincipalalistofstudents participatinginthetrip
-Transportationistobearrangedbythesupervisingteacher.
-Eachstudentmustsubmitinadvanceawrittenpermissionslipsignedbyherparents
-Studentsaretobeproperlyattiredforallfieldtrips.
In order to instill a sense of community purpose and service to society, the students are encouraged to participateinserviceprojectsonanindividualbasisandingroups Arecordofindividualserviceandtimespent inthatservicewillbekeptbythemoderatorofaschoolsponsoredproject
- Facultymembersareaccountableforthevalues,regulationsandstatementsregardingprofessional behaviorfoundinthestudentandfacultyhandbooksandareexpectedtofosterthegoalsandphilosophy oftheAcademy
- Awrittenevaluationandappraisalformforeveryteacherwillbecompletedbyamemberofthe Administrationorsomeonedesignatedbythemtomeasureprogressandtoencourageselfimprovement atleastonceayear Theseformswillbeplacedintheteacher'spersonnelfilelocatedinthePrincipal's office.
- Unlessotherwisestipulated,allfacultymembersarecontractedforanacademicyear,beginningthelast weekofAugustandconcludingtheendofJune.Theacademiccalendar,availableinSpring,includes approximately180daysofemployment Contractsarenotautomaticallyrenewedeachyear
- Paycheckswillbedistributedonabi-monthly,twenty-fourmonthbasisbeginningthesecondweekin SeptemberandconcludingtheendofAugust.ThefacultyisexpectedtofulfillallresponsibilitiesbyJune 30eachyear
- Allfacultymembersaretoreporttoschoolby7:30AMandaretoremainuntil3:20PM. Inaddition, facultymembersmaynotleavetheschoolbuildingduringtheschoolday Ifanemergencyarises,the Principalmustbenotified.
- FacultymembersareaskednottotakepersonaldaysduringthemonthsofMayandJunenoronthedays directlybeforeorafteraholiday
- Facultymembersareexpectedtoattenddepartmentmeetings,facultymeetings,parent-teacher conferences,andindividualparentconferenceswhenarranged,inadditiontotheannualOpenHouse events.
- During an accelerated scheduled day, faculty members are expected to attend the special assembly or program provided for the student body and may not leave before the end of the school day.
- All faculty members are expected to be the primary tutors of students in their classes. All teachers are expected to make themselves available to their students for extra help when feasible.
- Faculty members are expected to moderate a club of choice and/or chaperone at least one school sponsored activity each year when feasible.
- Faculty members may hold outside employment as long as it does not interfere with their school responsibilities.
- Monthly or bi-monthly plans must be submitted to the Director of Curriculum at the beginning of the month.
- The faculty should carefully monitor the academic and personal progress of the students They should communicate regularly with parents by email, and bcc the Principal concerning any matter The faculty is required to hand in grades according to the established schedule and must forward any interim reports to the principal after students who may be receiving a C+ or lower at any time during the school year. It will then be sent to the parents three weeks prior to the end of the semester.
- It is the teacher's responsibility to ensure that all final examinations for his/her subject area are prepared well in advance of scheduled date. Exams should be proof-read and edited to guarantee that there are no errors (either in format or directives) which will disrupt the examination process Exams are to be stapled and labeled according to the class section with a complete list of students' names attached and sent to the Business Office One copy of each examination is to be sent to the Principal's office one week in advance of the scheduled date All completed exams are to be stored behind the buisness office for one year.
- All employees are required to sign in on the shared Google sheet upon arrival and sign out when they leave at the end of the day. If an employee needs to leave the campus during the school day, the Principal must be notified.
- Any teacher who accepts the responsibility of writing letters of recommendation for seniors should write an individualized letter for each student. The letter should be prepared on electronic school letterhead and uploaded to the Naviance program.
- Students may only contact the teacher through school email and/or voicemail. Teachers are not to communicate with students via personal email and/or personal cell or home phones.
- All faculty members who receive government books in their subject area are responsible for recording the identification number for each book assigned to each student. At the end of each school year, the teachers have the responsibility of collecting the government books, which should be checked and recorded. The subject teacher must personally account to the Business Office for each book assigned in that area.
- All teacher manuals and curriculum in each subject area must be left on the teacher's desk at the end of the school year. Any unwanted textbooks should be discarded with prior consent of the department head and/or Principal
Full time employees are eligible for Medical Insurance and will be billed at the present rate. This insurance covers only the employee If the employee wishes to have a spouse and/or family included in this insurance, it will be at the employee's expense. To be considered full time, teachers must be working a minimum of thirty (30)hoursperweek,five(5)daysperweek
DentalcoverageisalsoofferedandprovidedbyDeltaDentalofNewJersey.
All employees are eligible to participate in the 403(b) defined contribution retirement plan and in AFLAC supplementalinsuranceplans.
EmployeesmaybeentitledtoaleaveofabsenceundertheFamilyandMedicalLeaveAct("FMLA")ortheNew Jersey Family Leave Act ("NJFLA") To trigger FMLA or NJFLA leave protections, employees must inform the Department Head or Principal of the need for qualified leave 30 days in advance, or as soon as possible, and the anticipated timing and duration of the leave, if known If employees have any questions concerning this leave,theyshouldcontactthePrincipal.
Villa Walsh Academy will not condone, permit or tolerate any form of discrimination and/or harassment by or against any employee, student, vendor, independent contractor or other individual with whom our employees comeintocontactinconnectionwiththeiremploymentwithVillaWalshAcademybaseduponage,race,color, creed, religion, sex, sexual orientation, national origin, disability or other protected class or characteristic established under applicable federal, state or local statute or ordinance. Sexual harassment is a form of illegal sex discrimination Sexual harassment refers to behavior that is unwelcome, personally offensive, and which interferes with our work effectiveness. Federal law defines unlawful sexual harassment as unwelcome sexual advances, requests for sexual favors and other verbal or physical conduct of a sexual nature, whether by male or female, when (1) submission to such conduct is made either explicitly or implicitly a term or condition of an individual's employment, (2) submission to or rejection of such conduct by an individual is used as a basis for employment decisions affecting such individual, or (3) such conduct has the purpose or effect of unreasonably interfering with an individual's work performance or creating an intimidating, hostile or offensive work environment. Individuals who believe they have been subjected to discrimination or harassment as described or have questions about whether certain conduct is unlawful, should immediately speak to the Principal This is particularly important in cases involving sexual harassment where there can be uncertainty about what is unlawful conduct Department heads who receive complaints of discrimination or harassment or who are made aware of conduct that may constitute discrimination or harassment must immediately notify the Principal All complaints will be investigated promptly, and the existence of a complaint will be disclosed only to the extent necessary to make a prompt and thorough investigation or to take appropriate corrective measures. In all cases, the person who initiated the complaint will be informed of the findings and disposition of the matter at the conclusion of the investigation The Administration will ensure that there is no coercion, retaliation,intimidation,discrimination,orharassmentdirectedagainstanyindividualwhoregistersacomplaint or serves as a witness on behalf of another individual Persons who engage in prohibited discrimination, harassment, or any other type of misconduct, will be subject to appropriate discipline up to and including terminationofemployment
455WesternAvenue Morristown,NJ07960
973-538-3680
ItisagreedbetweenVILLAWALSHACADEMY,locatedinthecityofMorristown,CountyofMorris,Stateof NewJersey,partyofthefirstpart,and ,partyofthesecondpart, thatVILLAWALSHACADEMYhasemployedanddoesherebyengageandemploythesaidpartyofthesecond parttoteachinthisschool
Hereinafter,thepartyofthefirstpartshallbereferredtoastheAdministrationandthepartyofthesecondpart shallbereferredtoastheteacher
Itisalsoagreedthattheteachershallbeginserviceonthe26thdayofAUGUST2025,andthatsaidservicefor thecontractperiodshallconcludeonthe30thdayofJUNE2026.
Itisfurtheragreedthattheteacherholdorobtainavalidteacher'scertificate,recognizedbytheStateofNew Jersey,or,inlieuofholdingsuchacertificate,theteachershallcommenceappropriatecoursestoobtainsaid certification TheAdministrationmayrequesttheteachertoexhibitsaidcertificateortosubmitevidenceof actioninitiatedbytheteachertoobtainsaidcertificate.TheAdministrationmay,atitsdiscretion,waivethe aboveprovisions
GiventhefactthatteachersinaRomanCatholicSchoolteachreligiousandmoralvaluesnotjustinthereligion class,butthroughouttheschoolday,theteacheratVILLAWALSHACADEMYagreestoshowrespectforbelief inGod,Jesus,andtheChurch.
The teacher who is Roman Catholic is understood to be a practicing Roman Catholic and agrees to be completelysupportiveofRomanCatholicandChristianprinciples
TheteacherwhoisofanotherreligioustraditionagreestodisplaysupportofRomanCatholicandChristian principles
The teacher accepts this Contract of Employment as an undertaking to observe and comply with the conditionsofemploymentestablishedbytheAdministrationandthecommunityoftheReligiousTeachers Filippini TheteacheragreestoobserveandenforcetherulesprescribedforthegovernmentoftheSchoolby theAdministrationandfoundintheFacultyHandbook Substantialfailuretoobserveandcomplywiththese reasonableconditionsofemploymentshallconstitutenon-performanceofthisContract.
IftheteacherfailstoobserveandcomplywiththeconditionsofemploymentasoutlinedintheFaculty Handbook,includinganysupplementthereto,andthosecontainedinthisContract,theAdministrationmay terminatetheteacher'semploymentTheadministrationreservestherightto:
a)Suspendtheteacherfromalloranyschool-relatedemploymentuntilsubstantialquestionsoffactcanbe determined.Suchsuspensionshallbewithoutprejudicetotheteacher'scontinuingremunerationandany relatedbenefitsandrights
b)Terminatetheteacher'semploymentbyformalwrittennoticegivenatleastthirty(30)daysinadvanceof theeffectivedayofsuchtermination
The teacher must be extended the right to reply to any charges or complaints issued against him or her.
It is hereby agreed by the parties hereto that the teacher is an at-will employee of Villa Walsh Academy and can be terminated without cause. Furthermore, this Employment Contract may at any time be terminated by either party giving to the other sixty (60) days written notice of his/her intention to terminate this Employment Contract. In the absence of such written notice to terminate, this Contract shall run for the full term specified above.
The teacher shall begin service on the 26th day of AUGUST 2025, at a salary of , to be paid in equal installments of $
It is further agreed that the teacher is entitled to two (2) days leave for personal reasons and five (5) days for sick leave during each school year Sick days are cumulative to a maximum of twenty-five (25) days Personal days are not cumulative With reference to sick leave, the Administration reserves the right to require a physician's certificate to be filed with the Administration in order to obtain said sick leave If a person exceeds seven (7) absences within a school year and has no accumulated sick time, pay is docked for each day of absence
Degree/Major Years at VWA $
Medical Insurance
Dental
PRINCIPAL:
TEACHER:
Dated this day of , 2025, at Villa Walsh Academy, in the City of Morristown, County of Morris, and State of New Jersey



DIRECTOR OF CURRICULUM
STUDENT ASS STANT COUNSELOR



PRINCIPAL'SOFFICE






Luke 1:45