2024 台北老屋新生誌

Page 1


老屋新生的 多元包容及社會影響 力

在臺北市複雜、多變且新舊混合的都市環境中,建築可以乘載使用者、場所 本身的回憶,老屋不僅保存了城市的歷史和文化,更突顯了包容及開放性, 台北老屋新生大獎更是一個鼓勵不同年代、空間規模的老舊建築,以「整建 維護」賦予老屋新生想像,延長生命週期的獎勵平台,透過發掘及表揚優秀 案例,讓更多人感受老屋活化的魅力及改造後的新可能,鼓勵與啟發市民以 整建維護的方式來改善生活環境。

大獎已邁入第 24 屆,累計超過 1,000 件的作品參賽,共計表揚 259 件極具創 意且多元的老屋新生案例,今年延續以「創新提升、生活想像、社會共好、 可持續性」四大價值指標出發,並以作品的社會影響力為評選重點,表揚 3 件最具突破性的「評審團大獎」,讓創新思維持續帶領社會前進,並頒發 「BEST 10」及「整建維護特別獎」,從這些獲獎作品中也觀察到老屋新生的 趨勢變得更加多元,凸顯民間在設計及經營上豐沛的創意能量。

本屆得獎作品在各個面向展現出獨特的特色與亮點,設計團隊在尊重老屋的 風貌及脈絡的前提,保留原有質感及元素延續歷史記憶,並納入現代美學與 彈性使用的設計,讓老屋不僅成為歷史的象徵,亦適應現代生活靈活使用的 需求,同時也實踐減少廢棄物產生、納入環保建材及節能設計,以更永續的 方式提升老屋的功能性。

此外,這些得獎作品的背後蘊含著深刻的價值與動人的故事,充滿啟發意 義,有以師生攜手共創的古蹟校園美學實踐、建築師親身融入農家生活創造 循環再利用的友善設計、透過打開街區立面,共創以人為本的友善鄰里關 係,這些老屋不僅在空間上得到重生,也重新鏈結了人與人之間的情感與關 係。更為重要的是,他們透過老屋實踐社會議題的倡議及文化藝術的推廣, 無形中塑造具有多元性、包容性的空間,在每一處細節散發出更多的溫度與 情感,進一步擴大對社會的深遠影響。

都市的風格源自於街道巷弄間每一處角落的光影和故事,其深度則有賴老屋 新生的複合層疊,形成一種既懷舊又創新的獨特韻味,新生後的樣貌仍持續 有機改變與成長,且每位參與者在投入老屋新生的同時,也成為推廣整建維 護的重要推手,無論是從小尺度的社區參與出發,或是從倡議行動中積極實 踐,皆能逐漸影響周邊社區居民,引發對生活環境的關注。未來我們期望從 每屆的參與作品中窺見城市發展的趨勢,為臺北市民提供更多對於老屋改 造、多元使用的想像與啟發。

臺北市都市更新處 處長

臺北市都市更新處 序

台北老屋新生大獎 是

李清 志 主席專訪

「你不使 用,過個兩三百 年,房子永遠都是一個 殼。殼是沒有意義 的。」

沙龍空間

風格餐飲空間

劇團基地空間

公共空間

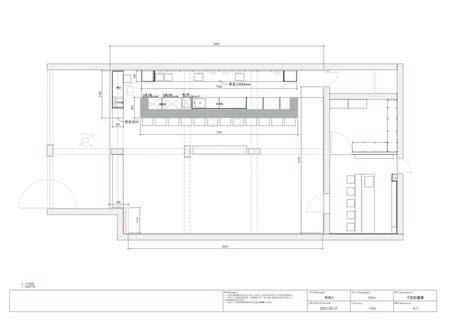
1 AKA café

2 昭和浪漫洗濯 屋

葉家源 委員專訪

「城市的建築面貌不應該只服務於一個群體, 它應該是多面向的,也應該具有包容不同需求的能力。」

4 3

萬座曉劇場

城市舞台

陳育貞 委員專訪 「空間,並不只是功能性的堆疊。」

錄音空間

玉成戲院錄音室 市定古蹟北一女中光復樓

農事空間 住宅空間

林君安 委員專訪 「有些改造從表面上看,好像只做了 40 分的工作, 但其實在思考上投入了 90 分的心力。」

河神的丸子

老布莊的共生

林佳育 委員專訪 「我不喜歡那種過度的復古情懷,老屋不是用來復刻某個年代的。」

boven 雜誌圖書館

森 ³ sunsun-museum

謝欣曄 委員專訪 「我們不需要每一棟建築都成為地標。」

杉遍野 . 隨野家

恩寓公寓

程詩郁 委員專訪 「我覺得,這個城市讓我們所有人都很敢做夢。」

2024

台北老屋新生 誌 NO. 2 4

指導單位

主辦單位

執行單位

新生誌發行

臺北市政府都市發展局

臺北市都市更新處

左腦創意

發行人|

詹育齊

編輯團隊 |

左腦創意

採訪撰稿 |

蕭詒徽

美術設計 |

曾渝芩

影像提供 | AKA café、BEATA、boven 雜誌圖書館、

市定古蹟北一女中光復樓-一座流動的博物館、玉成戲院錄音室、老布莊的共生、 杉遍野.隨野家、河神的丸子、沿岸 3.0 、城市舞台 、昭和浪漫洗濯屋、 重生(恩寓公寓 電梯增建及外牆整新) 、森 ³ sunsun-museum、萬座曉劇場

出 版 |

地 址 |

電 話 |

網 址 |

印 刷 |

臺北市中山區南京東路三段 168 號 17 樓 02-27815696 https://uro.gov.taipei/

紅藍彩藝印刷股份有限公司

2024 年 12 月

特別感謝

台北老屋新生委員會 | 李清志、葉家源、陳育貞、林君安、林佳育、謝欣曄、程詩郁 臺北市都市更新處

發行時間 | 以及喜歡老屋、經營老屋、設計老屋的你們。

台北老屋新生大獎是

由臺北市都市更新處主辦,這是一個鼓勵不同年代、各 種空間規模的老舊建築,以「整建維護」賦予新生想 像,延長其生命週期的獎勵平台。

2024 台北老屋新生大獎,共有 55 件作品投件,經 過 書面評選後,台北老屋新生委員選出 20 件作品進入實地勘 查,最終選出 14 件年度得獎作品。

本期《台北老屋新生誌》將以這 14 件得獎作品為章節主軸 , 並搭配 7 位委員的專訪。

得獎作品的撰寫將聚焦於「以人為本」的概念,呈現團隊對建 築或空間的經驗與故事,這正是我們覺得最有魅力的地方。

同時邀請委員以各自的專業背景,聊聊當前臺灣老屋新生的重 要趨勢,分享老屋改造與經營可能的未來發展方向,和得獎作 品中,最能體現老屋新生精神的具體設計或元素,包含空間設 計或人的經營及使用方式,其珍貴優異的特質,以及讓人駐足 特別久的地方。

感謝所有參與大獎投件的團隊,為臺北市持續邁向宜居城市發 展提供了參考,也是鼓勵以老屋作為生活的新選擇,為城市留 下更多重要且經典的老屋新生改造案例。

歷 屆 得 主 老屋忘年會 2024年 日(四)

台北老屋新生委員會委員

台北老屋新生委員會委員

實踐大學建築設計學系李清志副教授 更新處葉家源副處長

臺灣大學建築與城鄉研究所陳育貞兼任副教授 林君安建築師事務所林君安主持建築師 《500輯》林佳育編輯總監 本事空間製作所謝欣曄共同創辦人 左腦創意程詩郁執行長

本事空間製作所謝欣曄共同創辦人

大獎徵選 說 明 會

2024 年 5 月 30 日(四)舉辦在獲得 2017 金 獎 的「新富町文化市場」中「萬華世界下午酒場」 的大獎徵選說明會,邀請《新活水》雜誌總編輯 黃麗群、本事空間製作所共同創辦人謝欣曄,分 享創意講座「一成不變,九成創新:台北老屋裡 的靈感設計力」。

你不使用,過個兩三百年, 房子永遠都是一個殼。 殼是沒有意義的。

李清志

「建築跟人一樣,有生老病死。若是整個城市都是 新的,反而會少了故事,少了深度。如果都是老 的,那也很可怕。」

才不過三十年前,台北在李清志眼中,還是一個不懂得欣 賞老舊並存之美的城市。「那時候,老房子只代表著舊與 醜,大家只想拆掉重建,連政府也沒有保護老建築的概 念。」

他說,過去西區的居民,尤其是在萬華和大稻埕這些歷史 悠久的區域,常常因為居住在老舊的房子裡,而感到一種 自卑感。「住在西區的人常常覺得自己比較卑微,因為他 們住在這些看起來很舊的房子裡,而東區的人則住在新蓋 的高樓。」

相對的,李清志認為東區的人也有他們自己的病:失憶。

「東區的房子全部都是新的,走在那裡你幾乎看不到城市 的過去,他們也因此失去了對台北這座城市歷史的連 結。」

隨著時代的變遷,社會對於老屋的價值逐漸有了不同的體 悟。但即使如此,掌握老與新的均衡依然不容易。「評選 的時候,我們一方面當然會關注老屋的味道如何被保存, 但另一方面,如果一味保留所有老舊的部分,對我來說就 變成『殭屍建築』。」

所謂殭屍建築,指的是外表看似完好,卻因為缺乏功能性 與生命力,變得無法與現代生活產生連結的建築。「有些 老街區,為了形塑時代的氛圍,特意仿造一些過去的電影

時代氛圍的 提煉

海報啦、不能使用的器具佈景等等,反而 變得死氣沉沉。」

評選過程中,李清志因而特別關注軀殼和 靈魂之間的協調——如何在不失去老房子 味道的前提下,賦予老屋新的生命,是決 定作品分數的關鍵。

說來合理,但何謂老房子的味道?李清志 說,重點不在於「保持原狀」,而是精煉 時代的印記。無論是風格、材料,還是當 地的建築特色,「每個時代的建築都有它 的特色,這不僅僅表現在外觀的風格上, 還體現在材料的使用和設計的手法中。在 保留的部分將這些細節呈現出來,才能體 現老屋的味道。」

而新的靈魂,指的是新企劃、新用途的進 駐。「看看世界各地,這些老房子之所以 能夠留存下來,就是因為它們不斷被賦予 新的用法。」李清志說,提到台灣在這方 面的觀念仍然較為保守。「我們常常覺得 一百年的建築就不能動,但如果你去國外 看,他們幾百年的建築還是不斷地更新和 使用。」

「你不使用,過個兩三百年,它永遠都是 一個殼。殼是沒有意義的。」

在這個標準下,昭和浪漫洗濯屋,是 提煉時代氛圍的其中一種典範。這座 冰店坐落於台北大稻埕,老闆早年曾 經經營古董店,後來轉型打造一間充 滿昭和時代氛圍的冰店。對李清志來說,這間冰店的成功 之處在於它不僅僅是復古風格的展示,而是透過老闆對古 董的深刻理解,將一間不起眼的老屋打造成了有趣且具美 感的空間。

「他很厲害,能夠把這些老東西整理得很好,呈現出一種

特別的美感。」李清志說,「這不僅是保存老物件,而是 在品味上呈現一種取捨,這個取捨讓進來的人可以感覺到 某個時代的趣味。」

第一次造訪昭和浪漫洗濯屋時,李清志對空間本身的限制 印象深刻。「那個地方真的很小,樓梯很窄。」在經過改

複習 曾在的榮光

另一個作品 AKA café,則展示了另 一 種新生的形式。位於台北民樂街的這 間咖啡店,原本是個老倉庫,經過建

築專業背景的主理者精心改造後,重新煥發光彩。「他對 這個老房子的價值有深入的理解,並不只是把它當成古蹟 保留,而是為了喚醒大稻埕過去的榮光。」

「以前,真正有錢人就在大稻埕。早年由於萬華相對排外, 外商想要進入萬華經營,他們是不讓的,所以那些商人就被 趕到了民樂街、迪化街,結果在那裡生意越做越好,特別是 茶商,蓋起來的房子都雕梁畫棟,非常氣派。」

對當地富裕生活的文化記憶,隨著社會發展的錯動而逐漸 被淡忘。AKA café 透過在店內舉辦各種文化活動,這間老

造之前,幾乎難以想像它作為商業空間的 可能,「那個店面荒廢很久了,細細長長 的,其實很難用,而且還位在一個很逼仄 的轉角,根本沒有人要租那個地方,太難 用了。」

但一上來,映入眼簾的是夏目漱石的舊版 全集,彷彿穿梭時光隧道。「光靠著書籍 和古道具的氛圍,就帶你到另外一個不同 的時代去。」回想起來,李清志依然讚 嘆。

「過去,老屋新生常常就是開咖啡店。可 是它這個又不一樣,它賣冰淇淋,又呈現 出不同的特點。進到這個空間裡,體驗是 非常新奇的。」

房子成為了連結過去與現代的重要場所, 讓當代人可以親身複習一個時代。

「他們最近還開始出早餐,中式的,有稀 飯,還有鮑魚。」李清志笑說,「我當時 還跟老闆開玩笑說,你們大稻埕的人,早 上都吃這麼高級,還有鮑魚啊。」

和昭和浪漫的氛圍穿梭相比,AKA caf é 更強調親身參與所帶來的感受。「這讓人 們可以感受到迪化街昔日的生活方式與文 化,這才是真正的老屋新生。」這種「喚 醒記憶」的力量,正是李清志心中老屋再 生的關鍵元素。

用腳 做學問

身在教學現場,李清志觀察到新世代對於 外部世界的實際接觸,相比之下減少許 多。「他們大多活在網路世界裡,對現實 的台北、對身邊的城市與建築並不熟悉。作為教授,我常 常帶學生走出去,希望他們能更直接地接觸這座城市。」

「我常常告訴他們,你們要去自然界、去外面找材料,不 能什麼都只在店裡面買。透過這種方式,我們才能學會如 何觀察、理解生活中的質感與文化脈絡。」

實際的觀察,是城市面貌演變的基礎。「一座城市的特別 之處,並不在於其擁有許多悠久的建築,而在於它逐漸發 展出對老屋的欣賞與再利用的文化,讓人 們去了解這座城市如何變成今天的樣 子。」

「李乾朗老師曾經在介紹我的時候說,我 是用腳做學問的人。我覺得這句話很 好。」李清志又笑了,「我喜歡城市的每 個角落有不同的情景,因為這樣一來,每 個禮拜走去不同的地方都會覺得好好玩, 不會覺得無聊。」

AKA café

沙龍空間

AKA café

規劃設計單位 AKA Design Studio

營造施工單位 筑園國際設計顧問有限公司

經營管理單位 AKA Group

假如你是一百年前的富豪,

你會過著什麼樣的生活?

過去,台北大稻埕因貿易興盛,吸引了許多富商豪 門在此建立宅邸和商行。許多來自福建、廣東的商

人將財富投入此地,建造富麗堂皇的洋樓,形成了 充滿歷史和異國風情的街景。這些建築至今保留, 成為迪化街重要的文化資產,見證了台北早期的繁 榮與富庶。

民樂街上的 AKA café 所在的這棟建築,正是當 遺留下來的洋樓之一。不過,2016 年當主理人 Neo 發現它時,入口被鐵皮封住,完全看不見昔日風 華。

最初, Neo 本來是為了在附近尋找合適的倉庫,意 外發現這座隱藏在雜草和廢墟下的百年老宅。「雖 然用鐵皮封起來不怎麼好看,但是也因為它一開始 被封起來,所以保護了建築原始的外觀和空間。」 走進建築裡, Neo 驚為天人:外表由紅磚堆砌而成 的宅邸,屋內竟是巴洛克式的內裝,建築高度比多

數迪化街老宅再高 4 米,二樓由西式洋柱支撐,還 附有中央庭院。

Neo 後來才知道,原來這棟建築曾是大稻埕富商 烏隆的宅邸。

後來才知道,原來這棟建築曾是大稻埕富商郭 a

經營郭怡美商行有成的郭烏隆,曾是「大稻埕三 仙」之一,事業興旺之餘,也參與許多商業組織。

Neo 發現這座宅院時,或許是感嘆歷史與記憶的斷 裂,或許是被此宅的美與歷史震懾, Neo 決定承租 下來。而最一開始,他甚至不知道租下來之後該做 什麼。

「和在座很多人一樣,我們本身的專業是建築與空 間設計。」Neo 在頒獎典禮前的分享會說,「但在 經營這個空間的過程中,我的思維逐漸從單純的設 計轉向經營。」

「我想要的不是單純的空間對話,而是透過企劃、 經營的方式,去打造出百年前那種富裕生活的品質 跟品味。」

雖然地址在迪化街,但由於前後棟的產權歸屬問 題,AKA café 的大門不在迪化街上。但為了讓遊客 能夠沿著街區到此參訪,Neo 選擇維持民樂街的地 址。這樣的決定,也顯見 Neo 不只將這棟建築視為 一個風格空間,而是要藉此承繼過往風華的決心。

一百年前的富豪過著什麼樣的生活?這個問題的答 案比想像中複雜。為了塑造完整的體驗,AKA café

在 2020 年開業後,既有課程、音樂沙龍、為復 興 辦桌文化而設計的餐飲體驗,更曾經引入布袋戲演 出、茶道教學,再擴展到當代風行的頌缽、瑜 珈——「我們團隊希望每個月都要有一個新的想 法,新的能量,不只從空間、也從服務去設計,盡 量創造這個地方的可能性。」

「本來以為只是一個案子,結果一年延伸出十二個 案子。」

Neo 說,他相信老屋不是修好了,就維持那個修好 的模樣。「我更關注的是,如何透過我們現在的生 活調性,甚至對未來生活的定義,來提出對老屋的 新看法、新做法。」

這樣的理想,也有相應的難處:空間本身有其用途 的局限性, AKA café 的團隊經常在「復原建築 空 間的原貌」和「吻合當代活動的需求」之間來回切 換,不斷地思考空間的初衷究竟是什麼。

此刻, Neo 將這座宅邸視為一座劇場:「我希望, 所有和我們合作、策劃活動的表演者,可以得到一 個最佳的展現舞台。AKA café 的每一個房間, 都 可以像劇場的舞台般靈活多變,每個場景都能展現 不同的性格。」

透過與各項單位合作,AKA café 也在不同樓層各個 隱密包廂的空間中,打造沉浸式的體驗劇場。

「我期待這個過程中能夠激發出不同的表演者與創 作者延展的空間。」

「經過了四年半的經營,我其實還是問號一堆,不 知道未來十年我們要怎麼發展。但靈感常常在開車 過程中突然出現,出現的時候就回報給團隊⋯⋯所 以有時候對團隊很抱歉,對財務也很抱歉,財務一 天到晚跟我吵架,說錢不夠錢不夠怎麼辦。」

Neo 說這一切像工傷,但卻還是笑著:「反正就是 路就走了。走了就去好好發揮它。」

分享時,Neo 簡報中出現了一幀客人圍桌吃 飯的 照片。

「十年前,我就辦過這場辦桌文化復興的活動。那 時只是一時興起。十年之後,當時的總舖師已經退 休了,但最近我問他願不願意在 AKA café 再辦 一 次,讓我們可以用阿舍菜去切入百年老宅歷史。他 也欣然同意。」

Neo 說,這是屬於這位總舖師的創作。而他深信, 這樣的創作就是讓我們的今天與明天相連、不致斷 裂的過程。

入口設計與

通往 AKA Café 的唯一入口經過重新 設計,利用掛上燈具、招牌與門

小徑改造

簾,營造出神秘感。從入口開始的 小徑設計類似「摸乳巷」,狹窄但引導訪客逐步深 入建築內部。這條小徑不僅是物理上的通道,更象 徵著從現代走回過去的時光隧道,將外界與內部的 沉靜氣氛隔開。

牆體改造與

視覺穿透

一樓的設計中,特別拆除了一道室 內牆,以增加空間的開闊感。這一 設計允許視線在不同區域間自由穿透,增強了空間 的互動性與整體感。牆體的拆除,利用高低差錯落

方式與連接使得主廳、酒吧區和庭院之間形成自然 流動的空間佈局,達到視覺上的寬敞效果。

色彩與材質的

搭配

生態池與 景觀規劃

一樓庭院中設有一個生態池,搭配周 邊種植的台灣原生植物,也曾與園藝 景觀合作,擺放真柏盆景,為庭院增添自然生態的 美感。池水波光粼粼,陽光灑落時增強了空間的明 亮與自然氛圍,使庭院成為訪客的感官享受。

作品獲得 2024 台北老屋新生大獎 — 評審團大獎

迪化街一段

café

一樓地面使用復古的鵝黃色與

深咖啡色相間的瓷磚,牆面則 漆上暖紫色,整體風格略帶華麗但不失雅致。這樣 的搭配與空間內的巴洛克風裝潢相呼應,營造出一

種帶有歷史感且高貴的氛圍,提升了空間的美感。

電影場景保留與

三樓保留了《最好的時光》 電影的場景,特別延用了滑

滑動門設計

動軌道的木門,這些門幾乎 達到天花板的高度,能左右滑動以分隔不同空間, 同時保留隱蔽性。這樣的設計不僅實用,透過不同 的活動呼應電影中的視覺美學,將過去與現代設計 緊密結合。

地址

地址 103 台北市大同區民樂街 66 號後棟

2

昭和浪漫洗濯屋

「我們的社長是個古董收藏家,他總是相信 所有物品都會找到自己的主人。」昭和浪漫 洗濯屋的合夥創辦人 Etta 在頒獎典禮前的 分 享會上這樣說。

昭和浪漫洗濯屋前身是一間洗衣店,建築已有九十 年的歷史。2022 年,團隊在迪化街偶然走訪, 突 然想起二十年前很喜歡這一區的另一間角屋,便抱 著試試看的心態請房仲聯絡了安西街 3 號的屋主, 開始了這段奇妙的合作之旅。

這棟建築的屋主是一對年長的姐弟,雖然他們不再 住在這裡,但幾乎每年都會回來照顧房子,對這棟 老屋寄託著深厚的情感。他們熱情地和 Etta 的團隊 分享了這棟建築的歷史,同時,弟弟也意外發現, 自己的女兒曾經到訪過團隊在文昌街經營的昭和風 冰店「昭和浪漫冰室」。這一份微妙的熟悉感拉近 了雙方的距離,也讓這間老屋最終成為昭和浪漫洗 濯屋的所在地。

Etta 坦言,團隊並非餐飲業,也不是建築專業。 對 於這次的老屋改造計畫,他們最初只是抱著直覺, 並沒有預先規劃。「我們其實就是為了好好活下 來,每天都在為了三餐的溫飽而奔走。」Etta 說 道,在沒有完整計畫的情況下,團隊決定租下這棟 老屋,簽完租約後彼此相視而笑:「接下來該怎麼 辦?我們到底要做什麼?」

他們決定延續昭和浪漫冰室的方針,讓一樓呈現昭 和時期的氛圍。透過社長的收藏品味,店內有明星 海報、搖搖馬,以及從日本運來的販賣機殼,形塑 充滿懷舊元素的街頭風情,讓人能感受到一股輕鬆 的昭和感。雖然不是真的能使用,但成為讓客人流 連的拍攝場景。

而二樓的設計則以早期昭和風格為主,呈現一種更 安靜、更內斂的氛圍。這裡鋪設了榻榻米,書架上 擺放著夏目漱石的藏書和舊式的電視機,「我們希 望讓訪客上樓時有一種回到過去的感受,好像回到

風格餐飲空間

阿嬤家的感覺。」這些設計和空間佈置,使這個老 屋既保留了昔日的記憶,同時也藉由「吃冰」這個 行為,賦予了它嶄新的意義和情境。

外牆上的「昭和浪漫洗濯屋」招牌,團隊特意找來 了曾畫過電影海報的老師傅,用昭和風的手工字體 書寫。這些看似微小的細節,也讓老屋增添了幾分 復古的風味,使人一看便能感受到它的歷史歲月。

昭和浪漫洗濯屋作為以冰品為核心的餐飲空間,在 菜單選擇上也注重在地特色與昭和風味的融合。素

材上選用台灣當季水果,搭配迪化街特色的乾果或 梅子粉,夏天的紅心芭樂冰淇淋、冬天的草莓起司 冰淇淋,都創造出既有台灣印象、又與街區特色結 合的滋味。

昭和浪漫洗濯屋也在經營中慢慢與社區建立起了連 結。每天清晨,街區有位被團隊暱稱為「園長」的

耆老,會默默地掃除安西街公園的落葉。白髮蒼蒼 的他經常在店門前駐足。最初,園長和不少鄰居一 樣,好奇地來看這間新開的小店。彼此熟悉之後, 這位看似平凡的長輩邀請團隊到他家,才發現他牆

上掛著聖地牙哥大學的畢業證書,年輕時被送出國 深造的他早年還是某政黨大老。

園長對他們說:「很歡迎年輕人來,為這邊注入新 生命,有問題隨時找他。」

回望這些經營的歷程,Etta 在頒獎典禮前對現場 同

獲台北老屋新生大獎的得獎者們喊話:「回頭看看 我們自己,我們真的很不錯,我們真的很辛苦 喔!」

她說,她們真的沒有什麼遠大的理想。「每天想著 活下來,那有辦法去思考什麼理想呢?」即使如 此,故事仍圍繞著空間,一點一滴提煉出自己的味 道——

「對團隊來說,這間房子真的很有意義。它真的像 社長的信念一樣,在二十年後回來找到了我們。」 昭和浪漫洗濯屋

一二樓區隔設計

一樓以昭和時期後期為主題, 除了搖搖馬和明星海報,特別 引人注目的是日本運來的販賣機殼。這個販賣機的 背後機身被切除,只留下外殼作為裝飾,這種巧妙 的改造不僅節省了狹小空間,還創造出復古又趣味 的視覺效果,成為店內的亮點之一。

二樓的空間則呈現了早期昭和時期的風貌,內部安 裝了榻榻米、大書櫃、復古電視機等元素,重現了 當時的生活樣貌。特別值得一提的是整修過程中發 現的「熨馬」,這是一種傳統洗衣店常見的工具, 直接展示在空間中,讓人彷彿進入了昭和時期的生 活場景。

因為店面狹長的特性,原本只設 計外帶服務,但在裝修過程中發 現空間的可愛氛圍,因此特別硬 隔出了一個小小的座位區,儘管座位相對擁擠,卻 空間劃分 與座位區設計

窗戶與長椅改造

在側邊窗戶的改造中,團隊拆 除了封住窗戶的木板,並修復 破損的窗口,重新讓自然光進 入室內。窗邊還設置了手寫「明治牛乳」長椅,這 個自行手寫的裝置不僅呼應了店鋪的復古風格,還 成為拍照的熱門地點,吸引大量遊客駐足拍攝。

阿青的玩樂日記

城市的建築面貌不應該只

服務於一個群體,

它應該是多面向的,也應該具有 包容不同需求的能力。

葉家 源 委員專 訪

許多人不知道的是,身為公務員,「生活單純」 不只是一種選擇,也是倫理與法規的限制。

「我們的生活不能太複雜,下班後也不太適合參加太多元 的活動。」葉家源說,「所以,我的日常很規律也很單 純,上班下班、去圖書館看書、偶爾帶孩子去看表演。」

這樣的日常,使他接觸的場域大多是功能明確、規範嚴格 的公共空間,而這些空間特性也映襯了個人身份與所在場 景之間的關係。

對這份關係的切身體悟,使葉家源在評審時特別關注空間 樣態如何展現不同群體的能量。「評審過程中,讓我大開 眼界的是社會各個面向的人對空間想像的多樣性,」他 說,「這些多樣性,反過來呈現了我們社會的、身份的多 元。」

空間的多元展現,就是群體多元的展現。與之呼應的是, 這些作品的業主或設計者,多數懷抱著強烈的理想性,他 們關注的往往不只是經濟效益,而是如何讓這些空間能夠 對社會產生更大的影響。

對葉家源而言,這一點也隱含文化資產保存與發展之間的 矛盾。「文化資產的保存往往面臨兩難,一方面是如何保 持其文化價值,另一方面是如何讓它在經濟上可行。」

「很多時候,為了讓它在經濟上自給自足,可能會犧牲一 些文化價值;或者很容易轉型為私人的商業經營。」也因

此,如果一套營運模式能夠持續在文化資 產上維持,對葉家源特別彌足珍貴。

而除卻公務員身份,作為市民的他也同時 是這些公共空間的使用者,這些作品如何 翻轉他過往對它們的記憶,成為他評審時 的另一道思索。

疏通 人的流動

孩子唸小學的時候,葉 家源曾帶著他一起到城 市舞台看表演。如今孩子上大學了,他再 一次回到城市舞台,對建築印象和空間動 線的變化特別印象深刻。

「以前的城市舞台,空間相對封閉、昏 暗,入口設計也較為呆板。而且舞台的設 計和動線有些距離感。」葉家源回憶, 「入口就是一個直挺挺的電梯,旁邊有一 個斜坡,規劃上比較單一。」

改造後的城市舞台,入口空間擴大,建築外 觀形象上也被重新建構,入口更加開闊明 亮。外觀上,建築師期待可以改變過去單調 重複的結構,採用了比較靈活的語彙。「雖 然現勘的時候是白天,但我覺得在夜間,配 合照明的變化,又呈現出比較新穎的、都會 的色彩,彷彿是城市的情緒。」

除了建築本體,建築的外部空間也成為新亮點。「以前外 面那片樹林的區域很雜亂,而且由於地勢低窪和積水的問 題,根本無法進入裡面活動。」葉家源說。「新的設計鋪 設了木栽步道,人們可以走進去,在樹蔭下活動,甚至停 留片刻。」

城市舞台與相鄰的台北田徑場之間,兩者的連結也在新設 計中被打通。「以前城市舞台和體育場之間的界線很明 確,兩個空間幾乎是完全分開的。但建築師在兩者之間打 開了界面,讓市民無論是參加藝文活動還是體育活動,都 可以在同一片公共空間中自由流動。」

國家規格, 孵化劇團能量

若說城市舞台體現了公共空間與市民需 求之間的關係,那麼萬座曉劇場則呈現 了經營者在文化與社群上的能量。

「原本,我不知道為什麼這一座小型劇場的內部設施需要 達到國家級劇院的規格。」葉家源解釋,「聽完曉劇團的 說明,我才知道這是為了讓中小型劇團可以先行在國家劇 院等級的空間中練習和成長。」

在成長以前,必須經歷、習慣下一個層級的歷練,而曉劇 場提供這份寶貴的機會。「這種孵化器的概念,類似於音 樂圈的 live house,讓規模還沒有那麼大的團體可以為日後 登上國家劇院的舞台做準備。」

萬座曉劇場不僅接待本地的劇團,也吸引了許多國內外的 表演團體來此駐演。此外,除了硬體設施,劇場也與萬華 有趣的是,七位評審的身份與不同專 業,也一樣具有多元性與異質性。

異質想像的切片

「這些異質性的交流讓我們看到,城市的建築面貌不應該 只服務於一個群體,它應該是多面向的,也應該具有包容 不同需求的能力。」

「我們期待這個獎能夠繼續接觸到各種取向不同的作品; 因為這些不同的取向,可以讓新生後老屋接觸到更多不同 喜好的群體和市民。」提升獎項的廣度,是為了提升接觸 的廣度,「這樣往後我們才有機會說服大家:老屋新生不 是只能著眼於經濟效益,在安全、社會功能和文化上都有 更多可能性。」

「我們常說,台北市的公共場域應該盡可 能維持一定的流動性,讓人來人往變得更 加自然。」葉家源強調,這不僅僅是空間 的變化,更是城市功能的重組。「一邊是 體育場,一邊是藝文場地,這兩個不同功 能的空間通過這樣的設計融為一體,提高 了市民活動時的開闊感與靈活度。」

地區的社會團體深度結盟,透過自辦節 目、專業策展,與校園或民間團體合作推 廣表演藝術。「他們經營的項目,其實遠 大於這個空間所擁有的基本條件。對我來 說,這是軟體大於硬體的典範。」

「而這份交流,對藝術領域的創作者來說 是很重要的。如果沒有這樣子生生不息、 不斷引入新概念的場域,藝術能量比較容 易受到局限,不容易有突破。」葉家源 說,「對公部門來講,這本來只是一次簡 單的文化資產再利用而已,沒想到竟然激 發出劇團和其他團體共同成長的力量。這 是讓我覺得最珍貴的。」

身為更新處的一員,看著老屋新生大獎走 過二十多年,葉家源也觀察到時代的軌 跡。「以前對於一些福利設施,市民的觀 感可能不一定正向。但隨著社會結構的變 化,我們對於日照、托幼等社會設施的接 受度越來越高。」他想像,這些設施的設 立可以和老屋新生的概念彼此結合,讓老 屋在提供安全、舒適的生活空間的同時, 也能滿足現代社會的需求。

建築新生的方向,就是價值觀演進的方 向。對葉家源而言,這個在當下頒佈的 獎,也暗示著未來。

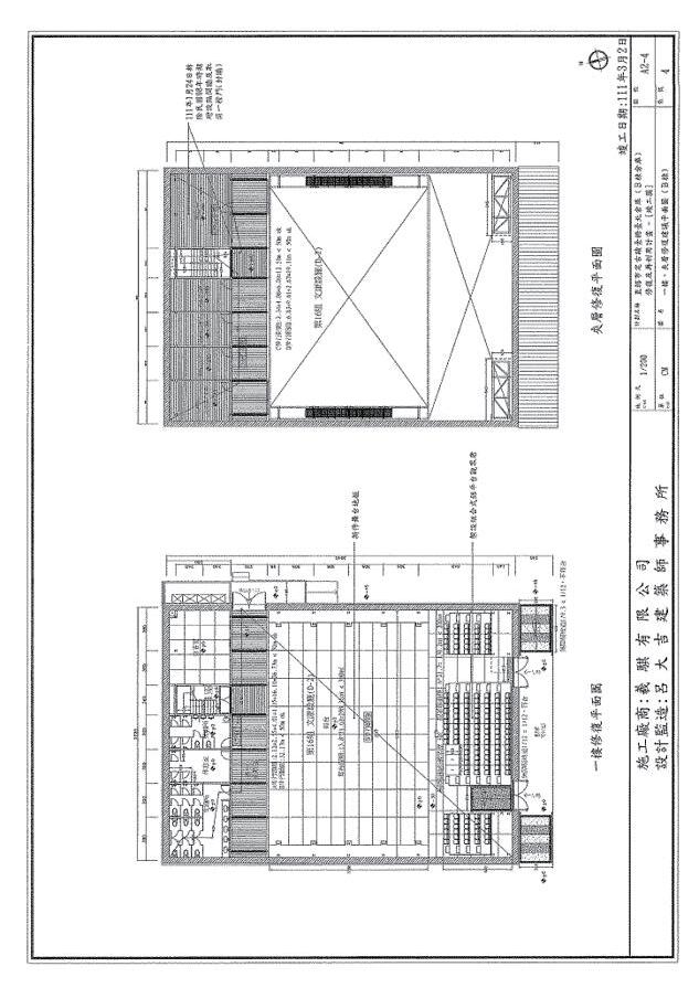
萬座曉劇場由曉劇場經營,是台灣唯一一個由 民間演藝團體自籌資金來維護的市定古蹟。

作為一個在地劇團,曉劇場在萬華已有十五年的歷 史,對這片土地充滿了深切的情感。2019 年, 當 團隊得知這個空間對外招標時,便毅然決定參與。

這棟建築原是日治時期建造的糖業倉庫,見證了台 灣蔗糖產業的興衰,成為了珍貴的文化遺產;劇團 透過台北市文化局的老房子文化運動,正式開始了 營運這個空間的挑戰。

然而,承接這樣的計畫並不簡單。計畫條件中除了 營運,還包括詳細的歷史調研、修復計畫的制定, 甚至還要承擔後續的管理與維護責任。在漫長的修 復過程中,萬座曉劇場在過程中經歷了消防設備更 新、防水施作、結構修補等技術挑戰,並與各方專 家協調合作,力求在遵循文化資產保存法的同時, 打造符合現代展演需求的專業空間。

萬座曉劇場

規劃設計與經營管理單位 曉劇場

規劃設計與營造施工單位 呂大吉建築師事務所

萬座曉劇場

萬座曉劇場 劇團基地空間

「這些都是作為一個劇團,原先夢想擁有一個專屬 空間時所未曾想到的挑戰。」頒獎典禮前的分享 中,曉劇場的行政總監葉育伶回憶道,「最初預計 六個月能完成的準備,最終歷經三年才真正走到開

幕的那一天。」過程中,曉劇場得到了呂大吉建築 師的協助,終於在 2022 年順利啟動萬座曉劇場。

曉劇場的目標,是讓這裡成為萬華的藝文基地。萬 華歷來經常被外界賦予各種負面標籤,但曉劇場在 這裡生活、創作,與街友和性工作者有過深入的訪 談和交流,也持續與在地組織連結。「我們希望透 過戲劇的演出吸引更多觀眾到這裡,也希望藉由創 作題材的設計,讓更多人進一步了解萬華、改變對 萬華的刻板印象。」

為此,曉劇場推行定目劇演出,以每兩到三周為頻

率,這在台灣是極少見的模式。同時,曉劇場也持 續推動社區的藝文活動計畫、青年藝術家培育,並 將萬座曉劇場開放給其他演藝團隊進行演出和創作 使用。

「對我們而言,經營萬座曉劇場不僅僅是管理一個 空間。」因為長期進駐萬華,曉劇場擁有組織周邊 場地和資源的思維,例如每年四月的「艋舺國際舞 蹈節」三天活動涵蓋近 80 場演出,不僅連結了 新 富町文化市場、剝皮寮等在地文創場域,還串連了 包括華江整宅在內的 16 個特色空間,讓舞蹈展 演

可以跨越舞台的藩籬,與觀眾進行互動。

自開幕以來,曉劇場每年都舉辦約 30 檔節目, 累 積了超過兩萬席次的觀眾數量。並與不同的駐村藝 術家及國際組織合作,讓曉劇場成為一個具有在地 特色的交流地。

這些數字雖然亮眼,但真正令葉育伶感動的,是社 區的支持與認同。

「曉劇場每年都會參加萬華在地舉辦的甘蔗祭。今

年,社區的耆老對我說:妳現在也算在地的了。」

這句話對葉育伶而言意義非凡:「這代表我們真正 融入了萬華,成為這個社區的一部分。」

她最印象深刻的場景,是曉劇場某次舉辦戶外演出 的時候。有個長輩從家裡出來倒垃圾,看到演出, 好奇地問曉劇場在表演什麼。工作人員解釋之後, 她說:「好,我等一下倒完垃圾來看。」

長輩拖著椅子,坐在華江整宅的橋下,靜靜地欣賞 舞蹈表演。「這樣真誠的互動,讓我們覺得作品是 有力量的,也是支撐我們繼續前行的重要動力。」

葉育伶說,曉劇場能夠透過老屋新生的獎項被更多 人看到,感到非常榮幸。她更希望藉此機會,讓表 演同業了解到演藝團隊真的非常需要一個專屬的創 作空間,以培育自身的創作。

她鼓勵更多團隊去尋找並活化那些閒置的空間。

「雖然經營這樣的場館在成本上遠超一部戲的製作 費,但從長遠來看,它為劇團的未來創造了更廣闊 的可能。」

國家級 舞台空間規格

舞台,具備大規模表演的需求。舞台採用木板結 構,具備足夠的彈性來支持舞蹈節目的需求,並同 時能承受戲劇硬景搭建所需的重量。防焰黑膠地板 的鋪設滿足大部分表演、排練的需求,並且減少表 演團隊進場鋪設地板所需的人力與時間。這樣的設 計使萬座曉劇場能夠適應多樣化的演出形式,並成 為中小型劇團測試大舞台設備與表演的場所。

靈活的 觀眾席設置

些座椅為活動式設計,可根據演出需求靈活調整, 甚至可以將觀眾席設置於舞台上,增強使用的多樣 性。此觀眾席系統不僅提升觀賞體驗,讓每位觀眾 都能擁有良好的視線,還能快速拆卸、重新組裝, 極大地提高了場館的多用途性和可操作性。

為了提供表演團隊舒適的創 作和準備空間,劇場進行了 後台區域的全面整修。設置 了化妝間、淋浴間等必要設施,讓演員能在此進行 休息與準備。此外,二樓的辦公空間和藝術家工作 室也經過重新設計,提供藝術家駐村創作的場地, 並設立藝術沙龍空間,促進藝術家間的交流,提升

萬座曉劇場與萬華在地 團體緊密合作,積極推 動地方藝術與文化的發 展。透過每年舉辦的艋舺國際舞蹈節,劇場串聯了 多個社區空間與藝文場地,與在地商家、學校及文 化組織建立了長期合作關係。曉劇場也與社區學校 共同開設校園藝術推廣活動,將表演藝術深植於地 方,讓劇場成為萬華社區文化交流的重要平台。這 種模式不僅促進了當地藝文活動的蓬勃發展,還加

城市舞台

莫國箴說,他的團隊是北歐實用美學的篤信 者,甚至可以說是瘋狂的堅持者。

「北歐和台灣很像。」他解釋,「一樣是小國寡民的 環境,是高知識份子的輸出國。因為環境條件的嚴 苛,所有事情都不該多作贅飾,而是順著環境的需求 產生很多形式。」

這樣的理解,在城市舞台這樣的公共工程中似乎更被 彰顯:「大家提到公共工程,總會想到那是一種高

CP 值的代名詞,常常是用低總價、低單價來達到高 品質、高性能,也就是說,錢可以做到的事情要做兩 倍,錢不能做到的事情也要做出來。這是一種挑戰, 也是一種使命。」

對莫國箴團隊來說,城市舞台的建築十分有趣:建築

體由一個三角形加上一個正方形構成,自 1983 年啟

用以來已經走過四十多年,未來更將繼續被使用。作 為建築師,莫國箴思考的是如何讓這樣的建築在每一 個時代都能「活著」,讓使用者在當下的時空裡,感 受到它的存在與價值。

「城市舞台」原名「市民活動中心」,經歷了多次整 修,於 2003 年更名為「城市舞台」。這次更新,團 隊著重於建築物外觀、室內設備及戶外景觀的全面提 升,目的是在保持原建築風貌的同時,增強其在周邊 環境中的辨識度和使用功能。

在外觀設計上,「城市舞台」的建築物立面重新採用 了幾何造型的格狀金屬板,呈現出舞台走位的動感概 念。這種設計不僅使建築物在八德路與敦化北路交會 處脫穎而出,更成為區域內的文化亮點。夜間,建築 物外牆設有燈光系統,以流動的光影呼應「歲月流 金」的主題,讓城市舞台在夜色中熠熠生輝。

城市舞台

規劃設計單位 莫國箴建築師事務所 莫國箴建築師

營造施工單位 應州工程有限公司、嘉隆國際有限公司、 平安集成股份有限公司、明立科技有限公司

聲學工程單位 歐亞室內裝修工程有限公司

經營管理單位 臺北市藝文推廣處

除了建築本體,前方廣場的景觀設計同樣注重與周 邊環境的融合。團隊取消了原有的樓梯設置,取而 代之的是一系列的緩坡和草坡,並於廣場中央種植 樹木,營造出更為開闊和友善的步行環境。這一設 計使觀眾及居民行走其中時,不僅感受到通行的便 利,更能體會自然景觀隨季節變遷的美麗。

戶外空間上,城市舞台設置了多個全日開放的景觀 設施,包括「蔭迴廊」、「梢道」及「茵丘」,這 些設施不僅提升了整體場域的開放度,還增添了社 區友善度,成為周邊居民日常休憩的好去處。整體 的空調、機電、給排水及消防系統也得以全面更 新,不僅延長了建築使用壽命,也符合環保節能的 趨勢。

「公共工程的實踐有它的挑戰,這次做防水、隔音 還有外觀的修飾,很多都是必須用有限的預算來達 到最好的效果。」莫國箴說,「二十年來,我們團 隊可以很得意地說我們從來不曾 delay,也不曾 爆 預算。我們的設計不會花俏,但必須經得起時間的 考驗,每一筆錢都花完以後,都不必擔心將來檢調 單位來找上我們。」

他笑說,一個好的案子,通常建築師和業主的感情 就不會太好。「你不會因為這個案子成為業主的朋 友,因為有太多理念需要堅持。這不是為了表現我 比較厲害,而是因為設計需要有一條清晰的理念去 堅持。」

而這份理念,也並不只是關於自己,「我們要做 的,是讓每一個進到這裡的使用者都覺得:對,這 就是屬於我們的建築。」

城市舞台的基地位於城

基地特徵爬梳

更新室內劇場的空間

市中心,周邊環境複雜 且人流密集,因此在改

造過程中特別注重與周圍環境的互動。基地的地形 特徵使得設計團隊必須精準調整建築結構,包括基 座的穩固處理和排水系統的更新,以適應現代需

求。這些技術上的調整確保了建築能夠長期穩定使 用,以及劇場內部舞台演出設備全面更新,包含燈 光、音響、聲學及演出補助機械設備昇降吊桿、昇 降舞台版等,接軌世界等級舞台技術。

立面 光流設計

上的大面積玻璃和穿孔金屬板,巧妙地引入自然 光,同時避免強烈的陽光直射。這種光流設計不僅 提升了建築的美觀,還有效改善了內部採光條件, 提升使用者的舒適感。

戶外景觀空間 的規劃

外圍的景觀空間規劃是一大亮 點,團隊在戶外空間中融入現

代化的綠化設計,通過步道和

小型露天座位區,創造一個與建築相連的公共空 間。這些設計讓市民能夠在戶外享受綠意環境的同 時,感受建築物的文化氛圍,成為一個集社交、休 閒與文化體驗於一體的場所。

作品獲得 2024 台北老屋新生大獎 — BEST 10

空間,並不只是功能性的堆疊。

更不是形式美學的畫紙。空間設計,是以使用機 能為根本,形式美學服膺於機能。充分回應使用 機能的美學實現,是設計者的最大挑戰。

「今天,我們經常看到建築被視為一個大型雕塑。」談起這次大 獎的評選基準,陳育貞首先表達自己對形式美學凌駕使用機能的 擔憂,「在台灣,近二、三十年來,這個現象特別明顯:多數建 築獎項皆反覆凸顯形式美學,設計者為此窮盡心力,忽略且弱化 了對使用、經營的掌握力道。不僅建築外觀如此,內部格局和裝 修也有相同的困境。」

「事實上,建築的原初目的是在滿足使用機能,也就是建築的 『使用性價值』。隨著時間推移,舊建築逐漸揉合社會、歷史發 展,而衍生情感連結,也就是人們對老建築的集體記憶,它凸顯 某個時代、人群的生存經驗、集體價值,這即是建築的『象徵性 價值』。所以,象徵性價值是隨附生成的,它的基礎仍是使用 性、機能性。」

一言蔽之,「建築的基本價值,是使用性、機能性、實用性。」 陳育貞說。

也因此,此次評選她十分明確地以兩個方針作為基準:一是建築 物本身是否吻合使用者的功能性(使用機能)需求,而,從功能性 出發的設計,如何產出與之相應的美學?二是經營者是用什麼方 式來經營,以維繫空間和使用者的情感連結,乃至孕育可持續的 共創新力。

超越空間形式的

集體共榮 - 無形資產

在這個脈絡下,北一女光復樓作為 一棟將繼續由師生使用的建築,漂 亮地呈現出空間如何影響使用者的 行為與認同。

這是一個文化資產保存修復的案例,改造團隊面臨雙重挑戰,亦 即,如何保留建築歷史、彰顯象徵性價值,同時又滿足當代使 用。一方面,文化資產的修復有其嚴格規範與限制,必須遵守特 定修復工法,保留原結構、構造、材料和細節形式;另方面,如 何在保存規範之下進行適度調整,以滿足當代校園生活需求,讓 師生能獲得充分的利用?後者,是設計者特別琢磨的課題。

一走進建築,便開啟「自導」模式。

陳育貞

委員專訪

難以複製的機能美

北一女光復樓平常並不對外開放,作品 呈現更多的是校園內部的連結。與之相 對的,玉成戲院的活化則更體現了建築的功能轉型與使用者社群 的連結,以及促進可持續共創的社會性。

提醒恰如其份地善加運用,是比大肆裝修、擦 脂抹粉要好。」

這座隱藏在沒落街區的老戲院,經過主理人的巧思與大量手工改 造,轉型為專業的錄音工作室。令人驚豔的是,作品不僅保留了 戲院建築的結構和格局,更讓原本專為戲院打造的空間與動線, 有了巨大的功能轉換,而全然貼合專業錄音的特殊需求。

陳育貞說「走進這棟建築,第一眼毫不起眼,細看之下驚嘆不 已。」

此外,保留戲院建築的原滋味,在維持老戲院 空間氣質之外,更另有引人入勝之處。例如, 「沿著環廊漫步,享受甬道般的包被感,時而 穿過小窗、看見老舊的街道。彷彿進入時光隧 道,有內外的連結、有今昔的對話;無需再多 裝飾,只放心讓寧靜帶領,收放、節奏感都非 常好。」陳育貞說,「經由環廊的洗禮、沉 澱,再進到風格獨特的錄音間;一場美好的樂 音即將開始製造。」

連結教室的走廊,不再是往日僅供行走的流動 空間,而添增了可駐可憩、動靜皆宜的妙處。

這偌長的半戶外空間,透過地坪、色澤和細緻 安排的解說資訊,巧妙融合了門廊、轉角、梯 間與教室入口,讓行進中的駐足、交談、乃至 交流,皆得安妥。「這些轉角空間的設計非常 細膩,既不喧賓奪主,又能提供多種類的活動 使用,還讓整棟建築的動線更流暢了。」

美呆的二樓長廊,吸引了所有評審的目光。

登上二樓,長廊柱列和拱窗的節奏感,在柔和 燈光和窗外樹影的襯托下,格外美麗。細看還 有材質樸素、工法細膩的封窗,和窗櫺下的邊 櫃,不但為長廊添增幾許層次感,更滿足教學 必要的儲置需求。「這已經不是一條單純的走 廊了。這個封閉在二樓、原本用來連結十多間 教室的長廊,在修復之後,變成一個多功能的 學習場所。」漫步廊間,可以想像師生們自在 地倚靠櫃邊、隨手筆記,時而欣賞窗外樹影, 或而靜思、交流。

「燈具的選擇、燈光的運用都很精妙,無論是 自然光還是人工照明,都和建築、構造形成曼 妙和諧的對話。」

這棟建築雖以形式保存為起點,卻超越形式保 存、妥切滿足了當代的使用需求,並成就高度 的美感。

值得一提的是,空間改善過程融合了師生、校 友的參與。多元的心聲,除了回饋於空間方 案,更持續在校園裡的導覽解說和培 力。「一 起讓校園空間變得更好,為師生帶來無比的榮 譽感,這種榮譽感深入人心,是最難得的無形 資產。」

有別於當代主流的合成混音,玉成戲院錄音室的「同步錄音」既 有對古典錄音技術和音質的執著,更戮力於培養錄音同好和聽 眾。而這座老戲院,正恰如其份的承載著這一份理想,在原汁原 味的建築體內,展現多元豐富的使用樣態,於戲院關燈多年之後 開啟新的篇章。

由於錄音室音響效果的要求格外嚴苛,以致隔音工程往往主導空 間品質;而玉成錄音室第一個令人叫絕的空間之美,即是運用回 收木料,以榫接、純手工所打造的整套錄音間。它是主理人整合 自身經驗和專家意見,用心費時、點滴打造而成。作為同步錄音 的演奏、收音現場,這裡經常聚集多種樂器和人聲,一起追求、 製造多元表現的諧和樂音,那是多麼美麗的風景。

於是,我們便更能體會主理人以建築原滋味示人的用意。包含: 灰撲撲大牆面主導的外觀、大廳殘留的災後水痕,以及,小窗參 次、氛圍特殊的環廊,長長窄梯通往挑高的二樓樓板,和隱藏在 二樓的數個獨立工作間…。「這些彷彿秘密基地的特殊空間,在 主理人的細緻安排之下,以極樸素的原樣、裝入最合適的用途, 每個視角、每個角落都能感受使用的溫度和實用之美。這個 案例

這個改造案例,「不只在改善空間的使用機 能,更展現主理人的實用美學。」陳育貞說, 「保留原味,並不純然要留下『漂亮的老 舊』,而是對『場所精神』的體認、對時代歷 史的認同。」凡此,為這座老建築賦予不可替 代、難以複製的美學價值。

「玉成堅持『同步錄音』的關鍵在於『同 步』。那就像合唱,雖然也可以在『分部』錄 音之後再做機械調控、合成,但人們仍寧願享 受聚在一起唱歌的臨場感、和及時的共鳴。玉 成追求的,或許就是這種臨場的共鳴,那種, 群聚共作、追求調和之美。其中的人的溫度, 會在每一次激盪不一樣的美質、火花。」

清晰的價值堅持,明確的經營目標,讓玉成 戲院吸引無數台灣樂團。主理人的改造,不 只為建築注入了新的生命,也為音樂社群帶 來活力 。

重視當代意義

這兩件作品,深刻體現了陳育貞的評審觀 點:服從於功能性價值,在滿足使用機能的 同時,調和相應的美學表現。美學要服膺於功能;設計,是在功 能與美學之間找到平衡。

「好設計的要件,是對限制條件的謙卑態度。面對有限經費與既 定基地,設計者縱有諸多理想,仍應以機能滿足為先。形式與美 學的追求,不能凌駕於使用與經營。」陳育貞說,「設計的能力 與創造力,是能直對種種限制、尊重使用需求,在滿足機能需求 的前提下,摸索出一種相應的、針對性的美學。」 評審結束之後,陳育貞仍在思考著,是否有機會透過政策的彈性 或適度調整,讓類似玉成戲院這樣的空間得以長存。

「玉成戲院位於一個即將面臨都市更新的區 域。都市更新是不可避免的趨勢,玉成最終也 會被納入這個進程中,但我希望都更過程能更 重視社會與文化價值。」

「玉成錄音室之珍貴,已超越了老戲院的保 存,而更在於,錄音室經營的實驗性、在當代 音樂領域的獨特性和社會影響,凡此,彰顯多 層面的文化價值。」

老屋新生之「老」是其價值所在,而老屋新生 之「新」也是。陳育貞對作品未來的思考,這 樣提醒我們。

玉成戲院錄音室 錄音空間

規劃設計與經營管理單位 玉成戲院錄音室

Andy 還記得,他第一眼看見玉成戲院時, 注意到的是它的售票口。

廳,最高可容納六百多人。曾經,這間電影院是南 港人的回憶,然而在 2001 年納莉風災,戲院損 失 慘重,長期歇業。

Andy 注意到戲院票口的時候,玉成已經荒廢整 整 十五年。

被票口吸引,進入空間一探究竟的 Andy,驚喜 地 發現這裡非常適合開始他的夢想:戲院原先就有 6 米挑高的設計,十分適合錄音使用;原先作為觀眾 席的大空間,也吻合樂團樂手同步錄音的需求。

在錄音製作上,同步錄音指的是樂團成員同時演奏 並錄製各自的聲部,而不是分開錄製不同樂器再合 成。這種錄音方式能捕捉到樂手之間的即時互動、 即興創作,以及現場感,讓錄製的音樂更具張力和 真實感。

相較於分軌錄音,同步錄音的技術挑戰更大,因為 每個樂器的聲音需要獨立分離,且避免不同聲部之 間的聲音混入彼此的麥克風中。通常,錄音室會為 每個樂手配置專用麥克風、隔音板,甚至將樂手放 置於不同房間來降低聲音互相干擾。

讓玉成戲院變身為玉成戲院錄音室,最讓 Andy 費 心的,正是隔音、隔間上的工夫。

由於預算拮据,團隊以大量 DIY 的手工進行空間的 改造。「小時候我在農場長大,我爸教會我非常多 手工改造建築的方法,而且也差不多是在這樣的預 算規模上進行。」Andy 在頒獎典禮前的分享說 , 「在美國的時候,我的專業就是音響工程,所以我 對於空間上需要哪些設計很熟悉。問題在於如何把 錄音上的思維用雙手實踐。」

沒有錢,所以初期的拆除自己動手拆,拆了一兩個

月。夥伴 Dolly 分享,由於預算有限,沒辦法統 包 整座戲院的改造,他們只能要改地板時找地板團 隊、要做隔間時找隔間團隊,兵來將擋,隨機應 變。

「也因為這樣,我們得以在每個空間中慢慢發想, 逐步探索出最適合的用途。」Dolly 說,「過程 中 激發了許多靈感,很多規劃都是在一開始完全沒有 預料到的。」

沒有預先規劃的限制,因此戲院中許多原有的結 構、裝潢被保留下來,成為錄音室的細節;Andy 初見的戲院售票口,成為復古風格的錄音室入口; 在建築中意外發現的古董放映機、佈告欄都被保 留,而完成後的錄音空間也以戲院原有的金廳和銀 廳命名,使空間不只有聲響上的專業功能,也與懷 舊元素相結合。

玉成戲院錄音室

「其實我們到現在,有一些地方都還在修,每天都 很汲汲營營地希望找到方法在台北生存下來。」

玉成戲院錄音室於 2017 年中開始試營運,並逐 步 成為台灣獨立音樂圈的聖地。開業以來,它與超過 兩百組國內外音樂人合作,錄製了無數專業作品。 此刻,它們不只經營錄音室,也同時開放演出、展

b 如今,戲院二樓的原放映室則被改造成混音室,專 用於混音、音樂製作、錄音返修、聲音設計與合 成、後期製作、監聽及評估等用途。二樓的儲藏室 則被改建成小型錄音室,專注於小規模人聲和樂器 的聲音錄製。「在台灣,如果要做專業的隔音工 程,造價非常昂貴。所以我們自己動手在錄音室的 每一面牆做了三到四層的隔音設計,導致工期拉得 相當長。」Dolly 說,靠著 Andy 的聲響知識,DI Y 的理念在改造過程中發揮得淋漓盡致,但背後是現 實問題的傾軋與妥協:

覽、課程等活動。除此之外,玉成也有了自己的 音樂品牌「CINEMAPHONIC」——無論音樂人或 樂迷,一定都曾在 CINEMAPHONIC 的 YouTube 頻 道上看過以現場演出的形式呈現的 live sessio n 影 片,呈現了台灣音樂的另一種場景。

而這本就是 Andy 的願望:將台灣的好聲音傳到 世

界各地。在本屆老屋新生大獎中,玉成戲院獲頒 評審團大獎,典禮上,Dolly 接過獎座,感慨 地 說:「我們合作的音樂人中,許多都拿過金曲和 金音獎,這次終於輪到我們自己得獎了。」

Andy 的夢,走得比當初更遠 —他不只打造了 一 間屬於自己的錄音室,他打造了一間屬於許許多 多音樂人的錄音室。

d

戲院高挑

空間運用

利用戲院原有的 6 米高挑空間設計 同 步錄音空間,這種設計不僅提供了更 大的聲音可塑性,還能容納多達數名 樂手進行同步錄音,這對於大型樂團、合唱團或管 弦樂團等需要多軌道錄音的場合尤為重要,為台灣 音樂產業提供了稀有的錄音環境。

地板與

隔間工程

戲院原有的斜坡地板被整平,這不僅 使空間更適合現代化錄音需求,還提 升了整體的實用性。此外,透過隔間 工程,錄音室被劃分成適合不同錄音功能的空間, 例如大型錄音室、小型錄音室、混音室等,這些空

間皆經過精確設計,以符合不同的聲學需求。

聲音反射與

消音設計

多層隔音牆

牆面採用了三至四層的隔音處理, 確保錄音過程中不會受到外界噪音 干擾,也能防止聲音外洩,這在錄 音品質上尤為重要,尤其是當多位樂手或歌手同時 進行錄音時,確保各自聲音的獨立性。

除了隔音牆之外,空間還進行了聲 音反射處理,採用大量的消音板以 控制聲音在空間中的反射和吸收,

進一步優化了聲場環境,這對錄音過程中的聲音品 質控制至關重要。

作品獲得 2024 台北老屋新生大獎 — 評審團大獎

市定古蹟北一女中光復樓

學校空間

「如果要用一句話形容這棟建築,我們覺得

它像是一位氣質出眾的優雅長者,目送一代 一代北一女學生迎向她們的未來。」 a

林雅萍建築師在頒獎典禮前分享會的這句話,不只 是浪漫的比喻,也是實際面對古蹟建築的思索:北 一女光復樓修復,最早追溯到十三年前的文化資產 修復再利用計畫。當時,北一女校友會自主啟動了

這項古蹟修復專案,並於 2010 年開始了古蹟調 查 與研究。

十三年來,何黛雯林雅萍建築師事務所也協助計畫

爭取修復預算,並於 2018 年啟動光復樓古蹟建 築 的修復設計。面對古蹟,建築團隊所面臨的挑戰不 僅僅是技術層面的困難,還包含如何讓它符合現代

教育需求,同時保存其歷史的價值特徵與痕跡。

古蹟復興的價值,不只在建築歷史上,也在一代代

曾於這棟樓度過青春的學生心中,作為共同的經驗 回憶,也是許多學姊學妹們情感的共同載體。

自 1933 年建成以來,光復樓歷經了數次增建與 改

造,尤其是 1964 年學生人數增多而加建四樓, 這 使得建築物在結構上面臨了許多挑戰。在 2002 年 的結構檢測報告中,結構技師建議拆除四樓的增 建,在 2010 年恢復至原有的三層結構。

建築團隊自此接手,格外注意建築的細節處理。例 如樓內會議室中留有日治時期初建時的典雅木製腰 板與通氣孔;原為音樂教室的第二會議室及活化教 室,留有為了教學需求而設計的隔音牆面裝飾與通 氣孔;更細緻處,還有各種形式的外牆通氣口鑄鐵 花飾與洩水裝置、樓梯扶手泥作與鑄鐵花飾裝飾的 細節修復。

市定古蹟北一女中光復樓 — 一座流動的博物館

規劃設計單位 何黛雯林雅萍建築師事務所

營造施工單位 鋼成營造股份有限公司

經營管理單位 臺北市立第一女子高級中學

照明設計單位 好喆照明設計有限公司

機電設計單位 宇宸設計有限公司

結構設計單位 施忠賢結構技師事務所

在日本傳統建築中,有一被稱為「棟札」的構件, 紀錄了建築上棟日期、業主、技師建築師、承包匠 師和守護神等興修資訊與歷史沿革等內容,並放置 於建築內部的隱蔽處或重要結構位置,有助於後世 了解該建築的歷史背景與文化價值與守護。

1933 年光復樓完工時的棟札,至今也仍留在建築中。

除了外在風貌元素,建築內在歷經九十一年的使 用,累積了大量複雜的管線系統。這次改造,建築 團隊盡可能地將這些管線整理、統合,並將其巧妙 地隱藏在天花板內。建築師沒有選擇大規模拆除, 而是以最低度的介入方式處理,讓古蹟能夠在保有 原有風貌的前提下,兼顧安全性與現代化的功能。

這些規劃,結合內部裝潢與動線的安排,讓師生日 常使用的教室空間與走廊維持優雅、舒適、典雅的 氛圍。

「光復樓古蹟,透過調查研究知識系統建置、古蹟 修復設計備整工程階段以及持續的古蹟詮釋呈現的 教育推廣,逐漸實踐了『流動的博物館』的想 像。」何黛雯建築師提到,流動,正因為時間的流 動承載著校園師生們來來去去的青春記憶,透過人 們在空間的流動,妳會不斷發現藏在細節裡的美學

也是校園美感經驗;博物館,則是古蹟的現地展 示、典藏與教育推廣,流動博物館不再是去脈絡的 物件典藏,而是連結過去並走向未來的校園青春記 憶與創造。「這裡頭,有非常多具有價值特徵的位 置,我們的嘗試將每一個位置串連起來,用說故事 的方法,讓來參觀或校園師生遇見這些細節。」

「過去十年我們一直在做文資場域教育,為結合校 園教學觀摩,從調查研究古蹟價值特徵帶校園師生 走綠園藏寶圖,由建築師與事務所設計師擔任實境 解密的關主、工作坊培力等活動,讓生活於古蹟本 體的學生更理解古蹟光復樓的故事,也是引導回到 自身場域經驗的一種探尋。」

「這些十七、八歲的孩子,其實才是連結古蹟過去 和未來的種子。」

修復過程中,校友會、家長會、教師代表參與其 中,北一女校友發起募資,投入於教室設備的更 新、修復展示空間的設計等。可見曾被這位長者陪 伴的學生們並未忘卻,再三回頭,將彼此的力量再 次匯聚於這記憶的場所。

彷彿一次無聲的重逢。

c

外立面與

泥塑裝飾修復

光復樓的立面飾帶及泥塑裝飾經 過細緻修復,尤其是在車寄頂部

的帶狀泥塑和出入口雨遮的特殊 泥塑式樣,突顯出建築細部的文化價值。展現了臺 灣早期現代主義融合 Art Deco 的建築美學,也強調 了修復過程中對細節的重視。

樓梯與扶手的

構造細節

貴陽街一段

市定古蹟 北一女中光復樓

重慶南路一段

臺北市立大學

博愛校區

通氣口與

木質窗戶復原

在修復過程中,光復樓的通氣口 與木質窗戶被視為重要的建築特 徵。這些細節在修復後不僅恢復 了其原有功能,還通過精確的工法修補,使其與周 圍的現代設施協調共存,彰顯了建築的文化價值。

校園的管線系統經過全面更新, 將原本外露的管線收納至室內天 花板內,整合了燈具、空調與其 他設備,不僅提高了空間美感,還提升了建築後續 管理的便利性,讓古蹟建築與現代設施完美結合。

智能化管線

系統整合

沉浸式導覽空間

光復樓的門廳入口經過建築團隊 的規劃修復,後續由校友會團隊 募資捐贈轉化為沉浸式導覽空

間,並配合 AR 導覽系統,重現光復樓的歷史與 記 憶,讓參觀者得以透過互動敘事式影像,感受這座 古蹟的跨時代青春故事。

作品獲得 2024 台北老屋新生大獎 — 評審團大獎

光復樓的樓梯構造經過細心修

復,特別是扶手的裝飾處,通過

照明設計更凸顯了材料質感與工

藝美學。這些樓梯構件不僅符合當代安全標準,還

忠實呈現出 1933 年建造時的原貌。

有些改造從表面上看,

好像只做了40分的工 作,但其實在思考上投

入了90分的心力。

在卡爾維諾《看不見的城市》的尾聲,馬可波羅 告訴忽必烈,他已經向他訴說完所有自己所知的 城市了。這時,忽必烈提出了質疑:明明還有一 座城市從來沒有被提到。為什麼我從來沒有聽見 過你提起你故鄉的名字呢?

馬可波羅這樣回答:「每次我描述某個城市時,我其 實都是在說有關威尼斯的事情。」

卡爾維諾藉由角色馬可波羅之口,闡釋他對敘述的看 法:所謂特徵,其實是經由對比而被理解的。當訴說 者表示某地是一個很濕冷的城市,代表著他來自一個 比某地更乾燥炎熱的都市。「為了要分辨其他城市的 性質,我必須談論暗藏其後的第一個城市。對我而 言,這個城市就是威尼斯。」小說這樣寫道。

對林君安來說,一棟建築物在時間上與尺度上的對 比,恰巧可以用卡爾維諾的觀點來說明:「空間作為 歷史的一部分,空間本身也是歷史的一種載體。除了 文字以外,我們在空間裡面也經常要去閱讀這些歷 史。」

她強調,老屋新生不應該僅僅停留在形式上的翻新, 更應該是對老建築、老物件的歷史脈絡的尊重與保 留。「所謂的新生,並不是指老要被新的東西革新 掉,而是如何藉由它的存在,表現時間的痕跡。」

林君安 委員專 訪

另一方面,則在於尺度的拿捏。「舒服的空間是有尺度感 的,如何讓人進入後不會覺得壓迫,動線上的規劃吻合空 間的目的性,不讓人感覺突兀。」

她特別欣賞老布莊作為商業空間,如何保持這種舒適感。

「我覺得它非常清楚自己的定位,從門口到內部,你都能 感受到這裡在賣什麼,這是一個商業空間應該有的清晰表 達。」

這個觀點,使得林君安在評審時特別在意 那些能夠保留時間感的作品。

介入的拿捏

與老布莊的共生相比,河神的丸 子一開始並沒有得到林君安的高 分。「當我讀到它的書面資料時,覺得主理者在空間介入 上做得不夠多。」然而,在實地考察之後,林君安對這個 空間有了新的理解。「現場看過後,我發現它的介入雖然 少,但每一個設計細節都經過了深思熟慮。」

河神的丸子的設計理念,是讓老房子的原貌盡量保留,只 進行最低限度的翻新,「比方說,他們的廁所牆壁雖然貼 上新的磁磚,但在限度內依然保留了舊有的牆面,並沒有 將其完全翻新。」這樣的設計讓空間保留了原有的時間 感。「表面上看,它好像只做了 40 分的工作,但其實 它 有其思考脈絡,把資源用在刀口上。」

這種少即是多的設計理念,也體現在空間 所舉辦的展覽與活動上。「我本來覺得這 個空間有點文青、風花雪月,但後來發現 它與空間的互動非常緊密。」林君安回 憶,「其中一位手寫字藝術家,將文字直 接書寫在窗戶上,並且在天花板上懸掛布 條,這樣的安排讓展覽成為空間的一部 分,而不是獨立存在的藝術品。」

「這不是普通的白牆畫廊,這裡的作品展 示的方式,與老房子的空間產生了互動, 這點非常打動我。」

尺度的掌握

也因此,林君安在 決審階段,特別拉 出老布莊的共生這個作品向其他委員推 薦。本作品保留建築大量原始材料,尤其 是牆面和地面的石材,這些舊時代的痕跡 透過打磨、清潔等處理得到了新的生命。

「讓我很驚訝的是,當我進入這個空間 時,這些老素材的部分非常乾淨,一塵不 染。」

「有時候設計不在於做得多,而是在於如 何讓歷史的痕跡自然流露。」

除了歷史的保留,林君安在評審中也非常 在意空間的「舒適感」。一個成功的設 計,不僅要有視覺上的美感,更要讓人感 受到空間的溫暖與親和,而掌握這份親和 力的關鍵,一方面在於介入的密度,「有 些設計看起來非常精緻,但材質過於冷 峻,甚至極簡到讓人感覺疏離。」

年輪般活著

從城市的尺度,林君安特別喜歡 台北的大路與小巷的共存:只要 一個轉角,就能迅速從大尺度穿梭進小尺度的空間。」

「在城市裡面能夠適度有一些『迷宮感』,我覺得是很重 要的。」她解釋,「這種尺度變化中,為城市注入了更多 的層次感與深度。這也是我對老屋新生的一個期待,我希 望我們的城市能夠保留這種對比,而不是變得一成不 變。」

也因此,在這次的評審之後,林君安特別希望往後能夠看 到更多的大規模修繕與再造,而不只是以單一棟建築或單 個空間為主體。「像英國的建築師 Norman Foster,或 者 David Chipperfield,他們做了很多大規模的老屋新生案 , 有些甚至是建築群的整體改造,範圍擴及一整個街區。」

「他們能夠把老房子的修繕與新建築完美融合在一起,儘 管看得出哪一棟是翻新的、哪一棟是新的,依然完全融合 在一起。但這在歐洲的脈絡裡,是很自然的事情。」

「我覺得其實台灣有時候我們的夢想做得 太小。而一旦做到大規模時,反而變得有 點粗糙,整個過程像是重做了一個產 品。」林君安說,「我很期待,將來可以 看到更大規模的嘗試,而且,不只是以經 濟思維去思考的作品。」

而這些尺度上的思索,終歸回到對城市面 貌的呈現。「一個偉大的城市,你必須能 看到它不同時代的痕跡。」

或許,也正如卡爾維諾在小說中的想像: 「就像樹幹每年多加一圈年輪那樣。⋯⋯ 舊城牆連帶著舊的街區,一起擴張熒大, 在城市邊綠更廣大的地表上,維持著原有 的比例;它們環繞著比較新的街區,而這 些較新的街區也在邊緣成長,⋯⋯依此, 一環一環,直到城市的核心。」

7 河神的丸子

社群共創空間

「我們的空間才四十五坪,但辦市集的時 候,來的客人竟然可以在這邊平均待上兩個 小時,窩著不想走。」

頒獎典禮前的分享會,原典創思的總經理吳婷婷難 掩興奮,「他們都願意留下來,和創作者討論他們 的想法和理念。這樣的熱情,讓我們深受感動。」

作為一個參與式設計團隊,原典創思不只經手建築 的改造,也介入空間後續的經營。而在河神的丸子 這個案子裡,吳婷婷說:「我們有點任性,也很有 韌性」、「我們邀請了團隊裡面樂意斜槓的成員, 一起加入這裡的經營,所以後來有料理的夥伴、調 酒的夥伴、有喜歡做手作的夥伴,還有辦夏令營的 夥伴⋯⋯,我們一起玩、一起做,把這個空間打造 成我們喜愛的樣子。」

河神的丸子所在的空間位在台北邊陲,是一棟六十 年歷史的老屋。曾是市府員工宿舍的這棟屋子,空 間內保留了不少原始的建築特徵,包括木窗、磨石 子樓梯和大樹。原典創思選擇了保留這些細節,並 以最少的干預進行修繕,讓老屋的歷史痕跡與現代 生活並存。「修舊如舊,卻帶新意」的理念成為他 們在改造過程中的核心,老宿舍也逐漸蛻變成為一 個兼具懷舊與創新的、社區共創的基地。

「我們從一開始就決定,不要一口氣把房子改造到 好。」吳婷婷說,老屋翻修初期,團隊面臨了許多 困難,特別是在尋找適合的工匠時屢屢碰壁。但也 因此,過程中容納了更多參與的可能性:成員在修 繕工作上親自參與,並號召志工們一起完成了老屋 的基本修繕工作。這個過程,預示了河神的丸子往 後以人為本、串連地方的能量。

摸索這個空間會變成什麼模樣的過程,就像一場即興。

經營之初,團隊心想「吃」是最能聯繫台灣人情感 的元素,於是以社區料理活動吸引附近居民參與; 但做著做著,團隊忽然做起了社區主廚特色 便 當。當我們發現自己的舊物改造作品還不夠 成熟

時,於是我們邀請了其他創作者一起加入,讓一樓 成了多元化的選物與社會議題展示空間;而有了商

品之後,又想讓這些創作者的理念得以被陳述,所 以二樓變成了展覽、座談的場所——河神的丸子就 在這樣的概念接龍中,一步步走過長程,才成就了 如今的模樣。

這些用途,與空間的特質結合在一起:

老屋前後院,被改造成綠意盎然的社區共享空間, 這裡的設計以低維護的綠植為主,並結合當地居民 提供的植栽,形成了一個自給自足的小庭院,既作 為社區居民的交流場所,也成為日常活動的一部 分,無論是居民的物品交換區,還是戶外展覽,都 可以用這個空間為據點。

一樓的長L型吧檯提供了一個舒適的共煮、共食及 創作展示空間,促進了互動交流。此外,團隊巧妙 地利用社區回收處撿拾的鋁架、抽屜、木盒、樹枝

等廢棄物,將其製作成一樓選物空間的層板和支 架,充分體現環保再生的理念。

二樓的展演空間作為創作者分享的舞台,團隊特別

注重保留老屋原有的結構特徵,牆面刷上了平光 漆,並設置了畫軌,方便藝術家自由展示作品。這

些設計為多元議題的展覽提供了彈性,使空間成為 探討社會議題的溫床,從性別平權、環境保護、動 物保護等議題,不同的聲音都能在此激盪。

這樣的空間,醞釀了許多創意活動——與萬華在地 NGO 合作,推動「河廢料市集」,將環保、減 廢 與再生創作融入其中,吸引創作者及參與者一同投 入;「構小姐下午茶」,構小姐是老屋前院的構 樹,曾經被部分居民視為造成環境髒亂的源頭,但 團隊並沒有選擇將它砍伐,而是邀請居民一起討論 構樹的利用價值。

這些空間的設計與運營,反映了團隊「以人為本」 的理念。他們不僅關注空間的外觀與實用性,更關 注空間與社區的連結。「我們希望這裡成為一個人

人都能參與的地方,讓每個人都能夠在這裡找到歸屬

而對吳婷婷來說,這一切的原點,是「好玩」。

河神的丸子

規劃設計、營造施工與經營管理單位 原典創思規劃顧問有限公司 規劃設計與營造施工單位 冰斗喫甜甜點工作室、蝸牛屋工作室、同行食旅 感,並且通過空間,與更多人建立起聯繫。」

「『河神』,不只是個名字,更是台語『好玩 hó-sńg』的最佳寫照!我們的空間不大,但我們用時 間創造無限可能,讓超過三十個品牌都能在為期三天 的市集裡,盡情展現獨特魅力。」

「我們用好玩的方式,去嘗試自己可以為在地、為人 群帶來什麼改變。」之所以興奮,是因為自己也玩得 開心。河神的丸子總也不老,因為許多人的笑容。

b

保留 原有元素

該建築保留了許多六十年老屋的元 素,如磨石子樓梯、木窗、磁磚等, 並以「修舊如舊」的理念強化結構, 使老屋的歷史痕跡得以延續。同時,運用簡單的 佈置和主題設計,為空間注入現代創意,讓老建 築不僅保留了其原貌,更具備新的活力。

庭院設計與 社區互動

前後院皆以低維護的植栽設計,營 造出綠意盎然的環境。透過塑膠牛 奶箱等簡單物件,前院變成社區居 民交換物品的場域,後院則設置社會議題旗幟, 成為公共議題討論與展示的平台,促進了社區居 民之間的互動與交流。

河神的丸子 詔安街

水源快速道路

中正河濱網球場

環保理念的運用

建築內部裝修中使用社區回收 的廢棄物,例如用鋁架、木盒、廢枝等製作層 板,這些再生材料體現了環保再生的理念,讓空 間具備更深的社會與環境意義。

展演空間經營

該建築的二樓保留部分水泥地 面,並重新鋪設木地板,兼具歷史風貌與現代實 用功能。此外,牆面簡約設計為藝術展示提供了 彈性,並配有畫軌,便於藝術家自由懸掛作品。

作品獲得 2024 台北老屋新生大獎 — BEST 10

老布莊的共生 商業空間

作為台灣自創的登山服飾品牌與戶外品牌, kawas在四年前自網路創始,強調崇尚自然、 與環境共好的理念。

根據季節和展品需求進行調整,成為空間內的亮 點設計。「我們置入的這些構建單元,隨時可以 被拆除,在另外一個空間去做組合。」設計師

當時,kawas 的辦公室就是由力口建築規劃設計 四年過去,kawas 在迪化街經營第一家實體門市, 他們找到的空間,是一處位在小巷弄內的老布 莊。

長期以來,力口建築經手無數老屋翻修案,橫跨 公共建設與私人工程。這回與過去合作過的品牌 再次攜手,彼此互有認同基礎,在設計思維上有 了更完整的參與。

「大家都知道,老屋翻修是非常花錢的。但這個 案子預算不是很高。我們就把目光放在如何凸顯 老屋的既有的環境上。」頒獎典禮前的分享會時 設計師利培安說。

作為台北最具歷史價值的街區之一,迪化街曾有 鼎盛的布料商業活動。而 kawas 落腳的這座老 莊,空間上保留著這份雍容:「它的地板和牆 面,鋪設厚實的大理石;通往地下室的磨石子樓 梯,與地坪磨石子磚,也都還在。」

因為產業變遷,環境居住人口以年長者居多,設 計團隊希望施工過程盡量降低安全上的疑慮與居 民日常生活的打擾。綜合預算、建築原有基礎以 及周遭影響程度的考量,設計師說服業主,以 「盡量少拆」為原則,將原本好的東西整理出 來,成為這次老屋新生的執行方針。

力口建築的第一道工序,是將大理石地板和地下 室的磨石子表面重新打磨清潔,讓空間元素得以 重現。透過這樣單純處理,復原了一樓到地下室 原有的連貫、和諧質感。

內裝上,團隊選擇以模組化的實木架單元來填補 展示空間。這些模組化架構,輕輕附著在牆面 上,既保持了大理石牆體的完整性,又能靈活

。 布 地

說,這樣的設計考量讓 kawas 擁有更多展示的 彈 性,也避免了大量拆改帶來的額外成本。

在外部結構上,迪化街特有的騎樓空間也成為改 造的重點之一。街區內傳統雙拼連棟的集合住 宅,建築外觀有著簡單的線條比例,無落柱的騎 樓空間既保有通道功能,又提供鄰里間的互動空 間。團隊與空間的鄰里協調,同步更新了公共梯 廳門面,加入木質元素,以樸質自然的材質呼應 kawas 的品牌精神。

改造過程中,設計團隊特別保留了一件具象徵意 義的歷史物件 —布尺。這根布尺在過去是老布 莊丈量布料時常用的工具,如今被創意地轉化為 入口的門把,成為顧客進入店內的第一接觸點。

「每位顧客在推開店門時,觸摸到這根布尺,都

能感受到老布莊曾經的故事與記憶,」這樣的設 計,既賦予入口新的意義,也強化了整體空間的 時間感。

上述採用的工法,不只重新利用 80% 的裝修 材 料,也降低了噪音、粉塵汙染,讓施工的生命週 期對環境更加友善。

對於 kawas 這樣一個戶外品牌來說,這樣的空 間 本身也能傳達出品牌所強調的暫離都市、進入自 然的生活理念。這個店鋪空間不僅僅是商品的展 示場所,更是一個讓顧客重新思考生活與自然關 係的地方。

但對使用者來說,更具有意義的,是空間後續的 使用。

「kawas 辦過各式各樣和登山、戶外相關的活動, 鼓勵人們探索台灣的山林,包括各式各樣的講 座、攝影展甚至影展,也邀請過部落的長者分享 過去如何與環境友善相處的想法。」之前這些 活

動大多在 kawas 的辦公室裡舉行,但現在有了這個迪 化 街上的店面以及地下室的活動空間,他們可以有一個更 好的地方、吸引更多人的參與。

「空間環境的改變,其實就是日常的改變。而當你把你 的眼睛放在日常的改變,你的心中其實就種下了更大的 改變的種子。那才是老屋新生之後真正的生命。」

老布莊的軀殼,裝進追逐山林的目光。有時候,輝煌的 再現靠的不是回頭,而是望向另一個遠方。

老布莊的共生 規劃設計與營造施工單位

力口建築 / 力口室內裝修工程有限公司

經營管理單位 嘉瓦士有限公司

a

實木模組架構

室內新增了實木模組單元,採 用最小的構件輕觸於牆體,與 原有的石材牆面重疊形成新的展示牆立面。這 些模組提供了靈活多樣的陳列方式,適應不同 季節與商品的展示需求。

保留舊有地壁材料

改造過程中,盡量保留了

舊有的石材地板與牆面, 減少了不必要的拆除,這樣既降低了碳排放, 也保留了空間的歷史感。

公共梯廳 優化

舊布尺 轉化為門把 使用環境。

地下室

老布莊遺留下的舊布尺被巧妙地 轉化為入口門把,保留了歷史記 憶與空間故事,觸感溫暖並富含時間的刻痕,進 入者可感受傳統布業的過往。

針對舊有雙拼住宅的公共梯廳進行優 化,將原有的地下室入口進行調整, 不僅增進了鄰里之間的互動,還創造了更友善的

多功能空間

原本的地下室儲物空間經過改 造,增設了可調光的軌道燈和 全熱交換機,使空間得以彈性使用,作為講座或 活動場域,提升了地下室的實用性與舒適度。

作品獲得 2024 台北老屋新生大獎 — BEST 10

老布莊的共生 西寧北路

我不喜歡那種過度的復 古情懷,老屋不是用來 復刻某個年代的。

即使已在台北生活十數年,林佳育仍不覺得 自己是個台北人。

來自高雄的她,因工作到台北定居,曾在永康街一 帶生活了好幾年。那是台北最早開始老空間活化的 區域之一,許多日治時期的建築被重新利用。雖然 當時多為商業用途,但臨近的巷弄中,也保留了許 多日式宿舍的風貌。

那些風貌,成為林佳育對台北老屋景緻的第一印 象,「那一帶的模樣讓我覺得,這座城市是有一 些還滿有趣的風景可以去探索的。」

即使對這樣的城市情境並不陌生,親身參與評選 的過程依舊翻轉了她對老屋的認知,「接這個工 作之前,我不知道老屋的經營這麼艱辛。幾乎每 一個作品的屋主或店主都非常艱困,在艱困之中 堅持某個不太容易的夢想。那些艱困讓我覺得, 一定是那個夢想有足夠的價值和份量,足以 cove r 掉它所帶來的一切難題。」

建築是身軀,夢想才是魂魄。在這樣的框架下, 林佳育作為評審首先考慮的不是作品的建築美 感,而是改造者或經營者賦予的「content」。 「所謂 content,指的是一種軟性內涵,而不是 空 間的硬體表達。」比起視覺上的衝擊,她更關注 作品如何以一種功能性或企劃性的特質,鑲嵌在 城市中,豐富市民生活「非日常」的選擇。

林佳 育 委員專

捏了吻合真實且合適的尺度;二來空間裡的物件細節也 在在呼應山屋概念:室內選用了自然素材,如廢棄眷舍 遺留下來的老柳安木地板、低矮的露營椅,以及來自陽 明山庭園空間「Merci 裏山」的昭和古道具,這些元素共 同營造出一種接近自然的質樸氛圍。這些傢俱也可以根 據需求靈活變動,讓人感覺既隨性又自在。

入口處的設計,則與植栽品牌「回春植 栽 Vivify Plants」合作,將公園的綠意延 展至室內,形成充滿生機的前庭。這樣 的設計不僅將自然引入空間內,還強調 了與外部環境的共生,也再次強調空間 的開放性及與外部的連結。

「而所謂『社會責任』,我認為就展現在這份 content 如何連結各自的群眾、表達它和他們獨 特 的樣貌。」

個性,

但沒有距離

空間如何豐富城市的非日常 選擇?同時具有展覽與休憩

思維的森 ³ sunsun-museum, 以「城市山屋」的概念,在 台北市區中打造了一處轉瞬可達的心靈祕境。

「雖然台北的山不遠,但能在市中心的巷弄中找 到一個像山屋般的場所,是一種情緒上的轉換與 喘息。」林佳育說,「有趣的是,雖然店主確實 把他們的態度帶進這個空間中,細節上有很多主 人的個性,但沒有給人很難親近的感覺。」

若不是報名文件中附上了改造前的紀錄與設計 圖,鮮少人知道如今為藝文圈人士所熟悉的森 ³ 標誌性的透明玻璃店面,並不是建築原來的設 計。主理人將公寓原本的女兒牆拆除,以落地玻 璃取代。這樣的設計使得空間不再與外界隔絕, 反而引入了對面朱崙公園的綠蔭,讓人一進入這 個空間就能感受到自然的延展。這種開放設計不 僅為空間增添了綠意,還與內部的植栽相呼應, 形成一個有機的整體。

之所以不難親近,林佳育認為一來店主自身對戶 外休憩的場景非常熟悉,在空間氛圍的琢磨上拿

沉靜, 但並不固定

同樣帶有企劃性的概念,boven 雜誌圖書館將自己視為「一本 立體的雜誌」,期待可以成為 所有人靈感的場所。位在東區

巷弄中的 boven,和森 ³ 一樣予人情境轉換的可能性, 踏

進入口後穿過通往地下閱讀空間的樓梯,牆面素材、工 法刻痕的細節讓人得以立即切換體感。

主理人將原地下室空間修整得更加方正,並且設有較隱 密的儲藏空間。這樣的設計在提供開放閱讀空間的同 時,保留了隱私的角落,供需要安靜環境的人使用。讓 林佳育特別印象深刻的,是館內藉由動線與功能性區塊 的佈局,讓每一個進入空間的人,都能自然地找到屬於 自己的角落。

同樣是林佳育十分熟悉的空間,評選時 boven 也再次 讓 她驚喜。

現勘當天,主理人 Spencer 特別展示了一個位於地下 室 空間上方、可以移動的木作平台。這個平台平常作為 空

保留,

但持續成為

北上就職之前,林佳育的人生 其實還有另一段台北記憶。

「雖然我是南部人,但幼稚園是在台北唸的。」孩提時 期與家人一起住在台北,當時,連「東區」這個稱呼也 還不存在,記憶中的台北與現在非常不同。但對她來 說,老屋的「老」,並不是為了再現誰的記憶:「我不 喜歡那種過度的復古情懷,老屋不是用來復刻某個年代 的,它應該是新舊交融,有著新的創意與都是現有的結 構結合。」

「老屋新生,不是為了讓我們回到過去,而是讓這些空 間在今天,甚至未來,持續成為這座城市的一部分。」

間格局的一部分,在搬移後則擔負空氣 流通的功能,連接了一樓與地下室。 「這樣的設計讓整個空間更具連續性, 也讓人在視覺上有一種向下延伸的感 受。」林佳育認為,這不僅是實用的、 富含機動性的構想,更是一種流動的表 達。

樓梯間的鐵扶手與鐵件,以及陳列雜誌 需要的特殊角度書架,都出自退休鐵匠 師父之手。那些牆上的工藝刻痕,一道 一道以電鑽刻劃,「那些細節不只是粗 獷的表現,同時讓人覺得是一種經過深 思熟慮的設計,在粗獷與細膩之間取得 了很好的平衡。」

林佳育說,讀者所感受到的那份沉靜, 或許正是由這些細節所營造的。

如今的台北,住民多樣性極高,每個人 都擁有不同的生活方式。林佳育最在意 的,踏進這個城市的人,如何能像踏進 boven 的讀者一樣,自然地找到屬於 自 己、屬於生活不同情境的角落。而這些 經手老屋新生的建築師與店主,彷彿是 預先幫我們做夢的人。

「重點是,他們將夢打開來,與我們共 享。」她說,「這並不是每一個實現夢 想的人都可以做到的事。」

boven 雜誌圖書館

複合閱讀空間

2001 年 9 月,納莉颱風襲台。

作為氣象史上首個東北進、西南出的颱風,納台長

達 49 小時 20 分鐘,發佈 64 次警報。台北市單 日

雨量達 425 釐米,捷運直到 3 個月後才全線復駛, 更讓台北車站前的 SOGO 百貨創下連續歇業 5 天的 紀錄。

城市另一頭,東區 SOGO 百貨旁的小巷,後來成為 boven 雜誌圖書館的這個地下空間也被大水淹沒 。 原先已處在半閒置狀態的這個空間,風災後又閒置 了 15 年,直到 boven 創辦人 Spencer 找到了屋主。

自九〇年代,Spencer 就在東區走跳。他曾在頂 好 商場的淘兒音樂工作,也經手外文雜誌代理。那時 已是雜誌控的他,因為這些工作而有了雜誌圖書館 的點子。

「在淘兒的經驗,有很深的感受就是所有的專業音 樂人、創意人、導演等,都會來淘兒找靈感。」

2019 年,他接受媒體 MOT TIMES 明日誌訪問 時 說。他期待建立一個空間,成為「靈感的場所」, 讓更多人可以在收藏雜誌資料的地點,透過閱讀遇 見創意。

然而,有了點子,卻沒有立刻找到合適的空間。

如今 boven 座落的這棟老屋,本是屋齡 40 年的老舊 華廈,在閒置多年以後狀態並不理想:漏水,雜物 堆積,老鼠橫行,還有跳蚤。但正是這麽 多年的荒 涼,等待似的,讓 Spencer 有了實現夢想的緣份。

「屋主是一位低調的企業家,希望讓資產充分發揮 價值。雜誌圖書館的理念獲得她的高度認同,所以 願意以優於市場的條件讓我們承租。」在租金高昂

的東區,Spencer 有了讓夢運轉的基礎。「對我 來 說,老屋從來就不只是老屋,它是一種信念的傳 承。重點是如何找到它新的可能。」

為了讓老屋不老,改造團隊在基礎工程上就花了整 整 8 個月。

防水管線更新、地板鋪水泥,再到整理地板、牆 壁、樓梯的水泥牆、水泥樓梯與屋簷等毛胚工程。 承接改造的顧相璽建築師,大刀闊斧將閒置空間更 新,然後才開始建立理想的靈感場所。

如今,boven 入口的設計巧思,源自〈桃花 源 記〉:讀者推開門,需先走下一段樓梯,轉角後才 會看到櫃檯入口;沿著櫃檯再右轉,才見到圖書館 的全貌。「一眼看盡未免太無趣。」建築師這樣 說,並透過動線的引導,讓入館者的視野先受限再 放大,形成幽微的空間趣味。

進入圖書館的地下室空間,收藏數萬冊來自日本、 歐美的雜誌,主題橫跨建築、藝術、設計、時尚、 生活風格;而空間一樓,則以「立體雜誌」為概 念,每一面書架如一個雜誌版面,展示各種主題雜 誌選書,並舉辦各類展覽與品牌實體活動。

改造過程中,建築師團隊也注重空間細節:樓梯間 的鐵扶手、鐵件、以及陳列雜誌需要的特殊角度書

架,建築師請來退休鐵匠打造。過程中,老師傅一 再打磨樓梯扶手邊緣,說這樣摸起來手感才舒 服——這些細節不僅保留了傳統工藝的美感,還為

空間增添了一份個性。

2015 年開放以來,boven 吸引無數創意工作者前 使用。英國《Monocle》雜誌於 2017 年將 boven 為全球十大注目新創服務之一,並於 2022 年推 此處為國際旅客來到台北的必訪之地。日本建築大 師隈研吾、設計師深澤直人、佐藤卓、東京奧運藝 術總監 MIKIKO 等人也都曾造訪過 boven。

「我一直很希望,像 boven 這樣的模式,可以和 他城市、其他國家做交流,成為一種新的服務型 態。」Spencer 說,「國外來的朋友都很驚訝, 然是在台灣出現了這樣一個地方。」

在這樣的地方,硬體空間雖是骨幹,但來此的人們 所遇見的靈感、觸碰到的創意才是血肉。頒獎典禮 前的分享會,Spencer 仍像當初在唱片行打工 樣,對雜誌充滿熱情:

「我希望有更多的人可以來到這裡,然後,就像我 期許自己能做到一樣,把生活過得像雜誌一樣精 彩。」

這不僅僅是一個空間的理念,更是 Spencer 對每 個熱愛生活、追求創意的人的贈禮。

動線設計與 空間層次

boven 雜誌圖書館位於地下室, 為 無對外窗的密閉空間。設計時,建 築師透過巧妙的動線規劃來引導使 用者的體驗,讓訪客必須先經過一段樓梯,轉角 後才看到櫃台,再繼續深入才看到整個空間的全 貌。這種多層次的視野開展方式,讓空間的呈現 具有遞進感,避免一覽無遺的單調體驗。

工匠技藝細節

圖書館內部大量使用了由傳統工 匠手工製作的鐵件,這些包括樓 梯的鐵扶手和具有特殊角度的雜誌書架。這些鐵 件由已退休的老匠師親自打造,除了吻合設計師 的實用與美觀思維,還對細節有極高要求,例如 樓梯扶手的邊緣經過反覆打磨,確保手感舒適; 或者素材刻痕的呈現,在粗獷與細膩之間取得了

平衡。

植栽作為

情景轉換

為緩解空間直接面對外界街景的突 兀感,建築師在入口處特別種植了 柳樹。柳樹的搖曳姿態及其帶來的柔和光影,為 使用者在離開時提供了視覺和情感的過渡,讓空 間內外的體驗更為連貫。這一小小的綠意也為整 條巷弄增添了自然景致,成為進出圖書館的視覺 標誌。

平衡通風機能與 視覺格局的平台

地下室空間上方、可移動的 木作平台,平時作為展示區 使用,當需要促進空氣流通 時,該平台可以移動,讓地下室空間與一樓的空 氣進行交換。移動後也使視覺上能從地下室延伸 至一樓,達到連貫的效果,不僅增加了空間的開 闊感,還兼具美感巧思。

作品獲得 2024 台北老屋新生大獎 — BEST 10

森 ³ sunsun-museum

2018 年,森³ sunsun-museum 在龍江街開幕。

但故事的開始純屬意外。

「當時我的設計師朋友方序中在找辦公室,我們就

在另一個設計師朋友葉忠宜的辦公室附近找空 間。」森 ³ 共同創辦人、格式設計展策總監格 子 說,「看完這個空間之後,方序中沒多大興趣。反

而是我回去之後,很興奮地問幾個朋友說要不要把 它租下來。」

想租下這個空間,是夢想一間巷弄展覽空間的可 能:在設計圈混久了,格子知道辦一個展覽所耗費 的人力物力,有時還得夾在主辦、協辦、贊助單位 之間;有了這個地方,周邊的好朋友想辦新書發表 會、辦展覽,甚至提供給一些經濟狀況不富裕的學 生使用,「原本的想像是說,想要體驗從乙方變成

甲方的那種爽感啦。」格子在頒獎典禮前的分享會 時這樣說,隨即又澄清:「當然現實沒有那麼美 好、真的沒有那麼美好。」

a

第一階段的森 ³ ,最初的定位就是一個隱身巷弄的 美術館,一個不設限的「第三空間」。在這個階段

中,他們進行許多以設計為主題的展覽企劃,例如 蒐羅知名設計師失落作品的「Lost Files|The hidden processes in design」、呈現瑞士設計師沃夫岡・魏 因加特作品的「設計新浪潮——魏因加特字體排印 學之路」等; 此外,他們也與媒體《大誌》合作, 在空間內舉辦「讀報紙喝咖啡」活動。「聽起來很無 聊,但現在拿報紙起來讀四十分鐘是很特別的體 驗。」可以見得當時森³嘗試成為一個開放各種可能 性的展覽場域。

森 ³ sunsun-museum

規劃設計單位

營造施工單位

格式設計展策 InFormat Design Curating、 卵形 oval-graphic 平面設計工作室、WISDOM® 自在創意整合有限公司、峻億不銹鋼工程行、朝田水電工程行、 中展工程有限公司、泥作阿鴻、和楙室內裝修工程有限公司、 新睿廣告科技有限公司

但最初幾年過去,森 ³ 也面臨了一些現實問題: 展 覽與展覽之間有空窗期,來客只能在有新展覽時再 訪,而展覽的籌備總是得投入相當多的資源。「洗 頭洗了幾次之後我也發現,這樣下去恐怕母公司會 不保。」

「既然我們的初衷是推廣美學教育,那麼,有沒有 更簡單一點的方法來實現這個目標呢?」

團隊思考,在台灣,「吃」和「喝」無疑是與他人

最直接的聯繫。同時,創辦人們都很喜歡日本的 「爵士喫茶」文化,期待將這樣的氛圍引進台灣。

森 ³ 也依此轉型到第二階段,以音樂、植物、老 件 重新規劃:

空間的構造上,團隊利用了四十年老屋拆卸下來的 柳安木板;據說,只有台灣將柳安木當作平面角料 來使用,如今這些材料構築了空間的溫煦氛圍。隔 幾條巷子,就是遼寧街夜市。「我想像,大家可以 在夜市吃碗乾麵,喝口啤酒,再走幾條巷子走進 森³ 的巷弄,延續很舒適的、有情調的體驗。」

「現在,大家如果來森 ³ ,可以聽到還不錯的音 響,播放著還不錯的音樂,陪伴大家還不錯 的心

情。」格子說,後來他有個有趣的發現,有不少長 輩會穿著西裝,和伴侶一起來到這樣的空間聽音 響。「他們說,那是以前他們那個年代的休閒生 活,現在有這樣的空間他們覺得很不錯,好像回到 以前。」

意外的是,現在的森 ³ ,比起第一階段的白空間時 期在展覽實踐上有更多的彈性。「以前,大家想要 在這裡辦展覽,其實成本不低,因為要讓空間有 fu 很花錢。但如今,很多品牌進駐來辦展,只需要把 他們的東西吊在洞洞板上,光線和氛圍都很美。」 格子說,這樣的「無痛進場」反而成為如今空間的 優勢,減輕品牌或創意團隊的負擔。

隨著森 ³ 的成長,格子發現龍江路周邊也開始發 生 變化。文青風格的輕食店相繼進駐,對面巷子裡也 新開了設計師事務所。「我覺得,老屋新生的過程 不只是我們個人的轉變,它還會有一種影響力,慢 慢地影響了周遭。」

「今天來到這邊,發現大家都很喜歡自己的作品, 這很不容易。你自己很喜歡、然後周遭的人慢慢也 認同——我覺得對自己空間的這份愛,很直接可以 傳遞到來到各個老屋的人。」

d

立面

拆除與綠化

空間門面原本封閉的外推女兒牆被

拆除,改為透明落地玻璃窗,創造

了開放的視覺效果,並與朱崙公園的綠意相互呼 應,打造出充滿自然氛圍的植栽前庭。入口的設 計不僅讓內外空間融合,更與植栽品牌回春植栽

Vivify Plants 合作,引入鹿角蕨和其他觀葉 植 物,為 空間增添豐富的生態感受。

室內格局經重新調整,打造方正

彈性隔間設計

的中央區域並增加隱密包廂,以 廢棄眷舍的柳安木材鋪設地面,不僅有效利用廢 料,更賦予空間古樸自然的質感。家具選用輕量 的露營椅和昭和古道具,使空間可靈活變換成咖 啡、展覽或講座等不同用途。

多功能

天花燈具與

展示系統

a e c b d

天花板安裝了軌道燈具,輔以

夾板染色及牆面支撐系統,根

據展覽或活動需求調整燈光及

展示道具,使得空間具有極大的適應性。此設計

讓展覽佈置和使用情境可根據需求隨時調整,展 現空間的多樣化運用。

現空間的多樣化運用。

作品獲得 2024 台北老屋新生大獎 — BEST 10

朱崙公園

龍江路45巷

森³ sunsun-museum

我們不需要每一棟建築

都成為地標。

謝欣 曄

委員專 訪

也讓使用者更直接地感受到時間在建築上的痕跡。此 外,建築師深知杉木會隨時間折舊,因此在結構上採用 螺栓式設計,讓屋主能夠自行更換木材部件,延長建築 壽命的同時,也維持建築的完整性。

踏進杉遍野・隨野家的那一刻,謝欣瞱想起自己兒 時居住在台中郊區的情景

—東勢的橘子園,農地

和工廠比鄰,各種水果的產銷班以鐵皮搭建,連成 一線,純粹追求機能而非美感。

在台灣,像這樣功能性的、混雜的建築模式,既是生命 力的展現,但「能用就好」思維也經常被檢討。謝欣瞱 的心靈經常在這樣的掙扎中拉鋸:「我覺得,我們真的 是有一種海盜國家的個性。」他說,「海盜國家就是, 別人有什麼,我們抓過來放在一起,然後就變成我們自 己的了。」

道理的方向雖然可能相異,但往往關於 一種內在秩序的發掘。即便外觀看似大 相徑庭,謝欣瞱眼中的好作品,往往是 能夠輕巧地貫徹建築的內在美學、又自 然地融合進所在環境的作品。

謝欣瞱特別讚賞建築師將杉木運用在不同的尺度上,從 大面積的立面到細小的構件,都展現出對單一材料的精 準掌握。這種被謝欣瞱形容為「一刀流」的作法,展示 了建築師掌握材料、與之對話的能力。

「這不是強行的改造,而是一種與材料 對話的過程。」設計策略避免了對環境 的過度干預,讓建築自然融入場域,既 符合功能需求,又保持了對當地環境的 尊重與業主的理念。

追求秩序的 要求與耐心

出了它的美。

恩寓公寓這個案子給謝欣瞱的啟 發,則是另一種極致。「它很有 秩序,你要說它的美,在於它的 進退面,」謝欣瞱說,他驚豔於 這棟建築在處理陽台和外牆時的收斂,「它不是變成玻 璃帷幕,而是用小磁磚、鍍鋅鐵皮等簡單的材料,這種 材料的運用很節制,卻又非常有效。」簡潔而不失細節 的處理方式,讓恩寓公寓無論在執行面或外觀上都帶來 極大的震撼。這種輕巧的整理,讓建築在不經意中展現 外觀上,建築師不僅處理了現有的電線問題,更積極與 相關單位溝通,甚至主動發公文要求相關單位不要再掛 新的電線。設計上則預留了冷氣室外機的位置,避免 了

未來出現突兀的視覺堆砌。這種長期維 護的思維,讓這棟建築在都市中顯得格 外乾淨,與周圍錯綜複雜的建築形成鮮 明對比。

這些細節展現了建築師對建築秩序的極 高要求,以及願意為之付出溝通勞務的 耐心。謝欣瞱說,他同時也看到建築師 如何在保留與創新之間取得微妙的平 衡——改造建築,不必總是追求劇烈的 改變。

面對素材的 決心與自信

可能是壞,但也可能是好,這樣的城市景觀,甚至可以 說是一種台灣精神。能否稱之為美的關鍵,在於程度的 拿捏。「因為曾經被殖民,每個時期的建築風格互相堆 疊,各自為政,呈現出一種獨特的混沌美學。但完全的 混亂也不對,其中還是要有秩序的統合,看每個人怎麼 整理出它的道理。」

從何辨識那份統合?謝欣瞱說,完成度夠高的作品,通 常可以喚醒大家沉睡的品味,成為城市風景的新範本。

「我們對都市的美醜可能有點麻痺了,」謝欣瞱說,台 灣多數城市不像許多國家曾經一區一區循序規劃,有時 都更後的新大樓,旁邊接著釘子戶,旁邊再接個市場,

「其實我覺得這是美的,䆀媠䆀媠(bái-suí bái-suí)。

可是大家習慣了,並不一定能發掘這種美。」

杉遍野・隨野 家,正是這個路 數的完美實踐。

同樣是農地和工 廠混合的場域,但建築師選擇使用台灣 杉木作為主要材料,巧妙跳脫因台灣熱 帶多雨氣候而習慣性選擇不鏽鋼或鐵皮 的思維框架。「老實說,建築業是一個 非常浪費的產業,」謝欣瞱直言,「但 這個作品讓人驚訝的是,他們連木頭打 磨下來的粉塵都能被再次利用成隔臭材 料,這種細緻的態度真的令人佩服。」

杉木質地偏軟,表面容易積塵,這些材 料上的「缺點」不僅沒有被迴避,反而 成為設計的一部分。建築師選擇保留杉 木表皮的粗糙質感,讓材料的原始風貌 自然呈現,這既是對材料本身的尊重 ,

放下創作欲 回歸建築本真 或由於「成為建築大師」的迷 思,或因為台灣教育體制中追 求成績的思維影響,當代許多 建築師自己的作品都希望成為 「建築明星」,他們的作品像雕塑一樣矗立在城市中, 偶爾與周圍環境格格不入。

也因此,謝欣瞱如今心目中的好設計,是放下個人創作 欲望、專注於如何通過整理與修復,讓建築重新融入城 市肌理的設計。

「我們不需要每一棟建築都成為地標,」他說,「而恩 寓公寓和杉遍野這兩個案子,就展現了這種『輕巧的藝 術』。它們並沒有過度強調個人匠氣,而是選擇尊重 原

有的場域,通過細緻的整理與規劃,讓 建築重新煥發出新的色彩。」

「我覺得這才是厲害的。如果要借用食 物來比喻的話,大家開始注重素材的原 味了。」他說,「如果說,杉遍野是輕 巧的加法,那恩寓公寓對我來說就是輕 巧的減法。」

通過細緻的思考,減法和加法,都能呈 現空間的深度。

photo by 初耳/hatsumimi

杉遍野·隨野家 農事空間

著手進行杉遍野・隨野家的改造時,建築團 隊做的第一件事,是養雞。

自覺對農場生態的理解不夠全面,也希望能深入感

受北投的微氣候,曲墨建築決定透過與農家共同工 作,掌握農場環境的細節。

每天早上六點起床,跟著農家餵雞,整理雞舍。日

落而息,以一天的時間尺度去觀察北投的局部氣候 變化。同時,體驗農家的生活習性與需求。農閒之 餘,再與農家確認團隊對當地的理解與設計,即時 修正。透過這個過程,建築團隊也接收到隨野家這 個農場品牌對環境友善與食農教育的理念。

這座位於關渡平原農業區上的友善放牧養雞場,始 於 2020 年。隨著時代變遷,都市中農地非農用 的 情況日益嚴重,年輕的農家希望能守護住都會中少

有的綠地,於是回到祖父曾經耕作的土地上,展開 這個結合食農教育與永續推廣的都市農園計畫。

結束和農家共同勞作的實習之後,曲墨建築想以同 樣友善與永續自然的態度回應業主的企圖,並希望 呈現「野」的精神。

所謂野,更深層的精神是隨和自然、友善動物,建 築團隊因此選擇以台灣柳杉的末段為主材。

在產業中,柳杉末段因樹徑小無法取材成規格品, 而鮮少應用於空間設計。卻非常契合隨野家的自然 友善理念。柳杉末段的自然形態,保留了原始的樹 皮,並在切割後呈現出獨特的紋理。團隊將這個材 料全面運用於這座農場,從入口處的意象到內部的 食農教育空間,成為貫串整片空間的設計語言。

過去,曲墨建築曾負責南港瓶蓋工廠 I 棟職人空間 的再造,當時團隊木構總監郭恩愷的設計方針是 「全幹使用」。這一回,建築師黃昱豪雖然只取用 柳杉末段,但他們仍將材料的完全利用發揮得淋漓 盡致:受損較嚴重的木材,被用於圍籬和廁所的立 面結構;尺寸較小的料,則製作成小凳子或母雞的 鞦韆;再小一些,則成為小型的花器。最後,連裁 切時產生的木屑,都被使用作為雞舍的乾燥材和除 臭材,徹底發揮材料的價值。

為了確保可持續性,所有的結構都採用了可逆式工 法:利用螺絲與螺栓鎖固,讓每一塊木材都能在未 來需要時被拆卸或重新組裝。這樣的設計方式,能 夠隨著農場的擴展或變更進行調整;在施工過程 中,建築團隊也與農家密切同步這些設計的做法, 透過木作師傅的指導,農家學會了如何拆卸這些結 構,也在農忙之餘親手製作了雞舍的棲架與菜園的 圍籬。這樣的互動不僅加強了農家對於設計的熟悉 度,還為未來的自主維護奠定了基礎。

杉木元素也融入農具、教具,並與提供給課程學員 的麻質圍裙巧妙結合。農場入口的招牌,同樣以柳 杉木為基礎設計,取自過去製材廠載運送木材時,

以十五支為一捆的意象。

「隨野家是這座農場的名字,而『杉遍野』則是整 體的設計概念。」建築師說,「我們相信,材料可 以自己在這片環境中找到適合的位置,遍佈在這個 農場之中。」

為期半年的設計及製作工作中,建築團隊與農家建 立了深厚的情誼,雙方在友善環境與永續發展的理

念上有了深刻的交流與成長。整個新生計畫也不只 是美化空間,而是一種精神的傳遞與詮釋。

隨野家既是農場,也是業主父親的日常生活空間。

過去,農場在公私領域之間的界線模糊,如今那道 入口的杉木牆,既清楚分割了使用領域,同時保留 了父親的視野,讓他在無課程時能夠開啟木格柵欣 賞窗外的雞舍和綠意。

遍佈於農園的不只是杉木,還有團隊與農家之間的 默契與情誼。

柳杉末段的 創新應用

選用了來自新竹人工林的柳杉末 段,這些材料因直徑小而少被應 用,但保留其自然野性的外觀,將其用於入口牆 面及食農教育空間,形成了獨特的「杉野教 室」。這些柳杉材質既具美學價值,也體現了永 續的精神。

建築團隊採用了螺絲及螺栓的 固定方式,確保未來農場若需 擴建或搬遷時,可以輕易拆除 和重組,這種可逆式工法不僅體現了設計的靈活 性,也強調了資源的節約和可持續性。

可逆式設計與 可持續性

多功能 空間家具

食農教育空間中的家具,如工作桌, 皆由柳杉製成,並配有輪子,方便根 據課程需求調整使用位置。這些設計不僅實用, 也讓家具與空間整體設計風格一致,強化了品牌 的自然友善形象。

杉遍野·隨野家

天然隔臭材與

農場環境改善

農場中鋪設了木屑和稻穀作為

雞舍的乾燥墊料,這種設計不

僅能吸收雞隻排泄物的臭味,也有效保持農場土 地的乾燥,進而促進土壤肥沃度的提升,實現了

自然循環利用。

作品獲得 2024 台北老屋新生大獎 — BEST 10

開業之前,王瑞婷曾在公部門服務 11 年。

前 7 年,她在臺北市建築管理工程處的建照科任職 。 這段期間,她主要負責建築執照的審查,確保建築項 目符合都市計畫及建築相關法規。之後,她轉至臺北 市都市更新處企劃科,處理都市更新政策及法令制 定、參與如大同再生計畫、中正萬華復興計畫等大型 城市規劃案。再至臺北市都市更新處事業科,處理都

市更新重建業務(包含都市更新事業計畫及權利變換 計畫審議及法令的研議)。

是在企劃科的這兩年,她不再只關注建築基地範圍內 法規的執行,而是參與到城市藍圖的設計,看到台北 各個老舊社區如何在更新計畫中得到重生。這段經歷 豐富了她對建築與城市的認識,使她開始思考如何在 法規框架內找到平衡點,讓空間設計既符合法規,又 能滿足住戶與城市的想像。

離開公部門後,王瑞婷決定創業。因為過去的職涯經 歷,她的事務所經手許多老屋整建與電梯增建的案 子。

她回憶,創業初期,法規對電梯增建的限制相當嚴 苛,常使建築設計及建築執照圖審過程困難重重。面 對法規阻礙,王瑞婷並未輕言放棄,反而積極發表意 見,推動政策放寬。「那時候我發表過一篇文章,提 到因為法規限制導致電梯增建的難度過高。」頒獎典 禮前的分享會,王瑞婷說,「我們運氣也很好,過去 的長官看到那篇文章,有所感動,所以也找我們談了 許多電梯增建的法令解析。

這些因為體認現實而挑戰體制的努力,讓更多老舊建 築重新煥發活力。恩寓公寓正是其中一個例子。

這棟位於台北市大安區的四層老建築,由業主的父親 親手建造。隨著住戶年齡增長,無電梯的構造成了每 日生活的挑戰。家族希望在保留建築特色的基礎上, 增設電梯並進行結構強化,讓後代能繼續在這棟具有 家族記憶的房子中居住。

電梯增建是這個案子的首要挑戰。王瑞婷回憶,因 為 空間狹小,最初只能在樓梯間旁爭取到電梯設備淨 尺

恩寓公寓

住宅空間

寸 60 公分見方的空間,這樣的電梯尺寸對住戶來說實 用性不佳,但在台北市狹窄的建築環境中,設計有擴

充空間非常不易。她與設計團隊經過多次討論與調 整,甚至直接調整設備樣貌,最終將電梯空間擴大至 80 公分乘以 95 公分,既符合法規,也實際提升住 的生活便利。

除了電梯增建,恩寓公寓的外牆也面臨嚴重老化問 題。小馬賽克磁磚的牆面經過多年風雨侵蝕,逐漸 剝落並出現漏水隱患。為了避免磁磚再次脫落,設 計團隊選擇使用耐候性強的特殊塗料來替代,這種 塗料能夠有效防水、抗酸鹼,同時減少未來的維護 成本。考量到建築外觀的統一性,她在外牆顏色上 選擇了淺色系仿石漆,與深棕色的皮紋氧化鋁合金 板相互搭配,使電梯井在建築外觀中成為一個既和 諧又不突兀的亮點 。

為了進一步提升住戶生活品質,王瑞婷也特別重視樓 梯間的通風採光問題。她在建築的西側增設上推窗, 既讓光線自然灑入,又避免了雨水潑入,同時重新粉 刷樓梯間並鋪設木質橡膠地板,使整體空間煥然一 新。

最令人驚喜的是,團隊更進一步介入建築後續的使用 規範,讓房子不因使用習慣而重蹈覆轍——統一設置 冷氣室外機的格柵,避免隨意吊掛破壞外觀的情況; 發文通知相關單位,禁止在建築外牆任意掛線,最終 讓整體外觀達到乾淨整潔的效果。

「我們運氣一樣很好,過了三年的時間我們到現場 看,還是乾乾淨淨的。住戶也沒有把冷氣外掛到其他 的位置。」王瑞婷說。

這些年來與法規交手的經驗,也讓她期許未來城市在 政策上能有更具彈性的處理方式,特別是在符合安全 與城市景觀的前提下,給予老建築更多更新的空間。

例如,允許業主以美化的方式替換既有違建,使老建 築不僅能在結構上更加穩固,也能在視覺上融入周邊 環境,成為城市的有機一部分。

重生(恩寓公寓 電梯增建及外牆整新)

規劃設計單位 王瑞婷建築師事務所 王瑞婷

營造施工單位 麗高營造股份有限公司

使用居住單位 恩寓公寓大廈管委會 都市更新整建維護單 位 橙玨都市更新股份有限公司

她希望台北能逐步建立「美化取代」的標準,讓老屋在兼顧 家族記憶與現代需求的同時,延續其城市價值,讓台北的街 道擁有既人性化又富有歷史層次的美麗風貌。

努力也有成果。「現在針對違建的處理也有更多討論。」王 瑞婷說,「我們一直用現實的條件去和政府部門衝撞,也感 謝政府部門的支持。」

老屋改造不僅是技術上的挑戰,也涉及如何在法規中找到和 諧之道。當人們望向恩寓公寓如今的面貌,讚嘆之餘,背後 有人正辛勤地編織。

挑戰電梯

增建限制

車廂淨尺寸寬 80 公分長 95 公分的空間。不僅解決 了高齡住戶的需求,還維持了建物內的使用空間。

外牆整修

外牆原本使用的小馬賽克磁磚剝落且 有滲水問題,改以耐候性特殊樹脂塗

料替代磁磚,既提升了防水性,也避免了未來再度 剝落的風險。這類塗料能夠全方位包覆建物,防止 滲水。

增建的電梯外牆選用了德國皮紋氧 立面改造與

景觀設計

化鋁合金板,並設置間接照明,讓

電梯在白天和夜晚都成為建築的亮點。整體建築外 觀統一使用淺色塗料,搭配深棕色的金屬元素,突 顯質感而不失低調。

通風與 採光改進

電梯增建後,為避免樓梯間變暗,特 別在西側新增氣窗,保持樓梯間的通 風與自然光。樓梯間也重新鋪設木質橡膠地坪, 更新整體視覺效果。

屋頂及 外部管線整理

屋頂的違建部分經過修繕處 理,並以同色系塗料噴塗,避 免突兀的視覺效果。所有外部管線整齊收納在建 物背面,保證建物正面的整潔美觀。

作品獲得 2024 台北老屋新生大獎 — 整建維護特別獎

我覺得,

這個城市讓我們所有人 都很敢做夢。

無論在地人或移居者,無論藝文圈內或藝文 圈外,很少聽到有人像程詩郁這樣篤定地 說:「我是一個真的非常熱愛台北的人。」

三不五時,她會到士東市場一家世代經營的麵 舖,買她心中台北最好吃的麵條與水餃皮;或是 寧願忍受早上塞車繞去中山北路六段的法式烘焙 店,只為了吃上一口心愛的法棍和酸麵包。「早 上去那裡,買一杯咖啡,吃一口火腿三明治、買 一個蘋果派,再去上班,我覺得一切都好足夠 了。」

「就像小時候我常常耗在重慶南路上看書,或者 到西門町窩在電影院一整天,我總覺得世界就包 含在這個城市之中。」

對程詩郁而言,台北交雜的層次 —攤販與住宅 穿梭、商店和老屋錯落 —這樣的不協調地景, 正是這座城市文化感的來源。

「層層疊疊的,一些細微的紋理。即便是一條沒 落的街道,走著走著突然出現一座廟宇,突然出 現一個小攤,突然出現了一個老人家在那邊打 盹,突然出現某個螢幕在播政論節目⋯⋯這種生 活感,比起統一規格的商業區,是更有戲劇性跟 張力的。」

程詩 郁 委員專 訪

記憶、歷史、故事,無論是技術、空間、人文或是生態 上,它其實已經具有自己的核心。對話,是去找到一個 管道,去銜接這些現有的脈絡。」

處的石材意象,融會了鄰近唭哩岸的打 石場歷史,讓空間識別與在地的關係更 加清晰。

雖然和世界其他城市相比,台北城的歷史不算 長;但或許也正因如此,台北的包容力比其他城 市更高,展現了更開闊的靈活度,「某些大城市 獨特文化的性格是很強烈的,但我覺得台北是一 個像水一樣、流動性很高的地方。我們對於這些 新奇的事物的包容度很高,這種包容和過去的痕 跡並存。」

「應該這樣說啦,我覺得這個城市讓我們所有人 都很敢做夢。」她這樣總結。

打開盒子的 方式

也因此,在老屋評審過程中, 程詩郁特別關注一件作品如何 藉由想像力的發揮,讓老屋原 已承載的細節與不斷吸納新事 物的當代生活對話。「以前很多的老房子再利 用,最後都變成咖啡廳,所以就會覺得缺少了什 麼。」程詩郁說,「但現在,隨著生活需求的細 膩與多元,老屋可能變成戶外用品店,可能變成 co-working space,越來越貼近生活,不會只出 現 一種單一的樣態。」

想像力,不只是為了打開老屋,也是為了打開使 用者對時間或空間的認識,一種雙向的連結。

「老房子本來就是一個 culture box,裝著過 去的

作為一間學生餐廳,位在陽明交通大學的 BEATA,有 著 得天獨厚的地理優勢:半山腰的良好視野,同時聯繫登 山客健行路線的轉折。然而,在經過建築師改造前,不 但建築空間封閉、與外部景色斷裂,同時周遭綠植未加 規劃整理,給人荒煙蔓草的感受。

改造後,一走進空間,迎面而來的便是一片大面積落地 窗,將窗外的景色與室內空間完美結合,這樣的設計讓 學生在室內能夠直接感受到大自然的美景;此外, 入口

沿岸 3.0 作為一個辦公空間,性 質 上本不會被賦予和群眾交流的期 待,卻在主理人對該街區的情感投入之下,呈現出私人 空間與在地的親密與誠意,又是另一種想像的表達。

「一般來說,我們習慣把辦公空間的會議室設計在比較 隱密的位置,因為不希望被打擾。但沿岸 3.0 將會議 空 間設置在一樓入口處,直接面對街道,讓路過的人可以 直接看到裡面的工作狀況,這是一個很不尋常的設計, 增加了整個空間的開放性。」

程詩郁說,這意味著主理人設計這個空間時,不僅考慮 到員工的工作環境,還考慮到如何讓辦公室成為整個社 區生活的一部分。「當初現勘的時候,主理人彥安有特 別提到,很多居民經過這個地方,會好奇說這裡怎麼 變

在視覺之外,作品也確實顛覆了想像。 「學生餐廳通常給人的印象就是便宜、 快速、油膩。」程詩郁說,「但這個空 間完全顛覆了這些刻板印象,設計成了 一個類似文青咖啡店的氛圍,包含沙發 區的設置、交流空間的規劃,讓學生不 只可以在這裡用餐,還可以帶著電腦來 這裡學習或交流。」

得那麼漂亮、靠近觀望一下。這個時 候,其實沿岸很歡迎居民直接進來坐 坐,一起聊聊。」

「當然空間當中還包含了許多設計上的 思考,但我覺得迷人的是這份社區連 結。介紹的時候,主理人會提到旁邊有 家紅豆餅很好吃、前面有哪位賣蔥油餅 的老伯⋯⋯」彷彿就像為了麵條和酸麵 包在城市中移動的程詩郁自己,「聽到 這些,我會覺得很感動。他應該也是一 個很愛台北的人吧?」

評審過程中,讓程詩郁特別覺得有 趣的是,許多推動老屋新生的屋主 或業主,都是年輕人。「當然,一方面可能是因為老屋 的價格比較低,但我覺得更重要的是,這些年輕人想要 去找到時間軌跡的那份執著和衝動,同時也是這些老屋 空間需要的。」

對她來說,這是一座城市活力的展現。「今天我們去別 的國家,會去看的、被感動的,也不會是哪一間店瘋狂 折扣下殺八折九折,而是去看做能展示這座城市時間風 貌的所在。」

而尋找風貌、與之溝通,從來不是一件容易的事情。

「很多參與老屋改造的人,並不會去計 算經濟上的回報,而是出於對這些空間 的熱愛和執著。他們投入大量的資金和 精力,去改造這些空間,並賦予它們新 的生命。那份投入,展現了他們的執 著。」

「看完這些地方,我覺得最大的感想就 是覺得自己很庸俗。你看,人家為了夢 想,什麼都放進去了。」現有的 culture box,裝進這些新的東西。程詩郁說 著,彷彿一切都足夠了。

歡迎的空間
尋找的執著

13 BEATA

學校餐廳空間

「每一次去監造, 我都覺得自己是上山去看整片關渡平原。」

回想改造 BEATA 這棟建築的時光,建築師許志維在頒 獎典禮前的分享會這麼說。

前身為國立陽明交通大學的學生餐廳,這棟老屋位於 北投區山坡地,有著得天獨厚的自然景觀。對許志維 來說,這樣的祕境不可多得,卻也是改造的課題所 在。

「它不在主要校區裡面,一般人不太能夠看到它,」 許志維說,「再加上原本是比較 local 的那種自助餐模 式,雖然對附近宿舍群的學生來說是低價划算的,但 多年來空間本身已經被油煙和荒煙蔓草掩蓋。校方一 直想要活化它。」

活化,是讓空間碰觸到更多人。為此,許志維反思這 棟建築的定位——它不該只是學生們吃飯的地方, 更

a

應該成為校園活動空間的延伸。確立這個方針之後, 許志維團隊後續的設計都圍繞著這一點延伸——包括 為這棟建築取一個全新的名字。

翻新的第一步,是去除多年來校方為了使用需求而在 建築上添加的遮雨棚、附掛物等,「我們覺得,『老 屋新生』應該是不要做太多的破壞,而是讓建築物本 體的美麗能夠還原。」

拆除附加結構之後,這棟兩層樓半的山坡建築再次與 建築外的美景銜接:原先大門就面向關渡平原美景, 團隊順勢在室內外運用大量的透明介質,並將一、二 樓的原有開窗擴張為具有採光功能的完整框架,並利 用原本內凹的牆面與斜向鋁板,將外部的自然景觀及 光線充分引進室內,「把風景框進來。」

延續著室內外景色的聯繫,在進入建築的動線上,團 隊利用人造木質地坪、活動式遮陽棚創造樹下休憩的 空間。在原有的造型鋼架上,以藤蔓植物、透空鐵 網

及大型鋼板字打造了一面線型景觀牆,如一道含蓄的 邀請。「未來這個地方會整個綠起來,融入到原有的

地形裡面。」

鄰近的唭哩岸,曾以打石文化聞名。當地所產的唭哩 岸石,是台北盆地木山層的沉積岩,岩體抗酸耐高 溫,是台灣早期煉鋼、玻璃與陶瓷產業重要的建爐材 料,也是北投地區早期的建屋石材,最早可追溯到十 八世紀中。打石場也因此成為過去唭哩岸主要的人文 地景。

戰後,隨著鋼筋水泥新式建築興起,採石業因而式 微。1970 年代,唭哩岸石的部分產地被徵收為陽明大 學校地,也正是這棟建築的所在地。「在室內大廳, 我們使用了大量的石材,重現唭哩岸石的樣貌與意 象。」為了在時間上也連結地方故事,許志維團隊將 室內以大量石材構築,讓人一進入便感受到空間的明 確主題。

「我們希望這個設計,能讓內部空間和外部地景的故 事產生關係。」

原先,這棟建築的室內空間中管線數量眾多,彼此交 雜。團隊在室內創造一個鐵件構造作為屋架,設計 出

了一個「建築中的建築」,巧妙地將結構元素轉變成 為視覺焦點。

而為了達到「不只是學生餐廳」的目標,除了原有一 樓維持學生餐廳的設定,二、三樓都積極拓展空間的 交流功能:團隊規劃後來被命名為「人良閣」的空 間,設有共享廚房和講堂,為師生提供了一個可以舉 辦活動的場地。2021 年啟用後,這個空間成為校內 式活動的場所,不僅舉辦如「校長有約」、「法式之 夜」等交流活動,也讓校內烘焙社、調酒社等社團也 選擇此處作為活動場地,既滿足了學生的需求,也大 大豐富了空間的功能性。

空間改造完成後,學生們在投票中,選擇了 BEATA 個名字。

BEATA 一詞源自於拉丁文,是「最快樂幸福的人」 意。它既是一種祝福,也是一種嚮往。而從學生餐廳 進化為共享空間的這棟建築,如今連接著師生,成為 彼此凝聚的焦點。

原來,最快樂幸福的人,是能和他人深深連結的人。

矗立於 BEATA 室外的那道景觀牆,藤蔓悄悄攀爬, 蔭慢慢佈滿,像建築團隊給學生的許諾。

強化自然光與

透過極大化的窗戶設計以及移除老

景觀的引入

舊的遮雨棚,讓外部的自然景色與 光線可以更流暢地進入室內,建築的二層樓高斜向鋁 板造型進一步放大這樣的效果,使室內外空間有了無 縫的視覺延續。

材質與工藝的

精細運用

設計上使用了低調的色彩搭配粗獷 的工業風,入口處運用了石材元素

再現唭哩岸石的樣貌,既呼應歷史背景,也提升了空 間的質感。戶外廣場則選用溫潤的人造木質地坪和活 動式遮陽棚,讓休憩區域更加舒適。

在原有鋼架上重新搭配藤蔓植

戶外景觀牆的打造

物、透空鐵網與大型鋼板,構

築了一個富有層次感的景觀牆,引導人們更自然 地進入建築,強化了空間的指向性與美感。

作品獲得 2024 台北老屋新生大獎 — BEST 10

一開始,陳彥安只是想為沿岸製作的同事建 立一個理想的辦公空間。

從小在台北長大的他,對於這座城市的巷弄十分熟 悉。遠赴荷蘭求學後回到故鄉,他特別喜歡在城市 中散步。「我一直覺得,老房子是認識一個城市很 好的路徑。」頒獎典禮前的分享會時他說。當他著 手打造沿岸團隊的新工作空間,最初的行動便是在 大安區信步遊走,等待和有趣的空間巧遇。

如今沿岸 3.0 所在的空間位於台北泰順街,原本 是 一間餐廳與髮廊,空間中還保留著鏡子、管線以及 連接樓層的菜梯。改造的過程中,這些舊有元素被 保留下來,並與新的設計語彙相互交織。

陳彥安和設計團隊「一日一土」選用黑色作為基

工作空間

原始材質,將空間風格定調為低調、樸實但又充滿 對比感。「我們希望保留沿岸 2.0 的溫暖木質 元 素,再加入金屬和青磚,搭配少量的經典設計家 具,呈現溫暖與剛硬的反差。」

沿岸 3.0 a

陳彥安說,認為這種設計美學既能呼應老房子的底 蘊,也能讓人感受到現代的俐落與活力,賦予老屋 內在的靈魂。

而有了靈魂之後,他期待這個空間能與他人的靈魂 碰觸。

「很多附近的居民看到我們,會很好奇,走過來問 我們說我是要開咖啡廳嗎?」陳彥安回憶,「發現 我們是辦公室之後,他們也覺得不錯,覺得這裡有

調,象徵專注與沉穩,並搭配水泥、木材和鐵件等 這樣的地方很新鮮。」

這份讓人們可以自由流動、自在溝通的開放,其實 早就蘊藏在空間的設計思維中:在空間的入口設計 上,設置了大面積的金屬落地窗,使得白天的自然 光能夠灑入室內,在黑色基調的空間裡形成獨特的 光影效果,不僅讓內外空間相連,也能巧妙保護隱 私。

一樓內的設計期待促進團隊之間的交流,而不僅僅 是個人工作空間,因此除了設置會議區、辦公區和 儲藏空間外,設計上僅用了鐵製 L 型隔板作為唯一 的隔牆,這樣的安排讓工作區域具備靈活性,方便 依據工作需求隨時調整。他們希望每位成員在這個 空間裡不僅能輕鬆交流,也能隨時切換不同的工作 模式。

由於影像工作對於環境的安靜度和專注度有較高的 需求,因此沿岸 3.0 將這部分的工作空間安置於 地 下室,並預留了白色牆面,以便於影像作品的投影 展示。這樣的設計既能滿足影像部門的實際需求, 也為團隊提供了一個沉浸式的創意展示場。

特別的是,沿岸 3.0 落成後也積極把握社區交流 的 機會。團隊曾與鄰近的紅豆餅店合作,為其設計傳

單,藉由這樣的互動為街區注入更多活力。「未 來,我們希望可以透過活動和工作坊,邀請更多人 進來,一同感受這個空間的氛圍。」頒獎典禮前的 分享,陳彥安說,雖然初心只是想為同事們打造一 個理想的工作環境,但隨著空間的落成,周遭的街 坊鄰居和朋友們也給予很多肯定,讓他感到非常開 心和鼓舞。

「我一直試著用旅人的角度來看待台北。倘若沿岸 3.0 這個空間能夠成為其他人的 inspiration,甚至 吸引更多人投入老屋新生的行列,那將會是一件非 常美好的事情。」

未來,他計劃帶著這個空間參加《打開台北》,歡 迎更多人一同進入這個創意基地。

而就算不在泰順街,當你走在台北的巷弄裡,或許 也會與正在等待遇見下一個空間的陳彥安不期而 遇。

空間承載歷史 記憶與生活痕跡

沿岸 3.0 位於泰順街,該 空 間過去曾是餐廳和髮廊,原 有的鏡子、水管線路以及連通一樓與地下室的菜梯 在改造過程中被保留,這不僅展現了對空間原有痕 跡的尊重,也讓新舊故事得以在同一空間交會,增 添了場域的歷史層次與人文連結。

靈活開放的 空間布局

空間設計以長方形為基礎,四根 支撐柱讓空間保持開放且無過多 隔牆,具備極高的靈活運用潛力。這樣的設計使團 隊能夠根據需求靈活規劃工作區、儲藏室與會議空 間,同時也保留了足夠的開放空間,激發了團隊成 員的創意與自由交流。

原材料與 設計風格的結合

空間設計運用了實木、金屬、 水泥等原材料,並搭配黑色基 調,與溫暖的木質元素交織出強烈的反差感,呈現 出低調而專注的空間個性。設計團隊一日一土的風 格強調簡約而不失質感,這些材料的運用不僅增加 了空間的層次感,也使其具備視覺上的獨特性。

沿岸團隊不僅在設計過程中融入在 地居民的生活記憶,還與泰順街的 社區建立了深厚的互動。團隊與鄰里交流頻繁,並 為附近的紅豆餅店設計傳單,這種跨領域的合作不 僅深化了團隊與社區的連結,也為當地街區注入新 的活力。

在地社區的 互動與共創 好奇心櫥櫃

工作室內的「好奇心櫥櫃」是主理 人陳彥安的個人收藏展示,擺滿了

在旅途中收集的啟發性物件,以及親手製作的作 品,像是鳥標本和金屬刀具,這些物件承載著時 間、記憶與工藝技藝的積累,成為空間中極具個人 色彩與故事感的亮點。

作品獲得 2024 台北老屋新生大獎 — BEST 10

NO. 2 4

Turn static files into dynamic content formats.

Create a flipbook
Issuu converts static files into: digital portfolios, online yearbooks, online catalogs, digital photo albums and more. Sign up and create your flipbook.