

cv-portfolio
Vilja Halonen

Arkkitehtipalvelu Sumua
Vilja Halonen
Oulu, Helsinki viljahalonen.work@hotmail.com
Olen Vilja Halonen, yrittäjä ja maisterivaiheen arkkitehtiopiskelija Oulun Yliopistosta. Vahvuuksiani ovat erityisesti tuumasta toimeen ryhtyminen, yhteistyötaidot, luovat ratkaisut, ja oma-aloitteisuus.
Ryhdyn erilaisiin projekteihin innolla, enkä pelkää uusia työhaasteita. Olen opinnoissani suuntautunut korjaussuunnitteluun ja saamelaisalueen, Saamenmaan, rakennuskantaan ja arkkitehtuuriin. Osaamiseeni kuuluu myös aluesuunnittelu, kaupunkisuunnittelu, puuarkkitehtuuri, sekä nykyarkkitehtuuri. Minulla on oma toiminimi, Arkkitehtipalvelu Sumua, jolla olen tehnyt erilaisia projekteja joita esittelen myöhemmin tässä portfoliossa.
Ohjelmisto-osaaminen
Archicad, erinomainen
Revit, erinomainen
Autocad, erinomainen
Sketchup, erinomainen
Photoshop, erinomainen
Indesign, erinomainen
Illustrator, hyvä
Adobe Premiere Pro, alkeet
Blender, alkeet
Kielitaito
Englanti, erinomainen
Ranska, erinomainen
Ruotsi, kohtalainen
Pohjoissaame, alkeet
Espanja, alkeet
Suomi, äidinkieli
työkokemus
Avustava suunnittelija, OOPEAA office for peripheral architecture
05 - 12/2022
Harrastukset
DJ Tapahtumatuottaja
Kuntosali
Elokuvat
Taideprojektit
Seinäjoen asemanseudun perhepalvelukeskus Aallokon ja Asemantalo toimistorakennus -kokonaisuuden toteutussuunnittelu
Jyväskylän Äijälän asuinrakennusten lupasuunnittelu
Heka Kruunuvuorenranta pienoismalli
PR-aineisto:
Jyväskylän Suuruspään asuinkortteli
Seinäjoen toripaviljonki
Rauhalinnan majoitus- ja saunarakennukset
Avustava suunnittelija, ALA Architects
05 - 08/2021
La Ruche, Université Lumière Lyon 2 learning center to be built on campus Porte des Alpes in Bron, France
International design competition for the Tallinn Hospital, Estonia
Main working languages french and english
Avustava suunnittelija, LOT Office For Architecture, practices in New York & Athens
02 - 04/2021
SAFA Päiväkodin suunnittelukilpailu Töölöön
05/2020 - 2021
AutoCad irtokalustepohjakuvien päivittäminen, Fortum
Tarjoilija, Disneyland Paris kesä 2019
Rakennusapuhenkilö ja -siivooja, Barona Rakennus kesä 2020 ... ...
06/2015
Hyllyttäjä, S-Market Herttoniemi
2023 - 2024
2023 koulutus
1st year of Master’s Degree, ENSA Paris Belleville, Ranska
Kandidaatin tutkinto, Arkkitehtuurin laitos, Oulun Yliopisto
Rakennushistoriaselvitys Saarelan taloon, Oulu
01/2025 Valmistuu tammikuussa 2025. Teimme rakennushistoriaselvityksen yhdessä kollegani Grace Hermezin kanssa Oulun Saarelassa sijaitsevaan 1850-luvun talonpoikaistyyliä edustavaan kaksikerroksiseen hirsitaloon sen tulevaa remonttia varten.
Fortum
Selvitys, esitys, aikajana - Energiantuotanto Suomessa; maankäyttö kaavoituksen näkökulmasta
05 - 09/2024
Päätehtäväni oli kasata selvitys energiatuotannon maankäytöstä Suomessa, kaavoituksen näkökulmasta. Perehdyin erilaisiin kaavoihin Suomessa ja tutkin Suomessa olevia energiatuotantoyksiköitä kaavoituksen näkökulmasta.
05/2020 - 2021
AutoCad irtokalustepohjakuvien päivittäminen, Fortum, ei toiminimellä
Keskustan rannan alueen ideakilpailu, Iin kunta muut projektit
02 - 05/2024 Osallistuimme yhdessä kollegani Grace Hermezin ja Matias Buksin kanssa Iin kunnan järjestämään keskustan rannan alueen ideakilpailuun. Projekti oli pienaluesuunnittelua.
VR:n junille uusi visuaalinen ilme - ideakilpailu, VR & Ornamo (muotoilualan asiantuntijajärjestö)
08 - 11/2023 Osallistuimme yhdessä kollegani Grace Hermezin kanssa VR:n ja Ornamon järjestämään ideakilpailuun, jossa suunniteltiin VR:n kauko- ja lähijunan ulkoasuihin uusi ilme.
Paviljonkirakennus kierrätyshirrestä, suunnittelu ja toteutus, Varjo-festivaali
02 - 06/2023 Suunnittelimme ja toteutimme yhdessä kollegani Grace Hermezin kanssa Ouluun Varjo-festivaalille paviljonkirakennuksen vanhoista kierrätyshirsistä ja kiipeilykeskuksen ylijäämäköysistä. Mukana suunnittelussa myös Sara Rajala.
Chrysalix-taidetapahtuman tilasuunnittelu, Oulu
10/2024
03/2025
Järjestimme yhdessä Cultish-taiteilijakollektiivin kanssa Oulussa kulttuurilaboratoriolla monitaiteellisen musiikkitapahtuman.
Vastuualueinani yhdessä muiden kanssa oli tapahtuman tilasuunnittelu ja tapahtumatuotanto.
Järjestämme yhdessä Cultish-taiteilijakollektiivin kanssa Oulussa uudestaan toisen taidetapahtuman, jossa uusi tila ja sen tilasuunnittelu.
Muut tapahtumat jossa vastuuna tilasuunnittelu
04/2023
04/2022
Järjestimme yhdessä kollegani Grace Hermezin, sekä muiden arkkitehtiopiskelijoiden kanssa Oulun Arkkitehtikillan vajareivit.
Vastuualueinani tapahtuman tilasuunnittelu ja tapahtumatuontanto.
Sama kuin yllä.
Näiden lisäksi olen pitkään tehnyt ja myynyt taidettani. Päätaidealanani on keramiikka, jonka viimeisintä mallistoa olin esittelemässä ja myymässä Scandinavian Design Marketilla. Lisäksi toimin elektronisen musiikin dj:nä, ja olen esiintynyt mm. Provinssifestivaaleilla Seinäjoella, sekä Q-Stock festivaaleilla Oulussa. Oikealla kuva keramiikastani.


8-9 keskustan rannan alueen ideakilpailu, Iin Kunta

10-11 puutarhakaupungin korjaussuunnitelma, Pariisi

12-13
puurunkoisen pientalon (rintamamiestalon) korjaussuunnitelma

14


sisustustaiteen historia 15 savusauna 1800-luvulta 16 Kehto - paviljonki kierrätyshirrestä

17 chrysalix taidetapahtuma
Kunta

Osallistuimme yhdessä kollegani Grace Hermezin ja Matias Buksin kanssa Iin kunnan järjestämään keskustan rannan alueen ideakilpailuun. Projekti oli pienaluesuunnittelua.
Ehdotuksen tavoitteena oli lisätä Iin elinvoimaa ja kirkonkylän houkuttelevuutta niin asuinpaikkana kuin vierailukohteena. Maisemoinnilla ja arkkitehtuurilla pyrimme vahvistamaan paikan omaleimaista kylätunnelmaa ja kehittämään rakennettua ympäristöä Wanhan Haminan hengessä mutta nykyaikaisin ottein. Iin maisemallisten arvojen sekä julkisten toimintojen priorisointi, uudisrakentamisen ympäristöystävällisyys, kestävä elinympäristö ja viihtyisä, kutsuva julkinen tila ovat ehdotuksen suuria ohjaavia linjoja. Alueelle esitetyn uudisrakentamisen periaatteita ovat puun käyttö rakennusmateriaalina, inhimillinen mittakaava sekä monikäyttöisyys.







puutarhakaupungin korjaussuunnitelma,
Drancy, Pariisi
Maisterikurssillani Pariisissa, suunnittelimme Pariisin lähiössä, Drancyssa, sijaitsevaan rapautuneeseen puutarhakaupunkiin korjaussuunnitelman.
Projektissani tein ehdotuksen ensin koko jäljellä olevan puutarhakaupungin alueelle, muuntamalla yksityisistä pusikoituneista takapihoista yhteisen, jaettavan pienen puistoalueen. Puistoalueella on paljon puutarhakaupungin asukkaita yhdistäviä aktiviteetteja ja puistosta tuli alueen pääkulkuväylä. Siten puutarhakaupungin kaksikerroksisten rivitalojen pääsisäänkäynnit vaihtuvat uuden puistoalueen puolelle. Samalla asuntoihin tehdään laajennukset (keltaisella), joista tulee talojen uudet eteiset, ja talot korjataan ja lisäeristetään. Valokuvassa olemassaoleva puutarhakaupungin rivitalo.




Uudet laajennukset on suunniteltu vanhaa osaa kunnioittaen niin, että niissä käytetään samaa punatiiltä, samaa kattomateriaalia, mutta ikkunan ja luonnonvalon määrä on maksimoitu, jotta kapeaan vanhaan osaan saadaan avaruutta. Uutta laajennusosaa on mahdollista käyttää eteisenä, tai vaikka viherhuoneena tai työtilana, josta avautuu valoisat näkymät uuteen jaettuun puistoon.


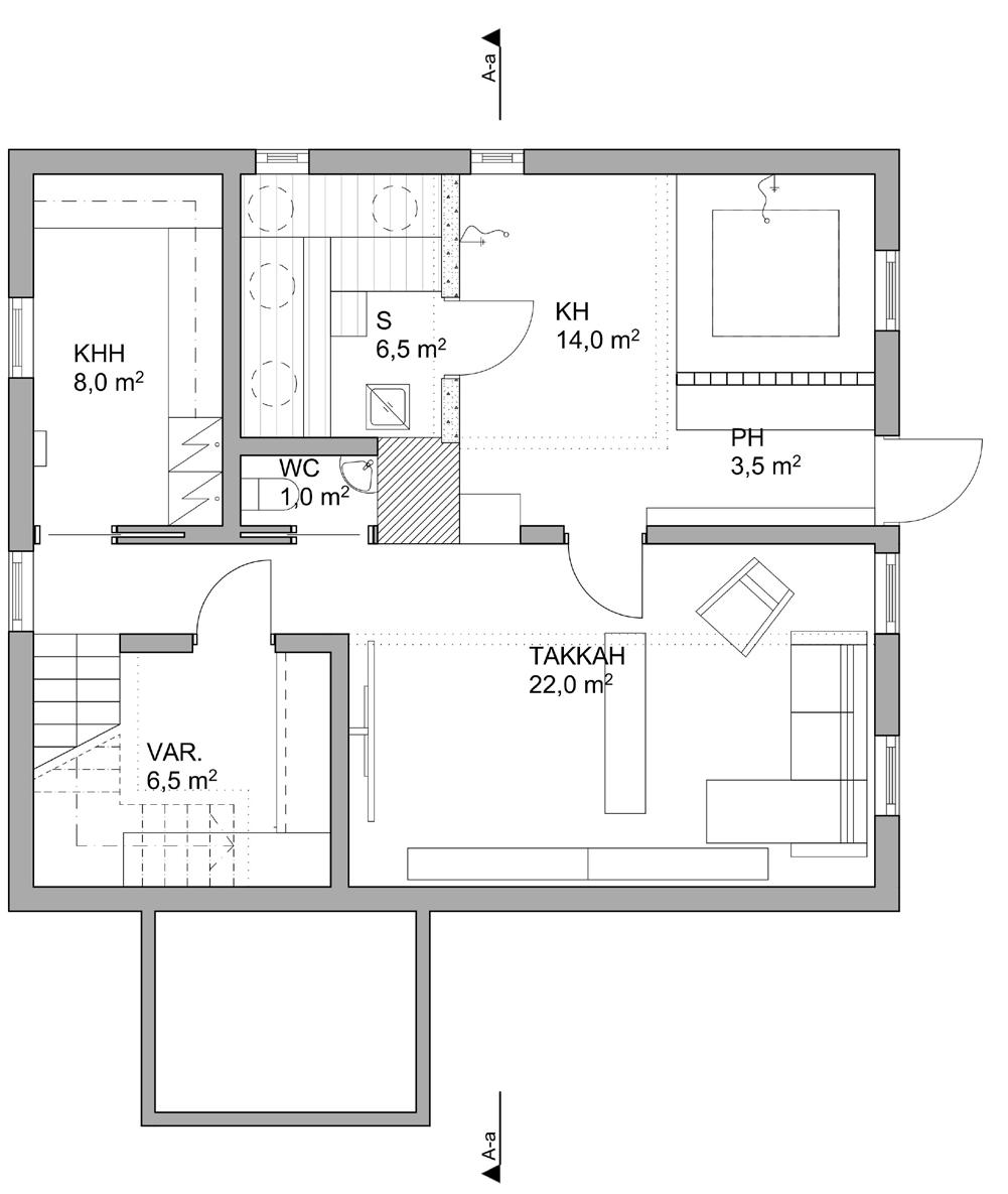
Tein kandidaattivaiheessa korjaussuunnitelman vuonna 1948 valmistuneeseen rintamamiestaloon. Harjoitustyössä opin korjausrakentamisen perusteita, oikeiden korjausperiaatteiden hallintaa sekä erityisesti sain tietoa puurakennusten ja -rakenteiden rakennusvaurioista ja korjaustavoista.
2.krs pohja, harmaalla vanhat rakenteet, pohja optimoitu lapsiperheelle


1.krs pohja, harmaalla vanhat rakenteet, oleskelukerroksesta tehty avarampi

Kellarin pohja, harmaalla vanhat rakenteet



sisustustaiteen
historia ja historialliset interiöörit
Kurssilla opin eri aikakausien sisustustaiteesta, tunnistamaan aikakausille tunnusomaisia piirteitä, erityisesti Suomessa esiintyneitä tyyliaikakausia. Opin eri aikakausien huonekalujen valmistusmetodeista, opin kaakeliuuneista, tapeteista, listoituksista... Alla piirtämässäni kuvassa olen tutkinut ja luonut oman Kustavilaisen interiöörin. Oikealla Kustavilainen tuoli.
savusauna 1800-luvulta


Tutkimme Turkansaaren ulkomuseon eri rakennuksia, ja itse perehdyin sen savusaunaan. Mittasimme tarkasti savusaunan jokaista laudanpätkää myöten, ja sen perusteella tuotimme siitä piirustukset. Kuvassa mittaamani savusaunan pohja, sekä taiteellisempi perspektiivipiirros.


Kehto - paviljonki kierrätyshirrestä
Loppuun haluan esitellä yhdessä ystäväni kanssa suunnitteleman ja rakentaman paviljongin vanhoista hirsistä. Tämän projektin aikana opimme valtavasti arkkitehtonisesta suunnittelusta sekä projektin itsenäisestä vetämisestä alusta loppuun saakka. Opimme hyvin arvokasta kädentaitoa puutyöpajalla työskennellessämme, jossa opimme monien eri puutyöskentelyyn tarkoitettujen koneiden käytön.
Tämä projekti toteutettiin 98 % kierrätetyistä materiaaleista. Meille oli hyvin tärkeää, että Kehdon hiilijalanjälki olisi mahdollisimman lähellä nollaa. Hankimme kierrätyshirsiä, joiden mitoilla toteutimme projektin. Kaikki puumateriaali on käytetystä itse työstämäämme, sekä köydet ovat vanhentuneita kiipeilyköysiä.



chrysalix taidetapahtuma
Järjestimme yhdessä Cultishtaiteilijakollektiivin kanssa Oulussa kulttuurilaboratoriolla monitaiteellisen musiikkitapahtuman. Vastuualueinani yhdessä muiden kanssa oli tapahtuman tilasuunnittelu ja tapahtumatuotanto. Mukana myös Grace Hermez.



