portfolio

Page 1

építész portfólió

Ádám Viktória

TANULMÁNYOK

2022 szept.- integrál szemléletű tanácsadó, integrál pszichológia szak

// Integrál Akadémia, Budapest

2014 szept. - 2021 jan.

- építész MSc, tervező szakirály, osztatlan képzés

// Budapesti Műszaki és Gazdaságtudományi Egyetem, Budapest

DÍJAK, PUBLIKÁCIÓK

2022 október

- Négycsoportos öko-ovi Budakalászon

// diplomaterv publikáció, Építészfórum (link)

- a Média Építészeti Díja jelölt terv, terv kategória

2016 november

- Képlékeny c. dolgozat

// művészeti TDK, BME (link)

- HK előadói különdíja

SZOFTVERISMERET

Archicad

Lumion

Adobe Photoshop

Adobe InDesign

MS Office

Twinmotion

szabadkézi rajz

Revit folyamatban

NYELVISMERET

B2 angol

2 | portfolio
behance.net/viktoriaadam | CV viktoria.adam@proton.me +36 70 407 2302 Ádám Viktória okleveles építészmérnök Budapest
C1 német

MUNKATAPASZTALAT

IRODAI

2024 február - építész tervező / Magyar Máltai Szeretetszolgálat Alapítvány, Budapest

- szociális lakhatási programban való közreműködés, felmérési és felújítási, átalakítási tendertervek készítése

2021 szeptember - építész tervező / Bánáti + Hartvig Építész Iroda, Budapest - 2023 december - nagyléptékű irodaépület engedélyezési, tender és kiviteli terveinek készítése (~30.000 m2 kiadható alapterület)

• Budapest XIII. ker., Essence Garden

- kollégium és irodaépület engedélyezési és kiviteli terveinek készítése, engedélyeztetési folyamat bonyolítása (~18.000 m2 bruttó alapterület és külső területek)

• Kecskemét Intelligens Campus, NJE bővítés II. ütem - 100 szobás belvárosi hotel koncepciótervezése (~1.200 m2 bruttó alapterület)

• Budapest V. ker., Almanac Tüköry

- önálló koordinálás, kommunikáció és kapcsolattartás szakágakkal

- tervezői művezetésben való részvétel, kivitelezés utánkövetése

- zöld minősítések teljes körű levezénylése (BREEAM, WELL)

- BIM modellezés

2019 július építész tervező / Kulcsár Építészstúdió, Budapest

- 2021 augusztus - családi házak tervezése, koncepciótól kiviteli tervig (br. 150-400 m2)

- egyszerű bejelentési és átalakítási tervek készítése

- egészségügyi intézmények belsőépítészeti tervei

- kis léptékű középület (~br. 230 m2) tervezése, koncepciótól a kiviteli tervig

• Budapest XIII. ker., Autista Mintaház pavilon

- önálló projektfelügyelet, kapcsolattartás

2019 február - július építész gyakornok / Arch-Studio, Budapest

- nagyléptékű középület engedélyezési tervének készítése

• Budapest I. ker., Pénzügyminisztérium

2017 szeptember építész gyakornok / Real Estate Advisory, PwC Magyarország Kft, Budapest - 2018 október - ingatlan értékelési szaktanácsadás, megvalósíthatósági tanulmányok előkészítése

- műszaki és pénzügyi projektfelügyeletben részvétel, szerződések és dokumentumok kezelése, adatbázis építése

- gazdasági projektek és beruházások előkészítő tanulmányaiban való részvétel

EGYÉNI

2023

2019 - 2022

2020 - 2021

belsőépítész társtervező

- Kelenhegyi úti társasház belsőépítészeti terveinek készítése // Répás Ferenc DLA - DÉR-ÉPÍTŐMŰVÉSZ KFT.

építész társtervező, műszaki rajzoló

- egyszerű bejelentési tervek készítése, dokumentálása, felmérési munkálatok (br. 70-250 m2)

építész tervező

- luxus kerti mobíliákat forgalmazó vállalkozás részére berendezési tervek, látványtervek készítése

3 | portfolio
| CV

építészet - nagy építészet - kis 10. vizualizáció 6.

válogatott munkák

4 | portfolio | tartalom
munka

egyetem

5 | portfolio
| tartalom
diploma komplex I-II. tanszéki terv III.
18. 30. 40. vizualizáció 16.

Campus II. ütem

- engedélyezési és kiviteli tervBánáti + Hartvig Építész Iroda 2022-2023

6 | portfolio | építészetnagy

építészeti generáltervezés

A kecskeméti Campus tervezése során olyan intézmény létrehozása volt az építészek célja, mely funkcióiban előremutató trendet képvisel, ily módon nemcsak a jelen igényeit szolgálja ki, hanem azoknak az elvárásoknak is megfelel, melyek várhatóan intenzíven jelen lesznek az oktatás jövőjében. A 2015-ben elkezdődött tervezés I. ütemében elkészült oktatási épület után a II. ütem, a kollégiumi épület és az adminisztrációs épület újraengedélyeztetése és kiviteli terveinek felfrissítése volt a cél, amely közelítőleg 18.000 m2 bruttó alapterületet foglal magába. Kihívást jelentő feladat volt kis létszámú csapattal a több éves tervek aktualizálása, sok helyütt újratervezése a rendelkezésre álló rövid idő alatt.

A tervezés során a két épület engedélyezési terveinek elkészítése és az engedélyeztetési csomag összeállítása volt a feladatom, aktívan részt vettem a szakági kapcsolattartásban és koordinálásban (statika, épületszerkezet, gépészet, elektromos, stb), az új kiviteli tervcsomag elkészítésében, illetve a zöld minősítés (BREEAM) teljes körű koordinálásában, a kivitelezés megkezdése után is nyomon követve az építést.

kép: bh.hu

7 | portfolio
| építészetnagy

Essence Garden

- engedélyezési és tender tervBánáti + Hartvig Építész Iroda

2021-2022

8 | portfolio | építészetnagy

építészeti generáltervezés

Az Essence Garden Office Park tervezett épületei teszik teljessé a Váci út – Rákos-patak által körbezárt területet, elegáns, élhető, a gyalogos közönség számára is jól használható belső utakat, udvarokat létrehozva. A terveket a prágai Chapman Taylor tervezőirodával együtt készítette irodánk.

A földszinteken étterem, kávézó, üzletek, konferencia terem és az irodaépületek bejáratai kapnak helyet. A három épület együttesen közel 30.000 m2-nyi kiadható területet foglal magába. Az épületek üveghomlokzatait keretek tagolják, zöldterasz-dobozokkal megszakítva ezek homogenitását, amelyek minden bérlőnek saját kültéri kapcsolatot biztosítanak. A magasabb épületek tetején kialakított visszahúzott teraszok az alacsonyabb épületekkel való kapcsolatot erősítik. A beruházás nemzetközileg elismert környezeti minősítő rendszer szerint készül, szem előtt tartva a fenntarthatósági alapelveket.

A tervezés során aktívan részt vettem a szakági kapcsolattartásban és koordinálásban (főképp statika, épületszerkezeti és belsőépítészet), az engedélyezési és tender tervek elkészítésében, illetve a zöld minősítések (BREEAM, WELL) teljes körű koordinálásában.

9 | portfolio
| építészetnagy
képek: bh.hu

- építészet, belsőépítészetKulcsár Építészstúdió 2021

10 | portfolio
autista mintaház
| építészet
-kis

építészeti tervezés

Az iroda pro bono építészeti tervezési munkával hozzájárulva fejezte ki elkötelezettségét az autizmussal élő gyermekek megsegítése mellett. Az időben alkotott diagnózis, az ebből fakadó terápiás lehetőség elengedhetetlen a későbbi akadálymentesített beilleszkedéshez a felnőtt mindennapokba egy teljesebb, önállóbb életvitel felé.

Jelen Mintaház és Diagnosztikai Centrum hazánkban elsőként egy helyen kínálja a komplex diagnózis – fejlesztés – és terápiás lehetőségeket, széles körben elérhetővé teszi a legújabb eredményes módszerek használatát, egyúttal otthont teremt egy kis közösség kialakulásához, szülőterápiákon, csoportos foglalkozásokon keresztül ismerteti meg az auti életmódot érintettekkel és szakemberekkel egyaránt.

A 2022-ben elkészült Mintaház mellé egy kis alapterületű új építmény, pavilonépület került, amelynek teljeskörű tervezésével foglalkoztam, koncepciótervtől az engedélyezési terven át a kiviteli tervig. Két fő funkciója kisebb konferenciák, előadások megtartása, illetve egy mintalakás kialakítása, ami mindennapi szituációs helyzetek bemutatására alkalmas.

A 2023 végén átadott épületről bővebb fotók itt találhatóak

12 | portfolio
fotók: egyuttazautistakert.hu

Derűs Szívek

Idősek Klubja

Nővér utcai tanuszoda

Beépíthetőség határa

5+1

Németh László Gimnázium

Kedves utca

térkő járda

füvesített udvar

ÚJ

Új telepített cserjék

meglévő épület bejárati szint ±0,00 meglévő épület padlósík +1,00

iskolaudvar

13 | portfolio 3 829,00 m2 5,0 % 28 % 4 , 8 1 9 , 9 9 3 , 9 9 1 3 , 7 5 7 , 9 1 1 4 , 5 0 2 , 5 0 9 , 0 0 74,00 50 12,00 30 13,20 50 2 , 5 0 9 , 0 0 8 3 8,00 8 , 0 0 39,60 26,30 8,47 1 1 , 5 0 8 3 26,50 5 , 0 0 5,00 9,91 16,10 + 9 , 6 4 +4,69 +4,69 +7,03 + 4 , 4 0 + 3 , 0 9 + 6 , 3 6 + 1 , 0 0 +4,37 +4,63 +3,42 +3,19 -0,01 +1,00 +1,00 +0,10 +1,20 +14,00 +1,00 +13,50 +13,50 +14,42 +10,06 +10,06 +9,35 +1,00 00 +1,00 +11,30 +9,20 +3,70 +4,20 +1,00 -0,01 -0,01
G y e r m e k t é r
2 .
hrsz.:26543/5
sportudvar +4,69 11,81 60/6060/60 4,89 8,00 8 , 1 5 1 1 , 5 0 1 4 , 2 0 1 4 , 2 2 1 0 , 6 6 9 , 0 0 8 , 0 5 6 , 1 4 1 9 , 4 3 5 , 8 5 5 , 0 0
ÉPÜLET PAVILON
MEGLÉVŐ ÉPÜLET
térkő placc akm parkolóhely | építészetkis
14 | portfolio -0,01 +3,68 +4,63 +3,665 +4,63 26,50 13,00 5,30 8,20 -0,01 +0,50 +2,50 -1,315 -1,315 +4,16 +2,50 +2,50 a b d e g c f h k k n | építészetkis MÉRETEK A HELYSZ NEN ELLENŐR ZENDŐK A TERV K V TELEZÉSRE CSAK TARTÓSZERKEZETI K V TELI TERVVEL EGYÜTT HASZNÁLHATÓ! M G Ab-0 5 0 3 0 Ab-0 5 3 0 Ab-0 5 0 3 0 A -01 5 0 3 0 2 0 80 Ab-0 50 0 0 8 0 Ab-04 p 1 0 8 0 6 0 Ab-04 p 1 0 8 0 6 0 Ab-04 p 0 8 0 6 Ab-04 p 1 70 8 0 6 0 Ab-04 p 0 8 0 6 0 A -03 5 0 0 0 A b0 p 0 0 0 50 90 A0 4 2 50 80 Aj-01 2 50 3,50 Ab-02 pm 0 0 0 8 0 Ab-02 pm 50 0 0 8 0 Ab-0 pm 50 0 0 8 0 A -07 2 0 9 0 A -05 2 0 9 0 A -06 2 1 0 1 0 A -05 2 0 9 0 A0 7 2 0 90 A0 2 2 50 10 p 80 3 0 5 20 2 75 60 60 60 3 00 60 60 60 75 1 00 1 05 60 25 80 1 30 20 50 1 80 4 8 2 14 1 80 30 2 30 10 90 5 1 5 5 1 20 20 1 50 20 1 45 5 2 85 50 20 30 2 00 30 3 20 30 20 20 26 10 20 75 8 2 0 9 0 9 0 5 8 0 2 0 2 5 0 2 0 3 0 8 0 0 3 0 2 0 3 5 0 9 0 0 7 5 8 50 3 00 3 00 3 00 3 00 30 20 94 3 42 94 20 2 85 80 80 80 80 80 95 20 20 30 2 00 30 5 70 30 7 20 50 8 75 3 00 5 30 8 20 75 8 50 2 00 30 5 70 30 7 20 30 20 75 5 0 1 7 5 1 0 2 6 0 1 5 2 2 0 2 0 0 0 5 0 5 0 4 4 5 1 5 3 4 0 5 0 50 1 80 0 4 8 2 4 0 1 80 30 90 5 35 10 90 5 2 40 20 1 50 20 1 45 5 2 85 50 5 0 5 9 6 1 4 9 0 5 0 2 5 0 2 0 3 0 8 0 0 3 0 2 0 8 3 5 0 9 0 0 7 5 8 83 26 50 83 26 50 83 1 5 1 8 5 5 7 0 5 8 0 1 16 1 80 1 80 1,07 30 45 95 90 10 30 60 5 2 00 3 00 3 00 3 00 2 00 5 30 3 45 60 1 60 55 2 5 5 6 4 5 13 25 1 20 3 60 20 1 55 1 85 1 95 ,90 98 53 50 26 50 26 10 +0 00 -0 0 á m a +3 57 á m a s +2 75 á m a s +3 60 á m a s +3 10 á m a s +3 10 +0 30 78 00 02 00 B B A A C álmennyeze as +250 álmennyezetas:+250 álmennyezet as 250 á mennyez t s 2 5 0 H % ámennyezet a :vált álmennyeet a vát Esőv zgyű ő 16 89 m 07 FÜRDŐ g e 4 93 m 1 NŐ MOSDÓ g es 7 2 m 0 AKM WC gr s 4 8 m 09 FÉRF MOSDÓ g 8 16 m TERA Z é ő 04 56 m 1 TAK SZER gre 90 m 06 SZOBA s édpad ó pad ó zőnyeg 9 84 m 04 TÁROLÓ p p k t 3 2 m 0 CATER NG p r park t a 42 m 06 AUT M NTALAKÁS NAPPAL sv dp d ó pad ó őnyeg 3 26 m 60/60 60/60 2 0 8 0 2 0 8 0 2 1 0 8 0 A -09 2 0 1 0 0 A -09 2 0 1 0 0 6 0 7 0 2 1 8 6 2 1 65 60 30 60 1 65 20 2 0 3 0 2 3 4 3 6 2 4 1 0 1 7 8 3 3 0 2 0 20 30 55 0 90 55 30 80 2 20 2 00 80 20 5 80 1 40 30 20 5 0 6 0 3 8 5 1 5 6 5 2 7 5 5 0 3 8 4 1 5 1 4 0 5 1 8 3 3 5 0 +0 00 +0 00 álm a s +3,47 E ő ét a 1 0 m maga ság Kav s áv E ő t e ő S a ka a mér te et vb ge enda K betono ot ac kö p é ek K v c sá d énc őve ó A u k b k a nt zmény ogó LED há t ág ás a E ő é f +2 0 m maga ság Z a uz a árn éko ó HEA 60 acé s e vény t é y ogó LED há té v á tá s Pu en vak ok Pu en vak ok E e zc a o na Lam ux 100 fe ü v g tó E őv z á ozóba kötö t d én ső Hős va t ú kü ér egy ég Hősz va tyú be é egy ég Á m nnye e é ben vez te t s e őz e ő ber nd zé Fa t ör s 4 0 x 350 mm Fa át ör s 200x 00 mm föd m s k a a a t ndab ésbe úvó s b e d é y á k s k y K ke ám a a bu ko a +2 0 maga ság g ke ám a a bu ko a +2 0 maga ság g ke ám a a bu ko a +2 0 maga ság g ke ám a a bu ko a +2 50 m gas ág g ker m a a bu ko a +2 50 mag s ág g S h üt r-TROBA- N -TL o yó a S h üt r-TROBA- N -TL fo yóka H álmennye et as: 250 ámennyezet as vált álmennyezet as 250 álmennye et as +270 08 GÉPÉSZET g e 5 0 m 01 E ŐTÉR pa pa ke ta 8 7 m 0 ELŐADÓTEREM p r park t a 88 40 m

C

a: bézs/melegszürke színű vakolat

b: strukturált felületű, fehér/világosszürke vakolat

c: fehér színű, műanyag szerkezetű, hőszigetelő üvegezésű nyílászáró

d: korcolt fémlemez fedés, ezüstszürke színben

e: konzolos előtető

f: kültéri álmennyezet, süllyesztett led világítással

g: homlokzatra szerelt zsaluzia árnyékoló

h: fémlemez szegélyezés

i: ereszcsatorna

j: ereszcsatorna ejtőcső

k: logó, LED háttérvilágítással, rejtett fém hátszerkezeten

H sz 26543 5 Ta a XPS hősz ge e és S rukturá fe ü etű vako at Faburko a Gya ogos be á a Szemé ygép á mű be á at

l: felülvilágító ablak, fix üvegezéssel

m: 2 sor jéglecsúszásgátló

n: szellőző berendezés kültéri egység

Az új beépítés igazodik a meglévő városi szövetbe, illetve a meglévő épülethez. Szerkezete előregyártott kéregfal, ferde síkú födéme pedig felbetonnal készülő kéregpanel. Az előadóterem nagyméretű nyílászárói összenyithatóvá teszik a termet és a ház előtt kialakított teraszt, a délkeleti tájolásból eredő fokozottabb napsugárzást a 2,50 m-re kinyúló előtető tompítja, védve az üvegfelületeket a nyári túlmelegedés ellen. Az árnyékolást, sötétítést a homlokzat külső síkjára épített motoros zsaluzia árnyékolórendszer is segíti.

o: hőszivattyú kültéri egység

A falak kívülről vakoltak, az előadóterem tolóajtajainak szemöldöke fölötti szakaszon függőleges irányú, strukturált felületű vakolat osztja az épület tömegét.

Épületgépészet

Keleti homlokzat

ok eve es ép tőmérnök T-T SZ 0 - 664

Engedélyezési tervdokumentáció

EP 09

Lépték= 1:100

AUTISTA MINTAHÁZ

1132 BUDAPEST, Gyermek tér 2.

Építtető:

HEIM PÁL GYERMEKKÓRHÁZ

1089 BUDAPEST, Üllői út 86

KULCSÁR

1164

1126

horganyzott acé rögz tő L profi

Megrendelő:

EGYÜTT AZ AUTISTÁKÉRT ALAPÍTVÁNY

1027 BUDAPEST, Marg t krt 12

Tervező:

Hrsz : 26543/5 É

MINTAHÁZ PAVILONÉPÜLET

Pr3

b h 99

P R k egész tő hőszige e és, mechan kusan rögz tve

ég e en z g te és 2 m Mono v sbe on a p emez 5 m ömör te ka c f tö té ehe hordó ta a P 3 H degbu ko a v ze he y égekben pad ó ű és m g es ap bu ko a aga z va g ha á t e e ke ge e é ke ős é b d ű pad ó ű és g gő ö PE fó echno óg a z ge e s 0 épé á ó p p h b hő g ATN-1 0 g 4 od fiká b e e a a nedve ség en z g te és 2 m Mono sbe on a p eme 5 m ömör te ka c f tö té ehe hordó ta a P 4 Ter sz á da 8 m é kő bu ko a p L e C a s – ne fi y e üs közép zü ke 25x 0) m kv r homok ág aza 0 cm ömör te ka c f tö té 00 g m geo ex e met a 1 Kü ő ha á o ó a s e keze ruk u á e ü e ű ko ehé s nű t uk u á e ü tű k k t é ű h ká és ü Baum C ea vTop) 0 g fi h k hő g ő ends e (p Baum S a EPS rafi fl 0 cm ta a ag mér te e t mono t be o ge e d cm pá na a cm ab ko a 2 Kü ső hat ro ó a ze ke e me e s ür e bé s z nű hom okza vé onyva o a B um S coneTop 0 cm g afi hom ok a hős ge e ő ends e (p Baum S a EPS rafi eflex 0 cm Le er ke tő ké eg a mono v be on k ö é se s a ka ag mé

1 0 1 7 0 5 1

0 5

1 2

5

PE fó a a átét fekvőkorcos lemez efedés

L ndab kétcsöves hó ogó KTFLS alsó és KTOPFS elemme gyártó utas tása szer nt szerelve há ós vakolat erős tő

cseppentő há ós vako at erősí ő

F-SRP ereszszegé y

Baumi Star EPS grafit reflex hősz gete és öntapadó vako atcsa lakozó profi

6 0

MUNKAKÖZI Megrendelő: Ép ttető EGYÜTT AZ AUTISTÁKÉRT ALAPÍTVÁNY

R-05 Alapozás, lábazat 1 1 N ő i m o s d ó 10 30 10 10 50

F3

6 1

1 05 25 10 30 1 20 05 3 1

-0 20

-0 32

+0,00 1 5

14 30 215 8 8 Sávalap stat ka terv szer nt

3 0 6 0

lábazat vako at hom okza ival megegyező színben

Lábazat XPS hősz gete és +0 30 m magasság g k tüskézés m n 2xd12/20, tartószerk terv szerint

R

evé u ca 51 ok ép tészmé nök TERVEZŐ É 01-4872 Műterem 1126 Budapest Ho lósy S mon u 38 I / Mob : +36 30 173 4410 Budapest 2021 07 27 AUTISTA

cementhabarcs ágy H10

g pszkar on e őtétfa Be on sáva ap, ta tósze kezet tervek szer nt

Baum t Star EPS grafit reflex hősz getelés esőv z e vezető t sztí óaknáva bekö ést lásd gépészet te ven 1 táb a k egész tő XPS

KULCSÁR JÁNOS 1164 Budapest ó é okl ép tészmérnök TERVEZŐ É 0 -4872 AUTISTA MINTAHÁZ PAVILONÉPÜLET MÉRETEK A HELYSZÍNEN ELLENŐRIZENDŐK A TERV KIVITELEZÉSRE CSAK TARTÓSZERKEZETI K V TEL TERVVEL EGYÜTT HASZNÁLHATÓ KIVITELI TERVKULCSÁR ÉP TÉSZSTÚD Ó KFT

| építészetkis

15 | portfolio
ÉPÍTÉSZSTÚDIÓ KFT.
Budapest, Rózsalevél utca 51 Műterem
Hollósy Simon u
III /1
JÁNOS
építészmérnök Építészet
Budapest,
38
KULCSÁR
okleveles
01-4872 ÁDÁM VIKTÓRIA okleveles építészmérnök
Építés engedé yezés tervdokumentác ó KP
AUTISTA M NTAHÁZ DIAGNOSZTIKAI ÉS TERÁPIÁS CENTRUM PAVILONÉPÜLET A-A metszet Budapest 202 07 30 Lép ék :50 KULCSÁR ÉP TÉSZSTÚD Ó KFT 164 Budapest Rózsa evé utca 51 Műterem 126 Budapes , Ho ósy S mon u 38 I 1 KULCSÁR JÁNOS ok eveles ép tészmérnök Ép tészet HEIM PÁL ORSZÁGOS GYERMEKGYÓGYÁSZATI NTÉZET 089 BUDAPEST Ü ő út 86 Megrende ő É 01-4872 ÁDÁM VIKTÓRIA k l é té é ök 1 3 BUDAPEST Gyermek é 2 H sz 26543 5 MUNKAKÖZI R-02 R-06 R-04 R-01 R-03 -0 32 -0 20 +4 67 - 28+0 00 + 65 +2 55 5 3 2 2 5 0 2 8 8 3 2 2 6 0 3 6 3 42 +2 50 3 2 3 6 2 -0 01 -1 20 +3 45 +3 28 2 0 2 5 2 6 3 52 59 6 79 50 10 1 50 3 0 -1 20 45 45 2 20 1,20 53 1 1 6 2 0 6 2 1 2 0 30 4 27 -0 32 -0 20 +3 335 +0 00 + 30 5 00 3 12 13 65 E e zc ato na e tőc ő Sáva ap s a ka e v s e nt Fa át ö és 4 0 x 350 mm WC ü ke a tó g ár ó u as á a s e nt ze e v 5 m p r n t hő g te s 0 E ő t é r 1 N ő m o s d ó 1% Pr P 3 T2 T1 T3 F2 F2 á mennyeze ér R-05 3 42 29 2 7 08 30 20 6 00 Kav s áv E es s to na Födémhe ö z et a é konzo PE 20 ze v nyek 60 m-ként a tós e keze e vek ze nt H A 60 acé s e vény L b za XPS hős ge e é 0 30 m m gas ág g Fa t öré 200x200 mm Lam ux 100 60x60 e ü v ág ó g p ka ton e őté a + 30 maga s g g Hó ogó a é á ke et kü é mennyez t ögz és re a u ró ü té g p zka on á menn eze te s ru tu á t e ü etű ako a ta beép et vona m n ED ág á b ép t o ED v ág ás U ó ag e e RA F Ra ore sa u a á nyéko ó RAL 9006 f nyes a um n um RAL 9007 ény s zü ke a um n um z nben Pr4 Vasbeton szerkezet Le er kéregfa Le er mes erpane felbe onna Szerkeze be on Grafit hősz gete és XPS hősz ge e és P R hősz gete és G pszkar on válaszfa Kav cs Ta a S rukturál felü etű vako at Faburko at Gya ogos be á a Szemé ygép ármű be árat Je magyarázat P 1 gb k p d ó ű é ő dót b 2 cm pa pa ke a ágo tö gy z nben t f ü g 6 cm va a a a beton g gő ö PE ó te hno óg a s ge e é 0 cm épé á ó e p ps h b hős ge e é A N- 50 g 4 mm mod fi á b umene t a ned es ég e n z ge e é 2 cm Mono va be on va a a za 5 cm kav cs e ö é ét gesen tömö ve T 95% teh rho dó a a Pr 2 me egbu ko a p d ófű é m n a aká 2 0 cm svédp d ó 0 5 c gas tá 6 cm va a a a beton v es end ze ű p d ó űt t a um n mgőzö PE ó t h óg g é 0 cm épés ó exp ps h b hős ge e é A N- 50 t 4 mm mod fi á b umene t d ég g é 2 cm Mono va beton a ap mez 5 cm tömö e t ka s e ö és teh rho dó a a Pr 3 H degbu ko a v es h y s gekben pad ó űt s cm gre ap burko a r gas t a t has ná a z en en s ge e é ke ő és 7 cm va a a a beton v es end ze ű pad ó űt s t a um n umgőzö PE ó te hno óg a s ge e é 0 cm épés ó e p ps h b hős ge e é A N- 50 t 4 mm mod fi á b umene t d ég g é 2 cm Mo o va beton a ap mez 5 tö ö t k ö é teh rho dó a a Pr 4 Te a z rda 3 8 té kő b (p L C –fif y ezü t özép zü ke 5x50 3 cm k a chomo ágy a 30 cm tömö e t kav s e ö é 200 g m geot xt a te me a a F Kü ő ha áro ó fa sz rke e s uk urá e ü e ű vako at f hér sz nű s uk ur e ü e ű hom ok a v ko a ésű echn áva ké zü Ba m t Cre t vTop 20 cm gr fit hom okza hősz get ő rend ze p Ba m t St r EPS g afi refl x) 30 c a ka ag é e e e o o va beton ger nda 2 pá 2 cm f bur o a F2 Kü ső ha á o ó a ze keze g ü k bé ű h vékon vako t Baum t oneTop 20 g fit ho ok hő get ő re dsze p B um t S ar EPS g afi efle 30 cm Le e k t ős ké eg a mono t va beton k ö t s e t t a ag mér te ve f ü e k eg en és es és T Fé n ereg te ő f m emez fed s RAL 9007 an ac me á z nb n L ndab P X dup a á ó or os edé ko c öm ő za a ga so ké c öve hó ogóva 0 8 c s ő ő á ét ő eg P me egbu ko a pad ófű é e őadó e emben 5 m pa par et a v gos ö gy sz nben e e e ü e en rag sz v 6 cm va a a za be on r g a um n umgőzö PE fó a echno óg a z ge e s 0 cm épé á ó exp p hab hő z ge e s ATN-1 0 1 r g 4 mm mod fiká b umen s a a nedve ség en z g te és c Mo o sbe o sa a 5 cm ka c e ö té é ege en ömör v T 95 ehe hordó ta a P 2 me egbur o at pad ó űt s m n a a ás 0 édp d ó 0 m aga z ás 6 b d ű pad ó ű és g a m n mgő ö PE fó a echno óg a z ge e s 0 m épé á ó exp p hab hő z ge e s ATN-1 0 g 4 mm mod fiká b umene a a edves
e ezv e ü e k egye té e té T é y g ő ém eme edés RAL 9007 t t tá b L d b PLX d p óko cos f dés or töm tő z agga or ét ö hó gó 0 8 m s e ő ő a á é s őnyeg ü ű d cm e n éc közö t ég és r g pá aá e es ő a á é hé a a 6 cm BACHL P R MV hős ge e é éto d ü eg át o ka o á s g ké o da ön apadó za gga ög t t é a um n um-gőzö za agga e ü e fo tono ot s é eke és a cs t akozá okná ép és ragas tó a ög t t pá a á ó a um n um-gőzö ó a 5 m e be on t t a e vek sz r nt cm Le er Mes e pane ödém ze ke et e ü e k egyen té ügge z et á mennye et a 2 0 T Fé y eg te ő e de kú á e e e e ém eme edés RAL 9007 t t tá b L d b PLX d p óko cos f dés or töm tő z agga or ét ö hó gó 0 8 cm ze ő ő a á é s őnyeg ü ű d cm e en éc közö t ég és g pá á e e ő á é hé 6 cm BACH P R MV hős ge e é éto d ü egf t o ka o á s g ké o da ön apadó za gga ög t t é a um n um-gőzö za agga e ü e fo tono ot s é eken és a cs t akozá okná ép és ragas tó a ög t t pá a á ó a um n um-gőzö ó a 5 m e be on t t a e vek sz r t m Le er Mes e pane ödém ze ke et e ü e k egyen té 5 m e de s kú ügge z et mennye e abu ko a ú T E ő ető é dé RAL 7 züs zü ke z nben ( óko co tö tő gg 0 8 m s e ő ő a á é s őnyeg té d k m e n éc közö t ég és g há ó ő t ő ó 6 m P R hős ge e é ta a ag é e e et é ók kö é ek e e p B ch P R g ké o da ön apadó a gga ög t t é a um n um-gőzö za agga fe ü e fo tono ot s é eke és fa cs t akozá okná ép és agas tó a rög t t pá a á ó a um n um-gőzö ó a -20 cm vá to ó va t gságú P R hősz ge e és é ezé köz ek et e p Ba h P R) 5 m kü é g psz a ton b rko at há s e keze e ögz v g ehé s nű t uk u á e ü tű hom ok a v ko a f sű ech á a ké ü Bau C ea vTop) Kivi el tervdokumentác ó KP 01 AUTISTA M NTAHÁZ DIAGNOSZT KAI ÉS TERÁP ÁS CENTRUM PAV LONÉPÜLET Alaprajz Budapest 2021 07 30 Lépték= 1 50 : 00 KULCSÁR ÉS AP A ÉP
BT 1164 Budapes Rózsa evé u ca 51 Műterem 1126 Budapest Ho
S
KULCSÁR
Ép
HE
02
TÉSZSTÚDIÓ
ósy
mon u 38 I /
JÁNOS ok eve es ép tészmérnök
tészet
M PÁL ORSZÁGOS GYERMEKGYÓGYÁSZAT INTÉZET 1089 BUDAPEST Ü ő út 86 Meg ende ő:
HELTAY
Épületv l
MÁRTON ISTVÁN ok eve es v lamosmérnök É 01-4872 G
V Vn 01-15864 ÁDÁM V KTÓR
ok
1
BUDAPEST Gyermek
Tartószerkezet RÓZSA
ATT LA ok eve es gépészmérnök
amosság
01-16904
A
eve es ép tészmérnök
3
tér 2
GÁBOR
LENKOV CS KAROL NA ok eve es ép tészmérnök
MÉRETEK
TEL TERVVEL EGYÜTT HASZNÁLHATÓ KIVITELI TERVDOKUMENTÁCIÓ ÁDÁM V KTÓRIA ok ép tészmé nök KULCSÁR ÉP TÉSZSTÚDIÓ KFT
KULCSÁR JÁNOS 1164 Budapest Rózsa
A HELYSZ NEN ELLENŐR ZENDŐK A TERV K V TELEZÉSRE CSAK TARTÓSZERKEZET KIV
Ereszcsatorna KP
04 M= 1 10 ±0 00 cca 148 43 mBf Gyermek ér 2 H sz 26543/5 1132 BUDAPEST HEIM PÁL GYERMEKKÓRHÁZ 1089 BUDAPEST Ü lői út 86 Megrende ő Épí tető EGYÜTT AZ AUT STÁKÉRT ALAPÍTVÁNY 1027 BUDAPEST Marg t krt 12 +3,28 +3,42 15 +2,50 +3 12 +2 50 +2 965 3 0 +2,55 5 5 2 3 55 T1 1 1 N ő m o s d ó 05 30 1 20 05 50 6 1 9 50 1 6 50 5 3 5 2 9 2 6 00 L ndab 190 ereszcsatorna RAL 9007 antrac tmetá (044) sz nben pe forá t emez égrés ezárás függeszte t á mennyezet L ndab SOK 190 100 ereszcsatorna betorko ó csonk BM/BK 45 könyökke L ndab ereszcsatorna e tőcső
MUNKAKÖZI
d 10 RAL 9007 antrac tmetá (044) sz nben kü ső o dal szé - és v zzáró EPDM be ső o dal ég- és párazá ó EPDM
vi ámvéde mi e fogórúd v l amos tervek szer nt per orá t lemez efedés műanyag ab ak bukó-ny ó k a ak tás 3 rétegű fokozot an hősz gete ő üvegezéssel AB-04 Lábazat álta ános he yen
F2 KP _ R 05 HE M PÁL GYERMEKKÓRHÁZ
szerkezeti kialakítás

egyéb tervezés

egyéni projektek

2020-2021

16 | portfolio e
terasz látványterv Balatonkenese, 2021 | egyéb
yachtkikötő,

vizualizáció

Alkalmanként lehetőségem van egyéni projektekre. Ezekben a munkákban alaprajzok szerkesztése, berendezési tervek készítése és konkrét, a megbízó forgalmazó által értékesített bútorok modellezésével is foglalkozom. Ilyenkor igyekszem kihasználni a lehetőséget arra, hogy látványtervező szoftvereket használjak, az idő függvényében hozva ki a maximumot a képekből. A közeljövőben leginkább a Lumion alkalmazását szeretném igazán profin elsajátítani.

17 | portfolio
magánház, terasz terve Pilisvörösvár, 2021 „Hangyavár” Vác, 2018 yachtkikötő, terasz látványterv Balatonkenese, 2021 családi ház terasz Pilisvörösvár, 2021

négycsoportos óvoda

- diplomatervezésBudakalász, Vasút sor konzulens: Répás Ferenc DLA 2020

18 | portfolio
| BME | diploma

tervezési program

Budapest agglomerációja az utóbbi években újra virágzásnak indult, Budakalász pedig kifejezetten népszerű vonzáskörzeti településnek számít, népességalakulása folyamatosan növekvő tendenciát mutat, ami érthető, tekintve, hogy a családosok szívesen költöznek ki a nagyváros zajából a környező települések zöldebb, nyugodtabb környezetébe. A gyermekek napközbeni elhelyezése azonban sok helyen már egy ideje problémába ütközik a férőhelyek korlátozottsága miatt.

A program kiemelt eleme a környezettudatosság és az erre való nevelés. Ennek megfelelően az épület építése természetes, de korszerű anyagokból megoldandó, ami belesimul a kisvárosias környezetbe, együttműködve a természettel, biztosítva az illékony anyagoktól mentes közeget is, amely sajnos az elavult épületek építőanyagainak köszönhetően ma már kimutathatóan kárt okozott a gyermekek egészséges fejlődésében, így a tervezés sorána korszerű, de természetes anyaghasználat volt az elsődleges szempont.

A földszintes épület alaprajzi elrendezése funkciók szerint oszlik meg, a gyerekek és a felnőttek tereit elválasztva.

21 | portfolio

tömegalakítás

A csoportszobák, a nagyterem és az irodák fölé a településszerkezetre jellemző 45°-os nyeregtető kerül, amit a közlekedőket lefedő extenzív zöldtető egyfajta szőnyegként fog össze. Ez a megnövelt belmagasság egyrészt a haszálhatóságot és a térélményt fokozza, a csoportszobáknál lehetővé téve a belső játékok, csúszdák, ugráló hálók kialakítását, ami a gyermekek számára egy többfunkciós, mozgásra alkalmat adó, de biztonságos életteret és kreatív teret ad. Anyagasználatban a CLT panelek fafelülete uralkodik. Az utca felőli járda lefedésére is készül egy az udvarihoz hasonló fa keretszerkezetű árnyékoló-előtető, aminek lefedésére szintén zöld szőnyeg kerül, illetve a burkolattal egy síkban utcafronti acél pálcás szerkezet kerül kialakításra, melyekre futónövényeket telepítenek, gátolva a belátást kintről a közlekedőkre, de elegendő fényt eresztve a belső terekbe, belülről kitekintve pedig kellemes kilátást biztosítva.

23 | portfolio
| BME | diploma

T1 Zöldtető

10 szárazságtűrő zöld szőnyeg, évelő növényzettel (Sedum zöld szőnyeg)

5 Talajréteg a gyökereztetéséhez

1 rtg geotextília (VLF-150)

2,5 felületszivárgó (DiaDrain-25H)

1 rtg geotextília polipropilén alapanyagból, tűnemezeléses eljárással hőkezelt kivitelben (VLU-300)

2 rtg bitumenes gyökérálló csapadékvíz-szigetelő réteg (BitBau Dörr)

16 PIR hab hőszgetelés (Bachl PIR MV 160)

-5 PIR lejtést adó hőszigetelés

1 rtg lég- és párafékező fólia (DELTA®-REFLEX)

20 KLH 5sTL 200 mm födémpanel DVQ látszó felületkezeléssel

T2 Magastető látszó szaruzat

1 rtg betoncserép héjalás korall színben

3 cserépléc

5 ellenléc, átszellőztetés

1 rtg alátéthéjazat

16 PIR hab hőszgetelés (Bachl PIR MV 160) rétegragasztott szaruzat között

1 rtg lég- és párafékező fólia (DELTA®-REFLEX)

5 fagyapot hőszigetelő installációs réteg (Steico Install)

1,25 gipszrost lemez, a favázra csavarozva (Knauf Vidiwall)

1,25 beltéri építőlemez (Knauf Aquapanel Indoor)

2 látszó deszkázat

16 rétegragasztott szaruzat

T3 Magastető rejtett szaruzat

1 rtg betoncserép héjalás korall színben

3 cserépléc

5 ellenléc, átszellőztetés

1 rtg alátéthéjazat

16 rétegragasztott szaruzat, közötte PIR hab hőszgetelés (Bachl PIR MV 160)

1 rtg lég- és párafékező fólia (DELTA®-REFLEX)

5 fagyapot hőszigetelő installációs réteg (Steico Install)

1,25 gipszrost lemez, a favázra csavarozva (Knauf Vidiwall)

1,25 beltéri építőlemez (Knauf Aquapanel Indoor)

0,5 fehér színvakolat

F1 Külső fal faburkolat

3 Függőleges lécezés az ablakokkal egy magasságban

2 faburkolat, építőlemezre csavarozva

1,25 kültéri építőlemez (Knauf Aquapanel Outdoor)

4 függőleges lécezés, átszellőztetett légrés

1,25 gipszrost lemez, a favázra csavarozva (Knauf Vidiwall)

4 vízlepergető fagyapot hőszigetelő táblák (nútféderes Steico Universal)

16 fagyapot táblásmított hőszigetelés, fa I tartó közé rögzítve (Steico Therm)

18 KLH 7sTT 180 mm falpanel DVQ látszó felületkezeléssel

F2 Külső fal laminált burkolat

0,8 laminált kültéri nagytáblás homlokzatburkolat (FunderMax HPL, NT matt felületkezeléssel, 085 - White színben)

1,25 kültéri építőlemez (Knauf Aquapanel)

4 függőleges lécezés, átszellőztetett légrés

1,25 Knauf Vidiwall gipszrost lemez, a favázra csavarozva

4 vízlepergető fagyapot hőszigetelő táblák (nútféderes Steico Universal)

16 fagyapot táblásított hőszigetelés, fa I tartó közé rögzítve (Steico Therm)

18 KLH 7sTT 180 mm falpanel DVQ látszó felületkezeléssel

P1 Talajon fekvő padló linóleum burkolat

0,32 linóleum burkolat (Marmoleum Real)

7 csiszolt aljzatbeton

1 rtg PE fólia technológiai szigetelés

2,5 ásványgyapot úsztatóréteg

12 lépésálló hőszigetelés (AUSTROTHERM XPS Premium P 120)

1 rtg modifikált bitumenes vastaglemez taljnedvesség elleni vízszigetelés 1 rtg kellősítés

12 vasalt aljzatbeton C25/30 minőségben

25 tömörített kavicságyazat, felső 5 cm-ben gyöngykavics terítéssel tömörített talaj

P2 Talajon fekvő padló faburkolat

1,5 keményfa padlóburkolati rendszer (Thermowood kőris)

6,5 aljzatbeton

1 rtg PE fólia technológiai szigetelés

2,5 ásványgyapot úsztatóréteg

12 lépésálló hőszigetelés (AUSTROTHERM XPS Premium P 120)

1 rtg modifikált bitumenes vastaglemez taljnedvesség elleni vízszigetelés

1 rtg kellősítés

12 vasalt aljzatbeton C25/30 minőségben

25 tömörített kavicságyazat, felső 5 cm-ben gyöngykavics terítéssel

tömörített talaj

P3 Talajon fekvő padló hidegburkolat

0,8 ragasztott gres burkolat (Zalakerámia)

7 aljzatbeton0 PE fólia technológiai szigetelés

2,5 ásványgyapot úsztatóréteg

12 lépésálló hőszigetelés (AUSTROTHERM XPS Premium P 120)

1 rtg modifikált bitumenes vastaglemez taljnedvesség elleni vízszigetelés

1 rtg kellősítés

12 vasalt aljzatbeton C25/30 minőségben

25 25 cm tömörített kavicságyazat, felső 5 cm-ben gyöngykavics terítéssel tömörített talaj

P4 Padlástér födém

0,8 ragasztott gres burkolat (Zalakerámia)

0,3 bevonatszigetelés

1 rtg PE fólia technológiai szigetelés

6 aljzatbeton

3 ásványgyapot úsztatóréteg

20 KLH 5sTL 200 mm födémpanel DVQ látszó felületkezeléssel

P5 Kültéri járda

2 borovi fenyő teraszburkolat (Thermowood 20×115 A+ D4 profil)

10 párnafa, gumitalppal a betonra ültetve (ThermoLuc)

25 Tömörített kavicságyazat, beton dugók közé, agrotextilre terítve

1 rtg 100 g/m2 agrotextil tömörített talaj, benne legalább 1,00 m-ként betondugók talapzatként

25 | portfolio

szerkezet, környezetvédelem

Ma már köztudott, hogy a világ öszszes energiafelhasználásának 36%-át teszi ki az épületek fenntartása, illetve az építkezések.  A világ épületállományának jelentős része ma már elavult, mind energetikailag, mint pedig a mai igényeknek megfeleltetve funkcionálisan. Egyértelmű, hogy az új építkezéseknél elsődleges kell legyen az egészség- és környezetbarát anyagok felhasználása, valamint a közel nulla energiaigény.

Ilyen anyag a CLT, azaz cross laminated timber, először Ausztriában jelent meg, mint építőanyag, ma már azonban egyre szélesebb körben  elterjedt és használt, főleg a nyugati-európai országokban. A szerkezet előnye, hogy az előregyártás miatt az építkezés gyors, és a CLT a fa minden pozitív tulajdonságával rendelkezik: szárazon és gyorsan építhető, kiváló hő- és hangszigetelő, rögtön terhelhető, a szerkezetek panelosításával pedig minimálisra lehet csökkenteni az építkezéssel járó hulladékmenynyiséget is. Emellett környezetbarát és kellemes levegőklímát teremt, illékony anyagoktól mentesen.  Sok helyen máris a „jövő betonjaként” emlegetik, amiben van igazság, hiszen hasonló szilárdsági adatokkal rendelkezik, mint a vasbeton, azonban annál flexibilisebb és jelentősen könnyebb.

26 | portfolio
| diploma
28 | portfolio | BME | diploma
29 | portfolio | BME | diploma

szociális bérlakások

fiataloknak - komplex I.-II.Budapest, Mátyás tér 2019

30 | portfolio | BME | komplex
VIII

tervezési

program

A tervezési terület Budapesten belül a 8. kerületi Mátyás téren helyezkedik el. A környék tömegközlekedése kiváló, a terület nagyrészt lakóházaknak, közintézményeknek, egészségügyi intézményeknek, illetve üzleteknek ad otthont.

A telek sarokpozíciójából eredően különleges helyzetű, mindkét oldalon tűzfallal csatlakozó századfordulós bérházakkal. Az összesen 306 m2 alapterületű telek beépíthetősége 225 m2.

A tervezett épület egy földszint + 5 lakószint + tetőteraszos, 15 lakásos, összesen 1120 m2 hasznos alapterületű szociális jellegű társasház, a földszinten multifunkciós, bérbeadható üzlet- vagy közösségi helyiséggel, a tetőszinten pedig városi panorámát kínáló, részben fedett, nyitott tetőterasszal. A lakások célzott közönsége többnyire a 25-30 év közötti pályakezdő fiatal korosztály, akik első lakásként kedvezményesen vehetik igénybe a bérleményeket, a tetőterasz, a belső udvar és a köztes teraszok pedig lehetőséget teremtenek egy szoros lakóközösség kialakítására.

33 | portfolio
| BME | komplex

tömegalakítás

A környék és a tervezési helyszín adottságait figyelembe véve a lakófunkció megtalálása viszonylag egyértelmű volt, azonban a városnegyed – Józsefváros, avagy a „nyócker” – megítélése ma sem tükröz rózsás helyzetet, hiába folyt évekig szociális rehabilitáció a Magdolna negyed program keretein belül, illetve lendült fel az ingatlanpiac egész Budapesten. Bár mára már összehasonlíthatatlanul javultak a városrészen belüli állapotok, akár az általános közhangulatot vagy az épületállomány rendbe hozását, megújítását vesszük, az általános megítélés szerint még mindig egy viszonylag negatív kép él a Mátyás térről.

A lakások mérete fix, 50 m2, két szoba + amerikai konyhás nappali kialakításúak. Különlegességük, hogy mindegyik délkeletre, a Mátyás térre néz, illetve mindegyik rendelkezik saját, szintén a térre néző loggiával, valamint a függőfolyosó felé is egy loggiaszerű térbővülettel, így a mozgástér nemcsak a lakások falain belülre korlátozódik. A térszervezésnek köszönhetően így barátságos, napfényes lakóegységek keletkeznek.

35 | portfolio
| BME | komplex

Bár rengeteg új társasház épül és épült a környéken, amik a már említett okok miatt még mindig relatív kedvező négyzetméteráron megszerezhetőek, összehasonlítva Budapest más, hasonló elhelyezkedésű kerületeivel, ezek a társasházak többnyire magukba zárkóznak, nem egyszer erődítményszerű portálokkal, szinte nyílás nélküli földszinttel, parkolónak használva az udvart. A tendencia azonban folyamatosan javul, köszönhetően a rehabilitációt szellemi-közösségi szinten folytató civil szervezeteknek és az általános átalakulásoknak, ahogy az enyhén megindult dzsentrifikálódó réteg megjelenése is egyre nyitottabban áll a helyiekhez és a helyi lakosok is lehetőséget és segítséget kaphatnak olyan problémákra általuk, amikre eddig nem kerülhetett sor a zárt közösségek miatt.

36 | portfolio
| BME | komplex

A homlokzati ritmikát a homlokzati árnyékolórendszer egészíti ki, a falak az utcák felől téglaburkolatot kapnak, a belső udvar felől pedig fehérre vakoltak.

A lakásokat a DK-i oldalra rendeztem, a DNYi oldalon pedig szintközi teraszokat alakítottam ki, melyeket a lakók szabadon használhatnak, akár fűszernövények vagy kis konyhakert létesítésére, akár társasági-közösségi célokra, illetve a nyitottság miatt a belső zöld udvar is több fényt kap. A Mátyás tér felőli DK-i homlokzat viszonylag szorosan rendeződik a mellette lévő házhoz, a teraszos oldal viszont lazábban kapcsolódik a szomszédos épülethez, így a tömeg nem kap zárkózott, erődítményszerű megjelenést.

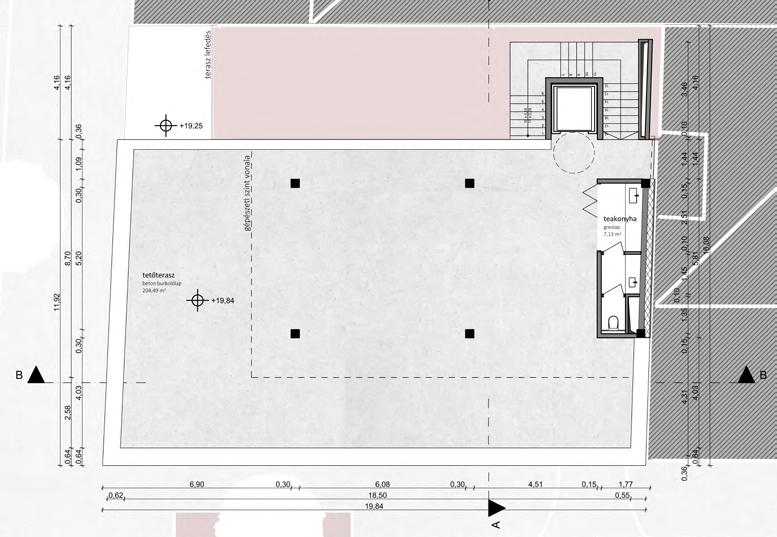
A lakások struktúrája 5 szinten ismétlődik, a 6. szint pedig egy fedett-nyitott tetőterasz, járható lapostetővel, mosdóval illetve kis teakonyhával kiegészítve, ami lehetővé teszi a lakóknak akár közös programok szervezését.

39 | portfolio
| BME | komplex

kikötő látogató- és rendezvényközpont

- tanszéki terv III.Badacsonytomaj 2018

40 | portfolio
| BME | tt3

tervezési program

Badacsony a Balaton-part egyik legnépszerűbb turistacélpontja. Közkedvelt mind a hazai, mind a külföldi látogatók körében, amit nem csak vízpartjának és festői természeti környezetének, hanem minőségi borainak és különböző rendezvényeinek is köszönhet. A badacsonyi kikötőhöz tervezett új látogató- és rendezvényközpont a környékbeli viszonyokat igyekszik rendezni, új arculatot adva a jelenlegi bazári környezetnek, szelíden reagálva a szomszédos Tátika étterem hajdani eleganciájára.

A tervezési terület gócpontja a kikötő, az út és a vasút felől érkező forgalomnak, illetve a strandra látogatók, kirándulók és a borászatokhoz sietők útvonalába esik, így az épületegyüttesben helyett kapott egy kávézó, egy üzlethelyiség és egy különféle rendezvények befogadására alkalmas, igény szerint berendezhető terem, valamint turisztikai infopont és egy kisgyermekes pihenőhelyiség.

43 | portfolio

9. kisgyermekes pihenőhelyiség

10. előtér

11. iroda

12. mosdók

44 | portfolio
1. kávézó 2. személyzeti helyiség és raktár 3. közösségi terem 4. raktár 5. üzletek 6. karbantartó 7. öltözők, művészbejáró 8. infopont iroda 1. 2. 3. 4. 5.
6. 7. 8. 9. 10. 11. 12. 12. 12.

tömegalakítás

A főút felőli kiszolgáló egység és a fő helyiségek blokkja között kialakult belső udvar egyaránt alkalmas pihenésre és szórakozásra, a megtartott és újonnan is ültetett fák mellett pedig ponyvák biztosítják az árnyékot, acél keretekre kifeszített könnyed szerkezetként. Az épület szezonálisan is működtethető, a belső udvar és a külső zöld tér összeköttetését a fő helyiségeken keresztül különleges, tengelyük körül kiforgatható speciális nyílászárók biztosítják, így ezek a belső terek nyitott állapotban egyfajta átmeneti, fedett-nyitott térként működnek, oldva az épület sávos tömegét, összekapcsolva a víz és a hegy felőli oldalt. Igény szerint, időjárástól, rendezvénytől vagy nyitvatartástól függően bezárva pedig hagyományosan működnek tovább, továbbra is biztosítva a kilátást mindkét irányba.

45 | portfolio
| BME | tt3

2018-2024

Turn static files into dynamic content formats.

Create a flipbook
Issuu converts static files into: digital portfolios, online yearbooks, online catalogs, digital photo albums and more. Sign up and create your flipbook.