Vikram Kannappan Architecture Portfolio

Page 1

V i k r a m K a n n a p p a n ARCHITECTURE PORTFOLIO 2021-2023

V i k r a m K a n n a p p a n

PROFILE

I am a student of Architecture with a keen interest in media development. I am an idealist in my outlook on humanity but a realist in my work. I am a creative at heart but with a highly pragmatic design ethos. I see the world for what it is but also what it could be, and hope to partake in designing that future through architecture, digital media or any form of human-oriented design.

EDUCATION

Masters of Architecture

National University of Singapore

Bachelor of Arts in Architecture with a Minor in Interactive Media Development

National University of Singapore

CAP: 4.5/5 [Highest Distinction]

Student Exchange Programme

Chalmers University of Technology

GCE A-Level

Raffles Institution

Rank Points: 82.5

Integrated Programme

Raffles Institution

August 2023 - Present

August 2019 - July 2023

August 2022 - January 2023

January 2015 - December 2016

Januray 2011 - December 2014

ACHIEVEMENTS

CBDX Borderlands Finalist

University of Calgary, School of Architecture

ILOOMINATION Finalist

National Environmental Agency

Dean’s List for AY2020/2021 Semester 1

National University of Singapore

Commander’s Award (Juliet Division)

Singapore Police Force

Raffles Diploma Distinction in Leadership & Community Service

Raffles Institution

Challenge for the Urban & Built Environment (CUBE) Winner

Urban Redevelopment Authority

FedEx International Trade Challenge Finalist

Junior Achievement Asia Pacific

EXPERIENCE

Architectural Trainee

DP Architects

I worked on an array of projects including competitons, an Integrated Development in the Design stage, a retail hub in the design stage, good class bungalow in the construction stage and proposals to potential clients for Addition and Alteration Works. For the comissioned projects, I worked primarily on Revit and aided with minor design elements such as toilets, tiling and facade patterns.

Freelance Graphic Designer

I designed logos, banners, poster, camera booth frames, product packaging and cards for small businesses that sought my services

Ground Response Officer (NS Sergeant 2)

Singapore Police Force

During my National Service, I worked with a team of Regular Officers, patrolling the streets of a neighbourhood in Singapore. I was a first responder for police calls, and learnt to deal with many types of people and resolve conflicts amicably. I also developed the ability to remain calm and make logical decision in high stress situations. I also performed tasks like ascertaining facts and collecting statements.

Intern

Hiladt Architects

Converted 2D plans and elevations on AutoCAD to 3D models on Sketchup for several terrace houses

vikram-k.com | vikram.kannappan@gmail.com
+65
September
November
December
December
December
October 2015 Febuary 2023 - July
January 2015 - December
November 2017 - Febuary 2019 January 2017
|
86464086 | Singapore
2021 June 2021
2020
2018
2016
2015
2023
2020

ACTIVITIES

Student Advisor

NUS Students’ Politcal Association

As an experienced member of the club, I was council to the executive committee, providing guidance when needed.

Communications Secretary (Executive Committee)

NUS Students’ Politcal Association

As the communications secretary, I oversaw the communications department, that consist of the media team which covers our branding and publicity, and the outreach team which gathers student consensus on national issues through university wide surveys. As an exco member, I was also involved in charting the direction of the club, and guiding newer members in their project planning.

Creative Director

NUS Students’ Politcal Association

As the creative director I spearhead the branding and image of the organisation by designing various things including logos for different events, the website, shirts, as well as videos.

Zone Sub-Committee (Publicity)

Ridge View Residential College

Orientation Planning Committee

Ridge View Residential College

Bronze Medallion

NUS Life Saving

I am a certified life guard for swimming pools

Students’ Council

Raffles Institution

I was the Orientation Camp In-Charge, as well as a member of my House Committee

Empowering Generation Z Founder

Own Capacity

I started a free tuition programme for underpriveleged primary school students in Potong Pasir and Jurong West, and recruited multiple volunteer teachers from my school

PROFICIENCIES & SKILLS

3D Modelling & CAD

Sketchup, Rhinocerous, AutoCAD, Autodesk CFD

BIM

Revit, ArchiCAD

Rendering

Lumion, Enscape, Twinmotion

Slicers

Cura

Office Powerpoint, Word, Excel

Extended Reality

Mixed reality development with Meta Quest

August 2022 - July 2023

August 2021 - July 2022

August 2020 - July 2021

August 2020 - April 2021

January 2020 - August 2020

August 2019 - November 2019

Febuary 2015 - November 2016

July 2013 - November 2016

Graphic Design

Adobe Photoshop, Adobe Illustrator, Adobe Indesign, Canva

Video Editing

Adobe Premier Pro

Game & Interaction Design

Unity, Figma

Programming

Javascript, Python, HTML

Languages

English, Tamil

Marketing & Brand Management

Wix, Facebook, Instagram, Youtube, Merchandising

CONTENT

CLICK
7 13 25 33
CLICK
NAVIGATE
CONTENT
ICON TO

STAMFORD CANAL VISITOR CENTRE

Date November 2023

Advisor

Mike LIM

Brief

Hyper-consumerism and the advent of social media have fueled a focus on iconicity and creating a wow-factor in the field of architecture. The winning architecture is often selected base on iconicity; detracting from factors such as design strategies to support economic infrastructure, strengthen cultural identity and improve socioeconomic resiliency, which traditionally define and measure the perimeters of good architectural designs. Yet, that is not to say that the “wow” factor has never been an intrinsic design consideration in architecture. Early developments of Singapore’s Marina Bay Area had architecture that were iconic to the era it served.

However, Singapore’s once mega urban project, the Marina Centre, is now a tired, less vibrant area in downtown marina. The aim is to do “something” to revive and rejuvenate. The project shall deep dive into the historical, political, economic, and contextual relationship of this site to the overall country development and the Downtown master plan.

Page 7

CONNECTING ABOVE & UNDER GROUND SPACES

Singapore's history is intricately woven with the vital role rivers and canals played in shaping its early settlements. The bustling Singapore River once hosted diverse communities of migrants, laying the groundwork for the vibrant tourist spots we know today. The Marina area has another equally historically significant canal, and yet not many know of its existence; the Stamford Canal. Serving as both a water source for laundry at Dhoby Ghaut and a space for cleaning and drying rice at Beras Basah, the Stamford Canal played an indispensable role in early Singapore. However, its legacy was eclipsed by the development of Marina Centre, leading to its eventual concealment.

Marina Centre also eventually witnessed a gradual decline in its allure, overshadowed by the adjacent Marina Bay. The grandeur of Marina Square's entrance has faded into what feels like a ‘back alley’, lacking ground-level connections and compelling attractions due to the complex network of underground passages such as City link. This project seeks to breathe new life into the Marina Centre area by harnessing the emotive power of the Stamford Canal. By embracing its pivotal location along historical trails, proximity to affordable local cuisine, and integration with the existing underground network, the aim is to transform the Stamford Canal into a vibrant visitor's center. This center will serve as a focal point for Marina Bay, catering to the interests of both locals and tourists, revitalizing the entire zone through the lens of ground-up iconic design and designing for emotion.

Stamford Canal Visitor Centre 1 2 4 3 2 1
CANAL-LEVEL PLAN GROUND-LEVEL PLAN
Page 9 5 6 6 5 3 4

A COMMUNITY HUB & VISITOR CENTRE

SECTION A - MUSEUM

The integration of digital exhibitions offers a pragmatic approach to rejuvenate the historical essence of Stamford Canal while captivating modern audiences. Unlike many exhibits in the civic district, these digital elements promise a more engaging experience, potentially enticing pedestrians to venture further into the area. As visitors emerge from below the canal, they enter a dimly lit space, which suits the ambiance required for such a program.

SECTION B - CIVIC SPACE

Situated opposite Marina Square’s once-grand entrance, a second-floor terrace, and the traffic crossing from Esplanade, this space emerges as the pivotal nexus for the project, effectively uniting all its elements. Consequently, this area has been designated as a civic space, providing a gathering spot for people to relish performances or simply unwind. The canal’s graceful curvature extends, forming an amphitheater that overlooks its waters, enticing visitors to engage while on the terrace. This design aims to breathe new life into the front of Marina Square, revitalizing it as a vibrant and inviting space.

SECTION E

Stamford Canal Visitor Centre

Marina Bay, despite its extensive tourism, notably lacks a centralized visitors center, a surprising omission considering the standard in many prime tourist cities. Typically, such centers are strategically placed adjacent to main tourist attractions, functioning not only as information hubs but as attractions themselves. Placing a Visitors Center along Stamford Canal could prove pivotal, enticing tourists to pause and immerse themselves in Singapore’s history woven through the Civic District. This placement aims to provide visitors with a more comprehensive understanding of Singapore’s narrative beyond the glitz of Marina Bay, fostering a deeper appreciation for the city’s evolution and cultural heritage.

Many canal revitalization endeavors aim to cultivate an interactive bond between the canal and its users, often by enabling them to engage directly with the water. To ensure safety and appeal, the canal water undergoes meticulous filtration, transforming it into a refreshing respite for individuals seeking relief from the heat. Moreover, embracing the popular trend of skating in the adjacent underground linkway, the slopes down to the canal can be enhanced with fixtures, creating miniature skate parks. These engagements not only cater to diverse user groups but also deepens the emotional connection between visitors and the site, fostering a sense of belonging and allure.

Page 11
SECTION C - VISITOR CENTRE SECTION D - RECREATION AREA

VADSTENA PRIMARY CARE CENTRE

Date January 2023

Advisor Cristiana CAIRA

Team

Myrra CARLSSON

Xiaofei DENG

Gustav KRISTENSSON

Brief

This project entails transforming and designing a new primary care center in Vadstena, a small town in Sweden. The task includes a dental care centre (500m²), inpatient ward (500m²), and other primary healthcare facilities, totaling at 3500 m².

The site has two existing buildings, one which has to be preserved and one that can be transformed or demolished. As a conservation project, the design must respect the city’s history while making full use of its ecological and natural values, feeding back into the urban space.

The site area is divided into two plots:

Plot 1: Largest building area 1000m²/Maximum bulding height 11m

Plot 2: Largest building area 1750m²/Maximum bulding height 8m.

Page 13

ARCHITECTURAL CONCEPT

Step 1 | TheSite

Extending to Birgitta square, demolishing one building for a larger Primary care, retaining one building and renewing it for the Dental care.

Step 3 | Rotatenewbuilding

The new building is rotated and aligned to the road. The rotation better integrates the building into the the shape of the site, and creates a larger shared entrance square that is more open to the pedestrian flows from the south.

Step 5 | TraditionalandModern

Incorporating more modern forms in between traditional facades allows the project to integrate well with the old buildings but still reap the benefits of contemporary design.

Step 7 | Communityanchor

Promoting community spirit and making the Birgitta square become a communal gathering space at the centre of activities in the neighbourhood.

Step 2 | Newprimarycare

The primary care and inpatient ward need 3,000 sqm. Patient flows are only on the ground and first floor, while the inpatient and staff areas will be on the third floor for ease of management.

Step 4 | CultureandHistory

Dividing a large volume into two smaller volumes according to the historic architectural topography of the city. The different parts of the primary care will be clearly placed on each side.

Step 6 | SharedEntranceSquare

The northern part of the new building will be made smaller to form a larger entrance square, giving the patient a more comfortable experience.

Step 8 | Greensurroundings

Promote connections to nature through biophilic design and outdoor activities and spaces.

Vadstena Primary Care Centre

LANDSCAPE CONCEPT

Step 1 : Existing blocks on the site.

SPACE REQUIREMENTS

Changes in the brief

• 48 workers in 2-person offices.

• 160 patients a day from 0800-1700. Visits are between 30-80 minutes.

• Every staff will have their own office and keep the examination rooms clean and standardised.

• Examination rooms without offices could be used by different members of the staff during the day. This will reduce the amount of empty rooms.

• 9- 24 examination rooms needed all the time during the opening hours --> 24 examination rooms instead of the brief's 30 examination rooms.

• The dental care gains some area as they will have their own staff areas, changing room, recycling, and unpacking room.

• More square metres have been designated for the waiting area and reception as it is the nucleus of patient flows in the primary care centre, it is one of the most important parts of the patients’ experience. To make the primary care centre warmer and more inviting to patients, as opposed to the typical cold and sterile environments in hospitals, the waiting area includes an indoor garden and organically shaped furniture. These require more space, but are an essential part of the project, and will significantly enhance the patient experience.

Step 2 : New blocks formed according to the layout of the surrounding.

Step 3 : New blocks link the whole area and form a active space.

Step 4 : Open up in the middle and nature penetrates the building.

Page 15
BIRGITTA SQUARE Cafe & Exibition & Stage HEALTHCARE SQUARE Share entrance & Playground OUTDOOR WAITING Back garden PARK Recreation & Future extensions Are there any show today? Hey, this playground is really fun. It's much closer to enter from this side. I feel calm when I'm waiting here. Nice weather. Isn't it? Want some coffee while waiting here? Wow! This is our new Primary care and Dental care centre. Nice place for yoga training. Hey, are you here for the gym too? School Birgitta square Parking Greenary Primary Den tal School Natural Lawn Parking Birgitta square Existing building
Brief from client m 2 Staff 130 Waiting & reception 89 Examination 466 Administration 232 Dental care 240 Inpatient ward 250 Support functions 178 Family & Child care 139 Other 1750 Total 3474
New Brief m 2 Staff 133 Reception and waiting 217 Examination 418 Administration 264 Dental care 362 Inpatient ward 233 Support functions 161 Family & Child care 128 Cafe 55 Pharmacy 65 Other 1797.4 Total (not cafe and pharm) 3713.4 Total 3833.4 Differences m 2 Staff 3 Reception and waiting 128 Examrooms -48 Administrative 32 Dental care 122 Inpatient ward -17 Support functions -17 Family & Child care -11 Other 47.4 Total (not cafe and pharm) 239.4 Total 359.4

PRIMARY CARE

Dental care: Separate from Primary care and located in old building. Renew the middle part to create a waiting area with increased sunlight and nature. Add a cafe and pharmacy beside the central waiting area to create a cozy waiting and work space. The cafe bleeds into Birgitta square, integrating the building with its outdoor environment.

New Primary care: Add a modern middle part to connect two new traditional style buildings which also separates the different departments in the primary care. Patients only walk around the ground floor and first floor. The second floor is only used by inpatients and staff. The Family Centre and Childcare are located on the ground floor next to an outdoor playground.

DENTAL CARE

Patient flows

flows

flows

flows

flows

Vadstena Primary Care Centre
Reception/Waiting Family/Childcare Infection
Main Entrance Staff Entrance Goods Entrance Emergency Entrance Infection Entrance
Staff
Goods
Phychosocial/Exam
Basement Cafe/Phamacy/Office/Reception Examination/Storage/Waiting
Inpatient
Infection
Specialnurse
Reception/Waiting Family/Childcare Infection Emergency Examination Goods/Technical Administration/Staff Inpatient Cafe Entrance Examination Goods/Technical Administration Inpatient
0m 5 10 Up Up Up Down Down Down Down Up 0.00 -0.05 -0.05 0.60 -0.10 0.00 -0.05 -0.20 0.00 -0.60 7 7 7 7 7 7 7 6 6 9 10 11 11 14 16 17 18 19 20 21 15 13 12 12 12 8 6 6 6 6 6 6 6 6 2 3 4 4 5 5 1 8 7 6 5 2 4 6 3 1 9 10 12 4 11 Dental care 1. Waiting-Reception area 2. Back Office-printing 3. Toilet-Patient 4. Toilet-Staff 5. Office 6. Lunch room 7. Conference room 8. Changing room 9. Cafe 10. Storage-Cafe 11. Phamacy 12. Storage-Phamacy Primary care 1. Waiting-Reception area 2. Back Office 3. Self check 4. Toilet-Patient 5. Toilet-Staff 6. Office 7. Examination room 8. Infection Waiting 9. Infection Examination 10. Emergency Examination 11. Lab 12. Lab-Sampling 13. Lab-Storage 14. Storage 15. Communication room 16. Activity-Water 17. Activity-Kitchen 18. Copy and Storage 19. Medicine 20. Recycling 21. Unpacking N
Reception/Childcare/Familycenter Adminatration/Goods Inpatientward Lab/Infection/Exam/Emergency
Cafe GROUND FLOOR
ZONING & LAYOUTS

SECOND FLOOR

The second floor houses the staff areas and the inpatient ward, which are divided into the southern and a northern wings.

By locating the inpatient wards along the southern facade, the inpatients have access to the most natural sunlight in the building, making their stay more enjoyable.

Similar to the Gound and first floors, a modern space is formed between the two wings, linking both functions and providing a large green balcony, giving sufficient sunlight and designing a natural environment for staff dining and patient relaxation.

FIRST FLOOR

The first floor features a central waiting area as an extension of the main waiting area below, and also serves as a common meeting space where staff and patient flows may intersect.

The examination rooms have also been grouped by type, so that staff with certain specialisations can have offices and examination rooms nearer to each other, while patients can find the rooms more easily.

To effectively separate staff and patient flows, we have implemented two corridors in each building, one facing the central waiting area for the patients, and one sandwiched between the examination rooms and offices for the staff. By adopting this strategy, we have reduced the distance staff and patients have to walk, while allowing patients to get a glimpse of the examination rooms on the first floor while standing in the waiting area on the ground floor, improving wayfinding.

Page 17 Dental care 1. Waiting area 2. Toilet 3. Office/conversation room 4. Examination room 5. Technology room 6. Desinfection room 7. Main storage room 8. Supply Primary care 1. Examination(Gynaecology) 2. Examination(Special Nurse) 3. Office 4. Examination(Eyes & Ears) 5. Examination(Ears) 6. Examination room 7. Office/Meeting-Psychosocial 8. Conference room-Psychosocial 9. Toilet 10. Storage 11. Teledata 12. Central-E 1 1 1 2 2 3 4 5 6 7 8 8 9 10 10 11 11 12 13 13 14 15 16 17 18 19 20 20 20 20 20 20 20 20 21 21 21 21 21 21 21 21 21 Down Down 6.60 3 Down 3.30 3 2 1 4 4 5 7 6 4 8 4 4 8 5 11 12 10 1 3 2 3 3 12 11 3 3 3 3 10 3 3 3 3 3 10 2 6 6 6 5 4 2 2 2 2 6 6 6 9 9 9 9 8 7 7 Down Down Down 3.30 Primary care 1. Office 2. Supply 3. Main storage room 4. Technology room 5. Medicine 6. Cleaning 7. Toilet with shower 8. Toilet 9. Changing room 10. Heating 11. Electricity 12. Reating 13. Kitchen 14. Conference room 15. Staff lounge 16. Inpatient lounge 17. Outdoor area 18. Laundry 19. Linnen 20. Inpatient room 21. Inpatient toilet
Vadstena Primary Care Centre Section A-A Elevation A 3.30 6.60 11 00 14 40 0.00 Section C-C Section B-B 3.10 6.20 11.00 0.00
& MODERN
TRADITIONAL

As seen in the sections and elevations, the project is a complex blend of the traditional architecture native to Vadstena and modern building methods, resulting in a seemingly traditional structure that blends in with its environment, with modern in-between spaces.

As pedestrians approach the primary care, they will see a traditional building that conforms to the norms of other buildings on site, as in Elevation C. However, as they get closer to the entrance, the building’s more modern features expose themselves, as seen in elevation A.

This concealment of the modern from the main roads allows the building to blend in with its environment while reaping the benefits of modern construction.

Capitalising on the possibilities of modern construction, these in-between spaces are made tobe large double-volume waiting areas encapsulated by glass curtain walls, flooded with sunlight, and populated with indoor flora, which are especially evident in Section A-A. As seen in Section B-B, the positioning of our buildings creates a new common entrance square to both the dental care and primary care, resulting in a series of squares and parks chained together by the modern in-between waiting areas in both buildings.

The modern extension in the primary care also retains a certain degree of symmetry and uniform rhythm, as seen in Elevation A, which are paramount to the traditional style of the buildings in Vadstena.

Page 19
Elevation B Elevation C 3.30 3.10 6.60 6.20 11 00 11 00 14 40 -0 60 0.00 0.00

EXTERIOR FACADE DETAILS

The facade is a juxtaposition of Traditional and Modern patterns. The local history and aesthetic is respected as much as possible while creating a modern space that brings a new experience. When standing from a distance the building blends with its surroundings, and the modern elements reveal themselves on approach.

Traditional pattern facade:

Existing elevation: Normally the windows are symmetrical two by two or one by one with normal size. Nearly all exterior facade are built by bricks.

Modern pattern facade:

The modern part will act as a link between the different functions of the traditional form of the building.

The 'in-between' space of the traditional buildings is embedded with a modern glass atrium, that will work as a waiting area for patients.

In the dental care building, a middle segment is also hollowed out to create a moders glass waiting area. Materials:

Vadstena Primary Care Centre
Existing roof: Red roof tiles. Gable roof or Hipped gable roof. Ground floor First floor Second floor Equipment floor -0.18 0.00 3.33 0.85 2.20 4.15 5.80 7.76 6.66 9.99 10.8 Impatient ward Office Office ROOFTILES 22X50 BATTEN 22X95 COUNTER BATTEN MEMBRANE 22X95 TONGUED AND GROUVED BOARD 28 AIR GAP 45X300 RAFTER S1200 300 INSULATION VAPOR BARRIER 22X95 SECUNDARY SPACED BOARDING 19 OSB 228X108X54 BRICK 40 AIR GAP 50 HARD INSULATION BOARD 6 FIBERCEMENT BOARD 45X95 LATCH/INSULATION S600 0,2 VAPOUR BARRIER 45X45 LATCH/INSULATION S450 12 OSB 13 PLASTERBOARD 2 PVC FREE VINYL MATT 22 FLOOR BOARD 45X220 GLULAMBEAM 220 INSULATION 22X95 SECUNDARY SPACED BOARDING 19 OSB 250 INSTALATIONS 50 SUSPENDED CEILING 2 PVC FREE VINYL MATT 20 NOISE REDUCING MATT 200 CONCRETE 300 INSULATION 200 MACADAM FIBER CLOTH
Ground floor First floor Second floor -0.18 0.00 3.30 0.85 2.20 4.40 6.60 10.0 Handrail Glass curtain wall Metal components Middle waiting Waiting Bridge Lunch/ Leisure space Waterproof glass pitched roof Wooden Frame
Wooden Structure Metal components 30 WOODEN FRAME 50 3-GLAZED FACADE 150 WOODEN FRAME 2 PVC FREE VINYL MATT 20 NOISE REDUCING MATT 200 CLT WOOD 2 PVC FREE VINYL MATT 20 NOISE REDUCING MATT 200 CONCRETE 300 INSULATION 200 MACADAM FIBER CLOTH
Glass curtain wall(Elevation) Glass roof plan

INTERIOR DESIGN DETAILS

Examination Room & Office Layouts

In the modern parts, wooden panels are arranged to form the false ceiling, concealing the building's ventilation and heating. Strip lights are placed along circular wooden installations, acting as complementary light in the evenings and in winter.

The ceilings in the traditional style building (Examination areas) are fitted with standard white plaster ceiling panels to distinguish the waiting and examination areas. The ceiling lights are designed for daily lighting.

High windows are added in examination rooms facing the well lit central waiting area to protect the privacy of patients while maximising sunlight into the examination rooms.

Others

The Examination room includes two zones: Treatment and Consultation. The treatment zone is adjacent to the entrance and has sufficient space to move the bed in and out. The consultation zone adopts a more relaxed setting with an extra seat for relatives that want to sit in for the consultation.

Different materials/colours are used to distinguish different types of doors. Some text and logos clearly identify the different rooms.

Single sofas placed randomly in the atrium bridge for patients.It can be moved by the patient depending on the sunlight, view etc.

Patient

Staff

FlexibleSpace: All offices will be designed in the same size, making them more flexible for future proofing.

Primary care centers are functional buildings that are constantly changing, the design needs to take the changing needs of the future development into account .

Individual office spaces have been provided for each staff (2 person office), which also exceeds the needs of the client. However, we have designed each office to be of a uniform size to allow for future changes in its functional use.

Page 21
Round wooden handrail uniform colours and
a warm feeling.
|Wood
Ceiling
material and design
structure, White paint, Wood/Brick decoration.
|Wood
Wall material and design
structure/decoration, Colors paint, Text.
a b c d 2-person Office 3600 2500
Two 2-per Office --> One 6-per Office Three 2-per Office --> Two Exam room Three 2-per Office --> One Gym 2500 5475 7350 11100

EXTERIOR PERSPECTIVE: DROP OFF POINT FOR THE PRIMARY CARE CENTRE

EXTERIOR PERSPECTIVE: APPROACHING THE DENTAL CENTRE

Vadstena Primary Care Centre

INTERIOR PERSPECTIVE: PRIMARY CARE CENTRE WAITING AREA

INTERIOR PERSPECTIVE: PRIMARY CARE CENTRE STAFF/INPATIENT AREA

INTERIOR PERSPECTIVE: DENTAL CENTRE WAITING AREA

Page 23

THE SUBTERRANEAN LIBRARY

Date April 2022

Advisor

CHAW Chih Wen

Brief

The studio’s inquiry starts with an uncovering of an alternative truth for staircases, where students are challenged to redefine and look beyond the banal. Upon overcoming the obstinacy latent in this element, these “new found” truths will be deployed as systems that will guide the architectural schema for a community library; and hopefully in doing so, enable a typological shift in the library.

FEATURED IN ARCHIVAL 2022, AN EXHIBITION FEATURING SELECTED STUDENT WORKS

Page 25

THE VISTA

One North Park is a green belt that connects all the industry hubs in One North to Buona Vista. Through the emulation of naturally occuring geographic forms, this building wil serve as an extension of the green belt, and provide an alternate more pleasant route to reach Star Vista’s main entrance from the bus stop. This specialised library will not only house a collection of knowledge pertinent to the adjacent research centres, it will also serve as a space where professionals from the arts and science fields in Biopolis, Mediapolis and Fusionopolis can meet and exchange ideas.

This project also aims to challenge staircase conventions, to create a deeper relationship between the staircase and the building’s program, beyond merely connecting floors. By varying the properties of the staircase, such as curvature, solidity, and riser height, staircases of different qualities are created to serve diferent functions. These staircases also define the form of the building, replacing walls, floors, and ceilings, deepening the intimacy between the stair and the user.

The Subterranean Library
Site Plan & Analysis
Page 27 Basement Plan Level 1 Plan Level 2 Plan Roof Plan
The Subterranean Library Section Section
CAVES, CANYONS & CONTOURS
Page 29 Section B-B Section A-A

STAIRCASES & FLOW

The Subterranean Library
Entrance Facing One-North Park Thoroughfare
Subterranean Library
Open Cinema
Page 31
Thoroughfare Bird’s Eye View Top down View

THE ATELIER

Date November 2021

Advisor

Jacqueline YEO

Brief

Using key comparative metrics of Density, Mass, Program and Plot Sizes, this project draws observations on the variety of Urban Courtyards and begins to predict and formulate a new vocabulary of spatial courtyard constructs. Drawing upon the contextual relevance at Paya Lebar Air Base, a robust brief for a building no more than 3000 square meters in Gross Floor Area is formulated, targeting a specific micro site. Through the deployment of the courtyards as the main activity space within, between and surrounding the existing and new buildings, the development makes a conscious articulation of new thresholds and boundaries within the urban fabric.

The Final Proposal embodies the notions and formal characteristics of the courtyard, resulting in a celebration of Publicness and Urbanism in an increasingly densified context.

FEATURED IN ARCHIVAL 2022, AN EXHIBITION FEATURING SELECTED STUDENT WORKS

Page 33

COURTYARD STUDIES

The Atelier

3 STAGES OF CREATIVITY

Modular aggregation of the 3 stages of the creative process

Implementation

Hands on Design Workshops + Presentation Spaces

Evaluation

Connection to Prefabrication Hubs + Meeting & Discussion Spaces

Illumination

Design Library + Rest & Ideation Spaces

Page 35

THE ATELIER

The prefabrication Nucleus of PLAB

The Atelier is a shared workspace targeted at students and designers that highlights the prefabrication method while enabling residents of PLAB to bypass the existing manufacturing hubs to access a park. The prefabricated modules that form the building are catered to each of the three stages of the design process: Illumination, Implementation, and Evaluation. These modules are aggregated in a structured yet seemingly organic way. Following the same structural philosophy of trees, each building consists of a large trunk like core with medium sized units that branch out of it, and many small modules along their peripheries, likes leaves on a tree.

Through the aggregation process, a series of non linear voids were created, defining courtyards of various qualities. At the smallest scale, each module consists of balcony-like courtyards that overlook each other, creating a greater sense of depth and volume as opposed to vertically stacked balconies. At the medium scale, courtyards become spaces of interaction; nodal points in the modular tesselation. At the largest scale within each building, the courtyard is part of an airwell that illuminates the building’s interior, breathing life into the building. Spaces between buildings also become courtyards, with water features to anchor lines of sight from the onlooking balconies, creating more views for the building’s users and also allowing for more heat dissipation for the naturally ventilted units.

This project has illustrated the possibilities of using prefabrication at an urban scale to create nonmonotonous spaces for both public and private use. It would serve as an asset to the prefabrication hubs of Kaki Bukit, helping to stimulate the industry, creating a manufacturing nucleus to serve the developments in PLAB.

The Atelier
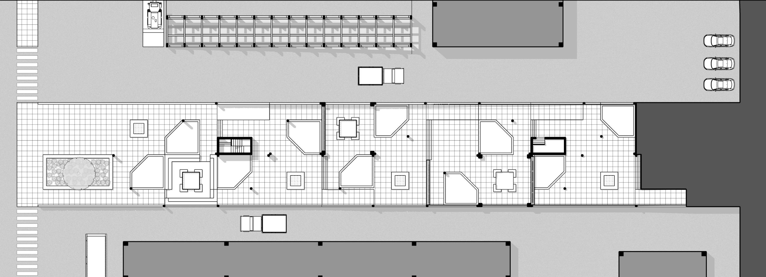
Page 37 Ground Level Plan Roof Garden Plan Level 2.5 Plan Level 3 Plan Level 3.5 Plan Level 4 Plan

URBAN COURTYARDS

The site is a 15x85m plot that is sandwhiched between the GreyForm and CKR Group Prefabrication Hubs. The modules have increased ceiling height, as seen by the voids in the sections. One of the Evaluation Buildings is conected to the office spaces at the Atelier to engage with clients. The other Evaluation Building is conected to CKR Group for the same reason. Apart from staircase cores that bind the buildings together, and serve as a connector between the buildings. The four buildings of the Atelier slopes down to the park, creating a scenic rooftop that overlooks the park. The rooftop can be traversed without having to navigate

The Atelier

have been arranged to create a pocket of space at the ground level with at Greyform, so industry experts can easily access the meeting facilites at hydraulic piston lifts servicing each building in its ‘trunk’, there are two Atelier are each one module shorter than the other, resulting in form that navigate through the modules to move between buildings.

Page 39
Section A Section B

MODULAR AGGREGATION

Roof Garden

The canopy of the ‘tree’

Small modules

The leaves of the ‘tree’

Medium modules

The branches of the ‘tree’

Large modules

The trunk of the ‘tree’

Page 41
V i k r a m K a n n a p p a n

Turn static files into dynamic content formats.

Create a flipbook
Issuu converts static files into: digital portfolios, online yearbooks, online catalogs, digital photo albums and more. Sign up and create your flipbook.
Vikram Kannappan Architecture Portfolio by Vikram Kannappan - Issuu