Vidhi Araniya Vachhani - Professional Work Portfolio

Page 1

Work Portfolio
Ar. Vidhi ArAniyA VAchhAni

CONTENT

Thakar villa, Rajkot

Residential Bungalow

Marvel Plus, Rajkot

Mixed use commercial, Multiplex and High Rise Residential Scheme

Mr. Harshal lalwani’s Residence, Rajkot

Residential Bungalow

Mr. Jay Patel’s Residence, Rajkot

Residential Bungalow

Gokuldham Gardenia, Palanpur

Residential Housjng Scheme

Temple Flower, Behrampur, Orissa

High Rise Residential Scheme

Mr. Shahil’s Residence, Rajkot Residential

Adroja’s Farmhouse, Morbi Weekend House 1. 2. 3. 4. 5. 6. 7. 8. 5 8 13 18 22 28 31 32 Disclaimer:
projects
limited drawings
designers
full title
unauthorized use,
drawings,
whole
part,
prior written
status
work.
Bungalow
The drawings featured in this portfolio are the intellectual property of the architectural firms I have collaborated with. Due to the original rights belonging to these firms, only a selection of
with
are presented here. The original architects or
retain
and ownership of these distinctive creations. Any
reproduction, or distribution of these
in
or in
is strictly prohibited without
consent. It’s important to acknowledge that the projects showcased in this portfolio may not represent the current
of my

THAKAR VILLA, RAJKOT

RESIDENTIAL BUNGALOW

Details:

- Plot area - 1,256 sq. ft.

- Client - Mr. Bharat Thakarshi Vadoliya

- G+3 residential bungalow which have parking, living, dining, kitchen, wash, puja room, parents room, master bedroom, guest bedroom, multipurpose room and terrace

5 Neorama Designs
SITE LOCATION SITE PLAN ELEVATION
2.
AS PER FLOORS 3. SPLIT LEVELS TO CREATE VOLUME IN LIVING
1. NORMAL MASSING
PLACING OF ACTIVITIES
ROOM 4. LIGHT SHAFT AND STAIRCASE 5. MASS AND VOID WITH COLOR
6 Neorama Designs Legends: 1. Parking 2. Foyer 3. Living 4. Dining 5. Kitchen 6. Wash 7. Puja room 8. Parents bedroom 9. Master bedroom 10. Guest bedroom 11. Sitting area 12. Toilet 13. Multipurpose room 14. Terrace 15. Porch 16. Store 17. Light and wind shaft
PLANS ELEVATION AND SECTION THROUGH LIGHT SHAFT ISOMETRIC VIEW 1
FLOOR

The residence is tightly clutched between the existing row houses, constraining the natural penetration of light and wind, and hence we conceptualized the house around a vertical shaft that allows the natural light and wind to enter the building. So the fundamental idea of design is called ‘Sectional Play’ and the creation of volumes that revolve around the idea of developing this house as a ‘House of Interaction’. We designed the house to minimize the circulation spaces and optimize the usable spaces within the house according to needs of individual members.

7 Neorama Designs
ISOMETRIC VIEW 2
SECTION FROM LIGHT SHAFT SECTION FROM STAIRCASE ACTUAL PHOTOS

MARVEL PLUS AND MARVEL HEIGHTS, RAJKOT

MIXED USE COMMERCIAL, MULTIPLEX AND HIGH RISE RESIDENTIAL SCHEME

Details:

- Plot area - 56,856 sq. ft.

- Per. Fsi - 2.7

- Client - Dharmeet Developer

- G+5 commercial complex which includes shops, showrooms, 5 screen theatre, open restaurant on terrace

- G+14 residential 2bhk appartment - 650 carpet with amenities at first floor

- Food court between the buildings

8 Maatra Architects
ROAD SIDE BIRD EYE VIEW
9 Maatra Architects TYPICAL RESIDENTIAL FLOOR PLAN GROUND FLOOR WORKING PLAN RAMP DOWN 12"x30" 12"x30" 24"x24" 24"x30" 24"x30" 12"x30" 12"x33" 24"x30" 24"x30" 24"x30" 9"x27" 18"x36" 12"x30" 12"x30" 12"x30" 12"x30" 9"x18" 24"x30" 24"x30" 24"x30" 24"x30" 24"x30" 21"x21" 12"x36" 18"x36" 12"x30" 24"x24" 30"x30" 30"x30" 30"x30" 24"x30" 24"x36" 24"x30" 24"x30" 24"x30" 24"x30" 30"x30" 33"x33" 24"x30" 24"x30" 30"x30" 30"x30" 30"x36" 30"x36" 24"x30" 24"x30" 24"x30" 24"x30" 30"x36" 24"x30" 24"x30" 24"x30" 24"x30" 24"x30" 24"x30" 24"x36" 24"x30" 24"x30" 24"x30" 24"x30" 24"x30" 24"x30" 24"x30" 24"x24" 24"x30" 24"x30" 9"x36" 9"x36" 9"x30" 9"x27" 9"x36" 9"x36" 9"x36" 9"x36" 9"x36" 9"x30" 9"x36" 9"x30" 10 11 12 14 LC1 LC2 LC3 LC4 LC5 LC6 15 16 18 19 20 21 22 23 24 25 26 27 28 29 30 31 33 34 35 36 37 38 39 40 41 42 43 44 46 47 48 49 50 51 54 55 56 57 58 59 60 62 63 64 65 66 LC7 LC8 LC9 LC10 LC12 LC11 9"x18" RAMP DOWN PASSAGE 8'3" WIDE PASSAGE 17'6" WIDE PASSAGE 8'3" WIDE PASSAGE 8'3" WIDE PASSAGE 8'3" WIDE LIFT 6'0" 7'5" LIFT 6'0" 7'5" LIFT 6'3" X 6'6" UP UP LIFT 6'3" X 6'6" UP 10 11 12 16 17 18 19 20 22 23 25 26 ENTRANCE FOYER UP LIFT 6'0" X 6'7" LIFT 6'0" X 6'7" 10 11 12 13 14 15 18 19 2120 22 23 24 25 RAMP DOWN 11 12 13 14 16 17 18 19 21 24 15 slope slope air exhaust cutout air exhaust cutout SHOWROOM-12 25'0" 10'0" SHOWROOM-39 30'0" 10'0" CARPET 300 SQ. FT. SHOWROOM-19 25'0" 10'0" CARPET 250 SQ. FT. SHOWROOM-45 30'0" X 17'10" CARPET 535 SQ. FT. CARPET 250 SQ. FT. CARPET 250 SQ. FT. SHOWROOM-29' 11'2" X 30'9" CARPET 343 SQ. FT. SHOWROOM-20 25'0" X 10'0" SHOWROOM-21 25'0" 10'0" SHOWROOM-22 25'0" X 10'0" SHOWROOM-23 25'0" 10'0" SHOWROOM-24 25'0" X 10'0" SHOWROOM-40 30'0" 10'0" SHOWROOM-41 30'0" 10'0" SHOWROOM-42 30'0" 10'0" SHOWROOM-43 30'0" 10'0" SHOWROOM-44 30'0" 10'0" CARPET 852 SQ. FT. SHOWROOM-8 28'0" X 30'9" CARPET 250 SQ. FT. CARPET 250 SQ. FT. CARPET 250 SQ. FT. CARPET 250 SQ. FT. SHOWROOM-7 30'9" 10'0" CARPET 307 SQ. FT. CARPET 380 SQ. FT. SHOWROOM-9 12'4" 30'9" CARPET 380 SQ. FT. SHOWROOM-10 12'4" X 30'9" CARPET 515 SQ. FT. SHOWROOM-11 16'9" 30'9" CARPET 300 SQ. FT. CARPET 300 SQ. FT. CARPET 300 SQ. FT. FEMALE TOILET MALE TOILET ELECTRIC SHAFT air exhaust cutout MAIN ENTRY SHOWROOM-1 62'11" 69'2" SHOWROOM-2 60'3" 72'6" R24'-714 GROUND FLOOR 9'-11" 1'-3" 2'-3" 4" 7'-4" 11'-2" 16'-9" 12'-4 12'-4 4" 1'-9" 2'-3" 4" 8'-0 1'-3" 2'-3" 8'-61 1'-3" 2'-3" 12'-11" 15'-6" 10'-8 11'-4" 18'-48 R3'-1014 21'-3" 23'-5 4" 1'-9" 2'-3" 25' 30'-9" 26'-6" 30'-9" 60'-3" 31'-6" 37'-8" 2'-2" 1'-10" 2'-3" 2'-3" 4" 1'-10" 45'-1" 9" 5'-7" 6'-7" 6'-7" 9" 10' 4" 10' 4" 10' 10' 10' 10' 3'-4" 6'-8" 3'-4" 6'-8" 6'-8" 3'-4" 3'-4" 6'-8" 6'-8" 3'-4" 3'-4" 6'-8" 9" 30' 6'-8 3'-4" 3'-4" 6'-8" 6'-8" 3'-4" 3'-4" 6'-8" 6'-8" 3'-4" 3'-4" 6'-8" 8'-10 3 4 4'-9 4 26'-10 29'-8" 13'-8 1 1'-3" 2'-3" 4" 3'-6" 3'-6" 2'-3" 1'-3" 2'-3" 1'-3" 3'-6" 2'-3" 1'-3" 1'-3"2'-3" 4" 2'-3" 1'-3" 3'-6" 1'-3" 2'-3" 4" 4" 4" 4" 4" 4" 17'-9" 4" 14'-2" 2'-3" 3' 3'-6" 1'-3" 3' 3'-6" 2'-3" 4" 2'-3" 2'-3" 4" 1'-3" 3'-6" 2'-3" 1'-3" 4" 25' 1'-3" 25' 21'-2" 26'-2" 30' 26'-2" 30' 26'-2" 16'-6" 4" 6'-1" 1'-3" 8'-3" 10'-3" 10'-3" 25' 9" 30'-1 27'-7" 3'-6" 3'-6" 2'-3" 1'-3" 1'-3" 2'-3" 4" 21'-2" 3'-4" 6'-8" 10' 21'-7" 4" 3'-6" 3'-6" 4" 36'-6 2'-3" 2'-10" 2'-3" 19'-838 13'-7 6'-3" 9" 9" 6'-3" 9" 15'-2" 6'-7" 2' 6'-7" 10'-1 4'-9 7'-9" 20'-4" 6'-3" 6'-7 1 2 6'-7 1 2 7'-8" 5' 9" 13'-7" 23'-2" 9" 9'-0 13'-1 13'-1 1 14'-2" 3' 10'-10" 14' 10'-5 5' 10'-1" 5' 5' 3'-6" 3' 3'-6" 3'-6" 3' 3' 4' 3'-9" 3'-9" 4" 3' 10'-3" 57'-2 66'-1 41'-2 2'-2 1 8 25' 17'-7" 28'-1" 6'-11" 10'-6 3 4 10'-1 1 4 2'-6" 6'-7" 10' 6'-7" 6'-7" R.S. R.S. R.S. R.S. R.S. R.S. R.S. R.S. R.S. R.S. R.S. R.S. R.S. R.S. R.S. R.S. R.S. R.S. D2 D2 D2 D2 D2 D2 D2 D2 D2 D2 D2 D2 D2 D2 D2 D2 D2 D2 D1 D1 D2 D2 5'-6 1 25'-9" 8' 5' 3' 2'-3" W1 6'-11" 4' 2' 8' 8' 15"X39" 15"X39" 12"X39" 12"X39" 12"X39" 5A 9"X36" 12"X39" 11 12"X45" 14 12"X36" 12"X39" 13 12"X45" 16A 12"X42" 16 12"X36" 17 12"X39" 18 12"X39" 19 12"X39" 20 12"X36" 21 12"X36" 12"X36" 23 12"X36" 24 25 12"X39" 26 12"X39" 26A 27 12"X36" 28 12"X36" 29 12"X39" 31 12"X45" 33 12"X45" 34 35 12"X39" 36 38A 12"X42" 37 38 12"X39" 41 12"X36" 12"X36" 39 15"X39" 40 15"X39" 10A 30A 9"X24" LIFT 5'7" 6'3" LIFT 5'7" 6'3" LIFT 5'7" 6'3" LEVEL +1'6" LEVEL +5'0" LEVEL +5'0" LEVEL +0'0" LEVEL +5'0" LEVEL +1'6" LEVEL +1'6" LEVEL +1'6" LEVEL +1'6" LEVEL +4'6" slope RAMP DOWN LEVEL +5'0" LEVEL +5'0" LEVEL +4'0" LEVEL +0'0" LEVEL +2'6" LEVEL +2'6" 17 14 12 11 19 18 16 13 11 10 19 LEVEL +5'0" LEVEL +5'0" LEVEL +5'0" LEVEL +5'0" LEVEL +5'0" LEVEL +5'0" LEVEL +5'0" UP UP UP UP LEVEL +2'0" LEVEL +1'6" LEVEL +1'0" LEVEL +3'0" LEVEL +3'6" LEVEL +4'0" RESIDENTIAL ENTRY GATE cutout cutout cutout cutout air exhaust cutout SHOWROOM-54 SHOWROOM-53 15'0" X 9'7" SHOWROOM-50 15'0" 9'11" 35'10" 15'9" SHOWROOM-46 35'10" 12'4" SHOWROOM-47 35'10" 15'9" SHOWROOM-51 15'0" 10'9" SHOWROOM-52 15'0" 10'9" SHOWROOM-56 10'1" 24'2" SHOWROOM-55 10'1" 24'2" SHOWROOM-49 LEVEL +5'0" PARKING LEVEL +4'6" PLATFORM THE WASHROOMS STAIR 10'-1" 19' 3'-3" 9'-9" 4" 5'-4 3'-6" 1'-2 9'-9" 3'-6" 10'-2" 4" 3'-3"1'-11" 10' 12' 7' 7" 4" 4' 5'-7" 4" 10'-9 3 8 4" 10'-9 3 8 4" 5'-6" 4'-5" 4" 3' 9'-4" 4" 15'-9" 4" 15'-9" 4" 9'-4" 3' 14'-9" 3" 14'-9" 3'-6" 3'-3" 5'-3" 3' 15' 9'-6" 3'-6" 14'-9" 9'-4" 10'-4 4" 10'-4 1' 9'-8" 4" 11'-11" 1' 15'-2" 1' 15'-2" 1' 11'-11" UP 15' 15' 8'-11" 1' 4" 14' 3'-9" 7'-5" 9'-0 3 4 1' 13'-2" 1' 5'-11" 1' 6' 4" 10'-1 1' 6' 4" 3'-6" 7'-10" 14' 4" 9" 9" 10'-1" 8'-7" 5'-11" 10'-1" 10'-1" 3'-3" 11'-6" 11'-2" 9" 15'-9 3'-6" 1'-9 9'-4" 2'-3" 9" 7'-5 9" 4" 4" 3'-6" 9" 7'-10" 2'-8" 14' 7'-5" 2'-0 1'-3 9" 5'-7" 7'-7" 6'-9" 9" 6'-9" 7'-7" 7' 14' 9" 7'-9" 13'-7" 3' 5'-6" 3' 15'-9" 4" 4" 15'-9" 4" 9'-4" 4" 15'-9 3'-6" 1'-9 3'-3" 14'-6 14'-6 2'-6" 9" 35'-10" 9" 9" 9" 9" 2'-6" 14'-9" 2'-6" 14'-6 14'-6 3'-3" 35'-10" 35'-10" 35'-10" 9" 6'-8 4'-4" 2'-11" 4'-3" 3'-3" 6'-2 2 18'-2" 6'-7" 15'-9" 35'-10" 5' 9" 1'-11" 24'-2" 8'-3 20' 8'-3 10" 10" 10" 10" 9" 9" FIX GLASS 9'-5" 7' 3'-6" 2'-6" 2'-3" R.S. LOUVERS LOUVERS W1 6'-2 3' 4'-6" 2'-6" LEVEL +4'6" LEVEL +5'0" LEVEL +4'6" LEVEL +5'0" DOOR WINDOW SCHEDULE (COMMERCIAL PART) DOOR WINDOW SCHEDULE (COMMERCIAL PART) RESIDENTIAL EXIT GATE slope slope slope LEVEL +0'0" LEVEL +1'6" LEVEL +1'6" LEVEL +1'6" LEVEL +4'6" LEVEL +4'6" 9" LIVING/DINING 17'3" 12'0" BEDROOM 7'0" 4'0" TOILET 7'0" X 3'9" TOILET 6'9" 4'0" S.B. S.B. S.B. S.B. LIVING/DINING 17'3" 12'0" BEDROOM 12'0" X 10'0" BEDROOM 12'0" X 12'0" TOILET 7'0" 3'6" TOILET 6'9" 4'0" BEDROOM 12'0" 10'0" BEDROOM 12'0" 12'0" WASH 7'0" X 4'0" KITCHEN/ DINING 7'0" 16'0" TOILET 6'9" 4'0" S.B. 12'0" 10'0" BEDROOM 12'0" 12'0" WASH 7'0" 4'0" TOILET 7'0" 3'6" TOILET 6'9" 4'0" S.B. S.B. LIVING/DINING 17'3" 12'0" LIVING/DINING 17'3" 12'0" BEDROOM 12'0" 12'0" LIVING/DINING 17'3" 12'0" WASH 7'0" 4'0" TOILET 6'9" 4'0" S.B. S.B. S.B. S.B. LIVING/DINING BEDROOM 12'0" 10'0" BEDROOM 12'0" 12'0" WASH 7'0" 4'0" KITCHEN/ DINING 7'0" 16'0" TOILET 6'9" 4'0" BEDROOM 12'0" 10'0" BEDROOM 12'0" 12'0" WASH 7'0" 4'0" KITCHEN/ TOILET 7'0" 3'9" TOILET 6'9" 4'0" S.B. CARPET AREA 650.00 SQ.FT. BEDROOM 12'0" 10'0" BEDROOM 12'0" 12'0" WASH 7'0" 4'0" TOILET 7'0" 3'6" TOILET 6'9" 4'0" S.B. CARPET AREA 645.00 SQ.FT. LIVING/DINING KITCHEN/ DINING 7'0" 16'0" BEDROOM 12'0" 12'0" UP DN KITCHEN/ DINING 7'0" 16'0" TOILET 7'0" 3'9" LIFT 5'7" 6'3" CARPET AREA 650.00 SQ.FT. CARPET AREA 645.00 SQ.FT. CARPET AREA 645.00 SQ.FT. CARPET AREA 645.00 SQ.FT. 13'6" 10'6" PASSAGE 13'6" 33'9" UP DN CARPET AREA 650.00 SQ.FT. KITCHEN/ DINING 7'0" 16'0" KITCHEN/ DINING 7'0" 16'0" PASSAGE 13'6" 33'9" O.D.U. O.D.U. BALCONY BALCONY BALCONY BALCONY TOILET 7'0" 3'6" 9"X36" 9"X36" 12"X39" 12"X39" 5 9"X39" 12"X36" 12"X36" 5A 9"X36" 12"X36" 14 9"X36" 12"X36" 12"X42" 16A 16 9"X36" 17 12"X36" 18 12"X36" 19 12"X36" 20 9"X36" 21 9"X36" 22 9"X36" 23 9"X36" 24 12"X36" 25 12"X36" 26 12"X36" 26A 9"X42" 27 9"X36" 28 9"X36" 12"X36" 31 33 12"X42" 34 9"X36" 35 12"X36" 12"X36" 38A 9"X42" 12"X36" 38 9"X39" 41 9"X36" 42 9"X36" 39 12"X39" 40 12"X39" 1'-3" 4'-9" 1'-3" 10" 4'-3" 1'-6" 7'-0 3'-3" 3'-3" 3'-4 2'-1" 2'-6" 4'-9" 3'-10" 2'-6" 4'-6" 6'-7" 3'-3" 2'-3" 4'-3" 2'-3" 4'-6" 2'-6" 4'-3" 2'-3" 3'-4 2'-6" 2'-3" 2'-3" 3'-3" 4'-3 2'-3" 3'-4 2'-3 2'-6" 1'-6" 2'-3 3'-4 4'-3" 2'-6" 2'-6" 2'-3" 2'-9" 2'-6" 4'-6" 2'-3" 4'-3" 2'-6" 2'-3" 3'-4 2'-6" 4'-6" 3'-3" 2'-3" 2'-3" 2'-6" 4'-3" 1'-3" 4'-9" 3'-8" 4'-5" 3'-3" 2'-1" 2'-6" 4'-9" 4'-5" RESIDENTIAL TYPICAL FLOOR PLAN W4 MD 2'-1" 3'-8" 1'-2" 3'-10" 2'-6" 3'-3" 2'-6" 3'-6" 4' 9" 6'-9" 9" 6'-9" 4'-6" 3' 7'-6" DOOR WINDOW SCHEDULE CORNER UNIT 2'-3 3'-6" 7'-6" 2'-6" 4'-6" 3' 3'-3" 3' 2'-6" 7'-6" 7'-6" 9" 6'-9" 2'-6" 5' 3'-10" DOOR WINDOW SCHEDULE SANDWICH UNIT D1 W4 D1 W4 V1 D1 D1 NOTE :- ALL DIMENTIONS ARE FROM FINIESHED FLOOR (V1) AS PER SITE CONDITION 4'-3" 7'-0 7'-0 LIVING/DINING 17'3" 12'0" CARPET AREA 650.00 SQ.FT. KITCHEN/ LIFT 5'7" 6'3" LIFT 5'7" 6'3" 5'7" 6'3" N
10 ROAD LEVEL GROUND FLOOR (PLINTH) LEVEL LVL 0'0" 5' [1.52] LVL 5'0" 14' [4.27] LVL 19'0" 14' [4.27] 14' [4.27] 15' [4.57] 20' [6.10] 12' [3.66] FIRST FLOOR LVL 33'0" SECOND FLOOR THIRD FLOOR PROJECTOR ROOM FIFTH FLOOR LVL 47'0" LVL 67'0" LVL 94'0" TERRACE MARVEL PLUS MARVEL PLUS MOVIE POSTERS MOVIE POSTERS MOVIE POSTERS MOVIE POSTERS MARVEL PLUS LVL 87'0" Maatra Architects ELEVATION
RESIDENTIAL TOWER ELEVATION 2 RESI. TOWER ELEVATION 1 KEY PLAN ELEVATION
SHUTTER SHUTTER BURGER KING CAFE COFFEE DAY AMUL SHUTTER SHUTTER SHUTTER SHUTTER SHUTTER SHUTTER ELEVEN DOMINO'S PIZZA SUBWAY PIZZA HUT BELGIAN WAFFLE GROUND FLOOR (PLINTH) LEVEL FIRST FLOOR SECOND FLOOR 3RD FLOOR 4TH FLOOR 5TH FLOOR 6TH FLOOR 7TH FLOOR 8TH FLOOR 9TH FLOOR 10TH FLOOR 11TH FLOOR 12TH FLOOR 13TH FLOOR TERRACE FLOOR 9'-6" [2.90] 9'-6" [2.90] 9'-6" [2.90] 9'-6" [2.90] 9'-6" [2.90] 9'-6" [2.90] 9'-6" [2.90] 9'-6" [2.90] 9'-6" [2.90] 9'-6" [2.90] 9'-6" [2.90] 9'-6" [2.90] 9'-6" [2.90] 14TH FLOOR 9'-6" [2.90] 9'-6" [2.90] ROAD LEVEL SHUTTER SHUTTER SHUTTER PIZZA STUDIO BASKIN ROBINS HOCCO 5' [1.52] LVL = 0'0" LVL = 5'0" LVL = 14'6" LVL = 24'0" LVL = 33'6" LVL = 43'0" LVL = 52'6" LVL = 62'0" LVL = 71'6" LVL = 81'0" LVL = 90'6" LVL = 100'0" LVL = 109'6" LVL = 119'0" LVL = 128'6" LVL = 138'0" LVL = 147'6" SHUTTER 1 A B 2 A B GROOVE PLASTER RAILING TOP RAIL FROM METAL BOX SECTION GLASS RAILING BOTTOM RAIL FROM METAL BOX SECTION ARTICULATION PLASTER ARTICULATION PLASTER GROOVE PLASTER RAILING TOP RAIL FROM METAL BOX SECTION GLASS RAILING BOTTOM RAIL FROM METAL BOX SECTION RAILING TOP RAIL FROM METAL BOX SECTION GLASS RAILING BOTTOM RAIL FROM METAL BOX SECTION ARTICULATION PLASTER SHOWROOMS SHOWROOMS WASH ARTICULATION IN PLASTER GLASS RAILING BOTTOM RAIL FROM METAL BOX SECTION WASH ARTICULATION IN PLASTER MARBLE GROOVE IN PLASTER RAILING TOP RAIL FROM METAL BOX SECTION GLASS RAILING BOTTOM RAIL FROM METAL BOX SECTION ROLLING SHUTTER LVL = 0'0" LVL = 5'0" GROUND FLOOR (PLINTH) LEVEL FIRST FLOOR SECOND FLOOR 3RD FLOOR ROAD LEVEL LVL = 14'6" LVL = 24'0" LVL = 33'6" SHOWROOMS SHOWROOMS RESIDENTIAL RESIDENTIAL GROOVE IN PLASTER RAILING TOP RAIL FROM METAL BOX SECTION GLASS RAILING BOTTOM RAIL FROM METAL BOX SECTION ARTICULATION IN PLASTER ARTICULATION IN PLASTER GROOVE IN PLASTER RAILING TOP RAIL FROM METAL BOX SECTION GLASS RAILING BOTTOM RAIL FROM METAL BOX SECTION RAILING TOP RAIL FROM METAL BOX SECTION GLASS RAILING BOTTOM RAIL FROM METAL BOX SECTION ARTICULATION IN PLASTER SHOWROOMS SHOWROOMS WASH ARTICULATION PLASTER GLASS RAILING BOTTOM RAIL FROM METAL BOX SECTION WASH ARTICULATION PLASTER GROOVE PLASTER RAILING TOP RAIL FROM METAL BOX SECTION GLASS RAILING BOTTOM RAIL FROM METAL BOX SECTION ROLLING SHUTTER LVL 0'0" LVL 5'0" GROUND FLOOR (PLINTH) LEVEL FIRST FLOOR SECOND FLOOR 3RD FLOOR ROAD LEVEL LVL 14'6" LVL 24'0" LVL 33'6" LVL = 0'0" LVL = 5'0" GROUND FLOOR (PLINTH) LEVEL FIRST FLOOR SECOND FLOOR 3RD FLOOR ROAD LEVEL LVL = 14'6" LVL = 24'0" LVL = 33'6" SECTION A SECTION B N
B
A

BASIC SECTION FOR LEVELS AND ACTIVITY

INITIAL PROJECT DESCRIPTION:

The initial proposal for this project envisioned a mixed-use commercial complex featuring a multiplex and hotel. Construction progressed up to the completion of the cellar 1 slab,

which included over 100 columns. However, a survey conducted by the builder revealed that constructing solely a commercial building in the area was not feasible. Consequently, they opted to introduce a residential tower reaching G+14 floors on one side of the site. This necessitated the demolition of the entire cellar slab and columns, requiring a complete reevaluation and redesign of the project.

11 299 (REFER ST DETAIL) 301 302 303 304 305 300 1'-3" 1'-3" 1'-3" 1'-3" 1'-3" 1'-3" 9" 9" 24 270 269 RB4 RB3 290 282 291 283 292 284 293 285 286 294 294A 286A 295 287 296 288 297 289 TB TB TB TB TB 141 274 275 38 41A 63A 70 81 94 107 117 130 TB S1 S1 1' 1' 1' 11'-8" 1'-3" 9'-5" 1'-3" 9'-5 1 2 1'-3" 9'-5 1 2 1'-3" 10'-0 1 4 1'-3" 10'-6 1 4 1'-3" 9'-7 3 4 1'-3" 9'-11" 1'-3" 8'-8 1 2 1'-3" 12' 1' 12'-8" 1'-6" 1'-3" 1'-3" 1'-3" 11'-9" 9" 5' 11'-9" 11'-9" 9" 5' 11'-9" 1'-3" 1'-6" 11'-9" 9" 5' 11'-9" 11'-9" 9" 5' 11'-9" 1'-6" 1'-6" 11'-9" 9" 5' 11'-9" 1'-6" 11'-9" 9" 5' 11'-9" 1'-6" 11'-9" 9" 5' 11'-9" 1' 9'-3" 9" 10' 9" 9'-3" 1' 1'-3" 5' 3'-8" 9" 5' 2'-4" 9" 5' 9" 7 9" 5' 9" 3'-7 2 20'-0 1 2 20'-0 20'-0 1 2 11'-9" 9" 5' 11'-9" 20'-10" 3'-6 5'-7 3 4 8'-8 1 2 30' 24"x30" 24"x30" 24"x30" 30"x30" 24"x30" 24"x30" 24"x30" 10 20 33 41 49 57 66 299 5" 14 12"X36" 17 12"X39" 20 12"X36" 25 12"X39" 28 12"X36" 34 9"X36" 36 12"X39" 39 15"X39" ROAD LEVEL GROUND FLOOR (PLINTH) LEVEL LVL = 0'0" 5' [1.52] LVL = 5'0" ROAD LEVEL GROUND FLOOR (PLINTH) LEVEL LVL = 0'0" 5' [1.52] LVL = 5'0" light pole precast concrete seats to be installed directly concrete coping as seating 24 24"x30" 24"x30" 30"x30" 24"x30" 24"x30" 24"x30" 20 33 41 49 57 66 PASSAGE 8'3" WIDE LEVEL +4'6" LEVEL +4'6" LEVEL +0'0" C LEVEL +4'6" ramp in slope SECTIONCC 141 73 7" 19' [5.79] ROAD LEVEL GROUND FLOOR (PLINTH) LEVEL CELLAR LEVEL CELLAR LEVEL (GRADE SLAB) LVL -19'0" LVL -7'0" LVL 0'0" FOUNDATION BELOW 9'-6" [2.90] CELLAR LEVEL MASONRY WALL 12' [3.66] 5' [1.52] FIRST FLOOR SECOND FLOOR 3RD FLOOR 4TH FLOOR 5TH FLOOR 6TH FLOOR 7TH FLOOR 8TH FLOOR 9TH FLOOR 10TH FLOOR 11TH FLOOR 12TH FLOOR 13TH FLOOR TERRACE FLOOR 9'-6" [2.90] AMENITIES RESIDENTIAL UNIT RESIDENTIAL UNIT RESIDENTIAL UNIT RESIDENTIAL UNIT RESIDENTIAL UNIT RESIDENTIAL UNIT RESIDENTIAL UNIT RESIDENTIAL UNIT RESIDENTIAL UNIT RESIDENTIAL UNIT RESIDENTIAL UNIT RESIDENTIAL UNIT RESIDENTIAL UNIT 9'-6" [2.90] 9'-6" [2.90] 9'-6" [2.90] 9'-6" [2.90] 9'-6" [2.90] 9'-6" [2.90] 9'-6" [2.90] 9'-6" [2.90] 9'-6" [2.90] 9'-6" [2.90] 9'-6" [2.90] 9'-6" [2.90] 14TH FLOOR RESIDENTIAL UNIT 9'-6" [2.90] SHOWROOMS 14' [4.27] FIRST FLOOR SECOND FLOOR THIRD FLOOR 18' [5.49] 14' [4.27] SHOWROOMS SHOWROOMS SHOWROOMS THEATRE PROJECTOR ROOM SCREEN 3 SCREEN CONCESSION AREA PROJECTOR ROOM RESTAURANT 20' [6.10] 10' [3.05] SHOWROOMS SHOWROOMS RESTAURANT 9'-6" [2.90] 4'-6" SHOWROOMS 6" 12' 7' 93' [28.35] LVL -19'0" LVL -7'0" GROUND FLOOR(PLINTH) CELLAR 2 LEVEL (GRADE SLAB) 12' [3.66] TERRACE TERRACE PARKING 147'-6" [44.96] ROAD LEVEL LVL 0'0" LVL 5'0" LVL 19'0" LVL 37'0" LVL 51'0" LVL 71'0" LVL 81'0" TERRACE SLAB 5' [1.52] 12' [3.66] FOOD STREET CELLAR LEVEL CELLAR LEVEL CELLAR LEVEL 7' [2.13] 12' [3.66] LVL 5'0" LVL 93'0" CELLAR LEVEL Maatra Architects FOOD COURT DETAILS
PLANTER DETAIL FOOD COURT VIEW
2'-6" 1'-6" 5" 9'-6" 1'-6" 1'-6" 9" 5' 9" Section filling for plantation 9'-6" 1'-6" 9" 5' 9" 1'-6" Plan 1'-6" 9" 5' 9" 1'-6"
12 SCREEN 1 SCREEN 2 SCREEN 3 SCREEN 4 SCREEN 5 ENTRY TO SCREEN 5 ENTRY TO SCREEN 4 ENTRY TO SCREEN 2 ENTRY TO SCREEN 1 EXIT PASSAGE for screen 2 and 3 EXIT PASSAGE for screen 4 EXIT PASSAGE for screen 4 and 5 EXIT PASSAGE FOR SCREEN 2 AND 3 PASSAGE ENTRY TO SCREEN 3 LIFT 7'0" 7'5" LIFT 7'0" 7'5" FOYER LIFT 6'0" 6'7" LIFT 6'0" 6'7" SCREENING AREA DN ENTRY FROM ESCALATOR EXIT PASSAGE FOR SCREEN 1 sound box A A B B C C MAIN ENTRANCE ACCOUNTS OFFICE BOX OFFICE BOX OFFICE COUNTER STORE WITH DRAINAGE PT MANAGER CABIN LIFT 6'3" 6'6" LIFT 6'3" 6'6" LADIES TOILET ELECTRIC SHAFT UP ENTRY TO SCREEN 1 EXIT PASSAGE FOR SCREEN 1 CONCESSION COUNTER LVL = 47'0" LVL = 47'0" LVL = 47'0" LVL = 47'0" LVL = 47'0" RAMP 1:8 RAMP 1:8 RAMP 1:8 RAMP 1:8 sound box Maatra Architects SECTIONS AA AND BB LOUNGER RECLINER NORMAL THEATRE LOWER LEVEL PLAN THEATRE UPPER LEVEL PLAN SOUND BOX SOUND BOX SOUND BOX SOUND BOX SOUND BOX PROJECTOR ROOM PROJECTOR ROOM LIFT ROOM TMS ROOM SERVER ROOM, UPS ROOM LIFT 6'0" X 6'7" LIFT 6'0" X 6'7" A A B B C C ADMIN OFFICE STAFF TOILETS AND CHANGING ROOMS LIFT 6'3" X 6'6" LIFT 6'3" 6'6" ELECTRIC SHAFT UP 10 14 15 16 17 12 11 SCREEN 1 160 NORMAL SEATS 12 LOUNGERS 19 RECLINERS TOTAL 191 SCREEN 2 188 NORMAL SEATS TOTAL 188 SCREEN 165 NORMAL SEATS 16 RECLINERS TOTAL 181 SCREEN 181 NORMAL SEATS 16 RECLINERS TOTAL 197 SCREEN 5 221 NORMAL SEATS 13 LOUNGERS 21 RECLINERS TOTAL 255 LVL = 67'0" LVL = 67'0" LVL = 67'0" LVL = 67'0" SCREEN 5 SCREEN EXIT PASSAGE SOUND BOX PROJECTOR ROOM PROJECTOR ROOM EXIT PASSAGE SOUND BOX SCREEN SCREEN CONCESSION AREA CONCESSION AREA ESCALATOR THIRD FLOOR PROJECTOR ROOM THIRD FLOOR PROJECTOR ROOM 9' 9' 9' 9' 20' 14'-7" 3' HT SPACE FOR MEP SERVICES 3' HT SPACE FOR STRUCTURAL MEMBERS 35' 3' HT SPACE FOR STRUCTURAL MEMBERS 3' HT SPACE FOR MEP SERVICES STORE STORE STORE 3' RESTAURANT RESTAURANT 15' 20' 15' 14'-7" 35' EXIT PASSAGE EXIT PASSAGE 4'-3" 47° LVL 47'0" LVL 67'0" LVL 82'0" LVL 47'0" LVL 67'0" LVL 82'0" 45° 13'-4" 20' 39° 16'-9" 1'-3" 7" 13'-4" 11" 13' 47° 6'-7" 1' 3' HT SPACE FOR MEP SERVICES 3' HT SPACE FOR STRUCTURAL MEMBERS 3' HT SPACE FOR STRUCTURAL MEMBERS 3' HT SPACE FOR MEP SERVICES 20' SCREEN 1 SOUND BOX PROJECTOR ROOM 3' HT SPACE FOR MEP SERVICES 3' HT SPACE FOR STRUCTURAL MEMBERS THIRD FLOOR PROJECTOR ROOM RESTAURANT 47° 5'-8" LVL 67'0" 3' 4'-6" 15' 20' 15' SECTIONS CC 25 72 915 N

Details:

- Plot area - 2,587 sq. ft.

- Per. Fsi - 2.7

- Client - Mr. Harshal Lalwani

- G+2 residential bungalow with 6 bedroom with attached toilet, terrace for sitting, relaxing and rain shower.

This contextual dwelling is meticulously crafted in accordance with Vaastu Shastra principles to accommodate a multigenerational family of seven individuals. A grand entrance adorned with a finely crafted wooden door supported by intricately carved brackets welcomes visitors, complemented by lush vegetation and a captivating white peacock mural. The family lounge, offering serene views of the garden, features an alluring Vishnu mural, fostering a harmonious ambiance. A triple-height atrium floods the interior spaces with natural light, serving as a focal point within the residence.

13
RESIDENTIAL
Maatra Architects GROUND FLOOR PLAN FIRST FLOOR PLAN SECOND FLOOR PLAN STAIR CABIN PLAN N E S W
LALWANI’S RESIDENCE, RAJKOT
BUNGALOW

DOOR WINDOW SCHEDULE

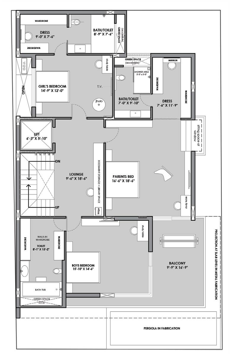
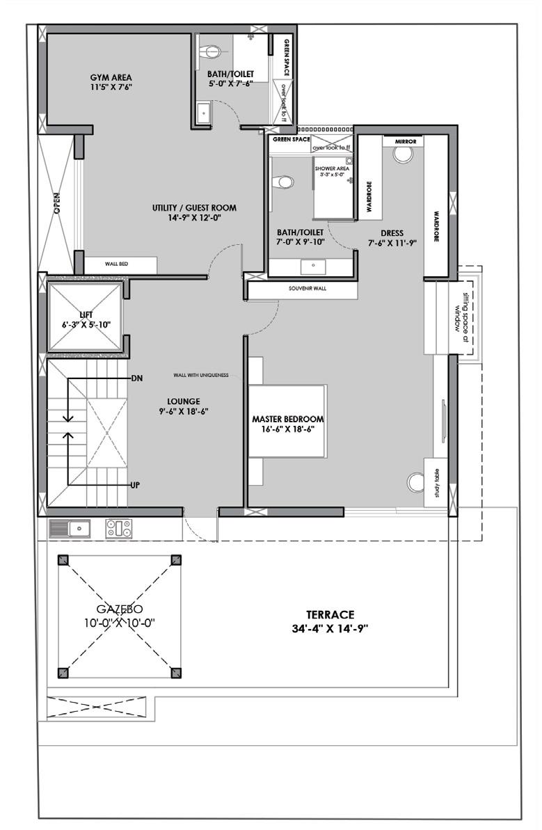
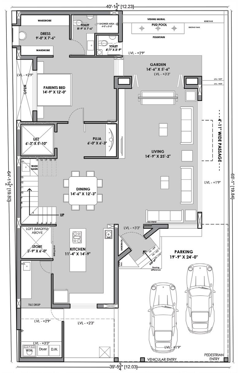
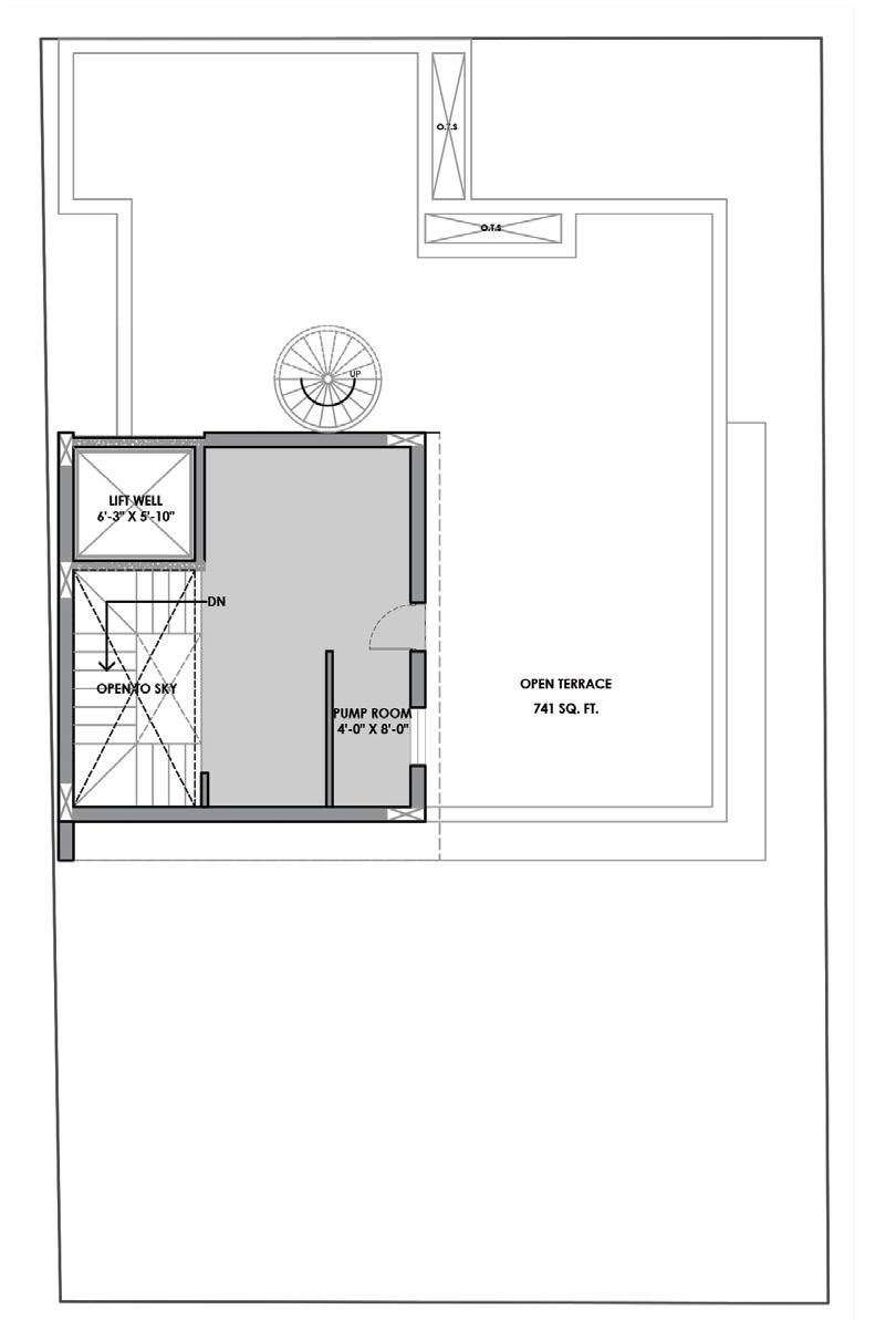
14 Maatra Architects SLAB BOTTOM F. FLOOR LVL 10'-3" 10'-6" SLAB BOTTOM F. FLOOR LVL 10'-3" 3" 6" 10'-6" SLAB BOTTOM F. FLOOR LVL F. FLOOR LVL 10'-3" PLINTH LVL ROAD LVL 3' 3'-3" 10'-6" 3" 6" FIRST FLOOR SECOND FLOOR THIRD FLOOR PARKING LVL SLAB BOTTOM 8'-3" 8'-6" 4'-101 2 2'-101 2 1' 2' 3'-3" 1' 3'-6" 1'-6" 2' 1' 3'-9" 7'-1" 1' 9" 8'-4" 9" 8'-4" FABRICATION FABRICATION 2' PT BEAM PT BEAM 1'-6" 2' SLAB BOTTOM 10'-6" SLAB BOTTOM 6" 10'-6" SLAB BOTTOM PLINTH LVL ROAD LVL 3' 10'-6" 6" PARKING LVL SLAB BOTTOM 8'-6" SLAB BOTTOM 10'-3" 10'-6" SLAB BOTTOM 6" 10'-6" SLAB BOTTOM PLINTH LVL ROAD LVL 3' 10'-6" 6" PARKING LVL SLAB BOTTOM 8'-6" 9"x18" 1 9"x18" 2 9"x21" 3 9"x21" 9"x24" 5 9"x21" 7 9"x24" 8 9"x24" 9"x33" 10 9"x24" 11 9"x24" 12 9"x21" 13 9"x33" 14 VISHNU MURAL - - - - 30'-0" WIDE ROAD - - -STORE PARENTS BED OPEN UP TOILET LIFT PUJA DINING PARKING 19'-9" X 24'-0" LIVING GARDEN-4'-11" WIDE PASSAGE-WASH BASIN STEPUP VEHICULAR ENTRY PEDESTRIAN ENTRY LVL +3'3" LVL +1'9" LVL +2'9" LVL +2'3" LVL +1'9" LVL +2'9" 10 11 12 13 14 15 SLOPE vayavya LVL +2'3" LVL - +1'9" 40'-11 2 [12.23] 64'-11 1 2 " [19.80] 39'-53 4 [12.03] 65'-1" [19.84] LVL +3'3" cloth drying area 16 17 18 19 LOFT (MADIYU) ABOVE DRESS flooring difference box sliding door 5'-8" TOILET KITCHEN WASH LVL +2'9" W1 W2 MD D1 D1 W3 V1 D1 W5 D2 D2 3'-6" 5'-6" 4'-61 2 4'-8 9" 14' 3'-2" 5' 3'-2" 5'-7" 2'-6" 4" 6' 4" 6'-7" 6' 6' 8'-10" 11'-4" 3'-3" 3'-4" 3'-3" 1' 19'-1 1 2 1'-9" 2'-6" 9'-9" 2'-6" 12'-11 1 2 4" 6' 14'-9" 25'-1 1 2 5' 6' 4'-4" 4" 5'-10 1 2 2'-3" 3'-1 1 2 5" 8'-32 3' 3'-0 2' 7'-11" 6'-01 2 3' 4'-6" 2'-3" 4" 9'-01 2 5'-9" 5'-9" 2' 3'-3" 3' 2'-6" W4 2' 12'-2" 2'-2 1 4 " 2'-614 " 5'-10 1 2 1'-3" 8'-9" 3'-10 1 2 2'-3" 3'-3" 14'-6" 5" 2'-3" 14'-4" 11'-11" 7'-6" 4'-1" 4'-1" 4" 9" 6'-5" 2' D4 1'-2" 1'-3" LVL +2'3" LVL +2'9" LVL +3'3" 2"X4" METAL BOX SECTION GRC WALL PEDESTRIAN ENTRY A A B B BOYS BEDROOM UP DN BALCONY PARENTS BED GIRL'S BEDROOM DRESS BATH/TOILET DRESS BATH/TOILET OPEN LOUNGE LIFT 15 16 17 18 19 O.T.S. TOILET 8'-1" X 15'-2" PERGOLA IN FABRICATION PROJECTION AT SLAB LEVEL IN METAL FABRICATION 9"x18" 9"x18" 9"x21" 9"x21" 4 9"x24" 9"x21" 7 9"x24" 8 9"x24" 9 9"x33" 10 9"x24" 11 9"x24" 12 9"x21" 13 9"x33" 14 MAIN LINE D1 W2 W3 W4 1'-9" W1 W6 W5 5'-9" 1'-9" 5'-3" D1 D1 D2 D2 D2 7'-11" 6'-7" 8' 6' 2' 8'-9" W7 6'-4" 2' 3'-61 2 9'-01 2 5'-9" 6'-61 2 8'-9" 3'-3" 2'-6" 8'-9" 1'-8" 7'-6" 9'-10" 7' 2'-2" 5'-2" 7'-5" 11'-8" 2' 7' 2'-6" 9' 1'-5" 3' 14'-1" 9'-4" 7'-1" 12'-6" 6' 2'-9" LVL+1'6" 2'-6" 8'-31 2 11'-3" 3'-3" 3' 6'-10" 3'-1" 1'-7" 3' 1'-11" 3'-3" 9'-4" 4'-3" 3' 2'-6" 5'-7" 8'-10" 5" 8'-1" 16'-10" 1'-8" 15'-10" 1'-6" 2' 9" 17'-6" 2' 6'-6" 11'-11" 6'-3" 6'-7" 5'-5" 11'-11" 14'-9" 16'-5" 18'-6" 18'-8" 2'-4 1'-6" 26'-9" 8'-6" 2'-3" 9'-6" 4" PARAPET HGT - 1'0" 4'-1" 4" 3' 1'-9" A A B B UTILITY / GUEST ROOM TERRACE over look to ff DRESS BATH/TOILET MASTER BEDROOM OPEN UP DN LOUNGE LIFT 6'-3" X 5'-10" BATH/TOILET over look to sitting space at window 1 2 3 4 5 8 9 10 11 12 5' 7'-6" GYM AREA 7'-10" D2 D1 D1 D1 D2 12'-4 7'-6" 3' 2'-6" 2'-5 2' 3' 4'-6" 14' 3' 1'-6" W1 W5 W4 W2 W3 5'-3" 1'-9" 5'-9" 1'-9" 7'-6" 2'-9" 2' 10'-1" 3' 1'-8" 11'-3" 9" 6'-4" 9'-4" 9' 2'-6" 2'-6" 7' 7'-5" 11'-8" 2' 1'-6" 16' 34'-10" 12'-6" 6' 2'-9" LVL +1'6" 5'-5" 16'-5" 18'-6" 1'-8" 14'-9" 11'-6" PARAPET HGT - 1'0" 1'-8" 9'-7" 2'-9" 8'-1" 2' 1'-9" 26'-9" 8'-1" X X MAIN LINE 1' 7'-8" 1' 2'-9" 2'-9" 1' 1' 9'-8" A A B B 3' 6'-1" 1'-11" 5'-6" W1 MASONARY 3'-6" M.D 10'-7" 5" 3' D1 2'-3" D3 2'-6" D4 9" 8'-4" 19'-12 W2 MASONARY 9" 8'-4" W3 BEAM 3'-11 2 3' 6'-1" W4 BEAM 7'-11" 4' 5'-1" W5 BEAM 5' 7'-9" 1'-4" V1 BEAM 2'-3" MASONARY MASONARY MASONARY BEAM BOT. SLAB TOP. SLAB TOP. BEAM BOT. SLAB TOP. SLAB TOP. BEAM BEAM BEAM BEAM BEAM 9'-9" D4 SLAB BOTTOM F. FLOOR LVL 10'-3" 10'-6" SLAB BOTTOM F. FLOOR LVL 10'-3" 3" 6" 10'-6" SLAB BOTTOM F. FLOOR LVL F. FLOOR LVL 10'-3" PLINTH LVL ROAD LVL 3' 3'-3" 10'-6" 3" 6" FIRST FLOOR SECOND FLOOR THIRD FLOOR PARKING LVL 2' 9" 6'-51 4 9" 3' 3'-6" 4' 2' 5'-6" 9" 8'-4" PT BEAM PT BEAM FABRICATION FABRICATION CANOPY 1' 9' 9'-6"
BB GROUND
WORKING PLAN FIRST FLOOR WORKING PLAN SECOND FLOOR WORKING PLAN
FRONT ELEVATION SIDE ELEVATION SECTION AA SECTION
FLOOR
15 Maatra Architects
VIEW 1'-3" 7'-8" 6" 1' 1'-9" 6" 1'-3" 1' 1'-9" 8'-10" OUTDOOR KITCHEN PLATFORM 11'-1" 9" SECTION PLAN OUTDOOR KITCHEN PLATFORM 8'-10" SECTION 2" 4'' METAL BOX SECTION 1" 1'' METAL BOX SECTION 4" 2" 2" x 4'' METAL BOX SECTION 4" 2" 3" 6'' METAL BOX SECTION 4" 1" 1/2'' dia METAL BAR 2" 2" 2" 8'-7" 6" 2" 4" eq eq eq eq eq eq eq eq eq eq eq eq eq eq eq eq 12' 6" 2" eq eq eq eq eq eq eq eq eq 9'-3" 2" x 4'' METAL BOX SECTION 3" x 6'' METAL BOX SECTION 1/2'' dia METAL BAR 6" 2" 8'-4" 14' 8'-4" 8'-10" 9'-3" 8'-7" 9'-2" 6" 2'-83 8 2'-83 8 2'-83 8 3" 3" 3" X 6" METAL BOX SECTION 4" 8'-4" 2" X 4" METAL BOX SECTION DIA METAL BAR 1"X1" METAL BOX SECTION 2'-9" 1' 7'-8" 1' 2'-9" 1' 1' 2' 8'-10" 10" 10" 2" 2" 4'-2" 2" 4'-2" 2" 21 2 1" x 1'' METAL BOX SECTION 1" 2" x 4'' METAL BOX SECTION GROUND LEVEL GROUND LEVEL SECTION AA SECTION BB 1'-9" 5'-6" 8'-6" 9" - - - - 30'-0" WIDE ROAD - - -9'-2" 14'-9" 9" 4'-11 2 " 5'-3" PARKING 19'-9" X 24'-0" LVL - +2'3" LVL +1'9" SLOPE LVL - +2'9" 7'-8" TILE DROP 9" LVL - +3'3" 0" 8'-6" 9'-2" 4" 2"X4" METAL BOX SECTION 2" 2" 2" GRC WALL VEHICULAR ENTRY PEDESTRIAN ENTRY 4' 9" 4'-11 2 " 9" 14'-9" 9" 7'-3" COMPUND WALL AND PERGOLA DETAIL STAIRCASE DETAIL FABRIATION PERGOLA AND SITTING DETAIL UP LIFT 6'-3" X 5'-10" 1 6 7 8 9 10 11 12 13 14 15 16 17 18 19 3 4 6 7 8 9 10 11 12 13 14 15 16 17 18 19 10'-3" 10" 10" 111 3'-3" 3'-3" 111 4 114 10" 10" 6'-7" 12'-2" 3'-3" 6 3 4 6 3 4 6 3 4 PLAN SECTION 6 3 4 6 3 4 6 3 4 6 3 4 FINISH FLOOR LVL LVL 0'-0" SLAB BOTTOM HEIGHT 10'-3" 5"
TERRACE

DAUGHTER BATHROOM WORKING DRAWING

16 SIDE PERGOLA, AC ODU UNIT GRILL AND SAFETY GRILL DETAIL SECTION SLAB BOTTOM 10'-3" 10'-6" F. FLOOR LVL 3" 6" SLAB BOTTOM F. FLOOR LVL F. FLOOR LVL 10'-3" PLINTH LVL ROAD LVL 3' 3'-3" 10'-6" 3" 6" PARKING LVL 4'-101 2 1' 3'-6" 1'-6" FABRICATION 2' TOILET LIVING GARDEN LVL+3'3" LVL+2'9" LVL +2'9" LVL +2'3" LVL+1'9" LVL+3'3" W1 W2 W3 V1 D2 D4 covering with acp sheet 2"x3" metal box section 2'-5" 2"X3" METAL BOX SECTION 2"X3" METAL BOX SECTION SIDE ELEVATION COVERING WITH ACP SHEET 2"X3" METAL BOX SECTION 2"X3" METAL BOX SECTION 2'-5" SLAB BOTTOM F. FLOOR LVL 2"x3" metal box section 9" metal plate(thk. as per req.) 2"x3" metal box section REFER DETAIL B BEAM BOTTOM SLAB BOTTOM F. FLOOR LVL BEAM BOTTOM 9" brick masonry compound wall 3" 1" 2'-1" 3" 2" 9" 2"x3" metal box section 1"x1" metal box section 1"x1" metal box section 3" 1" 2'-1" 3" 9" 2'-5" 4'-9" 6' 4'-6" 2" 5" 9" 2" 2" 9" 3" 17'-6" 39'-7" 1" 2" 1" 2" 1'-1 2" 1'-1 2" 1'-1 2" 1'-1 4'-7 1 2 2'-7 1 2 1"x1" metal box section 1"x1" metal box section 5'-2" 2' 10" 2" 10" 2" FIRST FLOOR SECURITY GRILL DETAIL 4'-1" 10'-4" KEY PLAN ELEVATION 2" 1'-3" 1" 2'-5" 2" 1 2 324 6" 4'-1" 4'-1" Door Latch 3'-3" 3'-11 1'-1 2'-5" 2" THK METAL PLATE BOARD THK METAL PLATES THK HORIZONTAL BOX SECTION PLAN SLAB BOTTOM F. FLOOR LVL F. FLOOR LVL PLINTH LVL ROAD LVL PARKING LVL 3'-6" BEAM BOT. SLAB TOP. F. FL. BEAM LINTEL BEAM BOT. F. FL. SLAB TOP. BEAM LINTEL BEAM BOT. F. FL. SLAB TOP. BEAM BOT. F. FL. SLAB TOP. BEAM A B C D FF KEY PLAN OTLO 1'-7 1 2 2'-6" 1'-6" 1'-6" 4'-3" 1'-3" 1'-6" 8'-9" 7'-6" - ONYX LIGHT PINK (WALL) - BABY PINK COLOR - WHITE PEBBLES START POINT 6" 2' 2' 2' 2' 3" 6" 2' 2' 2' 2' 3" 4' 4' 4' 4' 4' 4' START POINT START POINT START POINT 4'-6" 4'-3" START POINT 3" 3" 3" 2' START POINT 2' 2' 2' 4' START POINT 4" 4' 2' 2' 2' 4' (24" 48") 4'-3" 4'-6" 2' 2' 2' - CLOUD OPACO CRUSH MATTE (FLOOR) 3'-7" (24" x 48") 1'-9" 3' 7' 2'-6" LINTEL METRO POLE HEALTH FAUCET VALVE PEARL (V-6043) (420 420 X 130) Maatra Architects
17 Maatra Architects
ACTUAL PHOTOS

RESIDENTIAL BUNGALOW

Details:

- Plot area - 1230 sq. ft.

- Per. Fsi - 2.7

- Client - Mr. Jay Patel

- G+3 residential bungalow with 4 bedroom with attached toilet, personal terrace for sitting, relaxing and common terrace.

- Ground floor - Parking, 1 guest bedroom

- First floor - Living, Dining, Kitchen, Wash

- Second floor - 2 Bedrooms with attached toilet and walk-in-wardrobe

- Third floor - Master bedroom with walk-in-wardrobe and master bathroom with jacuzzi, Personal terrace

18 Maatra Architects
MR. JAY PATEL’S RESIDENCE, RAJKOT
N
GROUND FLOOR FIRST FLOOR SECOND FLOOR THIRD FLOOR
FLOOR PLANS FRONT ELEVATION

AND MASSING

The irregular configuration of the site posed a design challenge; however, it was leveraged to exploit the interplay between massing and voids in the facade composition. The strategic manipulation of massing and voids facilitates the integration of balconies and terraces within the design. Centrally anchoring the residence is a core housing the staircase and lift, functioning as both a structural

partition delineating distinct bays and a light well, ensuring ample daylight penetration throughout the interiors.

19 Maatra Architects 01 9"X24" 02 9"X24" 03 9"X24" 05 9"X24" 10 9"X24" 06 9"X24" 07 9"X24" 08 9"X24" 09 9"X24" 9"X24" 11 12 9"X18" HGT SLAB TOP TO TOP : 12'2" BEAM BOT. SLAB TOP. SLAB TOP. 2'-6" D1 7'-3" 3' W2 BEAM MASONARY 3' D 7'-3" 3' 4'-3" W1 BEAM MASONARY 12'-2" 1'-5" 1'-5" 5'-9" 3'-1" V1 BEAM 1'-5" 1'-6" 5'-7" 6'-9" 9" 6'-6" W3 BEAM MASONARY 1'-5" 12'-1" MASONARY MASONARY 2'-6" D2 7'-3" MASONARY LINTEL BEDROOM OPEN PORCH STORE DRESS LIFT TOILET UP 21 9' 11'-53 4 3' 2' 2'-6" 9'-1" 2'-61 4 6'-11" 5'-113 4 5'-5" 4" 5'-6" 9" 1'-6" 3'-9" 6'-3" 9" 5'-7" 2'-9" 6'-3" 1'-6" 6" 4' 8'-7" 5" 1'-2 1 2 3' 1'-5 3 4 1 4 7'-82 2'-10" 9" 4'-111" 9" 4" 5'-9" 2'-3" 9" 9" 9" 9" TWO STEPS IN MASONRY 4'-73 4 13'-5 1 2 D D1 D2 2'-6" 9" W1 V 12'-1" W2 6'-9" W3 V1 4'-6" 1'-6" 3'-9" 1'-6" NOTE ALL LINTEL ARE FROM FINISHED FLR. LEVEL MASONARY MASONARY MASONARY 4'-3" 02 9"X24" 10 9"X24" 06 9"X24" 9"X24" 11 12 9"X18" LIFT DN 20 21 OPEN TERRACE OPEN TERRACE B B A A UP 02 9"X24" 03 9"X24" 06 9"X24" 07 9"X24" 08 9"X24" 09 9"X24" 9"X24" 11 FABRICATION STAIRCASE 7'-9" 2'-6" 7'-5 3 4 2'-1 7'-9" 2'-6" 9" 4'-9" 9" 3'-8" BEAM BOT. SLAB TOP. SLAB TOP. 2'-6" D 7'-3" 10'-6" MASONARY LINTEL D D 16 17 LIVING ROOM BALCONY TOILET WASH KITCHEN / DINING SHOE RACK STORE 17'-3" 12'-4" 2'-9" 3'-6" 5'-9" 4" 5'-3" 4" 2'-6" 2'-5" 4'-6" 1'-5 3 4 3' 1'-8 1 2 4'-9" 5'-2" 3' UP 15 18 19 MD BEAM BOT. SLAB TOP. SLAB TOP. 9" 3'-9" W3-A BEAM MASONARY 2'-6" D2 7'-3" 3'-6" W2 BEAM MASONARY 3'-6" MD 7'-3" 1'-5" D3 2'-6" W2 1'-9" 8'-6" 3' 4'-11 10'-10" LIFT 6'-3" 7'-6" 3'-6" 3'-9" D2 2'-6" 1' 6'-0 1 2 27'-51 2 2'-6" 3'-3" 10" 10" 10" 13'-7" 14' 6'-5" 5'-11" W3-A W3-B W3-B FIXED GLASS SLIDING DOOR 3'-6" 3'-9" W1 8'-6" BEAM MASONARY D3 2'-3" SLIDING WINDOW 2'-9" 11' 5'-9" V1 BEAM MASONARY 1'-6" V1 6'-01 2 12'-4" MASONARY 7'-3" MASONARY 1'-6" MASONARY BEAM D3 2'-6" BEAM HGT. AT BOTTOM OF STAIRCASE NOTE ALL LINTEL ARE FROM FINISHED FLR. LEVEL MASONARY W1 3'-9" MASONARY 3'-6" W4 BEAM MASONARY 6'-9" MASONARY 3'-9" W4 6'-9" 01 9"X24" 02 9"X24" 03 9"X24" 04 9"X24" 05 9"X24" 10 9"X24" 06 9"X24" 07 9"X24" 08 9"X24" 09 9"X24" 9"X24" 11 12 9"X18" BEAM HGT SLAB TOP TO TOP 11'0" BEAM BOT. SLAB TOP. SLAB TOP. THIRD FLOOR TERRACE 16 17 18 19 STAIR CABIN TOP 12'-2" 10'-6" 16 17 18 19 11'-9" 20 21 3'-5 3 4 " 6" 10' 1'-5" 7A 9A 6A 01 9"X24" 02 9"X24" 03 9"X24" 04 9"X24" 05 9"X24" 10 9"X24" 06 9"X24" 07 9"X24" 08 9"X24" 09 9"X24" 9"X24" 11 12 9"X18" BEDROOM BALCONY BEDROOM TOILET UP DRESS - - 4'6" WIDE PASSAGE -18 19 LIFT TOILET D2 DRESS CUTOUT BEAM BOT. SLAB TOP. SLAB TOP. 2'-6" D1 7'-3" 3' W2 BEAM 3' D 7'-3" 1'-5" 3' 4'-3" W1 BEAM MASONARY 11' 1'-5" 1'-5" 1'-5" 5'-9" 2'-4" V BEAM 1'-5" 1'-6" V D D D1 D1 5'-7" 2'-9" 6'-3" 1'-6" 6'-11" 2'-6" 4" 3' 2' 3' 2'-6" 1'-3" 15'-3" 12'-2 2'-10" 2'-3" 7'-11" 3'-9" 1'-6" 9" 1'-8 1 2 3' 1'-5 3 4 6'-6 3 4 9'-7 9" 3' 4' 4" 9'-8 2' 3' 2'-2 1 4 9'-84 13'-04 8'-9 1 2 2'-6" 0" 1'-3" 8'-6" 2'-6" 6'-6" 4'-8" 13' 2'-83 4 1'-6" W1 6'-9" 5'-6" 5" 7'-3" W2 W3 5'-7" 6'-9" 3' 4'-3" W3 BEAM MASONARY 1'-5" 8'-6" MASONARY MASONARY 2'-6" D2 7'-3" MASONARY LINTEL HGT SLAB TOP TO TOP 11'0" 1'-6" NOTE ALL LINTEL ARE FROM FINISHED FLR. LEVEL V MASONARY MASONARY MASONARY 4'-3" MASONARY TERRACE LIFT ROOM WATER TANK 8000 LITRE 4'-9" STAIR CABIN TOP THIRD FLOOR STAIRCABIN 10'-6" 10' 8'-6" 2' 8' 7' 21'-2" 1'-5" 7'-7" 1'-9" 1'-5" 6" 5" 9' 1'-5" 5" 6" 7A 9A 6A 10A 10A WORKING FLOOR PLANS N FIRST FLOOR SECOND FLOOR THIRD FLOOR GROUND FLOOR ROAD LEVEL TERRACE STAIR CABIN BEAM BOTTOM BEAM BOTTOM BEAM BOTTOM BEAM BOTTOM LINTEL LINTEL LINTEL
FRONT ELEVATION
SECTION AA SECTION BB
CONCEPT

FACADE TYPICAL JALI DETAIL

20 SECTION GROUND FLOOR PLAN TYPICAL DETAIL A 5" 3" 3" 2" 3" 2' 2" 3" 3" 3" 3" 5" 3" 3" 2" GROUND FLOOR PLAN 2' 2" 2" 2" 3" 2' 2" x 2" METAL BOX SECTION MERINO ARMOUR EXTERNAL CLADDING 3" x 3" METAL BOX SECTION METAL FRAME 2" x 2" METAL BOX SECTION 2" x 3" METAL BOX SECTION 3" WIDTH METAL FRAME MERINO ARMOUR EXTERNAL CLADDING 2" x 3" METAL BOX SECTION SECTION BB 3" 11" 3" 3" 11" 3" 1'-5" 1 211" 11" 1 TYPICAL DETAIL B PLAN ELEVATION SECTION AA A A B B 1'-5" 1'-5" 3" 11" 3" 1 211" 11" 12 2" x 2" METAL BOX SECTION 11" x 11" METAL SHEET 11" 4 1 2 4 1 2 3 4 3 4 11" 11" 4 1 2 4 1 2 3 4 3 4 1 2 1 2 11" 11" 4 4 1 2 3 4 3 4 3 4 11" MODULE 1 MODULE 2 MODULE 4 MODULE 3 11" 4 4 1 2 3 4 3 4 3 4 1 2 1 2 11" METAL PLATE DETAIL 2" x 2" METAL BOX SECTION CANOPY DETAIL 2" x 3" METAL BOX SECTION MERINO ARMOUR EXTERNAL CLADDING 06 9"X24" 07 9"X24" 08 9"X24" BEDROOM LVL SLAB TOP. PARKING LVL 1'6" SECTION A-A 10' ROAD LEVEL 1'-6" 2 6 9 10 11 12 13 14 15 16 17 GROUND FLOOR 7 10 11 12 13 14 7" 7" 7" 7" 7" 7" 7" 15 16 17 5 3 UP A A 2' 4'-4 1 2 " 7'-3 3 4 3'-2" 3'-81 2 " 4'-5" 12'-8" 154° 10" 3'-3" THIRD FLOOR TERRACE STAIR CABIN TOP 11'-9" 3'-5 3 4 " 7A 9A LIFT 6 8 OPEN TERRACE D 10 11 12 13 14 15 10 11 12 13 14 15 2'-10" 9" 1'-5" 1'-5" 1'-5" LIFT ROOM TOP 1 4 1 4 7 7 7 1 4 1 4 1 4 1 4 7 5'-3" 2'-10" 3' 9" 9" 9" 9" 9" 9" 9" 9" 9" 9" 1'-5" 7 7 7 1 4 1 4 3'-6" 9' Maatra Architects INTERNAL FF TO TF STAIRCASE DETAIL EXTERNAL STAIRCASE DETAIL EXTERNAL GF TO FF STAIRCASE DETAIL 06 9"X24" 07 9"X24" UP 6 8 10 11 12 13 14 15 16 17 18 19 11' 9 10 11 12 13 14 15 16 17 18 19 SLAB TOP. FIRST FLOOR SECOND FLOOR THIRD FLOOR GROUND FLOOR SLAB TOP. SLAB TOP. SLAB TOP. 7" 9 10 11 12 13 14 15 16 17 18 19 7" 7" 7" 7" SECTION A-A A A DN 11' 10' ROAD LEVEL 1'-6" 10" FIRST AND SECOND FLOOR THIRD FLOOR 7'-6 1 4 3'-5 3 4 " 7'-1 1 4 " FC 9"X9" FLOATING COLUMN FROM FF TERRACE SLAB TOP. STAIR CABIN SLAB TOP. 11'-9" 12'-2" 10' 12'-2" 3'-3" 5' 10 11 12 13 14 15 16 17 18 19 12'-2" 20 21 8'-8 1 4 " 4 1 19 7" 7" 7" 7" 7" 3'-6" 7" 10" 1'-71 2 10" 10" 10" 10" 10" 10" 1'-71 10" 3'-3" 3'-3" 1'-8" 10" 10" 10" 10" 10" 10" 6 9 14 15 16 17 UP TO STAIR CABIN 1 2 18 19 A A 06 9"X24" 07 9"X24" FABRICATION STEPS 18 19 10 11 12 13 12 11 DN TO SF 2'-6"
ACTUAL PHOTO

Notably, careful consideration was given to the orientation of the northern and eastern elevations, guiding the placement of openings and overhangs for optimal weather protection. The western facade, facing a communal plot, remains deliberately devoid of openings to enhance privacy and security. Embracing sustainable practices, the integration of solar panels mitigates energy consumption. Furthermore, the strategic positioning of all bathrooms along the perimeter of the massing streamlines plumbing infrastructure and allows for cantilevered masses at varying levels, further enhancing spatial dynamics and efficiency.

21 Maatra Architects 5'-2 LVL 1'6" LVL 0'0" 17'-1" [5.21] 53'-312" [16.24] 40'-81 4 " 5' 9'-113 4 5'-10" 3'-21 4 " 7'-1 1 4 " 8' 9" 8' 9" 7'-3" 9" 8' 9" 3'-53 4 " 12'-73 4 " 4'-51 4 " 17'-1" [5.21] 2' VEHICULAR ENTRY VEHICULAR ENTRY PEDESTRIAN ENTRY PLAN AA ELEVATION SECTION AA ELEVATION 53'-312" [16.24] 8'-7 1 4 " 39'-8 1 4 " +0" +0" A B SECTION BB +2'0" +2'0" +1'8" +1'8" 2' TOP PLAN LVL 1'6" LVL 0'0" LVL 1'0" LVL 0'6" A B 1 1 ROAD LEVEL1'-6" 1'-6" 6'-6" 9" Level +0" Level +1'7" Level +2'0" Level +0" Level +1'7" Level +2'0" 8'-7 1 4 " 5' 39'-8 1 4 " 5' Level : +0" Level +1'7" Level +2'0" Level : +0" Level +1'7" Level +2'0" ROAD LEVEL 1'-6" 6'-6" JAYBHAI PATELS RESIDENCE SECTION DD 1'-6" 3'-6" 1'-6" 6'-6" Level : +0" Level +1'8" Level +2'0" +1'8" +0" +1'8" +0" LVL 1'6" LVL 1'0" LVL 0'6" PLAN AA PLAN 11 39'-8 1 4 " 5' 8'-7 1 4 " 4'-51 4 " 2' 2'-4" 2' 4" 3'-5" 3'-5" 3'-5" 3'-5" 5' 5' 5' [1.52] 1' 8" 5' 1' 8" 3'-5" 9'-93 4 9'-9 3'-5" 9'-53 4 4" 3'-5" 2' 1'-8" 4" 3'-5" 11'-103 4" [3.62] 2'-4" PLAN 11 ROAD LEVEL 4'-11" 4'-7" 1'-5 1 2'-5" 3"X1.5" VERTICAL BOX SECTION METAL PLATE METAL PLATE 3"X3.5" VERTICAL BOX SECTION 4'-9" 10" 10" 10" 10" 4'-4" 2'-5" 121'-51 2 3 1 2 3 1 2 3mm METAL PLATE 3mm METAL PLATE 9" 8 1 4 8 1 4 8 1 4 9" METAL PLATE 3"X3.5" VERTICAL BOX SECTION 1" ELEVATION PLAN SECTION
COMPOUND WALL AND GATE DETAILS

GOKULDHAM GARDENIA, PALANPUR

RESIDENTIAL HOUSING SCHEME

AERIAL VIEW

Details:

- Plot area - 26650 sq. m. (6.5 Acres) - Developer - Brookland Infrastructure - Location - Palanpur, Gujarat

The township is an exqisite blend of luxurious 2, 3 and 4BHK villas, total 167 units, enriched by a clubhouse adorned with a plethora of amenities. Drawing inspiration from Spanish colonial architecture, this residential heaven exudes a colonial exotic ambiance, harmonizing luxury with architectural finesse.

22-15061 14766 14471 14050 12768 PLOTNO.:-155 124.07sq.mt. PLOTNO.:-156 93.68sq.mt. PLOTNO.:-157 98.92sq.mt. PLOTNO.:-158 103.08sq.mt. PLOTNO.:-159 104.35sq.mt. PLOTNO.:-160 103.83sq.mt. PLOTNO.:-161 103.01sq.mt. PLOTNO.:-162 101.11sq.mt. PLOTNO.:-163 99.11sq.mt. PLOTNO.:-164 96.69sq.mt. PLOTNO.:-165 93.63sq.mt. PLOTNO.:-166 89.03sq.mt. PLOTNO.:-167 83.98sq.mt. PLOTNO.:-168 154.46sq.mt.3 10970 10970 10970 10970 12953 2'-6"]-PLOTNO.:-154 99.14sq.mt. PLOTNO.:-153 74.37sq.mt. PLOTNO.:-152 74.37sq.mt. PLOTNO.:-151 74.37sq.mt. PLOTNO.:-150 74.37sq.mt. PLOTNO.:-149 74.37sq.mt. PLOTNO.:-148 74.37sq.mt. PLOTNO.:-147 74.37sq.mt. PLOTNO.:-146 74.37sq.mt. PLOTNO.:-145 74.37sq.mt. PLOTNO.:-144 74.37sq.mt. PLOTNO.:-143 74.37sq.mt. PLOTNO.:-142 98.39sq.mt. PLOTNO.:-130 95.42sq.mt. PLOTNO.:-131 74.37sq.mt. PLOTNO.:-132 74.37sq.mt. PLOTNO.:-133 74.37sq.mt. PLOTNO.:-134 74.37sq.mt. PLOTNO.:-135 74.37sq.mt. PLOTNO.:-136 74.37sq.mt. PLOTNO.:-137 74.37sq.mt. PLOTNO.:-138 74.37sq.mt. PLOTNO.:-139 74.37sq.mt. PLOTNO.:-140 74.37sq.mt. PLOTNO.:-141 103.48sq.mt. 12953--10970 10970 10970 PLOTNO.:-120 118.78sq.mt. PLOTNO.:-121 74.37sq.mt. PLOTNO.:-122 74.37sq.mt. PLOTNO.:-123 74.37sq.mt. PLOTNO.:-124 74.37sq.mt. PLOTNO.:-125 74.37sq.mt. PLOTNO.:-126 74.37sq.mt. PLOTNO.:-127 74.37sq.mt. PLOTNO.:-128 74.37sq.mt. PLOTNO.:-129 89.15sq.mt. PLOTNO.:-112 74.37sq.mt. PLOTNO.:-119 123.86sq.mt. PLOTNO.:-118 74.37sq.mt. PLOTNO.:-117 74.37sq.mt. PLOTNO.:-116 74.37sq.mt. PLOTNO.:-115 74.37sq.mt. PLOTNO.:-114 74.37sq.mt. PLOTNO.:-113 74.37sq.mt. PLOTNO.:-111 127.86sq.mt. 7620 7620 [25'] 7620 7620 [45'-2 1251141'-01/2"] 1220012200[40'-01/4"]12200 12200[40'-01/4"] 187.33PLOTNO.:-1 sq.mt. 106.64PLOTNO.:-2 sq.mt. 103.41PLOTNO.:-3 sq.mt. 100.18PLOTNO.:-4 sq.mt. 96.95PLOTNO.:-5 sq.mt. 93.83PLOTNO.:-6 sq.mt. 92.96PLOTNO.:-7 sq.mt. 192.96PLOTNO.:-8 sq.mt. 92.96PLOTNO.:-9 sq.mt. 92.96PLOTNO.:-10 sq.mt. 92.96PLOTNO.:-11 sq.mt. 92.96PLOTNO.:-12 sq.mt. 92.96PLOTNO.:-13 sq.mt. 92.96PLOTNO.:-14 sq.mt. 92.96PLOTNO.:-15 sq.mt. 94.36PLOTNO.:-16 sq.mt. PLOT NO.:-107 130.53 sq.mt. PLOT NO.:-108 116.42 sq.mt. PLOT NO.:-109 103.47 sq.mt. PLOT NO.:-110 105.04 sq.mt. PLOT NO.:-103 104.58 sq.mt. PLOT NO.:-104 88.23 sq.mt. PLOT NO.:-105 88.23 sq.mt. PLOT NO.:-106 132.00 sq.mt. PLOT NO.:-102 104.58 sq.mt. PLOT NO.:-101 88.23 sq.mt. PLOT NO.:-100 88.23 sq.mt. PLOT NO.:-199 156.15 sq.mt. PLOT NO.:-94 111.39 sq.mt. PLOT NO.:-95 93.87 sq.mt. PLOT NO.:-96 93.87 sq.mt. PLOT NO.:-97 93.87 sq.mt. PLOT NO.:-92 93.87 sq.mt. PLOT NO.:-91 93.87 sq.mt. PLOT NO.:-90 93.87 sq.mt. PLOT NO.:-98 112.07 sq.mt. PLOT NO.:-89 139.40 sq.mt. PLOT NO.:-93 111.36 sq.mt. 3/4"] PLOT NO.:-78 155.41 sq.mt. PLOT NO.:-79 83.59 sq.mt. PLOT NO.:-80 83.59 sq.mt. PLOT NO.:-81 83.59 sq.mt. PLOT NO.:-82 83.59 sq.mt. PLOT NO.:-83 83.59 sq.mt. PLOT NO.:-84 83.59 sq.mt. PLOT NO.:-85 83.59 sq.mt. PLOT NO.:-86 83.59 sq.mt. PLOT NO.:-87 83.59 sq.mt. PLOT NO.:-88 98.67 sq.mt. PLOT NO.:-77 124.14 sq.mt. PLOT NO.:-76 83.59 sq.mt. PLOT NO.:-75 83.59 sq.mt. PLOT NO.:-74 83.59 sq.mt. PLOT NO.:-73 83.59 sq.mt. PLOT NO.:-72 83.59 sq.mt. PLOT NO.:-71 83.59 sq.mt. PLOT NO.:-70 83.59 sq.mt. PLOT NO.:-69 83.59 sq.mt. PLOT NO.:-68 83.59 sq.mt. PLOT NO.:-67 98.64 sq.mt. [40'-11 12483[40'-11 PLOT NO.:-49 97.62 sq.mt. PLOT NO.:-50 83.59 sq.mt. PLOT NO.:-51 83.59 sq.mt. PLOT NO.:-52 83.59 sq.mt. PLOT NO.:-53 83.59 sq.mt. PLOT NO.:-54 83.59 sq.mt. PLOT NO.:-55 83.59 sq.mt. PLOT NO.:-56 83.59 sq.mt. PLOT NO.:-57 115.95 sq.mt. PLOT NO.:-66 97.87 sq.mt. PLOT NO.:-65 83.59 sq.mt. PLOT NO.:-64 83.59 sq.mt. PLOT NO.:-63 83.59 sq.mt. PLOT NO.:-62 83.59 sq.mt. PLOT NO.:-61 83.59 sq.mt. PLOT NO.:-60 83.59 sq.mt. PLOT NO.:-59 83.59 sq.mt. PLOT NO.:-58 176.01 sq.mt. 12483 1/2"] 1/2"] PLOT NO.:-35 105.33 sq.mt. PLOT NO.:-36 83.59 sq.mt. PLOT NO.:-37 83.59 sq.mt. PLOT NO.:-38 83.59 sq.mt. PLOT NO.:-39 83.59 sq.mt. PLOT NO.:-40 83.59 sq.mt. PLOT NO.:-41 116.68 sq.mt. PLOT NO.:-48 101.07 sq.mt. PLOT NO.:-47 83.59 sq.mt. PLOT NO.:-46 83.59 sq.mt. PLOT NO.:-45 83.59 sq.mt. PLOT NO.:-44 83.59 sq.mt. PLOT NO.:-43 83.59 sq.mt. PLOT NO.:-42 176.74 sq.mt. 14224[46'-8"] PLOT NO.:-34 98.01 sq.mt. PLOT NO.:-33 95.25 sq.mt. PLOT NO.:-32 95.25 sq.mt. PLOT NO.:-31 95.25 sq.mt. PLOT NO.:-30 95.25 sq.mt. PLOT NO.:-29 132.44 sq.mt. 8760 7620[25'] 7620 7620[25'] [25'] 3/4"] 12981[42'-7"] PLOT NO.:-17118.36sq.mt. PLOT NO.:-18105.32sq.mt. PLOT NO.:-19109.67sq.mt. PLOT NO.:-20107.30sq.mt. PLOT NO.:-21103.79sq.mt. PLOT NO.:-22100.54sq.mt. PLOT NO.:-2397.29sq.mt. PLOT NO.:-2494.09sq.mt. PLOT NO.:-2593.03sq.mt. PLOT NO.:-26993.14sq.mt. PLOT NO.:-2793.25sq.mt. PLOT NO.:-28107.34sq.mt. COMMERCIAL ---09.00MT.WD.ROAD----06.00 MT. WD. ROAD--06.00 MT. WD. ROAD--07.50 MT. WD. ROAD--07.50 MT. WD. ROAD--07.50 MT. WD. ROAD--07.50 MT. WD. ROAD--06.00 MT. WD. ROAD--06.00 MT. WD. ROAD-- - - 12.00 MT. WD. ROAD - --06.00 MT. WD. ROAD--07.50 MT. WD. ROAD--07.50 MT. WD. ROAD----09.00MT.WD.ROAD-----09.00MT.WD.ROAD-----09.00MT.WD.ROAD----07.50 MT. WD. ROAD----12.00MT.WD. ROAD-----09.00MT.WD.ROAD-----12.00MT.WD. ROAD--2BHK 3BHK 4BHK COMMERCIAL LEGEND GYM INDOOR GAMES LAWN +0'9" +0'6" +0'3" +0'9" +1'3" +1'9" +1'6" +2'0" +2'6" +2'6" +3'0" +2'0" +1'6" +1'6" +0'6" +1'0" +1'0" +3'0"
Maatra Architects
MASTER LAYOUT N

TYPICAL 3BHK ELEVATION

TYPICAL 3BHK SECTION

23 23° 15° 35° 35° 23° 15° 35° 35° 1'-6" 7' 2'-6" 1'-6" 7' 2'-6" 1'-6" 1'-5" 11' 11' 1'-6" 6'-6" 5'-1" 30' ROAD LEVEL +00" SLAB TOP BEAM BOT. SLAB TOP WIDE TOWER INVERTED BEAM TOP PLINTH LEVEL BEAM BOT.(AS PER DESIGN) LINTEL LINTEL ROAD LEVEL +00" SLAB TOP BEAM BOT. SLAB TOP WIDE TOWER INVERTED BEAM TOP PLINTH LEVEL BEAM BOT.(AS PER DESIGN) LINTEL LINTEL 1'-6" 6'-6" 8'-1" 4'-7" 4' 14'-5" 8'-7" 8'-7" 8'-7" ROAD LEVEL +00" SLAB TOP BEAM BOT. SLAB TOP WIDE TOWER INVERTED BEAM TOP STORE/PUJA -1 -2 KITCHEN DINING DRESS/TOILET 35° +6" WASH AREA LEVEL+12" KITCEHN LEVEL+18" 1'-6" 7' 2'-6" 1'-6" 7' 2'-6" 1'-6" 11' 11' COM. TOILET 23'-6" 3' 26'-6" 1'-5" 5'-1" 6'-6" 1'-6" 10'-7" 10'-7" ROAD LEVEL +00" SLAB TOP BEAM BOT. SLAB TOP WIDE TOWER PLINTH LEVEL PLINTH LEVEL BEAM BOT.(AS PER DESIGN) LINTEL BEAM BOT.(AS PER DESIGN) LINTEL LINTEL 2 3 4 5 6 7 8 9 10 11 12 13 14 15 16 17 18 19 7" 10" 7" 10" 6'-10 1 2 4'-4 1 2 1'-6" 1'-8" 3 2 1 4 5 6 7 8 9 10 11 12 13 14 15 16 17 18 19 4'-6 1 2 1'-5" 7' 1'-5" 9'-7" 3'-9" 4'-5 1 4 2' 1 2'-514 " 6" 55° 2' 1'-6" 1'-2" LB1 LB1 B2 B2 TB4 TB2 LIVING 17'-0" X 11'-0" BED ROOM 12'-6" X 10'-0" TOILET 4'-6" X 7'-0" COM.TOILET 6'-6" X 4'-0" KITCHEN/DINING 9'-6" X 15'-3" WASH 8'-0" X 6'-0" PLANTATION PARKING 9'-3" X 15'-0" PODIUM 5'-6" X 5'-6" COURT YARD 10'-3" X 8'-9" UP 2'-0" WD. CHHAJA LEVEL+6" LEVEL+12" LEVEL+18" LEVEL+12" LEVEL+6" LEVEL+0" LEVEL+12" LEVEL+18" LEVEL+18" LEVEL+18" LEVEL+6" SLOPE SLAB TOP TO TOP HT. 11'-0" SHOE RACK LIVING 17'-0" X 11'-0" BED ROOM 12'-6" X 10'-0" TOILET 4'-6" X 7'-0" COM.TOILET 6'-6" X 4'-0" KITCHEN/DINING 9'-6" X 15'-3" WASH 8'-0" X 6'-0" PLANTATION PARKING 9'-3" X 15'-0" PODIUM 5'-6" X 5'-6" COURT YARD 10'-3" X 8'-9" UP 2'-0" WD. CHHAJA LEVEL+6" LEVEL+12" LEVEL+18" LEVEL+12" LEVEL+12" LEVEL+18" LEVEL+18" LEVEL+18" LEVEL+6" SLOPE SLAB TOP TO TOP HT. 11'-0" SHOE RACK COMMON WALL COMMON WALL COMMON WALL-LAGU PLOT NO.:72-COMMON WALL-LAGU PLOT NO.:70-- - - R O A D - -36' 4 1 2 36'-4 1 2 41 2 25' 25' 41 2 50'-9" 2' 36' 4 1 2 36'-4 1 2 " 24'-10" 24'-10" 50'-9" 4" 12 13 14 15 16 17 18 19 11 10 9 8 7 6 5 4 3 2 1 12 13 14 15 16 17 18 19 11 10 9 8 7 6 5 4 3 2 1 C2 C3 C2 C2 C2 C2 C2 C3 C3 C2 C3 C3 C2 C3 C1 C2 C2 C1 C1 C1 C1 C1 C2 9"X15" 9"X18" 9"X15" 9"X15" 9"X15" 9"X15" 9"X15" 9"X18" 9"X18" 9"X15" 9"X18" 9"X18" 9"X15" 9"X18" 9"X9" 9"X15" 9"X15" 9"X9" 9"X9" 9"X9" 9"X9" 9"X9" 9"X15" 2' 24'-10 1 2 3'-4 1 2 4 1 2 7' 9" 9" 4'-5" 1 2 12'-6" 41 2 4 1 2 4' 4 1 2 15'-3" 9" 4'-9" 4" 10'-41 2 1'-9" 2'-8" 1'-9" 8'-11 2 4'-6" 2'-6" 4 1 2 " 2'-7 1 2 10' 12'-6" 7' 3' 6'-7" 2'-6" 4'-1" 9" 2' 2'-01 2 9" 1'-812 " 12'-214 " 10'-61 2 8'-8" 9" 2'-7 1 2 3'-9" 4'-6" 3'-3" 9" 4'-3" 1'-73 4 4'-012 " 4'-9" 4'-7 1 2 2'-012 " 1'-3" 3'-6" 41 2 1'-111 2 2'-6" 9" 3' 2' 24'-10 1 2 3'-4 1 2 4 1 2 7' 9" 36'-4 1 2 9" 4'-5" 41 2 12'-6" 1 2 " 4 1 2 " 4' 4 1 2 " 22'-8 1 2 9" 6'-3" 4" 10'-41 2 1'-9" 2'-8" 1'-9" 8'-11 4'-6" 2'-6" 4 1 2 2'-7 1 2 10' 12'-6" 7' 3' 6'-7" 2'-6" 4'-1" 9" 2' 2'-01 2 9" 1'-81 2 12'-21 4 " 10'-61 2 8'-8" 9" 2'-7 1 2 3'-9" 4'-6" 3'-3" 9" 4'-3" 1'-73 4 " 3'-6" 41 2 2'-6" 9" 7'-11 2 7'-11 2 1'-9" 4'-6" 1'-2 1 4 11'-111 4 " 11'-1114 " 1'-2 1 4 4'-6" 1'-9" 1'-9 1 2 2'-8" 1'-9 1 2 1'-9 1 2 2'-8" 1'-9 1 2 7'-11" 7'-11" 1'-6" 4" 2' 2' 13'-11" 3" 3" 7'-5 1 2 7'-4" 5'-6" 1'-3" 1'-6" 3' 3' 3'-31 2 3'-31 2 " 7'-4" 5'-61 2 " 21 2 4" 4" 21 2 3' 1'-3" 17'-10 1 2 2'-3" 17'-10 1 2 2'-3" 3'-31 2 " 3'-31 2 " 4'-7" 2' 9" 2' 4'-7" 11' 11' 2'-6" 8'-6" 2'-6" 8'-6" 4'-01 2 " 4'-9" 4'-7 1 2 2'-01 2 " 1'-3" TOILET 9'-0" X 10'-9" C 11' 1'-5" SLAB TOP SLAB TOP INVERTED BEAM 12'-5" SLAB TOP SLAB TOP 9'-7" BEAM BOT. 1'-5" 11' 10'-7" 5" 11' SLABTOP SLABTOP SLAB TOP SLAB TOP SLAB TOP INVERTED BEAM BEAM BOT. SLAB TOP B A D E start point start point 7' startpoint start point start point 3' KEY PLAN FIRST FLOOR C2 C3 C1 9"X15" 9"X18" 9"X9" Maatra Architects 3BHK GROUND FLOOR WORKING PLAN
MASTER BATHROOM DETAILS SAMPLE HOUSE ON-SITE PHOTO
24 D1 W1 C1 9"X9" C1 9"X9" C1 9"X9" C1 9"X9" D1 W1 C1 9"X9" 9"X9"C1 C1 9"X9" C1 9"X9" CHILDREN PLAY AREA
±0.00 +0.90 UP LEVEL+0'0" LEVEL+1'0" LEVEL+3'0" LEVEL+1'6" LEVEL+2'0" LEVEL+2'6" LEVEL+2'0" LEVEL+1'6" LEVEL+1'0" LEVEL+3'3" LEVEL+4'9" LEVEL+1'0" LEVEL+1'6" LEVEL+2'0" LEVEL+2'6" LEVEL+3'0" LEVEL+3'6" LEVEL+2'6" LEVEL+3'0" LEVEL+3'6" LEVEL+4'0" LEVEL+1'0" LEVEL+1'0" LEVEL+1'3" LEVEL+1'0" LEVEL+1'3" LEVEL+1'0" LEVEL+1'3" LEVEL+1'0" LEVEL+1'3" LEVEL+5'0" LEVEL+4'9" LEVEL+4'3" LEVEL+1'0" LEVEL+1'0" LEVEL+1'0" LEVEL+3'3" LEVEL+3'3" LEVEL+3'3" LEVEL+3'3" LEVEL+4'9" LEVEL+4'9" LEVEL+4'9" LEVEL+4'9" LEVEL+3'3" LEVEL+1'0" LEVEL+4'9" LEVEL+4'3" LEVEL+4'9" LEVEL+4'3" LEVEL+4'9" LEVEL+4'3" SAND FILLING GUTTER SLOPEOF1'0" SLOPEOF1'0" SLOPEOF2'0" SLOPEOF4'0" LEVEL+3'0" STRIP LIGHT ROAD LEVEL PLAZA LEVEL PCC LEVEL OF STEP FOOTING PCC LEVEL OF COLUMN WALL MOUNT FOCUS LIGHT 1@ HGT 1520 HALOGEN POLE LIGHT 910 100 X 100MM BLUE TILES 100 X 100MM BLUE TILES 100 X 100MM BLUE TILES REFER DETAIL 2 CURBING EXPOSED CONCRETE PLASTER REFER DETAIL 4 FOR FLOORING FLOOR TILES - KEDABOHEMIYA BROWN 1" THICK POLISHED KOTAH STONE WOODEN TILE 200 x 100mm FULL CARPET GRASS FOCUS LIGHT 4 POLE LIGHT BOLLARD LIGHT FOCUS LIGHT FOCUS LIGHT 1 FOCUS LIGHT 2 FOCUS LIGHT 3 CONOCORPUS FOUNTAIN GRASS (PURPLE) DRAFT CHAMPA RED CHAMPA BIG CHAMPA TREES LEGEND FLOOR TILES - KEDABOHEMIYA BROWN IMAGE 100 X 100MM BLUE TILES
BAMBOO STAMP CONCRETE WOODEN TILE COBALT 65MM (GREY SHADE 1) STAMP CONCRETE GOKULDHAM GARDENIA TEXT (kindly refer detail 4) COBALT 65MM (GREY SHADE 2) LIGHT LEGEND IMAGE LIGHT LEGEND IMAGE MATERIAL LEGEND IMAGE SECTION AA ROAD LEVEL PLAZA LEVEL PCC LEVEL OF STEP FOOTING B B SECTION BB C C ROAD LEVEL PLAZA LEVEL +1'0" PCC LEVEL OF STEP FOOTING SECTION CC ELEVATION DD ELEVATION DD 1941 6627 625 7490 1120 1820 1820 1820 910 584 1820 1820 1820 584 244 190 LEVEL +1'6" LEVEL +2'0" ROAD LEVEL PLAZA LEVEL ELEVATION EE 790 980 LEVEL +710 LEVEL +900 LEVEL +1090 LEVEL +1280 1820 2730 1820 300 910 1820 [5'-11 3/4"] 1820 1820 2730 1820 910 1820 910 1820 2730 ELEVATION EE F F G G A A LEVEL+4'9" LEVEL+4'3" LEVEL+4'9" F F G G ROAD LEVEL PLAZA LEVEL +1'0" PART PLAN LEVEL +1'6" LEVEL +2'0" LEVEL+3'3" LEVEL +3'0" LEVEL +4'3" LEVEL +4'9" LEVEL +3'3" ROAD LEVEL PLAZA LEVEL +1'0" LEVEL +1'6" LEVEL +2'0" LEVEL +3'0" LEVEL +4'3" LEVEL +4'9" LEVEL +3'3" COPING DETAIL) SECTION FF SECTION GG ROAD LEVEL PLAZA LEVEL +1'0" LEVEL +1'6" LEVEL +2'0" LEVEL +3'0" LEVEL +3'3" SECTION AA 1980 A A B PART PLAN PART PLAN SECTION BB 305 [1'] 1365 [4'-5 3/4"] WATER CASCADE SLOPE 1060 [3'-5 3/4"] 840 [2'-9"] 215 STAGNANT WATER FOUNTAIN DRAFT CHAMPA RAMP SLOPE COBALT 65MM WATER CASCADE SLOPE FOUNTAIN SECTION AA Maatra Architects FRONT ENTRANCE GATE ALL DETAILS N
EXISTINGROAD
BUDDHA

COMMUNITY SPACES

This township incorporates parks, walking trails, and recreational areas which encourages physical activity and a healthy lifestyle and connects residents to nature. Well-designed landscapes and outdoor spaces contribute to residents’ well-being, providing spaces for exercise, relaxation, and outdoor leisure. Community spaces in a township contribute to the overall livability and sustainability of the environment. Thoughtful design and planning of these spaces are essential to create a dynamic, inclusive, and thriving community.

25 Maatra Architects
FRONT ENTRANCE GATE VIEWS
LANDSCAPE LEVELS PLAN LANDSCAPE PLAN ALL GATE STRUCTURE SETTING PLAN MASONRY PLAN LEGEND WOODEN SITTING 460MM PLANTATION FILLING 230 MM FOUNDATION WALL PLOT BOUNDARY LEGEND LEVEL: +6" LEVEL: +1'0" LEVEL: +1'6" LEVEL: +2'0" LEVEL: +3'0" LEVEL: +3'3" LEVEL: +2'6" LEVEL: +3'6" LEVEL: +4'0" LEVEL: +4'3" LEVEL: +4'6" LEVEL: +4'9" LEVEL: +5'0"
FRONT ENTRANCE GATE ALL LAYERS
26 Maatra Architects WOODEN TILE 200mm x 100mm MATERIAL LEGEND IMAGE +1'0" +0'9" +0'6" +0'3" +0'6" +0'9" +1'6" +1'9" +1'6" +1'6" +2'0" +2'6" +2'6" +3'0" +1'6"+2'0" +1'3" +0'3" +0'3" +0'6" +1'0" +1'0" +1'0" +1'0" +1'0" ±0'0" +3'0" +3'0" GUTTER GUTTER GUTTER GUTTER +1'9" +1'6" A A +1'3" +1'0" +1'0" CARPET LAWN GUTTER HALOGEN POLE LIGHT POLE LIGHT POLE LIGHT POOL LIGHT HALOGEN POLE LIGHT HALOGEN POLE LIGHT HALOGEN POLE LIGHT HALOGEN POLE LIGHT DARK BLUE TILE 6" X 6" 300mm X 600mm TILE AS PER SELECTION W.P.C WOODEN PERGOLA STRIP LIGHT FOCUS LIGHT 4 BOLLARD LIGHT FOCUS LIGHT FOCUS LIGHT 1 FOCUS LIGHT 2 FOCUS LIGHT 3 LIGHT LEGEND IMAGE LIGHT LEGEND IMAGE HALOGEN POLE LIGHT WALL WASHER 1" THICK POLISHED KOTAH STONE KEDA TILE SIZE AS PER SELECTION 300 X 300 CARPETS PER SELECTION LEVEL+3'6" F. FL. LEVEL+4'0" LEVEL+3'0" FL. LEVEL+4'0" +1'3" 58 CAPACITY BANQUET HALL 12200 6100 LEVEL+3'0" THEATRE 12200 X 6100 LEVEL+3'0" GYM INDOOR GAMES 9750 X 5480 LEVEL+3'0" DETAIL C DETAIL A B B B B B B F F G G F B B B B DETAIL B DETAIL D H H I I J J K K K K K K L L 230 680 460 INDIAN CHRISTMAS TREE FOUNTAIN GRASS (PURPLE) DRAFT CHAMPA RED CHAMPA KADVI MEHANDI TREES LEGEND IMAGE BUDDHA BAMBOO CREEPERS RED ACALYPHA TREES LEGEND IMAGE 230 SECTION AA DEEP GROOVE MASONRY LEVEL 1'6" LEVEL 1'9" LEVEL 2'0" 115 C C D D 610 75 C C D D 385 1210 535 E E SECTION CC SECTION DD SECTION EE ELEVATION PLINTH LEVEL +3'0" LEVEL 1'6" LEVEL 1'9" LEVEL 2'0" LAWN LEVEL +1'0" LEVEL 2'0" SECTION FF STRIP LIGHT ROAD LEVEL 0.00 LAWN LEVEL +1'0" LEVEL LEVEL 1'3" LEVEL 2'6" SECTION HH LAWN LEVEL +1'0" PLINTH LEVEL +3'0" LEVEL LEVEL LEVEL 1'9" LEVEL 2'0" G G PART PLAN SECTION GG PLINTH LEVEL +3'0" LEVEL 2'0" SECTION II ROAD LEVEL 0.00 LEVEL LEVEL 1'6" LEVEL 1'3" LEVEL 1'9" SECTION JJ ROAD LEVEL 0.00 LEVEL LEVEL 1'6" LEVEL 1'3" LEVEL 1'9" WOODEN SECTION KK ROAD LEVEL 0.00 LEVEL LEVEL 1'6" LEVEL 1'3" LEVEL 1'9" INSIDE SECTION LL ROAD LEVEL 0.00 LEVEL LEVEL 1'6" LEVEL 1'3" LEVEL 1'9" WOODEN 35° ROAD LEVEL 0.00 LEVEL +2'6" LEVEL LEVEL 230 230 110 230 110 230 230 230 230 110 230 110 230 230 1370 230 230 110 230 110 230 230 1370 230 230 230 230 230 125 345 35° R115 345 115 DETAIL C 335 SECTION BB LEVEL 1'6" LEVEL 1'3" LEVEL 2'6" CLUBHOUSE LANDSCAPE ALL DETAILS N

CONCEPT

BREAKING MONOTONY:

Introduce diverse architectural elements and designs within the township to create visual interest and a dynamic environment.

PLOTTING STYLE ADVANTAGE:

Leverage the existing area’s layout for innovative and efficient land use, optimizing space for both aesthetic and functional purposes.

MARGIN STYLE RETHINK:

Explore alternative margin styles to maximize green spaces, enhance aesthetics, and create a balanced visual appeal throughout the township.

SPATIAL ORGANIZATION:

Implement thoughtful spatial planning to enhance functionality, flow, and accessibility, ensuring an efficient and purposeful arrangement of structures and amenities.

VARIED FAÇADE DESIGN:

Enhance the visual appeal by incorporating diverse façade elements such as arches, sloping roofs, and other architectural features to break away from uniformity.

CENTRALIZED PLUMBING:

Streamline infrastructure by implementing centralized plumbing systems, promoting efficiency, and reducing maintenance costs.

CROSS VENTILATION:

Prioritize natural airflow through strategic architectural planning to ensure optimal cross ventilation in major areas, enhancing comfort and sustainability.

ECONOMIC VIABILITY:

Integrate cost-effective solutions and materials into the design and construction process, ensuring that the overall development remains economically feasible and accessible.

27
Maatra Architects

TEMPLE FLOWER, BEHRAMPUR, ORISSA

HIGH-RISE RESIDENTIAL

SCHEME

Details:

- Plot area - 1,60,000 sq. ft. (3.6 acre)

- Developer - A D Homes

- Client - Mr. Alekh Chaudhary and Mr. Dhiraj Kumar Chaudhary

The trianular plot amidst the lush greenary, situated on the behrampur highway road is the first project where all the houses are vastu compliant.

Nestled within the vibrant landscape of Odisha, our high-rise housing scheme epitomizes a harmonious fusion of modern living and ancient wisdom, meticulously crafted in adherence to Vaastu principles. Each unit within this architectural marvel is thoughtfully designed to seamlessly integrate Vaastu Shastra’s principles, ensuring a balanced and auspicious living environment for residents. From the orientation of the buildings to the layout of individual units, every aspect is carefully considered to promote positive energy flow and enhance overall well-being. With panoramic views of the surrounding vistas and stateof-the-art amenities, this high-rise housing scheme in Odisha offers not just a home, but a sanctuary where residents can thrive in harmony with their surroundings while embracing the timeless wisdom of Vaastu.

DIVIDING TOWER IN 9 GRID

DEFINING SIZE OF EACH SQUARE BLOCK

THE BRAMHASTHAN IS KEPT OPEN BY PLACING UINTS ON PERIPHERY

PLACEMENT OF KITCHEN IN AGNI (SE) DIRECTION IN ALL UNITS

PLACEMENT OF TEMPLE ON EAST SIDE IN ALL UNIT

ARRANGEMENT OF ALL UNITS

28
Maatra Architects
VASTU PURUSHA MANDALA AND PLACEMENT OF SPACES ACCORDING TO DIRECTIONS

PLACEMENT OF 5 TOWERS ACCORDING TO VASTU WITH 3BHK APARTMENT IN

PLACEMENT OF 5 TOWERS WITH MAXIMUM UNITS PER FLOOR AND MINIMIZED PASSAGE

29 TOBRAHMAPUR TOWN 18.80 MT. WIDE MAIN ROAD ADJ. OTHER'S PROPERTY ADJ.OTHER'S
ADJ.OTHER'S
ADJ. OTHER'S PROPERTY ADJ. OTHER'S
MTR WIDE DRIVEWAY 7.5 MTR WIDE DRIVEWAY 7.5MTRWIDEDRIVEWAY 7.5 MTR WIDE DRIVEWAY 7.5MTRWIDEDRIVEWAY 7.5 MTR WIDE DRIVEWAY 7.5 MTR WIDE DRIVEWAY 7.5MTRWIDEDRIVEWAY 7.5 MTR WIDE DRIVEWAY MTR WIDE DRIVEWAY 7.5 MTR WIDE DRIVEWAY 7.5 MTR WIDE DRIVEWAY 7.5 MTR WIDE DRIVEWAY 7.5 MTR WIDE DRIVEWAY MTR WIDE DRIVEWAY MTR WIDE DRIVEWAY 7.5MTRWIDEDRIVEWAY ADJ.OTHER'SPROPERTY 218.93 TEMPLE13'3" 31'0" SOCITYOFFICE SWIMINGPOOL 41'0" 30'0" CHANGE SHOWER SUNDECK10'0" 41'6" ROOM ROOMACHINE DECKAREA SPLASHPOOL 15'0" ENTRANCE PLAZA-LIVING/DINNING/DINNING---TOWER- X ---204 sq.ft. ORE UP DINING 20'-9" BEDROOMCHENBEDROOM1016 744 LIVING/DININGEDROO EDROO X 12015744Sq.ft.EDROOSq.ft.1209 LIVING/DININ 12'-0" BEDROOM X BEDROOM WASH 1010 LIVING/DINBEDROOM10'-0" EDROO - Sq.ft.12011 PORCH744TOSq.ft. VING/DININGX PORCHBEDRO LIVING/DI X-TOIL BEDROOM Sq.ft.1208 LIVING/DI PORCH10'-0" Sq.ft. ING/DINING BEDROOM TOILETPORCHKITCEHNSq.ft.TOILET BEDROOM STORE Sq.ft.1203 NG/ KITCHEN10'-0"BEDROOM TOILET BEDRO X 104 BEDROOMTOILET LIVING/ 2'-0" BEDROOBEDROOM X10'-0" X 1'-9" POOJA WASH VING/DIN POOJA X PORCH 12'-9"BEDROOMBEDROO LIVING KITCHEN BEDROOMSq.ft.12012 1013 12013 1014 Sq.ft.12014-TOWER-B PASSAGE 21'-9" PASSAGE PASSAGE Sq.ft. Sq.ft. Sq.ft. Sq.ft.1205 Sq.ft. Sq.ft. X X-KITCHEN/DI-XKITCHEN/DINING--XX4-X--X X TOWERSq.ft. Sq.ft.1202 LIVING/DINING X Sq.ft. BEDROOM BEDROOM EDROOM X TOWER---X------TOWER-E Maatra Architects N E S W STRETCHER--------BEDROOM X1 3BHK 53'-3"CLUBHOUSE 23'-6" BRAMHASTHAN 2BHK BRAMHASTHAN 2BHK XX-DININGXROOM LIVING XBEDROOM--
PROPERTY
PROPERTY
PROPERTY ADJ.OTHER'SPROPERTY 7.5
OTHERS PROPERTY OTHERS PROPERTY OTHERS PROPERTY GREEN ZONE FUTURE EXTENSION X-BEDROOMROOMBEDROO BEDROOM--DINING X-TOILET X BEDROOM BEDROOM BEDROOM --P --2BHK BEDROOX BEDROOM 12'-6"-BEDROOM12'-6" 16'-3"---SSAGE2BHKKITCHENX5-BEDROOM SWIMMING CHILDREN PLAY GROUND ENTRY
MAIN ROAD
SOUTH
NORTH DIRECTION.
DIRECTION AND 2BHK APARTMENT IN

KEY DESIGN PRINCIPLES:

• Square Units: Square units are often recommended in Vaastu as they are considered balanced and conducive to positive energy flow.

• Main Spaces Opening Outside: Having main spaces like living, dining, and bedrooms opening outside ensures a connection with nature and allows for ample natural light and ventilation. This arrangement promotes a sense of openness and connection with the surroundings.

• Kitchen in Agni (SE) Direction: Placing the kitchen in the southeast (Agni) direction is in line with Vaastu principles, as this direction is associated with fire element. It’s believed to enhance energy related to cooking and nourishment.

• Puja in East Direction: Placing the puja room in the eastdirection is considered auspicious in Vaastu as it aligns with the direction of the rising sun, symbolizing positivity and spiritual growth.

• Three-Side Open Apartments: Apartments with 3 sides open allow for excellent cross ventilation and natural light penetration, contributing to a healthy and comfortable indoor environment.

• Minimal Circulation Passages: Minimal circulation passages help optimize space utilization and maintain a clutter-free environment. It also facilitates smooth movement within the living spaces.

30 BEDROOM 10'-0" X 10'-0" LIVING/DINING 11'-0" X 23'-9" BEDROOM 12'-3" X 11'-0" TOILET 7'-0" X 4'-0" KITCHEN 9'-3" X 8'-0" WASH 10'-9" X 6'-0" PORCH 10'-0" X 6'-0" BEDROOM 12'-0" X 15'-0" TOILET 6'-9" 4'-0" S.B. LIVING 11'-0" 15'-9" KITCHEN/DINING 17'-6" X 8'-0" TOILET 5'-9" X 4'-0" TOILET 7'-3" 4'-0" BEDROOM 10'-5" X 11'-0" BEDROOM 12'-3" X 11'-0" BEDROOM 10'-0" 14'-0" PORCH 8'-3" X 6'-0" WASH 9'-9" X 6'-0" LIVING 11'-0" 15'-9" KITCHEN/DINING 17'-6" X 8'-0" TOILET 5'-9" X 4'-0" TOILET 7'-3" 4'-0" BEDROOM 10'-5" X 11'-0" BEDROOM 12'-3" X 11'-0" BEDROOM 10'-0" 14'-0" PORCH 8'-3" X 6'-0" WASH 9'-9" X 6'-0" LIVING 11'-0" 15'-9" KITCHEN/DINING 17'-6" X 8'-0" TOILET 5'-9" X 4'-0" TOILET 7'-3" 4'-0" BEDROOM 10'-5" X 11'-0" BEDROOM 12'-3" X 11'-0" BEDROOM 10'-0" 14'-0" PORCH 8'-3" X 6'-0" WASH 9'-9" 6'-0" LIVING 10'-0" X 15'-9" KITCHEN 7'-6" X 10'-6" WASH 8'-0" X 4'-0" TOILET 7'-0" 4'-0" BEDROOM 10'-0" 12'-9" PORCH 9'-6" 4'-0" DINING 9'-6" X 10'-0" BEDROOM 10'-0" 14'-0" TOILET 6'-9" 4'-0" BEDROOM 10'-0" X 11'-0" S.B. S.B. S.B. SPACE FOR O.D.U. LIVING 10'-0" 15'-9" KITCHEN 7'-6" 10'-6" WASH 8'-0" X 4'-0" TOILET 7'-0" 4'-0" BEDROOM 10'-0" X 12'-9" PORCH 9'-6" 4'-0" DINING 9'-6" X 10'-0" BEDROOM 10'-0" X 14'-0" TOILET 6'-9" X 4'-0" BEDROOM 10'-0" X 11'-0" S.B. S.B. S.B. SPACE FOR O.D.U. LIVING 10'-0" 15'-9" KITCHEN 7'-6" 10'-6" WASH 8'-0" X 4'-0" TOILET 7'-0" 4'-0" BEDROOM 10'-0" X 12'-9" PORCH 9'-6" X 4'-0" DINING 9'-6" X 10'-0" BEDROOM 10'-0" X 14'-0" TOILET 6'-9" X 4'-0" BEDROOM 10'-0" X 11'-0" S.B. S.B. S.B. SPACE FOR O.D.U. LIVING 10'-0" X 15'-9" KITCHEN 7'-6" 10'-6" WASH 8'-0" X 4'-0" TOILET 7'-0" X 4'-0" BEDROOM 10'-0" X 12'-9" PORCH 10'-0" 4'-0" BEDROOM 10'-0" X 14'-0" TOILET 6'-9" X 4'-0" BEDROOM 12'-6" X 11'-0" S.B. S.B. S.B. SPACE FOR O.D.U. S.B. S.B. LIFT 7'-0" X 5'-9" LIFT 7'-0" 5'-9" LIFT 7'-0" 5'-9" STRECHURE LIFT 8'-0" 6'-0" FIRE LIFT 6'-6" 5'-9" LIFT 7'-0" 5'-9" UP DN UP DN PASSAGE 13'-3" 13'-3" PASSAGE 11'-0" X 13'-3" PASSAGE 11'-0" X 13'-3" PASSAGE 12'-0" X 13'-3" PASSAGE 6'-6" X 13'-3" Ishaan Agni Nairutya Vayavya N S E W SPACE FOR O.D.U. SPACE FOR O.D.U. SPACE FOR O.D.U. SPACE FOR O.D.U. FIRE TOWER FIRE DUCT
Maatra Architects TYPICAL 3BHK TOWER LAYOUT

Details:

- Plot area - 5790 (Residence) + 2770 (Landscape) = 8560 sq. ft.

- Max. Per. Fsi - 2.7

- Client - Mr. Shahil Monpara

A residence accommodating up to 6 individuals, designed with both functionality and flexibility in mind. The ground floor boasts both formal and informal living areas, capable of being seamlessly merged for large gatherings or separated as needed. The informal living space features a double-height volume for added spaciousness, while a dedicated puja room comfortably accommodates at least 10 individuals. A guest room provides the convenience of opening up when required, and the kitchen is intelligently connected to a back wash yard with an adjoining outdoor dining area. The parent’s room include a luxurious walk-in wardrobe and toilet, while an elegant staircase and lift provide access to the first floor. The master bedroom offers a cozy window sitting area, a connection to the informal living space below, and covered porches ideal for unwinding in the evening. The kid’s bedroom opens up to personal terrace, fostering both productivity and relaxation. Furthermore, adherence to Vastu principles governs the placement of key functions, including the kitchen, bed positions, and openings, promoting harmony and positive energy flow throughout the home.

FIRST FLOOR PLAN

31 AD. PLOT NO. 18 AD. PLOT NO. 25 105'-53 4 [32.15] UP COM. TOI. 8'6" X 4'0" UP DW PARENTS BEDROOM 19'7" X 16'0" DINING 14'0" 13'6" KITCHEN 14'0" X 12'9" STORE 6'0" X 6'5" PANTRY 6'0" X 6'5" WASH 15'5" 6'9" WASH BASIN AREA 4'5" 6'6" FOYER 15'3" X 6'0" 7'6" WIDE PASSAGE WALK-IN WARDROBE 8'9" X 9'1" TOILET 7'6" 9'1" GARDEN 9'1" 25'10" 9'1" WIDE PASSAGE GARDEN 14'0" 19'4" ENTRANCE WALKWAY 10'0" 6'9" LIFT 7'3" 5'6" LVL: +3'0" INFORMAL LIVING ROOM 13'0" X 16'9" 105'-53 4 [32.15]-9M WIDE ROAD-- - - 7.5M WIDE ROAD - --7.5M WIDE ROAD-82'-0 1 4 " [25.00] 82'-0 1 4 " [25.00] GUEST BEDROOM 13'0" 12'6" FORMAL LIVING ROOM 17'3" 16'0" PUJA 10'0" X 9'0" VERANDAH 5'0" X 6'0" LVL: +6'0" TOILET 4'2" 6'6" GARDEN 17'4" X 26'7" PARKING LVL: +5'6" LVL: +3'6" LVL: +6'0" LVL: +5'6" LVL: +6'0" LVL: +6'0" LVL: +6'0" LVL: +6'0" LVL: +5'6" LVL: +5'0" LVL: +4'6" LVL: +4'6" LVL: +4'0" LVL: +3'6" LVL: +3'0" LVL: +3'0" LVL: +4'0" LVL: +4'6" LVL: +5'0" LVL: +5'0" LVL: +6'0" LVL: +6'0" LVL: +5'0" OUTDOOR SEMI-OPEN KITCHEN CUM DINING AREA 15'5" X 21'0" LVL: +4'0" 11 12 13 14 15 16 17 18 19 20 DN LVL: +5'5.5" LVL: +6'0" LVL: +4'11" SPACE FOR METER BOX LVL: +3'6" MR. SHAHIL’S RESIDENCE, RAJKOT RESIDENTIAL BUNGALOW Ar. Rupesh Patel and Ar. Vidhi Araniya WALK-IN WARDROBE 12'0" 11'4" KIDS BEDROOM 19'7" 16'0" WALK-IN WARDROBE 8'9" 9'1" TOILET 7'6" 9'1" MASTER BEDROOM 18'0" X 22'9" MULTIPURPOSE ROOM 17'6" X 13'2" TERRACE 16'1" X 19'6" 7'8" WIDE PASSAGE LIFT 7'3" 5'6" STORE 13'0" 12'9" FAMILY ROOM 14'0" 13'3" space for o.d.u. and plumbing TOILET 8'5" X 6'6" TERRACE DN UP TOILET 7'11" 12'2" window sitting PORCH 7'11" X 8'0" LVL: +12'6" DOUBLE HEIGHT INFORMAL LIVING ROOM 20 N E S W
SE AND SW CORNER VIEW GROUND FLOOR PLAN

ADROJA’S FARMHOUSE, MORBI

Details:

- Plot area - 2,01280 sq. ft. (4.6 acre)

- Client - Mrs. Jalpa Adroja

This weekend villa serves as a venue for fortnightly gatherings of 25 to 30 individuals, comprising family, friends, and children. The primary concern of the client was to ensure that the built form remains shaded for the majority of the time. The design brief included provisions for a spacious living area, a dining space accommodating 12 people, a kitchen for basic food preparation, a storage room, a large wash yard for outdoor caterers to prepare meals for gatherings, two bedrooms with separate bathrooms featuring walk-in wardrobes and toilets, and a theater room accommodating 8-10 individuals.

To address these requirements, the L-shaped structure was strategically positioned in the southwest corner of the farm to maximize shade throughout the day. This placement not only ensures optimal shading but also offers sweeping views of the farm, fostering a strong connection with nature. The design approach was kept minimalistic. A front glass wall serves as a curtain wall, providing transparency and allowing natural light to permeate the interior spaces.

32
GAUSHALA GODOWN FARM HELPERS QUARTERS SECURITY CABIN PATHWAY-STATE HIGHWAY ROAD-FARMLAND PATHWAY EXISTING WELL EXISTING NARIYALI LINE EXISTING NARIYALI LINE PARKING PARKING GATE VIEWS Ar. Rupesh Patel and Ar. Vidhi Araniya
WEEKEND HOUSE
SITE PLAN N E S W
33 A' A KITCHEN 18'9" X 12'0" UP DECK HOME THEATRE 18'9" 28'0" WARDROBE 5'5" 5'1" BATH AREA 5'0" X 5'1" WASH BASIN 5'5" 5'1" TOILET 5'0" X 5'1" LIVING 18'9" 31'8" DINING 18'9" 13'8"--BATHROOM 5'11" 6'7" BEDROOM 16'0" X 21'0" - - -5'0" WIDE PASSAGE - -WASH 26'9" 12'0" BEDROOM 16'0" X 21'0" INDOOR SITTING SPACE 22'6" X 9'9" BATHROOM 5'11" X 6'7" WASH BASIN 5'1" 5'10" TOILET 5'1" 10'10" KITCHEN STORE 7'8" 7'8" MATTRESS ROOM 5'11" 5'6" WARDROBE 8'5" X 5'6" 7'0" X 8'3" opening of glass as per elevation design opening of glass as per elevation design FEATURE WALL AS PER ELEVATION DESIGN UP WASH BASIN 5'1" 5'10" TOILET 5'1" 10'10" WASH BASIN 7'8" X 3'8" riser of 4.5" LVL 0'0" SECTION BB' B B' C C' SECTION AA' SECTION CC' WARDROBE 8'5" 5'6" LVL 3'6" LVL 11'6" LVL 15'7.5" LVL 17'7.5" LVL 0'0" LVL 3'6" LVL 11'6" LVL 15'7.5" LVL 17'7.5" LVL 0'0" LVL 3'6" LVL 11'6" LVL 15'7.5" LVL 17'7.5" LIVING PASSAGE Ar. Rupesh Patel and Ar. Vidhi Araniya HOUSE PLAN AND SECTIONS PANOROMIC VIEW OF FARM FROM LIVING AND DINING
FRONT ENTRANCE
SITOUT IN
N E S W
FRONT
VIEW OF HOUSE

vidhi.araniya@gmail.com

Turn static files into dynamic content formats.

Create a flipbook
Issuu converts static files into: digital portfolios, online yearbooks, online catalogs, digital photo albums and more. Sign up and create your flipbook.
Vidhi Araniya Vachhani - Professional Work Portfolio by Vidhi Araniya Vachhani - Issuu