VICTOR ROCHA PORTFÓLIO
RENATA LUCAS
assistência técnica da exposição
reforma de ateliê na barra funda
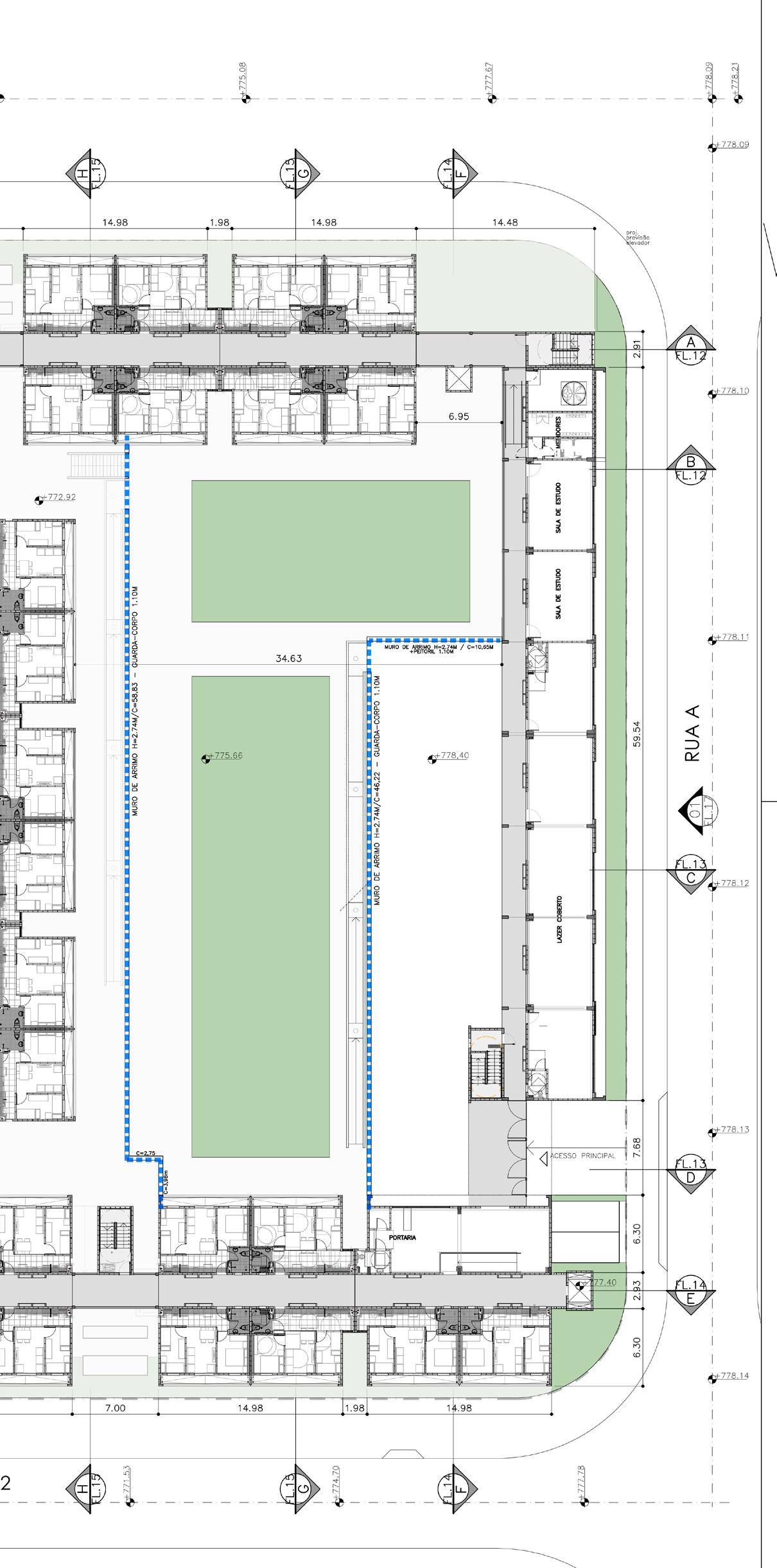
DRUCKER ARQUITETOSCONJUNTO HABITACIONAL PARQUE COCAIA
projeto executivo habitacional e paisagístico
projeto executivo da unidade sesc campo limpo
victor oliveira pacheco rocha
victoropr.arq@gmail.com
(11) 9 8538-1076
CV
FORMAÇÃO
Eixo
Curso de aprimoramento no software archicad
2024
Cura
Curso de representação arquitetônica
2021
Luminotécnica
Disciplina eletiva de luminotécnica com o professor Arq. Ms. Nelson
Solano Vianna
2018
Escola da Cidade
Graduação em arquitetura e urbanismo
2018 - 2023
HABILIDADES
Idiomas
inglês avançado
espanhol básico
Softwares
Archicad
AutoCad
Adobe Indesign
Adobe Photoshop
Sketchup
EXPERIÊNCIA PROPFISSIONAL
Assistência Renata Lucas
Assistência para a artista Renata Lucas na ocasião da exposição Domingo no Parque , na Estação Pinacoteca. 2024
Assistência de curadoria IABsp 80 anos
Assistência de curadoria na exposição IABsp, 80 anos falando em público.
Curadores: Lahayda Mamani, Paula Dedeca e Victor Próspero. 2024
Projetos autorais em parceria com Sérgio Peralta
Reforma do ateliê do artista Lucas Arruda e do salão de cabeleireiro e estética PELÚ. 2023-2024
Ruben Otero/Drucker Arquitetura
Estágio - Projeto executivo de Edifícios Habitacionais de Ineteresse Social (HIS) e parques municipais. 2023
Grupo Técnico - SESC Campo Limpo
Estágio - Projeto executivo do SESC Campo Limpo liderado pelos arquitetos Álvaro Puntoni e Marta Moreira. 2022-2023
H+F Arquitetos
Estágio - Projeto executivo de parques municipais e construção de maquetes para projeto. 2022
Ricardo Gusmão e Guido Otero Arquitetos
Estágio - Maquete de residência unifamiliar. 2022
PESQUISA E DIFUSÃO
Trabalho Final de Graduação
Ensino de Arquitetura, uma disputa polítca. Pesquisa - ensaio sobre as experiências pedagógicas em Arquitetura sucedidas em São José dos Campos e São Paulo nos anos 1970 e 1980. Trabalho orientado pela Profa. Dra. Paula Dedecca. 2023
Pesquisa Experimental
Pesquisa experimental orientada pelas Profas. Dras. Amália dos Santos e Glória Kok, realizada através do Programa de Iniciação Científica da Escola da Cidade. 2019-2020.







































