VT- project samples

Page 1


BOUTIQUE OFFICE IN PADDINGTON

Completed London

London Award Winner, AJ Retrofit & Structural Timber Award short

A modern industrial aesthetic was designed in mind for the Client, a private fund investing in sustainable agriculture using timber as a natural, carbon-negative, renewable resource. Driven by the vision for an honest expression of structure and detailing, the design strategy was to retain and carefully restore as much of the existing building fabric to achieve an economy of materials and a sense of place.

Planning applications

Concept design

£ £

Liaising with Suppliers/ consultants

Technical/detailed design

Tender, value-engineering and contract package

Liaising with contractor and review CDP submissions

Construction & Site attendance

Contract administration, Architect’s instructions, certificates

Valuation and payment certificates

Completion

Defects snagging and rectification

RIBA

Boutique Office in Paddington

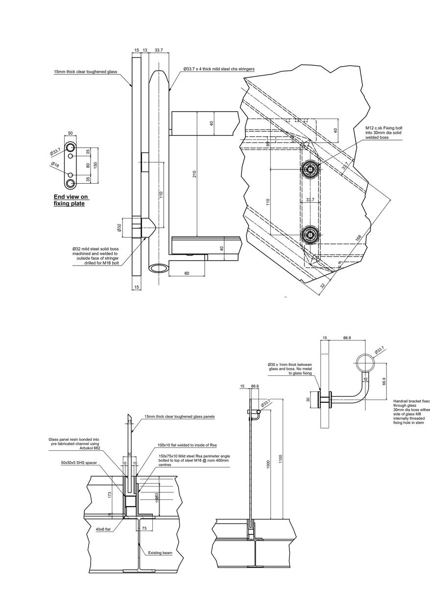
Exploded Axometric, External + Interior.

Boutique Office in Paddington Bespoke joinery and architectural elements.

Post completion photographs and bespoke stair details

• BOUTIQUE OFFICE IN PADDINGTON •

Cantilevered

BATHURST MEWS

Stage 3-4

London

A 1300sft compact, modern home with a striking series of permanent brick-formed structural concrete arches with an exposed, bespoke steel and timber roof. Hidden behind the only façade that has windows, the design introducing top-lit lightwells that puncture the plan from roof to basement level, pulling light into the heart of the house. Recessed walls and niches become a part of the architectural language for the display of art throughout the house, while the multi-height lightwell at the rear of the property can take large hanging art pieces.

Planning applications

Concept design

Liaising with Suppliers/ consultants

Technical/detailed design

£

Tender, value-engineering and contract package

Liaising with contractor and review design submissions

Section looking in- Bespoke joinery + rear lightwell.

Bathurst Mews

Section looking out- Windows, doors, stairs.

Bathurst Mews

CLIFTON ROAD, WIMBLEDON

Stage 3-5

London

A extension and full interior refurbishment of a 3 storey semi detached late 19th Century building with a stand alone annexe building adjacent. The new design gives clarity and hierarchy to the collection of buildings by relocating the main entrance, adding a single storey extension to the rear and a bridge and glazed slot to connection the old and new buildings. The interiors are a bespoke solution designed around the family’s needs and brings together the period, modern and natural themes which guide the client’s brief.

Planning applications

Concept design

£ £

Liaising with Suppliers/ consultants

Technical/detailed design

£

Tender, value-engineering and contract package

Liaising with contractor and review design submissions

Construction & Site attendance

Client side design guardian at Stage 5.

Overall scheme- Architecture + internal refurbish.

Clifton Road.
Squire & Partners
Fig. 29 Garden Rooms - Axo
Fig. 30 View of Kitchen Clifton Road. Bespoke joinery and interiors.
20103 - 6 Clifton

Road.

Bespoke joinery and interiors.

Clifton
Kitchen - view from Dining Room
Dining
Clifton Road. Bridge link, sanitary ware.
Rev -

Turn static files into dynamic content formats.

Create a flipbook
Issuu converts static files into: digital portfolios, online yearbooks, online catalogs, digital photo albums and more. Sign up and create your flipbook.
VT- project samples by Victoria Thong - Issuu