Victor Epinay - Portfolio 2024

Page 1


portfolio portfolio victor epinay

diplômé d’état en architecture

0

1

curriculum vitae

Équipement - Antony (94)

JSCPO+Cogedim

Habitat - Trilport (77)

I3F+Demathieu Bard

Équipement - Lyon (69)

SPL Lyon Confluences

Habitat - Vitry-sur-Seine (94) Aquipierre

Équipement/Habitat - Échirolles (38)

LinkCity+Bouygues

Habitat - Châtenay-Malabry (94) Cogedim

Habitat - Le Village Olympique et Paralympique (93)

Nexity+Eiffage+EDF+CDC

2

travaux professionnels travaux scolaires

Projet de fin d’études - M2 - ENSAPVS

Sous la direction d’Antoine Viger-Kohler (TVK)

Un urbanisme transitoire au sein de la friche Saint-Sever à Rouen (76)

Projet de fin de Semestre 7 - M1 - ENSAPVS

Sous la direction d’Antoine Viger-Kohler (TVK), Étienne Lénack (Lambert Lénack), Mathieu-Hô Simonpoli (Estran) et Ludovic Vion (Semapa)

L’interface ville-port à Gennevilliers (92)

3

travaux personnels

Construction - Réalisation d’une banquette en bois de récupération

Avec Ateliers Chutes Libres - Paris (12)

Construction - Chantier en terre crue

Avec la Ville de Rosny-sous-Bois (93)

Croquis - Natures mortes

victor epinay

05.10.1997

62 rue des Grands Champs, Paris (20)

victorepinay@gmail.com

07 89 83 52 39

DIPLOMÉ D’ÉTAT EN ARCHITECTURE

3 ANS D’EXPÉRIENCE PROFESSIONNELLE

Attiré par l’interdisciplinarité et soucieux de varier les échelles avec une préférénce pour le détail, cette «chose» parfois infime qui peut changer la perception d’un projet.

MASTER ARCHITECTURE (M2)

DE Villes et Territoires

PFE/Un urbanisme transitoire au sein de la friche Saint-Sever à Rouen (76)

ENSA Paris Val-de-Seine, Paris (13)

CÉSURE PROFESSIONNALISANTE

ENSA Paris Val-de-Seine, Paris (13)

MASTER ARCHITECTURE (M1)

ENSA Paris Val-de-Seine, Paris (13)

LICENCE ARCHITECTURE

ENSA Paris Val-de-Seine, Paris (13)

BAC SCIENTIFIQUE

Mention Bien

Lycée le Ferradou, Blagnac (31)

compétences

2D adobe autocad

AUTRE office permis B

3D archicad sketchup twinmotion

LANGUES français natif anglais (B1-B2) espagnol (A2-B1)

sensibilité pour matières/matériaux/volumes design mobilier et textile

participation à un chantier en terre crue réalisation d’un mobilier bois personnel

réalisation d’affiches évenementielles associatives graphisme photographie d’architecture et de portraits explorations urbaines travail manuel

depuis 09.2021

Études

expériences professionnelles

CHARGÉ DE PROJET

CoBe, Paris (14)

PC/Ivry-sur-Seine (94) - lot Westermeyer - Novaxia

Construction de 383 logements locatifs sociaux et commerces

PRO-DCE-ACT/Antony (92) - Association JSCPO et Cogedim

Réhabilitation des terrains de sport existants et construction de vestiaires, d’un club-house, logements et bureaux

ESQ/Lyon (69) - SPL Lyon Confluences

Faisabilité sur la relocalisation des services de gestion et tri des déchets de la Ville et Métropole avec ajout de programmes annexes

PC/Châtenay-Malabry (92) - Cogedim

Construction de 449 logements en accession et stationnement

APS-PC/Échirolles (38) - LinkCity et Bouygues

Construction d’un équipement de bureau, d’une résidence étudiante, d’un hôtel et d’un parking silo sur l’emprise d’Atos

APS/Vitry-sur-Seine (94) - Aquipierre

Construction de 83 logements en accession et 6 maisons superposées

Concours

Trilport (77) - I3F+Demathieu Bard

Construction de 46 logements sociaux et d’un foyer jeunes travailleurs en modules à ossature bois

06.2020 07.2019

Études

07.2021 09.2020 07.2020 09.2019 07.2019 09.2018 07.2018 09.2015 07.2015 03.2018 02.2018 07.2019 03.2017 07.2016 06.2016 08.2018 07.2018 08.2017 07.2017

DESSINATEUR-PROJETEUR ET STAGIAIRE

CoBe, Paris (14)

APS-APD/Village Olympique (93) - Nexity+Eiffage+CDC+EDF

Construction de 97 logements réversibles sur l’îlot E2 avec stationnement, commerces et espaces communs pour le Village Olympique et Paralympique de 2024

ESQ/Annecy (74) - Cogedim

Étude urbaine et capacitaire sur terrain nu

ESQ/Savigny-sur-Orge (78) - Seqens

Étude urbaine et capacitaire avec phasage de démolition/construction

Concours

Village Olympique (93) - Nexity+Eiffage+CDC+EDF

Coordination urbaine à l’échelle du lot E

STAGIAIRE

Baudouin Bergeron, Paris (14)

ASSISTANT SAISONNIER

Service Urbanisme municipal, Plaisance-du-Touch (31)

ASSISTANT SAISONNIER

Service Urbanisme municipal, Plaisance-du-Touch (31)

RESPONSABLE COMMUNICATION BÉNÉVOLE

Caféteria étudiante La Palette, ENSAPVS, Paris (13)

STAGIAIRE

ENACT, Eu (76)

travaux professionnels

1

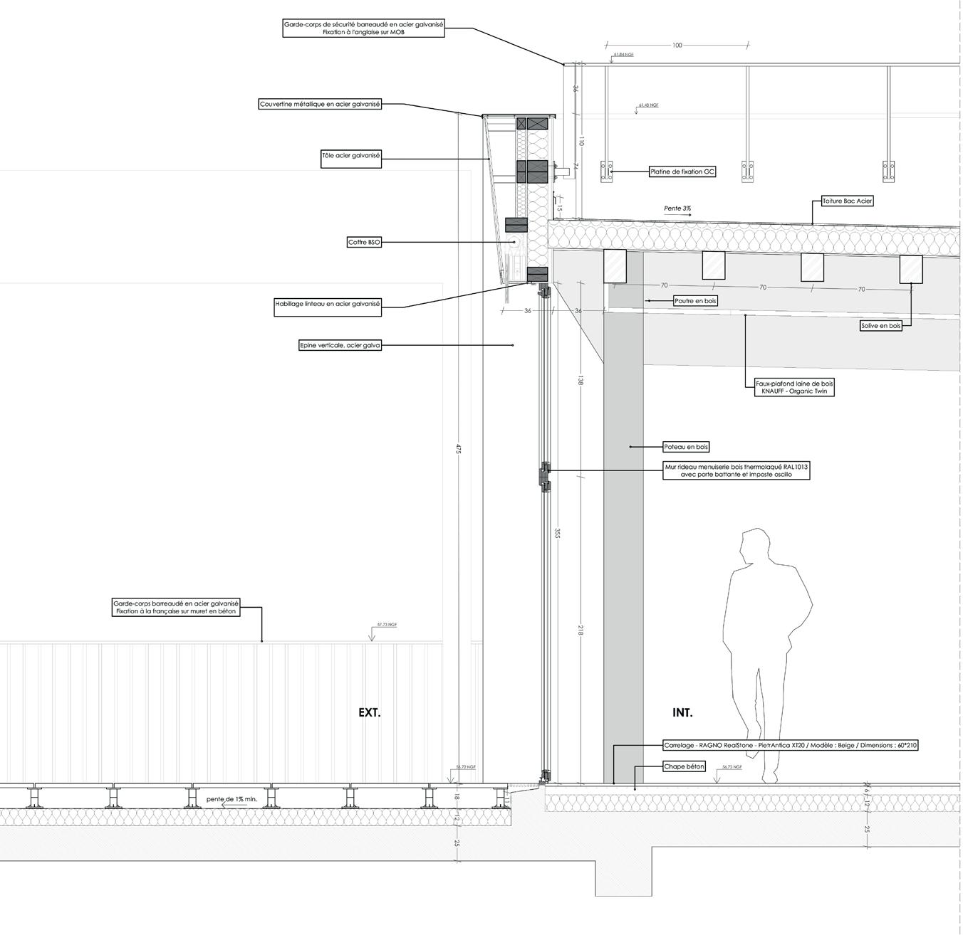
équipement Antony (94)

Phases

PRO-DCE (suite à un PA)

ACT

Maîtrises d’ouvrage

Association JSCPO supervisé par Cogedim

Acteurs

CoBe (architecture et paysage)

Incet (STR, CVC)

EVA (VRD)

DAL (économiste)

BTP Consultants (CSPS)

Surfaces

2108m2 SDP total

Logiciel ArchiCAD

Période

04.2023 - aujourd’hui

Adresse

Avenue Raymond Aron, Antony (92)

Programmation, objectifs et contraintes

Mission architecturale

+Réhabilitation des terrains de sport existants avec une couverture synthétique

+Construction de verstiaires et sanitaires joueurs, adversaires et public

+Construction de logements gardien et arbitres

+Construction de bureaux pour l’association

+Construction d’un club-house avec cuisine

+Aménagement de terrains multi-activités

Mission paysagère

+Travail paysager de la topographie et de l’allée de desserte comme tampon (visuel et acoustique) avec le tissu pavillonnaire

+Conservation des arbres remarquables

+Réadaptation de la topographie du terrain existant

détail sur le seuil intérieur/extérieur du club-house - sans échelle

détail sur l’escalier en colimaçon - sans échelle

habitat

Trilport

(77)

Phase Concours

Maîtrise d’ouvrage I3F

Avec Demathieu Bard et Vestack

Acteurs

CoBe (architecture et paysage)

Alterea (technique, économie du projet)

Surfaces

2791m2 SDP total

Logiciel

ArchiCAD

Twinmotion

Illustrator

Période

03.2023 - 05.2023

Adresse

ZAC de l’Ancre de Lune - 65 Avenue de Verdun, Trilport

Lots C2 et C3 - B455L & 4675F

Programmation, objectifs et contraintes

+Construction de 46 logements sociaux en accession avec son stationnement en infrastructure

+Construction d’un foyer jeunes travailleurs de 84 chambres réalisées chacune en module à ossature bois (réalisé par l’entreprise Vestack) et assemblées in situ

+Proposition d’une volumétrie alternative à la fiche de lot afin de communiquer davantage avec les projets alentours, parvenir à une rationalité constructive par des formes simples

+Dessiner un coeur d’îlot largement végétalisé avec plusieurs séquences qui permet de mettre à distance d’une avenue départementale fortement empruntée

perspective depuis l’avenue

plan d’étage courant - sans échelle

plan du rez-de-chaussée - sans échelle

coupe transversale sur les logements - sans échelle

équipement Lyon (69)

Phase

Étude de faisabilité

Maîtrise d’ouvrage

SPL Lyon Confluences

Acteurs

CoBe (architecture et urbanisme)

Initial Consultants (programmiste)

Surfaces

5000m2 de parking superposé

3000m2 de locaux pour Ville et Métropole

2400m2 de programme annexe

Logiciel ArchiCAD

Période

11.2023 - 12.2023

Adresse

Rue Hrant Dink, Lyon (69)

Programmation, objectifs et contraintes

+Relocalisation des locaux techniques Direction Biodiversité et Nature en Ville et Subdivision du nettoiement de la Métropole

+Articulation d’une zone technique de déchargement des camions, de zones de lavage, de stationnement intérieur et extérieur avec des lieux de stockage et des locaux du personnels nettement séparés et sécurisés

+Proposition d’une coursive intérieur/extérieur permettant la libre circulation des travailleurs, avec un jeu de double peau permettant d’animer la rue

+Superposition simple des programmes avec un parking public et un programme annexe de type bureaux permettant un phasage de l’opération en deux temporalités

+Traitement du recul réglementaire par rapport aux voiries SNCF par une zone de circulation des véhicules utilitaires

coupe A - sans échelle
coupe B - sans échelle
coupe C - sans échelle
coupe D - sans échelle

des étages - sans échelle

habitat Vitry (94)

Phase APS

Maîtrise d’ouvrage Aquipierre

Acteurs

Germe&Jam (urbanistes mandataires)

CoBe (architecture)

Debarre Duplantiers (lot GA21 et paysage)

Nomade (lot GA42)

Surfaces

3300m2 SDP pour le lot GA43

2715m2 SDP pour le lot GA42 425m2 SDP de commerces

Logiciel ArchiCAD Solibri (maquettage IFC)

Période

09.2021 - 05.2022

Adresse

ZAC Vitry-Seine-Gare, Cour de la Gare, Vitry-sur-Seine (94) Lots GA42 et GA43

Programmation, objectifs et contraintes

+Construction de 83 logements en accession et 6 maisons superposées de type logement intermédiaire, avec cellules commerciales et stationnement en infrastructure

+Travail en détail du rythme de la brique en façade (appareillage, saillie, colorimétrie) afin de proposer des édifices différents mais avec une écriture commune

plans du R+1 du lot GA42 - sans échelle

plans du R+4 du lot GA43 - sans échelle

équip./habitat Échirolles (38)

Phase APS-PC

Maîtrise d’ouvrage

LinkCity

Bouygues Construction

Acteurs

CoBe (architecture, coordination, urbanisme et paysage)

Athanor (architecture)

Surfaces

42 300m2 SDP total

11 500m2 SDP pour les bureaux/centre de formation

3533m2 SDP pour l’hôtel avec 118 chambres

8400m2 SDP pour la résidence étudiante avec 284 chambres

250 places de stationnement en silo

Logiciel

ArchiCAD

Adresse

Site Atos

1 rue de Provence, Échirolles (38)

Programmation, objectifs et contraintes

+Construction de bureaux et d’un centre de formation avec commerces à rez-de-chaussée, d’un hôtel, d’une résidence étudiante, et d’un parking silo (également de logements locatifs libres et d’une maison de santé par l’agence Athanor)

+Travail de coordination architecturale, synthèse et recollement de l’ensemble des pièces du groupement

Période

02.2022 - 10.2022

plans des rez-de-chaussée de l’ensemble - sans échelle

habitat

Châtenay (92)

Phase APS-PC

Maîtrise d’ouvrage Cogedim

Acteurs

CoBe (architecture)

OLM (paysage)

ECAU (VRD)

Incet (STR, CVC)

Surfaces

27 884m2 SDP total

4033m2 SDP pour le bâtiment 5

5420m2 SDP pour le bâtiment 6

5221m2 SDP pour le bâtiment 7

Logiciel ArchiCAD

Période

07.2022 - 03.2023

Adresse

Stade Pitray Ollier

30 Grande Voie des Vignes, Châtenay-Malabry (94)

Programmation, objectifs et contraintes

+Construction de 449 logements en accession sur 7 bâtiments avec stationnement en infrastructure

+Travail sur des typologies de bâtiments complexes en U (logements en angle rentrant)

+Travail de façade afin de rythmer les linéaires

+Travail sur la sécabilité des logements (T4/T5) demandés par la MOA

perspective des bâtiments 5 et 6 - réalisée par

plans des bâtiments 5 et 6 - sans échelle

habitat

JOP 2024 (93)

Phase

CONC-APS-APD

Maîtrise d’ouvrage

Nexity

Eiffage

EDF

CDC

Acteurs

CoBe (E2b, coordination architecturale E2)

Atelier Georges (E2a et coordination paysage E2) KOZ (E2a)

Surfaces

55 768 m² SDP totale lot E

8 880 m² SDP lot E2b

Logiciel ArchiCAD AutoCAD

Adresse

Village Olympique et Paralympique, Rue de Saint-Denis Saint-Denis et Saint-Ouen (93)

Programmation, objectifs et contraintes

+Construction de 97 logements réversibles de la phase jeux (à destination des athlètes) à la phase héritage, avec stationnement en infrastructure et commerces à rez-de-chaussée

+Coordination architecturale de l’ensemble du lot E2 et maquettage BIM

Période

07.2019 - 06.2020

élévation du Mail Finot - rendu de concours - sans échelle

élévation de la Place Ampère - rendu de concours - sans échelle

plans d’étage courant en APD - phase Héritage et Jeux - sans échelle

perspectives depuis la Place Ampère - rendu de concours et APD - réalisées respectivement par Doug&Wolf et LotoArchilab

travaux scolaires

2

PFE

Master 2

La régénération de la friche Saint-Sever (76), entre temporaire et pérenne

L’incertitude de l’arrivée d’une nouvelle gare comme moteur d’une réflexion sur le processus de transformation d’un ancien site ferroviaire

La friche Saint-Sever, une vaste surface en plein centre de Rouen, est aujourd’hui privilégiée pour accueillir une nouvelle gare. Cependant, il y a une accumulation d’études urbaines qui n’aboutissent pas: la gare, initialement prévue pour 2030, n’arriverait finalement qu’en 2050.

Est-on finalement sûr que celle-ci advienne un jour ?

avec ; Khodri Sarah

sous la direction de ; Viger-Kohler Antoine (TVK)

En attendant que le projet de gare advienne, cela laisse un site au cœur de l’agglomération rouennaise totalement libre et en attente, inscrit au sein d’un quartier également dans l’attente d’une mutation. Ne peut-on donc pas considérer une autre manière de concevoir un projet urbain ? Ne peut-on pas faire vivre dès aujourd’hui ce site sans attendre l’arrivée hypothétique d’une gare, considérée comme seul élément viable pour orchestrer le renouvellement urbain du quartier ?

En s’intéressant au processus de transformation de cet ancien site ferroviaire, cela amène à chercher une manière de le faire évoluer au fil du temps jusqu’à la potentielle arrivée de la gare, avec comme objectifs de l’ouvrir à la ville afin de le rendre exploitable et enclencher dès maintenant la mutation du quartier. Un découpage en plusieurs saisons de projet, liées à une temporalité, permet ici d’imaginer un projet urbain évoluant chaque décennie, mettant en avant une problématique spécifique, et conjuguant du transitoire sur la friche avec une économie sociale et solidaire, avec des franges qui se pérennisent par davantage de moyens. La première saison démontre qu’avec peu de moyens, il est possible de réexploiter le sol de la friche et ses grandes halles tels qu’ils sont. La seconde saison réadresse le tissu faubourien aux halles et au fleuve en travaillant sur l’architecture du sol et la caractérisation des formes bâties. L’objectif est de chercher à construire cette frange avec la place Carnot afin de tisser des connexions à la fois transversales et longitudinales, et ainsi créer plus de liens par l’espace public. La troisième saison met en avant l’alimentaire en milieu urbain car la ville et la métropole cherchent à y développer le circuit court de distribution. La friche est une opportunité de le développer par son emplacement privilégié et par l’infrastructure du Quai Jacques Anquetil.

Saison n°1 - axonométrie globale

coupe transversale - sans échelle

+Mobiliser les grandes halles via une économie de moyens

+Des micros-architectures sous l’enveloppe des grandes halles

Saison n°2 - axonométrie globale

coupe transversale - sans échelle +La caractérisation des formes bâties, support d’une transversalité du tissu faubourien vers la friche

axonométrie éclatée des quais - sans échelle +Le quai Jacques Anquetil, d’une machine à nuisances à une interface logistique performante +Le quai Jacques Anquetil, un support d’espaces publics

Saison n°3 - axonométrie globale

Plan d’une stratégie urbaine - sans échelle +L’urbanisme transitoire influence l’écriture du potentiel futur quartier de gare

Semestre 7 Master 1

Habiter le Port de Gennevilliers (92)

L’interface ville-port

Le Port de Gennevilliers assure la plus grande part du trafic fluvial du Port de Paris.

Dernier port à gros gabarit de l’axe Seine avant Paris intra-muros, il permet de faire transiter chaque jour plusieurs milliers de tonnes de marchandises en amont et en aval de la Seine.

avec ; Bertin Maylis Lledo Kevin

sous la direction de ; Viger-Kohler Antoine (TVK)

Lénack Étienne (Lambert Lénack)

Simonpoli Mathieu-Hô (Estran) Vion Ludovic (Semapa)

Le port est un pôle d’activités au coeur d’infrastructures métropolitaines ; l’A15, l’A86, le RER C, le M13 ainsi que le transilien J. Le trafic des camions de marchandises est intense le long du decumanus, alors que la réseau ferré portuaire reste inexploité et abandonné.

C’est un domaine public dans lequel s’implantent des entreprises privées et cloisonnées qui ne privilégient cependant pas toutes, d’après une étude qualitative menée sur les besoins d’accès à l’eau de celles-ci, leur façade fluviale.

Parallèlement, bien qu’un réseau de transport en commun soit mis en place, le port reste difficilement accessible pour les piétons et les cyclistes car les passerelles en sortie d’autoroute ne sont pas ou peu aménagées pour ces circulations douces. Alors que ce dernier jouit d’un paysage industriel atypique et d’une situation géographique bénéfique, le port n’est pas un lieu attractif pour la population : c’est une entité individuelle, une machine à nuisances séparée du reste de la ville, dont l’organisation et la productivité peuvent être améliorées.

L’enjeu est donc de parvenir à créer des points de contact entre ville et port, tout en développant le rendement de celui-ci par la réorganisation des flux de circulation et par le regroupement d’entreprises selon des secteurs d’activités, des besoins et des facteurs de nuisances sonores et environnementales.

cartographie des secteurs d’activités du port - sans échelle Logistique, stockage

axonométrie détaillée - sans échelle

01. Môle n°2

La promenade

02. Môle n°2

Le secteur agroalimentaire

03. La place métropolitaine

Une place minérale multisupport

04. La place métropolitaine Désimperméabilisation

05. Logements collectifs Habitabilité du port

06. Bureaux Entrée active du port

07. Entrepôts Industries légères

08. Le pont transformé Circulations motorisées et douces

coupe détail d’espace public - décroutage du tablier - sans échelle

masterplan détaillé - sans échelle

01. Fond de darse Le bassin de loisirs

02. Logements collectifs Habitabilité du port

03. IGH bureaux-logements Signal d’entrée de ville

04. A86 Échangeur important

05. Forêt linéaire Barrière de pollution Réserve foncière

05. Entrepôts Industries légères

montrant le bassin de loisirs - réalisée par Maylis

croquis
Bertin

travaux personnels

construction mobilier en bois

S’asseoir S’allonger Ranger Exposer Décorer

Confection d’une banquette en bois de récupération pour un appartement

Avec des essences de ; +okoumé (piétements encastrés, planche et pourtours) +pin (traverses non visibles)

Avec l’aide d’Ateliers Chutes Libres, Paris (12)

05 mars 2023

construction chantier terre crue

Réalisation de briques en terre crue pour un chantier d’extension de groupe scolaire

Organisé par la Ville de Rosny-sous-Bois (93)

encadré par ;

+Coquard Denis, architecte - Terra Janna

+Niakaté Awa, artisane - Terre de Femmes

16 et 17 juillet 2022

croquis natures mortes

Turn static files into dynamic content formats.

Create a flipbook
Issuu converts static files into: digital portfolios, online yearbooks, online catalogs, digital photo albums and more. Sign up and create your flipbook.
Victor Epinay - Portfolio 2024 by victorepinay - Issuu