




LISTA DE FIGURAS INTRODUÇÃO ANÁLISE DOS MAPAS CONTEXTUALIZAÇÃO MAPA RESUMO TABELA MIME ANÁLISE CORRELATO CONSIDERAÇÕES FINAIS REFERÊNCIAS
FIGURA 01: PRAÇA CHICO COLARES
FIGURA 02: MAPA DE LOCALIZAÇÃO
FIGURA 03: MAPA DE ESTUDO METEOROLÓGICO
FIGURA 04: MAPA DE CHEIOS E VAZIOS
FIGURA 05: VAZIO LOCALIZADO NA AV. RICARDO WAGNER DA SILVA PAZ
FIGURA 06: VAZIO URBANO LOCALIZADO NA R. JOÃO JULIÃO MARTINS
FIGURA 07: TERRENO DESOCUPADO LOCALIZADO NA AV. JOAQUIM CAROCA
FIGURA 08: DIVERSAS RESIDÊNCIAS NA AV. RICARDO WAGNER DA SILVA PAZ
FIGURA 09: MAPA DE SISTEMA VIÁRIO
FIGURA 10: MAPA DE USO E OCUPAÇÃO
FIGURA 11: POSTO DE GASOLINA NA AV. JOAQUIM CAROCA
FIGURA 12: COMÉRCIOS LOCAIS NA R. APRÍGIO VELOSO
FIGURA 13: EDIFICAÇÃO DE USO MISTO NA R. RODRIGUES ALVES
FIGURA 14: RESIDÊNCIAS UNIFAMILIARES NA R. MANOEL BARROS DE OLIVEIRA
FIGURA 15: MAPA DE GABARITO DAS EDIFICAÇÕES
FIGURA 16: EDIFICAÇÃO COM DOIS PAVIMENTOS NA R. JOÃO JULIÃO MARTINS
FIGURA 17: EDIFICAÇÃO ACIMA DE QUATRO PAVIMENTOS NA R. ANTÔNIO JOAQUIM PEQUENO
FIGURA 18: EDIFICAÇÃO DE NÍVEL TÉRREO NA AV. JOAQUIM CAROCA
FIGURA 19: EDIFICAÇÃO DE NÍVEL TÉRREO NA R. MANOEL BARROS DE OLIVEIRA
FIGURA 20: MAPA DE TOPOGRAFIA
FIGURA 21: MAPA DE TOPOGRAFIA DA PRAÇA
FIGURA 22: MAPA DE ARBORIZAÇÃO
FIGURA 23: IMAGEM AÉREA DO ENTORNO DA PRAÇA
FIGURA 24: MAPA DE ARBORIZAÇÃO DA PRAÇA
FIGURA 25: PRAÇA CHICO COLARES
FIGURA 26: MAPA DE ESPÉCIES
FIGURA 27: CORAÇÃO DE NEGRO (Poecilanthe parviflora)
FIGURA 28: MATA-FOME (Pithecellobium dulce)
FIGURA 29: MACAÚBA BARRIGUDA (Acrocomia intumescens)
FIGURA 30: ALGAROBA (Prosopis juliflora)
FIGURA 31: MAPA RESUMO
FIGURA 32: TABELA MIME
FIGURA 33: ACADEMIA PÚBLICA
FIGURA 34: ARBORIZAÇÃO
FIGURA 35: CICLOFAIXA
FIGURA 36: PLAYGROUND
FIGURA 37: BANHEIRO PÚBLICO NA CIDADE DE SÃO PAULO (SP)
FIGURA 38: BEBEDOURO PÚBLICO INSTALADO NAS RUAS DE PORTO ALEGRE (RS)
FIGURA 39: COBERTURA EM ARQUIBANCADAS NOS LENÇÓIS PAULISTAS (SP)
20 21 21 22 23 25 24 25 25 25 26 31 31 05
30 31 31 32 32 32 32
FIGURA 41: FAIXAS DE PEDESTRES IMPLANTADAS EM PETROLINA (PE)
FIGURA 42: REVITALIZAÇÃO DA PRAÇA DA BÍBLIA SANTA LUZIA (PB)
FIGURA 43: CAMPUS DA UNEMAT IMPLANTA PISO TÁTIL (MT)
FIGURA 44: LIXEIRAS IMPLANTADAS NO RESIDENCIAL CAIÇARA (PB)
FIGURA 45: RAMPAS DE ACESSO IMPLANTADAS EM BEBEDOURO - SP
FIGURA 46: QUIOSQUES NA PRAÇA DE EVENTOS DUDU SAMBA EM MONGAGUÁ - SP
FIGURA 47: CALÇADAS DO ENTORNO DA PRAÇA
FIGURA 48: ÁREA DA ACADÊMIA PÚBLICA SEM ILUMINAÇÃO PÚBLICA
FIGURA 49: BANCOS DE CONCRETO EXISTENTES
FIGURA 50: QUADRAS ESPORTIVAS
FIGURA 51: LIXO ACUMULADO
FIGURA 52: LIXO NAS CALÇADAS
FIGURA 53: ÁRVORE MORTA
FIGURA 54: PICHAÇÃO NAS ARQUIBANCADAS
FIGURA 55: MAPA DE CONDICIONANTES AMBIENTAIS
FIGURA 56: MAPA DE ASPECTOS CONTEXTUAIS
FIGURA 57: ZONEAMENTO/SETORIZAÇÃO
FIGURA 58: PROGRAMA DE NECESSIDADES
FIGURA 59: ILUMINAÇÃO E MATERIAIS
33 33 33 33 34 35 34 35 35 35 36 36 39 06
36 36 39 41 42 43 44
O VIGENTE TRABALHO TEM COMO PRINCIPAL OBJETIVO DIAGNOSTICAR O LOCAL DE ESTUDO DESTA UNIDADE: A PRAÇA CHICO COLARES, CONHECIDA POPULARMENTE COMO PRAÇA DO CONJUNTO DOS PROFESSORES, LOCALIZADA NO BAIRRO UNIVERSITÁRIO EM CAMPINA GRANDE PB.
O TRABALHO VISA ABORDAR, ANALISAR E DIAGNOSTICAR A ÁREA DA PRAÇA E SEUS ARREDORES. PARA A ANÁLISE FORAM UTILIZADOS OS MAPAS URBANÍSTICOS DE UM TRABALHO DE CONCLUSÃO DE CURSO DA ALUNA DE ARQUITETURA E URBANISMO MARINA BARACUHY REALIZADO EM 2015, LEVANDO EM CONSIDERAÇÃO OS DESENHOS QUANTO A MALHA URBANA, SISTEMA VIÁRIO, TOPOGRAFIA E CONDICIONANTES AMBIENTAIS NO GERAL.
COMO METODOLOGIA UTILIZADA PARA A REALIZAÇÃO DO ESTUDO DA ÁREA TEMOS A INTERPRETAÇÃO VISUAL DOS MAPAS E IMAGENS REFERENCIADAS POR SATÉLITE RETIRADAS DO PROGRAMA GOOGLE EARTH PRO E DO SITE DO STREET VIEW, ESSAS FERRAMENTAS POSSIBILITARAM A ANÁLISE, CARACTERIZAÇÃO E DIAGNÓSTICO DA ÁREA ESTUDADA.
AO FINAL DA ANÁLISE FOI PRODUZIDO UM MAPA RESUMO CONSIDERANDO OS ASPECTOS IMPORTANTES PARA INTRODUZIR O FUTURO PROJETO DE REQUALIFICAÇÃO, VISANDO MELHORIAS PARA AS PESSOAS QUE UTILIZAM A ÁREA E PARA O BAIRRO DE UMA FORMA GERAL, PARA ESSA REQUALIFICAÇÃO ESCOLHEMOS UM CORRELATO PARA SERVIR DE BASE E NOS AJUDAR A SOLUCIONAR OS PROBLEMAS ENCONTRADOS NO DIAGNÓSTICO, O CORRELATO É TAMBÉM UM TRABALHO DE CONCLUSÃO DE CURSO DE UM ALUNO DE ARQUITETURA E URBANISMO RAMON VITHOR JALES DE OLIVEIRA QUE PROJETOU A REQUALIFICAÇÃO DE UMA PRAÇA DA CIDADE DE ARAÇAJI PB.
A PRAÇA CHICO COLARES, TAMBÉM CONHECIDA
COMO CONJUNTO DOS PROFESSORES, ESTÁ LOCALIZADA EM UM BAIRRO À OESTE DA CIDADE DE CAMPINA GRANDE - PB.
A ÁREA FICA PERTO DA MAIOR UNIVERSIDADE DA REGIÃO, INTERAGINDO COM OS MAIS DIVERSOS PÚBLICOS, QUE VÃO DESDE A MORADORES LOCAIS, QUANTO A ESTUDANTES DE DIVERSOS BAIRROS E CIDADES. REFERENTE AO TRAÇADO QUE A PRAÇA SE ORGANIZA A PARTIR DO LOTE, PERCEBE-SE QUE O MESMO ESTÁ DISPOSTO COMO ORGÂNICO.
02: MAPA DE LOCALIZAÇÃO
OS MAPAS AO LADO, DEMARCAM A LOCALIZAÇÃO E ONDE SE ENQUADRA A PRAÇA ANALISADA, DESDE SUA SITUAÇÃO QUANTO AO PAÍS E ESTADO, SEGUIDO PELO MAPA DE CAMPINA GRANDE, CIDADE ONDE ESTÁ SITUADO, E TERMINANDO COM SUA LOCALIZAÇÃO APROXIMADA NO BAIRRO UNIVERSITÁRIO, PRÓXIMO À UNIVERSIDADE FEDERAL DE CAMPINA GRANDE (UFCG).
QUANTO AO ESTUDO METEOROLÓGICO, NOTA SE QUE HÁ UMA DISTRIBUIÇÃO ARBÓREA NO POENTE, PROPORCIONANDO UMA BARREIRA FAVORECENDO A DIMINUIÇÃO DE CALOR E POLUIÇÃO SONORA DA PRAÇA. JÁ A VENTILAÇÃO, QUE É PREDOMINANTEMENTE SUDESTE, ATINGE PRINCIPALMENTE A ÁREA DA ACADEMIA, PLAYGROUND, QUADRA DE AREIA E A QUADRA ESPORTIVA. PENSANDO NA PROPOSTA DE REQUALIFICAÇÃO, ESSE FATOR É DE BASTANTE RELEVÂNCIA QUANTO A DISPOSIÇÃO E REORGANIZAÇÃO DE ALGUNS AMBIENTES DA PRAÇA VOLTADO PARA ESSA REGIÃO.
LEGENDA
SOLNASCENTE SOLPOENTE DIREÇÃODOSVENTOS
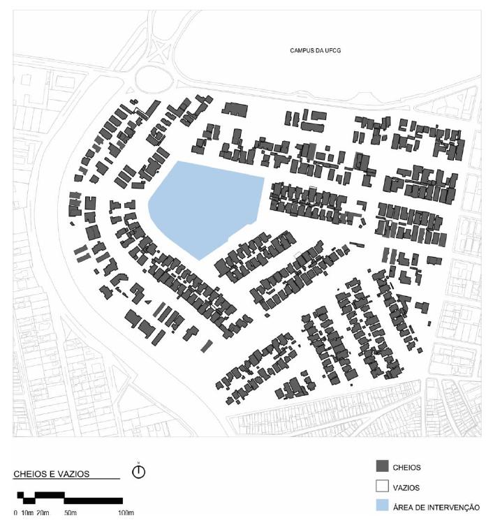
A PARTIR DA ANÁLISE DO MAPA DE CHEIOS E VAZIOS É PERCEPTÍVEL
UMA ABUNDANTE QUANTIDADE DE EDIFICAÇÕES AO REDOR DA ÁREA DE INTERVENÇÃO TORNANDO-A ADENSADA, PARA A PRAÇA ISSO É UM PONTO POSITIVO, POIS ESSAS PESSOAS PODEM SE UTILIZAR DA PRAÇA COMO ÁREA DE LAZER A TORNANDO ALGO ÚTIL PARA OS MORADORES LOCAIS. ALÉM DISSO, O CAMPUS DA UFCG PRÓXIMO AO LOCAL TAMBÉM GARANTE O MOVIMENTO DO LOCAL. AINDA, HÁ ALGUNS TERRENOS VAZIOS NO ENTORNO DO LOCAL, A MAIORIA DELES GERANDO ÁREAS PERMEÁVEIS QUE POSSIBILITAM
UMA FUTURA EXPANSÃO DO BAIRRO, GERANDO AINDA MAIS PÚBLICO PARA A PRAÇA.
A PRIORI, VALE CONSIDERAR A PRESENÇA DE DOIS PONTOS DE ÔNIBUS PRÓXIMOS À ÁREA DE INTERVENÇÃO, CONTUDO, NO GERAL, É NOTÓRIO QUE NÃO HÁ MUITAS PARADAS DE TRANSPORTE PÚBLICO NAS PROXIMIDADES DO LOCAL. A POSTERIORI, A VIA PRINCIPAL TRANSCORRE APENAS AS EXTREMIDADES DA ÁREA, JÁ AS VIAS SECUNDÁRIAS PERCORREM POR TODA A EXTENSÃO DO MAPA, FAZENDO CONEXÕES
ENTRE DIFERENTES RUAS QUE DÃO ACESSO À PRAÇA DE ESTUDO. DESSE MODO FICA CLARO QUE UMA REFORMA NAS VIAS DA LOCALIDADE
GARANTIRIAM UMA MAIOR VISIBILIDADE DA PRAÇA E ATRAIRIA POSSÍVEIS USUÁRIOS PARA A MESMA.
VALE DESTACAR AO FAZER A ANÁLISE DO MAPA DE USO E OCUPAÇÃO
DO SOLO QUE A REGIÃO É PREDOMINANTEMENTE RESIDENCIAL
UNIFAMILIAR. ALÉM DISSO, PERCEBE-SE QUE O USO COMERCIAL, INSTITUCIONAL E MISTO É MAIS VOLTADO PARA O CAMPUS DA UFCG
DO QUE PARA A PRÓPRIA PRAÇA, ISSO ABRE OPORTUNIDADE PARA A INSERÇÃO DE FOOD TRUCKS E / OU QUIOSQUES NA ÁREA DE FORMA A ATENDER A NECESSIDADE DOS USUÁRIOS.
AO ANALISAR O MAPA DE GABARITO, PERCEBE-SE QUE NA REGIÃO EM ESTUDO, AS EDIFICAÇÕES EM SUA MAIORIA SÃO CLASSIFICADAS COMO PAVIMENTO TÉRREO. CONSEQUENTEMENTE, CARACTERIZA A LOCALIDADE COMO PREDOMINANTEMENTE HORIZONTAL. NOTA SE TAMBÉM QUE A PRESENÇA DE EDIFICAÇÕES COM DOIS OU TRÊS PAVIMENTOS DESTACA-SE A NOROESTE DO MAPA, PERTO DA UNIVERSIDADE, LEVANDO NOS A CONCLUIR QUE SÃO MORADIAS ESTUDANTIS. JÁ AS CLASSIFICAÇÕES DE QUATRO OU CINCO PAVIMENTOS SÃO ESPORÁDICAS PELO LOCAL. PODE SE PERCEBER QUE A PRAÇA NÃO POSSUI A VENTILAÇÃO PREJUDICADA, VISTO QUE NÃO HÁ UMA VERTICALIZAÇÃO EM GRANDE ESCALA NA ÁREA, EM CONSEQUÊNCIA DESSA VENTILAÇÃO PRIVILEGIADA PODEMOS LOCALIZAR AS ÁREAS DE ESPORTES E ACADÊMIA NESSA ÁREA, FAVORECENDO UMA MAIOR PERMANÊNCIA DE PESSOAS NESSES LOCAIS.
FONTE: GOOGLE EARTH, 2019
A TOPOGRAFIA DA REGIÃO É BASTANTE ACIDENTADA, POSSUINDO DIVERSAS CURVAS DE NÍVEL EM TODA A SUA EXTENSÃO, ASSIM COMO
EM DESTAQUE NO MAPA AO LADO. EM CINZA A PRAÇA APARECE EM DESTAQUE NO MAPA, UM TOTAL DE 6 CURVAS DE NÍVEL PASSAM NELA. PORTANTO, ISSO REFLETE NEGATIVAMENTE PRINCIPALMENTE NA QUESTÃO DA ACESSIBILIDADE E NO DESLOCAMENTO PARA ACESSAR A PRAÇA.
A TOPOGRAFIA DA PRAÇA, ASSIM COMO DO RESTANTE DA REGIÃO POSSUI CURVAS DE NÍVEL ACENTUADAS.
A PRAÇA APRESENTA 8,8M DE DIFERENÇA DE ALTURA DE UM LADO A OUTRO DA PRAÇA NO SENTIDO LONGITUDINAL (LESTE - OESTE), MAS COMO A PRAÇA TEM UMA EXTENSÃO BASTANTE CONSIDERÁVEL ESSE DESNÍVEL É QUASE IMPERCEPTÍVEL PARA AS PESSOAS QUE TRANSITAM NELA. ESSA TOPOGRAFIA PODE SER TRABALHADA NOS MOBILIÁRIOS QUE SERÃO INSERIDOS POR TODA A EXTENSÃO DA ÁREA, ALÉM DISSO, AS ÁREAS LIVRES PODEM SER TRABALHADAS COM PLATORES E PLANIFICAÇÕES VARIANDO O GABARITO DE CERTAS REGIÕES DO LOCAL.
É PERCEPTÍVEL QUE A PRAÇA CONSTITUI UM GRANDE MACIÇO VERDE, COM ÁREA PERMEÁVEL E A PRESENÇA DE DIVERSAS ÁRVORES OCASIONANDO UM CONSEQUENTE SOMBREAMENTO NAS ÁREAS DE CIRCULAÇÃO E PERMANÊNCIA DA PRAÇA, EM CONTRAPARTIDA, PERCEBE-SE CLARAMENTE QUE TODO O LOCAL É CERCADO POR UM CINTURÃO DE ÁRVORES QUE ALÉM DE TRAZER SENSAÇÃO DE INSEGURANÇA PARA OS PEDESTRES E USUÁRIOS DA PRAÇA, COMO TAMBÉM OCASIONA UM ISOLAMENTO PARA A MESMA, NÃO PERMITINDO SUA COMUNICAÇÃO VISUAL COM O ENTORNO E VICE VERSA.
FONTE: BARACUHY (2017).
FONTE:
DIVERSOS SÃO OS TIPOS DE VEGETAÇÃO ESPALHADAS POR TODA A ÁREA DA PRAÇA, PORÉM COM DISTRIBUIÇÃO NÃO UNIFORME ESSA VEGETAÇÃO ACABA PREJUDICANDO CERTAS ÁREAS, QUE NÃO FICAM PROTEGIDAS DA INSOLAÇÃO, AS TORNANDO QUASE INÚTEIS DE UTILIZAÇÃO DURANTE BOA PARTE DO DIA. DISTRIBUINDO ESSAS ÁRVORES UNIFORMEMENTE PELA REGIÃO CONSEGUIREMOS TRAZER UM CONTRASTE JÁ EXISTENTE ENTRE AS ESPÉCIES, PROPORCIONAR UMA VEDAÇÃO ACÚSTICA, ALÉM DE SOLUCIONAR AS ÁREAS COM AUSÊNCIA DE SOMBREAMENTO GERANDO MAIS LOCAIS DE PERMANÊNCIA.
PASSEIO: O PASSEIO NÃO FAVORECE A RÁPIDA CIRCULAÇÃO DE PESSOAS, MAS ELE PASSA POR TODO O PARQUE CHEGANDO NOS MAIS DIVERSOS LOCAIS.
ACADEMIA PÚBLICA; ARBORIZAÇÃO; CICLOFAIXA; PLAYGROUND.
BANHEIROS PÚBLICOS; BEBEDOUROS; COBERTA NAS ARQUIBANCADAS; ESPAÇO PET; FAIXAS DE PEDESTRES; NOVOS MOBILIÁRIOS URBANOS; PISO TÁTIL; PONTOS DE DESCARTE DE LIXO; RAMPAS DE ACESSO; QUIOSQUES.
CALÇADAS; ILUMINAÇÃO; MOBILIÁRIOS URBANOS EXISTENTES; PASSEIO PÚBLICO; QUADRAS ESPORTIVAS.
ÁRVORES EM MAL ESTADO; LIXO NO CHÃO; PICHAÇÃO.
O MAPA AO LADO MOSTRA A ÁREA AO REDOR DA ÁREA DE INTERVENÇÃO, BEM COMO AS CURVAS DE NÍVEL DA ÁREA, AS ÁRVORES EXISTENTES E A VENTILAÇÃO PREDOMINANTE NO LOCAL.
O CONTEXTO GERAL AO REDOR DA ÁREA DE INTERVENÇÃO CONTÉM LOCAIS DE COMPRA COMO LANCHONETES, LOJAS E SUPERMERCADOS, TAMBÉM HÁ UMA QUADRA DE AREIA E UMA PRAÇA PÚBLICA COMO LOCAIS DE CONVIVÊNCIA E LAZER, E UM CORREIO QUE ATENDE A POPULAÇÃO LOCAL.
FIGURA 59: ILUMINAÇÃO E MATERIAIS
FONTE: RAMON OLIVEIRA (2020).
ICO ESPAÇO, PROPORCIONANDO TANTO
QUANTO AO MATERIAL UTILIZADO NO CORRELATO ATENDE AOS PRINCÍPIOS DE SUSTENTABILIDADE ALÉM DE POSSUIR UMA ALTA DURABILIDADE, BAIXA MANUTENÇÃO E ALGUNS DESTES AUXILIAM NA PERMEABILIDADE DO SOLO (COMO PISOS DRENANTES).
O TRABALHO APRESENTADO NOS FAZ OLHAR E REFLETIR SOBRE COMO ESSES DADOS E ESTUDOS DE MAPAS SÃO CADA VEZ MAIS ESSENCIAIS AOS PROJETOS ARQUITETÔNICOS E URBANÍSTICOS VISTO QUE CADA BAIRRO E LOCALIDADES APRESENTAM UMA DEMANDA, NECESSIDADES E PÚBLICOS DISTINTOS, ADAPTANDO AS SOLUÇÕES, DE FORMA VIÁVEL, PARA QUE OCORRA UMA MELHORIA DO ESPAÇO URBANO, TANTO SOCIAL COMO FISICAMENTE, SEJA PARA OS UTILIZADORES DA ÁREA QUANTO PARA AS PESSOAS QUE VIVEM EM SEU ENTORNO.
EM SUMA, A PARTIR DO ESTUDO E RECONHECIMENTO DAS PREEXISTÊNCIAS ARQUITETÔNICAS E/OU URBANÍSTICAS, FOI POSSÍVEL VERIFICAR QUE A MAIORIA DAS EDIFICAÇÕES AO REDOR DA PRAÇA CARACTERIZAM-SE COMO RESIDÊNCIAS UNIFAMILIARES TÉRREAS, PROPORCIONANDO UMA HORIZONTALIDADE E CONSEQUENTEMENTE FAZENDO COM QUE A PRAÇA TENHA UMA BOA VENTILAÇÃO SUDESTE/LESTE. PODE-SE OBSERVAR TAMBÉM QUE A PRAÇA CHICO COLARES É BEM ARBORIZADA, OCASIONANDO UM SOMBREAMENTO DO LOCAL, E DE MODO TOPOGRÁFICO A PRAÇA NÃO POSSUI UM DESNÍVEL CONSIDERÁVEL. DESSARTE, É DE EXTREMA IMPORTÂNCIA VOLTAR A ATENÇÃO PARA ESTA PRAÇA, DE MODO A ERRADICAR PROBLEMAS CITADOS DURANTE ESTE TRABALHO, ATRAVÉS DE PROPOSTAS, ELABORAÇÃO E EXECUÇÃO DE AÇÕES COM O INTUITO DE CONTRIBUIR PARA UMA FUTURA MELHORIA NA ÁREA, IMPACTANDO DIRETAMENTE NO PÚBLICO DA PRAÇA E NA POPULAÇÃO LOCAL.
Baracuhy, Marina Paiva. Requalificação da Praça Professor Chico Colares na cidade de Campina Grande – PB / Marina Paiva Baracuhy. Biblioteca Unifacisa. Disponível em: <https://biblioteca.unifacisa.edu.br:8443/pergamumweb/vinculos /000017/000017f0.pdf>. Acesso em: 14 mar. 2022.
Oliveira, Ramon Vithor Jales da. Requalificação da praça de eventos da cidade de Araçagi-(PB). Issuu. Disponível em: <https://issuu.com/tccnota10arquitetura/docs/ramon_jales_tcc_arquiteura>. Acesso em: 14 mar. 2022.